EP0807428A2 - Verdampfersystem für Sauna-Anlagen - Google Patents

Verdampfersystem für Sauna-Anlagen Download PDF

Info

Publication number
EP0807428A2
EP0807428A2 EP97102482A EP97102482A EP0807428A2 EP 0807428 A2 EP0807428 A2 EP 0807428A2 EP 97102482 A EP97102482 A EP 97102482A EP 97102482 A EP97102482 A EP 97102482A EP 0807428 A2 EP0807428 A2 EP 0807428A2
Authority
EP
European Patent Office
Prior art keywords
condensate
steam
container
evaporator
evaporator system
Prior art date
Legal status (The legal status is an assumption and is not a legal conclusion. Google has not performed a legal analysis and makes no representation as to the accuracy of the status listed.)
Granted
Application number
EP97102482A
Other languages
English (en)
French (fr)
Other versions
EP0807428A3 (de
EP0807428B1 (de
Inventor
Bernd Stoffl
Roland Gesierich
Current Assignee (The listed assignees may be inaccurate. Google has not performed a legal analysis and makes no representation or warranty as to the accuracy of the list.)
SEVRI - Sauna Fritz Seebauer
Original Assignee
SEVRI - Sauna Fritz Seebauer
Priority date (The priority date is an assumption and is not a legal conclusion. Google has not performed a legal analysis and makes no representation as to the accuracy of the date listed.)
Filing date
Publication date
Application filed by SEVRI - Sauna Fritz Seebauer filed Critical SEVRI - Sauna Fritz Seebauer
Publication of EP0807428A2 publication Critical patent/EP0807428A2/de
Publication of EP0807428A3 publication Critical patent/EP0807428A3/de
Application granted granted Critical
Publication of EP0807428B1 publication Critical patent/EP0807428B1/de
Anticipated expiration legal-status Critical
Expired - Lifetime legal-status Critical Current

Links

Images

Classifications

    • AHUMAN NECESSITIES
    • A61MEDICAL OR VETERINARY SCIENCE; HYGIENE
    • A61HPHYSICAL THERAPY APPARATUS, e.g. DEVICES FOR LOCATING OR STIMULATING REFLEX POINTS IN THE BODY; ARTIFICIAL RESPIRATION; MASSAGE; BATHING DEVICES FOR SPECIAL THERAPEUTIC OR HYGIENIC PURPOSES OR SPECIFIC PARTS OF THE BODY
    • A61H33/00Bathing devices for special therapeutic or hygienic purposes
    • A61H33/06Artificial hot-air or cold-air baths; Steam or gas baths or douches, e.g. sauna or Finnish baths
    • A61H33/063Heaters specifically designed therefor

Definitions

  • the invention relates to an evaporator system for sauna systems.
  • evaporator systems for sauna systems.
  • evaporator systems are on the market, which are either combined with the usual sauna heater or can also be retrofitted in existing systems.
  • the additional device is designed in such a way that it uses the available space without, however, reducing the bathing area.
  • the additional device should still be easy to use, of course, with minimal maintenance.
  • Another requirement is that the evaporator system should save energy.
  • the water for steam generation is either heated according to the immersion heater principle, i.e. a heating element is arranged in the water container that is in direct contact with the water, or a pipe is provided, similarly to coffee machines, as a feed line to the herb container, in which rises to produce steam and is heated by a heating jacket surrounding the pipe.
  • a heating element is arranged in the water container that is in direct contact with the water, or a pipe is provided, similarly to coffee machines, as a feed line to the herb container, in which rises to produce steam and is heated by a heating jacket surrounding the pipe.
  • trays for receiving herbs are arranged, which are heated by the steam, so that vapors rise from the herbs or essential oils, which then pass over the steam from the steam generator mix and be led into the bathroom.
  • the object of the present invention is to provide an evaporator system which avoids the disadvantages of the prior art shown above.
  • the object is achieved by the features of claim 1. These features ensure that when the herbal vapors are used and mixed well with the steam, no condensate gets into the steam generating container, contaminates it and encrypts the heating. The evaporation system is therefore almost maintenance-free.
  • the collecting device preferably consists of two shields which are offset from one another and arranged one above the other, which collect the condensate and discharge it into a collecting channel, where it is collected.
  • a condensate tank can also be connected to the collecting trough.
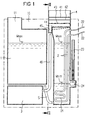
  • the evaporator system 10 consists of the storage container 1, the evaporator 2, and the condensate container 3, which is arranged under the storage container 1.
  • the water storage container 1 is connected by a line 5 to the evaporator 2, so that both containers communicate with one another and the water level in both containers also remains at the same level.
  • a filler neck 11 is provided for filling the water into the reservoir.
  • the evaporator 2 takes up a substantially smaller amount of water than that contained in the storage container 1.
  • a heating element 21, which is fed through the power lines 22, is immersed in this amount of water.
  • a water level sensor 24 regulates the water level W so that it does not drop below Wmin. Should the water level drop below Wmin due to the emptying of the storage container, the water level sensor 24 automatically switches off the heating element 21. According to the water level in the reservoir 1, the water level fluctuates between Wmax and Wmin and is indicated by the water level indicator 23.
  • the heating element 21 can always heat only the amount of water in the evaporator 2. In this way, steam D is generated after a short switch-on time.
  • an attachment 4 is placed, in which herbs K or other ethereal substances are introduced.
  • the herbs K are placed on a shelf 41 designed as a sieve.
  • condensate forms, which prevents the herbs K from overheating and the ethereal substances being destroyed. So that the condensate that forms does not get into the evaporator 2 and is deposited there, a collecting device for the condensate is provided.
  • two inclined shields 42, 43 are arranged under the screen 41 of the attachment 4 at a distance from one another and offset.
  • the shield 42 connects to the front attachment wall 47, but leaves a passage between the rear attachment wall 48 free.
  • the passage is located on the side of the front attachment wall 47.
  • the steam D rising from the evaporator 2 first strokes the shield 43 and passes through the passage formed to the front wall 47 between the two shields 42, 43 and finally flows between the shield 42 and the rear attachment wall 48 against the sieve 41, on which the herbs K are introduced.
  • the sieve 41 and thus also the herbs K are flowed through by the steam D, which takes the etheric substances with them and conveys them to the bathroom.
  • connection piece 45 and the condensate line 46 which connect the collecting channel 44 to the condensate container 3, are used.
  • the evaporator system 10 is assembled into a compact apparatus and therefore requires very little space.
  • the evaporator system 10 can expediently be arranged in the space between the protective grille 6 and the sauna heater 7 itself, which according to the regulations should have a width of at least 7 cm. This arrangement makes it easy and safe to operate the evaporator system 10. It is avoided to long over the hot oven 7 and yet no additional space in the bathroom is required.
  • the storage container 1 and the evaporator 2 communicate.
  • the water levels in the storage container 1 and in the evaporator 2 are always at the same level. This means that the water level in the evaporator 2 can fluctuate between Wmax and Wmin, depending on how strongly the reservoir 1 is filled. As a result, more and more water would have to be heated up, depending on the fill level, especially when the evaporation system was operating.
  • the regulation by the water level sensor 24 can also take place in such a way that a valve is provided in the inlet line 5, which is opened depending on the desired water level, so that only a very specific amount of water is to be heated at all times.
  • the line 5 can be connected directly to the tap water network, so that the water level sensor 24 regulates the water level directly from the water line with a control valve.
  • FIGS. 5 and 6 show another embodiment of the attachment 8, the front wall being omitted in the view for a better understanding of the arrangement inside the attachment 8.
  • the attachment 8 is placed on the evaporator 2, which comprises the attachment 8 in its fork-like length.
  • the cover 83 forms the bottom of the attachment 8 and is pulled upwards in the middle, so that two bevels are formed which open into a passage 84.
  • Above passage 84 is the upper one Cover 82 is arranged, which prevents the condensate from dripping into the passage and thus into the evaporator 2.
  • the shield 83 forms a collecting channel 85 with the side walls.
  • the two collecting channels 85 are brought together by a connection 87, the connection 87 being connected to the condensate container 3 by a connecting line 86.
  • an evaporation system in which the steam generating container 2 and the storage container 1 are separated in order to bring only a small amount of water to the evaporation in each case.
  • This evaporation system 10 can also be used advantageously without the attachment 4 with a collecting device for the condensate, just as the attachment 4 can advantageously be used without the separation of the steam generation container 2 and the water storage container 1.
  • both devices combined result in the sum of the advantages and thus a particularly advantageous evaporator system.

Landscapes

  • Health & Medical Sciences (AREA)
  • Public Health (AREA)
  • Epidemiology (AREA)
  • Pain & Pain Management (AREA)
  • Physical Education & Sports Medicine (AREA)
  • Rehabilitation Therapy (AREA)
  • Life Sciences & Earth Sciences (AREA)
  • Animal Behavior & Ethology (AREA)
  • General Health & Medical Sciences (AREA)
  • Veterinary Medicine (AREA)
  • Devices For Medical Bathing And Washing (AREA)
  • Vaporization, Distillation, Condensation, Sublimation, And Cold Traps (AREA)

Abstract

Verdampfungssystem für Saunaanlagen mit einem Dampferzeuger, bei welchem Wasser in einem Verdampfungsbehälter durch ein Heizelement erhitzt wird sowie eine über dem Dampferzeuger angeordnete Aufnahmevorrichtung für Kräuter, ätherische Öle und dergleichen, wobei die Kräuter auf einer vom Dampf durchströmten Ablagefläche abgelegt sind. Unterhalb der siebartigen Ablagefläche ist eine Auffangeinrichtung für abtropfendes Kondensat angeordnet, die verhindert, daß das Kondensat in den Verdampfungsbehälter gelangt. Das ganze Verdampfungssystem einschließlich der Aufnahmevorrichtung für Kräuter und der Auffangeinrichtung ist als komplette Einheit gestaltet und in dem Sicherheitsraum zwischen dem Sauna-Ofen und dem Schutzgitter angeordnet.

Description

  • Die Erfindung betrifft ein Verdampfersystem für Sauna-Anlagen. Bei den bekannten Sauna-Anlagen besteht zunehmend das Bedürfnis, das übliche Sauna-Bad durch Kräuterdämpfe oder mit ätherischen Ölen angereicherte Dämpfe zu ergänzen. Hierfür sind Zusatzgeräte, sog. Verdampfersysteme, auf dem Markt, die entweder mit dem üblichen Sauna-Heizofen kombiniert sind oder auch in bestehende Anlagen nachgerüstet werden können.
  • Insbesondere für die Nachrüstung ist es erforderlich, daß das Zusatzgerät so gestaltet ist, daß es den vorhandenen Freiraum nutzt, ohne jedoch den Baderaum zu verringern. Das Zusatzgerät soll dennoch auch gut bedienbar sein, natürlich mit einem minimalen Wartungsaufwand. Eine weitere Forderung besteht darin, daß das Verdampfersystem energiesparend sein soll.
  • Bei den bekannten Verdampfersystemen erfolgt das Erhitzen des Wassers zur Dampferzeugung entweder nach dem Tauchsiederprinzip, d.h. in dem Wasserbehälter ist ein Heizelement angeordnet, das direkt mit dem Wasser Kontakt hat, oder es ist ähnlich wie bei Kaffeemaschinen ein Rohr vorgesehen als Zuleitung zu dem Kräuterbehälter, in welchem zur Dampferzeugung Wasser hochsteigt und durch einen das Rohr umgebenden Heizmantel erhitzt wird.
  • Dieses letztere System hat zwar den Vorteil, daß stets nur die im Rohr befindliche Wassermenge erhitzt werden muß, andererseits ist der Wärmeübergang und damit die Heizleistung nicht so gut wie beim Tauchsiederprinzip. Zum anderen verkalken diese Rohre sehr schnell, sie sind zudem äußerst aufwendig zu reinigen bzw. zu entkalken, da das Innere des Rohres ohne Demontage nicht zugänglich ist. Wird die Reinigung zur Vermeidung dieser Umstände selten oder gar nicht durchgeführt, so sinkt der Wirkungsgrad der Heizleistung rapid ab.
  • Bei den bekannten Verdampfersystemen sind über bzw. in dem aufsteigenden Dampf des Dampferzeugers Schalen zur Aufnahme von Kräutern angeordnet, die durch den Dampf erhitzt werden, so daß von den Kräutern oder ätherischen Ölen Dämpfe aufsteigen, die sich dann mit dem darüber streichenden Dampf aus dem Dampferzeuger vermischen und in den Baderaum geleitet werden.
  • Diese Art der Beimengung der Kräuterdämpfe oder ätherischen Öle hat den Nachteil, daß über die Schale die Kräuter oder auch die ätherischen Öle zu stark erhitzt und dadurch zerstört werden. Die Ausnützung und Beimischung ist unbefriedigend. Es ist deshalb auch schon vorgesehen worden (DE 39 13 280 A1), statt einer Schale über dem Dampf ein Einlagegitter für Kräuter vorzusehen, so daß der Dampf direkt durch die Kräuter hindurchtreten kann. Dabei entsteht ein Kondensat, welches direkt in den darunterliegenden Dampferzeuger und dessen Heizelemente tropft. Bei der DE 39 13 280 A1 sind zwar unterhalb des Auflagesiebes Leitbleche vorgesehen, diese leiten jedoch das abtropfende Kondensat oder Sprühflüssigkeit direkt der Verdampferwanne zu. Es entsteht eine Verunreinigung sowohl des für die Verdampfung vorgesehenen Wassers als auch eine unerwünschte Verkrustung der Heizelemente. Der Verdampfer muß von Zeit zu Zeit gereinigt werden, um seine Funktionstüchtigkeit zu erhalten.
  • Aufgabe der vorliegenden Erfindung ist es, ein Verdampfersystem zu schaffen, das die oben aufgezeigten Nachteile des Standes der Technik vermeidet.
  • Erfindungsgemäß wird die Aufgabe durch die Merkmale des Anspruches 1 gelöst. Durch diese Merkmale wird sichergestellt, daß bei guter Ausnutzung und Vermischung der Kräuterdämpfe mit dem Dampf kein Kondensat in den Dampferzeugungsbehälter gelangt, diesen verschmutzt und die Heizung verkrustet. Das Verdampfungssystem ist dadurch nahezu wartungsfrei.
  • Vorzugsweise besteht die Auffangeinrichtung in zwei gegeneinander versetzt und übereinander angeordneten Abschirmungen, die das Kondensat auffangen und in eine Sammelrinne ableiten, wo es gesammelt wird. Bei größeren Mengen kann auch ein Kondensatbehälter mit der Sammelrinne verbunden sein.
  • Weitere Einzelheiten der Erfindung werden anhand der Zeichnungen beschrieben.
  • Es zeigen
  • Fig. 1 -
    eine schematische Darstellung des erfindungsgemäßen Verdampfungssystems im Aufriß;
    Fig. 2 -
    eine Seitenansicht gemäß der Schnittlinie II/II in Figur 1;
    Fig. 3 -
    eine perspektivische Ansicht des Aufsatzes zur Aufnahme der Kräuter oder ätherischen Öle nebst der Auffangeinrichtung für das Kondensat;
    Fig. 4 -
    die Anordnung des Verdampfungssystems in Verbindung mit dem Sauna-Ofen.
    Fig. 5 -
    eine andere Ausführung des Aufsatzes in Seitensicht ohne Vorderwand;
    Fig. 6 -
    dieAusführung nach Fig. 5 in Frontsicht unter Weglassung der Vorderwand.
  • Das Verdampfersystem 10 besteht aus dem Vorratsbehälter 1, dem Verdampfer 2, sowie dem Kondensatbehälter 3, der unter dem Vorratsbehälter 1 angeordnet ist. Der Wasservorratsbehälter 1 ist durch eine Leitung 5 mit dem Verdampfer 2 verbunden, so daß beide Behälter miteinander kommunizieren und sich der Wasserspiegel auch in beiden Behältern auf gleichem Niveau hält. Für das Einfüllen des Wassers in den Vorratsbehälter ist ein Einfullstutzen 11 vorgesehen.
  • Der Verdampfer 2 nimmt eine wesentlich kleinere Wassermenge auf als im Vorratsbehälter 1 enthalten. In diese Wassermenge ist ein Heizelement 21 eingetaucht, das durch die Stromleitungen 22 gespeist wird. Ein Wasserstandsfühler 24 reguliert den Wasserstand W, so daß dieser nicht unter Wmin sinkt. Sollte der Wasserstand unter Wmin absinken infolge Entleerung des Vorratsbehälters, so schaltet der Wasserstandsfühler 24 automatisch das Heizelement 21 ab. Entsprechend dem Wasserstand im Vorratsbehälter 1 schwankt der Wasserstand zwischen Wmax und Wmin und wird durch den Wasserstandsanzeiger 23 angezeigt. Nachdem der Vorratsbehälter 1 vom Verdampfer 2 räumlich getrennt und nur durch die Verbindungsleitung 5 mit diesem verbunden ist, kann das Heizelement 21 stets nur die im Verdampfer 2 befindliche Wassermenge aufheizen. Auf diese Weise wird schon nach kurzer Einschaltzeit Dampf D erzeugt.
  • Auf den Verdampfer 2 ist ein Aufsatz 4 aufgesetzt, in welchen Kräuter K oder andere ätherische Stoffe eingebracht werden. Die Kräuter K werden auf eine als Sieb ausgebildete Ablagefläche 41 gelegt. Der aus dem Verdampfer 2 aufsteigende Dampf D durchströmt den Aufsatz 4, dringt durch das Sieb 41 und auch durch die darauf ausgebreiteten Kräuter K, so daß ein gut durchmischter Kräuterdampf entsteht. Bei der Durchströmung entsteht Kondensat, welches verhindert, daß die Kräuter K überhitzt und die ätherischen Stoffe zerstört werden. Damit nun das sich bildende Kondensat nicht in den Verdampfer 2 gelangt und sich dort ablagert, ist eine Auffangeinrichtung für das Kondensat vorgesehen.
  • Wie aus den Figuren 2 und auch 3 hervorgeht, sind zwei geneigte Abschirmungen 42, 43 unter dem Sieb 41 des Aufsatzes 4 im Abstand voneinander und versetzt angeordnet. Die Abschirmung 42 schließt an die vordere Aufsatzwand 47 an, läßt aber einen Durchgang zwischen der hinteren Aufsatzwand 48 frei. Bei der Abschirmung 43 ist es in umgekehrter Weise: der Durchgang befindet sich an der Seite der vorderen Aufsatzwand 47. Der aus dem Verdampfer 2 aufsteigende Dampf D streicht zunächst an der Abschirmung 43 lang, gelangt durch den zu der vorderen Wand 47 gebildeten Durchgang zwischen die beiden Abschirmungen 42, 43 und strömt schließlich zwischen der Abschirmung 42 und der hinteren Aufsatzwand 48 hindurch gegen das Sieb 41, auf dem die Kräuter K eingebracht sind. Das Sieb 41 und somit auch die Kräuter K werden vom Dampf D durchströmt, der die ätherischen Stoffe mitnimmt und in den Baderaum befördert. Bildet sich nun Kondensat, so tropft dieses nach unten zunächst auf die Abschirmung 42, welche das Kondensat gegen die hintere Aufsatzwand 48 leitet. Das von dieser ersten Abschirmung 42 heruntertropfende Kondensat fällt auf die zweite Abschirmung 43 und wird durch diese gegen die hintere Aufsatzwand 48 abgeleitet und in einer Sammelrinne 44 aufgefangen. Fallen größere Kondensatmengen an, so ist es zweckmäßig, diese in einen gesonderten Kondensatbehälter 3 abzuleiten. Hierzu dient der Anschlußstutzen 45 und die Kondensatleitung 46, die die Sammelrinne 44 mit dem Kondensatbehälter 3 verbinden.
  • Das Verdampfersystem 10 ist zu einer kompakten Apparatur zusammengebaut und benötigt deshalb äußerst wenig Platz. Das Verdampfersystem 10 kann zweckmäßigerweise in dem Raum zwischen dem Schutzgitter 6 und dem Sauna-Ofen 7 selbst angeordnet werden, der nach den Vorschriften wenigstens eine Breite von 7 cm haben soll. Durch diese Anordnung erfolgt das Bedienen des Verdampfersystems 10 bequem und gefahrlos. Es ist vermieden, über den heißen Ofen 7 zu langen und dennoch wird kein zusätzlicher Platz im Baderaum beansprucht.
  • Bei der beschriebenen und in Fig. 1 dargestellten Ausführung kommunizieren der Vorratsbehälter 1 und der Verdampfer 2. Die Wasserstände im Vorratsbehälter 1 und im Verdampfer 2 halten sich stets auf dem gleichen Niveau. Das bedingt, daß im Verdampfer 2 der Wasserspiegel zwischen Wmax und Wmin schwanken kann, je nachdem, wie stark der Vorratsbehälter 1 gefüllt ist. Dadurch würde immer noch mehr Wasser in Abhängigkeit vom Füllstand gerade im Anfang des Betriebes des Verdampfungssystemes aufzuheizen sein. Vorteilhafterweise kann die Regulierung durch den Wasserstandsfühler 24 auch in der Weise erfolgen, daß ein Ventil in der Zulaufleitung 5 vorgesehen ist, das in Abhängigkeit des gewünschten Wasserstandes geöffnet wird, so daß stets nur eine ganz bestimmte Menge Wasser zu beheizen ist. Auch kann statt an den Vorratsbehälter 1 die Leitung 5 direkt an das Leitungswassernetz angeschlossen sein, so daß der Wasserstandsfühler 24 mit einem Steuerventil direkt aus der Wasserleitung den Wasserspiegel reguliert.
  • Die Figuren 5 und 6 zeigen eine andere Ausführung des Aufsatzes 8, wobei zum besseren Verständnis der Anordnung im Inneren des Aufsatzes 8 die Vorderwand in der Ansicht jeweils weggelassen ist. Der Aufsatz 8 ist auf den Verdampfer 2 aufgesetzt, der den Aufsatz 8 in seiner Länge gabelartig umfaßt. Die Abdeckung 83 bildet den Boden des Aufsatzes 8 und ist mittig nach oben gezogen, so daß zwei Schrägen gebildet werden, die in einen Durchlaß 84 münden. Über dem Durchlaß 84 ist die obere Abdeckung 82 angeordnet, die ein Abtropfen des Kondensats in den Durchlaß und damit in den Verdampfer 2 verhindert. Die Abschirmung 83 bildet jeweils mit den Seitenwänden eine Sammelrinne 85. Die beiden Sammelrinnen 85 werden durch eine Verbindung 87 zusammengeführt, wobei die Verbindung 87 mit einer Verbindungsleitung 86 mit dem Kondensatbehälter 3 verbunden ist.
  • Werden ätherische Öle oder andere ätherische Flüssigkeiten eingebracht statt der Kräuter K, so ist es zweckmäßig, einen porösen Körper 81 auf das Sieb 41 zu legen, der diese ätherischen Flüssigkeiten aufnimmt und vom Dampf D durchströmt werden kann. Die Abschirmungen 42 und 43 bzw. 82 und 83 verhindern hier in gleicher Weise sowohl ein Abtropfen der ätherischen Stoffe als auch des Kondensates in den Verdampfer 2.
  • Bei dem beschriebenen Ausführungsbeispiel ist ein Verdampfungssystem gezeigt, bei dem Dampferzeugungsbehälter 2 und Vorratsbehälter 1 getrennt sind, um eine nur kleine Wassermenge jeweils zur Verdampfung zu bringen. Dieses Verdampfungssystem 10 kann auch ohne den Aufsatz 4 mit Auffangvorrichtung für das Kondensat vorteilhaft verwendet werden, genauso wie auch der Aufsatz 4 vorteilhaft ohne die Trennung von Dampferzeugungsbehälter 2 und Wasservorratsbehälter 1 angewandt werden kann. Beide Einrichtungen vereinigt ergeben jedoch die Summe der Vorteile und damit ein besonders vorteilhaftes Verdampfersystem.
  • Bezugszeichenliste
  • 1
    Wasservorratsbehälter
    2
    Verdampfer
    3
    Kondensatbehälter
    4
    Aufsatz
    5
    Verbindungsleitung
    6
    Schutzgitter
    7
    Ofen
    8
    anderer Aufsatz
    81
    poröser Körper
    82
    obere Abschirmung
    83
    untere Abschirmung
    84
    düsenförmiger Durchlaß
    85
    Sammelrinne
    86
    Verbindungsleitung
    87
    Verbindung
    21
    Heizungselement
    22
    Anschlußleitung Heizung
    23
    Wasserstandsanzeiger
    24
    Wasserstandsfühler
    10
    Verdampfersystem
    11
    Einfüllstutzen
    41
    Sieb
    42
    Abschirmung
    43
    Abschirmung
    44
    Sammelrinne
    45
    Anschlußstutzen
    46
    Kondensatleitung
    47
    Vordere Aufsatzwand
    48
    Hintere Aufsatzwand
    D
    Dampf
    K
    Kräutereinlage
    W
    Wasserstand

Claims (9)

  1. Verdampfungssystem für Saunaanlagen mit einem Dampferzeuger, bei welchem Wasser in einem Verdampfungsbehälter durch ein Heizelement erhitzt wird, und einer über dem Dampferzeuger angeordneten Aufnahmevorrichtung für Kräuter, ätherische Öle und dergleichen, wobei die Kräuter auf einer vom Dampf durchströmten Ablagefläche abgelegt sind, dadurch gekennzeichnet, daß unterhalb der siebartigen Ablagefläche (41) eine Auffangeinrichtung für abtropfendes Kondensat angeordnet ist, die verhindert, daß das Kondensat in den Verdampfungsbehälter (2) gelangt.
  2. Verdampfungssystem nach Anspruch 1, dadurch gekennzeichnet, daß die Aufnahmevorrichtung aus einem auf dem Dampferzeugungsbehälter (2) angeordneten Aufsatz (4; 8) besteht, bei welchem unterhalb der siebartigen Ablagefläche (41) die Auffangeinrichtung für abtropfendes Kondensat angeordnet ist.
  3. Verdampfersystem nach einem der Ansprüche 1 oder 2, dadurch gekennzeichnet, daß die Auffangeinrichtung zwei gegeneinander versetzt übereinander angeordnete Abschirmungen (42, 43) aufweist.
  4. Verdampfersystem nach Anspruch 3, dadurch gekennzeichnet, daß an die untere Abschirmung (43, 83) eine Sammelrinne (44, 85) anschließt.
  5. Verdampfersystem nach Anspruch 4, dadurch gekennzeichnet, daß die Sammelrinne (44, 85) über eine Kondensatleitung (46, 86) mit einem Kondensatbehälter (3) verbunden ist.
  6. Verdampfersystem nach einem oder mehreren der Ansprüche 1 bis 5, dadurch gekennzeichnet, daß die obere Abschirmung (82) dachförmig über einem düsenförmigen Durchlaß (84) für den Dampf (D) angeordnet ist, an welchen die untere Abschirmung (83) anschließt.
  7. Verdampfersystem nach einem oder mehreren der Ansprüche 1 bis 6, dadurch gekennzeichnet, daß zur Aufnahme ätherischer Öle und dergleichen ein poröser Körper (81) auf der Ablagefläche (41) angeordnet ist.
  8. Verdampfersystem nach einem oder mehreren der Ansprüche 1 bis 7, dadurch gekennzeichnet, daß der Dampferzeugungsbehälter (2) zusammen mit der Aufnahmevorrichtung und der Kondensatauffangeinrichtung als kompakte Einheit gestaltet und in dem Sicherheitsraum zwischen dem Saunaofen (7) und dem Schutzgitter (6) angeordnet ist.
  9. Verdampfersystem nach Anspruch 8, dadurch gekennzeichnet, daß ein Wasservorratsbehälter (1) vorgesehen ist, der in die kompakte Einheit integriert, jedoch räumlich durch eine Verbindungsleitung (5) vom Dampferzeugungsbehälter (2) getrennt angeordnet ist.
EP97102482A 1996-02-21 1997-02-15 Verdampfersystem für Sauna-Anlagen Expired - Lifetime EP0807428B1 (de)

Applications Claiming Priority (2)

Application Number Priority Date Filing Date Title
DE19606346A DE19606346C2 (de) 1996-02-21 1996-02-21 Verdampfersystem für Sauna-Anlagen
DE19606346 1996-02-21

Publications (3)

Publication Number Publication Date
EP0807428A2 true EP0807428A2 (de) 1997-11-19
EP0807428A3 EP0807428A3 (de) 1998-03-25
EP0807428B1 EP0807428B1 (de) 2001-11-28

Family

ID=7785945

Family Applications (1)

Application Number Title Priority Date Filing Date
EP97102482A Expired - Lifetime EP0807428B1 (de) 1996-02-21 1997-02-15 Verdampfersystem für Sauna-Anlagen

Country Status (4)

Country Link
EP (1) EP0807428B1 (de)
AT (1) ATE209476T1 (de)
DE (2) DE19606346C2 (de)
ES (1) ES2169283T3 (de)

Cited By (1)

* Cited by examiner, † Cited by third party
Publication number Priority date Publication date Assignee Title
WO2008129119A1 (en) 2007-04-19 2008-10-30 Pertti Harvia Steam generator, method for operating a steam generator and a vessel of a steam generator

Families Citing this family (8)

* Cited by examiner, † Cited by third party
Publication number Priority date Publication date Assignee Title
DE29716620U1 (de) * 1997-09-16 1997-11-13 Meier, Hansjürgen, 32339 Espelkamp Installierbare Vorrichtung zur Dampferzeugung für eine Duschkabine
DE20103108U1 (de) * 2001-02-21 2002-07-04 Klafs Saunabau GmbH & Co Medizinische Technik, 74523 Schwäbisch Hall Saunaofen mit Verdampfereinrichtung
DE20103253U1 (de) * 2001-02-23 2002-07-04 Klafs Saunabau GmbH & Co Medizinische Technik, 74523 Schwäbisch Hall Verdampfereinheit für eine Sauna- oder Dampfbadkabine und Befüllgefäß
DE10259260A1 (de) * 2002-12-12 2004-06-24 Hansgrohe Ag Vorrichtung zur Dufterzeugung mit einer Dampferzeugung
DE202005019488U1 (de) * 2005-12-13 2007-04-19 Hans Einhell Ag Saunaheizgerät
DE102008026473A1 (de) 2008-06-03 2009-12-10 Dannenmann, Gudrun Saunaofen mit Konvektionsheizung, kombiniert mit Infrarotheizung, in besonders hygienischer und gesundheitsbewußter und energiesparender Ausführung, wahlweise regelbar
DE102012019875A1 (de) 2012-10-10 2014-04-10 Johanna Bozena Dannenmann Saunaofen oder Saunaofen mit Dampfeinrichtung, kombiniert mit Licht-Farblicht auch für Farb-Chromotherapie, HF-Abschirmungseinrichtung
EP3569215B1 (de) 2018-05-17 2020-09-09 Klafs GmbH & Co. KG Kabine zum dampfbaden von personen

Family Cites Families (8)

* Cited by examiner, † Cited by third party
Publication number Priority date Publication date Assignee Title
US2332402A (en) * 1941-07-25 1943-10-19 Seikowitz Jack Therapeutic device
DE3109540A1 (de) * 1981-03-13 1982-09-23 Eberhard Hoesch & Söhne Kunststoffwerk KG, 5160 Düren Dampfaustritt fuer ein dampfbad
DE3404892A1 (de) * 1984-02-11 1985-08-14 Dannenmann, Gudrun, 7060 Schorndorf Saunaofen
CH674144A5 (de) * 1987-10-01 1990-05-15 Josef Balthasar Arnold
DE3913280C2 (de) * 1989-04-22 1995-02-16 Paul Haslauer Bedampfungsgerät
GB2241051B (en) * 1990-02-19 1994-05-18 Helo Tehtaat Oy An electric sauna heater
DE4132042A1 (de) * 1991-09-26 1993-04-01 Dannenmann Gudrun Selbsttaetigende niveauregelung fuer fluessigkeiten
DE4328376A1 (de) * 1993-08-24 1995-03-16 Dannenmann Gudrun Vorrichtung zum Verdampfen von Flüssigkeit

Cited By (1)

* Cited by examiner, † Cited by third party
Publication number Priority date Publication date Assignee Title
WO2008129119A1 (en) 2007-04-19 2008-10-30 Pertti Harvia Steam generator, method for operating a steam generator and a vessel of a steam generator

Also Published As

Publication number Publication date
DE19606346C2 (de) 1998-07-16
ES2169283T3 (es) 2002-07-01
EP0807428A3 (de) 1998-03-25
DE19606346A1 (de) 1997-08-28
ATE209476T1 (de) 2001-12-15
EP0807428B1 (de) 2001-11-28
DE59705494D1 (de) 2002-01-10

Similar Documents

Publication Publication Date Title
EP0383327B1 (de) Dampferzeuger für Gargeräte mit Entkalkungseinrichtung
DE2419734B2 (de) Selbstreinigendes dampfbuegeleisen
DE69118036T2 (de) Vorrichtung zur Lieferung von kochendem Wasser
EP3225139A1 (de) Verdampfereinrichtung für wasser
EP0807428B1 (de) Verdampfersystem für Sauna-Anlagen
DE3526186A1 (de) Elektrische beheizung fuer fluessigkeits-behaelter
DE3015677C2 (de) Vorrichtung zum Auffangen von zum Reinigen eines Röhrenwärmetauschers verwendeten Reinigungskörpern
DE1794237A1 (de) Fallstromverdampfer
DE3109540A1 (de) Dampfaustritt fuer ein dampfbad
DE69110261T2 (de) Elektrischer Wasserkocher mit verbesserter Heizungsanlage.
EP0363708A2 (de) Heizvorrichtung für Medien
DE69403127T2 (de) Kaffeemaschine mit Wasserrückführungsschacht
DE19642106C1 (de) Vorrichtung zur diskontinuierlichen Zubereitung von Teigwaren
DE1817352A1 (de) Vorrichtung zur Dampferzeugung fuer Luftbefeuchtung
DE2741719C3 (de) Elektrische Kaffee- oder Teemaschine
EP0011290A1 (de) Espressokaffeemaschine
DE3214064A1 (de) Vorrichtung zum schwadenabzug an einer maische- und/oder wuerzepfanne
DE2701692A1 (de) Elektrischer durchlauferhitzer zur heisswasserbereitung, insbesondere fuer kaffee- oder teebereiter
EP3805648A1 (de) Verdampfersystem für ein haushaltsgerät sowie haushaltsgerät
DE1926814A1 (de) Wasserreinigungsvorrichtung
EP0454744B1 (de) Vorrichtung zur warmwasserbereitung
DE3715132A1 (de) Heissdampfkondensator und waermerueckgewinnungsanlage
AT411142B (de) Getränkeerhitzer
DE69127085T2 (de) Apparat zum Erwärmen und Befeuchten von Rasierschaum
EP1916928B1 (de) Dampfgargerät

Legal Events

Date Code Title Description
PUAI Public reference made under article 153(3) epc to a published international application that has entered the european phase

Free format text: ORIGINAL CODE: 0009012

AK Designated contracting states

Kind code of ref document: A2

Designated state(s): AT CH DE ES FI FR IT LI NL

PUAL Search report despatched

Free format text: ORIGINAL CODE: 0009013

AK Designated contracting states

Kind code of ref document: A3

Designated state(s): AT CH DE ES FI FR IT LI NL

17P Request for examination filed

Effective date: 19980923

GRAG Despatch of communication of intention to grant

Free format text: ORIGINAL CODE: EPIDOS AGRA

17Q First examination report despatched

Effective date: 20010222

GRAG Despatch of communication of intention to grant

Free format text: ORIGINAL CODE: EPIDOS AGRA

GRAH Despatch of communication of intention to grant a patent

Free format text: ORIGINAL CODE: EPIDOS IGRA

GRAH Despatch of communication of intention to grant a patent

Free format text: ORIGINAL CODE: EPIDOS IGRA

GRAA (expected) grant

Free format text: ORIGINAL CODE: 0009210

AK Designated contracting states

Kind code of ref document: B1

Designated state(s): AT CH DE ES FI FR IT LI NL

PG25 Lapsed in a contracting state [announced via postgrant information from national office to epo]

Ref country code: NL

Free format text: LAPSE BECAUSE OF FAILURE TO SUBMIT A TRANSLATION OF THE DESCRIPTION OR TO PAY THE FEE WITHIN THE PRESCRIBED TIME-LIMIT

Effective date: 20011128

REF Corresponds to:

Ref document number: 209476

Country of ref document: AT

Date of ref document: 20011215

Kind code of ref document: T

REG Reference to a national code

Ref country code: CH

Ref legal event code: EP

REF Corresponds to:

Ref document number: 59705494

Country of ref document: DE

Date of ref document: 20020110

REG Reference to a national code

Ref country code: CH

Ref legal event code: NV

Representative=s name: SPIERENBURG HELMLE-KOLB & PARTNER AG PATENT- UND M

PGFP Annual fee paid to national office [announced via postgrant information from national office to epo]

Ref country code: DE

Payment date: 20020312

Year of fee payment: 6

PGFP Annual fee paid to national office [announced via postgrant information from national office to epo]

Ref country code: FR

Payment date: 20020322

Year of fee payment: 6

PGFP Annual fee paid to national office [announced via postgrant information from national office to epo]

Ref country code: ES

Payment date: 20020325

Year of fee payment: 6

Ref country code: CH

Payment date: 20020325

Year of fee payment: 6

Ref country code: AT

Payment date: 20020325

Year of fee payment: 6

PGFP Annual fee paid to national office [announced via postgrant information from national office to epo]

Ref country code: FI

Payment date: 20020328

Year of fee payment: 6

NLV1 Nl: lapsed or annulled due to failure to fulfill the requirements of art. 29p and 29m of the patents act
ET Fr: translation filed
REG Reference to a national code

Ref country code: ES

Ref legal event code: FG2A

Ref document number: 2169283

Country of ref document: ES

Kind code of ref document: T3

PLBE No opposition filed within time limit

Free format text: ORIGINAL CODE: 0009261

STAA Information on the status of an ep patent application or granted ep patent

Free format text: STATUS: NO OPPOSITION FILED WITHIN TIME LIMIT

26N No opposition filed
PG25 Lapsed in a contracting state [announced via postgrant information from national office to epo]

Ref country code: FI

Free format text: LAPSE BECAUSE OF NON-PAYMENT OF DUE FEES

Effective date: 20030215

Ref country code: AT

Free format text: LAPSE BECAUSE OF NON-PAYMENT OF DUE FEES

Effective date: 20030215

PG25 Lapsed in a contracting state [announced via postgrant information from national office to epo]

Ref country code: ES

Free format text: LAPSE BECAUSE OF NON-PAYMENT OF DUE FEES

Effective date: 20030217

PG25 Lapsed in a contracting state [announced via postgrant information from national office to epo]

Ref country code: LI

Free format text: LAPSE BECAUSE OF NON-PAYMENT OF DUE FEES

Effective date: 20030228

Ref country code: CH

Free format text: LAPSE BECAUSE OF NON-PAYMENT OF DUE FEES

Effective date: 20030228

PG25 Lapsed in a contracting state [announced via postgrant information from national office to epo]

Ref country code: DE

Free format text: LAPSE BECAUSE OF NON-PAYMENT OF DUE FEES

Effective date: 20030902

REG Reference to a national code

Ref country code: CH

Ref legal event code: PL

PG25 Lapsed in a contracting state [announced via postgrant information from national office to epo]

Ref country code: FR

Free format text: LAPSE BECAUSE OF NON-PAYMENT OF DUE FEES

Effective date: 20031031

REG Reference to a national code

Ref country code: FR

Ref legal event code: ST

REG Reference to a national code

Ref country code: ES

Ref legal event code: FD2A

Effective date: 20030217

PG25 Lapsed in a contracting state [announced via postgrant information from national office to epo]

Ref country code: IT

Free format text: LAPSE BECAUSE OF NON-PAYMENT OF DUE FEES

Effective date: 20050215