JP2014088715A - 見切枠 - Google Patents

見切枠

Info

Publication number
JP2014088715A
JP2014088715A JP2012239655A JP2012239655A JP2014088715A JP 2014088715 A JP2014088715 A JP 2014088715A JP 2012239655 A JP2012239655 A JP 2012239655A JP 2012239655 A JP2012239655 A JP 2012239655A JP 2014088715 A JP2014088715 A JP 2014088715A
Authority
JP
Japan
Prior art keywords
frame
vertical cover
vertical
indoor side
attached
Prior art date
Legal status (The legal status is an assumption and is not a legal conclusion. Google has not performed a legal analysis and makes no representation as to the accuracy of the status listed.)
Granted
Application number
JP2012239655A
Other languages
English (en)
Other versions
JP6031326B2 (ja
Inventor
Satoshi Yanai
智 谷内
Mitsutaka Saito
充孝 斉藤
Current Assignee (The listed assignees may be inaccurate. Google has not performed a legal analysis and makes no representation or warranty as to the accuracy of the list.)
Sankyo Tateyama Inc
Original Assignee
Sankyo Tateyama Inc
Priority date (The priority date is an assumption and is not a legal conclusion. Google has not performed a legal analysis and makes no representation as to the accuracy of the date listed.)
Filing date
Publication date
Application filed by Sankyo Tateyama Inc filed Critical Sankyo Tateyama Inc
Priority to JP2012239655A priority Critical patent/JP6031326B2/ja
Publication of JP2014088715A publication Critical patent/JP2014088715A/ja
Application granted granted Critical
Publication of JP6031326B2 publication Critical patent/JP6031326B2/ja
Active legal-status Critical Current
Anticipated expiration legal-status Critical

Links

Images

Landscapes

  • Door And Window Frames Mounted To Openings (AREA)

Abstract

【課題】 躯体開口部の縁部の室内側面に取り付けるものであって、意匠性が良好な見切枠を提供する。
【解決手段】 縦ふかし枠と、縦カバー材と、小口キャップとを備え、縦ふかし枠は、被嵌合部を有し、躯体開口部の縁部の室内側面に取り付けてあり、縦カバー材は、縦ふかし枠をカバーするものであり、室内側見付面部と、室内側見付面部の室外側に設けた嵌合部と、室内側見付面部の長手方向端部の室外側に設けた被固定部を有し、被固定部が嵌合部を回避する位置に設けてあって、嵌合部を縦ふかし枠の被嵌合部に室内側から嵌合させて取り付けてあり、小口キャップは、固定部と、平坦な見込面部を有し、固定部を縦カバー材の被固定部に係合させて固定してある。
【選択図】 図1

Description

本発明は、既設の窓の室内側に内窓を取り付ける際などに、躯体開口部の縁部の室内側面に取り付ける見切枠に関する。
近年、既設の窓の内側に取り付けて断熱性や防音性を向上させる内窓が広く普及している。こうした内窓は、既設窓の室内側に設けられた額縁の見込面に取り付けるものであるが、額縁の見込面の見込幅が短い場合、そのままでは内窓を取り付けることができない。その場合、額縁の室内側にふかし枠を取り付けて見込面を延長し、額縁とふかし枠に跨って内窓を取り付ける。一般に、ふかし枠はアルミ形材からなるものであって、その室内側に樹脂製のカバー材を取り付けてある。より詳しくは、非特許文献1に示すように、縦ふかし枠と横ふかし枠にそれぞれ縦カバー材と横カバー材を取り付けてあり、角部には、縦カバー材と横カバー材の両方の端部を覆うようにして、略矩形のキャップを室内側から取り付けてあった。
「リフォーム商品総合カタログ2012−2013」、三協立山株式会社、平成24年6月、p.616
しかしながら、このような構成の従来品は、室内側から角部の大きなキャップが目立ってしまい、意匠性が好ましいものではなかった。
本発明は、上記事情を鑑みたものであり、躯体開口部の縁部の室内側面に取り付けるものであって、意匠性が良好な見切枠を提供することを目的とする。
本発明のうち請求項1の発明は、縦ふかし枠と、縦カバー材と、小口キャップとを備え、縦ふかし枠は、被嵌合部を有し、躯体開口部の縁部の室内側面に取り付けてあり、縦カバー材は、縦ふかし枠をカバーするものであり、室内側見付面部と、室内側見付面部の室外側に設けた嵌合部と、室内側見付面部の長手方向端部の室外側に設けた被固定部を有し、被固定部が嵌合部を回避する位置に設けてあって、嵌合部を縦ふかし枠の被嵌合部に室内側から嵌合させて取り付けてあり、小口キャップは、固定部と、平坦な見込面部を有し、固定部を縦カバー材の被固定部に係合させて固定してあることを特徴とする。
本発明のうち請求項2の発明は、縦ふかし枠と、縦カバー材と、小口キャップとを備え、縦ふかし枠は、躯体開口部の縁部の室内側面に取り付けてあり、縦カバー材は、縦ふかし枠をカバーするものであり、縦ふかし枠に室内側から取り付けてあって、室内側見付面部と外周側見込面部を備えたカバー部を有するとともに、カバー部の内側に中空部を有しており、小口キャップは、挿入突部と、挟持突部とを有しており、挿入突部を縦カバー材の中空部に挿入し、挿入突部と挟持突部で中空部の壁面を挟み込んで固定してあることを特徴とする。
本発明のうち請求項1の発明によれば、カバー材のキャップが縦カバー材の小口に取り付けられており、さらに小口キャップの見込面部が平坦になっていることから、小口キャップが室内側にほとんど露出せず目立たないので、意匠性が良好である。そして小口キャップが上下に突出しないので、躯体開口部に近接して他の構造物が設けられている場合でも、それと干渉することなく取り付けることができる。また、小口キャップを縦カバー材に取り付けるための被固定部が、室内側見付面部の室外側に設けてあり、固定部及び被固定部が室内側見付面部に隠されて室内側から見えないので、この点においても意匠性が良好である。
本発明のうち請求項2の発明によれば、カバー材のキャップが縦カバー材の小口に取り付けられていて室内側にほとんど露出せず目立たないので、意匠性が良好である。また、小口キャップを縦カバー材に取り付けるための突部が縦カバー材の内側に納まって室内側から見えないので、この点においても意匠性が良好である。
第一実施形態の左側部分の拡大図である。 第一実施形態の上側部分の拡大図である。 第一実施形態の下側部分の拡大図である。 第一実施形態の横断面図である。 第一実施形態の縦断面図である。 第一実施形態の小口キャップの五面図及び縦カバー材への取り付けの説明図である。 縦カバー材と横カバー材の納まりの説明図である。 第二実施形態の下側部分の拡大図である。 第三実施形態の左側部分の拡大図である。 第三実施形態の下側部分の拡大図である。 床面キャップの五面図及び縦カバー材への取り付けの説明図である。 第四実施形態の左側部分の拡大図である。 第四実施形態の上側部分の拡大図である。 第四実施形態の下側部分の拡大図である。 第四実施形態の横断面図である。 第四実施形態の縦断面図である。 第四実施形態の小口キャップの五面図及び縦カバー材への取り付けの説明図である。 第五実施形態の左側部分の拡大図である。 第五実施形態の上側部分の拡大図である。 第五実施形態の下側部分の拡大図である。 第六実施形態の下側部分の拡大図である。
以下、本発明の実施の形態を図面に基づいて説明する。なお、以下において左右とは、本発明の見切枠を室内側から正面視した場合の左右方向を示すものとする。また、本発明の見切枠には、左右の縦枠と上下の横枠を四周枠組みした四方枠と、左右の縦枠と上側の横枠を枠組みした三方枠の両方を含む。三方枠の場合、左右の縦枠の下端が窓の額縁や床面などに突き当たることになる。そして、以下の各実施形態は、何れも、躯体開口部Sを有する躯体の室内側壁面Wに対して、断熱性を高めるためのリフォーム工事を行うことを想定したものである。
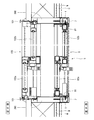
まず、見切枠の第一実施形態について、図1〜図7に基づき説明する。見切枠の第一実施形態は、左右の縦ふかし枠1、縦カバー材2及び小口キャップ3と、上下の横ふかし枠4及び横カバー材5とを備える四方枠形状のものである。見切枠を取り付ける躯体開口部Sには、窓(既設窓100)が設けられている。既設窓100は、図4及び図5に示すように、四周枠組みした窓枠101と、窓枠101に引違いに納めた二枚の障子102a,102bからなる引違い窓であって、躯体開口部Sの室外側端に取り付けられている。また、既設窓100の上下左右の窓枠101の室内側には、躯体開口部Sの見込面を覆う矩形板状の額縁200が取り付けられている。額縁200の室内側端は、躯体の室内側壁面Wよりも室内側に突出している。
さらに、額縁200の室内側面には、見切材が取り付けられている。左右(縦)の額縁200に取り付けられた見切材は、図1に示すように、縦ふかし枠1と、縦カバー材2からなるものである。なお、図1は見切枠の左側部分を示すものであるが、右側部分はこれと左右対称な構造である。縦ふかし枠1は、断面が室内外方向に長い略矩形で中空のアルミ形材からなるものであり、左右方向幅が額縁200と同じであって、額縁200の室内側面にネジ止めして取り付けてある。すなわち、縦ふかし枠1を取り付けることで、額縁200が室内側に延長された形になっている。縦ふかし枠1の室内側面には、長手方向(上下方向)に延びる溝部を形成してあり、これが縦カバー材2を取り付けるための被嵌合部11となる。そして、左右の額縁200の内周側面と、縦ふかし枠1の内周側面とに跨って樹脂板からなる被覆材6を取り付けてある。被覆材6により、額縁200と縦ふかし枠1の境目が覆われ、左右の内周側面が完全な面一となっている。なお、被覆材6の外周側面には、長手方向に平行な溝が等間隔に多数形成されており、この溝で被覆材6を折り取って容易に長さ調整できるようになっている。また、折り取るのではなくて、溝にカッターの刃を沿わせて切り取ってもよく、その場合、ジグなどを用いることなく正確に直線切断でき、折り取る場合に比べてより切断面を平滑にできるので意匠性が向上する。
縦カバー材2は、硬質の樹脂製で、左右に延びる室内側見付面部21aと、室内側見付面部21aの外周側端から室外側に延びる外周側見込面部21bからなる略L字形のカバー部21を有し、カバー部21の内側(室内側見付面部21aの室外側かつ外周側見込面部21bの内周側)に、矩形の中空部23を形成してある。この中空部23は、小口キャップ3を固定するための被固定部となる。また中空部23は、左右方向幅が、額縁200と被覆材6を合わせた厚さと等しくなっている。そして、中空部23の室外側の壁面23aには、室外側に突出する二つの爪部が形成されており、これが縦ふかし枠1の被嵌合部11に嵌合する嵌合部22となっている。嵌合部22を縦ふかし枠1の被嵌合部11に嵌合させると、室内側見付面部21aと外周側見込面部21bが、それぞれ縦ふかし枠1の室内側面と外周側面を覆う。そして、外周側見込面部21bが縦ふかし枠1の外周側面に当接し、中空部23の内周側面が被覆材6の内周側面と面一になる。また、室内側見付面部21aは、中空部23の内周側面よりもさらに内周側に延びており、その先端の室外側面には、軟質の樹脂からなるシール部24を設けてある。シール部24は、縦カバー材2のその他の部分と一体に成型したものである。そして、外周側見込面部21bは、縦ふかし枠1の室外側端よりもさらに室外側に延びており、額縁200の外周側面にも当接している。
小口キャップ3は、硬質の樹脂製で、図6((a)〜(e)が五面図、(f)が縦カバー材2に取り付けた状態の説明図)に示すように、略矩形で平板状の見込面部32と、見込面部32の内周側面に形成した固定部31及び突条33からなる。固定部31は、見込面部32の室内側かつ外周側の角部に形成した挿入突部31aと、挿入突部31aの室外側に形成した挟持突部31bからなる。挿入突部31aは、縦カバー材2の中空部23にちょうど嵌まる形状となっている。そして、挿入突部31a及び挟持突部31bには、室内外方向に貫通するネジ孔34a,34bを形成してある。また、突条33は、室内外に延びるもので、挿入突部31aの外周側端の室外側に形成してある。このように形成した小口キャップ3は、縦カバー材2の上下の端部に固定される。より詳しくは、小口キャップ3の挿入突部31aを縦カバー材2の中空部23に挿入する。すると、中空部23の室外側の壁面23aは挿入突部31aと挟持突部31bに挟まれ、挟持突部31bは、嵌合部22を構成する二本の爪部の間に納まる。すなわち、縦カバー材2の中空部(被固定部)23が嵌合部22を回避している。また、突条33は、縦カバー材2の外周側見込面部21bの内周側面に当接して、ガタツキを防ぐ。そして、挟持突部31bのネジ孔34bの室外側から、ネジ35を挿入してねじ込む。縦カバー材2の中空部23の壁面23aにはネジ孔が形成されていないが、このネジ35はタッピングネジであり、ねじ込むことで壁面23aに孔を開けて、小口キャップ3が縦カバー材2に固定される。ネジ35の先端は、挿入突部31aのネジ孔34a内に納まり、外側に露出することはない。また、挿入突部31aの室内外方向の厚さが薄く、ネジ35の先端がネジ孔34aから突出したとしても、ネジ35の先端は中空部23内に納まって外側に露出しない。なお、図6に示したものは、左側の縦カバー材2の下端及び右側の縦カバー材2の上端に取り付けるものであり、左側の縦カバー材2の上端及び右側の縦カバー材2の下端に取り付けるものは、これと左右対称な形状となる。
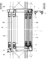
また、上下(横)の額縁200に取り付けられた見切材は、図2及び図3に示すように、横ふかし枠4と、横カバー材5からなるものである。上側の横ふかし枠4は、断面略矩形で中空のアルミ形材からなるものであり、上下方向幅が額縁200と同じであって、額縁200の室内側面にネジ止めして取り付けてある。すなわち、上側の横ふかし枠4を取り付けることで、上側の額縁200が室内側に延長された形になっている。また、下側の横ふかし枠4は、室内側部分が下側に膨らんだ形状で中空のアルミ形材からなるものであって、額縁200の室内側面にネジ止めして取り付けてある。下側の横ふかし枠4は、上下方向幅が額縁200よりも厚いが、内周側面(上側面)が額縁200と面一になっており、額縁200の内周側面(上側面)が室内側に延長された形になっている。そして、上下の横ふかし枠4の室内側面と外周側面には、それぞれ爪部を形成してあり、これが横カバー材を取り付けるための被嵌合部41となっている。そして、上下の額縁200の内周側面と、横ふかし枠4の内周側面とに跨って樹脂板からなる被覆材6を取り付けてある。被覆材6により、額縁200と横ふかし枠4の境目が覆われ、上下の内周側面が完全な面一となっている。
横カバー材5は、硬質の樹脂製で、上下に延びる室内側見付面部51aと、室内側見付面部51aの外周側端から室外側に延びる外周側見込面部51bからなる略L字形のカバー部51を有し、カバー部51の内側(室内側見付面部51aの室外側面と、外周側見込面部51bの内周側面)に、爪部を形成してある。この爪部は、横ふかし枠4の被嵌合部41に嵌合する嵌合部52となっている。嵌合部52を横ふかし枠4の被嵌合部41に嵌合させると、室内側見付面部51aと外周側見込面部51bが、それぞれ横ふかし枠4の室内側面と外周側面を覆う。そして、外周側見込面部51bが横ふかし枠4の外周側面に当接する。また、室内側見付面部51aは、被覆材6の内周側面よりもさらに内周側に延びており、その先端の室外側面には、軟質の樹脂からなるシール部54を設けてある。シール部54は、横カバー材5のその他の部分と一体に成型したものである。そして、外周側見込面部51bは、横ふかし枠4の室外側端よりもさらに室外側に延びていて、上側においては額縁200の外周側面にも当接している。一方、下側においては、横ふかし枠4の外周側面が額縁200の外周側面よりも外周側(下側)に位置しているので、外周側見込面部51bと額縁200とは離れている。また、上側の横ふかし枠4の室内側面には、室内側に突出するアーム7が横カバー材5の上からネジ止めされており、アーム7にはカーテンレール71が取り付けられている。
そして、既設窓100の室内側には、内窓8が取り付けられている。内窓8は、図4及び図5に示すように、四周枠組みした窓枠81と、窓枠81に引違いに納めた二枚の障子82a,82bからなる引違い窓であって、額縁200と、縦ふかし枠1又は横ふかし枠4に跨った位置に、窓枠81を縦ふかし枠1及び横ふかし枠4にネジ止めして取り付けられている。内窓8の窓枠81は、室内側端の四周に、内周側に向かって延びる起立片81aを有している。起立片81aは、窓枠81の左右辺及び下辺において、最も内周側に突出する部材である。ただし、左右辺においては、室外側端に設けたもう一つの起立片81bが同じだけ突出しており、下辺においては、障子82a,82b用のレール83が同じだけ突出している。また、上辺においては、障子82a,82b用のレール84がより内周側に突出している。そして、縦カバー材2及び横カバー材5の室内側見付面部21a,51aは、この起立片81aと内周側端面が面一になる長さに形成されており、縦カバー材2及び横カバー材5のシール部24,54が、起立片81aの室内側面に当接している。
さらに、躯体開口部Sの周囲の躯体の室内側壁面Wには、断熱パネルHを取り付けてある。断熱パネルHの厚さは、額縁200の室内側壁面Wからの突出長さよりも薄く、額縁200の室内側端は、断熱パネルHの室内側面よりも室内側に突出している。そして、上記のとおり、縦カバー材2及び横カバー材5の外周側見込面部21b,51bが、縦ふかし枠1又は横ふかし枠4の室外側端よりもさらに室外側に延びており、断熱パネルHの小口が縦カバー材2又は横カバー材5の外周側見込面部21b,51bに当接している。
なお、図7に示すように、見切枠の角部においては、横カバー材5の端部が、縦カバー材2の室内側見付面部21aに呑み込まれる構造となっている。この際、縦カバー材2の室内側見付面部21aの先端の室外側面に設けたシール部24は、横カバー材5の上下幅の分だけ切除されており、縦カバー材2の室内側見付面部21aが、横カバー材5の室内側見付面部51aに当接している。なお、シール部24は、カッターの刃を室内側見付面部21aの室外側面に平行に密着させて当て、一度の作業で容易にそぎ落として除去することができるので、施工性が良好である。
このように構成した見切枠の第一実施形態によれば、縦カバー材2の小口に小口キャップ3が取り付けられており、さらに小口キャップ3の見込面部32が平坦になっていることから、室内側からは見込面部32の薄い端面しか見えず、小口キャップ3が目立たないので、すっきりとした外観となり意匠性が良好である。そして小口キャップ3が上下に突出しないので、躯体開口部Sに近接して他の構造物が設けられている場合(たとえば、上側にエアコンが設置されている場合など)でも、それと干渉することなく取り付けることができる。また、縦カバー材2の被固定部(中空部23)が略L字形のカバー部21の内側に形成してあって、被固定部(中空部23)及び小口キャップ3の固定部31(挿入突部31a及び挟持突部31b)が室内側から見えない。さらに、小口キャップ3を縦カバー材2に固定するネジ35も、カバー部21内側の挟持突部31bのネジ孔34bに挿入し、中空部23の壁面23aに螺入して、先端が挿入突部31aのネジ孔34a内、すなわち中空部23内に納まるものであるから、室内側からは一切見えないので、これらの点においても意匠性が良好である。また、縦カバー材2及び横カバー材5が、それぞれ縦ふかし枠1及び横ふかし枠4の室内側面及び外周側面を一体的に覆っており、さらに縦カバー材2及び横カバー材5の室内側見付面部21a,51aが、内窓8の窓枠81も覆っているので、室内側から見えるのは縦カバー材2及び横カバー材5のみとなり、一体的でフラットなすっきりとした意匠となる(内窓8の窓枠81の上側のレール84は横カバー材5から突出して見えるが、上側のレール84は元々見上げる位置にあるので、視認性への影響は小さい)。また、縦カバー材2及び横カバー材5の室内側見付面部21a,51aの先端に取り付けたシール部24,54が、内窓8の窓枠81の起立片81aに当接しているので、縦カバー材2及び横カバー材5と、内窓8との間の隙間が塞がれ一体的になっており、内周側の意匠性も高くなっている。さらに、躯体の室内側壁面Wに取り付けた断熱パネルHの小口が、縦カバー材2及び横カバー材5の外周側見込面部21b,51bに当接していることにより、小口面からの熱の流れを抑制してより断熱性能を高めるとともに、縦カバー材2又は横カバー材5と断熱パネルHとの間に額縁200が露出することを防いで意匠性を高めている。また、額縁200と、縦ふかし枠1又は横ふかし枠4とが、樹脂板からなる被覆材6で一体に覆われており、さらに縦ふかし枠1及び横ふかし枠4が樹脂製の縦カバー材2又は横カバー材5で覆われているので、縦ふかし枠1及び横ふかし枠4からの熱の流れを抑制して、断熱性能が向上している。また、内窓8を樹脂製のものとした場合には、樹脂板からなる被覆材6により質感が統一される。さらに、一般に、額縁は縦辺が横辺より数ミリ室内側に突出しているので、見切枠の角部において、縦カバー材2が横カバー材5を呑み込んでいることにより、見切枠の設置後も同様の質感とすることができる。なお、この見切枠の施工手順は、まず額縁200に縦ふかし枠1及び横ふかし枠4を取り付け、そこに内窓8を取り付け、その後横ふかし枠4に横カバー材5を取り付け、さらに縦カバー材2に小口キャップ3を取り付けてから、縦ふかし枠1に縦カバー材2を取り付ける。小口キャップ3を取り付けた状態で、縦カバー材2を縦ふかし枠1に取り付けるので、小口キャップ3に近接してエアコンなどの他の構造物が設けられている場合でも、干渉することなく取り付けることができる。ここでこの見切枠は、既設の躯体開口部Sに設置するものであるから、特に縦カバー材2については、現場で長さを調整することもありうる(横カバー材5は、端部が縦カバー材2に呑み込まれるので、厳密な長さ調整は必要ない)。その際、縦カバー材2は樹脂製であるから、切断は容易であるし、小口キャップ3を取り付けるためのネジ孔などは有していないから、切断加工のみすればよく、調整は容易である。また、横カバー材5を呑み込ませるためにシール部24を切除する作業も、カッターなどで容易に行うことができる。さらに、横カバー材5は、端部が縦カバー材2に呑み込まれており、熱により伸縮した場合でも、常に端部は縦カバー材2の室内側見付面部21aに覆い隠されるので、熱による伸縮が吸収される。
次に、第二実施形態について、図8に基づき説明する。見切枠の第二実施形態は、左右の縦ふかし枠、縦カバー材2及び小口キャップと、上側の横ふかし枠及び横カバー材とを備える三方枠形状のものであり、左右辺と上辺の構成は第一実施形態と同じである。そして下側については、図8に示すように、内窓8の窓枠81が額縁200に取り付けられており、縦ふかし枠および縦カバー材2の下端も額縁200に突き当たる構成となっている。また、躯体の室内側壁面Wに取り付けた断熱パネルHの小口も、額縁200に当接している。このように構成した見切枠の第二実施形態も、左右辺及び上辺において、第一実施形態と同様の作用効果を奏する。なお、この第二実施形態において、見切枠の下側に位置するのが額縁ではなく床面であってもよい。
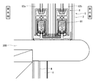
次に、第三実施形態について、図9〜図11に基づき説明する。見切枠の第三実施形態も、左右の縦ふかし枠1、縦カバー材2及び小口キャップと、上側の横ふかし枠及び横カバー材とを備える三方枠形状のものであり、左右辺と上辺の構成は第一実施形態と同じである。そして下側については、図10に示すように、既設の床面300の上に平板状の高さ調整材301が設けられていて、高さ調整材301の上に内窓8の窓枠81が取り付けられている。高さ調整材301の見込幅は窓枠81の見込幅とほぼ同じであり、高さ調整材301の室内側の床面300には、断熱パネルHが敷かれている。そして断熱パネルHの上面には、さらにリフォーム床材302が敷かれている。リフォーム床材302の室外側端には、略L字形のアングル材303が取り付けられており、アングル材303によって、リフォーム床材302の室外側端部の上面及び小口面が覆われている。また、高さ調整材301は、断熱パネルHと同じ厚さに調整されており、アングル材303の室外側面が、内窓8の窓枠81の起立片81aに当接していて、内窓8とリフォーム床材302の間の隙間が塞がれており、さらにアングル材303の上面と、起立片81aの上端部及びレール83の上端部とはほぼ同じ高さになっている。
そして、縦カバー材2の下端には、床面キャップ9が取り付けられている。床面キャップ9は、図11((a)〜(e)が五面図、(f)が縦カバー材2に取り付けた状態の説明図)に示すように、平板状の見込面部92と、挿入突部91を有しており、挿入突部91は、縦カバー材2の中空部23にちょうど嵌まる形状となっている。そして、見込面部92の室内側と外周側には、縦カバー材2のカバー部21から張り出す隙間塞ぎ部93が形成されており、さらに隙間塞ぎ部93の内周側端には、アングル材303を呑み込む呑み込み部94が形成されている。この床面キャップ9を縦カバー材2の下端に取り付けると、アングル材303の端部が呑み込み部94に呑み込まれ、隙間塞ぎ部93が、縦ふかし枠1と、リフォーム床材302の間の隙間を覆って塞ぐ。なお、床面キャップ9は、挿入突部91を縦カバー材2の中空部23に挿入することにより、水平方向の動きは規制されているが、上下方向には固定されておらず、リフォーム床材302に載った状態である。
このように構成した見切枠の第三実施形態も、左右辺及び上辺において、第一実施形態と同様の作用効果を奏する。そして、下側においては、リフォーム床材302と内窓8の下側の窓枠81とがほぼ同じ高さとなるので、段差がなく安全である。また、床面キャップ9の隙間塞ぎ部93が、リフォーム床材302の小口を覆うので、リフォーム床材302の縦ふかし枠1周りの形状を厳密に加工する必要がなく、施工性が良好である。
次に、第四実施形態について、図12〜17に基づき説明する。見切枠の第四実施形態は、左右の縦ふかし枠1、縦カバー材2及び小口キャップ3と、上下の横ふかし枠4及び横カバー材5とを備える四方枠形状のものである。見切枠を取り付ける躯体開口部Sには、窓(既設窓100)が設けられており、既設窓100の構成は、図15及び図16に示すように、第一実施形態の場合と同様である。また、既設窓100の上下左右の窓枠101の室内側には、やはり第一実施形態の場合と同様に、躯体開口部Sの見込面を覆う矩形板状の額縁200が取り付けられている。額縁200の室内側端は、躯体の室内側壁面Wよりも室内側に突出している。
さらに、額縁200の室内側面には、見切材が取り付けられている。左右(縦)の額縁200に取り付けられた見切材は、図12に示すように、縦ふかし枠1と、縦カバー材2からなるものである。なお、図12は見切枠の左側部分を示すものであるが、右側部分はこれと左右対称な構造である。縦ふかし枠1は、断面が左右方向に長い略矩形のアルミ形材からなるものであり、左右方向幅が額縁200の左右方向幅よりも長く、額縁200から左右両側に突出するように、額縁200の室内側面にネジ止めして取り付けられている(内周側により長く突出している)。縦ふかし枠1の室内側面には、長手方向(上下方向)に延びる溝部を形成してあり、これが縦カバー材2を取り付けるための被嵌合部11となる。そして、左右の額縁200の内周側面には、樹脂板からなる被覆材6を取り付けてある。被覆材6の室内側端は、縦ふかし枠1の室外側面に当接している。
縦カバー材2は、硬質の樹脂製で、左右に延びる室内側見付面部21aと、室内側見付面部21aの外周側端から室外側に延びる外周側見込面部21bと、室内側見付面部21aの内周側端から室外側に延びる内周側見込面部21cからなる略コ字形のカバー部21を有し、カバー部21の内側(室内側見付面部21aの室外側かつ外周側見込面部21bの内周側かつ内周側見込面部21cの外周側)に、矩形の中空部23を形成してある。より詳しくは、外周側見込面部21bから内周側見込面部21cに向けて左右に延びる壁面23aが形成されており、この壁面23aと室内側見付面部21aの間の空間を左右に分割して、外周側の空間を中空部23としてある。この中空部23は、小口キャップ3を固定するための被固定部となる。そして、壁面23aには、室外側に突出する二つの爪部が形成されており、これが縦ふかし枠1の被嵌合部11に嵌合する嵌合部22となっている。嵌合部22を縦ふかし枠1の被嵌合部11に嵌合させると、室内側見付面部21a、外周側見込面部21b及び内周側見込面部21cが、それぞれ縦ふかし枠1の室内側面、外周側面及び内周側面を覆う。そして、外周側見込面部21bが縦ふかし枠1の外周側面に当接し、内周側見込面部21cが縦ふかし枠1の内周側面に当接する。さらに、外周側見込面部21bは、縦ふかし枠1の室外側端よりもさらに室外側に延びている。
小口キャップ3は、硬質の樹脂製で、図17((a)〜(e)が五面図、(f)が縦カバー材2に取り付けた状態の説明図)に示すように、第一実施形態とほぼ同じ構成で、見込面部32と突条33の室内外方向長さを短くしたものである。縦カバー材2への固定方法も、第一実施形態と同じである。なお、図17に示したものは、左側の縦カバー材2の下端及び右側の縦カバー材2の上端に取り付けるものであり、左側の縦カバー材2の上端及び右側の縦カバー材2の下端に取り付けるものは、これと左右対称な形状となる。
また、上下(横)の額縁200に取り付けられた見切材は、図13及び図14に示すように、横ふかし枠4と、横カバー材5からなるものである。横ふかし枠4は、断面が上下方向に長い略矩形で中空のアルミ形材からなるものであり、上下方向幅が額縁200の上下方向幅よりも長く、額縁200から上下両側に突出するように、額縁200の室内側面にネジ止めして取り付けられている。ただし、額縁200と横ふかし枠4の間には、板状のスペーサ201が挟まれている。これは、縦ふかし枠1に対する横ふかし枠4の室内外方向の位置を調整するためのものである。横ふかし枠4の内周側面と外周側面には、それぞれ爪部を形成してあり、これが横カバー材を取り付けるための被嵌合部41となっている。そして、上下の額縁200の内周側面と、スペーサ201の内周側面とに跨って樹脂板からなる被覆材6を取り付けてある。被覆材6により、額縁200とスペーサ201の境目が覆われ、上下の内周側面が完全な面一となっている。
横カバー材5は、硬質の樹脂製で、上下に延びる室内側見付面部51aと、室内側見付面部51aの外周側端から室外側に延びる外周側見込面部51bと、室内側見付面部51aの内周側端から室外側に延びる内周側見込面部51cからなる略コ字形のカバー部51を有し、カバー部51の内側(外周側見込面部51bの内周側面と、内周側見込面部51cの外周側面)に、爪部を形成してある。この爪部は、横ふかし枠4の被嵌合部41に嵌合する嵌合部52となっている。嵌合部52を横ふかし枠4の被嵌合部41に嵌合させると、室内側見付面部51a、外周側見込面部51b及び内周側見込面部51cが、それぞれ横ふかし枠4の室内側面、外周側面及び内周側面を覆う。そして、外周側見込面部51bが横ふかし枠4の外周側面に当接し、内周側見込面部51cが横ふかし枠4の内周側面に当接する。さらに、外周側見込面部51bは、縦ふかし枠1の室外側端よりもさらに室外側に延びている。なお、見切枠の角部においては、縦カバー材2の内周側見込面部21cの内周側面に、横カバー材5の端部が当接している。
そして、既設窓100の室内側には、内窓8が取り付けられている。内窓8自体の構成は、第一実施形態と同じであり、額縁200の室内側端に取り付けられている。そして、縦カバー材2及び横カバー材5の内周側見込面部21c,51cは、内窓8の窓枠81の起立片81aの内周側端と面一になっている。
さらに、躯体開口部Sの周囲の躯体の室内側壁面Wには、第一実施形態と同様に、断熱パネルHを取り付けてある。断熱パネルHの厚さは、額縁200の室内側壁面Wからの突出長さ(見切枠の上下辺においては、スペーサ201も含めた突出長さ)よりも薄く、額縁200(スペーサ201)の室内側端は、断熱パネルHの室内側面よりも室内側に突出している。そして、上記のとおり、縦カバー材2及び横カバー材5の外周側見込面部21b,51bが、縦ふかし枠1又は横ふかし枠4の室外側端よりもさらに室外側に延びており、断熱パネルHの小口が縦カバー材2又は横カバー材5の外周側見込面部21b,51bに当接している。
このように構成した見切枠の第四実施形態は、額縁200が内窓8を取り付けるために十分な見込長さを有していて、額縁200を延長する必要がない場合に主として用いられる。そして、この第四実施形態によれば、縦カバー材2の小口に小口キャップ3が取り付けられており、さらに小口キャップ3の見込面部32が平坦になっていることから、室内側からは見込面部32の薄い端面しか見えず、小口キャップ3が目立たないので、すっきりとした外観となり意匠性が良好である。そして小口キャップ3が上下に突出しないので、躯体開口部Sに近接して他の構造物が設けられている場合(たとえば、上側にエアコンが設置されている場合など)でも、それと干渉することなく取り付けることができる。また、縦カバー材2の被固定部(中空部23)が略コ字形のカバー部21の内側に形成してあって、被固定部(中空部23)及び小口キャップ3の固定部31(挿入突部31a及び挟持突部31b)が室内側から見えない。さらに、小口キャップ3を縦カバー材2に固定するネジ35も、カバー部21内側の挟持突部31bのネジ孔34bに挿入し、中空部23の壁面23aに螺入して、先端が挿入突部31aのネジ孔34a内、すなわち中空部23内に納まるものであるから、室内側からは一切見えないので、これらの点においても意匠性が良好である。また、縦カバー材2及び横カバー材5が、それぞれ縦ふかし枠1及び横ふかし枠4の室内側面、外周側面及び内周側面を一体的に覆っており、さらに縦カバー材2及び横カバー材5が、内窓8の窓枠81も覆っているので、室内側から見えるのは縦カバー材2及び横カバー材5のみとなり、一体的でフラットなすっきりとした意匠となる(内窓8の窓枠81の上側のレール84は横カバー材5から突出して見えるが、上側のレール84は元々見上げる位置にあるので、視認性への影響は小さい)。さらに、躯体の室内側壁面Wに取り付けた断熱パネルHの小口が、縦カバー材2及び横カバー材5の外周側見込面部21b,51bに当接していることにより、小口面からの熱の流れを抑制してより断熱性能を高めるとともに、縦カバー材2又は横カバー材5と断熱パネルHとの間に額縁200やスペーサ201が露出することを防いで意匠性を高めている。また、額縁200が樹脂板からなる被覆材6で覆われているので断熱性が高く、さらに縦ふかし枠1及び横ふかし枠4が樹脂製の縦カバー材2又は横カバー材5で覆われているので、縦ふかし枠1及び横ふかし枠4からの熱の流れを抑制して、断熱性能が向上している。また、内窓8を樹脂製のものとした場合には、樹脂板からなる被覆材6により質感が統一される。なお、この見切枠の施工手順は、まず額縁200に縦ふかし枠1及び横ふかし枠4を取り付け、そこに内窓8を取り付け、その後横ふかし枠4に横カバー材5を取り付け、さらに縦カバー材2に小口キャップ3を取り付けてから、縦ふかし枠1に縦カバー材2を取り付ける。小口キャップ3を取り付けた状態で、縦カバー材2を縦ふかし枠1に取り付けるので、小口キャップ3に近接してエアコンなどの他の構造物が設けられている場合でも、干渉することなく取り付けることができる。ここでこの見切枠は、既設の躯体開口部Sに設置するものであるから、縦カバー材2や横カバー材5について、現場で長さを調整することもありうる。その際、縦カバー材2や横カバー材5は樹脂製であるから、切断は容易である。また、縦カバー材2の端部には小口キャップ3が取り付けられるが、縦カバー材2は小口キャップ3を取り付けるためのネジ孔などを有していないから、切断加工のみすればよく、調整は容易である。
次に、第五実施形態について、図18〜図20に基づき説明する。見切枠の第五実施形態は、第四実施形態において内窓を取り付けない場合のものである。よって、各部材の構成は第四実施形態とまったく同じである。ただし、第四実施形態と比べて、額縁200に対する縦ふかし枠1及び横ふかし枠4の取付位置が外周側に寄っており、額縁200に取り付けた樹脂板からなる被覆材6の内周側面と、縦カバー材2又は横カバー材5の内周側見込面部21c,51cの内周側面とが面一になっている。このように縦ふかし枠1及び横ふかし枠4を内周側寄り(第四実施形態)と外周側寄り(第五実施形態)のどちらでも取り付けられるよう、縦ふかし枠1及び横ふかし枠4には、外周側と内周側の二箇所にネジの螺合箇所を設けてある。第五実施形態では、縦カバー材2及び横カバー材5により内窓の窓枠を覆い隠す必要がなく、被覆材6と縦カバー材2又は横カバー材5を面一にしたことで、すっきりとした外観となり意匠性が良好である。その他、第五実施形態は、内窓に関することを除いて、第四実施形態と同様の作用効果を奏する。
次に、第六実施形態について、図21に基づき説明する。見切枠の第六実施形態は、左右の縦ふかし枠、縦カバー材2及び小口キャップと、上側の横ふかし枠及び横カバー材とを備える三方枠形状のものであり、左右辺と上辺の構成は第五実施形態と同じであって、内窓は取り付けられていない。そして下側については、図21に示すように、床面300に断熱パネルHが敷かれており、断熱パネルHの上面には、さらにリフォーム床材302が敷かれている。リフォーム床材302の室外側端には、略L字形のアングル材303が取り付けられており、アングル材303によって、リフォーム床材302の室外側端部の上面及び小口面が覆われている。そして、アングル材303の室外側面は、縦ふかし枠及び横ふかし枠の室外側面と略面一になっている。さらに、アングル材303の室外側には、床面300からアングル材303の室外側面へと延びる傾斜部材304を取り付けてある。この傾斜部材304により、既設の床面300とリフォーム床材302との段差によるつまずきを防ぎ、またゴミの掃き出しも容易になっている。また、傾斜部材304により断熱パネルHの小口面が覆われるので、意匠性が向上するとともに、断熱パネルHの小口面からの熱損失及び小口面からの湿気の浸入による断熱パネルHの劣化を防止することができる。その他、第六実施形態は、左右辺及び上辺において、第五実施形態と同様の作用効果を奏する。
本発明は、上記の実施形態に限定されない。たとえば、小口キャップの縦カバー材への固定については、ネジ止めではなく、嵌め込みにより固定するものとして、より施工性を向上させてもよい。この場合、小口キャップは、挟持突部を有していなくてもよい。またこの場合、小口キャップの脱落を防ぐため、たとえば縦カバー材の中空部の室外側の壁面に孔を形成し、小口キャップに爪を形成して、孔に爪を係合させて固定する構造にすることが望ましい。このようにすると、孔と爪が外側から見えないので、意匠性も良好である。さらに、縦カバー材は現場で長さを調整する(切断して短くする)こともあるので、予め孔を長手方向にわたって複数形成しておいて、切断しても爪と係合する孔を有する状態にすることが望ましい。また、躯体の室内側壁面に取り付ける断熱パネルが厚い場合又は額縁の室内側への突出長さが短い場合には、断熱パネルの室内側面が、額縁の室内側端よりも室内側に突出する場合もあるが、そのような場合にも、額縁に縦ふかし枠と縦カバー材、又は横ふかし枠と横カバー材を取り付けることで、断熱パネルの小口を縦カバー材又は横カバー材に当接させて、断熱性及び意匠性を向上させることができる。したがって、額縁の室内側への突出寸法や、断熱パネルの厚さ寸法にかかわらず、見切材(ふかし枠及びカバー材)を取り付けることで、断熱パネルの小口や額縁が露出することを防止できる。さらに、額縁(躯体開口部)の内周側面に取り付ける被覆材は、樹脂板からなるもののほか、木質シートや断熱フィルムからなるものなど、断熱性を有し、かつ取り付け後の内周側面を平坦にできるものであればよい。また、額縁(躯体開口部)の内周側面を露出させても意匠性や断熱性が問題にならない場合には、被覆材を設けなくてもよい。その場合、内窓は額縁(躯体開口部)の内周側面(及び縦ふかし枠又は横ふかし枠の内周側面)に直接取り付ければよい。さらに、本発明の見切枠は、額縁を有していない躯体開口部にも取り付けることができる。その場合、たとえばクロス張りの躯体壁面などに縦ふかし枠及び横ふかし枠を取り付けることになるが、取付面が額縁のように室内側に突出していないので、上記実施形態の縦カバー材及び横カバー材を取り付けると、外周側見込面部の室外側端が躯体壁面に干渉する。よって、この場合は外周側見込面部の室外側端部を切除し、縦ふかし枠又は横ふかし枠の室外側面と面一にして用いればよい。
1 縦ふかし枠
2 縦カバー材
3 小口キャップ
11 被嵌合部
21 カバー部
21a 室内側見付面部
21b 外周側見込面部
22 嵌合部
23 被固定部(中空部)
23a 壁面
31 固定部
31a 挿入突部
31b 挟持突部
32 見込面部
S 躯体開口部

Claims (2)

  1. 縦ふかし枠と、縦カバー材と、小口キャップとを備え、縦ふかし枠は、被嵌合部を有し、躯体開口部の縁部の室内側面に取り付けてあり、縦カバー材は、縦ふかし枠をカバーするものであり、室内側見付面部と、室内側見付面部の室外側に設けた嵌合部と、室内側見付面部の長手方向端部の室外側に設けた被固定部を有し、被固定部が嵌合部を回避する位置に設けてあって、嵌合部を縦ふかし枠の被嵌合部に室内側から嵌合させて取り付けてあり、小口キャップは、固定部と、平坦な見込面部を有し、固定部を縦カバー材の被固定部に係合させて固定してあることを特徴とする見切枠。
  2. 縦ふかし枠と、縦カバー材と、小口キャップとを備え、縦ふかし枠は、躯体開口部の縁部の室内側面に取り付けてあり、縦カバー材は、縦ふかし枠をカバーするものであり、縦ふかし枠に室内側から取り付けてあって、室内側見付面部と外周側見込面部を備えたカバー部を有するとともに、カバー部の内側に中空部を有しており、小口キャップは、挿入突部と、挟持突部とを有しており、挿入突部を縦カバー材の中空部に挿入し、挿入突部と挟持突部で中空部の壁面を挟み込んで固定してあることを特徴とする見切枠。
JP2012239655A 2012-10-30 2012-10-30 見切枠 Active JP6031326B2 (ja)

Priority Applications (1)

Application Number Priority Date Filing Date Title
JP2012239655A JP6031326B2 (ja) 2012-10-30 2012-10-30 見切枠

Applications Claiming Priority (1)

Application Number Priority Date Filing Date Title
JP2012239655A JP6031326B2 (ja) 2012-10-30 2012-10-30 見切枠

Publications (2)

Publication Number Publication Date
JP2014088715A true JP2014088715A (ja) 2014-05-15
JP6031326B2 JP6031326B2 (ja) 2016-11-24

Family

ID=50790814

Family Applications (1)

Application Number Title Priority Date Filing Date
JP2012239655A Active JP6031326B2 (ja) 2012-10-30 2012-10-30 見切枠

Country Status (1)

Country Link
JP (1) JP6031326B2 (ja)

Cited By (2)

* Cited by examiner, † Cited by third party
Publication number Priority date Publication date Assignee Title
JP2021063348A (ja) * 2019-10-11 2021-04-22 三協立山株式会社 建具
JP2024006277A (ja) * 2022-07-01 2024-01-17 株式会社Lixil

Citations (2)

* Cited by examiner, † Cited by third party
Publication number Priority date Publication date Assignee Title
JPS51134050U (ja) * 1975-04-19 1976-10-29
JP2011153493A (ja) * 2010-01-28 2011-08-11 Sankyo Tateyama Aluminium Inc 内窓

Patent Citations (2)

* Cited by examiner, † Cited by third party
Publication number Priority date Publication date Assignee Title
JPS51134050U (ja) * 1975-04-19 1976-10-29
JP2011153493A (ja) * 2010-01-28 2011-08-11 Sankyo Tateyama Aluminium Inc 内窓

Cited By (3)

* Cited by examiner, † Cited by third party
Publication number Priority date Publication date Assignee Title
JP2021063348A (ja) * 2019-10-11 2021-04-22 三協立山株式会社 建具
JP7232742B2 (ja) 2019-10-11 2023-03-03 三協立山株式会社 建具
JP2024006277A (ja) * 2022-07-01 2024-01-17 株式会社Lixil

Also Published As

Publication number Publication date
JP6031326B2 (ja) 2016-11-24

Similar Documents

Publication Publication Date Title
JP5946869B2 (ja) 外壁取付部材及び外壁構造
JP2022179800A (ja) 建物用付設物の取付構造
JP6031326B2 (ja) 見切枠
JP5139671B2 (ja) 既設ドア枠利用の防火改装ドア
JP6007067B2 (ja)
JP6644654B2 (ja) 建物開口部の上部排水構造
JP6007066B2 (ja) 窓、窓の製造方法
JP2010126910A (ja) サッシ
JP6202881B2 (ja) 開口部の防水装置
JP2016121522A (ja) 外壁の出隅部の構造、及び、外壁材構造物
JP4446470B2 (ja) 改装サッシ
JP2011208447A (ja) 建具
JP5486960B2 (ja) 既設鋼製ドアの後付気密装置
JP2005076393A (ja) 改修用開口部装置
JP5961095B2 (ja)
KR20190007923A (ko) 커튼월
JP2007297831A (ja) ふかし枠、及び、建具
JP2006083698A (ja) 既設ドア枠利用の改装ドア
JP4147201B2 (ja) 既設ドア枠を利用したドア交換の改装ドア
JP5302262B2 (ja) カバー枠
JP2016033329A (ja) サッシの製造方法
JP2013087562A (ja) サッシ
JP4777228B2 (ja) グレイジングチャンネル
JP7689035B2 (ja) 改装建具
JP7455076B2 (ja) 改装サッシ

Legal Events

Date Code Title Description
A621 Written request for application examination

Free format text: JAPANESE INTERMEDIATE CODE: A621

Effective date: 20150427

A977 Report on retrieval

Free format text: JAPANESE INTERMEDIATE CODE: A971007

Effective date: 20160317

A131 Notification of reasons for refusal

Free format text: JAPANESE INTERMEDIATE CODE: A131

Effective date: 20160329

A521 Written amendment

Free format text: JAPANESE INTERMEDIATE CODE: A523

Effective date: 20160523

TRDD Decision of grant or rejection written
A01 Written decision to grant a patent or to grant a registration (utility model)

Free format text: JAPANESE INTERMEDIATE CODE: A01

Effective date: 20161018

A61 First payment of annual fees (during grant procedure)

Free format text: JAPANESE INTERMEDIATE CODE: A61

Effective date: 20161024

R150 Certificate of patent or registration of utility model

Ref document number: 6031326

Country of ref document: JP

Free format text: JAPANESE INTERMEDIATE CODE: R150