EP4377528B1 - Zweischaliges fassadenelement - Google Patents

Zweischaliges fassadenelement Download PDF

Info

Publication number
EP4377528B1
EP4377528B1 EP22757276.5A EP22757276A EP4377528B1 EP 4377528 B1 EP4377528 B1 EP 4377528B1 EP 22757276 A EP22757276 A EP 22757276A EP 4377528 B1 EP4377528 B1 EP 4377528B1
Authority
EP
European Patent Office
Prior art keywords
desiccant
frame profile
double
façade
pressure equalization
Prior art date
Legal status (The legal status is an assumption and is not a legal conclusion. Google has not performed a legal analysis and makes no representation as to the accuracy of the status listed.)
Active
Application number
EP22757276.5A
Other languages
English (en)
French (fr)
Other versions
EP4377528A1 (de
Inventor
Michael Lange
Current Assignee (The listed assignees may be inaccurate. Google has not performed a legal analysis and makes no representation or warranty as to the accuracy of the list.)
Prof Michael Lange Ingenieurgesellschaft Mbh
Original Assignee
Prof Michael Lange Ingenieurgesellschaft Mbh
Priority date (The priority date is an assumption and is not a legal conclusion. Google has not performed a legal analysis and makes no representation as to the accuracy of the date listed.)
Filing date
Publication date
Application filed by Prof Michael Lange Ingenieurgesellschaft Mbh filed Critical Prof Michael Lange Ingenieurgesellschaft Mbh
Publication of EP4377528A1 publication Critical patent/EP4377528A1/de
Application granted granted Critical
Publication of EP4377528B1 publication Critical patent/EP4377528B1/de
Active legal-status Critical Current
Anticipated expiration legal-status Critical

Links

Images

Classifications

    • EFIXED CONSTRUCTIONS
    • E06DOORS, WINDOWS, SHUTTERS, OR ROLLER BLINDS IN GENERAL; LADDERS
    • E06BFIXED OR MOVABLE CLOSURES FOR OPENINGS IN BUILDINGS, VEHICLES, FENCES OR LIKE ENCLOSURES IN GENERAL, e.g. DOORS, WINDOWS, BLINDS, GATES
    • E06B3/00Window sashes, door leaves, or like elements for closing wall or like openings; Layout of fixed or moving closures, e.g. windows in wall or like openings; Features of rigidly-mounted outer frames relating to the mounting of wing frames
    • E06B3/54Fixing of glass panes or like plates
    • E06B3/5427Fixing of glass panes or like plates the panes mounted flush with the surrounding frame or with the surrounding panes
    • EFIXED CONSTRUCTIONS
    • E04BUILDING
    • E04FFINISHING WORK ON BUILDINGS, e.g. STAIRS, FLOORS
    • E04F13/00Coverings or linings, e.g. for walls or ceilings
    • E04F13/007Outer coverings for walls with ventilating means
    • EFIXED CONSTRUCTIONS
    • E04BUILDING
    • E04BGENERAL BUILDING CONSTRUCTIONS; WALLS, e.g. PARTITIONS; ROOFS; FLOORS; CEILINGS; INSULATION OR OTHER PROTECTION OF BUILDINGS
    • E04B2/00Walls, e.g. partitions, for buildings; Wall construction with regard to insulation; Connections specially adapted to walls
    • E04B2/88Curtain walls
    • E04B2/90Curtain walls comprising panels directly attached to the structure
    • EFIXED CONSTRUCTIONS
    • E06DOORS, WINDOWS, SHUTTERS, OR ROLLER BLINDS IN GENERAL; LADDERS
    • E06BFIXED OR MOVABLE CLOSURES FOR OPENINGS IN BUILDINGS, VEHICLES, FENCES OR LIKE ENCLOSURES IN GENERAL, e.g. DOORS, WINDOWS, BLINDS, GATES
    • E06B3/00Window sashes, door leaves, or like elements for closing wall or like openings; Layout of fixed or moving closures, e.g. windows in wall or like openings; Features of rigidly-mounted outer frames relating to the mounting of wing frames
    • E06B3/04Wing frames not characterised by the manner of movement
    • E06B3/26Compound frames, i.e. one frame within or behind another
    • E06B3/2605Compound frames, i.e. one frame within or behind another with frames permanently mounted behind or within each other, each provided with a pane or screen
    • EFIXED CONSTRUCTIONS
    • E06DOORS, WINDOWS, SHUTTERS, OR ROLLER BLINDS IN GENERAL; LADDERS
    • E06BFIXED OR MOVABLE CLOSURES FOR OPENINGS IN BUILDINGS, VEHICLES, FENCES OR LIKE ENCLOSURES IN GENERAL, e.g. DOORS, WINDOWS, BLINDS, GATES
    • E06B3/00Window sashes, door leaves, or like elements for closing wall or like openings; Layout of fixed or moving closures, e.g. windows in wall or like openings; Features of rigidly-mounted outer frames relating to the mounting of wing frames
    • E06B3/04Wing frames not characterised by the manner of movement
    • E06B3/263Frames with special provision for insulation
    • EFIXED CONSTRUCTIONS
    • E04BUILDING
    • E04FFINISHING WORK ON BUILDINGS, e.g. STAIRS, FLOORS
    • E04F2290/00Specially adapted covering, lining or flooring elements not otherwise provided for
    • E04F2290/04Specially adapted covering, lining or flooring elements not otherwise provided for for insulation or surface protection, e.g. against noise, impact or fire
    • EFIXED CONSTRUCTIONS
    • E06DOORS, WINDOWS, SHUTTERS, OR ROLLER BLINDS IN GENERAL; LADDERS
    • E06BFIXED OR MOVABLE CLOSURES FOR OPENINGS IN BUILDINGS, VEHICLES, FENCES OR LIKE ENCLOSURES IN GENERAL, e.g. DOORS, WINDOWS, BLINDS, GATES
    • E06B1/00Border constructions of openings in walls, floors, or ceilings; Frames to be rigidly mounted in such openings
    • E06B1/04Frames for doors, windows, or the like to be fixed in openings
    • E06B1/36Frames uniquely adapted for windows
    • EFIXED CONSTRUCTIONS
    • E06DOORS, WINDOWS, SHUTTERS, OR ROLLER BLINDS IN GENERAL; LADDERS
    • E06BFIXED OR MOVABLE CLOSURES FOR OPENINGS IN BUILDINGS, VEHICLES, FENCES OR LIKE ENCLOSURES IN GENERAL, e.g. DOORS, WINDOWS, BLINDS, GATES
    • E06B1/00Border constructions of openings in walls, floors, or ceilings; Frames to be rigidly mounted in such openings
    • E06B1/04Frames for doors, windows, or the like to be fixed in openings
    • E06B1/36Frames uniquely adapted for windows
    • E06B1/366Mullions or transoms therefor
    • EFIXED CONSTRUCTIONS
    • E06DOORS, WINDOWS, SHUTTERS, OR ROLLER BLINDS IN GENERAL; LADDERS
    • E06BFIXED OR MOVABLE CLOSURES FOR OPENINGS IN BUILDINGS, VEHICLES, FENCES OR LIKE ENCLOSURES IN GENERAL, e.g. DOORS, WINDOWS, BLINDS, GATES
    • E06B3/00Window sashes, door leaves, or like elements for closing wall or like openings; Layout of fixed or moving closures, e.g. windows in wall or like openings; Features of rigidly-mounted outer frames relating to the mounting of wing frames
    • E06B3/04Wing frames not characterised by the manner of movement
    • E06B3/26Compound frames, i.e. one frame within or behind another
    • E06B3/2605Compound frames, i.e. one frame within or behind another with frames permanently mounted behind or within each other, each provided with a pane or screen
    • E06B2003/2615Frames made of metal
    • EFIXED CONSTRUCTIONS
    • E06DOORS, WINDOWS, SHUTTERS, OR ROLLER BLINDS IN GENERAL; LADDERS
    • E06BFIXED OR MOVABLE CLOSURES FOR OPENINGS IN BUILDINGS, VEHICLES, FENCES OR LIKE ENCLOSURES IN GENERAL, e.g. DOORS, WINDOWS, BLINDS, GATES
    • E06B3/00Window sashes, door leaves, or like elements for closing wall or like openings; Layout of fixed or moving closures, e.g. windows in wall or like openings; Features of rigidly-mounted outer frames relating to the mounting of wing frames
    • E06B3/66Units comprising two or more parallel glass or like panes permanently secured together
    • E06B3/663Elements for spacing panes
    • E06B3/66309Section members positioned at the edges of the glazing unit
    • E06B3/66361Section members positioned at the edges of the glazing unit with special structural provisions for holding drying agents, e.g. packed in special containers
    • EFIXED CONSTRUCTIONS
    • E06DOORS, WINDOWS, SHUTTERS, OR ROLLER BLINDS IN GENERAL; LADDERS
    • E06BFIXED OR MOVABLE CLOSURES FOR OPENINGS IN BUILDINGS, VEHICLES, FENCES OR LIKE ENCLOSURES IN GENERAL, e.g. DOORS, WINDOWS, BLINDS, GATES
    • E06B3/00Window sashes, door leaves, or like elements for closing wall or like openings; Layout of fixed or moving closures, e.g. windows in wall or like openings; Features of rigidly-mounted outer frames relating to the mounting of wing frames
    • E06B3/66Units comprising two or more parallel glass or like panes permanently secured together
    • E06B3/663Elements for spacing panes
    • E06B3/667Connectors therefor

Definitions

  • the invention relates to a double-shell facade element comprising a flat outer glazing element and a flat inner glazing element, which are held spaced apart from one another in a thermally insulated surrounding frame profile.
  • the DE 10 2013 202719 A1 Describes a CCF façade with single glazing on the outside and thermally insulating glazing on the inside.
  • a sunshade is provided in the pressure-relieved cavity between the façades.
  • Adsorbents can be installed in the cavity to reduce the risk of condensation.
  • the adsorbents can be regenerated by heating, which can be done using either solar radiation or an electric heater.
  • the double-skin glass façade element after the EP 1970525A2 has a sun protection device in the cavity between the facades and a device for at least partial dehumidification of the cavity between the facades.
  • the document EP 3 404 190 A2 reveals a well-known double-shell facade element.
  • the object of the invention is to propose a facade element for a facade construction which does not require any external technology and which can ensure both pressure equalization in the system and condensation prevention in the system over an extended period of time while being highly energy efficient.
  • the double-shell facade element comprises a flat outer glazing element and a flat inner glazing element, which are held spaced apart in a thermally insulated surrounding frame profile, at least one pressure equalization device that is in air-conducting communication with the outside atmosphere and with a facade gap provided between the outer glazing element and the inner glazing element, and at least one drying device that can be filled with desiccant and is integrated either in the facade gap or in the surrounding frame profile and is in air exchange with the facade gap.
  • at least one capillary element is provided, which is a component of the surrounding frame profile and is preferably partially formed by a section of the surrounding frame profile.
  • the pressure equalization device and the drying device are arranged and dimensioned such that they do not extend into a transparent area of the planar outer glazing element and the planar inner glazing element, i.e., they are not located in a transparent area of the planar outer glazing element and the planar inner glazing element.
  • the at least one drying device is designed to enable an exchange of the desiccant and preferably comprises an exchange opening designed to enable the exchange of the desiccant toward the room side.
  • the room side refers to the installation position of the facade element and is located on the side of the interior glazing facing away from the facade cavity.
  • the transparent area of the exterior glazing element and the interior glazing element is understood to be the area within which an observer, in a viewing direction perpendicular to the main planes of the The outer glazing element and the inner glazing element can be seen through them because, in this area, neither the outer glazing element nor the inner glazing element are covered by other components such as sealing strips.
  • the dimensioning and arrangement of the pressure equalization device and drying device according to the invention thus has the advantage that they are fully integrated into the area of the surrounding frame profile and are thus completely concealed from an outside observer.
  • the air exchange between the drying device and the façade cavity can take place either by the pressure equalization device interacting with the drying device and thus the drying device as well as the pressure equalization device being integrated into the air-conducting connection between the outside atmosphere and the façade cavity, or by a direct air exchange between the façade cavity and the drying device parallel to the air-conducting connection between the outside atmosphere and the façade cavity.
  • component of the surrounding frame profile means that the capillary element already forms a pre-assembled unit with the surrounding frame profile and no longer needs to be installed separately when constructing a facade.
  • a capillary element is characterized by an internal cavity whose cross-sectional dimensions are significantly smaller than its length.
  • the internal cavity need not have a constant cross-section along its length, nor a linear longitudinal extension.
  • the capillary element serves to equalize pressure.
  • the facade element according to the invention incorporates all essential properties in a system-inherent manner. No external technology is required to establish pressure equalization within the system.
  • the pressure equalization within the system can be designed to inhibit moisture ingress, be watertight, dustproof, and/or dampen pressure amplitudes. Furthermore, the provision of the pressure equalization device and the drying device prevents condensation in the system.
  • the pressure equalization device can be fully integrated into the surrounding frame profile, so that no visible projections or air ducts are required outside the facade element. Furthermore, the double-skin facade element has a high energy efficiency in both winter and summer.
  • the at least one capillary element can comprise a membrane with a capillary tube, wherein the capillary tube has a length of at most 60 mm and preferably of at most 20 mm, and particularly preferably of at most 10 mm, and an inner diameter of at most 1.5 mm and preferably of at most 1.0 mm.
  • a so-called short capillary tube is marketed, for example, by the company Swisspacer. The functionality is described in the WO2019/110409 A1 described.
  • a short capillary tube is preferably arranged in the region of the pressure relief openings.
  • a short capillary tube can interact with the drying device or be provided without interaction with the drying device.
  • the at least one capillary element comprises a capillary tube having a length of at least 200 mm and optionally having a membrane, a filter, or a sieve at the opening of the capillary tube to the outside environment.
  • a capillary tube with the dimensions mentioned is referred to below as a long capillary tube.
  • a long capillary tube can be provided as a separate component and can be made of glass or metal, preferably aluminum or hard or flexible plastic.
  • long capillary tubes When long capillary tubes are provided, they have a clear cross-section of less than 1 mm 2 , preferably less than 2 mm 2 , more preferably less than 4 mm 2 , and most preferably less than 6 mm 2 .
  • the length of the capillary tube and the clear cross-section of the capillary tube are coordinated with each other. An increasing capillary tube length allows for an increasing clear cross-section.
  • the shape of the clear cross-section can be chosen arbitrarily. However, it is preferably circular, semicircular, square, rectangular, triangular, diamond-shaped, or elliptical.
  • the wall thickness of a long capillary tube provided as a separate component is between 0.5mm and 5mm and is preferably a maximum of 2mm.
  • a membrane or filter can be provided in the area of the pressure relief opening.
  • the length of a long capillary tube can be selected depending on the orientation, up to the width, height, or circumference of the facade element.
  • the basic rule for a pressure equalization device with a long capillary tube is that the inlet opening of the capillary tube is connected to the outside atmosphere.
  • the outlet opening of the capillary tube is connected to the facade cavity, either without interaction with the drying device or with interaction with the drying device.
  • the inlet opening can be arranged on the surrounding frame, either in the area of a main frame profile or a sub-frame profile towards the expansion joint, and is advantageously arranged so that it is protected against water ingress.
  • a capillary tube represents a flow resistance to the incoming or outgoing air, which is incorporated into the calculation model via the capillary inner diameter and capillary length. Using the calculation model, the moisture transport is determined via the volume flow through the capillary tube. The volume flow through the capillary tube is assumed to be directly proportional to the applied pressure difference.
  • the volume flow through each capillary tube of a facade element according to the invention as a function of the hourly weather data can be determined via a Over a defined period of time, e.g. one year, the amount of water vapor that penetrates from the outside atmosphere through the capillary tubes into the facade cavity and is adsorbed by the desiccant can be estimated.
  • the capillary element comprises a capillary tube which is fully integrated into the surrounding frame profile of the facade element, preferably clipped into the surrounding frame profile.
  • the drying device comprises a desiccant container, and the at least one capillary element comprises a capillary tube which is integrated into the desiccant container.
  • the drying device comprises a desiccant container
  • the at least one capillary element comprises a capillary tube formed from a groove in the desiccant container and a wall of the surrounding frame profile.
  • a further preferred embodiment of the double-shell facade element is characterized in that the capillary element comprises a groove in the surrounding frame profile and a plastic end profile, with a cavity formed between the end profile and at least one inner wall of the groove.
  • the groove can be provided in the subframe profile or in the main frame profile in partial areas or over the entire circumference of the respective frame profile.
  • the end profile is made of a thermoplastic material or an elastomer with increased vapor resistance.
  • Preferred materials are EPDM, butyl, polytetrafluoroethylene, or polyvinylidene fluoride.
  • open-cell foam bodies can be provided as a valve and sieve in conjunction with the desiccant in the area of the drying device.
  • a further alternative design of the at least one pressure equalization device is that it is provided as a capillary tube integrated in the main frame profile in partial areas or in the entire circumference of the main frame profile.
  • a further alternative design of the at least one pressure equalization device is as a capillary tube which is integrated in the subframe profile of the facade element in partial areas or in the entire circumference of the subframe profile.
  • the at least one pressure equalization device comprises an elastic profile with at least one opening, which forms part of an air-conducting connection path between the facade cavity and the outside atmosphere.
  • a short capillary tube plastic or metal can be used as the material for the capillary tube.
  • Aluminum is preferred.
  • a long capillary tube it can be made of glass, metal, preferably aluminum, or plastic, preferably an elastomer such as polyethylene, polypropylene, polyvinylidene fluoride, or ethylene-propylene copolymer.
  • the double-shell facade element comprises a flat outer glazing element and a flat inner glazing element, which are held at a distance from one another in a thermally insulated surrounding frame profile; at least one pressure equalization device which is in air-conducting connection to the outside atmosphere and to a facade gap provided between the outer glazing element and the inner glazing element; and at least one drying device which can be filled with desiccant and which is either arranged in the facade gap or integrated in the surrounding frame profile and is in air-conducting connection to the facade gap, wherein the double-shell facade element further comprises means for reducing vapor diffusion, wherein the means for reducing vapor diffusion comprise wet glazing and/or at least one insulating web for thermal separation in the thermally insulated surrounding frame profile made of a plastic with high vapor impermeability and/or with a coating material with high vapor impermeability.
  • the pressure equalization device and the drying device are arranged and dimensioned such that they do not extend into a transparent area of the flat outer glazing element and the flat inner glazing element.
  • the drying device is designed to allow the exchange of the desiccant. and preferably comprises an exchange opening designed to allow the exchange of the desiccant towards the room side.
  • Examples of an insulating strip with a coating material with high vapor impermeability are the application of a vapor-tight or highly vapor-retardant film made of thin stainless steel on the plastic insulating strip or the application of a metal-coated plastic film or butyl film on the plastic insulating strip or the provision of an insulating strip made of a metal-coated plastic.
  • polyvinylidene fluoride can advantageously be used as the material for the insulating web.
  • the at least one pressure compensation device can also comprise a capillary element.
  • an opening in one of the at least one pressure equalization device can be in flow connection with a second opening in a cavity of one of the at least one drying device that can be filled with desiccant.
  • the drying device comprises a desiccant container that can be filled with desiccant and that can be detachably fastened to the surrounding frame profile.
  • the double-shell facade element comprises a flat outer glazing element and a flat inner glazing element, which are held at a distance from one another in a thermally insulated surrounding frame profile; at least one pressure equalization device, which is in air-conducting connection to the outside atmosphere and to a facade intermediate space provided between the outer glazing element and the inner glazing element, and comprises an air guiding device; wherein the pressure loss of the air flow during pressure equalization is determinable and preferably adjustable by the length and/or the cross-sectional dimensions of the air guiding device and/or the number of deflections of an air flow flowing through the air guiding device; at least one drying device which can be filled with a desiccant bed and is integrated in the surrounding frame profile, wherein the at least one drying device comprises at least one first opening which is in air-conducting connection to the façade intermediate space; the at least one pressure equalization device and the at least one drying device are arranged and dimensioned such that they do not extend into a transparent region of the façade element, and
  • the pressure equalization within the system can be designed to prevent moisture ingress, be watertight, dustproof, and/or dampen pressure amplitudes. Furthermore, the provision of the pressure equalization device and the drying device prevents condensation within the system.
  • the pressure equalization device can be fully integrated into the surrounding frame profile, eliminating the need for any visible protrusions or air ducts outside the facade element.
  • the use of a separately provided capillary tube is dispensed with and instead the air flow that creates pressure equalization is guided through an air guiding device, via the geometry of which the pressure loss of the incoming or outgoing air that occurs as a flow loss can be determined.
  • the double-shell facade element comprises a flat outer glazing element and a flat inner glazing element, which are held at a distance from one another in a thermally insulated surrounding frame profile; at least one pressure equalization device, which comprises an air guiding device and is in air-conducting connection to the outside atmosphere and to a facade gap provided between the outer glazing element and the inner glazing element; and at least one drying device, which can be filled with a desiccant bed and is integrated in the surrounding frame profile, wherein the at least one drying device comprises at least one first opening, which is in air-conducting connection to the facade gap, and at least one second opening, which is in air-conducting connection to the air guiding device; the pressure loss of the air flow during pressure equalization can be determined by the pressure loss during flow through the at least one drying device and the at least one air guiding device.
  • the at least one pressure equalization device and the at least one drying device are arranged and dimensioned such that they do not extend into a transparent region of the facade element; and the at least one drying device is designed to enable an exchange of the desiccant and preferably comprises an exchange opening which is designed to enable the exchange of the desiccant in the direction of the room side.
  • the use of a separately provided capillary tube is dispensed with and instead the air flow that creates pressure equalization is guided through the drying device.
  • the path of the air flow through the desiccant bed is selected so that, on the one hand, the pressure loss is not too high in order to prevent air exchange when pressure differences occur, but on the other hand, the air flow flows through the desiccant bed over the longest possible path when pressure equalization occurs in order to load the desiccant as evenly as possible and thus increase the service life until the desiccant needs to be replaced.
  • An air-conducting connection can be understood as either a direct connection or an indirect connection.
  • the first opening opens directly into the space between the facade and/or the second opening connects the interior of the drying device with the air guiding device.
  • further elements can be interposed, such as a filter. Since the cost of capillary tubes increases the manufacturing costs of double-skin façade elements and additional costs are incurred for the maintenance and repair of capillary tubes, façade elements without the use of capillary tubes represent a significant simplification and improvement. However, with increased flow through the desiccant, the loading rate of the desiccant increases and, for a given mass of desiccant, the time interval for replacing the moisture-laden desiccant decreases. Therefore, in this case, additional measures are advisable to reduce moisture ingress.
  • the desiccant consumption can be determined depending on the location of the facade element integrated into a facade, the type of desiccant and the design features of the facade element.
  • the double-skin façade element without a capillary tube it is essential when designing the double-skin façade element without a capillary tube that a sufficient amount of desiccant is provided, which in the case of a The preselected desiccant replacement time prevents condensation in the cavity between the facades, which is only possible if, at a given location and under the prevailing climatic conditions, the desiccant is replaced at the latest when it is fully loaded with water.
  • the required amount of desiccant is therefore preferably calculated based on the location of the building in which the double-skin facade element according to the invention is to be installed, as well as the orientation of the facade, which has a significant influence on solar radiation.
  • the weather data prevailing at a location can be generated hourly using the Meteonorm software.
  • the weather data includes the outside temperature, air pressure, relative humidity, and the intensity of solar radiation.
  • the temperature in the cavity depends on the pane structure, the energy absorption coefficients of the individual panes, the use of sun protection, solar radiation, and the air temperatures inside and outside the building. It can be calculated from the weather data for every hour of the year based on EN 166612:2019, Annex C.
  • the amount of water vapor that flows from the outside atmosphere into the façade cavity with the volume flow of air during pressure equalization can be estimated over a defined period of time, e.g., one year.
  • This amount of water vapor must be adsorbed by the desiccant. If the desiccant is to be replaced every 10 years, for example, a sufficient amount of desiccant must be provided so that the amount of water vapor transported into the façade cavity with the air flow during pressure equalization over a period of 10 years can be adsorbed in the desiccant until it is replaced with regenerated or fresh, unloaded desiccant.
  • the maximum amount of water vapor that can be absorbed by a specific desiccant, e.g., a specific zeolite material, per unit mass is known for individual desiccants. A suitable calculation model was developed by ift Rosenheim.
  • the required amount of desiccant can be easily derived from the existing calculations in the case of different structures of the double-skin façade element, for example, a smaller volume of the façade cavity with modified dimensions of the façade element, because the desiccant flowing into the façade cavity during pressure equalization Air flow and thus also the water vapor to be absorbed by the desiccant is proportional to the volume of the cavity between the facade.
  • a standard facade element can be provided and the resulting desiccant exchange time can be adjusted using the above calculation depending on the location and orientation of the destination of the double-skin facade element.
  • pressure equalization becomes too low, it may be necessary to limit the pressure loss/flow resistance.
  • the air guiding device comprises deflection elements, by means of which a winding air flow path through the air guiding device can be created.
  • a flow path with several deflections for changing the direction of the air flow serves, on the one hand, to increase the pressure loss; on the other hand, the deflections can also serve as inertial separators for dust carried in the air flow, which thus does not enter the façade cavity.
  • the advantage of this measure is also that the installation of filters, sieves or membranes in the flow path of the air stream can be dispensed with.
  • the at least one drying device is integrated into cavities of the elements of the surrounding frame profile, which are arranged vertically in the installed position. This optimizes the available installation space and ensures that the drying device is not visible even when viewed from a direction that deviates from a direction perpendicular to the main plane of the glass elements.
  • the at least one drying device can be integrated both in cavities of the elements of the surrounding frame profile arranged vertically in the installation position and in cavities of the elements of the surrounding frame profile arranged horizontally in the installation position.
  • the double-shell facade element can also further comprise means for reducing vapor diffusion, wherein the means for reducing vapor diffusion comprise wet glazing and/or at least one insulating web for thermal separation in the thermally insulated surrounding frame profile made of a plastic with high vapor impermeability and/or with a coating material with high vapor impermeability.
  • a cover can advantageously be provided which can be fastened to the surrounding frame profile and is preferably screwed or clipped onto the sub-frame profile.
  • This cover which can be attached to the surrounding frame profile, is preferably made of a plastic with water adsorption capacity. In this way, a portion of the water vapor carried along when air flows from the outside atmosphere into the façade cavity is adsorbed in the plastic material of the cover and desorbed from the cover material when dried air flows out of the façade cavity into the outside atmosphere. This reduces the moisture ingress into the façade cavity, thereby increasing the service life of the desiccant.
  • the self-contained, pressure-relieved facade element according to the invention is a double-skin facade element, preferably constructed as a sub-element of a prefabricated facade.
  • the basic concept consists of combining a double-skin facade element with a pressure equalization device and a drying device.
  • the pressure equalization devices preferably have at least one of the following properties: vapor diffusion inhibiting, watertight, dustproof, and pressure amplitude damping. Various designs are possible to achieve these properties individually or in combination.
  • the surrounding frame profile comprises a main frame profile and a subframe profile, wherein the main frame profile and the subframe profile are detachably connected to one another via connecting means, and the subframe profile holds the external glazing element.
  • the double-shell facade element comprising the at least one pressure equalization device and the at least one drying device fillable with desiccant can be opened in the assembled state, for example, to install the sun protection.
  • the seal between the main frame profile and the subframe profile should preferably be vapor-tight.
  • "Vapor-tight" means that the sealing material has only negligible vapor permeability.
  • An example of a suitable material is thermoplastic butyl.
  • the at least one pressure compensation device is arranged in the main frame profile or in the subframe profile.
  • the double-shell facade element comprises at least one sun protection device in the facade cavity between the exterior glazing element and the interior glazing element.
  • the sun protection device is preferably designed to be adaptive.
  • sun protection devices serves to increase comfort in summer, but also in winter when the sun is low in the sky. Furthermore, thermal insulation can be influenced by adjusting the proportion of radiation and convection.
  • the interior glazing element comprises either multi-pane insulating glass, preferably with two or three glass panes, or vacuum insulating glass.
  • the interior multi-pane insulating glass preferably has U-values of 0.5 to 1.4 W/(m 2 K).
  • vacuum insulating glass with U-values of 0.7 W/(m 2 K) or less can be provided.
  • the thermal insulation of the surrounding frame profile is located in the area of the thermally insulated interior glazing. From a structural physics perspective, it is important that the surrounding frame is not thermally insulated in the area of the exterior glazing, as otherwise, condensation problems would increase in position 2 of the exterior glazing.
  • the external glazing element is preferably provided as a monoglass, preferably as laminated glass or laminated safety glass, and preferably comprises at least one functional layer, particularly preferably a wavelength-selective coating.
  • additional functional layers can also be provided, such as solar and/or thermal protection layers.
  • a wavelength-selective coating include an L-E layer or a switchable layer. It is particularly advantageous to provide solar and/or thermal protection layers on the surfaces commonly referred to as positions 1 and/or 2. If functional layers are provided on positions 1 or 2, they can be applied over the entire surface or in partial areas. In the same way, it is also possible to provide double-glazed units on the outside and, if necessary, also provide them with functional layers, in particular solar and/or thermal protection layers.
  • the double-skin glass construction has a comprehensive, thermally insulated metal frame profile.
  • the frame profile is preferably made of aluminum, which can particularly preferably be provided with hollow chambers.
  • the enclosing frame profile should be largely vapor-tight.
  • Various measures can be taken individually or in combination to achieve this, particularly measures on the insulating strips.
  • the insulating strips are preferably provided with a vapor-tight or highly vapor-retardant film applied all the way around them. To improve the vapor-tightness of the entire enclosing frame profile, this film is also applied around the mitered corners of the enclosing frame profile, simultaneously sealing the mitered corner bond.
  • the area of the glazing integration can be sealed with suitable sealants.
  • an air-conducting connection path is provided between the at least one pressure equalization device and the facade gap, which preferably comprises a filter element.
  • an opening in one of the at least one pressure equalization device is in flow connection with a second opening in a cavity of one of the at least one drying device that can be filled with desiccant.
  • the drying device comprises a cavity that can be filled with desiccant, which is an integral part of the surrounding frame profile and has a replacement opening that is designed to enable replacement of the desiccant.
  • the pressure equalization device comprises a cavity which comprises an opening into the façade cavity, and the cavity is filled with desiccant.
  • the at least one pressure equalization device comprises an elastic profile with at least one opening arranged in an air-conducting connection path between the facade cavity and the outside atmosphere.
  • the double-shell facade element comprises an opaque inner element and an outer element, which are held at a distance from each other.
  • the outer element can also be opaque.
  • the outer element is transparent.
  • the opaque inner element and the transparent outer element can be held in an additional surrounding frame profile.
  • This embodiment represents a so-called "shadow box.”
  • the optionally provided opaque elements are preferably arranged in the parapet area and can be configured as glass elements or as panel or sheet metal elements. If the transparent elements are provided as glass elements, they can be configured as mono-glass, laminated glass, laminated safety glass, or double-pane insulating glass, and can be coated either externally or internally or colored within the body to create the desired properties. If a panel or sheet metal element is provided, thermal insulation is preferably provided on the inside.
  • the transparent area and opaque area can be arranged in the surrounding frame profile.
  • two separate surrounding frame profiles can be provided, with the surrounding frame profile for the transparent area and another surrounding frame profile for the opaque area.
  • the thermal insulation of the additional surrounding frame profile is preferably located in the area of the glass panes or the panel.
  • internal thermal insulation is preferred.
  • all components are accessible and thus maintainable, repairable, and replaceable. This also applies to any optional sun protection.
  • the pressure equalization device with moisture ingress limitation can be designed according to requirements and thus adapted to local climatic conditions such as solar radiation, outside air temperature and wind loads.
  • the purpose of the drying device is to provide additional security to the pressure equalization device that limits the ingress of moisture.
  • the volume of desiccant used is based on the adsorption capacity of the desiccant, i.e. the maximum amount of water vapor that can be absorbed per unit volume of desiccant. Furthermore, the volume of desiccant also depends on how effectively the ingress of moisture is limited by the A pressure equalization device is designed. Finally, the local climatic conditions and the enclosed volume of the facade cavity must also be taken into account.
  • the pressure equalization device and the drying device can work together. If no interaction between the pressure equalization device and the drying device is desired, the pressure equalization device can be installed in a separate hollow chamber next to the drying device, directly connected to the facade cavity, in the subframe profile or the main frame profile. Alternatively, the pressure equalization device can be installed in the main frame profile or subframe profile without any flow connection to the drying device.
  • the pressure equalization device and the drying device are to be integrated, this can be done either without direct physical contact between the pressure equalization device and the drying device, or with direct physical contact between the pressure equalization device and the drying device. If no physical contact is to be made between the pressure equalization device and the drying device, this can be done with or without piping. If direct physical contact between the pressure equalization device and the drying device is to be provided, the pressure equalization device can be installed either in the main frame profile or subframe profile, or in the desiccant container.
  • the pressure equalization device can be arranged in the horizontal surrounding frame profile and/or in the vertical surrounding frame profile. If the pressure equalization device is arranged in the horizontal surrounding frame profile, it is located either externally in the subframe profile at the bottom and/or top and/or side.
  • the number of pressure equalization devices should be provided as required. If multiple pressure equalization devices are provided, they are preferably arranged offset from one another.
  • the pressure compensation device is arranged in the vertical main frame profile on one side and/or both sides.
  • One or more pressure compensation devices can be provided, and if multiple pressure compensation devices are provided, they are preferably arranged offset from one another.
  • the pressure equalization devices are located in both the horizontal main frame profile and the vertical frame profile, they are arranged either horizontally at the bottom plus vertically on one or both sides, or horizontally at the top plus vertically on one or both sides. Alternatively, the pressure equalization devices can also be arranged on all sides of the main frame profile.
  • the number of pressure equalization devices depends on the requirements.
  • the key factors here are the volume of the cavity between the facades and the local climatic conditions, taking into account the orientation of the facade.
  • the drying devices with desiccant contain a moisture-adsorbing substance to help prevent condensation. Examples include silica gel or zeolite-based adsorbents.
  • the drying devices are located in hollow chambers of the frame profiles or in separate containers. If the drying devices with desiccant are located in hollow chambers of the frame profiles, they can be arranged in a hollow chamber in the sub-frame profile and/or main frame profile, in some areas or in all hollow chambers. If the drying devices are provided in separate containers, they can be arranged either in the façade cavity between the glass elements on the outside and inside and attached to some areas or to all parts of the surrounding frame. Alternatively, drying devices with separate containers can also be arranged in the parapet area of the façade elements and connected to the façade cavity via an air-conducting system.
  • the desiccant can be replaced in a variety of ways. Firstly, the desiccant can be sucked out of the cavities in the frame profiles from the inside or outside and reinserted with new material or, after regeneration following appropriate treatment by desorption of water vapor, reinserted by blowing it back in. If the opening is located at the bottom, it is possible to drain the exhausted desiccant under the influence of gravity. Particularly preferred is replacing the desiccant through resealable openings in the frame profiles. Finally, it is also possible to completely replace containers with exhausted desiccant. This is done by removing the container after dismantling or opening glass panes to access the space between the facades and either immediately replacing it with a new container or reinserting the container after regeneration of the desiccant it contains.
  • the external glazing element is removed, but with a corresponding design of the surrounding frame profile, it is also possible to remove the internal glazing element, for example by removing an internal glazing bead.
  • the inner and/or outer glass elements can be removed.
  • a casement window could be provided that can be opened by unlocking a pivoting fitting. Access to the glass elements is possible after the glazing beads or pressure strips have been removed.
  • the outer glass pane is not held in place by a glazing bead but is firmly attached to the subframe profile, the outer glass element can be removed by loosening the screw connection that secures the subframe profile to the main frame profile. If a hook-in technique is used to connect the subframe profile to the main frame profile, the subframe profile can be removed from the main frame profile.
  • Access to the façade cavity is advantageous for replacing damaged glass panes and for cleaning components and surfaces in the façade cavity.
  • Another purpose is to be able to maintain, repair, or replace components in the façade cavity.
  • This includes, in particular, an optional sun protection device, a drying system, and components of the pressure equalization devices.
  • the facade element according to the invention is largely vapor-tight.
  • Various measures are provided for this purpose.
  • wet glazing of the glass panes inside and outside with the surrounding frame can be provided.
  • a sealant intermediate layer of butyl can be provided to improve vapor tightness.
  • Another measure for achieving high vapor tightness consists in providing vapor diffusion-reducing measures on one or both insulating webs for thermal separation.
  • thin stainless steel foils with a thickness of no more than 0.050 mm or metal-coated plastic films can be used.
  • the insulating webs can also be made of Plastics with high vapor impermeability can be used, such as butyl or polyvinylidene fluoride, or such a plastic can be applied to the surface of the insulation strips by coextrusion.
  • the insulation strips can also be made entirely from a plastic with high vapor impermeability, such as polyvinylidene fluoride.
  • Another alternative or additional measure to improve vapor impermeability is to seal passages and/or additionally seal frame corner connectors. In this case, sealants or glued-on films can be used, as described in connection with the insulation strips.
  • a vapor diffusion-inhibiting film can be applied all the way around the inner or outer insulation strip after the surrounding frame profile has been manufactured, which also seals the mitred corners.
  • the most preferred measure to increase vapor tightness is the application of a butyl layer to the insulation bars, preferably from the outside.
  • the pressure equalization device and the drying device in the facade cavity are accessible by opening or removing the outer glazing element or an opaque outer element or the inner glazing element or an opaque parapet element.
  • the glazing element or panel arranged on the outside or inside of the facade access to the facade cavity is possible in order to check the function of the pressure equalization device and drying device and to make it accessible for maintenance. It may be necessary to clean the pressure equalization device by blowing through it.
  • the pressure equalization device and drying device can also be repaired and replaced.
  • a capillary tube can be replaced, or a cover profile that, together with a groove in the surrounding frame profile, forms the capillary element.
  • this container can be completely replaced, or the desiccant contained in the drying device can be replaced.
  • DA the direction of air movement during pressure equalization
  • TR the arrows labeled "TR” indicate the direction of air exchange of dried air from the drying device into the façade cavity during drying. If these directions coincide, the designation "DA + TR” is also used.
  • the arrows "AT” indicate the direction in which the desiccant can be replaced or, if a separate desiccant container is used, the direction in which the desiccant container can be replaced.
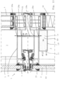
  • FIG. 1 A vertical section through a facade element 1 without a pressure equalization device and drying device is shown.
  • an outer glass element 2 is arranged, which in the present exemplary embodiment is sealed on the outside to form a glazing bead 10 via outer sealing strips 33.
  • the outer glass element 2 is held by the inner seal 25.
  • the inner seal 25 is inserted into a sub-frame profile 7.
  • a seal 27 is located between the sub-frame profile 7 and the end faces of the outer glass element 2.
  • An outer expansion joint seal 30 is also inserted into the sub-frame profile 7. This seal, together with the inner expansion joint seal 28 arranged on the inside of the facade and the middle expansion joint seal 29, seals the expansion joint 78 between the vertically adjacent glass elements.
  • the subframe profile 7 is screwed to the main frame profile 6 of the surrounding frame profile 11 using connecting screws 9.
  • a seal 8 is provided between the main frame profile 6 and the subframe profile 7, which seal is preferably made of thermoplastic butyl or another suitable material with high vapor impermeability.
  • the main frame profile 6 is formed as a composite profile with main frame profile sections 6a and 6b, which are thermally decoupled via insulating webs 24 made of plastic with increased vapor impermeability.
  • a sun protection device 5, which is shown schematically in the present exemplary embodiment, is arranged in the facade cavity 3.
  • an inner glass element 4 is provided as a multiple-pane insulating glass unit. It is held by an inner seal 31 toward the stop and toward the facade cavity 3 by a seal 32, which is held in the facade cavity by a glazing bead 20.
  • the provision of an inner seal increases vapor tightness compared to a seal. Reduced vapor tightness is disadvantageous because it leads to a more rapid depletion of the desiccant container and thus shortens the desiccant replacement intervals.
  • Fig. 1 thus represents a first variant of the basic structure of the facade element, which, as in the embodiments starting from Fig. 3 shown, is provided with a pressure equalization device and drying device.
  • Fig. 2 represents a variant of the embodiment according to Fig. 1 in which the facade element does not have a glazing bead 10 arranged on the outside of the facade and accordingly also no external sealing strips 33, which are also omitted with the omission of the outer glazing bead 10.
  • the outer glass pane 2 is attached to the subframe profile 7 by means of the seal 26. Otherwise, the structure corresponds to Fig. 2 the one after Fig. 1 , so that the explanation regarding the Fig. 1 can be referred to.
  • Fig. 3 is based on the Fig. 1
  • the basic construction of the facade element 1 already shown shows a first alternative design of a pressure compensation device and drying device.
  • Both the pressure equalization device and the drying device are arranged in the sub-frame profile 7.
  • desiccant 14 is located in a hollow chamber 80 of the sub-frame profile 7.
  • the desiccant 14 can be exchanged in the vertical direction in the direction of arrow AT between the expansion joint 78 and the hollow chamber 80 in the sub-frame profile 7 filled with desiccant 14.
  • both pressure equalization and, together with the pressure equalization, the transport of moisture-laden air from the facade gap 3 into the hollow chamber 80 filled with desiccant 14 can take place, where the water vapor is adsorbed on suitable adsorbents, such as zeolites, and in this way the internal atmosphere in the facade gap 3 is kept at a stable, low level of humidity.
  • Fig. 3 Additionally indicated with reference number 56 are measures for providing a vapour barrier in the area of the insulation bars 24, for example in the form of a selection of suitable materials for the insulation bars.
  • the embodiment according to Fig. 4 differs from that according to Fig. 3 in that the hollow chamber 80 provided in the sub-frame profile 7, in conjunction with a long or short capillary tube connected to the outside atmosphere and the façade cavity, serves to equalize pressure, as shown by the arrows DA.
  • the main frame profile 6 has a hollow chamber 13 filled with desiccant 14.
  • openings 15 are provided between the hollow chamber 13 in the main frame profile 6 and the façade cavity 3, which allow air exchange so that moisture-laden air can penetrate into the hollow chamber 13, whereupon the desiccant 14 located therein adsorbs the moisture.
  • the exchange of moisture-laden desiccant takes place in the direction of the arrow AT towards the inside of the façade.
  • the Fig. 4 The direction "AT" shown for the exchange of water vapor-laden desiccant with a freshly regenerated desiccant is only given in general terms. A possible technical implementation of the exchange is based on the Fig. 26 and Fig. 27 be explained.
  • the embodiment according to Fig. 5 is similar to that according to Fig. 4 , but differs in that between the hollow chamber 80 in the sub-frame profile 7, which is in air exchange with the expansion joint 78 for the purpose of pressure equalization (arrow direction DA), there is an air-conducting connection via a pressure equalization sub-system 17 with the hollow chamber 13 in the main frame profile 6.
  • the pressure equalization to the facade cavity 3 thus takes place from the expansion joint 78 into the hollow chamber 80 of the sub-frame profile 7 and through the pressure equalization sub-system 17 into the hollow chamber 13 filled with desiccant 14 and through the openings 15, whereas in the embodiment according to Fig. 4 the hollow chamber 80 in the subframe profile 7 has an air-conducting connection to the expansion joint 78 as well as to the facade cavity 3, which enables pressure equalization.
  • the pressure compensation device and the drying device interact directly with each other because the pressure compensation device is arranged in the sub-frame profile 7 and between the sub-frame profile 7 and the main frame profile 6, and the drying device is arranged in the main frame profile 6.
  • FIG. 6 Another variant is in Fig. 6
  • both the pressure equalization device and the drying device are integrated in the hollow chamber 13 in the main frame profile 6.
  • This solution is therefore similar to that according to Fig. 3 , as far as the direct interaction of the pressure compensation device with the drying device is concerned.
  • the combined system is located in a cavity 13 in the main frame profile 6, while in the embodiment according to Fig. 3
  • the desiccant 14 is located in a cavity 80 in the subframe profile 7.
  • pressure equalization openings 18 are provided between the hollow chamber 13 in the main frame profile 6 and the expansion joint 78, as well as openings 15 between the hollow chamber 13 and the façade gap 3, allowing pressure equalization between the façade gap 3 and the expansion joint area.
  • the air flow between the expansion joint and the drying device occurs through a foam block 22 whose core is open-cell.
  • the hollow chamber 13 filled with desiccant is arranged in such a way that it is not located in the transparent viewing area of the facade element 1 and thus cannot be perceived as disturbing.
  • the drying device is located in the area of the main frame profile 6.
  • the drying device comprises a separate desiccant container 19, which can be fastened to the main frame profile 6 in the façade gap 3.
  • the desiccant container 19 is replaced by completely removing it in the direction of arrow AT and reattaching it to the main frame profile 6 with regenerated desiccant.
  • the desiccant container 19 has openings 15, which connect the inner cavity 69 of the desiccant container 19, filled with desiccant 14, to the façade gap 3, so that air exchange can take place and water vapor in the façade gap 3 can be bound by the desiccant 14 located in the desiccant container 19.
  • the desiccant container 19 has a shape that is not disruptive when viewed from the inside of the façade outwards or from the outside of the façade inwards.
  • the embodiment according to Fig. 8 combines the basic ideas of the embodiments according to Fig. 6 and 7 As with the design according to Fig. 7 A separate desiccant container 19 is provided, which, however, in contrast to the embodiment according to Fig. 7 not only serves as a drying device, but also has a pressure equalization device integrated into it.
  • a separate desiccant container 19 is provided, which, however, in contrast to the embodiment according to Fig. 7 not only serves as a drying device, but also has a pressure equalization device integrated into it.
  • additional pressure equalization openings 18 are provided, which also in the case of the Fig.
  • the illustrated interposition of a cavity 13 in the main frame profile 6 creates a flow connection between the expansion joint 78 and the inner cavity 69 of the desiccant container 19 filled with desiccant 14, so that pressure equalization can take place between the expansion joint 78 and the façade gap 3 via the pressure equalization openings 18, the inner cavity 69 of the desiccant container 19 and the openings 15.
  • Both the pressure equalization device in the main frame profile 6 and in the desiccant container 19 as well as the drying device as an exchangeable container in the façade gap 3 are thus in direct interaction with each other.
  • the pressure equalization device and the drying device are arranged and dimensioned such that they do not extend into the transparent area 12 of the façade element.
  • the transparent area extends in the plane of the drawing of the Fig.
  • both the outer glazing 2 and the inner glazing 4 are transparent, provided the sun protection device 5 is not in the operating position.
  • Fig. 9 essentially corresponds to that according to Fig. 3 .
  • Films are applied to the insulating webs 24 for thermal separation of the partial profiles 6a and 6b of the main frame profile 6.
  • Reference number 23a denotes a film made of very thin stainless steel with a thickness of no more than 0.050 mm, or of metal-coated plastic film, or of butyl film on the insulation web on a surface facing the expansion joint.
  • Reference number 23b designates a film as described above, but on the insulation web 24 on a side facing away from the expansion joint. These measures serve to further increase the vapor-tightness of the insulation webs and thus reduce the diffusion of water vapor into the facade cavity 3.
  • FIG. 10 An opaque element is shown, which is provided in the form of a parapet panel 58 in the plane of the inner glass element 4 and an opaque coating 60 in the plane commonly referred to as position 2 on the outer glass pane.
  • a separately provided desiccant container 19 in the opaque area.
  • the desiccant container 19 is located as a replaceable container in the area of the parapet in front of the parapet panel 58.
  • the desiccant container 19 also represents part of the pressure equalization device with openings 15 in the facade gap 3 surrounding the desiccant container 19.
  • the air guide element 21 which has an internal cavity and connects the internal cavity 69 of the desiccant container in the parapet panel 58 with the facade gap 3 of the adjacent panel.
  • the air guide element which can be a pipe or hose, for example, is inserted through insertion openings 18a in the main profile 6 and fixed in a sealing manner in the insertion openings 18a on the outside of the insertion element 21. In this way, pressure equalization in the facade gap 3 of the adjacent facade element is achieved and incoming air is dehumidified at the same time.
  • the embodiment according to Fig. 11 leans closely against the one after Fig. 10 In contrast to the embodiment according to Fig. 10 However, in the opaque area, an interior space in the area of the frame of the main frame profile 6 is completely filled with insulating material 62. For this reason, the desiccant container 19 also occupies the entire depth of the main frame profile 6 and the openings 15 are provided on the front side in the desiccant container 19 in order to be able to establish pressure equalization there via the facade gap 3, which is not filled with insulating material, in the area of the sub-frame profile 7. Via the air guide element 21, as in the embodiment according to Fig. 10 , the pressure equalization to the facade gap 3 of the vertically adjacent facade element and the drying of the incoming air are carried out.
  • a direct air connection can be established with the façade cavity, so that there is no direct interaction with the drying device.
  • a connection to the façade cavity can also be established above and through the drying device, so that there is a direct interaction between the pressure equalization device and the drying device.
  • a long capillary tube 35 is clipped into the sub-frame profile 7.
  • the long capillary tube can preferably be made of metal or plastic. Thermoplastics or elastomers can be used as plastics.
  • a filter element or a membrane can be arranged at the inlet of the capillary tube (not shown in the section), which is in air-conducting connection with the outside atmosphere.
  • a filter or a membrane can be provided at the outlet of the capillary tube (not shown in the section). The outlet of the capillary tube is in air-conducting connection with the hollow chamber 80 in the sub-frame profile 7.
  • the hollow chamber 80 in the sub-frame profile 7 is provided with a filter 36 in a pressure equalization opening to the facade cavity 3.
  • pressure equalization between the facade cavity 3 and the outside atmosphere can be achieved via the cavity 80 and the capillary tube 35 in the direction of arrow DA, via an air-conducting connection between the cavity 80 and an outlet opening of the long capillary tube 35, as well as the air-conducting connection between the inlet opening of the long capillary tube 35 and the outside atmosphere.
  • the design according to Fig. 12 is an example of those designs in which there is no direct interaction between the pressure compensation device and the drying device.
  • Fig. 19 is similar to that according to Fig. 12 , but instead of the long capillary tube used Fig. 12 a plastic profile 66 made of a thermoplastic or elastomer.
  • a groove 53 is formed in the area of the hollow chamber 80 in the subframe profile 7, and the plastic profile 66 is inserted into the groove 53 in order to seal the groove 53 at a distance from the groove.
  • a groove 51 with a rectangular cross-section is provided, which represents the capillary element.
  • there is an opening 68 in the groove 53 which connects the cavity 80 to the groove 51.
  • the groove is connected to the outside atmosphere via a gap in the plastic profile 66.
  • the desired pressure equalization takes place via the Plastic profile 66, the hollow chamber 80 and in the direction of arrow DA the filter 36 in the pressure equalization opening 34 of the hollow chamber 80 of the subframe profile 7.
  • the embodiment according to Fig. 20 differs from that according to Fig. 19 merely by providing a distance that forms a gap 55 between the groove 53 in the subframe profile 7 and the plastic profile 66 inserted into the groove 53.
  • the plastic profile 66 for sealing the groove 53 consists of a thermoplastic or elastomer and must be both sufficiently adaptable and sufficiently vapor-tight, which must be taken into account when selecting a suitable plastic profile.
  • the gap 55 forms the capillary element and is connected to the hollow chamber in the subframe profile 7 via the opening 68.
  • no direct interaction between the pressure equalization device and the drying device are already in the embodiment according to Fig. 19 merely by providing a distance that forms a gap 55 between the groove 53 in the subframe profile 7 and the plastic profile 66 inserted into the groove 53.
  • the plastic profile 66 for sealing the groove 53 consists of a thermoplastic or elastomer and must be both sufficiently adaptable and sufficiently vapor-tight, which must be taken into account when selecting a suitable plastic profile.
  • the hollow chamber 80 in the subframe profile 7 is filled with desiccant 14.
  • the capillary element is again, as in the embodiment according to Fig. 19 , formed by a groove 53 in the subframe profile 7 and a gap 51 in the plastic profile 66, which forms a long capillary element.
  • the cross-section of the capillary element 51 is rectangular.
  • a filter 36 is inserted into the pressure equalization opening to the facade cavity 3.
  • the Fig. 22 represents a variant of the design according to Fig. 20 , in which the hollow chamber 80 in the sub-frame profile 7 is also additionally filled with desiccant 14.
  • the pressure compensation device thus again comprises a long capillary groove, which is formed by the gap 55 between the plastic profile 66 made of a thermoplastic or elastomer and the groove 53, as well as the filter 36 between the hollow chamber 80 and the facade gap 3.
  • a groove 38 is provided in the main frame profile 6 as part of a long capillary tube.
  • a plastic profile is located in this groove. 47 made of a thermoplastic or elastomer, which serves to seal the groove 38 and is provided with a gap 48 as part of the capillary tube cross-section.
  • the pressure compensation device comprises elements in both the subframe profile 7 and the main frame profile 6.
  • a capillary groove is formed in the main frame profile 6, which comprises a groove 38 and a gap 48 in the plastic profile 47.
  • the cavity 13 in the main frame profile 6 adjacent to the groove 38 in the main frame profile 6 is filled with desiccant 14.
  • An opening (in the sectional plane of the Fig. 17 not shown) connects the long capillary tube with the hollow chamber filled with desiccant 14 in the main frame profile 6. Therefore, there is a direct interaction between the pressure equalization device and the drying device.
  • Fig. 18 differs from that according to Fig. 17 in that a differently shaped, elongated plastic profile 49 made of a thermoplastic or elastomer is inserted into the groove 38 in the main frame profile 6, which also serves to seal the groove 38, but ends at a distance from the groove base, so that a gap 50 is present between the groove 38 in the main frame profile 6 and the plastic profile 49.
  • the pressure compensation device is thus again formed in both the sub-frame profile 7 and the main frame profile 6.
  • a capillary groove is provided in the main frame profile 6, which is formed by the gap 50 between the groove 38 and the plastic profile 49.
  • the pressure compensation device interacts directly with the drying device, since the cavity 13 in the main frame profile 6 adjacent to the groove 38 is filled with desiccant 14 and there is an opening in the groove 38 into the cavity filled with desiccant.
  • a filter 36 in the sub-frame profile 7 prevents the penetration of dirt.
  • the embodiment according to Fig. 13 is similar to that according to Fig. 18
  • the sealing plastic profile 39 made of a thermoplastic or elastomer inserted into the groove 38 in the main frame profile 6 is differently shaped.
  • a gap 50 is provided, which forms a cavity and takes on the function of a long capillary tube.
  • the cross-sectional dimensions of the capillary tube can be adapted by suitable selection of the dimensions of the plastic profile 39.
  • Desiccant 14 is filled in the hollow chamber 13 in the main frame profile 6 adjacent to the groove 38.
  • the groove 38 has a pressure equalization opening 72 to the hollow chamber 13 in the main frame profile 6 filled with desiccant 14.
  • a filter 70 can optionally be located in the pressure equalization opening 72.
  • a pressure compensation device with direct interaction with a drying device is shown, which is the general representation according to Fig. 8 further specified.
  • a separately provided desiccant container 19 is provided, which can be attached to and removed from the main frame profile 6 in the direction of arrow AT, for example via a screw connection.
  • a pressure equalization opening 42 is provided in the main frame profile 6 and a correspondingly arranged opening in the desiccant container 19, which can advantageously be provided with a filter 36 that represents a desiccant particle barrier.
  • a maintenance opening 43 is provided in the main frame profile 6, through which the short capillary tube 41 with membrane 45, which is located in a pressure equalization opening 18 in the main frame profile 6, can be replaced. The membrane acts as a filter and moisture barrier.
  • Fig. 15 shows a design similar to that of Fig. 14 , but using a long capillary tube.
  • a removable and therefore replaceable desiccant container 19 filled with desiccant 14 can be attached to the main frame profile 6.
  • the pressure equalization device comprises a long capillary tube 35, which is inserted into a correspondingly dimensioned receiving groove in the desiccant container on the side of the desiccant container 19 facing the main frame profile 6.
  • the long capillary tube is made of metal or of a thermoplastic or elastomeric material.
  • the outlet end of the long capillary tube 35 protrudes via a Fig. 15
  • the opening is not visible and is in air-conducting connection with the inner cavity 69 of the desiccant container 19.
  • the outlet end of the long capillary tube 35 is connected to the drying device via a Fig. 15 invisible opening in air-conducting connection with the inner cavity 69 of the desiccant container 19.
  • An inlet opening of the Fig. 15 The long capillary tube 35, shown only in section, is in air-conducting connection with a connecting piece 44, which also has an internal flow channel for air and whose end facing away from the long capillary tube 35 is in air-conducting connection with a pressure equalization opening 18 in the main frame profile 6, which establishes the flow connection to the expansion joint 78.
  • a filter 36 is provided in the pressure equalization opening 18 in the main frame profile 6.
  • Fig. 16 a different design of a long capillary tube, which is composed of two sections of an elongated cavity 46, a groove-shaped recess 74 in the wall of the desiccant container 19 and the wall of the main frame profile 6 with an opening in which the connecting piece 44 is arranged.
  • the outlet end of the long capillary tube 46 protrudes via a Fig. 16 invisible opening in air-conducting connection with the inner cavity 69 of the desiccant container 19.
  • the long capillary tube 46 shown only in section, is in air-conducting connection with the connecting piece 44, which also has an internal flow channel for air and whose end facing away from the long capillary tube 46 is in air-conducting connection with a pressure equalization opening 18 in the main frame profile 6, which establishes the flow connection to the expansion joint 78.
  • a filter 36 is provided in the pressure equalization opening 18 in the main frame profile 6. Otherwise, the embodiment according to Fig. 16 those after Fig. 14 and 15 .
  • FIG. 23 A further embodiment is shown using a short capillary tube 41 with a membrane 45, which is in air-conducting connection with a pressure equalization opening 37 in the sub-frame profile 7.
  • a pressure equalization opening 37 in the sub-frame profile 7. For pressure equalization, air passes from the expansion joint 78 into the hollow chamber 80 in the sub-frame profile 7 via the short capillary tube and from there via the pressure equalization opening 34 into the facade gap 3.
  • the drying device comprises desiccant 14 in a hollow chamber 13 of the main frame profile 6.
  • the hollow chamber is in air exchange with the facade gap 3.
  • the embodiment according to Fig. 24 is a variation of the one according to Fig. 23
  • There is a direct interaction between the pressure compensation device and the drying device because in contrast to the embodiment according to Fig. 23
  • the pressure equalization between the outside atmosphere and the space between the facade takes place with the drying device interposed.
  • a short capillary tube 41 with a membrane 45 whose inlet opening is in air-conducting communication with a pressure equalization opening 37 in the subframe profile 7.
  • a pressure equalization opening 34 is provided in the hollow chamber 80, which is in air-conducting communication with the facade cavity 3.
  • a filter element 36 is located in the pressure equalization opening 34.
  • Fig. 26 shows how the embodiment according to Fig. 10 , an opaque panel 58 in the parapet area, which is provided instead of the inner glazing element.
  • the designs of the pressure equalization device and the drying device, however, correspond to those in Fig. 18 are shown in a detailed view and have already been explained.
  • Panel 58 is thermally insulated and has an outer cover shell 59, which is typically made of metal.
  • the cover shell is preferably dark toward the façade cavity, and particularly preferably dark and matte.
  • An inner cover shell 61 is provided on the room side. Between the cover shells 59 and 61 is an insulating material 62.
  • the insulation panel is preferably open-celled and made of mineral wool, organic foam, aerogel, or as a vacuum panel.
  • the panel 58 is held to the facade cavity 3 by a strip 20 with the interposition of a sealing strip 57, while an inner seal 31 is provided on the room side.
  • a optional sun protection 5' may be provided, particularly if the outer glazing element 2 at position 2 is not provided with an opaque coating 60.
  • the exchange of desiccant 14 as well as the injection of fresh, regenerated desiccant is carried out with the aid of an exchange device 16, which extends through a hollow chamber 67 of the main frame profile 6 and whose inner cavity 65 connects the room side of the facade element 1 with the hollow chamber 13 in the main frame profile 6, in which the desiccant 14 is located.
  • an exchange device 16 which extends through a hollow chamber 67 of the main frame profile 6 and whose inner cavity 65 connects the room side of the facade element 1 with the hollow chamber 13 in the main frame profile 6, in which the desiccant 14 is located.
  • a room-side sealing element 64 is provided which seals the inner cavity 65 of the exchange device at its room-side end.
  • a sealing part 63 is provided which serves to prevent the penetration of water vapor from the hollow chamber 67 of the main frame profile 6 into the cavity 13 filled with desiccant. If the desiccant 14 is to be replaced, the sealing element 64 is removed and the desiccant 14 is sucked out through the inner cavity of the exchange device 16 towards the room side in the direction of arrow A. Fresh desiccant can then be blown in the direction of arrow B through the inner cavity 65 of the exchange device 16 into the hollow chamber 13 and the sealing element 64 can then be replaced. In this way, the desiccant 14 can be easily replaced from the room side.
  • Fig. 28 Various possible arrangements of the pressure equalization and drying device are schematically shown in the schematic representations 28(a) to 28(r).
  • "F” represents the window area
  • "B” denotes the optionally provided, opaque area, which is preferably located in the parapet area.
  • Dashed lines indicate a long capillary tube interacting with a drying device, while in the plane of the drawing the Fig. 28 horizontal dash-dotted lines indicate a long capillary tube without interaction with a drying device.
  • the lines in the plane of the drawing of the Fig. 28 The horizontal lines correspond to a horizontal direction when the facade element is installed as intended.
  • Fig. 28 there are 18 practical options for arranging pressure equalization and drying devices.
  • the arrangement of the pressure equalization and drying devices depends on the choice of pressure equalization system, in particular the choice of a short or long capillary tube, as well as on the building's specific conditions.
  • Short capillary tubes are preferably installed in vertical frame sections.
  • a first pressure equalization opening 82 and a second pressure equalization opening 84 are provided, which are provided in the sub-frame profile 7 and in the example according to Fig. 29 as far as possible vertically spaced from each other and arranged in the immediate vicinity of the corner angles 86 in the mitred corners of the sub-frame profile 7.
  • the first pressure equalization opening 82 is arranged at the lowest point of the vertical part of the sub-frame profile, is connected to the outside atmosphere and runs diagonally downwards along a slope at the corner angle, so that dust penetrating through the first pressure equalization opening 82 into the inner cavity of the sub-frame profile 7 can settle downwards and escape from the sub-frame profile.
  • the second pressure equalization opening 84 is provided at the highest point of the, for example, 4 meter vertical part of the sub-frame profile 7 and connects the facade gap 3 with the inner cavity of the sub-frame profile 7.
  • Fig. 29 The straight air duct shown can already extend the service life of the desiccant compared to the case of direct air ingress from the outside atmosphere into the facade cavity, which is defined by the provision of two aligned holes through the subframe profile.
  • the air flow during pressure equalization can be carried out in a front cover 88, which in the vertical section through the subframe profile according to Fig. 30 is attached to the sub-frame profile 7, preferably clipped on or screwed to the sub-frame profile 7.
  • the front cover has an inner cavity 90 and has a vertical extension that essentially corresponds to the height of the vertical part of the sub-frame profile 7.
  • the first pressure equalization opening 82 is provided at the bottom end of the front cover 88 at the lowest point of the sub-frame profile and points in a vertical direction, so that dust penetrating into the inner cavity of the front cover 88 can automatically fall back down through the first pressure equalization opening 82 under the influence of gravity.
  • an opening is provided towards the sub-frame profile 7.
  • the air flow during pressure equalization flows between the upper end of the front cover 88 and a sleeve 92, which extends through the sub-frame profile 7 and leads into the facade cavity 3.
  • the Fig. 30 The largely straight air flow shown with only a single 90° deflection at the top of the air flow can extend the service life of the desiccant compared to the case of direct air entry from the outside atmosphere into the facade cavity.
  • the Fig. 31 converts the flow pattern according to Fig. 30 in that a flow connection exists between the inner cavity 90 of the inner cover 88 and the inner cavity 96 of the subframe profile 7 via an air exchange opening 94 in the subframe profile 7 at the upper end of the attached cover 88.
  • the second pressure equalization opening 84 connects the facade gap 3 and the inner cavity 96 of the subframe profile 7 and is provided approximately at the height of the first pressure equalization opening 82, so that upon pressure equalization, the air flow is deflected twice and covers a distance that essentially corresponds to twice the height of the vertical part of the subframe profile 7. This flow guidance results in a double deflection of the air flow, between which the air flow runs essentially in a straight line.
  • the variant according to Fig. 32 corresponds to the design according to Fig. 29 , to which reference is made, is modified in that an insertion element 98 is arranged in the inner cavity 96 of the sub-frame profile 7, said insertion element comprising a first wall 102 and a second wall 104, to each of which at least one transverse bulkhead 106 is attached, the mutual arrangement of which determines the air guidance in contrast to the straight-line air guidance according to the embodiment according to Fig. 29 multiple times and forces a winding flow path.
  • the vertically arranged alternating transverse bulkheads 106 have a downward slope towards the side of the free flow cross-section and therefore act as additional dust brakes.
  • Fig. 32 With the air flow system shown, with several deflections of the air flow, the service life of the desiccant can be further extended compared to the case of direct air entry from the outside atmosphere into the facade cavity.
  • the Figures 31 and 32 The measures explained above can be combined by providing an upstream cover and, in addition, alternately arranged transverse bulkheads are provided either in the inner cavity of the sub-frame profile or in the inner cavity of the upstream cover, which represent additional deflections of the air flow.
  • the measures explained can extend the service life of the desiccant even further compared to the case of direct air ingress from the outside atmosphere into the cavity between the facade.
  • this can additionally consist of a plastic material that can absorb moisture and thus serves as a moisture buffer, which dehumidifies incoming air within the scope of its moisture absorption capacity and releases the absorbed moisture back into the dried air flowing out of the façade cavity.
  • the one based on the Fig. 7 , 8 and 29 to 32 The embodiments shown have in common that the pressure equalization between the outside atmosphere and the façade cavity occurs separately from the air exchange between the façade cavity and a desiccant. Furthermore, these embodiments have in common that a dust filter can be additionally provided in the area of the first pressure equalization opening. By omitting a capillary tube, the design of the air duct alone can significantly increase the service life of the desiccant until the moisture-laden desiccant needs to be replaced.
  • the air flow should be directed through the desiccant during pressure equalization.
  • FIG. 33a represents a vertical section through the subframe profile in a cutting plane parallel to the glass plane of the facade element and Fig. 33b shows a vertical sectional view in a cutting plane perpendicular to the glass plane.
  • the design of the subframe profile according to Fig. 33a is similar to that according to Fig. 29 and differs only in that instead of the second pressure equalization opening between the inner cavity 96 of the subframe profile 7 and the facade gap 7, an opening 108 to the desiccant chamber is provided.
  • the opening 108 is preferably a bore.
  • the Fig. 33b The dotted lines schematically indicate the flow pattern of the air stream during pressure equalization. However, this representation is simplified because gas flow through a bed of solid particles such as desiccant pellets is not linear, but rather follows a winding path with numerous branches. However, the dotted lines are intended to indicate which measures can be advantageously taken to load the desiccant with moisture as evenly as possible.
  • the air flow After flowing into an inner cavity 110 of the main frame profile 6, which is filled with desiccant, The air flow is drawn to the openings 112a, 112b, and 112c, which connect the inner cavity 110 of the main frame profile 6 with the facade cavity 3.
  • the driving force for the air flow is the air pressure at the openings 112a, 112b, and 112c, which is lower than that of the air flow entering the desiccant bed 98 through the opening 108.
  • the openings 112a, 112b, 112c have different opening diameters.
  • the opening diameter d1 of the opening 112a closest to the opening 108 at the inlet is the smallest and therefore generates the greatest pressure loss due to the flow resistance during flow.
  • the diameter d2 of the opening 112b further away from the opening is larger than the diameter d1, and the diameter d3 of the opening 112c furthest away from the opening 108 at the inlet is the largest.
  • the flow through the desiccant container can be made more uniform.
  • the service life of the desiccant can be significantly extended compared to the case of direct air ingress from the outside atmosphere into the facade cavity.
  • the desiccant is filled directly into an internal cavity of the main frame profile 6, so that no visual impairment is possible due to a desiccant container provided in the facade cavity. Furthermore, no separate desiccant container is required.
  • the desiccant is replaced via an exchange device, as described with reference to Fig. 26 and 27 was explained.
  • FIG. 34a represents a vertical section through the subframe profile in a cutting plane parallel to the glass plane of the facade element and Fig. 34b shows a vertical sectional view in a cutting plane perpendicular to the glass plane.
  • the design of the subframe profile according to Fig. 34a is similar to that according to Fig. 30 and differs only in that instead of the second pressure equalization opening between the inner cavity 96 of the subframe profile 7 and the facade gap 3, an opening 108 to the desiccant chamber is provided.
  • the opening 108 is preferably a bore.
  • the air flow through the desiccant bed 98 to Fig. 34b corresponds to that according to Fig. 33b .
  • FIG. 35a represents a vertical section through the subframe profile in a cutting plane parallel to the glass plane of the facade element and Fig. 35b shows a vertical sectional view in a cutting plane perpendicular to the glass plane.
  • the design of the subframe profile according to Fig. 35a is similar to that according to Fig. 31 and differs only in that instead of the second pressure equalization opening between the inner cavity 96 of the subframe profile 7 and the facade gap 3, an opening 108 to the desiccant chamber is provided.
  • the opening 108 is preferably a bore.
  • the air flow through the desiccant bed 98 to Fig. 35b corresponds to that according to Fig. 33b , however, with the difference that the opening 108 to the desiccant chamber is located vertically at the lower end of the facade element, and correspondingly, the openings 112a, 112b, 112c are located at the upper vertical end of the facade element. Due to the low volume flow of air, it makes no difference whether the desiccant bed 98 is flowed through from top to bottom or from bottom to top.
  • Fig. 35c and 35d is a further embodiment of the embodiment according to the Figures 35a and 35b
  • the adjustment options for pressure loss and preferred flow paths through the drying device described below can be applied to all embodiments in which the air flow is guided through the drying device for pressure equalization.
  • a sliding gate 122 is arranged, which is held in a suitable guide 124 so as to be displaceable in the axial direction in the direction of arrow A.
  • the sliding gate the hatched in the Fig. 35c
  • the apertures 126a, 126b and 126c shown are provided, which are movable by means of a displacement of the displacement link 122 between two positions which are in the Figures 35c and 35d In the position shown Fig. 35c
  • the apertures are located in an area that does not overlap the openings 112a, 112b, and 112c. Thus, there is no interaction between the openings 112a, 112b, and 112c and the apertures.
  • the orifice plate 126a is located in front of the opening 112a, the orifice plate 126b in front of the opening 112b, and the orifice plate 126c in front of the opening 112c.
  • the pressure loss, as well as the flow pattern through the desiccant bed, can be influenced by the provision of openings in the orifices and their opening cross-sections.
  • the aperture 126a has no opening
  • the aperture 126b has an opening with the diameter d1
  • the aperture 126c has an opening with the diameter d2.
  • opening 112a is closed. Opening 112b is narrowed to a diameter d1, and the opening 112b is narrowed to a diameter d3. This increases the pressure loss through the desiccant bed, but also prevents the flow path between openings 108 and 112a.
  • FIG. 36a represents a vertical section through the subframe profile in a cutting plane parallel to the glass plane of the facade element and Fig. 36b shows a vertical sectional view in a cutting plane perpendicular to the glass plane.
  • the design of the subframe profile according to Fig. 36a is similar to that according to Fig. 32 and differs only in that instead of the second pressure equalization opening between the inner cavity 96 of the subframe profile 7 and the facade gap 3, an opening 108 to the desiccant chamber is provided.
  • the opening 108 is preferably a bore.
  • FIG. 37a represents a vertical section through the subframe profile in a cutting plane parallel to the glass plane of the facade element and Fig. 37b shows a vertical sectional view in a cutting plane perpendicular to the glass plane.
  • the design of the subframe profile according to Fig. 37a comprises a front cover 88 as in the embodiment according to Fig. 35a , but with additional transverse bulkheads 106 in the forward cover 88 for flow deflection and as dust collectors.
  • the transverse bulkheads 106 create a tortuous flow path and further improve the effectiveness of the pressure equalization system.
  • the opening 108 between the sub-frame profile 7 and the main frame profile 6 is essentially centrally located with respect to the height of the desiccant bed 98, while the openings 112a, 112b, ... are located at the top and bottom in relative to the desiccant bed 98. In this way, the distance between the opening 108 and each of the openings 112a, 112b, ... is halved.
  • Fig. 38a represents a vertical section through the subframe profile in a cutting plane parallel to the glass plane of the facade element and Fig. 38b shows a vertical sectional view in a cutting plane perpendicular to the glass plane.
  • the opening 108 Adjacent to a shortened air duct in the subframe profile 7 between the first pressure equalization opening 82 and the opening 108, the opening 108 is located approximately halfway up the facade element. This shortens the air path from the opening 108 to one of the openings 112a, 112b, resulting in a correspondingly lower pressure loss of the air as it flows through the desiccant bed 98.
  • the pressure loss in the inner cavity of the subframe profile 7 is significantly lower than in the desiccant bed 98.
  • the design in the subframe profile 7 corresponds to that in the Fig. 33a was shown, but with the modification that the opening 108 is located halfway up.
  • Fig. 39a represents a vertical section through the subframe profile in a cutting plane parallel to the glass plane of the facade element and Fig. 39b a vertical sectional view in a cutting plane perpendicular to the glass plane.
  • the design of the subframe profile according to Fig. 39a corresponds to that according to Fig. 38a In the desiccant bed 98, in the example according to Fig. 39a However, six openings 112a, 112b, 112c, 112d, 112e and 112f are provided, which are designed as bores whose diameter increases with increasing distance from the opening 108, as already shown in the Fig. 33b explained.
  • Fig. 39b The functional principle according to Fig. 39b can be combined with different flow guides in the subframe profile, whereby only one adjustment has to be made because the opening 108 in the main frame profile is located approximately halfway up the subframe profile.
  • Fig. 42a, b When designing according to Fig. 42a, b the flow guidance between the opening 108 to the subframe profile 7 and the openings 112a, 112b, 112c, 112d, 112e and 112f corresponds again to that according to Fig. 39b
  • a Fig. 36a A shortened insert 100 with transverse bulkheads 106 is arranged to accommodate the modified position of the opening 108.
  • This design with a shortened flow path through the subframe profile has the additional advantage that the pressure loss of the flow path through the subframe profile is also reduced.
  • the opening 108 between the subframe profile 7 and the chamber filled with the desiccant in the main frame profile 6 is connected to a distributor pipe 114, so that air flowing into the drying device through the opening 108 enters the distributor pipe.
  • the distributor pipe 114 is provided at predetermined intervals with a plurality of outlet openings 116a, 116b, 116c, 116d, 116e, the number of which differs from that according to Fig. 43b may vary.
  • the cross-sectional opening of the outlet openings 116a to 116e are not the same, but increase with increasing distance from the opening 108.
  • the openings 112a, 112b, 112c, 112d and 112e are each located essentially vertically above one of the outlet openings 116a to 116e, so that between the pairs of one outlet opening 116a to 116e and one opening 112a to 112e, a preferred pad for the air flow is created, and the resulting distribution of the Air flows through the desiccant bed ensure the most even loading of the desiccant in the drying device.
  • the openings 112a to 112e have an increasing opening cross-section. In the case of a bore, the opening diameter of the openings 112a to 112e, which are in Fig. 43a marked d1 to d5, increases continuously from d1 to d5.
  • the embodiment according to the Fig. 44a and 44b changes the embodiment according to the Figures 43a and 43b in that an additional one based on the Figures 35c and 35d
  • the distributor pipe 114 is surrounded by a pipe sleeve 118, which is rotatably mounted relative to the distributor pipe 114 via a plain bearing in the main frame profile 6 and is adjustable from the outside.
  • the pipe sleeve 118 can be rotated from the outside on the main frame profile in the direction of arrow R.
  • the pipe sleeve 118 has an adjustment opening 120a to 120e at each of the axial positions that correspond to the respective axial positions of the outlet openings 116a to 116e.
  • the air flows indicated in all figures are merely intended to schematically indicate a possible flow pattern.
  • the air flow branches through a bed of granular solids, and the very low volume flows required for pressure equalization are also overlaid by diffusion processes that allow moisture-laden air to diffuse into areas where the air is dry. These diffusion processes support the uniform loading of the desiccant in the desiccant bed.
  • the volume flow of air can be determined as a function of the applied pressure difference with the help of a simple experiment. can be determined. Through targeted experiments, the relationship between the air flow rate and the pressure difference can be determined, allowing it to be described mathematically. The calculation of the pressure difference over a freely selectable reference period, e.g., one year, using hourly weather data for a defined location has already been explained in detail.
  • one surrounding frame profile can be provided for all components of the facade element, with either only transparent glass elements being provided, or transparent areas and additional opaque areas being provided, preferably in the parapet area.
  • two surrounding frame profiles can be provided: one surrounding frame profile for the transparent glass elements and another surrounding frame profile for the opaque area.
  • the facade element according to the invention inherently possesses an air volume in the cavity that far exceeds the gas volume of a conventional insulating glass pane. Therefore, the design options for insulating glass panes cannot be transferred to double-skin facade elements, and regular regeneration of the desiccant is required. Therefore, all functional elements, and in particular the pressure equalization device and drying device, must be accessible, maintainable, repairable, and replaceable. Furthermore, the pressure equalization device and drying device are arranged and dimensioned such that they are not located in a transparent area of the facade element. This has the advantage of being fully integrated into the area of the surrounding frame profile and thus completely concealed from outside observers.

Landscapes

  • Engineering & Computer Science (AREA)
  • Civil Engineering (AREA)
  • Structural Engineering (AREA)
  • Architecture (AREA)
  • Physics & Mathematics (AREA)
  • Electromagnetism (AREA)
  • Securing Of Glass Panes Or The Like (AREA)

Description

    Gebiet der Erfindung
  • Die Erfindung betrifft ein zweischaliges Fassadenelement umfassend ein flächiges Außenverglasungselement und ein flächiges Innenverglasungselement, die voneinander beabstandet in einem wärmegedämmten Umfassungsrahmenprofil gehalten sind.
  • Stand der Technik
  • Im Fassadenbau werden häufig zweischalige Fassadensysteme eingesetzt, bei denen oftmals der Fassadenzwischenraum hinterlüftet wird. Diese Maßnahme verringert allerdings die Wärmedämmung, so dass zweischalige Fassaden zunehmend mit einem im Wesentlichen geschlossenen Luftpolster ausgeführt werden. Diese Gestaltung wird als CCF-Fassade (closed cavity facade) bezeichnet und besitzt mehrere Vorteile. So ist der Schallschutz im Vergleich zu zweischaligen, durchströmten Fassadenelementen verbessert. Weiterhin erfolgt kein Schmutzeintrag. Schließlich besteht eine verbesserte Wärmedämmung aufgrund des isolierenden Luftpolsters im Fassadenzwischenraum zwischen den Außen- und Innenfüllelementen der zweischaligen Fassade. Allerdings kann es zu Druckunterschieden, beispielsweise aufgrund von Temperaturschwankungen kommen, so dass geeignete Maßnahmen erforderlich sind, um einen Druckausgleich zu schaffen. Darüber hinaus besteht auch ein mögliches Tauwasserrisiko im Fassadenzwischenraum. Tauwasser bildet sich im Fall einer Taupunktunterschreitung der im Fassadenzwischenraum befindlichen Luft.
  • Die DE 10 2013 202719 A1 beschreibt eine CCF-Fassade mit einer Einfachverglasung außen und einer Wärmeschutzverglasung innen. Im druckentspannten Fassadenzwischenraum ist ein Sonnenschutz vorgesehen. Zur Reduzierung des Tauwasserrisikos können im Fassadenzwischenraum Adsorbentien angeordnet sein. Die Adsorbentien lassen sich durch Erhitzen regenerieren, wobei entweder Sonneneinstrahlung oder aber eine elektrische Heizung verwendet werden kann.
  • Auch das zweischalige Glasfassadenelement nach der EP 1970525A2 weist einen Sonnenschutz im Fassadenzwischenraum sowie eine Einrichtung zur zumindest teilweisen Entfeuchtung des Fassadenzwischenraums auf. Das Dokument EP 3 404 190 A2 offenbart ein bekanntes zweischaliges Fassadenelement.
  • Darstellung der Erfindung
  • Die Aufgabe der Erfindung besteht darin, ein Fassadenelement für eine Fassadenkonstruktion vorzuschlagen, das keine externe Technik benötigt und bei hoher Energieeffizienz sowohl einen Druckausgleich im System wie auch eine Tauwasservermeidung im System über einen verlängerten Zeitraum gewährleisten kann.
  • Diese Aufgabe wird durch ein zweischaliges Fassadenelement mit den Merkmalen eines der Ansprüche 1, 9, 14 oder 15 gelöst. Bevorzugte Ausführungsformen folgen aus den übrigen Ansprüchen.
  • Das zweischalige Fassadenelement nach einem ersten Aspekt der Erfindung umfasst ein flächiges Außenverglasungselement und ein flächiges Innenverglasungselement, die voneinander beabstandet in einem wärmegedämmten Umfassungsrahmenprofil gehalten sind, mindestens eine Druckausgleichseinrichtung, die in luftleitender Verbindung zur Außenatmosphäre und zu einem Fassadenzwischenraum steht, der zwischen dem Außenverglasungselement und dem Innenverglasungselement vorgesehen ist, und mindestens eine mit Trockenmittel befüllbare Trocknungseinrichtung, die entweder im Fassadenzwischenraum oder in dem Umfassungsrahmenprofil integriert ist und im Luftaustausch mit dem Fassadenzwischenraum steht. Weiterhin ist mindestens ein Kapillarelement vorgesehen, das Bestandteil des Umfassungsrahmenprofils ist, und bevorzugt zum Teil durch einen Abschnitt des Umfassungsrahmenprofils gebildet ist. Die Druckausgleichseinrichtung und die Trocknungseinrichtung sind so angeordnet und dimensioniert, dass sie sich nicht in einen transparenten Bereich des flächigen Außenverglasungselements und des flächigen Innenverglasungselements erstrecken, d.h. sich nicht in einem transparenten Bereich des flächigen Außenverglasungselements und des flächigen Innenverglasungselements befinden. Die mindestens eine Trocknungseinrichtung ist gestaltet, um einen Austausch des Trockenmittels zu ermöglichen und umfasst bevorzugt eine Austauschöffnung, die gestaltet ist, um den Austausch des Trockenmittels in Richtung auf die Raumseite zu ermöglichen.
  • Die Raumseite bezieht sich dabei auf die Einbaulage des Fassadenelements und befindet sich auf der dem Fassadenzwischenraum abgewandten Seite der Innenverglasung. Unter dem transparenten Bereich des Außenverglasungselements sowie Innenverglasungselements wird dabei derjenige Bereich verstanden, innerhalb dessen ein Betrachter in einer Blickrichtung senkrecht zu den Hauptebenen des Außenverglasungselements und Innenverglasungselements durch diese hindurchsehen kann, weil in diesem Bereich sowohl das Außenverglasungselement als auch Innenverglasungselement nicht durch andere Bauteile wie Dichtungsstreifen bedeckt sind. Die Dimensionierung und Anordnung der Druckausgleichseinrichtung und Trocknungseinrichtung nach der Erfindung hat somit den Vorteil, dass diese vollständig in den Bereich des Umfassungsrahmenprofils integriert sind und damit für einen außenstehenden Betrachter vollkommen verdeckt sind.
  • Der Luftaustausch der Trocknungseinrichtung mit dem Fassadenzwischenraum kann dabei entweder erfolgen, indem die Druckausgleichseinrichtung mit der Trocknungseinrichtung zusammenwirkt und somit die Trocknungseinrichtung ebenso wie die Druckausgleichseinrichtung in die luftleitende Verbindung zwischen der Außenatmosphäre und dem Fassadenzwischenraum integriert ist, oder indem parallel zu der luftleitenden Verbindung zwischen der Außenatmosphäre und dem Fassadenzwischenraum ein direkter Luftaustausch zwischen dem Fassadenzwischenraum und der Trocknungseinrichtung besteht.
  • Unter "Bestandteil des Umfassungsrahmenprofils" ist dabei zu verstehen, dass das Kapillarelement bereits mit dem Umfassungsrahmenprofil eine vormontierte Baueinheit bildet und bei der Herstellung einer Fassade nicht mehr gesondert montiert werden muss.
  • Ein Kapillarelement ist dadurch gekennzeichnet, dass es einen inneren Hohlraum besitzt, dessen Querschnittsabmessungen deutlich geringer sind als dessen Länge. Der innere Hohlraum muss dabei weder einen über die Länge konstanten Querschnitt aufweisen noch eine lineare Längserstreckung aufweisen. Das Kapillarelement dient dem Druckausgleich.
  • Das erfindungsgemäße Fassadenelement beinhaltet alle wesentlichen Eigenschaften in einer systeminhärenten Weise. Es ist keine externe Technik erforderlich, um einen Druckausgleich im System herzustellen. Der Druckausgleich im System kann dabei feuchteeintrittsbremsend, wasserdicht, staubdicht und/oder druckamplitudendämpfend ausgestaltet sein. Darüber hinaus wird durch das Vorsehen der Druckausgleichseinrichtung sowie der Trocknungseinrichtung eine Tauwasservermeidung im System erzielt. Die Druckausgleichseinrichtung kann im Umfassungsrahmenprofil vollständig integriert sein, so dass keine sichtbaren Überstände oder Luftleitungen außerhalb des Fassadenelements erforderlich sind. Darüber hinaus weist das zweischalige Fassadenelement eine hohe Energieeffizienz sowohl im Winter wie auch im Sommer auf. Im Winter kommt die sehr gute Wärmedämmung zum Tragen und im Sommer lassen sich Materialtemperaturen von nicht mehr als 80°C im Fassadenzwischenraum verwirklichen, so dass kein Fogging bei der Verwendung von Materialien mit eventuell flüchtigen Komponenten auftritt. Auf diese Weise lässt sich ein Beitrag zur Einhaltung der Behaglichkeitskriterien im Sommer leisten. Die Einhaltung der Behaglichkeitskriterien ist auch vom Energiedurchlassgrad zwischen dem Fassadenzwischenraum und dem Rauminneren abhängig und wird dabei insbesondere durch das flächige Innenverglasungselement und die thermische Trennung des Umfassungsrahmenprofils beeinflusst. Einen weiteren Beitrag zur Einhaltung der raumseitigen Behaglichkeitskriterien spielt darüber hinaus ein optional im Fassadenzwischenraum vorgesehener Sonnenschutz.
  • So kann nach einer bevorzugten Ausführungsform das mindestens eine Kapillarelement eine Membran mit einem Kapillarrohr umfassen, wobei das Kapillarrohr eine Länge von höchstens 60mm und bevorzugt von höchstens 20mm, und besonders bevorzugt von höchstens 10mm, und einen Innendurchmesser von höchstens 1,5mm und bevorzugt von höchstens 1.0mm besitzt. Ein derartiges, sogenanntes kurzes Kapillarrohr wird beispielsweise von der Firma Swisspacer vertrieben. Die Funktionsweise wird in der WO2019/110409 A1 beschrieben. Ein kurzes Kapillarrohr ist bevorzugt im Bereich der Druckentspannungsöffnungen angeordnet. Ein kurzes Kapillarrohr kann sowohl in Wechselwirkung mit der Trocknungseinrichtung sein als auch ohne Wechselwirkung mit der Trocknungseinrichtung vorgesehen sein.
  • Alternativ kann nach einer bevorzugten Ausführungsform
    das mindestens eine Kapillarelement ein Kapillarrohr umfassen, welches eine Länge von mindestens 200mm aufweist und optional eine Membran oder einen Filter oder ein Sieb an der Öffnung des Kapillarrohrs zum Außenklima aufweist. Ein Kapillarrohr mit den genannten Abmessungen wird im Folgenden als langes Kapillarrohr bezeichnet. Ein langes Kapillarrohr kann als separates Bauteil vorgesehen sein und aus Glas oder Metall bestehen, bevorzugt aus Aluminium oder hartem oder flexiblem Kunststoff.
  • Beim Vorsehen von langen Kapillarrohren weisen diese einen lichten Querschnitt von weniger als 1mm2, bevorzugt weniger als 2mm2, mehr bevorzugt weniger als 4mm2 und am meisten bevorzugt von weniger als 6mm2 auf. Die Länge des Kapillarrohrs und der lichte Querschnitt des Kapillarrohrs sind dabei aufeinander abgestimmt. Eine zunehmende Kapillarrohrlänge erlaubt einen zunehmenden lichten Querschnitt.
  • Die Form des lichten Querschnitts kann beliebig gewählt werden. Bevorzugt ist dieser jedoch kreisrund, halbkreisförmig, quadratisch, rechteckig, dreieckig, rautenförmig oder elliptisch.
  • Die Wanddicke eines als separates Bauteil vorgesehenen, langen Kapillarrohrs beträgt zwischen 0,5mm und 5mm und beträgt bevorzugt maximal 2mm.
  • Bei der Verwendung eines langen Kapillarrohrs kann eine Membran oder ein Filter im Bereich der Druckentspannungsöffnung vorgesehen sein. Die Länge eines langen Kapillarrohrs kann je nach Orientierung bis zur Breite, Höhe oder dem Umfang des Fassadenelements gewählt werden. Grundsätzlich gilt bei einer Druckausgleichseinrichtung mit langem Kapillarrohr, dass die Eintrittsöffnung des Kapillarrohrs in Verbindung zur Außenatmosphäre steht. Die Austrittsöffnung des Kapillarrohrs steht in Verbindung zum Fassadenzwischenraum entweder ohne Zusammenwirken mit der Trocknungseinrichtung oder mit Zusammenwirken mit der Trocknungseinrichtung. Die Eintrittsöffnung kann am Umfassungsrahmen, sowohl im Bereich eines Hauptrahmenprofils als auch eines Subrahmenprofils zur Dehnfuge hin angeordnet sein und ist vorteilhafterweise so angeordnet, dass diese gegen Wassereintritt geschützt ist.
  • Die Auslegung eines langen Kapillarrohrs erfolgt in Abhängigkeit vom Standort des Gebäudes und den dort herrschenden Wetterdaten in Form der Außentemperatur, des Luftdrucks, der relativen Feuchte und der Intensität der solaren Einstrahlung, die sich weltweit mit der Software Meteonorm für einen definierten Standort stündlich generieren lassen. Die Temperatur im Scheibenzwischenraum ist abhängig vom Scheibenaufbau, den energetischen Absorptionsgraden der Einzelscheiben, der Verwendung eines Sonnenschutzes, der Intensität der solaren Einstrahlung, und den Lufttemperaturen außen und innen im Gebäude und kann in Anlehnung an EN 16612:2019, Anhang C für jede Stunde aus den Wetterdaten berechnet werden. Ein Kapillarrohr stellt einen Strömungswiderstand gegenüber der ein- oder ausströmenden Luft dar, der über den Kapillarinnendurchmesser und die Kapillarlänge in das Berechnungsmodell eingeht. Mittels des Berechnungsmodells wird der Feuchtetransport über den Volumenstrom durch das Kapillarrohr ermittelt. Dabei wird der Volumenstrom durch das Kapillarrohr direkt proportional zur anliegenden Druckdifferenz angenommen.
  • Über den Volumenstrom durch jedes Kapillarrohr eines erfindungsgemäßen Fassadenelements in Abhängigkeit von den stündlichen Wetterdaten kann über einen definierten Zeitraum, z.B. ein Jahr, die Menge an Wasserdampf abgeschätzt werden, die von der Außenatmosphäre über die Kapillarrohre in den Fassadenzwischenraum eindringt und vom dem Trockenmittel adsorbiert wird.
  • Nach einer bevorzugten Ausführungsform umfasst das Kapillarelement ein Kapillarrohr, das vollständig im Umfassungsrahmenprofil des Fassadenelements integriert ist, vorzugsweise im Umfassungsrahmenprofil eingeklipst ist.
  • Nach einer alternativen bevorzugten Ausführungsform umfasst
    die Trocknungseinrichtung einen Trockenmittelbehälter, und das mindestens eine Kapillarelement umfasst ein Kapillarrohr, das in den Trockenmittelbehälter integriert ist.
  • Nach einer alternativen bevorzugten Ausführungsform umfasst
    die Trocknungseinrichtung einen Trockenmittelbehälter, und das mindestens eine Kapillarelement umfasst ein Kapillarrohr, das aus einer Nut im Trockenmittelbehälter und einer Wandung des Umfassungsrahmenprofils gebildet ist.
  • Eine weitere, bevorzugte Ausgestaltung des zweischaligen Fassadenelements ist dadurch gekennzeichnet, dass das Kapillarelement eine Nut im Umfassungsrahmenprofil und ein Abschlussprofil aus Kunststoff umfasst, wobei zwischen dem Abschlussprofil und mindestens einer inneren Wandung der Nut ein Hohlraum gebildet ist. Die Nut kann dabei im Subrahmenprofil oder im Hauptrahmenprofil in Teilbereichen oder im gesamten Umfang des jeweiligen Rahmenprofils vorgesehen sein.
  • Das Abschlussprofil besteht dabei aus einem thermoplastischen Material oder aber aus einem Elastomer mit erhöhter Dampfdichtigkeit. Bevorzugte Materialien sind EPDM, Butyl, Polytetrafluorethylen oder Polyvinylidenfluorid.
  • Alternativ können offenzellige Schaumkörper als Ventil und Sieb im Zusammenwirken mit dem Trockenmittel im Bereich der Trocknungseinrichtung vorgesehen sein.
  • Eine weitere alternative Gestaltung der mindestens einen Druckausgleichseinrichtung besteht darin, dass dieses als Kapillarrohr im Hauptrahmenprofil in Teilbereichen oder im gesamten Umfang des Hauptrahmenprofils integriert vorgesehen ist.
  • Eine weitere alternative Gestaltung der mindestens einen Druckausgleichseinrichtung ist als Kapillarrohr, das im Subrahmenprofil des Fassadenelements in Teilbereichen oder im gesamten Umfang des Subrahmenprofils integriert ist.
  • Vorzugsweise umfasst die mindestens eine Druckausgleichseinrichtung ein elastisches Profil mit mindestens einer Öffnung, welche Teil eines luftleitenden Verbindungspfades zwischen dem Fassadenzwischenraum und der Außenatmosphäre darstellt.
  • Schließlich ist es möglich, beim Vorsehen eines Kapillarrohrs die Öffnung zum Außenklima hochliegend, d.h. mit der Eintrittsöffnung oben zum Außenklima in einem senkrechten Rahmenteil des Umfassungsrahmenprofils, zu gestalten.
  • Als Werkstoff des Kapillarrohrs kann beim Vorsehen eines kurzen Kapillarrohrs Kunststoff oder Metall eingesetzt werden. Bevorzugt ist Aluminium. Beim Vorsehen eines langen Kapillarrohrs kann dieses aus Glas, Metall, bevorzugt Aluminium, oder aus Kunststoff, bevorzugt aus einem Elastomer wie Polyethylen, Polypropylen, Polyvinylidenfluorid oder Ethylen-Propylen-Copolymer bestehen.
  • Nach einem zweiten Aspekt der Erfindung umfasst das zweischaliges Fassadenelement ein flächiges Außenverglasungselement und ein flächiges Innenverglasungselement, die voneinander beabstandet in einem wärmegedämmten Umfassungsrahmenprofil gehalten sind; mindestens eine Druckausgleichseinrichtung, die in luftleitender Verbindung zur Außenatmosphäre und zu einem Fassadenzwischenraum steht, der zwischen dem Außenverglasungselement und dem Innenverglasungselement vorgesehen ist; und mindestens eine mit Trockenmittel befüllbare Trocknungseinrichtung, die entweder im Fassadenzwischenraum angeordnet oder in dem Umfassungsrahmenprofil integriert ist und in luftleitender Verbindung zum Fassadenzwischenraum steht, wobei das zweischalige Fassadenelement weiterhin Mittel zur Verringerung der Dampfdiffusion umfasst, wobei die Mittel zur Verringerung der Dampfdiffusion eine Nassverglasung umfassen und/oder mindestens einen Dämmsteg zur thermischen Trennung im wärmgedämmten Umfassungsrahmenprofil aus einem Kunststoff mit hoher Dampfdichtigkeit und/oder mit einem Beschichtungsmaterial mit hoher Dampfdichtigkeit umfassen. Die Druckausgleichseinrichtung und die Trocknungseinrichtung sind so angeordnet und dimensioniert, dass sie sich nicht in einen transparenten Bereich des flächigen Außenverglasungselements und des flächigen Innenverglasungselements erstrecken. Die Trocknungseinrichtung ist gestaltet, um einen Austausch des Trockenmittels zu ermöglichen und umfasst bevorzugt eine Austauschöffnung, die gestaltet ist, um den Austausch des Trockenmittels in Richtung auf die Raumseite zu ermöglichen.
  • Beispiele für einen Dämmsteg mit einem Beschichtungsmaterial mit hoher Dampfdichtigkeit sind die Applikation einer dampfdichten oder aber hoch dampfbremsenden Folie aus dünnem Edelstahl auf dem Dämmsteg aus Kunststoff oder die Applikation einer metallbedampften Kunststofffolie oder Butylfolie auf dem Dämmsteg aus Kunststoff oder aber das Vorsehen eines Dämmstegs aus einem metallbedampften Kunststoff.
  • Beim Vorsehen eines Dämmstegs aus einem Kunststoff mit hoher Dampfdichtigkeit kann vorteilhafterweise Polyvinylidenflourid als Material für den Dämmsteg eingesetzt werden.
  • Auch bei einem zweischaligen Fassadenelement nach dem zweiten Aspekt kann die mindestens eine Druckausgleichseinrichtung ein Kapillarelement umfassen.
  • Ebenso kann bei einem zweischaligen Fassadenelement nach dem zweiten Aspekt eine Öffnung in einer der mindestens einen Druckausgleichseinrichtung in Strömungsverbindung stehen mit einer zweiten Öffnung in einen mit Trockenmittel befüllbaren Hohlraum einer der mindestens einen Trocknungseinrichtung.
  • Vorzugsweise umfasst die Trocknungseinrichtung einen mit Trockenmittel befüllbaren Trockenmittelbehälter, der am Umfassungsrahmenprofil lösbar befestigbar ist.
  • Nach einem dritten Aspekt der Erfindung umfasst das zweischalige Fassadenelement ein flächiges Außenverglasungselement und ein flächiges Innenverglasungselement, die voneinander beabstandet in einem wärmegedämmten Umfassungsrahmenprofil gehalten sind; mindestens eine Druckausgleichseinrichtung, die in luftleitender Verbindung zur Außenatmosphäre und zu einem Fassadenzwischenraum steht, der zwischen dem Außenverglasungselement und dem Innenverglasungselement vorgesehen ist, und eine Luftführungseinrichtung umfasst; wobei der Druckverlust des Luftstroms beim Druckausgleich durch die Länge und/oder die Querschnittsabmessungen der Luftführungseinrichtung und/oder die Anzahl an Umlenkungen eines durch die Luftführungseinrichtung strömenden Luftstroms bestimmbar und vorzugsweise einstellbar ist; mindestens eine mit einer Trockenmittelschüttung befüllbare Trocknungseinrichtung, die in dem Umfassungsrahmenprofil integriert ist, wobei die mindestens eine Trocknungseinrichtung mindestens eine erste Öffnung umfasst, die in luftleitender Verbindung zum Fassadenzwischenraum steht; die mindestens eine Druckausgleichseinrichtung und die mindestens eine Trocknungseinrichtung so angeordnet und dimensioniert sind, dass sie sich nicht in einen transparenten Bereich des Fassadenelements erstrecken, und die Trocknungseinrichtung gestaltet ist, um einen Austausch des Trockenmittels zu ermöglichen und bevorzugt eine Austauschöffnung umfasst, die gestaltet ist, um den Austausch des Trockenmittels in Richtung auf die Raumseite zu ermöglichen.
  • Auch bei dieser, alternativen Gestaltung ist keine externe Technik erforderlich, um einen Druckausgleich im System herzustellen. Der Druckausgleich im System kann feuchteeintrittsbremsend, wasserdicht, staubdicht und/oder druckamplitudendämpfend ausgestaltet sein. Darüber hinaus wird durch das Vorsehen der Druckausgleichseinrichtung sowie der Trocknungseinrichtung eine Tauwasservermeidung im System erzielt. Die Druckausgleichseinrichtung kann im Umfassungsrahmenprofil vollständig integriert sein, so dass keine sichtbaren Überstände oder Luftleitungen außerhalb des Fassadenelements erforderlich sind.
  • Bei dieser alternativen Gestaltung des erfindungsgemäßen Fassadenelements wird auf die Verwendung eines gesondert vorgesehenen Kapillarrohrs verzichtet und anstelle dessen der den Druckausgleich herstellende Luftstrom durch eine Luftführungseinrichtung geleitet, über deren Geometrie der als Strömungsverlust auftretende Druckverlust der ein- oder ausströmenden Luft bestimmbar ist.
  • Nach einem vierten Aspekt der Erfindung umfasst das zweischalige Fassadenelement ein flächiges Außenverglasungselement und ein flächiges Innenverglasungselement, die voneinander beabstandet in einem wärmegedämmten Umfassungsrahmenprofil gehalten sind; mindestens eine Druckausgleichseinrichtung, die eine Luftführungseinrichtung umfasst und in luftleitender Verbindung zur Außenatmosphäre und zu einem Fassadenzwischenraum steht, der zwischen dem Außenverglasungselement und dem Innenverglasungselement vorgesehen ist; und mindestens eine mit einer Trockenmittelschüttung befüllbare Trocknungseinrichtung, die in dem Umfassungsrahmenprofil integriert ist, wobei die mindestens eine Trocknungseinrichtung mindestens eine erste Öffnung umfasst, die in luftleitender Verbindung zum Fassadenzwischenraum steht, sowie mindestens eine zweite Öffnung, die in luftleitender Verbindung zur Luftführungseinrichtung steht; der Druckverlust des Luftstroms beim Druckausgleich durch den Druckverlust bei der Durchströmung der mindestens einen Trocknungseinrichtung sowie der mindestens einen Luftführungseinrichtung bestimmbar und vorzugsweise einstellbar ist; die mindestens eine Druckausgleichseinrichtung und die mindestens eine Trocknungseinrichtung so angeordnet und dimensioniert sind, dass sie sich nicht in einen transparenten Bereich des Fassadenelements erstrecken; und die mindestens eine Trocknungseinrichtung gestaltet ist, um einen Austausch des Trockenmittels zu ermöglichen, und bevorzugt eine Austauschöffnung umfasst, die gestaltet ist, um den Austausch des Trockenmittels in Richtung auf die Raumseite zu ermöglichen.
  • Bei dieser alternativen Gestaltung des erfindungsgemäßen Fassadenelements wird auf die Verwendung eines gesondert vorgesehenen Kapillarrohrs verzichtet und anstelle dessen der den Druckausgleich herstellende Luftstrom durch die Trocknungseinrichtung geleitet und dabei die Wegstrecke des Luftstroms durch die Trockenmittelschüttung so gewählt, dass einerseits der Druckverlust nicht zu hoch ist, um einen Luftaustausch bei auftretenden Druckunterschieden zu verhindern, andererseits aber der Luftstrom bei Druckausgleich die Trockenmittelschüttung auf einer möglichst langen Wegstrecke durchströmt, um das Trockenmittel möglichst gleichmäßig zu beladen und damit die Standzeit bis zum Austausch des Trockenmittels zu erhöhen. Unter luftleitender Verbindung ist entweder eine direkte Verbindung oder aber eine indirekte Verbindung zu verstehen Bei einer direkten Verbindung mündet beispielsweise die erste Öffnung direkt in den Fassadenzwischenraum und/oder die zweite Öffnung verbindet das Innere der Trocknungseinrichtung mit der Luftführungseinrichtung. Bei einer indirekten Verbindung können weitere Elemente zwischengeschaltet sein, wie beispielsweise ein Filter. Da die Kosten für Kapillarrohre die Herstellkosten von zweischaligen Fassadenelementen erhöhen und zusätzliche Kosten für die Wartung und Instandhaltung von Kapillarrohren anfallen, stellen Fassadenelemente ohne die Verwendung von Kapillarrohren eine erhebliche Vereinfachung und Verbesserung dar, wodurch aber bei einer verstärkten Durchströmung des Trockenmittels die Beladungsgeschwindigkeit des Trockenmittels steigt und bei einer vorgegebenen Masse an Trockenmittel der Zeitabstand zum Austausch des feuchtebeladenen Trockenmittels sinkt. Daher sind in diesem Fall zusätzliche Maßnahmen sinnvoll, um den Feuchteeintrag zu verringern.
  • Vorzugsweise ist der Trockenmittelverbrauch in Abhängigkeit von einem Standort des in eine Fassade integrierten Fassadenelements, der Art von Trockenmittel sowie Konstruktionsmerkmalen des Fassadenelements bestimmbar.
  • Wesentlich bei einer Gestaltung des zweischaligen Fassadenelements ohne Kapillarrohr ist allerdings, dass eine ausreichende Trockenmittelmenge vorgesehen ist, die bei einer vorgewählten Austauschzeit des Trockenmittels Tauwasser im Fassadenzwischenraum unterbindet, was nur möglich ist, wenn bei einem gegebenen Standort und den dort herrschenden klimatischen Bedingungen das Trockenmittel spätestens bei vollständiger Beladung mit Wasser ausgetauscht wird.
  • Die Berechnung der erforderlichen Trockenmittelmenge erfolgt somit bevorzugt in Abhängigkeit von dem Standort des Gebäudes, in welchem das erfindungsgemäße zweischalige Fassadenelement verbaut werden soll, sowie der Orientierung der Fassade, die einen wesentlichen Einfluss auf die solare Einstrahlung hat. Weltweit lassen sich die an einem Standort herrschenden Wetterdaten mit Hilfe der Software Meteonorm stündlich generieren. Die Wetterdaten umfassen dabei die Außentemperatur, den Luftdruck, die relative Luftfeuchtigkeit sowie die Intensität der solaren Einstrahlung. Die Temperatur im Scheibenzwischenraum ist abhängig vom Scheibenaufbau, den energetischen Absorptionsgraden der Einzelscheiben; der Verwendung eines Sonnenschutzes, der solaren Einstrahlung und den Lufttemperaturen innen und außen im Gebäude und kann in Anlehnung an EN 166612:2019, Anhang C für jede Stunde des Jahres aus den Wetterdaten berechnet werden.
  • Auf diese Weise lässt sich über einen definierten Zeitraum, z.B. über ein Jahr, die Menge an Wasserdampf abschätzen, die mit dem Volumenstrom an Luft, die beim Druckausgleich von der Außenatmosphäre in den Fassadenzwischenraum strömt. Diese Menge an Wasserdampf muss vom Trockenmittel adsorbiert werden. Soll das Trockenmittel z.B. alle 10 Jahre ausgetauscht werden, muss eine ausreichende Menge an Trockenmittel vorgesehen sein, damit die im Zeitraum von 10 Jahren beim Druckausgleich in den Fassadenraum mit dem Luftstrom transportierte Menge an Wasserdampf im Trockenmittel adsorbiert werden kann, bis dieses wieder gegen regeneriertes oder frisches, unbeladenes Trockenmittel ausgetauscht wird. Die maximale Menge an Wasserdampf, die von einem bestimmten Trockenmittel, z.B. einem bestimmten Zeolithmaterial, pro Masseneinheit aufgenommen werden kann, ist für individuelle Trockenmittel bekannt. Ein geeignetes Berechnungsmodell wurde vom ift Rosenheim entwickelt.
  • Wenn die oben beschriebenen Berechnungen für einen bestimmten Standort einmal durchgeführt wurden, kann bei abweichenden Aufbauten des zweischaligen Fassadenelements, beispielsweise bei einem geringeren Volumen des Fassadenzwischenraums bei abgeänderten Abmessungen des Fassadenelements, die erforderliche Menge an Trockenmittel einfach aus den bereits bestehenden Berechnungen abgeleitet werden, weil der beim Druckausgleich in den Fassadenzwischenraum strömende Luftstrom und damit auch der vom Trockenmittel aufzunehmende Wasserdampf proportional zum Volumen des Fassadenzwischenraums ist.
  • Alternativ kann auch ein Standard-Fassadenelement bereitgestellt werden, und über die obige Berechnung die je nach Standort und Orientierung des Bestimmungsorts des zweischaligen Fassadenelements resultierende Austauschzeit des Trockenmittels angepasst werden.
  • Wenn der Druckausgleich zu gering wird, kann es erforderlich werden, den Druckverlust/Strömungswiderstand zu begrenzen. Bei der Luftführung durch die Trockenmittelfüllung hat das notwendigerweise zur Folge, dass der Weg durch die Trockenmittelfüllung zu verkürzen ist. Neben den schon beschriebenen Ausführungsformen mit mindestens einer zweiten Öffnung in den Trockenmittelbehälter auf halber Höhe kann es auch notwendig werden, den Weg durch das Trockenmittel durch Reduzierung der Füllhöhe der Trockenmittelfüllung zu begrenzen. Das hat dann den erwünschten Effekt geringerer Druckverluste/geringerer Strömungsverluste, gleichzeitig aber den Effekt größerer wetterbedingter Luftmengen - und damit größerer Feuchtemengen - und damit größerer Trockenmittelverbrauche. Das ist solange akzeptabel, solange der gewollt reduzierte Trockenmittelvorrat eine angemessene Lebensdauer bis zur vollständigen Beladung des Trockenmittelvorrats besitzt und somit ein vorgegebenes Tauschintervall des Trockenmittelvorrats eingehalten werden kann. Die Reduzierung des Wegs durch das Trockenmittel über eine Reduzierung der Füllhöhe des Trockenmittels löst folglich zwei Effekte aus. Grundlage dieser Optimierungsaufgabe ist erneut die Messung des Volumenstroms durch das Trockenmittel in Abhängigkeit vom aufgeprägten Druck und damit auch des Druckverlusts. Diese Daten sind dann wie vorangehend beschrieben wurde in wetterabhängige Werte für den Trockenmittelverbrauch umzusetzen.
  • Nach einer bevorzugten Ausführungsform umfasst die Luftführungseinrichtung Umlenkelemente, durch die ein gewundener Strömungsweg der Luft durch die Luftführungseinrichtung erzeugbar ist. Ein Strömungsweg mit mehreren Umlenkungen zur Richtungsänderung der durchströmenden Luft dient einerseits zur Erhöhung des Druckverlusts, andererseits können die Umlenkungen auch als Trägheitsabscheider für im Luftstrom mitgeführten Staub dienen, der auf diese Weise nicht in den Fassadenzwischenraum gelangt. Der Vorteil dieser Maßnahme liegt auch darin, dass auf den Einbau von Filtern, Sieben oder Membranen im Strömungspfad des Luftstroms verzichtet werden kann.
  • Vorzugsweise ist die mindestens eine Trocknungseinrichtung in Hohlräume der in Einbauposition vertikal angeordneten Elemente des Umfassungsrahmenprofils integriert. Auf diese Weise wird der zur Verfügung stehende Bauraum in optimaler Weise genutzt und sichergestellt, dass auch bei einer Blickrichtung, die von einer Richtung senkrecht zur Hauptebene der Glaselemente abweicht, die Trocknungseinrichtung nicht sichtbar ist.
  • Ergänzend kann nach einer bevorzugten Ausgestaltung die mindestens eine Trocknungseinrichtung sowohl in Hohlräume der in Einbauposition vertikal angeordneten Elemente des Umfassungsrahmenprofils als auch in Hohlräume der in Einbauposition horizontal angeordneten Elemente des Umfassungsrahmenprofils integriert sein.
  • Auch bei den Gestaltungen nach dem dritten Aspekt sowie dem vierten Aspekt der Erfindung kann das zweischalige Fassadenelement weiterhin Mittel zur Verringerung der Dampfdiffusion umfassen, wobei die Mittel zur Verringerung der Dampfdiffusion eine Nassverglasung umfassen und/oder mindestens einen Dämmsteg zur thermischen Trennung im wärmgedämmten Umfassungsrahmenprofil aus einem Kunststoff mit hoher Dampfdichtigkeit und/oder mit einem Beschichtungsmaterial mit hoher Dampfdichtigkeit.
  • Bei allen alternativen Gestaltungen des erfindungsgemäßen, zweischaligen Fassadenelements kann vorteilhafterweise eine auf dem Umfassungsrahmenprofil befestigbare Abdeckung vorgesehen sein, die vorzugsweise auf das Subrahmenprofil aufgeschraubt oder aufgeklipst ist.
  • Vorzugsweise besteht diese auf dem Umfassungsrahmenprofil befestigbare Abdeckung aus einem Kunststoff mit Adsorptionsvermögen für Wasser. Auf diese Weise wird ein Teil des beim Einströmen von Luft von der Außenatmosphäre in den Fassadenzwischenraum mitgeführten Wasserdampfs im Kunststoffmaterial der Abdeckung adsorbiert und bei Ausströmen getrockneter Luft aus dem Fassadenzwischenraum in die Außenatmosphäre wieder aus dem Material der Abdeckung desorbiert. Somit verringert sich der Feuchteeintrag in den Fassadenzwischenraum, wodurch die Standzeit des Trockenmittels erhöht wird.
  • Alle alternativen Lösungen nach der Erfindung gewährleisten eine Tauwasservermeidung im System über einen verlängerten Zeitraum. Das Vorsehen von Mitteln zur Verringerung der Dampfdiffusion verzögert ebenso das Eintreten von Wasserdampf in den Fassadenzwischenraum wie das Vorsehen eines Kapillarelements, das Teil der Druckausgleichsvorrichtung sein kann und gleichzeitig die Funktion besitzt, den Eintritt von Wasserdampf in den Fassadenzwischenraum zu verringern. Beide Maßnahmen, die einzeln oder in Kombination miteinander verwirklicht werden können, verlängern den Zeitraum bis zur Erschöpfung der Adsorbentien in der Trocknungseinrichtung, da die Adsorbentien eine definierte Menge an Wasser binden können, bevor diese ausgetauscht und entweder unter verringertem Druck oder erhöhter Temperatur regeneriert werden müssen.
  • Das autarke, druckentspannte Fassadenelement nach der Erfindung ist ein zweischaliges Fassadenelement, das bevorzugt als Teilelement einer Elementfassade aufgebaut ist. Das Grundkonzept besteht darin, ein zweischaliges Fassadenelement mit einer Druckausgleichseinrichtung und einer Trocknungseinrichtung zu kombinieren.
  • Die Druckausgleichseinrichtungen besitzen bevorzugt mindestens eine der nachfolgenden Eigenschaften: dampfdiffusionsbremsend, wasserdicht, staubdicht sowie druckamplitudendämpfend. Um diese Eigenschaften einzeln oder in Kombinationen erzielen zu können, sind verschiedene Ausgestaltungen möglich.
  • Nach einer bevorzugten Ausführungsform der Erfindung umfasst das Umfassungsrahmenprofil ein Hauptrahmenprofil sowie ein Subrahmenprofil, wobei das Hauptrahmenprofil und das Subrahmenprofil über Verbindungsmittel lösbar miteinander verbunden sind, und das Subrahmenprofil das Außenverglasungselement hält. Auf diese Weise lässt sich das zweischalige Fassadenelement umfassend die mindestens eine Druckausgleichseinrichtung sowie die mindestens eine mit Trockenmittel befüllbare Trocknungseinrichtung im montierten Zustand öffnen, um beispielsweise den Sonnenschutz montieren zu können.
  • Die Abdichtung zwischen dem Hauptrahmenprofil und dem Subrahmenprofil ist dabei vorzugsweise dampfdicht auszuführen. Unter "dampfdicht" ist dabei zu verstehen, dass das Dichtungsmaterial eine nur vernachlässigbar geringe Dampfdurchlässigkeit aufweist. Ein Beispiel für ein geeignetes Material ist thermoplastisches Butyl.
  • Vorzugsweise ist die mindestens eine Druckausgleichseinrichtung im Hauptrahmenprofil oder im Subrahmenprofil angeordnet.
  • Vorzugsweise umfasst das zweischaliges Fassadenelement mindestens eine Sonnenschutzreinrichtung im Fassadenzwischenraum zwischen dem Außenverglasungselement und dem Innenverglasungselement. Die Sonnenschutzeinrichtung ist dabei vorzugsweise adaptiv ausgestaltet.
  • Das Vorsehen einer Sonnenschutzeinrichtung dient dazu, die Behaglichkeit im Sommer, aber auch im Winter bei tiefstehender Sonne zu erhöhen. Darüber hinaus lässt sich die Wärmedämmung beeinflussen, indem der Anteil der Strahlung und Konvektion beeinflusst wird.
  • Nach einer bevorzugten Ausführungsform umfasst das Innenverglasungselement entweder Mehrscheibenisolierglas, bevorzugt mit zwei oder drei Glasscheiben, oder Vakuumisolierglas. Das Mehrscheibenisolierglas innen weist bevorzugt U-Werte von 0,5 bis 1,4 W/(m2K) auf. Alternativ kann Vakuumisolierglas mit U-Werten von 0,7 W/(m2K) und weniger vorgesehen sein. Die Wärmedämmung des Umfassungsrahmenprofils befindet sich im Bereich der wärmegedämmten Innenverglasung. Bauphysikalisch wichtig ist es, dass der Umfassungsrahmen im Bereich der Außenverglasung nicht wärmegedämmt ist, da ansonsten vermehrt Tauwasserprobleme auf der Position 2 der Außenverglasung auftreten würden.
  • Weiterhin bevorzugt ist das Außenverglasungselement als Monoglas, bevorzugt als Verbundglas oder Verbundsicherheitsglas, vorgesehen und umfasst bevorzugt mindestens eine Funktionsschicht, besonders bevorzugt eine wellenlängenselektive Beschichtung.
  • Alternativ oder ergänzend können auch weitere Funktionsschichten vorgesehen sein, wie Sonnen- und/oder Wärmeschutzschichten. Als Beispiele für eine wellenlängenselektive Beschichtung sind eine L-E Schicht oder eine schaltbare Schicht zu nennen. Insbesondere vorteilhaft ist es, Sonnen- und/oder Wärmeschutzschichten an den fachüblich als Position 1 und/oder 2 bezeichneten Flächen vorzusehen. Sofern Funktionsschichten auf Position 1 oder 2 vorgesehen sind, können diese ganzflächig oder in Teilflächen aufgebracht sein. In gleicher Weise ist es aber auch möglich, Zweifach-Mehrscheibenisolierglas außen vorzusehen und gegebenenfalls ebenfalls mit Funktionsschichten, insbesondere Sonnen- und/oder Wärmeschutzschichten zu versehen.
  • Die zweischalige Glaskonstruktion weist ein umfassendes, wärmegedämmtes Umfassungsrahmenprofil aus Metall auf. Bevorzugt ist das Umfassungsrahmenprofil aus Aluminium, das besonders bevorzugt mit Hohlkammern versehen sein kann. Das Umfassungsrahmenprofil sollte weitgehend dampfdicht sein. Dazu sind unterschiedliche Maßnahmen einzeln oder in Kombination möglich, insbesondere Maßnahmen an den Dämmstegen. Die Dämmstege sind vorzugsweise umlaufend mit einer auf sie aufgebrachte dampfdichte oder hoch dampfbremsende Folie versehen, die zur Verbesserung der Dampfdichtigkeit des gesamten Umfassungsrahmenprofils auch um die Gehrungsecken des Umfassungsrahmenprofils geführt sind, um die Gehrungseckenverklebung gleichzeitig abzudichten. Durch eine Versiegelung mit geeigneten Dichtstoffen kann der Bereich der Verglasungseinbindung abgedichtet werden.
  • Vorzugsweise ist zwischen der mindestens einen Druckausgleichseinrichtung und dem Fassadenzwischenraum ein luftleitender Verbindungspfad vorgesehen, der vorzugsweise ein Filterelement umfasst.
  • Vorzugsweise steht eine Öffnung in einer der mindestens einen Druckausgleichseinrichtung in Strömungsverbindung mit einer zweiten Öffnung in einen mit Trockenmittel befüllbaren Hohlraum einer der mindestens einen Trocknungseinrichtung.
  • Vorzugsweise umfasst die Trocknungseinrichtung einen mit Trockenmittel befüllbaren Hohlraum, der integraler Bestandteil des Umfassungsrahmenprofils ist und eine Austauschöffnung aufweist, die gestaltet ist, um einen Austausch des Trockenmittels zu ermöglichen.
  • Vorzugsweise umfasst die Druckausgleichseinrichtung einen Hohlraum, der eine Öffnung in den Fassadenzwischenraum umfasst, und der Hohlraum ist mit Trockenmittel befüllt.
  • Vorzugsweise umfasst die mindestens eine Druckausgleichseinrichtung ein elastisches Profil mit mindestens einer Öffnung, die in einem luftleitenden Verbindungspfad zwischen dem Fassadenzwischenraum und der Außenatmosphäre angeordnet ist.
  • Nach einer bevorzugten Ausführungsform der Erfindung umfasst das zweischalige Fassadenelement ein opakes Innenelement und ein Außenelement, die voneinander beabstandet gehalten sind. Das Außenelement kann ebenfalls opak sein. Nach einer bevorzugten Ausgestaltung ist das Außenelement allerdings transparent.
  • Dabei können nach einer vorteilhaften Ausgestaltung das opake Innenelement und das transparente Außenelement in einem weiteren Umfassungsrahmenprofil gehalten sein. Diese Ausführungsform stellt eine sogenannte "Shadow Box" dar.
  • Die optional vorgesehenen, opaken Elemente sind vorzugsweise im Brüstungsbereich angeordnet und können als Glaselemente oder als Panel- oder Blechelemente ausgestaltet sein. Im Fall des Vorsehens der transparenten Elemente als Glaselement kann dies als Monoglas, Verbundglas, Verbundsicherheitsglas oder Zweifach-Mehrfachisolierglas ausgestaltet sein und entweder außen oder innen beschichtet oder im Körper gefärbt sein, um die gewünschten Eigenschaften zu erzeugen. Im Falle des Vorsehens eines Panels- oder Blechelements ist bevorzugt innenseitig eine Wärmedämmung vorgesehen.
  • Beim Vorsehen eines raumseitigen Paneels können der transparente Bereich und opake Bereich in dem Umfassungsrahmenprofil angeordnet sein. Alternativ können aber auch zwei separate Umfassungsrahmenprofile vorgesehen sein, wobei das Umfassungsrahmenprofil für den transparenten Bereich und ein weiteres Umfassungsrahmenprofil für den opaken Bereich vorgesehen sind. Die Wärmedämmung des weiteren Umfassungsrahmenprofils befindet sich dabei bevorzugt im Bereich der Glasscheiben oder des Panels. Beim Vorsehen von Blechelementen ist eine innenseitige Wärmedämmung bevorzugt.
  • Vorzugsweise sind alle Komponenten zugänglich und auf diese Weise wartbar, reparierbar und auch austauschbar. Dies gilt auch für einen optional vorgesehenen Sonnenschutz. Besonders bevorzugt ist es allerdings auch, die Fassadenelemente so zu gestalten, dass in gleicher Weise auch die Druckausgleichseinrichtung sowie die Glasscheiben zugänglich und damit austauschbar sind.
  • Die Druckausgleichseinrichtung mit Feuchtezutrittsbegrenzung kann bedarfsgerecht gestaltet werden und somit an örtliche Klimagegebenheiten wie Sonneneinstrahlung, Außenlufttemperatur und Windlasten angepasst werden.
  • Die Trocknungseinrichtung besitzt den Zweck, eine zusätzliche Sicherheit zu der feuchtezutrittsbegrenzenden Druckausgleichseinrichtung herzustellen. Das dabei vorgesehene Trockenmittelvolumen orientiert sich an der Adsorptionskapazität des Trockenmittels, d.h. der pro Volumeneinheit an Trockenmittel maximal aufnehmbaren Menge an Wasserdampf. Darüber hinaus ist aber auch das Trockenmittelvolumen davon abhängig, wie wirksam die Feuchtezutrittsbegrenzung durch die Druckausgleichseinrichtung ausgestaltet ist. Schließlich sind auch die örtlichen Klimabedingungen sowie das eingeschlossene Volumen des Fassadenzwischenraums zu berücksichtigen.
  • Die Druckausgleichseinrichtung und die Trocknungseinrichtung können dabei zusammenwirken. Falls kein Zusammenwirken zwischen Druckausgleichseinrichtung und Trocknungseinrichtung gewünscht ist, kann die Druckausgleichseinrichtung mit direkter Verbindung zum Fassadenzwischenraum im Subrahmenprofil oder im Hauptrahmenprofil in einer eigenen Hohlkammer neben der Trocknungseinrichtung angeordnet werden. Alternativ ist es auch möglich, die Druckausgleichseinrichtung im Hauptrahmenprofil oder Subrahmenprofil ohne Strömungsverbindung mit der Trocknungseinrichtung anzuordnen.
  • Wenn ein Zusammenwirken von Druckausgleichseinrichtung und Trocknungseinrichtung erfolgen soll, kann dies entweder ohne direkten physischen Kontakt zwischen Druckausgleichseinrichtung und Trocknungseinrichtung, oder mit direktem physischen Kontakt zwischen Druckausgleichseinrichtung und Trocknungseinrichtung erfolgen. Falls kein physischer Kontakt zwischen Druckausgleichseinrichtung und Trocknungseinrichtung vorliegen soll, kann dies sowohl mit als auch ohne Rohrleitung erfolgen. Wenn direkter physischer Kontakt zwischen Druckausgleichseinrichtung und Trocknungseinrichtung vorgesehen werden soll, kann die Druckausgleichseinrichtung entweder im Hauptrahmenprofil oder Subrahmenprofil oder aber im Trockenmittelbehälter eingebaut sein.
  • Die Druckausgleichseinrichtung kann im horizontalen Umfassungsrahmenprofil und/oder im vertikalen Umfassungsrahmenprofil angeordnet werden. Wenn die Druckausgleichseinrichtung im horizontalen Umfassungsrahmenprofil angeordnet ist, so befindet sie sich entweder außen in dem Subrahmenprofil unten und/oder oben und/oder seitlich. Die Anzahl der Druckausgleichseinrichtungen ist dabei je nach Bedarf vorzusehen. Wenn mehrere Druckausgleichseinrichtungen vorgesehen werden, sind diese bevorzugt versetzt zueinander angeordnet.
  • Bei einer Anordnung der Druckausgleichseinrichtung im vertikalen Hauptrahmenprofil einseitig und/oder beidseitig gilt dies ebenso. Es können ein oder mehrere Druckausgleichseinrichtungen vorgesehen sein und im Falle des Vorsehens mehrerer Druckausgleichseinrichtungen sind diese bevorzugt versetzt zueinander angeordnet.
  • Wenn die Druckausgleichseinrichtungen sowohl im horizontalen Hauptrahmenprofil als auch im vertikalen Rahmenprofil angeordnet sind, werden diese entweder unten horizontal plus einseitig oder beidseitig vertikal oder aber oben horizontal plus einseitig oder beidseitig vertikal angeordnet. Alternativ können die Druckausgleichseinrichtung aber auch allseitig im Hauptrahmenprofil angeordnet sein.
  • Die Anzahl der Druckausgleichseinrichtungen richtet sich nach dem Bedarf. Hierbei sind die wesentlichen Einflussgrößen das Volumen des Fassadenzwischenraums sowie die lokalen Klimagegebenheiten unter Beachtung der Orientierung der Fassade.
  • Die Trocknungseinrichtungen mit Trockenmittel umfassen eine feuchteadsorbierende Substanz zur Unterstützung der Tauwasservermeidung. Beispiele sind Silicagel oder Adsorbentien auf Zeolithbasis. Die Trocknungseinrichtungen befinden sich in Hohlkammern der Rahmenprofile oder getrennten Behältern. Sofern sich die Trocknungseinrichtungen mit Trockenmittel in Hohlkammern der Rahmenprofile befinden, können diese in einer Hohlkammer im Subrahmenprofil und/oder Hauptrahmenprofil in Teilbereichen oder aber allen Hohlkammern angeordnet sein. Sofern die Trocknungseinrichtungen in getrennten Behältern vorgesehen sind, können diese entweder im Fassadenzwischenraum zwischen den Glaselementen außen und innen angeordnet sein und dabei an Teilbereichen oder an allen Teilen des Umfassungsrahmens angebracht sein. Alternativ können Trocknungseinrichtungen mit getrennten Behältern auch im Brüstungsbereich der Fassadenelemente angeordnet und luftleitend mit dem Fassadenzwischenraum verbunden sein.
  • Ein Austausch der Trockenmittel kann auf unterschiedliche Weise erfolgen. Einerseits können die Trockenmittel von innen oder außen aus den Hohlräumen der Rahmenprofile abgesaugt werden und durch neues Material oder nach einer Regeneration nach einer entsprechenden Aufbereitung durch Desorption von Wasserdampf wieder durch Wiedereinblasen eingeführt werden. Wenn die Öffnung unten angeordnet ist, ist es möglich, das erschöpfte Trockenmittel unter Einfluss der Schwerkraft abzulassen. Besonders bevorzugt wird das Trockenmittel durch wiederverschließbare Öffnungen in den Rahmenprofilen ausgetauscht. Schließlich ist es auch möglich, Behälter mit erschöpftem Trockenmittel komplett auszutauschen, indem der Behälter nach dem Ausbau oder einem Öffnen von Glasscheiben, um den Fassadenzwischenraum zugänglich zu machen, entnommen und entweder unmittelbar durch einen neuen Behälter ersetzt wird, oder aber der Behälter nach einer Regeneration des darin enthaltenen Trockenmittels wiedereingesetzt wird.
  • Bevorzugt wird das Außenverglasungselement entfernt, jedoch ist es bei einer entsprechenden Gestaltung des Umfassungsrahmenprofils auch möglich, das Innenverglasungselement auszubauen, beispielsweise indem eine innenliegende Glasleiste entfernt wird.
  • Um den Fassadenzwischenraum von außen und/oder innen zugänglich zu machen, bestehen unterschiedliche Möglichkeiten. Zum einen kann das innere Glaselement und/oder äußere Glaselement ausgebaut werden. Alternativ könnte es je nach Fassadenkonstruktion auch möglich sein, entweder das innere oder äußere Glaselement zu öffnen. Dazu könnte beispielsweise ein Drehfenster vorgesehen sein, das durch Entriegeln eines Drehbeschlags geöffnet werden kann. Die Zugänglichkeit der Glaselemente ist gegeben, nachdem die Glasleisten oder Pressleisten entfernt wurden.
  • Sofern die äußere Glasscheibe nicht durch eine Glasleiste gehalten ist, sondern fest mit dem Subrahmenprofil verbunden ist, kann das äußere Glaselement durch Lösen der Schraubverbindung, die das Subrahmenprofil mit dem Hauptrahmenprofil verschraubt, entnommen werden. Sofern eine Einhängetechnik zur Verbindung des Subrahmenprofils mit dem Hauptrahmenprofil verwendet wird, kann das Subrahmenprofil aus dem Hauptrahmenprofil ausgehängt werden.
  • Eine Zugänglichkeit zum Fassadenzwischenraum ist vorteilhaft, um schadhafte Glasscheiben austauschen zu können, und um Komponenten und Oberflächen des Fassadenzwischenraums reinigen zu können. Ein weiterer Zweck besteht darin, Komponenten im Fassadenzwischenraum zu warten, instandsetzen oder austauschen zu können. Dazu gehören insbesondere ein optional vorgesehener Sonnenschutz, eine Trocknungseinrichtung sowie Komponenten der Druckausgleichseinrichtungen.
  • Das erfindungsgemäße Fassadenelement ist weitgehend dampfdicht. Dafür sind verschiedene Maßnahmen vorgesehen. Einerseits kann eine Nassverglasung der Glasscheiben innen und außen mit dem Umfassungsrahmen vorgesehen sein. Gegebenenfalls kann dabei eine Dichtstoffzwischenlage aus Butyl zur Verbesserung der Dampfdichtigkeit vorgesehen sein. Eine weitere Maßnahme zum Herstellen einer hohen Dampfdichtigkeit besteht darin, dampfdiffusionsreduzierende Maßnahmen an einem oder beiden Dämmstegen zur thermischen Trennung vorzusehen. Dabei können beispielsweise dünne Edelstahlfolien mit einer Dicke von nicht mehr als 0,050mm oder metallbedampfte Kunststofffolien zum Einsatz kommen. Alternativ können für die Dämmstege aber auch Kunststoffe mit hoher Dampfdichtigkeit eingesetzt werden wie Butyl oder Polyvinylidenfluorid oder aber ein derartiger Kunststoff an der Oberfläche der Dämmstege durch Koextrusion aufgebracht sein. Ebenso können die Dämmstege vollständig aus einem Kunststoff hoher Dampfdichtigkeit wie beispielsweise Polyvinylidenfluorid hergestellt sein. Eine weitere alternative oder ergänzende Maßnahme zur Verbesserung der Dampfdichtigkeit besteht darin, Durchleitungen abzudichten und/oder Rahmeneckverbinder zusätzlich abzudichten. Dabei können wieder Versiegelungen oder aufgeklebte Folien wie im Zusammenhang mit den Dämmstegen beschrieben eingesetzt werden. Dazu kann eine dampdiffusionsbremsende Folie umlaufend auf den innenliegenden oder außenliegenden Dämmsteg nach der Herstellung des Umfassungsrahmenprofils aufgebracht werden, wodurch die Gehrungsecken ebenfalls abgedichtet sind.
  • Die am meisten bevorzugte Maßnahme zur Erhöhung der Dampfdichtigkeit ist das Aufbringen einer Butylschicht auf die Dämmstege, bevorzugt von außen.
  • Nach einer bevorzugten Ausführungsform des zweischaligen Fassadenelements sind die Druckausgleichseinrichtung und die Trocknungseinrichtung im Fassadenzwischenraum durch Öffnen oder Entfernen des Außenverglasungselements oder eines opaken Außenelements oder des Innenverglasungselements oder eines opaken Brüstungselements zugänglich. Mit anderen Worten ist durch Entfernen oder Öffnen des fassadenaußenseitig oder fassadeninnenseitig angeordneten Verglasungselements oder Paneels der Zugang zum Fassadenzwischenraum möglich, um die Funktion der Druckausgleichseinrichtung und Trocknungseinrichtung zu überprüfen und einer Wartung zugänglich zu machen. So kann es erforderlich sein, die Druckausgleichseinrichtung durch Durchblasen zu säubern. Ebenso können die Druckausgleichseinrichtung und Trocknungseinrichtung repariert und ausgetauscht werden. So kann beispielsweise eine Kapillarrohr ausgetauscht werden oder aber ein Abdeckprofil, das gemeinsam mit einer Nut im Umfassungsrahmenprofil das Kapillarelement bildet. Ebenso kann beim Vorsehen eines separaten Trockenmittelbehälters dieser komplett ausgetauscht werden, oder aber das in der Trocknungseinrichtung befindliche Trockenmittel ausgetauscht werden.
  • Zusammenfassend gibt es somit folgende grundsätzliche Varianten:
    • Variante 1:
      • Verwendung eines Kapillarrohrs
      • Der Druckverlust des Luftstroms beim Druckausgleich ist der Druckverlust beim Durchströmen des Kapillarrohrs.
      • Das Trockenmittel steht direkt in Wechselwirkung mit dem Fassadenzwischenraum und wird nicht von der Luftführung zum Druckausgleich durchströmt.
      • Das Trockenmittel ist durch Zugang von außen, bevorzugt von der Raumseite, austauschbar.
      • Es werden optional weitere Maßnahmen ergriffen, um die Dampfdichtigkeit des Fassadenelements zu erhöhen.
    • Variante 2:
      • Verwendung eines Kapillarrohrs
      • Das Trockenmittel steht direkt in Wechselwirkung mit dem Kapillarrohr und wird von der Luftführung zum Druckausgleich durchströmt.
      • Der gesamte Druckverlust des Luftstroms beim Druckausgleich addiert sich aus dem Druckverlust beim Durchströmen des Kapillarrohrs und dem Druckverlust beim Durchströmen des Trockenmittels.
      • Das Trockenmittel ist durch Zugang von außen, bevorzugt von der Raumseite, austauschbar.
      • Es werden optional weitere Maßnahmen ergriffen, um die Dampfdichtigkeit des Fassadenelements zu erhöhen.
    • Variante 3:
      • Es ist kein Kapillarrohr vorgesehen.
      • Vorsehen einer Luftführungseinrichtung, die durch das Trockenmittel geführt ist.
      • Der gesamte Druckverlust des Luftstroms beim Druckausgleich addiert sich aus dem Druckverlust beim Durchströmen der Luftführungseinrichtung und dem Druckverlust beim Durchströmen des Trockenmittels.
      • Das Trockenmittel ist durch Zugang von außen, bevorzugt von der Raumseite, austauschbar.
      • Es werden optional weitere Maßnahmen ergriffen, um die Dampfdichtigkeit des Fassadenelements zu erhöhen.
    • Variante 4:
      • Es ist kein Kapillarrohr vorgesehen.
      • Der Druckausgleich erfolgt über eine Luftführungseinrichtung ohne das Durchströmen des Trockenmittels.
      • Der gesamte Druckverlust des Luftstroms beim Druckausgleich ist der Druckverlust beim Durchströmen der Luftführungseinrichtung.
      • Das Trockenmittel steht in Luftaustausch mit dem Fassadenzwischenraum.
      • Das Trockenmittel ist durch Zugang von außen, bevorzugt von der Raumseite, austauschbar.
      • Es werden optional weitere Maßnahmen ergriffen, um die Dampfdichtigkeit des Fassadenelements zu erhöhen.
  • Welche der Varianten bevorzugt ist richtet sich nach der Vorgabe eines gewünschten Austauschintervalls für das Trockenmittel, das aus den klimatischen Bedingungen am Bestimmungsort, das Volumen an Trockenmittel, die Wasseraufnahmekapazität des Trockenmittels sowie Konstruktionsmerkmalen des Fassadenelements abschätzbar ist.
  • Kurze Beschreibung der Zeichnungen
  • In den nachfolgenden Figuren wird die Erfindung rein beispielhaft anhand verschiedener Ausführungsformen beschrieben. Darin zeigen:
  • Fig. 1
    einen Vertikalschnitt durch den grundsätzlichen Aufbau eines Fassadenelements gemäß einer ersten Variante;
    Fig. 2
    einen Vertikalschnitt durch den grundsätzlichen Aufbau eines Fassadenelements gemäß einer zweiten Variante;
    Fig. 3
    einen Vertikalschnitt durch ein Fassadenelement gemäß einer ersten Ausführungsform der Erfindung;
    Fig. 4
    einen Vertikalschnitt durch ein Fassadenelement gemäß einer zweiten Ausführungsform der Erfindung;
    Fig. 5
    einen Vertikalschnitt durch ein Fassadenelement gemäß einer dritten Ausführungsform der Erfindung;
    Fig. 6
    einen Vertikalschnitt durch ein Fassadenelement gemäß einer vierten Ausführungsform der Erfindung;
    Fig. 7
    einen Vertikalschnitt durch ein Fassadenelement gemäß einer fünften Ausführungsform der Erfindung;
    Fig. 8
    einen Vertikalschnitt durch ein Fassadenelement gemäß einer sechsten Ausführungsform der Erfindung;
    Fig. 9
    einen Vertikalschnitt durch ein Fassadenelement gemäß einer siebten Ausführungsform der Erfindung;
    Fig. 10
    einen Vertikalschnitt durch ein Fassadenelement gemäß einer achten Ausführungsform der Erfindung;
    Fig. 11
    einen Vertikalschnitt durch ein Fassadenelement gemäß einer neunten Ausführungsform der Erfindung;
    Fig. 12
    eine Ausgestaltung einer Druckausgleichseinrichtung gemäß einer Ausführungsform der Erfindung;
    Fig. 13
    eine Ausgestaltung einer Druckausgleichseinrichtung gemäß einer weiteren Ausführungsform der Erfindung;
    Fig. 14
    eine erste Ausführungsform einer Druckausgleichseinrichtung mit einem kurzen Kapillarrohr;
    Fig. 15
    eine weitere Ausführungsform mit einer Ausgestaltung einer Druckausgleichseinrichtung in direkter Wechselwirkung mit einer Trocknungseinrichtung;
    Fig. 16
    eine weitere Ausführungsform mit einer weiteren Ausgestaltung einer Druckausgleichseinrichtung mit einem langen Kapillarrohr in direkter Wechselwirkung mit einer Trocknungseinrichtung;
    Fig. 17
    einen Vertikalschnitt durch ein Fassadenelement gemäß einer zwölften Ausführungsform der Erfindung, welche eine Variante der Ausführungsform nach Fig. 16 mit einem langen Kapillarrohr darstellt;
    Fig. 18
    einen Vertikalschnitt durch ein Fassadenelement gemäß einer 13. Ausführungsform der Erfindung, welche eine Variante der Ausführungsform nach Fig. 16 mit einem langen Kapillarrohr darstellt;
    Fig. 19
    einen Vertikalschnitt durch ein Fassadenelement gemäß einer 14. Ausführungsform der Erfindung, welche eine Variante der Ausführungsform nach Fig. 16 mit einem langen Kapillarrohr darstellt;
    Fig. 20
    einen Vertikalschnitt durch ein Fassadenelement gemäß einer 15. Ausführungsform der Erfindung, welche eine Variante der Ausführungsform nach Fig. 16 mit einem langen Kapillarrohr darstellt;
    Fig. 21
    einen Vertikalschnitt durch ein Fassadenelement gemäß einer 16. Ausführungsform der Erfindung, welche eine Variante der Ausführungsform nach Fig. 16 mit einem langen Kapillarrohr darstellt;
    Fig. 22
    einen Vertikalschnitt durch ein Fassadenelement gemäß einer 17. Ausführungsform der Erfindung, welche eine Variante der Ausführungsform nach Fig. 16 mit einem langen Kapillarrohr darstellt;
    Fig. 23
    eine zweite Ausführungsform einer Druckausgleichseinrichtung mit einem kurzen Kapillarrohr;
    Fig. 24
    eine dritte Ausführungsform einer Druckausgleichseinrichtung mit einem kurzen Kapillarrohr;
    Fig. 25
    eine vierte Ausführungsform einer Druckausgleichseinrichtung mit einem kurzen Kapillarrohr;
    Fig. 26
    einen Vertikalschnitt durch ein Fassadenelement gemäß einer 18. Ausführungsform der Erfindung;
    Fig. 27
    eine Detailansicht zu Fig. 26;
    Fig. 28(a)bis Fig. 28(r)
    mögliche Anordnungen von Druckausgleichs- und Trocknungseinrichtungen in einem erfindungsgemäßen Fassadenelement;
    Fig. 29
    einen Vertikalschnitt durch das Subrahmenprofil eines Fassadenelements in einer Schnittebene parallel zur Glasebene des Fassadenelements nach einer 19. Ausführungsform der Erfindung;
    Fig. 30
    einen Vertikalschnitt durch das Subrahmenprofil eines Fassadenelements in einer Schnittebene parallel zur Glasebene des Fassadenelements nach einer 20. Ausführungsform der Erfindung;
    Fig. 31
    einen Vertikalschnitt durch das Subrahmenprofil eines Fassadenelements in einer Schnittebene parallel zur Glasebene des Fassadenelements nach einer 21. Ausführungsform der Erfindung;
    Fig. 32
    einen Vertikalschnitt durch das Subrahmenprofil eines Fassadenelements in einer Schnittebene parallel zur Glasebene des Fassadenelements nach einer 22. Ausführungsform der Erfindung;
    Fig. 33a
    einen Vertikalschnitt durch das Subrahmenprofil in einer Schnittebene parallel zur Glasebene des Fassadenelements nach einer 23. Ausführungsform der Erfindung;
    Fig. 33b
    eine vertikale Schnittansicht in einer Schnittebene senkrecht zur Glasebene der 23. Ausführungsform der Erfindung;
    Fig. 34a
    einen Vertikalschnitt durch das Subrahmenprofil in einer Schnittebene parallel zur Glasebene des Fassadenelements nach einer 24. Ausführungsform der Erfindung;
    Fig. 34b
    eine vertikale Schnittansicht in einer Schnittebene senkrecht zur Glasebene der 24. Ausführungsform der Erfindung;
    Fig. 35a
    einen Vertikalschnitt durch das Subrahmenprofil in einer Schnittebene parallel zur Glasebene des Fassadenelements nach einer 25. Ausführungsform der Erfindung;
    Fig. 35b
    eine vertikale Schnittansicht in einer Schnittebene senkrecht zur Glasebene der 25. Ausführungsform der Erfindung;
    Fig. 35c
    eine Variante der Ausführungsform nach Fig. 35b in einer ersten Betriebsposition;
    Fig. 35d
    eine Variante der Ausführungsform nach Fig. 35b in einer zweiten Betriebsposition;
    Fig. 36a
    einen Vertikalschnitt durch das Subrahmenprofil in einer Schnittebene parallel zur Glasebene des Fassadenelements nach einer 26. Ausführungsform der Erfindung;
    Fig. 36b
    eine vertikale Schnittansicht in einer Schnittebene senkrecht zur Glasebene der 26. Ausführungsform der Erfindung;
    Fig. 37a
    einen Vertikalschnitt durch das Subrahmenprofil in einer Schnittebene parallel zur Glasebene des Fassadenelements nach einer 27. Ausführungsform der Erfindung;
    Fig. 37b
    eine vertikale Schnittansicht in einer Schnittebene senkrecht zur Glasebene der 27. Ausführungsform der Erfindung;
    Fig. 38a
    einen Vertikalschnitt durch das Subrahmenprofil in einer Schnittebene parallel zur Glasebene des Fassadenelements nach einer 28. Ausführungsform der Erfindung;
    Fig. 38b
    eine vertikale Schnittansicht in einer Schnittebene senkrecht zur Glasebene der 28. Ausführungsform der Erfindung;
    Fig. 39a
    einen Vertikalschnitt durch das Subrahmenprofil in einer Schnittebene parallel zur Glasebene des Fassadenelements nach einer 29. Ausführungsform der Erfindung;
    Fig. 39b
    eine vertikale Schnittansicht in einer Schnittebene senkrecht zur Glasebene der 29. Ausführungsform der Erfindung;
    Fig. 40a
    einen Vertikalschnitt durch das Subrahmenprofil in einer Schnittebene parallel zur Glasebene des Fassadenelements nach einer 30. Ausführungsform der Erfindung;
    Fig. 40b
    eine vertikale Schnittansicht in einer Schnittebene senkrecht zur Glasebene der 30. Ausführungsform der Erfindung;
    Fig. 41a
    einen Vertikalschnitt durch das Subrahmenprofil in einer Schnittebene parallel zur Glasebene des Fassadenelements nach einer 31. Ausführungsform der Erfindung;
    Fig. 41b
    eine vertikale Schnittansicht in einer Schnittebene senkrecht zur Glasebene der 31. Ausführungsform der Erfindung;
    Fig. 42a
    einen Vertikalschnitt durch das Subrahmenprofil in einer Schnittebene parallel zur Glasebene des Fassadenelements nach einer 32. Ausführungsform der Erfindung;
    Fig. 42b
    eine vertikale Schnittansicht in einer Schnittebene senkrecht zur Glasebene der 32. Ausführungsform der Erfindung;
    Fig. 43a
    einen Vertikalschnitt durch das Subrahmenprofil in einer Schnittebene parallel zur Glasebene des Fassadenelements nach einer 33. Ausführungsform der Erfindung;
    Fig. 43b
    eine vertikale Schnittansicht in einer Schnittebene senkrecht zur Glasebene der 33. Ausführungsform der Erfindung;
    Fig. 44a
    eine vertikale Schnittansicht in einer Schnittebene senkrecht zur Glasebene der 34. Ausführungsform der Erfindung und
    Fig. 44b
    eine Detailansicht in einem weiteren Schnitt der Ausführungsform nach Fig. 44a.
    Wege zur Ausführung der Erfindung
  • In den nachfolgenden Figuren werden jeweils dieselben Bauelemente mit denselben Referenzziffern bezeichnet. In den nachfolgenden Ausführungsformen werden jeweils nur die spezifischen Unterschiede und Abweichungen zu vorhergehenden Ausführungsformen erläutert, während der grundsätzliche Aufbau des Fassadenelements in den Ausführungsformen nach Fig. 1 und 2 beschrieben wird.
  • In sämtlichen Figuren bezeichnen die mit "DA" bezeichneten Pfeile die Richtung der Luftbewegung beim Druckausgleich, und die mit "TR" bezeichneten Pfeile die Richtung des Luftaustausches getrockneter Luft von der Trocknungseinrichtung in den Fassadenzwischenraum bei der Trocknung. Stimmen diese Richtungen überein, wird auch die Bezeichnung "DA + TR" verwendet. Die Pfeile "AT" zeigen die Richtung an, in der das Trockenmittel ausgetauscht werden kann oder, bei Verwendung eines separaten Trockenmittelbehälters, dieser ausgetauscht werden kann.
  • In Fig. 1 ist ein Vertikalschnitt durch ein Fassadenelement 1 ohne Druckausgleichseinrichtung und Trocknungseinrichtung dargestellt. Fassadenaußenseitig ist ein äußeres Glaselement 2 angeordnet, das im vorliegenden Ausführungsbeispiel zu einer Glasleiste 10 außen über Außendichtungsstreifen 33 abgedichtet ist. Zur Innenseite und insbesondere in Richtung auf den Fassadeninnenraum 3 zu wird das äußere Glaselement 2 mittels der Innendichtung 25 gehalten. Die Innendichtung 25 ist dabei in einem Subrahmenprofil 7 eingeschoben. Zwischen Subrahmenprofil 7 und den Stirnseiten des äußeren Glaselements 2 befindet sich eine Versiegelung 27. Am Subrahmenprofil 7 ist auch eine äußere Dehnfugendichtung 30 eingesteckt. Diese dichtet gemeinsam mit der fassadeninnenseitig angeordneten, inneren Dehnfugendichtung 28 sowie mittleren Dehnfugendichtung 29 die Dehnfuge 78 zwischen den vertikal benachbarten Glaselementen ab.
  • Das Subrahmenprofil 7 ist mit Hilfe von Verbindungsschrauben 9 mit dem Hauptrahmenprofil 6 des Umfassungsrahmenprofils 11 verschraubt. Zwischen dem Hauptrahmenprofil 6 und dem Subrahmenprofil 7 ist eine Dichtung 8 vorgesehen, die vorzugsweise aus thermoplastischem Butylbesteht oder aus einem anderen geeigneten Material, das eine hohe Dampfdichtigkeit besitzt. Das Hauptrahmenprofil 6 ist in der dargestellten Ausführungsform als Verbundprofil mit Hauptrahmenprofilschnitten 6a und 6b gebildet, die über Dämmstege 24 aus Kunststoff mit erhöhter Dampfdichtigkeit thermisch entkoppelt sind. Im Fassadenzwischenraum 3 ist ein Sonnenschutz 5 angeordnet, der im vorliegenden Ausführungsbeispiel schematisch dargestellt ist.
  • Fassadeninnenseitig ist ein als Mehrfachisolierglas vorgesehenes, inneres Glaselement 4 vorgesehen, das über eine Innendichtung oder innere Versiegelung 31 zum Anschlag hin sowie zum Fassadenzwischenraum 3 hin von einer Dichtung 32 gehalten wird, die von einer Glasleiste 20 im Fassadenzwischenraum gehalten wird. Dabei erhöht das Vorsehen einer inneren Versiegelung im Vergleich zu einer Dichtung die Dampfdichtigkeit. Eine reduzierte Dampfdichtigkeit ist nachteilig, da diese zu einer rascheren Erschöpfung des Trockenmittelbehälters führt und somit die Austauschintervalle für das Trockenmittel verkürzt.
  • Fig. 1 stellt somit eine erste Variante des Grundaufbaus des Fassadenelements dar, der, wie in den Ausführungsformen beginnend ab Fig. 3 dargestellt wird, mit einer Druckausgleichseinrichtung und Trocknungseinrichtung versehen ist.
  • Fig. 2 stellt eine Variante der Ausführungsform nach Fig. 1 dar, bei der das Fassadenelement keine fassadenaußenseitig angeordnete Glasleiste 10 aufweist und entsprechend auch keine Außendichtungsstreifen 33, die mit dem Entfall der äußeren Glasleiste 10 ebenfalls entfallen. Die äußere Glasscheibe 2 wird mittels der Versiegelung 26 am Subrahmenprofil 7 befestigt. Ansonsten entspricht der Aufbau nach Fig. 2 demjenigen nach Fig. 1, so dass auf die Erläuterung in Bezug auf die Fig. 1 verwiesen werden kann.
  • In der Fig. 3 ist aufbauend auf der in Fig. 1 bereits dargestellten Grundkonstruktion des Fassadenelements 1 eine erste alternative Gestaltung einer Druckausgleichseinrichtung sowie Trocknungseinrichtung gezeigt. Bei der Ausführungsform nach Fig. 3 sind dabei sowohl die Druckausgleichseinrichtung wie auch die Trocknungseinrichtung im Subrahmenprofil 7 angeordnet. Dazu befindet sich in einer Hohlkammer 80 des Subrahmenprofils 7 Trockenmittel 14. Ein Austausch des Trockenmittels 14 kann hierbei in vertikaler Richtung in Pfeilrichtung AT zwischen der Dehnfuge 78 und der mit Trockenmittel 14 gefüllten Hohlkammer 80 im Subrahmenprofil 7 durchgeführt werden. In Richtung auf den Fassadenzwischenraum 3 kann sowohl Druckausgleich als auch, gemeinsam mit dem Druckausgleich, der Transport feuchtebeladener Luft aus dem Fassadenzwischenraum 3 in die mit Trockenmittel 14 gefüllte Hohlkammer 80 erfolgen, wo der Wasserdampf an geeigneten Adsorbenzien, wie beispielsweise Zeolithen, adsorbiert wird und auf diese Weise die Innenatmosphäre im Fassadenzwischenraum 3 bei einem stabilen, geringen Feuchtegrad gehalten wird.
  • In Fig. 3 zusätzlich mit Referenzziffer 56 angedeutet sind Maßnahmen zum Vorsehen einer Dampfbremse im Bereich der Dämmstege 24, beispielsweise in Form einer Auswahl geeigneter Werkstoffe der Dämmstege.
  • Die Ausführungsform nach Fig. 4 unterscheidet sich von derjenigen nach Fig. 3 darin, dass die im Subrahmenprofil 7 vorgesehene Hohlkammer 80 in Verbindung mit einem langen oder kurzen Kapillarrohr mit Verbindung zur Außenatmosphäre und zum Fassadenzwischenraum dem Druckausgleich dient, wie anhand der Pfeile DA dargestellt ist. Das Hauptrahmenprofil 6 weist eine Hohlkammer 13 auf, die mit Trockenmittel 14 gefüllt ist. Darüber hinaus sind Öffnungen 15 zwischen der Hohlkammer 13 im Hauptrahmenprofil 6 und dem Fassadenzwischenraum 3 vorgesehen, die einen Luftaustausch ermöglichen, so dass mit Feuchte beladene Luft in die Hohlkammer 13 eindringen kann, woraufhin das darin befindliche Trockenmittel 14 die Feuchte adsorbiert. Der Austausch von feuchtebeladenem Trockenmittel erfolgt in der dargestellten Pfeilrichtung AT zur Fassadeninnenseite hin. Im Unterschied zur Ausführungsform nach Fig. 3, bei der die Druckausgleichseinrichtung und Trocknungseinrichtung im Subrahmenprofil 7 in direkter Wechselwirkung zueinander stehen, besteht bei der Ausführungsform nach Fig. 4 keine direkte Wechselwirkung zwischen Druckausgleichseinrichtung und Trocknungseinrichtung, da die Druckausgleichseinrichtung im Subrahmenprofil 7 angeordnet ist, während sich die Trocknungseinrichtung im Hauptrahmenprofil 6 befindet.
  • Die in Fig. 4 dargestellte Richtung "AT" für den Austausch von mit Wasserdampf beladenem Trockenmittel gegen ein frisch regeneriertes Trockenmittel wird nur pauschal angegeben. Eine mögliche technische Umsetzung des Austausches wird anhand der Fig. 26 und Fig. 27 erläutert werden.
  • Die Ausführungsform nach Fig. 5 ist ähnlich zu derjenigen nach Fig. 4, unterscheidet sich aber dahingehend, dass zwischen der Hohlkammer 80 im Subrahmenprofil 7, das zum Zwecke des Druckausgleichs mit der Dehnfuge 78 in Luftaustausch steht (Pfeilrichtung DA) über ein Druckausgleichsteilsystem 17 mit der Hohlkammer 13 im Hauptrahmenprofil 6 in luftleitender Verbindung steht. Der Druckausgleich zum Fassadenzwischenraum 3 erfolgt somit von der Dehnfuge 78 in die Hohlkammer 80 des Subrahmenprofils 7 und durch das Druckausgleichsteilsystem 17 in die mit Trockenmittel 14 gefüllte Hohlkammer 13 und durch die Öffnungen 15, während bei der Ausführungsform nach Fig. 4 die Hohlkammer 80 im Subrahmenprofil 7 sowohl eine den Druckausgleich ermöglichende, luftleitende Verbindung zur Dehnfuge 78 als auch zum Fassadenzwischenraum 3 besitzt.
  • Somit stehen bei der Ausführungsform nach Fig. 5 die Druckausgleichseinrichtung sowie die Trocknungseinrichtung in direkter Wechselwirkung zueinander, weil die Druckausgleichseinrichtung im Subrahmenprofil 7 und zwischen dem Subrahmenprofil 7 und dem Hauptrahmenprofil 6 angeordnet ist, und die Trocknungseinrichtung im Hauptrahmenprofil 6 angeordnet ist.
  • Eine weitere Variante ist in Fig. 6 dargestellt. Hier sind sowohl die Druckausgleichseinrichtung wie auch die Trocknungseinrichtung in der Hohlkammer 13 im Hauptrahmenprofil 6 integriert. Diese Lösung hat somit Ähnlichkeit zu derjenigen nach Fig. 3, was die direkte Wechselwirkung der Druckausgleichseinrichtung mit der Trocknungseinrichtung betrifft. Im Unterschied zur Ausführungsform nach Fig. 3 befindet sich jedoch das kombinierte System in einem Hohlraum 13 im Hauptrahmenprofil 6, während sich bei der Ausführungsform nach Fig. 3 das Trockenmittel 14 in einem Hohlraum 80 im Subrahmenprofil 7 befindet. Dazu sind Druckausgleichsöffnungen 18 zwischen der Hohlkammer 13 im Hauptrahmenprofil 6 und der Dehnfuge 78 vorgesehen, sowie Öffnungen 15 zwischen der Hohlkammer 13 und dem Fassadenzwischenraum 3, so dass ein Druckausgleich zwischen dem Fassadenzwischenraum 3 und dem Dehnfugenbereich möglich ist. Die Luftströmung zwischen der Dehnfuge und der Trocknungseinrichtung erfolgt durch einen Schaumblock 22 hindurch, dessen Kern offenzellig ist.
  • Bei den Ausgestaltungen nach den Fig. 3 bis 6 ist jeweils die mit Trockenmittel gefüllte Hohlkammer 13 so angeordnet, dass sich diese nicht im transparenten Sichtbereich des Fassadenelements 1 befindet und somit nicht als störend wahrgenommen werden kann.
  • Auch bei der Ausführungsform nach Fig. 7 befindet sich die Trocknungseinrichtung im Bereich des Hauptrahmenprofils 6. Im Unterschied zu den vorhergehenden Ausführungsformen umfasst die Trocknungseinrichtung jedoch einen separaten Trockenmittelbehälter 19, der im Fassadenzwischenraum 3 am Hauptrahmenprofil 6 befestigbar ist. Ein Austausch des Trockenmittelbehälters 19 erfolgt, indem dieser in den Pfeilrichtung AT vollständig entnommen und mit regeneriertem Trockenmittel wieder am Hauptrahmenprofil 6 angebracht wird. Der Trockenmittelbehälter 19 weist Öffnungen 15 auf, die den mit Trockenmittel 14 befüllten inneren Hohlraum 69 des Trockenmittelbehälters 19 mit dem Fassadenzwischenraum 3 verbinden, so dass Luftaustausch erfolgen kann und Wasserdampf im Fassadenzwischenraum 3 durch das im Trockenmittelbehälter 19 befindliche Trockenmittel 14 gebunden werden kann. Die Druckausgleichseinrichtung ist bei der Ausführungsform nach Fig. 7 in gleicher Weise wie nach der Ausführungsform nach Fig. 4 gestaltet. Der Druckausgleich erfolgt dadurch, dass ein Hohlraum 80 des Subrahmenprofils 7 sowohl in Luftverbindung mit der Dehnfuge 78 wie auch dem Fassadenzwischenraum 3 steht. Somit sind die Druckausgleichseinrichtung im Subrahmenprofil 7 sowie die Trocknungseinrichtung in Form eines austauschbaren Trockenmittelbehälters 19 ohne direkte Wechselwirkung miteinander vorgesehen. Der Trockenmittelbehälter 19 weist eine Formgebung auf, die sowohl bei einer Blickrichtung von der Fassadeninnenseite nach außen wie auch von der Fassadenaußenseite nach innen nicht störend in Erscheinung tritt.
  • Die Ausführungsform nach Fig. 8 vereint die Grundideen der Ausführungsformen nach Fig. 6 und 7. Wie bei der Ausgestaltung nach Fig. 7 ist ein separater Trockenmittelbehälter 19 vorgesehen, der allerdings im Unterschied zu der Ausführungsform nach Fig. 7 nicht nur als Trocknungseinrichtung dient, sondern in den gleichzeitig auch eine Druckausgleichseinrichtung integriert ist. Zu diesem Zweck sind neben den anhand der Fig. 7 bereits beschriebenen Öffnungen 15, welche eine Luftverbindung zwischen dem Innenraum des Trockenmittelbehälters 19 und dem Fassadenzwischenraum 3 herstellen, zusätzlich Druckausgleichsöffnungen 18 vorgesehen, die auch im Falle der wie in Fig. 8 dargestellten Zwischenschaltung eines Hohlraums 13 im Hauptrahmenprofil 6 eine Strömungsverbindung zwischen der Dehnfuge 78 und dem mit Trockenmittel 14 befüllten inneren Hohlraum 69 des Trockenmittelbehälters 19 herstellen, so dass ein Druckausgleich zwischen der Dehnfuge 78 und dem Fassadenzwischenraum 3 über die Druckausgleichsöffnungen 18, den inneren Hohlraum 69 des Trockenmittelbehälters 19 sowie die Öffnungen 15 erfolgen kann. Sowohl die Druckausgleichseinrichtung im Hauptrahmenprofil 6 und im Trockenmittelbehälter 19 wie auch die Trocknungseinrichtung als austauschbarer Behälter im Fassadenzwischenraum 3 stehen somit in direkter Wechselwirkung zueinander. Die Druckausgleichseinrichtung und die Trocknungseinrichtung sind so angeordnet und dimensioniert, dass sie sich nicht in den transparenten Bereich 12 des Fassadenelements erstrecken. Der transparente Bereich erstreckt sich dabei in der Zeichenebene der Fig. 8 von der Innendichtung 32 der Innenverglasung 4 nach oben, weil nur in diesem Bereich bei einer Blickrichtung senkrecht zur Hauptebene der Außenverglasung 2 durch das Fassadenelement sowohl die Außenverglasung 2 als auch Innenverglasung 4 transparent sind, sofern die Sonnenschutzeinrichtung 5 nicht in Betriebsposition ist.
  • Die Ausführungsform nach Fig. 9 entspricht im Wesentlichen derjenigen nach Fig. 3. Auf den Dämmstegen 24 zur thermischen Trennung der Teilprofile 6a und 6b des Hauptrahmenprofils 6 sind Folien aufgebracht. Dabei ist mit Referenzziffer 23a eine Folie aus sehr dünnem Edelstahl mit einer Stärke von nicht mehr als 0,050mm oder aus metallbedampfter Kunststofffolie oder aus Butylfolie am Dämmsteg an einer zur Dehnfuge gerichteten Fläche vorgesehen. Mit Referenzziffer 23b wird eine Folie wie oben beschrieben jedoch am Dämmsteg 24 an einer von der Dehnfuge abgewandten Seite bezeichnet. Diese Maßnahmen dienen dazu, die Dampfdichtigkeit der Dämmstege weiter zu erhöhen und somit das Eindiffundieren von Wasserdampf in den Fassadenzwischenraum 3 zu verringern.
  • Bei der Ausführungsform nach Fig. 10 ist ein opakes Element dargestellt, das in Form eines Brüstungspanels 58 in der Ebene des inneren Glaselements 4 sowie einer opaken Beschichtung 60 in der fachüblich als Position 2 bezeichneten Ebene auf der äußeren Glasscheibe vorgesehen ist. Bei dieser Ausgestaltung bietet es sich an, einen separat vorgesehenen Trockenmittelbehälter 19 im opaken Bereich anzuordnen. Bei der Ausführungsform nach Fig. 10 befindet sich der Trockenmittelbehälter 19 als austauschbarer Behälter im Bereich der Brüstung vor dem Brüstungspanel 58. Der Trockenmittelbehälter 19 stellt zudem Teil der Druckausgleichseinrichtung dar mit Öffnungen 15 in den den Trockenmittelbehälter 19 umgebenden Fassadenzwischenraum 3. Zwischen den beiden in vertikaler Richtung angrenzenden Fassadenelementen besteht ein Luftleitelement 21, das einen inneren Hohlraum besitzt und den inneren Hohlraum 69 des Trockenmittelbehälters im Brüstungspaneel 58 mit dem Fassadenzwischenraum 3 des angrenzenden Paneels verbindet. Dazu ist das Luftleitelement, das beispielsweise ein Rohr oder Schlauch sein kann, durch Einschuböffnungen 18a im Hauptprofil 6 eingeschoben und an der Außenseite des Einschubelements 21 in einer abdichtenden Weise in den Einschuböffnungen 18a fixiert. Auf diese Weise wird der Druckausgleich im Fassadenzwischenraum 3 des angrenzenden Fassadenelements erzielt und gleichzeitig einströmende Luft entfeuchtet.
  • Die Ausführungsform nach Fig. 11 lehnt sich eng an diejenige nach Fig. 10 an. Im Unterschied zu der Ausführungsform nach Fig. 10 ist jedoch im opaken Bereich ein Innenraum im Bereich des Rahmens des Hauptrahmenprofil 6 vollständig mit Dämmstoff 62 gefüllt. Aus diesem Grund nimmt auch der Trockenmittelbehälter 19 die gesamte Tiefe des Hauptrahmenprofils 6 ein und die Öffnungen 15 sind stirnseitig im Trockenmittelbehälter 19 vorgesehen, um über den nicht mit Dämmstoff gefüllten Fassadenzwischenraum 3 im Bereich des Subrahmenprofils 7 den Druckausgleich dorthin herstellen zu können. Über das Luftleitelement 21 wird, wie in der Ausführungsform nach Fig. 10, der Druckausgleich zum Fassadenzwischenraum 3 des vertikal angrenzenden Fassadenelements und die Trocknung der einströmenden Luft durchgeführt.
  • Anhand der obigen Beispiele wird deutlich, dass es in Bezug auf die Druckausgleichseinrichtung zwei grundlegende Konzepte gibt. Zum einen kann eine direkte Luftverbindung mit dem Fassadenzwischenraum hergestellt werden, so dass keine direkte Wechselwirkung mit der Trocknungseinrichtung besteht. Zum anderen kann aber auch eine Verbindung zum Fassadenzwischenraum über und durch die Trocknungseinrichtung hindurch erfolgen, so dass eine direkte Wechselwirkung zwischen der Druckausgleichseinrichtung und der Trocknungseinrichtung besteht.
  • Die Ausführungsform nach Fig. 12 zeigt im Detail die Druckausgleichseinrichtung, die in das Subrahmenprofil 7 integriert ist. Dazu ist ein langes Kapillarrohr 35 im Subrahmenprofil 7 eingeklipst. Das lange Kapillarrohr kann bevorzugt aus Metall oder Kunststoff bestehen. Als Kunststoffe können Thermoplaste oder Elastomere verwendet werden. Am Eingang des Kapillarrohrs (im Schnitt nicht dargestellt), der mit der Außenatmosphäre in luftleitender Verbindung steht, kann ein Filterelement oder eine Membran angeordnet sein. In gleicher Weise kann alternativ oder ergänzend ein Filter oder eine Membran am Ausgang des Kapillarrohrs (im Schnitt nicht dargestellt) vorgesehen sein. Der Ausgang des Kapillarrohr steht in luftleitender Verbindung mit der Hohlkammer 80 im Subrahmenprofil 7. Die Hohlkammer 80 im Subrahmenprofil 7 ist mit einem Filter 36 in einer Druckausgleichsöffnung zum Fassadenzwischenraum 3 versehen. Auf diese Weise kann über den Hohlraum 80 und das Kapillarrohr 35 in Pfeilrichtung DA ein Druckausgleich zwischen Fassadenzwischenraum 3 und dem Außenklima über den Hohlraum 80, über eine luftleitende Verbindung zwischen dem Hohlraum 80 und einer Austrittsöffnung des langen Kapillarrohrs 35 sowie die luftleitende Verbindung zwischen der Eintrittsöffnung des langen Kapillarrohrs 35 und der Außenatmosphäre erfolgen. Die Ausgestaltung nach Fig. 12 ist ein Beispiel für diejenigen Ausgestaltungen, bei denen keine direkte Wechselwirkung zwischen der Druckausgleichseinrichtung und der Trocknungseinrichtung besteht.
  • Die Ausführungsform nach Fig. 19 ist ähnlich zu derjenigen nach Fig. 12, verwendet allerdings anstelle des langen Kapillarrohrs nach Fig. 12 ein Kunststoffprofil 66 aus einem Thermoplast oder Elastomer. Dazu ist im Bereich der Hohlkammer 80 im Subrahmenprofil 7 eine Nut 53 geformt, und das Kunststoffprofil 66 in die Nut 53 eingesteckt, um die Nut 53 mit Abstand zur Nut abzudichten. Im Kunststoffprofil 66 aus einem Thermoplast oder Elastomer ist eine Nut 51 mit rechteckigem Querschnitt vorgesehen, die das Kapillarelement darstellt. Ebenso befindet sich in der Nut 53 eine Öffnung 68, die den Hohlraum 80 mit der Nut 51 verbindet. Über einen Spalt im Kunststoffprofil 66 ist die Nut mit der Außenatmosphäre verbunden. Der gewünschte Druckausgleich erfolgt über das Kunststoffprofil 66, die Hohlkammer 80 und in Pfeilrichtung DA den Filter 36 in der Druckausgleichsöffnung 34 der Hohlkammer 80 des Subrahmenprofils 7.
  • Die Ausführungsform nach Fig. 20 unterscheidet sich von derjenigen nach Fig. 19 lediglich dadurch, dass ein Abstand vorgesehen ist, der einen Spalt 55 zwischen der Nut 53 im Subrahmenprofil 7 und dem in die Nut 53 eingesteckten Kunststoffprofil 66 bildet. Das Kunststoffprofil 66 zur Abdichtung der Nut 53 besteht aus einem Thermoplast oder Elastomer und muss sowohl ausreichend anpassungsfähig als auch ausreichend dampfdicht sein, was bei der Auswahl eines geeigneten Kunststoffprofils zu berücksichtigen ist. Der Spalt 55 bildet das Kapillarelement und ist über die Öffnung 68 mit der Hohlkammer im Subrahmenprofil 7 verbunden. Wie bereits bei der Ausführungsform nach Fig. 19 besteht auch bei der Ausführungsform nach Fig. 20 keine direkte Wechselwirkung zwischen der Druckausgleichseinrichtung und der Trocknungseinrichtung.
  • Bei der Ausgestaltung nach Fig. 21 ist im Unterschied zu derjenigen nach Fig. 19 die Hohlkammer 80 in dem Subrahmenprofil 7 mit Trockenmittel 14 verfüllt. Es besteht somit ein direktes Zusammenwirken zwischen der Druckausgleichseinrichtung und Trocknungseinrichtung. Das Kapillarelement ist wieder, wie bei der Ausgestaltung nach Fig. 19, durch eine Nut 53 im Subrahmenprofil 7 sowie einen Spalt 51 im Kunststoffprofil 66 gebildet, der ein langes Kapillarelement bildet. Der Querschnitt des Kapillarelements 51 ist rechteckförmig. In der Druckausgleichsöffnung zum Fassadenzwischenraum 3 ist ein Filter 36 eingesteckt.
  • Die Fig. 22 stellt eine Variante der Ausgestaltung nach Fig. 20 dar, bei der ebenfalls die Hohlkammer 80 im Subrahmenprofil 7 zusätzlich mit Trockenmittel 14 verfüllt ist. Die Druckausgleichseinrichtung umfasst somit wieder eine lange Kapillarnut, die durch den Spalt 55 zwischen Kunststoffprofil 66 aus einem Thermoplast oder Elastomer und der Nut 53 gebildet ist, sowie den Filter 36 zwischen der Hohlkammer 80 und dem Fassadenzwischenraum 3. Durch die Befüllung der Hohlkammer 80 mit Trockenmittel 14 besteht jedoch im Unterschied zur Ausführungsform nach Fig. 20 eine direkte Wechselwirkung zwischen der Druckausgleichseinrichtung und der Trocknungseinrichtung.
  • Bei der Ausführungsform nach Fig. 17 befindet sich eine Druckausgleichsöffnung 37 mit Filter 36 im Subrahmenprofil 7, welche die Hohlkammer 80 im Subrahmenprofil 7 mit der Außenatmosphäre verbindet. Darüber hinaus ist im Hauptrahmenprofil 6 eine Nut 38 als Teil eines langen Kapillarrohrs vorgesehen. In dieser Nut befindet sich ein Kunststoffprofil 47 aus einem Thermoplast oder Elastomer, das der Abdichtung der Nut 38 dient und mit einem Spalt 48 als Teil des Kapillarrohrquerschnitts versehen ist. Somit umfasst die Druckausgleichseinrichtung sowohl Elemente im Subrahmenprofil 7 wie auch im Hauptrahmenprofil 6. Im Hauptrahmenprofil 6 ist eine Kapillarnut gebildet, die eine Nut 38 sowie einen Spalt 48 im Kunststoffprofil 47 umfasst. Der an die Nut 38 im Hauptrahmenprofil 6 angrenzende Hohlraum 13 im Hauptrahmenprofil 6 ist mit Trockenmittel 14 verfüllt. Eine Öffnung (in der Schnittebene der Fig. 17 nicht dargestellt) verbindet das lange Kapillarrohr mit der mit Trockenmittel 14 befüllten Hohlkammer im Hauptrahmenprofil 6. Daher besteht eine direkte Wechselwirkung zwischen der Druckausgleichseinrichtung und der Trocknungseinrichtung.
  • Die Ausgestaltung nach Fig. 18 unterscheidet sich von derjenigen nach Fig. 17 dahingehend, dass in die Nut 38 im Hauptrahmenprofil 6 ein unterschiedlich geformtes, langgestrecktes Kunststoffprofil 49 aus einem Thermoplast oder Elastomer eingeschoben ist, das ebenfalls zur Abdichtung der Nut 38 dient, jedoch in einem Abstand zum Nutgrund endet, so dass ein Spalt 50 zwischen der Nut 38 im Hauptrahmenprofil 6 und dem Kunststoffprofil 49 vorhanden ist. Die Druckausgleichseinrichtung ist somit wieder sowohl im Subrahmenprofil 7 wie auch Hauptrahmenprofil 6 gebildet. Im Hauptrahmenprofil 6 ist eine Kapillarnut vorgesehen, die durch den Spalt 50 zwischen der Nut 38 und dem Kunststoffprofil 49 gebildet ist. Darüber hinaus steht die Druckausgleichseinrichtung in direkter Wechselwirkung mit der Trocknungseinrichtung, da in den an die Nut 38 angrenzenden Hohlraum 13 im Hauptrahmenprofil 6 Trockenmittel 14 gefüllt ist und sich eine Öffnung in der Nut 38 in den mit Trockenmittel befüllten Hohlraum befindet. Ein Filter 36 im Subrahmenprofil 7 verhindert das Eindringen von Schmutz.
  • Die Ausführungsform nach Fig. 13 ist ähnlich zu derjenigen nach Fig. 18, jedoch ist das in die Nut 38 im Hauptrahmenprofil 6 eingeschobene, abdichtende Kunststoffprofil 39 aus einem Thermoplast oder Elastomer unterschiedlich geformt. Innerhalb der Nut 38 ist ein Spalt 50 vorgesehen, der einen Hohlraum bildet und die Funktion eines langen Kapillarrohrs übernimmt. Die Querschnittsabmessungen des Kapillarrohrs sind durch die geeignete Wahl der Abmessungen des Kunststoffprofils 39 anpassbar. In der an die Nut 38 angrenzenden Hohlkammer 13 im Hauptrahmenprofil 6 ist Trockenmittel 14 gefüllt. Die Nut 38 weist eine Druckausgleichsöffnung 72 zu der mit Trockenmittel 14 befüllten Hohlkammer 13 im Hauptrahmenprofil 6 auf. In der Druckausgleichsöffnung 72 kann sich optional ein Filter 70 befinden. Im Unterschied zu den Ausführungsbeispielen nach den Figuren 18 und 19 ist bei der Ausgestaltung nach Fig. 13 die Querschnittsfläche des Spalts 50 größer. Entsprechend ist bei diesem Ausführungsbeispiel ein sehr langes Kapillarrohr zu wählen. Je länger das Kapillarrohr ist, desto besser ist dessen Funktion als Feuchtigkeitsbremse. Ein Filter 36 im Subrahmenprofil 7 verhindert das Eindringen von Schmutz.
  • In Fig. 14 ist eine Druckausgleichseinrichtung mit direkter Wechselwirkung mit einer Trocknungseinrichtung dargestellt, welche die allgemeine Darstellung nach Fig. 8 weiter präzisiert. Dabei ist ein separat vorgesehener Trockenmittelbehälter 19 vorgesehen, der in Pfeilrichtung AT am Hauptrahmenprofil 6 beispielsweise über eine Verschraubung anbringbar und von diesem abnehmbar ist. Im Hauptrahmenprofil 6 ist eine Druckausgleichsöffnung 42 vorgesehen und eine entsprechend angeordnete Öffnung im Trockenmittelbehälter 19, die vorteilhafterweise mit einem Filter 36 versehen sein kann, der eine Trockenmittelpartikelsperre darstellt. Darüber hinaus ist im Hauptrahmenprofil 6 eine Wartungsöffnung 43 vorgesehen, über welche das kurze Kapillarrohr 41 mit Membran 45, das sich in einer Druckausgleichsöffnung 18 im Hauptrahmenprofil 6 befindet, ausgetauscht werden kann. Die Membran wirkt als Filter und Feuchtebremse. Es besteht in Pfeilrichtung DA ein luftleitender Druckausgleichspfad von der Außenatmosphäre in den mit Trockenmittel 14 befüllten Hohlraum 69 des Trockenmittelbehälters 19 und von diesem durch entsprechende Öffnungen 15 in den Fassadenzwischenraum 3. Durch die letztgenannten Öffnungen 15 erfolgt auch der Luftaustausch zwischen dem inneren Hohlraum 69 des Trockenmittelbehälters 19 und dem Fassadenzwischenraum 3 zur Regulierung des Feuchtegehalts der im Fassadenzwischenraum 3 befindlichen Luft.
  • Fig. 15 zeigt eine Gestaltung ähnlich zu derjenigen nach Fig. 14, jedoch unter Verwendung eines langen Kapillarrohrs. Dazu ist wieder ein abnehmbarer und folglich austauschbarer und mit Trockenmittel 14 befüllter Trockenmittelbehälter 19 am Hauptrahmenprofil 6 anbringbar. Die Druckausgleichseinrichtung umfasst ein langes Kapillarrohr 35, das in eine entsprechend dimensionierte Aufnahmenut im Trockenmittelbehälter an der dem Hauptrahmenprofil 6 zugewandten Seite des Trockenmittelbehälters 19 eingelegt ist. Das lange Kapillarrohr besteht aus Metall oder aus einem thermoplastischen oder elastomeren Kunststoff. Das Austrittsende des langen Kapillarrohrs 35 steht über eine in der Schnittebene der Fig. 15 nicht sichtbaren Öffnung in luftleitender Verbindung mit dem inneren Hohlraum 69 des Trockenmittelbehälters 19. Somit besteht ein direktes Zusammenwirken zwischen der Druckausgleichseinrichtung und der Trocknungseinrichtung. Das Austrittsende des langen Kapillarrohrs 35 steht über eine in der Schnittebene der Fig. 15 nicht sichtbaren Öffnung in luftleitender Verbindung mit dem inneren Hohlraum 69 des Trockenmittelbehälters 19. Eine Eintrittsöffnung des in der Fig. 15 nur im Schnitt dargestellten, langen Kapillarrohrs 35 steht in luftleitender Verbindung mit einem Anschlussstutzen 44, der ebenfalls einen inneren Strömungskanal für Luft besitzt und dessen dem langen Kapillarrohr 35 abgewandtes Ende in luftleitender Verbindung mit einer Druckausgleichsöffnung 18 im Hauptrahmenprofil 6 steht, das die Strömungsverbindung zur Dehnfuge 78 herstellt. In der Druckausgleichsöffnung 18 im Hauptrahmenprofil 6 ist ein Filter 36 vorgesehen.
  • Der Austausch des Trockenmittelbehälters 19 in Pfeilrichtung AT erfolgt wie bei den Ausführungsformen nach Fig. 8 und 14, und auch der Luftaustausch zwischen dem Fassadenzwischenraum 3 und dem mit Trockenmittel 14 befüllten Hohlraum 69 des Trockenmittelbehälters 19 erfolgt wie im Zusammenhang mit der Ausführungsform nach Fig. 14 beschrieben wurde.
  • In Abwandlung zur Fig. 15 zeigt die Fig. 16 eine unterschiedliche Gestaltung eines langen Kapillarrohrs, das aus zwei Teilbereichen eines langgestreckten Hohlraums 46 zusammengesetzt ist, einer nutförmigen Einbuchtung 74 in der Wand des Trockenmittelbehälters 19 sowie der Wand des Hauptrahmenprofils 6 mit einer Öffnung, in welcher der Anschlussstutzen 44 angeordnet ist. Das Austrittsende des langen Kapillarrohrs 46 steht über eine in der Schnittebene der Fig. 16 nicht sichtbaren Öffnung in luftleitender Verbindung mit dem inneren Hohlraum 69 des Trockenmittelbehälters 19. Die Eintrittsöffnung des in der Fig. 16 nur im Schnitt dargestellten, langen Kapillarrohrs 46 steht in luftleitender Verbindung mit dem Anschlussstutzen 44, der ebenfalls einen inneren Strömungskanal für Luft besitzt und dessen dem langen Kapillarrohr 46 abgewandtes Ende in luftleitender Verbindung mit einer Druckausgleichsöffnung 18 im Hauptrahmenprofil 6 steht, das die Strömungsverbindung zur Dehnfuge 78 herstellt. In der Druckausgleichsöffnung 18 im Hauptrahmenprofil 6 ist ein Filter 36 vorgesehen. Ansonsten entspricht die Ausführungsform nach Fig. 16 denjenigen nach Fig. 14 und 15.
  • In der Fig. 23 ist eine weitere Ausführungsform dargestellt unter Verwendung eines kurzen Kapillarrohrs 41 mit Membran 45, das sich in luftleitender Verbindung mit einer Druckausgleichsöffnung 37 im Subrahmenprofil 7 befindet. Über das kurze Kapillarrohr gelangt zum Druckausgleich Luft von der Dehnfuge 78 in die Hohlkammer 80 im Subrahmenprofil 7 und von dort aus über die Druckausgleichsöffnung 34 in den Fassadenzwischenraum 3. Die Trocknungseinrichtung umfasst Trockenmittel 14 in einer Hohlkammer 13 des Hauptrahmenprofils 6. Die Hohlkammer steht im Luftaustausch mit dem Fassadenzwischenraum 3. Somit besteht kein direktes Zusammenwirken zwischen der Druckausgleichseinrichtung und der Trocknungseinrichtung.
  • Die Ausführungsform nach Fig. 24 stellt eine Abwandlung zu derjenigen nach Fig. 23 dar. Es besteht ein direktes Zusammenwirken zwischen der Druckausgleichseinrichtung und der Trocknungseinrichtung, weil im Unterschied zur Ausführungsform nach Fig. 23 kein direkter Luftaustausch zwischen der Hohlkammer 80 im Subrahmenprofil 7 und dem Fassadenzwischenraum 3 besteht, weil die Hohlkammer 80 mit der mit Trockenmittel befüllten Hohlkammer 13 des Hauptrahmenprofils 6 in Luftverbindung steht. Dazu befinden sich in der Hohlkammer 80 sowie der Hohlkammer 13 fluchtende Öffnungen, über die, wie anhand der Fig. 5 beschrieben wurde, der Druckausgleich zwischen der Außenatmosphäre und dem Fassadenzwischenraum unter Zwischenschaltung der Trocknungseinrichtung erfolgt.
  • Die Ausführungsform nach Fig. 25 verwendet ebenso wie die Ausgestaltungen nach Fig. 23 und 24 ein kurzes Kapillarrohr 41 mit Membran 45, dessen Eintrittsöffnung in luftleitender Verbindung mit einer Druckausgleichsöffnung 37 im Subrahmenprofil 7 befindet. Es besteht ein direktes Zusammenwirken zwischen der Druckausgleichseinrichtung und der Trocknungseinrichtung, weil die Hohlkammer 80 im Subrahmenprofil 7 mit Trockenmittel 14 befüllt ist. In der Hohlkammer 80 ist darüber hinaus eine Druckausgleichsöffnung 34 vorgesehen, die in luftleitender Verbindung mit dem Fassadenzwischenraum 3 steht. In der Druckausgleichsöffnung 34 befindet sich ein Filterelement 36.
  • Die Ausführungsform nach Fig. 26 weist, wie die Ausführungsform nach Fig. 10, ein opakes Paneel 58 im Brüstungsbereich auf, das anstelle des inneren Verglasungselements vorgesehen ist. Die Ausgestaltungen der Druckausgleichseinrichtung und der Trocknungseinrichtung entsprechen hingegen derjenigen, die in Fig. 18 in einer Detailansicht dargestellt sind und bereits erläutert wurden.
  • Das Paneel 58 ist wärmegedämmt und weist eine äußere Deckschale 59 auf, die üblicherweise aus Metall besteht. Die Deckschale ist bevorzugt zum Fassadenzwischenraum hin dunkel und besonders bevorzugt dunkel sowie matt gestaltet.
  • Zur Raumseite hin ist eine innere Deckschale 61 vorgesehen. Zwischen den Deckschalen 59 und 61 befindet sich ein Dämmmaterial 62. Das Dämmplatte ist dabei bevorzugt offenzellig aus Mineralwolle, organischem Schaum, Aerogel oder als Vakuumplatte vorgesehen. Das Paneel 58 wird zum Fassadenzwischenraum 3 durch eine Leiste 20 unter Zwischenschaltung eines Dichtungsstreifens 57 gehalten, während zur Raumseite hin eine innere Versiegelung 31 vorgesehen ist. Auch im Bereich des Paneels 58 kann ein optionaler Sonnenschutz 5' vorgesehen sein, insbesondere dann, wenn das äußere Verglasungselement 2 auf der Position 2 nicht mit einer opaken Beschichtung 60 versehen sein sollte.
  • Der Austausch von Trockenmittel 14 sowie das Einblasen von frischem, regenerierten Trockenmittel erfolgt jeweils mit Hilfe einer Austauscheinrichtung 16, die sich durch eine Hohlkammer 67 des Hauptrahmenprofil 6 erstreckt und deren innerer Hohlraum 65 die Raumseite des Fassadenelements 1 mit der Hohlkammer 13 im Hauptrahmenprofil 6, in der sich das Trockenmittel 14 befindet, verbindet. Um das Eindringen von Wasserdampf von der Raumseite in den mit Trockenmittel befüllten Hohlraum 13 zu verhindern, ist, wie in der Detailansicht in Fig. 27 gezeigt ist, ein raumseitiges Abdichtelement 64 vorgesehen, das den inneren Hohlraum 65 der Austauscheinrichtung an dessen raumseitigem Ende abdichtet. Darüber hinaus ist im Bereich der Öffnung zwischen dem mit Trockenmittel 14 befüllten Hohlraum 13 und der Hohlkammer 67 des Hauptrahmenprofils 6 ein Dichtteil 63 vorgesehen, das dazu dient, das Eindringen von Wasserdampf aus der Hohlkammer 67 des Hauptrahmenprofils 6 in den mit Trockenmittel befüllten Hohlraum 13 zu verhindern. Wenn das Trockenmittel 14 ausgetauscht werden soll, wird das Abdichtelement 64 entfernt und das Trockenmittel 14 durch den inneren Hohlraum der Austauscheinrichtung 16 zur Raumseite hin in Pfeilrichtung A abgesaugt. Frisches Trockenmittel kann daraufhin in Pfeilrichtung B durch den inneren Hohlraum 65 der Austauscheinrichtung 16 in die Hohlkammer 13 eingeblasen werden und das Abdichtelement 64 abschließend wieder aufgesteckt werden. Auf diese Weise kann der Austausch des Trockenmittels 14 auf einfache Weise von der Raumseite aus durchgeführt werden.
  • In Fig. 28 sind in den schematischen Darstellungen 28(a) bis 28(r) verschiedene mögliche Anordnungen der Druckausgleichs- und Trocknungseinrichtung schematisch dargestellt. Dabei wird mit "F" der Fensterbereich dargestellt und mit "B" der optional vorgesehene, opake Bereich bezeichnet, der sich vorzugsweise im Brüstungsbereich befindet. Gestrichelte Linien bezeichnen ein langes Kapillarrohr mit Wechselwirkung mit einer Trocknungseinrichtung, während in der Zeichenebene der Fig. 28 waagrecht verlaufende strichpunktierte Linien ein langes Kapillarrohr ohne Wechselwirkung mit einer Trocknungseinrichtung bezeichnen. Die in der Zeichenebene der Fig. 28 waagrecht verlaufenden Linien entsprechen bei einem bestimmungsgemäßen Einbau des Fassadenelements einer horizontalen Richtung. Die in der Fig. 28(a) bis (r) dargestellten senkrechten strichpunktieren Linien entsprechen einer Druckausgleichseinrichtung mit einer Membran und einem kurzen Kapillarrohr. Schließlich muss noch in Bezug auf die Anordnung der Druckausgleichsöffnungen differenziert werden. Dabei bezeichnen gerade durchgezogene Linien eine Druckausgleichsöffnung nach außen bzw. nach innen, während rechtwinklig abgekantete, durchgezogene Linien einen Druckausgleich nach innen bezeichnen.
  • Wie aus der Fig. 28 ersichtlich ist bestehen somit 18 sinnvolle Möglichkeiten, um Druckausgleichs- und Trocknungseinrichtungen anzuordnen. Die Anordnung der Druckausgleichs- und Trocknungseinrichtung hängt von der Wahl des Druckausgleissystems, insbesondere der Wahl eines kurzen oder langen Kapillarrohrs, sowie von den Objektgegebenheiten ab. Kurze Kapillarrohre werden bevorzugt in vertikale Rahmenbereiche eingebaut.
  • Bei den Ausgestaltungen ohne die Wechselwirkung des Volumenstroms an Luft beim Druckausgleich mit dem Trockenmittel, wie sie beispielhaft in den Ausführungsformen nach den Figuren 4 und 7 dargestellt wurden, kann das Vorsehen eines Kapillarrohrs entfallen, wenn die Luftführung so gestaltet ist, dass eine ausreichende Standzeit bis zum benötigten Austausch des Trockenmittels realisiert werden kann. Dabei sind verschiedene Ausgestaltungen möglich, die in den Figuren 29 bis 32 dargestellt sind.
  • Bei der Ausgestaltung nach dem Vertikalschnitt in Fig. 29 erfolgt die Luftführung zum Druckausgleich vollständig im Subrahmenprofil 7. Dazu sind eine erste Druckausgleichsöffnung 82 und eine zweite Druckausgleichsöffnung 84 vorgesehen, die im Subrahmenprofil 7 vorgesehen sind und im Beispiel nach Fig. 29 soweit wie möglich vertikal voneinander beabstandet und in unmittelbarer Nähe zu den Eckwinkeln 86 in den Gehrungsecken des Subrahmenprofils 7 angeordnet sind. Die erste Druckausgleichsöffnung 82 ist am tiefsten Punkt des vertikalen Teils des Subrahmenprofils angeordnet, steht in Verbindung mit der Außenatmosphäre und verläuft schräg nach unten an einer Schräge am Eckwinkel entlang, damit durch die erste Druckausgleichsöffnungen 82 in den inneren Hohlraum des Subrahmenprofils 7 eindringender Staub sich nach unten absetzen und aus dem Subrahmenprofil austreten kann. Die zweite Druckausgleichsöffnung 84 ist am höchsten Punkt des beispielsweise 4 Meter vertikalen Teils des Subrahmenprofils 7 vorgesehen und verbindet den Fassadenzwischenraum 3 mit dem inneren Hohlraum des Subrahmenprofil 7. Die in Fig. 29 dargestellte, geradlinige Luftführung kann die Standzeit des Trockenmittels bereits verlängern gegenüber dem Fall eines direkten Lufteintritts von der Außenatmosphäre in den Fassadenzwischenraum, der durch das Vorsehen von zwei miteinander fluchtenden Bohrungen durch das Subrahmenprofil definiert ist.
  • Alternativ zur Gestaltung nach Fig. 29 kann die Luftführung beim Druckausgleich in einer vorgesetzten Abdeckung 88 erfolgen, die in dem Vertikalschnitt durch das Subrahmenprofil nach Fig. 30 auf dem Subrahmenprofil 7 befestigt ist, vorzugsweise aufgeklipst oder mit dem Subrahmenprofil 7 verschraubt ist. Die vorgesetzte Abdeckung weist einen inneren Hohlraum 90 auf und besitzt eine vertikale Erstreckung, die im Wesentlichen der Höhe des vertikalen Teils des Subrahmenprofils 7 entspricht. Die erste Druckausgleichsöffnung 82 ist unten am Ende der vorgesetzten Abdeckung 88 am tiefsten Punkt des Subrahmenprofils vorgesehen und weist in vertikaler Richtung, so dass in den inneren Hohlraum der vorgesetzten Abdeckung 88 eindringender Staub selbsttätig unter Schwerkrafteinfluss wieder nach unten aus der ersten Druckausgleichsöffnung 82 herausfallen kann. Am oberen Ende der vorgesetzten Abdeckung ist am oberen Ende des vertikalen Teils des Subrahmenprofils eine Öffnung zum Subrahmenprofil 7 hin vorgesehen. Der Luftstrom beim Druckausgleich strömt zwischen dem oberen Ende der vorgesetzten Abdeckung 88 und einer Hülse 92, die sich durch das Subrahmenprofil 7 erstreckt und in den Fassadenzwischenraum 3 führt. Auch die in Fig. 30 dargestellte, weitestgehend geradlinige Luftführung mit nur einer einzigen 90°-Umlenkung oben des Luftstroms kann die Standzeit des Trockenmittels verlängern gegenüber dem Fall eines direkten Lufteintritts von der Außenatmosphäre in den Fassadenzwischenraum.
  • Die Fig. 31 wandelt die Strömungsführung nach Fig. 30 dahingehend ab, dass über eine Luftaustauschöffnung 94 im Subrahmenprofil 7 am oberen Ende der vorgesetzten Abdeckung 88 eine Strömungsverbindung zwischen dem inneren Hohlraum 90 der inneren Abdeckung 88 und dem inneren Hohlraum 96 des Subrahmenprofils 7 besteht. Die zweite Druckausgleichsöffnung 84 verbindet den Fassadenzwischenraum 3 und den inneren Hohlraum 96 des Subrahmenprofils 7 und ist in etwa auf der Höhe der ersten Druckausgleichsöffnung 82 vorgesehen, so dass bei Druckausgleich der Luftstrom zweimal umgelenkt wird und eine Wegstrecke zurücklegt, die im Wesentlichen der doppelten Höhe des vertikalen Teils des Subrahmenprofils 7 entspricht. Durch diese Strömungsführung erfolgt eine zweifache Umlenkung des Luftstroms, zwischen denen die Luftführung im Wesentlichen geradlinig verläuft.
  • Die Variante nach Fig. 32 entspricht der Gestaltung nach Fig. 29, auf die Bezug genommen wird, ist aber dahingehend abgewandelt, dass im inneren Hohlraum 96 des Subrahmenprofils 7 ein Einschubelement 98 angeordnet ist, das eine erste Wand 102 und eine zweite Wand 104 umfasst, an denen jeweils mindestens ein Querschott 106 angebracht ist, deren wechselseitige Anordnung die Luftführung im Unterschied zur geradlinig verlaufende Luftführung nach der Ausführungsform nach Fig. 29 mehrfach umlenkt und einen gewundenen Strömungspfad erzwingt. Die in vertikaler Richtung wechselseitig angeordneten Querschotte 106 besitzen zur Seite des freien Strömungsquerschnitts hin eine Neigung nach unten und wirken daher als zusätzliche Staubbremsen. Durch die in Fig. 32 dargestellte Luftführung mit mehreren Umlenkungen des Luftstroms kann die Standzeit des Trockenmittels weiterverlängert werden gegenüber dem Fall eines direkten Lufteintritts von der Außenatmosphäre in den Fassadenzwischenraum.
  • Nach einer weiteren Ausführungsform der Erfindung (nicht dargestellt) können die anhand der Figuren 31 und 32 erläuterten Maßnahmen miteinander kombiniert werden, indem eine vorgeschaltete Abdeckung vorgesehen ist und zusätzlich entweder im inneren Hohlraum des Subrahmenprofils oder im inneren Hohlraum der vorgeschalteten Abdeckung wechselseitig angeordnete Querschotte vorgesehen sind, welche zusätzliche Umlenkungen des Luftstroms darstellen. Bevorzugt ist es allerdings, in diesem Fall die Querschotte in der vorgeschalteten Abdeckung vorzusehen, da diese dort die zusätzliche Funktion einer Staubbremse erfüllen können und das Eindringen von Staub in das Subrahmenprofil verhindern oder zumindest reduzieren können. Bei der Kombination der in den Figuren 31 und 32 erläuterten Maßnahmen kann die Standzeit des Trockenmittels noch weiter verlängert werden gegenüber dem Fall eines direkten Lufteintritts von der Außenatmosphäre in den Fassadenzwischenraum.
  • Bei allen Ausführungsformen mit einer vorgeschalteten Abdeckung kann diese zusätzlich aus einem Kunststoffmaterial bestehen, das Feuchte aufnehmen kann und damit als Feuchtepuffer dient, der im Rahmen des Aufnahmevermögens für Feuchte einströmende Luft entfeuchtet und die aufgenommene Feuchte wieder an getrocknete, aus dem Fassadenzwischenraum ausströmende Luft abgibt.
  • Den anhand der Fig. 7, 8 und 29 bis 32 dargestellten Ausführungsformen ist gemeinsam, dass der Druckausgleich zwischen der Außenatmosphäre und dem Fassadenzwischenraum getrennt vom Luftaustausch zwischen dem Fassadenzwischenraum und einem Trockenmittel erfolgt. Zusätzlich ist diesen Ausführungsformen gemeinsam, dass im Bereich der ersten Druckausgleichsöffnung zusätzlich ein Staubfilter vorgesehen sein kann. Bereits durch die Gestaltung der Luftführung kann bei einem Verzicht auf ein Kapillarrohr die Standzeit des Trockenmittels bis zu einem erforderlichen Austausch des feuchtebeladenen Trockenmittels erheblich erhöhen.
  • Um eine weitere Erhöhung der Standzeit des Trockenmittels zu erzielen, sollte die Luftströmung beim Druckausgleich durch das Trockenmittel geleitet werden.
  • In den Figuren 33a und 33b ist eine erste mögliche Ausgestaltung dargestellt, wobei Fig. 33a einen Vertikalschnitt durch das Subrahmenprofil in einer Schnittebene parallel zur Glasebene des Fassadenelements darstellt und Fig. 33b eine vertikale Schnittansicht in einer Schnittebene senkrecht zur Glasebene zeigt.
  • Die Gestaltung des Subrahmenprofils nach Fig. 33a ist ähnlich zu derjenigen nach Fig. 29 und unterscheidet sich nur dahingehend, dass anstelle der zweiten Druckausgleichsöffnung zwischen dem inneren Hohlraum 96 des Subrahmenprofils 7 und dem Fassadenzwischenraum 7 eine Öffnung 108 zur Trockenmittelkammer vorgesehen ist. Die Öffnung 108 ist vorzugsweise eine Bohrung. Für alle anderen konstruktiven Merkmale kann auf die Erläuterungen zur Fig. 29 verwiesen werden.
  • Die Fig. 33b deutet anhand der strichpunktierten Linien schematisch den Strömungsverlauf des Luftstroms beim Druckausgleich an. Diese Darstellung ist aber simplifiziert, weil eine Gasströmung durch eine Schüttung von Feststoffpartikeln wie Trockenmittelpellets nicht linear verläuft, sondern einen gewundenen Pfad nimmt, der zahlreiche Verästelungen nimmt. Die strichpunktierten Linien sollen aber andeuten, welche Maßnahmen vorteilhafterweise ergriffen werden können, um das Trockenmittel möglichst gleichmäßig mit Feuchte zu beladen.
  • Im folgenden soll die Situation erläutert werden, wenn im Fassadenzwischenraum ein Unterdruck herrscht und Luft von der Außenatmosphäre in den Fassadenzwischenraum strömt. Die erläuterten Prinzipien sind aber in gleicher Weise für einen Luftstrom in entgegengesetzter Richtung anwendbar.
  • Nach dem Einströmen in einen inneren Hohlraum 110 des Hauptrahmenprofils 6, der mit Trockenmittel befüllt ist,
    wird der Luftstrom zu den Öffnungen 112a, 112b und 112c gezogen, die den inneren Hohlraum 110 des Hauptrahmenprofils 6 mit dem Fassadenzwischenraum 3 verbinden. Die treibende Kraft für den Luftstrom ist dabei der an den Öffnungen 112a, 112b und 112c anliegende Luftdruck, der geringer ist als derjenige des Luftstroms beim Eintritt in die Trockenmittelschüttung 98 durch die Öffnung 108.
  • Das Vorsehen von drei Öffnungen führt dazu, dass der Luftstrom zu allen Öffnungen erfolgt, wobei allerdings der Druckverlust durch die Trockenmittelschüttung 98 im Wesentlichen proportional ist zum Abstand zwischen der Öffnung 108 und der jeweiligen Öffnung 112a, 112b, 112c. Um dem Effekt entgegenzuwirken, dass der Luftstrom den Weg mit dem geringsten Strömungswiderstand bevorzugt, besitzen die Öffnungen 112a, 112b, 112c unterschiedliche Öffnungsdurchmesser. Der Öffnungsdurchmesser d1 der an nächsten zur Öffnung 108 am Eintritt gelegenen Öffnung 112a ist dabei am geringsten und erzeugt daher den größten Druckverlust aufgrund des Strömungswiderstands beim Durchströmen. Der Durchmesser d2 der weiter von der Öffnung entfernten Öffnung 112b ist größer als der Durchmesser d1, und der Durchmesser d3 der am weitesten von der Öffnung 108 am Eintritt entfernten Öffnung 112c ist am größten. Auf diese Weise kann die Durchströmung des Trockenmittelbehälters gleichmäßiger gestaltet werden. Durch die in Figs. 33a, b dargestellte Luftführung mit Durchströmung der Trockenmittelschüttung 98 kann die Standzeit des Trockenmittels deutlich verlängert werden gegenüber dem Fall eines direkten Lufteintritts von der Außenatmosphäre in den Fassadenzwischenraum.
  • Das Trockenmittel ist direkt in einen inneren Hohlraum des Hauptrahmenprofils 6 eingefüllt, so dass keine optische Beeinträchtigung durch einen im Fassadenzwischenraum vorgesehenen Trockenmittelbehälter möglich ist. Darüber hinaus ist kein getrennter Trockenmittelbehälter vorzusehen. Der Austausch des Trockenmittels erfolgt über eine Austauscheinrichtung, wie sie mit Verweis auf die Fig. 26 und 27 erläutert wurde.
  • In den Figuren 34a und 34b ist eine zweite mögliche Ausgestaltung dargestellt, wobei Fig. 34a einen Vertikalschnitt durch das Subrahmenprofil in einer Schnittebene parallel zur Glasebene des Fassadenelements darstellt und Fig. 34b eine vertikale Schnittansicht in einer Schnittebene senkrecht zur Glasebene zeigt.
  • Die Gestaltung des Subrahmenprofils nach Fig. 34a ist ähnlich zu derjenigen nach Fig. 30 und unterscheidet sich nur dahingehend, dass anstelle der zweiten Druckausgleichsöffnung zwischen dem inneren Hohlraum 96 des Subrahmenprofils 7 und dem Fassadenzwischenraum 3 eine Öffnung 108 zur Trockenmittelkammer vorgesehen ist. Die Öffnung 108 ist vorzugsweise eine Bohrung. Für alle anderen konstruktiven Merkmale kann auf die Erläuterungen zur Fig. 30 verwiesen werden.
  • Die Luftführung durch die Trockenmittelschüttung 98 nach Fig. 34b entspricht derjenigen nach Fig. 33b.
  • Durch die in Figuren 34a, b dargestellte Luftführung mit Durchströmung der Trockenmittelschüttung 98 kann die Standzeit des Trockenmittels ebenfalls deutlich verlängert werden gegenüber dem Fall eines direkten Lufteintritts von der Außenatmosphäre in den Fassadenzwischenraum.
  • In den Figuren 35a und 35b ist eine dritte mögliche Ausgestaltung dargestellt, wobei Fig. 35a einen Vertikalschnitt durch das Subrahmenprofil in einer Schnittebene parallel zur Glasebene des Fassadenelements darstellt und Fig. 35b eine vertikale Schnittansicht in einer Schnittebene senkrecht zur Glasebene zeigt.
  • Die Gestaltung des Subrahmenprofils nach Fig. 35a ist ähnlich zu derjenigen nach Fig. 31 und unterscheidet sich nur dahingehend, dass anstelle der zweiten Druckausgleichsöffnung zwischen dem inneren Hohlraum 96 des Subrahmenprofils 7 und dem Fassadenzwischenraum 3 eine Öffnung 108 zur Trockenmittelkammer vorgesehen ist. Die Öffnung 108 ist vorzugsweise eine Bohrung . Für alle anderen konstruktiven Merkmale kann auf die Erläuterungen zur Fig. 31 verwiesen werden.
  • Die Luftführung durch die Trockenmittelschüttung 98 nach Fig. 35b entspricht derjenigen nach Fig. 33b, allerdings mit dem Unterschied, dass sich die Öffnung 108 zur Trockenmittelkammer vertikal am unteren Ende des Fassadenelements befindet und entsprechend die Öffnungen 112a, 112b, 112c am oberen vertikalen Ende des Fassadenelements befinden. Aufgrund des geringen Volumenstroms an Luft macht es keinen Unterschied, ob die Trockenmittelschüttung 98 von oben nach unten oder von unten nach oben durchströmt wird.
  • Durch die in Figuren 35a, b dargestellte Luftführung mit Durchströmung der Trockenmittelschüttung 98 kann die Standzeit des Trockenmittels deutlich verlängert werden gegenüber dem Fall eines direkten Lufteintritts von der Außenatmosphäre in den Fassadenzwischenraum.
  • In den Fig. 35c und 35d ist eine weitere Ausgestaltung der Ausführungsform nach den Figuren 35a und 35b dargestellt. Es sollte aber deutlich sein, dass die nachfolgend beschriebene Einstellmöglichkeit des Druckverlusts sowie bevorzugter Strömungswege durch die Trocknungseinrichtung bei allen Ausführungsformen Anwendung finden kann, bei denen der Luftstrom zum Druckausgleich durch die Trocknungseinrichtung geführt ist.
  • Im Bereich der Öffnungen 112a, 112b und 112c ist eine Verschiebekulisse 122 angeordnet, die in einer geeigneten Führung 124 in axialer Richtung in Pfeilrichtung A verschiebbar gehalten ist. In der Verschiebekulisse sind die schraffiert in der Fig. 35c dargestellten Blenden 126a, 126b und 126c vorgesehen, die über eine Verschiebung der Verschiebekulisse 122 zwischen zwei Positionen bewegbar sind, die in den Figuren 35c und 35d dargestellt sind. In der Position nach Fig. 35c befinden sich die Blenden in einem Bereich, der die Öffnungen 112a, 112b und 112c nicht überlagert. Es besteht somit keine Wechselwirkung zwischen den Öffnungen 112a, 122b, 112c und den Blenden. In der in der Fig. 35d dargestellten Position befindet sich die Blende 126a vor der Öffnung 112a, die Blende 126b vor der Öffnung 112b und die Blende 126c vor der Öffnung 112c. Über das Vorsehen von Öffnungen in den Blenden und deren Öffnungsquerschnitte kann der Druckverlust, aber auch die Strömungsführung durch die Trockenmittelschüttung beeinflusst werden. Im Ausführungsbeispiel nach den Fig. 35c und 35d weist die Blende 126a keine Öffnung auf, die Blende 126b weist eine Öffnung mit dem Durchmesser d1 auf, und die Blende 126c weist eine Öffnung mit dem Durchmesser d2 auf. In der Position nach Fig. 35d ist somit die Öffnung 112a verschlossen. Die Öffnung 112b ist auf einen Durchmesser d1 verengt und die Öffnung ist auf einen Durchmesser d3 verengt. Auf diese Weise wird der Druckverlust durch die Trockenmittelschüttung erhöht, aber auch der Strömungspfad zwischen den Öffnungen 108 und 112a unterbunden.
  • In den Figuren 36a und 36b ist eine vierte mögliche Ausgestaltung dargestellt, wobei Fig. 36a einen Vertikalschnitt durch das Subrahmenprofil in einer Schnittebene parallel zur Glasebene des Fassadenelements darstellt und Fig. 36b eine vertikale Schnittansicht in einer Schnittebene senkrecht zur Glasebene zeigt.
  • Die Gestaltung des Subrahmenprofils nach Fig. 36a ist ähnlich zu derjenigen nach Fig. 32 und unterscheidet sich nur dahingehend, dass anstelle der zweiten Druckausgleichsöffnung zwischen dem inneren Hohlraum 96 des Subrahmenprofils 7 und dem Fassadenzwischenraum 3 eine Öffnung 108 zur Trockenmittelkammer vorgesehen ist. Die Öffnung 108 ist vorzugsweise eine Bohrung. Für alle anderen konstruktiven Merkmale kann auf die Erläuterungen zur Fig. 32 verwiesen werden.
  • Die Luftführung durch die Trockenmittelschüttung 98 nach Fig. 36b entspricht derjenigen nach Fig. 33b, so dass auf die Erläuterungen zur Fig. 33b verwiesen wird.
  • Durch die in Figuren 36a, b dargestellte Luftführung mit Durchströmung der Trockenmittelschüttung 98 kann die Standzeit des Trockenmittels deutlich verlängert werden gegenüber dem Fall eines direkten Lufteintritts von der Außenatmosphäre in den Fassadenzwischenraum.
  • In den Figuren 37a und 37b ist eine fünfte mögliche Ausgestaltung dargestellt, wobei Fig. 37a einen Vertikalschnitt durch das Subrahmenprofil in einer Schnittebene parallel zur Glasebene des Fassadenelements darstellt und Fig. 37b eine vertikale Schnittansicht in einer Schnittebene senkrecht zur Glasebene zeigt.
  • Die Gestaltung des Subrahmenprofils nach Fig. 37a umfasst eine vorgesetzte Abdeckung 88 wie im Ausführungsbeispiel nach Fig. 35a, allerdings mit zusätzlichen Querschotten 106 in der vorgesetzten Abdeckung 88 zur Strömungsumlenkung und als Staubabscheider. Die Querschotten 106 stellen einen gewundenen Strömungspfad her und verbessern weiter die Wirksamkeit des Druckausgleichssystems.
  • Die Luftführung durch die Trockenmittelschüttung 98 nach Fig. 37b entspricht derjenigen nach Fig. 35b, so dass auf die Erläuterungen zur Fig. 35b verwiesen wird.
  • Durch die in Figuren 37a, b dargestellte Luftführung mit Durchströmung der Trockenmittelschüttung 98 kann die Standzeit des Trockenmittels deutlich verlängert werden gegenüber dem Fall eines direkten Lufteintritts von der Außenatmosphäre in den Fassadenzwischenraum. Außerdem besitzt diese Lösung gute Eigenschaften in Bezug auf die Staubabscheidung aufgrund der wechselseitig vorgesehenen Querschotte im vorgesetzten Aufsatzelement.
  • Die Ausgestaltung nach den Figuren 37a,b erzeugt bereits in der Luftführung der Druckausgleichseinrichtung einen relativ hohen Druckverlust, der problematisch sein kann, wenn die Trockenmittelschüttung 98 ebenfalls einen hohen Druckverlust bei der Durchströmung hervorruft, so dass bei geringen Druckschwankungen keine ausreichend hohe treibende Kraft für eine Luftströmung durch die gesamte Höhe der Trockenmittelschüttung 98, die im wesentlichen der Höhe eines Fassadenelements entspricht, vorliegen könnte.
  • Daher sehen die nachfolgend anhand der Figuren 38a bis 42b beschriebenen Ausführungsformen die Öffnung 108 zwischen dem Subrahmenprofil 7 und dem Hauptrahmenprofil 6 im wesentlichen mittig in Bezug auf die Höhe der Trockenmittelschüttung 98 vor, während die Öffnungen 112a, 112b, ... oben und unten in Bezug auf die Trockenmittelschüttung 98 angeordnet sind. Auf diese Weise wird die Wegstrecke zwischen der Öffnung 108 und jeder der Öffnungen 112a, 112b, ... halbiert.
  • Der einfachste Fall ist in der Ausführungsform nach den Figuren 38a und 38b dargestellt, wobei Fig. 38a einen Vertikalschnitt durch das Subrahmenprofil in einer Schnittebene parallel zur Glasebene des Fassadenelements darstellt und Fig. 38b eine vertikale Schnittansicht in einer Schnittebene senkrecht zur Glasebene zeigt.
  • Angrenzend an eine verkürzte Luftführung im Subrahmenprofil 7 zwischen der ersten Druckausgleichsöffnung 82 und der Öffnung 108, liegt die Öffnung 108 ungefähr auf halber Höhe des Fassadenelements. Dadurch verkürzt sich die Wegstrecke der Luft von der Öffnung 108 zu einer der Öffnungen 112a, 112b mit einem entsprechend auch geringeren Druckverlust der Luft beim Durchströmen der Trockenmittelschüttung 98. Der Druckverlust im inneren Hohlraum des Subrahmenprofil 7 ist deutlich geringer als in der Trockenmittelschüttung 98. Die Gestaltung im Subrahmenprofil 7 entspricht derjenigen, die in der Fig. 33a dargestellt wurde, allerdings mit der Modifikation, dass sich die Öffnung 108 auf halber Höhe befindet.
  • In der Ausgestaltung nach den Figuren 39a, 39b zeigt Fig. 39a einen Vertikalschnitt durch das Subrahmenprofil in einer Schnittebene parallel zur Glasebene des Fassadenelements darstellt und Fig. 39b eine vertikale Schnittansicht in einer Schnittebene senkrecht zur Glasebene.
  • Die Gestaltung des Subrahmenprofils nach Fig. 39a entspricht dabei derjenigen nach Fig. 38a. In der Trockenmittelschüttung 98 wurden im Ausführungsbeispiel nach Fig. 39a allerdings sechs Öffnungen 112a, 112b, 112c, 112d, 112e und 112f vorgesehen, die als Bohrungen gestaltet sind, deren Durchmesser mit steigendem Abstand zur Öffnung 108 zunehmen, wie bereits anhand der Fig. 33b erläutert wurde. Es werden somit zwei Maßnahmen miteinander kombiniert, um bei vertretbarem Druckverlust die Trockenmittelschüttung 98 möglichst gleichmäßig zu durchströmen; einerseits die Anordnung im wesentlichen vertikal mittig der Öffnung 108 zwischen dem Hauptrahmenprofil 6 und dem Subrahmenprofil 7, andererseits die Anordnung der Öffnungen 112a bis 112f in den Fassadenzwischenraum oben und unten in Bezug auf die Trockenmittelschüttung 98 mit zunehmendem Öffnungsquerschnitt der Öffnungen, je weiter sie von der Öffnung 108 zum Subrahmenprofil entfernt angeordnet sind.
  • Das Funktionsprinzip nach Fig. 39b lässt sich mit unterschiedlichen Strömungsführungen im Subrahmenprofil kombinieren, wobei lediglich eine Anpassung vorgenommen werden muss, weil sich die Öffnung 108 in das Hauptrahmenprofil in etwa auf halber Höhe des Subrahmenprofils befindet.
  • Bei der Ausgestaltung nach Fig. 40a ist die Höhe der vorgesetzten Abdeckung 88 gegenüber der Ausgestaltung nach Fig. 34a auf die Hälfte verkürzt, während bei der Ausgestaltung nach Fig. 41a die vorgesetzte Abdeckung 88 derjenigen nach Fig. 35a entspricht und lediglich die Position der Öffnung 108 verändert ist. Die Strömungsführung durch das Trockenmittel zwischen dem Subrahmenprofil und dem Fassadenzwischenraum nach den Fig. 40b und 41b entspricht derjenigen, die mit Bezugnahme auf Fig. 39b bereits erläutert wurde.
  • Bei der Ausgestaltung nach Fig. 42a, b entspricht die Strömungsführung zwischen der Öffnung 108 zum Subrahmenprofil 7 und den Öffnungen 112a, 112b, 112c, 112d, 112e und 112f wieder derjenigen nach Fig. 39b. Im Subrahmenprofil 7 ist jedoch ein im Verglich zur Gestaltung nach Fig. 36a verkürzter Einschub 100 mit Querschotten 106 angeordnet, um der abgeänderten Position der Öffnung 108 Rechnung zu tragen. Diese Gestaltung mit verkürztem Strömungsweg durch das Subrahmenprofil besitzt den zusätzlichen Vorteil, dass auch der Druckverlust des Strömungswegs durch das Subrahmenprofil verringert ist.
  • Bei der Ausgestaltung nach den Fig. 43a, b ist die Öffnung 108 zwischen dem Subrahmenprofil 7 und der mit dem Trockenmittel befüllten Kammer im Hauptrahmenprofil 6 mit einem Verteilerrohr 114 verbunden, so dass durch die Öffnung 108 in die Trocknungseinrichtung einströmende Luft in das Verteilerrohr eintritt. Das Verteilerrohr 114 ist in vorbestimmten Abständen mit einer Mehrzahl an Austrittsöffnungen 116a, 116b, 116c, 116d, 116e versehen, deren Anzahl von derjenigen nach Fig. 43b abweichen kann. Im dargestellten Ausführungsbeispiel sind die Querschnittsöffnung der Austrittsöffnungen 116a bis 116e nicht gleich, sondern nehmen mit zunehmendem Abstand zur Öffnung 108 zu. Auf diese Weise kann der aus den einzelnen Austrittsöffnungen 116a bis 116c austretende Luftstrom so beeinflusst werden, dass dieser im wesentlichen gleich groß durch jede Austrittsöffnung ist. Die Öffnungen 112a, 112b, 112c, 112d und 112e befinden sich jeweils im wesentlichen vertikal über einer der Austrittsöffnungen 116a bis 116e, so dass sich zwischen den Paaren aus jeweils einer Austrittsöffnung 116a bis 116e, und einer Öffnung 112a bis 112e jeweils ein bevorzugter Pad für die Luftströmung entsteht und durch die daraus resultierende Verteilung der Luftströme durch die Trockenmittelschüttung eine möglichst gleichmäßige Beladung des Trockenmittels in der Trocknungseinrichtung erzielt wird. Die Öffnungen 112a bis 112e weisen einen zunehmenden Öffnungsquerschnitt auf. Im Fall einer Bohrung nimmt somit der Öffnungsdurchmesser der Öffnungen 112a bis 112e, die in Fig. 43a mit d1 bis d5 gekennzeichnet sind, von d1 bis d5 stetig zu.
  • Die Ausführungsform nach den Fig. 44a und 44b wandelt die Ausführungsform nach den Figuren 43a und 43b dahingehend ab, dass zusätzlich eine anhand der Figuren 35c und 35d bereits erläuterte Einstellbarkeit des Druckverlusts der die Trocknungseinrichtung durchströmenden Luft gegeben ist. Dazu ist das Verteilerrohr 114 von einer Rohrhülle 118 umgeben, die relativ zum Verteilerrohr 114 über ein Gleitlager im Hauptrahmenprofil 6 drehbar gelagert und von außen einstellbar ist. Dazu ist die Rohrhülle 118 von außen am Hauptrahmenprofil in Pfeilrichtung R rotierbar. Die Rohrhülle 118 weist jeweils an denjenigen axialen Positionen, die den jeweiligen axialen Positionen der Austrittsöffnungen 116a bis 116e entsprechen, eine Einstellöffnung 120a bis 120e auf. Durch eine Rotation der Rohrhülle 118 relativ zum Verteilerrohr 114 kann der Öffnungsquerschnitt der Austrittsöffnungen 116a bis 116e verringert werden. Mit geringer werdendem Öffnungsquerschnitt der Austrittsöffnungen erhöht sich der Druckverlust des Luftstroms beim Durchströmen der Austrittsöffnungen 116a bis 116e.
  • Die in sämtlichen Figuren angedeuteten Luftströme sollen allerdings lediglich schematisch einen möglichen Strömungsverlauf andeuten. In der Realität verzweigt sich der Luftstrom durch eine Schüttung aus körnigen Feststoffen und die sehr geringen Volumenströme zum Druckausgleich werden zudem durch Diffusionsvorgänge überlagert, die feuchtebeladene Luft in Bereiche diffundieren lässt, in denen die Luft getrocknet ist. Diese Diffusionsvorgänge unterstützen die gleichmäßige Beladung des Trockenmittels in der Trockenmittelschüttung.
  • Allen Ausgestaltungen mit einer Luftführung durch die Trockenmittelschüttung ist gemeinsam, dass die Standzeit des Trockenmittels gegenüber einer direkten Einleitung der Luft in den Fassadenzwischenraum erheblich erhöht werden kann. Auf diese Weise kann ein zweischaliges Fassadenelement konzipiert werden, dessen Austauschintervall trotz des Verzichts auf ein Kapillarrohr auch unter ungünstigen klimatischen Bedingungen bei mehr als 20 Jahren liegen kann.
  • Bei allen oben beschriebenen Varianten der Luftführung kann mit Hilfe eines einfachen Versuchs der Volumenstrom an Luft in Abhängigkeit von der anliegenden Druckdifferenz bestimmt werden. Über zielgerichtete Versuche kann der Zusammenhang zwischen dem Volumenstrom an Luft und der Druckdifferenz ermittelt werden, so dass er mathematisch beschrieben werden kann. Die Berechnung der Druckdifferenz über eine beliebig vorwählbaren Referenzzeitraum, z.B. ein Jahr, mithilfe stündlich verfügbarer Wetterdaten für einen definierten Standort wurde bereits ausführlich erläutert.
  • Allen dargestellten Ausführungsformen, die zum Teil Detaildarstellungen sind, ist gemeinsam, dass das erfindungsgemäße Fassadenelement auf zwei unterschiedliche Weisen gestaltet sein kann. Zum einen kann ein Umfassungsrahmenprofil für alle Komponenten des Fassadenelements vorgesehen sein, wobei entweder nur transparente Glaselemente vorgesehen sind, oder aber transparente Bereiche und zusätzlich opake Bereiche bevorzugt im Brüstungsbereich vorgesehen sind. Zum anderen können zwei Umfassungsrahmenprofile vorgesehen sein, ein Umfassungsrahmenprofil für die transparenten Glaselemente, sowie ein weiteres Umfassungsrahmenprofil für den opaken Bereich.
  • Das erfindungsgemäße Fassadenelement besitzt prinzipbedingt ein Luftvolumen im Fassadenzwischenraum, das weit über das Gasvolumen einer herkömmlichen Isolierglasscheibe hinausgeht. Daher sind die Gestaltungsmöglichkeiten bei Isolierglasscheiben auf zweischalige Fassadenelemente nicht übertragbar und eine regelmäßige Regeneration des Trockenmittels erforderlich, so dass alle Funktionselemente und insbesondere die Druckausgleichseinrichtung und Trocknungseinrichtung zugänglich, wartbar, sanierbar und austauschbar sein müssen. Darüber hinaus sind die Druckausgleichseinrichtung und die Trocknungseinrichtung so angeordnet und dimensioniert, dass sie sich nicht in einem transparenten Bereich des Fassadenelements befinden, was den Vorteil besitzt, dass sie vollständig in den Bereich des Umfassungsrahmenprofils integriert und damit für einen außenstehenden Betrachter vollkommen verdeckt sind.
  • Bezugszeichenliste
  • 1
    Fassadenelement
    2
    äußeres Glaselement
    3
    Fassadenzwischenraum
    4
    inneres Glaselement
    5
    Sonnenschutz
    5'
    Sonnenschutz im Brüstungsbereich
    6
    Hauptrahmenprofil des Umfassungsrahmenprofils
    6a, 6b
    Hauptrahmenprofilabschnitte
    7
    Subrahmenprofil des Umfassungsrahmenprofils
    8
    Dichtung
    9
    Verbindungsschraube
    10
    Glasleiste außen
    11
    Umfassungsrahmenprofil
    12
    transparenter Bereich
    13
    Hohlkammer im Hauptrahmenprofil
    14
    Trockenmittel
    15
    Öffnung
    16
    Austauscheinrichtung für Trockenmittel
    17
    Druckausgleichsteilsystem zwischen Subrahmenprofil und Trocknungseinrichtung im Hauptrahmenprofil
    18
    Druckausgleichsöffnung
    18a
    Einschuböffnung
    19
    Trockenmittelbehälter
    20
    Glasleiste
    21
    Luftleitelement
    23a
    Folie
    23b
    Folie
    24
    Dämmsteg
    25
    Innendichtung des äußeren Glaselements
    26
    Versiegelung innen des äußeren Glaselements
    27
    Versiegelung
    28
    innere Dehnfugendichtung
    29
    mittlere Dehnfugendichtung
    30
    äußere Dehnfugendichtung
    31
    Innendichtung oder innere Versiegelung
    32
    Dichtung innen des inneren Glaselements
    33
    Außendichtung
    34
    Druckausgleichsöffnung
    35
    langes Kapillarrohr
    36
    Filter
    37
    Druckausgleichsöffnung
    38
    Nut
    39
    Kunststoffprofil
    41
    Aufnahmenut
    42
    Druckausgleichsöffnung
    43
    Wartungsöffnung
    44
    Anschlussstutzen
    45
    Membran
    46
    Hohlraum
    47
    Kunststoffprofil
    48
    Spalt
    49
    Kunststoffprofil
    50
    Spalt
    51
    Nut
    53
    Nut
    55
    Spalt
    56
    Dampfbremse
    57
    Dichtung innen des inneren Paneels
    58
    Brüstungspanel (opak)
    59
    äußere Deckschale des Brüstungspaneels zur Raumseite hin
    60
    opake Beschichtung
    61
    innere Deckschale des Brüstungspaneels zur Raumseite hin
    62
    Dämmmaterial
    63
    Dichtteil
    64
    raumseitiges Abdichtelement
    65
    innerer Hohlraum der Austauscheinrichtung
    66
    Kunststoffprofil
    67
    Hohlkammer
    68
    Öffnung
    69
    Hohlraum des Trockenmittelbehälters
    70
    Filter
    72
    Druckausgleichsöffnung
    74
    Einbuchtung
    78
    Dehnfuge
    80
    Hohlkammer im Subrahmenprofil
    82
    erste Druckausgleichsöffnung
    84
    zweite Druckausgleichsöffnung
    86
    Eckwinkel
    88
    vorgesetzte Abdeckung
    90
    innerer Hohlraum der Abdeckung
    92
    Hülse
    94
    dritte Luftausgleichsöffnung
    96
    innerer Hohlraum des Subrahmenprofils
    98
    Trockenmittelschüttung
    100
    Einschubelement
    102
    erste Wand
    104
    zweite Wand
    106
    Querschott
    108
    Öffnung zur Trockenmittelkammer
    110
    innerer Hohlraum des Hauptprofilrahmens
    112a... 112f
    Öffnung zum Fassadenzwischenraum
    114
    Verteilerrohr
    116a...116e
    Austrittsöffnung
    118
    Rohrhülle
    120a...120e
    Einstellöffnung
    122
    Verschiebekulisse
    124
    Führung
    126a, 126b, 126c
    Blende

Claims (36)

  1. Zweischaliges Fassadenelement, umfassend:
    - ein flächiges Außenverglasungselement (2) und ein flächiges Innenverglasungselement (4), die voneinander beabstandet in einem wärmegedämmten Umfassungsrahmenprofil (6, 7) gehalten sind;
    - mindestens eine Druckausgleichseinrichtung (80, 13, 35; 41), die in luftleitender Verbindung zur Außenatmosphäre und zu einem Fassadenzwischenraum (3) steht, der zwischen dem Außenverglasungselement (2) und dem Innenverglasungselement (4) vorgesehen ist;
    - mindestens eine mit Trockenmittel (14) befüllbare Trocknungseinrichtung (80, 19, 13), die entweder im Fassadenzwischenraum (3) angeordnet oder in dem Umfassungsrahmenprofil (6, 7) integriert ist und in Luftaustausch mit dem Fassadenzwischenraum (3) steht; wobei
    - mindestens ein Kapillarelement (35, 44, 46, 47, 49, 50, 66) vorgesehen ist, das integraler Bestandteil des Umfassungsrahmenprofils (6, 7) ist, und bevorzugt zum Teil durch einen Abschnitt des Umfassungsrahmenprofils gebildet ist;
    - die Druckausgleichseinrichtung (80, 13, 35; 41) und die Trocknungseinrichtung (80, 19, 13) so angeordnet und dimensioniert sind, dass sie sich nicht in einen transparenten Bereich des Fassadenelements (1) erstrecken; und
    - die mindestens eine Trocknungseinrichtung gestaltet ist, um einen Austausch des Trockenmittels zu ermöglichen, und bevorzugt eine Austauschöffnung umfasst, die gestaltet ist, um einen Austausch des Trockenmittels in Richtung auf die Raumseite zu ermöglichen.
  2. Zweischaliges Fassadenelement nach Anspruch 1,
    dadurch gekennzeichnet, dass
    das mindestens eine Kapillarelement eine Membran (45) mit einem Kapillarrohr (46) umfasst, wobei das Kapillarrohr (46) eine Länge von höchstens 60mm und bevorzugt von höchstens 20mm und besonders bevorzugt von höchstens 10mm, und einen Innendurchmesser von höchstens 1,5mm und bevorzugt von höchstens 1.0mm besitzt.
  3. Zweischaliges Fassadenelement nach Anspruch 2,
    dadurch gekennzeichnet, dass
    das mindestens eine Kapillarelement ein Kapillarrohr (35) umfasst, das eine Länge von mindestens 200mm aufweist und bevorzugt eine Membran oder einen Filter (36) oder ein Sieb an der Öffnung des Kapillarrohrs (35) zum Außenklima aufweist.
  4. Zweischaliges Fassadenelement nach einem der vorhergehenden Ansprüche, dadurch gekennzeichnet, dass das mindestens eine Kapillarelement ein Kapillarrohr (35) umfasst, das vollständig im Umfassungsrahmenprofil des Fassadenelements integriert ist, vorzugsweise im Umfassungsrahmenprofil eingeklipst ist.
  5. Zweischaliges Fassadenelement nach einem der Ansprüche 1 bis 3, dadurch gekennzeichnet, dass
    - die Trocknungseinrichtung einen Trockenmittelbehälter (19) umfasst; und
    - das mindestens eine Kapillarelement ein Kapillarrohr (35) umfasst, das in den Trockenmittelbehälter integriert ist.
  6. Zweischaliges Fassadenelement nach einem der Ansprüche 1 bis 3, dadurch gekennzeichnet, dass
    - die Trocknungseinrichtung einen Trockenmittelbehälter (19) umfasst; und
    - das mindestens eine Kapillarelement ein Kapillarrohr (46) umfasst, das aus einer Nut (74) im Trockenmittelbehälter (19) und einer Wandung des Umfassungsrahmenprofils (6) gebildet ist.
  7. Zweischaliges Fassadenelement nach einem der Ansprüche 1 oder 3, dadurch gekennzeichnet, dass das Kapillarelement eine Nut (38; 53) im Umfassungsrahmenprofil (6, 7) und ein Abschlussprofil (49, 66) aus Kunststoff umfasst, wobei zwischen dem Abschlussprofil und mindestens einer inneren Wandung der Nut (38; 53) ein Hohlraum (48; 50; 51; 55) gebildet ist.
  8. Zweischaliges Fassadenelement nach einem der vorhergehenden Ansprüche, dadurch gekennzeichnet, dass das zweischalige Fassadenelement weiterhin
    - Mittel zur Verringerung der Dampfdiffusion umfasst, wobei
    - die Mittel zur Verringerung der Dampfdiffusion eine
    - Nassverglasung umfassen und
    - mindestens einen Dämmsteg (24) zur thermischen Trennung im wärmgedämmten Umfassungsrahmenprofil (6) aus einem Kunststoff mit hoher Dampfdichtigkeit und/oder mit einem Beschichtungsmaterial (23a, 23b) mit hoher Dampfdichtigkeit umfassen.
  9. Zweischaliges Fassadenelement, umfassend:
    - ein flächiges Außenverglasungselement (2) und ein flächiges Innenverglasungselement (4), die voneinander beabstandet in einem wärmegedämmten Umfassungsrahmenprofil (6, 7) gehalten sind;
    - mindestens eine Druckausgleichseinrichtung (80, 13, 35; 41), die in luftleitender Verbindung zur Außenatmosphäre und zu einem Fassadenzwischenraum (3) steht, der zwischen dem Außenverglasungselement (2) und dem Innenverglasungselement (4) vorgesehen ist;
    - mindestens eine mit Trockenmittel (14) befüllbare Trocknungseinrichtung (80, 19, 13), die entweder im Fassadenzwischenraum (3) angeordnet oder in dem Umfassungsrahmenprofil (6, 7) integriert ist und in Luftaustausch mit dem Fassadenzwischenraum (3) steht; wobei
    - das zweischalige Fassadenelement weiterhin Mittel zur Verringerung der Dampfdiffusion umfasst, wobei
    - die Mittel zur Verringerung der Dampfdiffusion eine
    - Nassverglasung umfassen und
    - mindestens einen Dämmsteg (24) zur thermischen Trennung im wärmgedämmten Umfassungsrahmenprofil (6) aus einem Kunststoff mit hoher Dampfdichtigkeit und/oder mit einem Beschichtungsmaterial (23a, 23b) mit hoher Dampfdichtigkeit umfassen;
    - die Druckausgleichseinrichtung (80, 13, 35; 41) und die Trocknungseinrichtung (80, 13, 35; 41) so angeordnet und dimensioniert sind, dass sie sich nicht in einen transparenten Bereich 12) des Fassadenelements (1) erstrecken; und
    - die mindestens eine Trocknungseinrichtung gestaltet ist, um einen Austausch des Trockenmittels zu ermöglichen, und bevorzugt eine Austauschöffnung umfasst, die gestaltet ist, um einen Austausch des Trockenmittels in Richtung auf die Raumseite zu ermöglichen.
  10. Zweischaliges Fassadenelement Anspruch 9,
    dadurch gekennzeichnet, dass
    die mindestens eine Druckausgleichseinrichtung ein Kapillarelement (35, 44, 46, 47, 49, 50, 66) umfasst.
  11. Zweischaliges Fassadenelement nach einem der Ansprüche 1 bis 10, dadurch gekennzeichnet, dass
    die Druckausgleichseinrichtung einen Hohlraum (80) umfasst, der eine Öffnung in den Fassadenzwischenraum (3) umfasst; und der Hohlraum (80) mit Trockenmitteln (14) befüllt ist.
  12. Zweischaliges Fassadenelement nach einem der vorhergehenden Ansprüche,
    dadurch gekennzeichnet, dass
    eine Öffnung in einer der mindestens einen Druckausgleichseinrichtung (80) in Strömungsverbindung steht mit einer zweiten Öffnung in einen mit Trockenmittel (14) befüllbaren Hohlraum (13) einer der mindestens einen Trocknungseinrichtung.
  13. Zweischaliges Fassadenelement nach einem der vorhergehenden Ansprüche, dadurch gekennzeichnet, dass die Trocknungseinrichtung einen mit Trockenmittel befüllbaren Trockenmittelbehälter umfasst, der am Umfassungsrahmenprofil (6) lösbar befestigbar ist.
  14. Zweischaliges Fassadenelement, umfassend:
    - ein flächiges Außenverglasungselement (2) und ein flächiges Innenverglasungselement (4), die voneinander beabstandet in einem wärmegedämmten Umfassungsrahmenprofil (6, 7) gehalten sind;
    - mindestens eine Druckausgleichseinrichtung, die in luftleitender Verbindung zur Außenatmosphäre und zu einem Fassadenzwischenraum (3) steht, der zwischen dem Außenverglasungselement (2) und dem Innenverglasungselement (4) vorgesehen ist, und eine Luftführungseinrichtung umfasst; wobei
    - der Druckverlust des Luftstroms beim Druckausgleich durch die Länge und/oder die Querschnittsabmessungen der Luftführungseinrichtung und/oder die Anzahl an Umlenkungen des durch die Luftführungseinrichtung strömenden Luftstroms bestimmbar und vorzugsweise einstellbar ist;
    - mindestens eine mit einer Trockenmittelschüttung (98) befüllbare Trocknungseinrichtung (80, 19, 13), die in dem Umfassungsrahmenprofil (6, 7) integriert ist, wobei
    - die mindestens eine Trocknungseinrichtung mindestens eine erste Öffnung umfasst, die in luftleitender Verbindung zum Fassadenzwischenraum steht;
    - die mindestens eine Druckausgleichseinrichtung und die mindestens eine Trocknungseinrichtung (80, 19, 13) so angeordnet und dimensioniert sind, dass sie sich nicht in einen transparenten Bereich des Fassadenelements (1) erstrecken, und
    - die mindestens eine Trocknungseinrichtung gestaltet ist, um einen Austausch des Trockenmittels zu ermöglichen, und bevorzugt eine Austauschöffnung umfasst, die gestaltet ist, um einen Austausch des Trockenmittels in Richtung auf die Raumseite zu ermöglichen.
  15. Zweischaliges Fassadenelement, umfassend:
    - ein flächiges Außenverglasungselement (2) und ein flächiges Innenverglasungselement (4), die voneinander beabstandet in einem wärmegedämmten Umfassungsrahmenprofil (6, 7) gehalten sind;
    - mindestens eine Druckausgleichseinrichtung, die eine Luftführungseinrichtung umfasst und in luftleitender Verbindung zur Außenatmosphäre und zu einem Fassadenzwischenraum (3) steht, der zwischen dem Außenverglasungselement (2) und dem Innenverglasungselement (4) vorgesehen ist;
    - mindestens eine mit einer Trockenmittelschüttung (14, 98) befüllbare Trocknungseinrichtung (80, 19, 13), die in dem Umfassungsrahmenprofil (6, 7) integriert ist, wobei
    - die mindestens eine Trocknungseinrichtung (80, 19, 13) mindestens eine erste Öffnung umfasst, die in luftleitender Verbindung zum Fassadenzwischenraum steht, sowie mindestens eine zweite Öffnung, die in luftleitender Verbindung zur Luftführungseinrichtung steht;
    - der Druckverlust des Luftstroms beim Druckausgleich durch den Druckverlust beim Durchströmen der mindestens einen Trocknungseinrichtung und Luftführungseinrichtung bestimmbar und vorzugsweiseeinstellbar ist;
    - die mindestens eine Druckausgleichseinrichtung und die mindestens eine Trocknungseinrichtung (80, 19, 13) so angeordnet und dimensioniert sind, dass sie sich nicht in einen transparenten Bereich des Fassadenelements (1) erstrecken; und
    - die mindestens eine Trocknungseinrichtung gestaltet ist, um einen Austausch des Trockenmittels zu ermöglichen, und bevorzugt eine Austauschöffnung umfasst, die gestaltet ist, um einen Austausch des Trockenmittels in Richtung auf die Raumseite zu ermöglichen.
  16. Zweischaliges Fassadenelement nach einem der vorhergehenden Ansprüche, dadurch gekennzeichnet, dass ein Trockenmittelverbrauch pro Zeitspanne in Abhängigkeit von einem Standort des Fassadenelements, der Art von Trockenmittel sowie Konstruktionsmerkmalen des Fassadenelements abschätzbar ist.
  17. Zweischaliges Fassadenelement nach einem der Ansprüche 14 und 16, dadurch gekennzeichnet, dass die Luftführungseinrichtung eine auf dem Umfassungsrahmenprofil (6, 7) befestigbare Abdeckung (88) umfasst, die vorzugsweise auf das Subrahmenprofil aufgeschraubt oder aufgeklipst ist.
  18. Zweischaliges Fassadenelement nach Anspruch 17, dadurch gekennzeichnet, dass die befestigbare Abdeckung (88) aus einem Kunststoff mit Adsorptionsvermögen für Wasser besteht,
  19. Zweischaliges Fassadenelement nach einem der Ansprüche 16 bis 18, dadurch gekennzeichnet, dass die Luftführungseinrichtung Umlenkelemente (106) umfasst, durch die ein gewundener Strömungsweg der Luft durch die Luftführungseinrichtung (88) erzeugbar ist.
  20. Zweischaliges Fassadenelement nach einem der Ansprüche 1 bis 19, dadurch gekennzeichnet, dass die mindestens eine Trocknungseinrichtung in Hohlräume der in Einbauposition vertikal angeordneten Elemente des Umfassungsrahmenprofils (6, 7) integriert ist.
  21. Zweischaliges Fassadenelement nach einem der Ansprüche 1 bis 19, dadurch gekennzeichnet, dass die mindestens eine Trocknungseinrichtung sowohl in Hohlräume der in Einbauposition vertikal angeordneten Elemente des Umfassungsrahmenprofils (6, 7) als auch in Hohlräume der in Einbauposition horizontal angeordneten Elemente des Umfassungsrahmenprofils (6, 7) integriert ist.
  22. Zweischaliges Fassadenelement nach einem der Ansprüche 1 bis 21, dadurch gekennzeichnet, dass das zweischalige Fassadenelement weiterhin
    - Mittel zur Verringerung der Dampfdiffusion umfasst, wobei
    - die Mittel zur Verringerung der Dampfdiffusion eine
    - Nassverglasung umfassen und
    - mindestens einen Dämmsteg (24) zur thermischen Trennung im wärmgedämmten Umfassungsrahmenprofil (6) aus einem Kunststoff mit hoher Dampfdichtigkeit und/oder mit einem Beschichtungsmaterial (23a, 23b) mit hoher Dampfdichtigkeit umfassen.
  23. Zweischaliges Fassadenelement nach Anspruch 8, 9 oder 22, dadurch gekennzeichnet, dass die Mittel zur Verringerung der Dampfdiffusion Dämmstege (24) umfassen, die ein Beschichtungsmaterial (23a, 23b) mit hoher Dampfdichtigkeit umfassen, wobei das Beschichtungsmaterial umlaufend auf Gehrungsecken des Umfassungsrahmenprofils aufgebracht ist, wobei vorzugsweise das Beschichtungsmaterial auf dem gesamten Rahmenumfang einschließlich Gehrungsecken aufgebracht ist.
  24. Zweischaliges Fassadenelement nach einem der Ansprüche 22 oder 23, dadurch gekennzeichnet, dass der Dämmsteg (24) mit einer Folie aus dünnem Edelstahl oder Butyl beschichtet ist, oder der Dämmsteg (24) aus einem metallbedampften Kunststoff besteht.
  25. Zweischaliges Fassadenelement nach einem der Ansprüche 22 bis 24, dadurch gekennzeichnet, dass der Dämmsteg (24) zumindest teilweise aus Polyvinylidenflourid besteht.
  26. Zweischaliges Fassadenelement nach einem der vorhergehenden Ansprüche,
    dadurch gekennzeichnet, dass das Umfassungsrahmenprofil (6, 7) ein Hauptrahmenprofil (6) sowie ein Subrahmenprofil (7) umfasst; wobei
    das Hauptrahmenprofil (6) und das Subrahmenprofil (7) über Verbindungsmittel (9) lösbar miteinander verbunden sind, und das Subrahmenprofil (7) das Außenverglasungselement (2) hält.
  27. Zweischaliges Fassadenelement nach Anspruch 23, dadurch gekennzeichnet, dass eine Dichtung (8) zwischen dem Hauptrahmenprofil (6) und dem Subrahmenprofil (7) angeordnet ist, wobei die Dichtung vorzugsweise dampfdicht ist.
  28. Zweischaliges Fassadenelement nach Anspruch 26 oder 27,
    dadurch gekennzeichnet, dass
    die mindestens eine Druckausgleichseinrichtung (80, 13) im Hauptrahmenprofil (6) oder im Subrahmenprofil (7) angeordnet ist.
  29. Zweischaliges Fassadenelement nach einem der vorhergehenden Ansprüche, weiter umfassend mindestens eine Sonnenschutzreinrichtung (5) im Fassadenzwischenraum (3) zwischen dem Außenverglasungselement (2) und dem Innenverglasungselement (4), wobei die Sonnenschutzeinrichtung (5) vorzugsweise adaptiv ausgestaltet ist.
  30. Zweischaliges Fassadenelement nach einem der vorhergehenden Ansprüche,
    dadurch gekennzeichnet, dass
    das Innenverglasungselement (4) entweder Mehrscheibenisolierglas, bevorzugt mit zwei oder drei Glasscheiben, oder Vakuumisolierglas umfasst.
  31. Zweischaliges Fassadenelement nach einem der vorhergehenden Ansprüche,
    dadurch gekennzeichnet, dass
    das Außenverglasungselement (2) als Monoglas bevorzugt als Verbundglas oder Verbundsicherheitsglas, vorgesehen ist und bevorzugt mindestens eine Funktionsschicht (60) umfasst, besonders bevorzugt eine wellenlängenselektive Beschichtung.
  32. Zweischaliges Fassadenelement nach einem der vorhergehenden Ansprüche, dadurch gekennzeichnet, dass die Trocknungseinrichtung einen mit Trockenmittel befüllbaren Hohlraum umfasst, der integraler Bestandteil des Umfassungsrahmenprofils (6) ist und eine Austauschöffnung aufweist, die gestaltet ist, um einen Austausch des Trockenmittels zu ermöglichen.
  33. Zweischaliges Fassadenelement nach einem der vorhergehenden Ansprüche,
    dadurch gekennzeichnet, dass
    die mindestens eine Druckausgleichseinrichtung ein elastisches Profil (66) umfasst mit mindestens einer Öffnung (68), die in einem luftleitenden Verbindungspfad zwischen dem Fassadenzwischenraum (3) und der Außenatmosphäre angeordnet ist.
  34. Zweischaliges Fassadenelement nach einem der vorhergehenden Ansprüche, weiter umfassend
    ein opakes Innenelement (58) und ein Außenelement (2, 60), die voneinander beabstandet gehalten sind, wobei das Außenelement vorzugsweise transparent ist.
  35. Zweischaliges Fassadenelement nach Anspruch 34, dadurch gekennzeichnet, dass das opake Innenelement (56) und das transparente Außenelement (2) in einem weiteren Umfassungsrahmenprofil gehalten sind.
  36. Zweischaliges Fassadenelement nach einem der vorhergehenden Ansprüche, dadurch gekennzeichnet, dass die Druckausgleichseinrichtung (80, 13, 35; 41) und die Trocknungseinrichtung (80, 19, 13) im Fassadenzwischenraum (3) durch Öffnen oder Entfernen des Außenverglasungselements (2) oder eines opaken Außenelements (60) oder des Innenverglasungselements (4) oder eines opaken Brüstungselements (56) zugänglich sind.
EP22757276.5A 2021-07-27 2022-07-26 Zweischaliges fassadenelement Active EP4377528B1 (de)

Applications Claiming Priority (2)

Application Number Priority Date Filing Date Title
DE202021103997.3U DE202021103997U1 (de) 2021-07-27 2021-07-27 Zweischaliges Fassadenelement
PCT/EP2022/070905 WO2023006723A1 (de) 2021-07-27 2022-07-26 Zweischaliges fassadenelement

Publications (2)

Publication Number Publication Date
EP4377528A1 EP4377528A1 (de) 2024-06-05
EP4377528B1 true EP4377528B1 (de) 2025-05-21

Family

ID=82942429

Family Applications (1)

Application Number Title Priority Date Filing Date
EP22757276.5A Active EP4377528B1 (de) 2021-07-27 2022-07-26 Zweischaliges fassadenelement

Country Status (5)

Country Link
US (1) US12529231B2 (de)
EP (1) EP4377528B1 (de)
CA (1) CA3227536A1 (de)
DE (1) DE202021103997U1 (de)
WO (1) WO2023006723A1 (de)

Families Citing this family (2)

* Cited by examiner, † Cited by third party
Publication number Priority date Publication date Assignee Title
DE102023107791A1 (de) * 2023-03-28 2024-10-02 SCHÜCO International KG Structural-Glazing-Konstruktion und Verfahren zum Auswechseln einer Isolierglasscheibe einer Structural-Glazing-Konstruktion
CN121036650B (zh) * 2025-10-28 2026-02-06 南通久金玻璃制品有限公司 一种用于光伏幕墙的中空玻璃热电一体化装置

Family Cites Families (26)

* Cited by examiner, † Cited by third party
Publication number Priority date Publication date Assignee Title
US2880475A (en) * 1957-05-10 1959-04-07 Mills Prod Inc Window unit
US4952430A (en) * 1985-05-16 1990-08-28 Ppg Industries, Inc. Insulated window units
CH684801A5 (de) 1988-04-26 1994-12-30 Troesch Autoglas Ag Mehrscheibenisolierglas.
US7997037B2 (en) * 2003-06-23 2011-08-16 Ppg Industries Ohio, Inc. Integrated window sash with groove for desiccant material
EP1970525B1 (de) 2007-03-15 2016-10-05 GIG Holding GmbH Glasfassadenelement
CA2715337A1 (en) * 2008-02-19 2009-08-27 Plus Inventia Ag Spacer having a desiccant for an insulating glass pane
US7975442B1 (en) * 2009-07-15 2011-07-12 International Aluminum Corporation Control of migration of cold manifestation, from exterior, in multiple glazed window or door systems
DE102010010491A1 (de) 2010-03-06 2011-09-08 Helmut Köster Nicht hinterlüftete, zweischalige Fassadenelemente
US8782971B2 (en) * 2010-07-22 2014-07-22 Advanced Glazing Technologies Ltd. (Agtl) System for pressure equalizing and drying sealed translucent glass glazing units
EP2441910B1 (de) 2010-10-13 2015-08-05 seele group GmbH & Co. KG Fassadenelement
CH706179B1 (de) 2012-02-21 2017-12-29 Prof Michael Lange Ingenieurgesellschaft Mbh Doppelfassade mit Sonnenschutz.
US9290986B2 (en) * 2012-12-20 2016-03-22 Saint-Gobain Glass France Insulating glazing having a pressure-equalizing element
WO2015006847A1 (en) * 2013-07-19 2015-01-22 Litezone Technologies Inc. Pressure compensated glass unit
US10125537B2 (en) * 2014-07-18 2018-11-13 Litezone Technologies Inc. Pressure compensated glass unit
WO2017064160A1 (de) * 2015-10-13 2017-04-20 Saint-Gobain Glass France Eckverbinder mit kapillare
MX2019000739A (es) * 2016-07-29 2019-05-20 Masonite Corp Ensambles de puerta con ventilacion de unidad de vidrio aislante.
WO2018054564A1 (de) * 2016-09-20 2018-03-29 Saint-Gobain Glass France Isolierverglasung und deren verwendung
US10227817B2 (en) * 2017-05-08 2019-03-12 Advanced Building Systems, Inc. Vented insulated glass unit
DE202017002674U1 (de) 2017-05-19 2017-07-10 Seele Product Holding Gmbh Isolierverglasung
DE202017104406U1 (de) 2017-07-24 2018-10-25 Frener & Reifer GmbH Gebäudefassadensystem mit hygroskopischem und autoreaktivem Entfeuchtungsmechanismus
KR20200077589A (ko) 2017-12-07 2020-06-30 쌩-고벵 글래스 프랑스 막(membrane) 및 모세관을 갖는 압력평형체를 포함하는 단열 글레이징
RU2745783C1 (ru) * 2018-01-16 2021-03-31 Сэн-Гобэн Гласс Франс Стеклопакет и способ его изготовления
US11585146B2 (en) * 2018-07-10 2023-02-21 Prof. Michael Lange Ingenieurgesellschaft mbh Building envelope
RU2708215C1 (ru) * 2019-07-01 2019-12-04 Андрей Валентинович Никитин Адаптивный изолирующий стеклопакет (варианты)
US12209453B2 (en) * 2021-11-05 2025-01-28 Mario Valderrama Chaparro Intelligent insulating construction partition and construction process
US20240117669A1 (en) * 2022-02-24 2024-04-11 PDS IG Holding LLC Spacer with desiccant within a tube-shaped cavity

Also Published As

Publication number Publication date
EP4377528A1 (de) 2024-06-05
CA3227536A1 (en) 2023-02-02
WO2023006723A1 (de) 2023-02-02
US20240271425A1 (en) 2024-08-15
US12529231B2 (en) 2026-01-20
DE202021103997U1 (de) 2022-10-28

Similar Documents

Publication Publication Date Title
EP1970525B1 (de) Glasfassadenelement
EP2526247B1 (de) Randverbundklammer für isolierglaseinheit, randverbund einer isolierglaseinheit, isolierglaseinheit mit randverbundklammer
EP4377528B1 (de) Zweischaliges fassadenelement
CH636164A5 (de) Verfahren zum herstellen eines rahmens fuer fenster, tueren oder dgl. sowie danach hergestellter rahmen mit zwei scheiben.
EP3404190B1 (de) Mehrscheibenelement mit öffnungsmöglichkeit für den zwischenraum
WO2017064166A1 (de) Verbinder zur verbindung von zwei hohlprofilleisten mit membran
EP3362629A1 (de) Eckverbinder mit kapillare
WO2010097179A1 (de) Brandschutzverglasung
EP1436471A1 (de) Paneele mit einem vakuumelement für aussenwandkonstruktionen
DE202021104133U1 (de) Paneel zur Ausfachung einer Profilrahmenkonstruktion
DE4424524C2 (de) Fassadenkonstruktion in zweischaliger Bauweise
CH706179B1 (de) Doppelfassade mit Sonnenschutz.
WO2020011338A1 (de) Gebäudehülle mit einem multifunktionsglaselement
EP3658733B1 (de) Gebäudefassadensystem mit hygroskopischem und autoreaktivem entfeuchtungsmechanismus
EP0345211B1 (de) Mehrscheibenisolierglas und Verglasung
EP2463601A2 (de) Solarfassadenelement, Solarfassadensystem
DE102007018305A1 (de) Profilrahmenkonstruktion mit verringertem linearen Wärmedurchgangskoeffizienten
AT372749B (de) Isolierglasscheibe
EP3835505B1 (de) Gebäudefassadenelement, anbauelement und verwendung einer membran zur belüftung eines zwischenraums zwischen einer aussen- und innenverglasung
EP1127991B1 (de) Holz-Metall-Rahmenkonstruktion mit Feuchteentlastung
DE10204585B4 (de) Sonnenkollektor zum vorzugsweisen Betrieb mit gasförmigen Medien
EP0292595B1 (de) Mehrscheibenisolierglas
WO2019141445A1 (de) Isolierverglasung, verfahren zu deren herstellung und verwendung derselben
EP1607566A2 (de) Effektpaneel
EP3384120A1 (de) Abstandhalter mit druckausgleich für isolierglaseinheiten

Legal Events

Date Code Title Description
STAA Information on the status of an ep patent application or granted ep patent

Free format text: STATUS: UNKNOWN

STAA Information on the status of an ep patent application or granted ep patent

Free format text: STATUS: THE INTERNATIONAL PUBLICATION HAS BEEN MADE

PUAI Public reference made under article 153(3) epc to a published international application that has entered the european phase

Free format text: ORIGINAL CODE: 0009012

STAA Information on the status of an ep patent application or granted ep patent

Free format text: STATUS: REQUEST FOR EXAMINATION WAS MADE

17P Request for examination filed

Effective date: 20240226

AK Designated contracting states

Kind code of ref document: A1

Designated state(s): AL AT BE BG CH CY CZ DE DK EE ES FI FR GB GR HR HU IE IS IT LI LT LU LV MC MK MT NL NO PL PT RO RS SE SI SK SM TR

DAV Request for validation of the european patent (deleted)
DAX Request for extension of the european patent (deleted)
GRAP Despatch of communication of intention to grant a patent

Free format text: ORIGINAL CODE: EPIDOSNIGR1

STAA Information on the status of an ep patent application or granted ep patent

Free format text: STATUS: GRANT OF PATENT IS INTENDED

INTG Intention to grant announced

Effective date: 20241210

GRAS Grant fee paid

Free format text: ORIGINAL CODE: EPIDOSNIGR3

GRAA (expected) grant

Free format text: ORIGINAL CODE: 0009210

STAA Information on the status of an ep patent application or granted ep patent

Free format text: STATUS: THE PATENT HAS BEEN GRANTED

AK Designated contracting states

Kind code of ref document: B1

Designated state(s): AL AT BE BG CH CY CZ DE DK EE ES FI FR GB GR HR HU IE IS IT LI LT LU LV MC MK MT NL NO PL PT RO RS SE SI SK SM TR

REG Reference to a national code

Ref country code: GB

Ref legal event code: FG4D

Free format text: NOT ENGLISH

REG Reference to a national code

Ref country code: CH

Ref legal event code: EP

REG Reference to a national code

Ref country code: DE

Ref legal event code: R096

Ref document number: 502022004050

Country of ref document: DE

REG Reference to a national code

Ref country code: IE

Ref legal event code: FG4D

Free format text: LANGUAGE OF EP DOCUMENT: GERMAN

PGFP Annual fee paid to national office [announced via postgrant information from national office to epo]

Ref country code: NL

Payment date: 20250728

Year of fee payment: 4

Ref country code: LU

Payment date: 20250707

Year of fee payment: 4

REG Reference to a national code

Ref country code: NL

Ref legal event code: FP

PG25 Lapsed in a contracting state [announced via postgrant information from national office to epo]

Ref country code: FI

Free format text: LAPSE BECAUSE OF FAILURE TO SUBMIT A TRANSLATION OF THE DESCRIPTION OR TO PAY THE FEE WITHIN THE PRESCRIBED TIME-LIMIT

Effective date: 20250521

Ref country code: PT

Free format text: LAPSE BECAUSE OF FAILURE TO SUBMIT A TRANSLATION OF THE DESCRIPTION OR TO PAY THE FEE WITHIN THE PRESCRIBED TIME-LIMIT

Effective date: 20250922

Ref country code: ES

Free format text: LAPSE BECAUSE OF FAILURE TO SUBMIT A TRANSLATION OF THE DESCRIPTION OR TO PAY THE FEE WITHIN THE PRESCRIBED TIME-LIMIT

Effective date: 20250521

PGFP Annual fee paid to national office [announced via postgrant information from national office to epo]

Ref country code: DE

Payment date: 20250728

Year of fee payment: 4

REG Reference to a national code

Ref country code: LT

Ref legal event code: MG9D

PG25 Lapsed in a contracting state [announced via postgrant information from national office to epo]

Ref country code: GR

Free format text: LAPSE BECAUSE OF FAILURE TO SUBMIT A TRANSLATION OF THE DESCRIPTION OR TO PAY THE FEE WITHIN THE PRESCRIBED TIME-LIMIT

Effective date: 20250822

Ref country code: NO

Free format text: LAPSE BECAUSE OF FAILURE TO SUBMIT A TRANSLATION OF THE DESCRIPTION OR TO PAY THE FEE WITHIN THE PRESCRIBED TIME-LIMIT

Effective date: 20250821

PG25 Lapsed in a contracting state [announced via postgrant information from national office to epo]

Ref country code: PL

Free format text: LAPSE BECAUSE OF FAILURE TO SUBMIT A TRANSLATION OF THE DESCRIPTION OR TO PAY THE FEE WITHIN THE PRESCRIBED TIME-LIMIT

Effective date: 20250521

PG25 Lapsed in a contracting state [announced via postgrant information from national office to epo]

Ref country code: BG

Free format text: LAPSE BECAUSE OF FAILURE TO SUBMIT A TRANSLATION OF THE DESCRIPTION OR TO PAY THE FEE WITHIN THE PRESCRIBED TIME-LIMIT

Effective date: 20250521

PGFP Annual fee paid to national office [announced via postgrant information from national office to epo]

Ref country code: BE

Payment date: 20250707

Year of fee payment: 4

PG25 Lapsed in a contracting state [announced via postgrant information from national office to epo]

Ref country code: HR

Free format text: LAPSE BECAUSE OF FAILURE TO SUBMIT A TRANSLATION OF THE DESCRIPTION OR TO PAY THE FEE WITHIN THE PRESCRIBED TIME-LIMIT

Effective date: 20250521

PGFP Annual fee paid to national office [announced via postgrant information from national office to epo]

Ref country code: AT

Payment date: 20251020

Year of fee payment: 4

Ref country code: FR

Payment date: 20250707

Year of fee payment: 4

PGFP Annual fee paid to national office [announced via postgrant information from national office to epo]

Ref country code: CH

Payment date: 20250801

Year of fee payment: 4

PG25 Lapsed in a contracting state [announced via postgrant information from national office to epo]

Ref country code: RS

Free format text: LAPSE BECAUSE OF FAILURE TO SUBMIT A TRANSLATION OF THE DESCRIPTION OR TO PAY THE FEE WITHIN THE PRESCRIBED TIME-LIMIT

Effective date: 20250821

PG25 Lapsed in a contracting state [announced via postgrant information from national office to epo]

Ref country code: IS

Free format text: LAPSE BECAUSE OF FAILURE TO SUBMIT A TRANSLATION OF THE DESCRIPTION OR TO PAY THE FEE WITHIN THE PRESCRIBED TIME-LIMIT

Effective date: 20250921

PG25 Lapsed in a contracting state [announced via postgrant information from national office to epo]

Ref country code: LV

Free format text: LAPSE BECAUSE OF FAILURE TO SUBMIT A TRANSLATION OF THE DESCRIPTION OR TO PAY THE FEE WITHIN THE PRESCRIBED TIME-LIMIT

Effective date: 20250521

PG25 Lapsed in a contracting state [announced via postgrant information from national office to epo]

Ref country code: DK

Free format text: LAPSE BECAUSE OF FAILURE TO SUBMIT A TRANSLATION OF THE DESCRIPTION OR TO PAY THE FEE WITHIN THE PRESCRIBED TIME-LIMIT

Effective date: 20250521

Ref country code: SM

Free format text: LAPSE BECAUSE OF FAILURE TO SUBMIT A TRANSLATION OF THE DESCRIPTION OR TO PAY THE FEE WITHIN THE PRESCRIBED TIME-LIMIT

Effective date: 20250521

PG25 Lapsed in a contracting state [announced via postgrant information from national office to epo]

Ref country code: CZ

Free format text: LAPSE BECAUSE OF FAILURE TO SUBMIT A TRANSLATION OF THE DESCRIPTION OR TO PAY THE FEE WITHIN THE PRESCRIBED TIME-LIMIT

Effective date: 20250521

PG25 Lapsed in a contracting state [announced via postgrant information from national office to epo]

Ref country code: EE

Free format text: LAPSE BECAUSE OF FAILURE TO SUBMIT A TRANSLATION OF THE DESCRIPTION OR TO PAY THE FEE WITHIN THE PRESCRIBED TIME-LIMIT

Effective date: 20250521

PG25 Lapsed in a contracting state [announced via postgrant information from national office to epo]

Ref country code: SK

Free format text: LAPSE BECAUSE OF FAILURE TO SUBMIT A TRANSLATION OF THE DESCRIPTION OR TO PAY THE FEE WITHIN THE PRESCRIBED TIME-LIMIT

Effective date: 20250521

PG25 Lapsed in a contracting state [announced via postgrant information from national office to epo]

Ref country code: IT

Free format text: LAPSE BECAUSE OF FAILURE TO SUBMIT A TRANSLATION OF THE DESCRIPTION OR TO PAY THE FEE WITHIN THE PRESCRIBED TIME-LIMIT

Effective date: 20250521