CN102839706A - 一种大型矿用液压挖掘机上部平台 - Google Patents
一种大型矿用液压挖掘机上部平台 Download PDFInfo
- Publication number
- CN102839706A CN102839706A CN2012103660362A CN201210366036A CN102839706A CN 102839706 A CN102839706 A CN 102839706A CN 2012103660362 A CN2012103660362 A CN 2012103660362A CN 201210366036 A CN201210366036 A CN 201210366036A CN 102839706 A CN102839706 A CN 102839706A
- Authority
- CN
- China
- Prior art keywords
- revolving dial
- contiguous block
- mine hydraulic
- hydraulic crawler
- upper brace
- Prior art date
- Legal status (The legal status is an assumption and is not a legal conclusion. Google has not performed a legal analysis and makes no representation as to the accuracy of the status listed.)
- Granted
Links
- 238000001816 cooling Methods 0.000 claims abstract description 29
- 238000009434 installation Methods 0.000 claims description 7
- 244000062793 Sorghum vulgare Species 0.000 claims description 5
- 235000019713 millet Nutrition 0.000 claims description 5
- 238000003466 welding Methods 0.000 claims description 4
- NJPPVKZQTLUDBO-UHFFFAOYSA-N novaluron Chemical compound C1=C(Cl)C(OC(F)(F)C(OC(F)(F)F)F)=CC=C1NC(=O)NC(=O)C1=C(F)C=CC=C1F NJPPVKZQTLUDBO-UHFFFAOYSA-N 0.000 abstract description 4
- 230000015572 biosynthetic process Effects 0.000 description 4
- 230000009286 beneficial effect Effects 0.000 description 2
- 108010066114 cabin-2 Proteins 0.000 description 2
- 239000003638 chemical reducing agent Substances 0.000 description 2
- 239000012530 fluid Substances 0.000 description 2
- 238000004519 manufacturing process Methods 0.000 description 2
- 230000000712 assembly Effects 0.000 description 1
- 238000000429 assembly Methods 0.000 description 1
- 230000007812 deficiency Effects 0.000 description 1
- 238000006073 displacement reaction Methods 0.000 description 1
- 230000001815 facial effect Effects 0.000 description 1
- 239000002828 fuel tank Substances 0.000 description 1
- 238000010338 mechanical breakdown Methods 0.000 description 1
Images
Landscapes
- Body Structure For Vehicles (AREA)
Abstract
本发明公开了一种大型矿用液压挖掘机上部平台,包括回转平台、驾驶室底座、冷却装置、动力装置、平衡重与回转支承,驾驶室底座、冷却装置、动力装置与平衡重均安装在回转平台上,回转平台通过回转支承转动安装在挖掘机的底架粱上,回转平台包括一底板、两箱梁及两翼板,两所述箱梁相对所述底板的纵向轴线横向隔开一定距离焊接在所述底板上,两所述翼板位于所述底板上方,分别焊接在两所述箱梁的外侧。本发明中回转平台采用箱梁结构,强度高,且均通过箱梁上销轴连接动臂与动臂油缸,受力平衡,采用连接块对和紧固件在回转平台上安装驾驶室底座和冷却装置,方便快捷,采用双动力装置,动力更足。
Description
技术领域
本发明涉及大型矿用液压挖掘机,尤其与大型矿用液压挖掘机上部平台的结构有关。
背景技术
大型矿用液压挖掘机的结构如图1与图2所示,主要由工作装置1(包括动臂11)、驾驶室2、行走机构3及上部平台4组成。
如图3所示,上部平台4主要包括回转支承46、回转平台41、驾驶室底座42、冷却装置43、动力装置44与平衡重45。回转平台41通过回转支承46转动安装在挖掘机的底架粱上。驾驶室底座42、冷却装置43、动力装置44与平衡重45均安装在回转平台41上,可与回转平台41一起转动。其中,驾驶室底座42布置在回转平台41左侧(以靠近动臂11的方向为前方),冷却装置43布置在回转平台41右侧,动力装置44布置在回转平台41后部,平衡重45布置在回转平台41尾部。
现有技术中,驾驶室底座42通过侧面和底面两个法兰固定安装在回转平台41上,由于侧面法兰的螺栓数量多,定位、装配和拆卸工作量非常大。冷却装置43则需要先将底座通过三个侧面法兰安装在回转平台41上,再将冷却装置43及其外罩现场焊接在底座上,三个侧法兰的加工面大,螺栓数量多,定位、装配和拆卸工作量大,而且增加了现场焊接工作量和定位尺寸误差。动力装置44为挖掘机的动力源,其电机通过减速机连接主泵,在现有技术中采用单电机驱动,电机的输出轴轴线垂直于回转平台的中心线,使得主泵到阀块的管路距离增长布局复杂,而且提高液压系统故障率。另外,该布局方式,只能采取单电机单驱动,而无法采取双电机驱动,但是由于大型矿用液压挖掘机向大型化发展,铲斗斗容量、电机功率、马达排量等都将相应增大,司机室底座42、冷却装置43、动力装置44等上部平台组件的体积增大,重量增加,使得单电机驱动很难满足动力需求,因此现有技术已经受到严重局限。
最后,现有技术中回转平台4的立面结构(即支撑动臂11的架体)与底面结构分别设置,两者之间再进行连接,容易因强度不足产生机械故障,影响挖掘机的整机安全性。而且,动臂11跟脚连接回转平台4的立面结构,动臂油缸12跟脚连接回转平台4的底面结构,动臂11跟脚和动臂油缸12跟脚分别位于不同的受力面上,受力不平衡,容易发生故障。
发明内容
针对现有技术中存在的问题,本发明的目的为提供一种装配便捷可靠、双电机驱动且回转平台强度高、受力平衡的大型矿用液压挖掘机上部平台。
为实现上述目的,本发明的技术方案如下:
一种大型矿用液压挖掘机上部平台,包括:
回转平台,所述回转平台包括一底板、两箱梁及两翼板,两所述箱梁相对所述底板的纵向轴线横向隔开一定距离焊接在所述底板上,两所述翼板位于所述底板上方,分别焊接在两所述箱梁的外侧,两所述箱梁的上部与前部具有分别连接所述挖掘机的动臂与动臂油缸的两销孔;
驾驶室底座,所述驾驶室底座通过连接块对与紧固件安装在所述回转平台前部左侧的所述箱梁与翼板上;
冷却装置,所述冷却装置通过连接块对与紧固件安装在所述回转平台前部右侧的所述箱梁与翼板上;
动力装置,所述动力装置为两个,所述动力装置的输出轴位于前部,两所述动力装置通过设置在两所述箱梁两侧的连接支座与紧固件对称安装在所述两所述箱梁后部上;
平衡重,所述平衡重通过连接块对与紧固件安装在两所述所述箱梁的尾部上;
回转支承,所述回转支承包括动圈与静圈,所述动圈与所述静圈相互转动配合,所述动圈固定安装在所述回转平台下部,所述静圈固定安装在所述挖掘机底架粱上,所述静圈上设置有内齿圈,所述回转马达固定安装在所述回转平台上,所述回转马达输出轴上安装有与所述内齿圈相配的小齿轮。
进一步,每一所述箱梁均包括相互连接成箱型的两侧板、一顶板与所述底板。
进一步,两所述翼板与所述底板之间焊接设置有多个筋板。
进一步,两所述箱梁尾部均焊接有尾板。
进一步,所述连接块对包括两连接块,所述两连接块平面配合,且对应位置上分别加工有相配的光孔与螺纹孔。
进一步,所述驾驶室底座与所述冷却装置的侧面均通过所述连接块对及所述紧固件固定安装在所述箱梁外侧上,所述驾驶室底座与所述冷却装置的底部均通过所述连接块对及所述紧固件固定安装在所述翼板的上部。
进一步,所述尾板后部设置有定位块,所述平衡重的前侧面顶靠所述定位块。
进一步,所述回转平台底部分别加工有方便所述动圈及所述回转马达定位安装的定位槽与定位孔。
进一步,所述回转马达共有三个,均位于两所述箱梁之间,其中一个位于所述底板的纵向轴线上,另外两个对称地位于所述底板的纵向轴线的两侧。
进一步,所述紧固件为螺栓。
本发明的有益效果在于,本发明与现有技术相比,本发明中回转平台采用箱梁结构,强度高,且均通过箱梁上销孔连接动臂与动臂油缸,受力平衡,采用连接块对和紧固件在回转平台上安装驾驶室底座和冷却装置,方便快捷,采用两动力装置,动力更足,本发明更加安全、可靠,且未提高制作成本,有很强的市场价值。
附图说明
下面结合附图对本发明作进一步详细说明:
图1为大型矿用液压挖掘机主视结构示意图;
图2为大型矿用液压挖掘机左视结构(去除工作装置)示意图;
图3为现有技术的大型矿用液压挖掘机上部平台俯视结构示意图;
图4为本发明的大型矿用液压挖掘机上部平台俯视结构示意图;
图5为本发明的大型矿用液压挖掘机上部平台中回转平台主视结构示意图;
图6为本发明的大型矿用液压挖掘机上部平台中回转平台俯视结构示意图;
图7为本发明的大型矿用液压挖掘机上部平台中回转平台左视结构示意图;
图8为本发明的大型矿用液压挖掘机上部平台中回转平台与驾驶室底座连接结构示意图;
图9为本发明的大型矿用液压挖掘机上部平台中回转平台与冷却装置连接结构示意图;
图10为本发明的大型矿用液压挖掘机上部平台中回转平台与动力装置连接结构示意图;
图11为本发明的大型矿用液压挖掘机上部平台中回转平台与平衡重连接结构示意图。
图12为本发明的大型矿用液压挖掘机上部平台中回转平台与回转支承连接结构示意图。
具体实施方式
体现本发明特征与优点的典型实施例将在以下的说明中详细叙述。应理解的是本发明能够在不同的实施例上具有各种的变化,其皆不脱离本发明的范围,且其中的说明及附图在本质上是当作说明之用,而非用以限制本发明。
本发明中,大型矿用液压挖掘机的结构也如图1与图2所示,主要由工作装置1(包括动臂11)、驾驶室2、行走机构3及本发明的上部平台5组成。
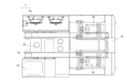
如图4所示,本发明的上部平台5包括回转平台51、驾驶室底座52、冷却装置53、动力装置54、平衡重55与回转支承56。其中,驾驶室底座52、冷却装置53、动力装置54及平衡重55均安装在回转平台51上,回转平台51通过回转支承56转动安装在挖掘机的底架粱上。
如图5-图7所示,回转平台51包括一底板511、四侧板512、两顶板513、两翼板514、两尾板515、多个筋板517、多个连接块510、八销孔518及四连接支座516。底板511包括主底板5111与辅底板5112,主底板5111位于前部,辅底板5112位于后部,主底板5111与辅底板5112之间焊接连接。主底板5111为主要承重部件,厚度较大,辅底板5112厚度较小。主底板5111中部加工有三组(前部一组、后部两组)安装回转马达的安装孔5115,每组安装孔5115均呈圆周分布。辅底板5112的设置能最大限度地减少底板511的总重,以降低上部平台5的总的转动惯量。主底板5111中部加工有方孔5113,以方便液压管路及液压泵的安装;辅底板5112中部加工有矩形孔5114,以方便液压管路与油箱等部件的设置。
侧板512共有四个,每个侧板512的下部平直,上部前端为山峰形状,后端低于前端峰值并与下部平行,两端之间平滑过渡。每个侧板512的下部均焊接在底板511上,且均相互平行。每两个侧板512为一组,每一顶板513焊接连接一组侧板512之间,顶板513的延伸形状与侧板512上部形状相配,每两侧板512与对应顶板513及底板511形成一箱梁,共有两个箱梁,两箱梁之间相互平行,前后方向延伸,与回转平台51等长。两箱梁外侧面上对应安装驾驶室底座52与冷却装置53的位置上焊接有多个连接块510,连接块510安装面为一平面,内部加工有螺纹孔。箱梁尾部的上部也焊接有与上述连接块510结构相同的连接块510,每个箱梁上一个,共两个。
两翼板514位于主底板5111的上方,且焊接在箱梁的外侧,在两翼板514与主底板5111之间焊接有多条筋板517,以加强两翼板514的强度。两翼板514的上部平面上对应安装驾驶室底座52与冷却装置53的位置上焊接有多个连接块510,连接块510安装面为一平面,内部加工有螺纹孔。两翼板514在连接块510相邻位置上加工有凹槽5140,以便于通过连接块进行装配时手工操作。
四侧板512上对应加工有八个销孔518,以配合分别穿过两组侧板512的四销轴,四销轴分别用于连接挖掘机的动臂11与动臂油缸12。八销孔518中四个销孔518(对应两销轴)位置对应,分别位于两箱梁的上方,八销孔518中另四个销孔518(对应另两销轴)位置对应,分别位于两箱梁的前方。
在两箱梁后部,对应辅底板5112位置上,两箱梁两侧均分别焊接连接支座516,连接支座516上平面与两箱梁上平面等高,且连接支座516上加工有多个通孔。每个箱梁每一侧焊接两个连接支座516,共有八个连接支座516,两个箱梁上的连接支座516位置对应。在两箱梁尾部还分别焊接有两尾板515,以封闭该箱梁,两尾板515的后部平面上焊接有定位块5151(如图11所示)。
如图8所示,驾驶室底座52对应箱梁外侧连接块510的位置上也焊接有连接块521,与箱梁外侧上的连接块510形成连接块对。驾驶室底座52上的连接块521安装面也为一平面,以与箱梁外侧上的连接块相互平面定位,驾驶室底座52上的连接块521上加工有光孔。驾驶室底座52对应翼板514上部连接块510的位置上也焊接有连接块522,与翼板514上部上的连接块510形成连接块对。驾驶室底座52上的连接块522安装面也为一平面,以与翼板514上部上的连接块510相互平面定位,驾驶室底座52上的连接块522上加工有光孔。驾驶室底座52通过连接块对与螺栓6(该螺栓6穿过驾驶室底座52上的连接块521、522上的光孔,与箱梁外侧或翼板514上部的连接块510上的螺纹孔配合连接)安装在回转平台51前部左侧的箱梁与翼板514上。驾驶室底座52在回转平台51上的安装包括水平方向与竖直方向两个方向的定位,定位准确,装配方便快捷。
如图9所示,冷却装置53的架体对应箱梁外侧连接块510的位置上也焊接有连接块531,与箱梁外侧上的连接块510形成连接块对。冷却装置53上的连接块531安装面也为一平面,以与箱梁外侧上的连接块510相互平面定位,冷却装置53上的连接块531上加工有光孔,通过螺栓6与侧板512连接在一起。冷却装置53对应翼板514上部连接块510的位置上加工有安装孔,可通过螺栓与翼板514连接在一起。冷却装置53在回转平台51上的安装包括水平方向与竖直方向两个方向的定位,定位准确,装配方便快捷。
如图10所示,动力装置54的主体为电机541,共两个,电机541位于座体542上,两座体542分别安装在回转平台51后部(对应辅底板5112的位置)两侧,且两电机541的输出轴朝向前方。两座体542底部加工有光孔,光孔位置与连接支座516上的通孔位置对应,通过螺栓螺母将两座体542固定安装在连接支座516上,从而使得两动力装置54对称安装在回转平台51后部两侧的箱梁上。
如图11所示,平衡重55对应箱梁尾部连接块510的位置上也焊接有连接块551,与箱梁尾部上的连接块510形成连接块对。平衡重55上的连接块551安装面也为一平面,以与箱梁尾部上的连接块510相互平面定位,平衡重55上的连接块上加工有光孔。平衡重55的前侧面顶靠尾板515上的定位块5151,与尾板515上的定位块5151在竖直面内实现定位,从而实现平衡重55在回转平台51上水平与竖直两个方向的定位,定位准确,装配方便快捷。
如图12所示,回转支承56包括动圈562与静圈561。动圈562与静圈561之间通过轴承565相互转动配合,动圈562固定安装在回转平台51底部,静圈561固定安装在挖掘机底架粱上,静圈561内环面上设置有内齿圈。一回转马达563固定安装在回转平台51上,回转马达563连接的减速机输出轴上连接设置有小齿轮564,小齿轮564与静圈561的内齿圈相啮合。回转平台51底部分别加工有定位槽5117与定位孔5116,以方便动圈562及回转马达563的定位安装。回转马达563共有三个,均位于两箱梁之间,其中一个安装在回转平台51前部的中心线上,另外两个对称安装在回转平台51后部的中心线两侧。
本发明的有益效果在于,本发明与现有技术相比,本发明中回转平台51采用箱梁结构,强度高,且均通过箱梁上销孔连接动臂11与动臂油缸12,受力平衡,采用连接块对和紧固件在回转平台51上安装驾驶室底座52和冷却装置53,方便快捷,采用两动力装置54,动力更足,本发明更加安全、可靠,且未提高制作成本,有很强的市场价值。
本发明的技术方案已由优选实施例揭示如上。本领域技术人员应当意识到在不脱离本发明所附的权利要求所揭示的本发明的范围和精神的情况下所作的更动与润饰,均属本发明的权利要求的保护范围之内。
Claims (10)
1.一种大型矿用液压挖掘机上部平台,其特征在于,包括:
回转平台,所述回转平台包括一底板、两箱梁及两翼板,两所述箱梁相对所述底板的纵向轴线横向隔开一定距离焊接在所述底板上,两所述翼板位于所述底板上方,分别焊接在两所述箱梁的外侧,两所述箱梁的上部与前部具有分别连接所述挖掘机的动臂与动臂油缸的两销孔;
驾驶室底座,所述驾驶室底座通过连接块对与紧固件安装在所述回转平台前部左侧的所述箱梁与翼板上;
冷却装置,所述冷却装置通过连接块对与紧固件安装在所述回转平台前部右侧的所述箱梁与翼板上;
动力装置,所述动力装置为两个,所述动力装置的输出轴位于前部,两所述动力装置通过设置在两所述箱梁两侧的连接支座与紧固件对称安装在所述两所述箱梁后部上;
平衡重,所述平衡重通过连接块对与紧固件安装在两所述所述箱梁的尾部上;
回转支承,所述回转支承包括动圈与静圈,所述动圈与所述静圈相互转动配合,所述动圈固定安装在所述回转平台下部,所述静圈固定安装在所述挖掘机底架粱上,所述静圈上设置有内齿圈,所述回转马达固定安装在所述回转平台上,所述回转马达输出轴上安装有与所述内齿圈相配的小齿轮。
2.如权利要求1所述的大型矿用液压挖掘机上部平台,其特征在于,每一所述箱梁均包括相互连接成箱型的两侧板、一顶板与所述底板。
3.如权利要求1所述的大型矿用液压挖掘机上部平台,其特征在于,两所述翼板与所述底板之间焊接设置有多个筋板。
4.如权利要求1所述的大型矿用液压挖掘机上部平台,其特征在于,两所述箱梁尾部均焊接有尾板。
5.如权利要求2所述的大型矿用液压挖掘机上部平台,其特征在于,所述连接块对包括两连接块,所述两连接块平面配合,且对应位置上分别加工有相配的光孔与螺纹孔。
6.如权利要求5所述的大型矿用液压挖掘机上部平台,其特征在于,所述驾驶室底座与所述冷却装置的侧面均通过所述连接块对及所述紧固件固定安装在所述箱梁外侧上,所述驾驶室底座与所述冷却装置的底部均通过所述连接块对及所述紧固件固定安装在所述翼板的上部。
7.如权利要求4所述的大型矿用液压挖掘机上部平台,其特征在于,所述尾板后部设置有定位块,所述平衡重的前侧面顶靠所述定位块。
8.如权利要求1所述的大型矿用液压挖掘机上部平台,其特征在于,所述回转平台底部分别加工有方便所述动圈及所述回转马达定位安装的定位槽与定位孔。
9.如权利要求8所述的大型矿用液压挖掘机上部平台,其特征在于,所述回转马达共有三个,均位于两所述箱梁之间,其中一个位于所述底板的纵向轴线上,另外两个对称地位于所述底板的纵向轴线的两侧。
10.如权利要求1-9任一所述的大型矿用液压挖掘机上部平台,其特征在于,所述紧固件为螺栓。
Priority Applications (1)
| Application Number | Priority Date | Filing Date | Title |
|---|---|---|---|
| CN201210366036.2A CN102839706B (zh) | 2012-09-27 | 2012-09-27 | 一种大型矿用液压挖掘机上部平台 |
Applications Claiming Priority (1)
| Application Number | Priority Date | Filing Date | Title |
|---|---|---|---|
| CN201210366036.2A CN102839706B (zh) | 2012-09-27 | 2012-09-27 | 一种大型矿用液压挖掘机上部平台 |
Publications (2)
| Publication Number | Publication Date |
|---|---|
| CN102839706A true CN102839706A (zh) | 2012-12-26 |
| CN102839706B CN102839706B (zh) | 2014-07-16 |
Family
ID=47367408
Family Applications (1)
| Application Number | Title | Priority Date | Filing Date |
|---|---|---|---|
| CN201210366036.2A Active CN102839706B (zh) | 2012-09-27 | 2012-09-27 | 一种大型矿用液压挖掘机上部平台 |
Country Status (1)
| Country | Link |
|---|---|
| CN (1) | CN102839706B (zh) |
Cited By (3)
| Publication number | Priority date | Publication date | Assignee | Title |
|---|---|---|---|---|
| CN103114814A (zh) * | 2013-03-13 | 2013-05-22 | 重庆平山矿山机电设备有限公司 | 一种钻机及其回转装置 |
| CN104088318A (zh) * | 2014-07-22 | 2014-10-08 | 徐工集团工程机械股份有限公司道路机械分公司 | 一种箱型结构的步履式挖掘机回转平台 |
| CN104088322A (zh) * | 2014-07-12 | 2014-10-08 | 黄健 | 一种微型挖掘机回转架 |
Citations (6)
| Publication number | Priority date | Publication date | Assignee | Title |
|---|---|---|---|---|
| JPH1150492A (ja) * | 1997-06-03 | 1999-02-23 | Hitachi Constr Mach Co Ltd | 旋回式建設機械 |
| CN1904235A (zh) * | 2005-07-25 | 2007-01-31 | 沃尔沃建造设备控股(瑞典)有限公司 | 支承建筑机械驾驶室的上框架的结构 |
| US20070163826A1 (en) * | 2005-12-27 | 2007-07-19 | Doosan Infracore Co., Ltd. | Upper swing body with minimized rear protrusion in excavator |
| CN201296942Y (zh) * | 2008-11-03 | 2009-08-26 | 广西玉林玉柴工程机械有限责任公司 | 液压挖掘机转台主体 |
| CN101793039A (zh) * | 2009-12-22 | 2010-08-04 | 太原重工股份有限公司 | 矿用液压挖掘机的回转装置 |
| JP2010196408A (ja) * | 2009-02-26 | 2010-09-09 | Hitachi Constr Mach Co Ltd | 建設機械の旋回フレーム |
-
2012
- 2012-09-27 CN CN201210366036.2A patent/CN102839706B/zh active Active
Patent Citations (6)
| Publication number | Priority date | Publication date | Assignee | Title |
|---|---|---|---|---|
| JPH1150492A (ja) * | 1997-06-03 | 1999-02-23 | Hitachi Constr Mach Co Ltd | 旋回式建設機械 |
| CN1904235A (zh) * | 2005-07-25 | 2007-01-31 | 沃尔沃建造设备控股(瑞典)有限公司 | 支承建筑机械驾驶室的上框架的结构 |
| US20070163826A1 (en) * | 2005-12-27 | 2007-07-19 | Doosan Infracore Co., Ltd. | Upper swing body with minimized rear protrusion in excavator |
| CN201296942Y (zh) * | 2008-11-03 | 2009-08-26 | 广西玉林玉柴工程机械有限责任公司 | 液压挖掘机转台主体 |
| JP2010196408A (ja) * | 2009-02-26 | 2010-09-09 | Hitachi Constr Mach Co Ltd | 建設機械の旋回フレーム |
| CN101793039A (zh) * | 2009-12-22 | 2010-08-04 | 太原重工股份有限公司 | 矿用液压挖掘机的回转装置 |
Cited By (3)
| Publication number | Priority date | Publication date | Assignee | Title |
|---|---|---|---|---|
| CN103114814A (zh) * | 2013-03-13 | 2013-05-22 | 重庆平山矿山机电设备有限公司 | 一种钻机及其回转装置 |
| CN104088322A (zh) * | 2014-07-12 | 2014-10-08 | 黄健 | 一种微型挖掘机回转架 |
| CN104088318A (zh) * | 2014-07-22 | 2014-10-08 | 徐工集团工程机械股份有限公司道路机械分公司 | 一种箱型结构的步履式挖掘机回转平台 |
Also Published As
| Publication number | Publication date |
|---|---|
| CN102839706B (zh) | 2014-07-16 |
Similar Documents
| Publication | Publication Date | Title |
|---|---|---|
| CN103273242A (zh) | 中小型轮式装载机后车架一体化焊模机构 | |
| US8177017B2 (en) | Traveling working machine | |
| CN104458179B (zh) | 带有扩展台面的四台并激垂直振动试验系统 | |
| CN102839706B (zh) | 一种大型矿用液压挖掘机上部平台 | |
| CN105297798A (zh) | 用于机器的联动组件的动臂 | |
| CN203186473U (zh) | 履带式底盘及履带式工程机械 | |
| CN105297800A (zh) | 用于机器的机具系统的联动组件 | |
| CN104176139A (zh) | 起重机及起重机上履带架与车架之间的间隙调整方法 | |
| CN104691619B (zh) | 一种用于高空作业平台的底盘结构 | |
| CN103043565A (zh) | 一种叉装车 | |
| CN102501794B (zh) | 一种混凝土搅拌运输车 | |
| CN203877756U (zh) | 起重机的车架和起重机 | |
| CN101570217A (zh) | 一种履带行走机构 | |
| CN209141984U (zh) | 大吨位电动轮自卸车用车厢 | |
| CN203713977U (zh) | 一种无车桥车架 | |
| CN205059110U (zh) | 一种v型推力杆支座 | |
| CN104512842A (zh) | 一种用于高空作业平台的机座总成 | |
| CN222887623U (zh) | 一种超大型单缸圆锥破碎主机测试台架 | |
| CN211715157U (zh) | 快速搬家垛式液压支架 | |
| CN204323485U (zh) | 底盘车架及汽车起重机 | |
| CN205186287U (zh) | 车架、底盘及工程机械 | |
| CN202041370U (zh) | 司机室防护试验加载倾角调整装置 | |
| CN208455619U (zh) | 一种打桩机的缓冲装置 | |
| CN207292135U (zh) | 一种特种装备底盘车用车架总成 | |
| CN101125563A (zh) | 一种三支点工业车辆车架 |
Legal Events
| Date | Code | Title | Description |
|---|---|---|---|
| C06 | Publication | ||
| PB01 | Publication | ||
| C10 | Entry into substantive examination | ||
| SE01 | Entry into force of request for substantive examination | ||
| C14 | Grant of patent or utility model | ||
| GR01 | Patent grant |