CN201999647U - 一种双小车、双主梁结构的铸造起重机 - Google Patents
一种双小车、双主梁结构的铸造起重机 Download PDFInfo
- Publication number
- CN201999647U CN201999647U CN2011201187892U CN201120118789U CN201999647U CN 201999647 U CN201999647 U CN 201999647U CN 2011201187892 U CN2011201187892 U CN 2011201187892U CN 201120118789 U CN201120118789 U CN 201120118789U CN 201999647 U CN201999647 U CN 201999647U
- Authority
- CN
- China
- Prior art keywords
- main
- dolly
- trolley
- beams
- hoists
- Prior art date
- Legal status (The legal status is an assumption and is not a legal conclusion. Google has not performed a legal analysis and makes no representation as to the accuracy of the status listed.)
- Expired - Fee Related
Links
- 230000000630 rising effect Effects 0.000 claims description 3
- 238000004519 manufacturing process Methods 0.000 abstract description 5
- 229910001338 liquidmetal Inorganic materials 0.000 description 3
- 230000009286 beneficial effect Effects 0.000 description 2
- 230000000694 effects Effects 0.000 description 2
- 238000005265 energy consumption Methods 0.000 description 2
- 239000002893 slag Substances 0.000 description 2
- 241001347978 Major minor Species 0.000 description 1
- 238000003723 Smelting Methods 0.000 description 1
- 238000005266 casting Methods 0.000 description 1
- 238000010276 construction Methods 0.000 description 1
- 230000007812 deficiency Effects 0.000 description 1
- 238000005516 engineering process Methods 0.000 description 1
- 239000000725 suspension Substances 0.000 description 1
- 239000013585 weight reducing agent Substances 0.000 description 1
Images
Landscapes
- Carriers, Traveling Bodies, And Overhead Traveling Cranes (AREA)
Abstract
本实用新型公开一种双小车、双主梁结构的铸造起重机,包含小车与主梁;其中,所述双小车为主起升小车和副起升小车,副起升小车布置在主起升小车上;所述主梁共2根,双主梁平行布置,主升小车安装在双主梁之上,双主梁之间由中间端梁连接,中间端梁安装在双主梁两端;在主起升小车上设置轨道,所述副起升小车安装在主升小车上设置的轨道上;主升小车与副升小车共用一套小车电缆导电装置;中间端梁与主梁的之间为铰接,中间端梁为小箱型端梁;本实用新型整机自重减轻,主起升小车轨距可减小,整机宽度减小,从而使加大了厂房的空间利用,使得整机更加实用简洁,制造成本明显降低。
Description
技术领域
本实用新型涉及一种起重设备,特别是涉及一种双小车、双主梁结构的铸造起重机。
背景技术
铸造起重机在冶炼、铸造行业应用十分广泛。对于此行业吊运液态金属包、渣罐等且需要倾翻倒出的铸造起重机,现目前主要采用四主梁、双小车的结构形式如附图1所示,即主小车起升采用两个叠片式吊钩的龙门钩装置起吊液态金属包、渣罐,副小车采用单钩配合主小车龙门钩调整钩间距倒出液态金属及其残渣的四主梁结构形式。此结构形式自重大,大车轮压大,制作、安装、维护相对复杂,造成制造成本高,厂房承轨梁成本高,且由于起重机总高及总宽尺寸大,造成厂房长度及高度的建设成本高。为此,需要不断创新开发出低成本、低能耗、简洁实用的新型结构的产品。
实用新型内容
本实用新型的目的,就是为了克服上述铸造起重机的不足,改进铸造起重机的大车桥架结构和主副小车的布置形式,提出一种新型的双小车、双主梁结构的铸造起重机,从而达到低成本、低能耗、简洁实用的目的。
本实用新型解决其技术问题所采用的技术方案是:一种双小车、双主梁结构的铸造起重机,包含双小车与双主梁;其中,所述双小车为主起升小车和副起升小车,副起升小车布置在主起升小车上;所述双主梁共2根,双主梁平行布置,主升小车安装在双主梁之上,双主梁之间由中间端梁连接,中间端梁安装在双主梁两端。
作为本实用新型的进一步改进,在主起升小车上设置轨道,所述副起升小车安装在主升小车上设置的轨道上。
作为本实用新型的进一步改进,主升小车与副升小车共用一套小车电缆导电装置。
作为本实用新型的进一步改进,中间端梁与主梁的之间为铰接,中间端梁为小箱型端梁。
与现有技术相比,本实用新型具备了以下的有益效果:
1、采用双主梁,中间端梁不承受吊重载荷,中间端梁仅起到同步牵引与保持小车轨距的作用,对结构强度要求不高,大大节省制造成本。
2、小车采用副起升小车置于主起升小车之上,相对四主梁双小车结构形式的起重机可较大辐度减小主起升小车轨距,整机宽度减小,加大了厂房的空间利用,且主起升小车与副起升小车供电共用一套小车电缆导电装置。
3、整机自重相对四梁、双小车铸造起重机减轻,大车轮压减小,对厂房承轨梁强度要求降低。
由于副起升小车布置在主起升小车上,减去了副主梁,整机自重减轻,主起升小车轨距可减小,整机宽度减小,从而使加大了厂房的空间利用,使得整机更加实用简洁,制造成本明显降低。
附图说明
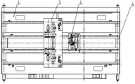
图1为四主梁、双小车结构的铸造起重机俯视图;
图2为本实用新型的主视图;
图3为本实用新型的俯视图。
具体实施方式
下面将结合附图和实施例对本发明做进一步的描述。
如附图2-3所示,一种双小车、双主梁结构的铸造起重机,包含双小车与双主梁;其中,所述小车为主起升小车3和副起升小车2,副起升小车2布置在主起升小车3上;所述主梁1共2根,双主梁平行布置,主升小车3安装在双主梁之上,双主梁之间由中间端梁4连接,中间端梁4安装在双主梁两端;在主起升小车3上设置轨道,所述副起升小车2安装在主升小车上设置的轨道上;主升小车2与副升小车3共用一套小车电缆导电装置;中间端梁4与主梁1的之间为铰接,中间端梁4为小箱型端梁。
与现有技术相比,本实用新型具备了以下的有益效果:
1、采用双主梁,中间端梁不承受吊重载荷,中间端梁仅起到同步牵引与保持小车轨距的作用,对结构强度要求不高,大大节省制造成本。
2、小车采用副起升小车置于主起升小车之上,相对四主梁双小车结构形式的起重机可较大辐度减小主起升小车轨距,整机宽度减小,加大了厂房的空间利用,且主起升小车与副起升小车供电共用一套小车电缆导电装置。
3、整机自重相对四梁、双小车铸造起重机减轻,大车轮压减小,对厂房承轨梁强度要求降低。
Claims (4)
1.一种双小车、双主梁结构的铸造起重机,包含双小车与双主梁;其特征在于:所述双小车为主起升小车和副起升小车,副起升小车布置在主起升小车上;所述双主梁共2根,双主梁平行布置,主起升小车安装在双主梁之上,双主梁之间由中间端梁连接,中间端梁安装在双主梁两端。
2.如权利要求1所述的一种双小车、双主梁结构的铸造起重机,其特征在于,所述主起升小车上设置轨道,所述副起升小车安装在主升小车上设置的轨道上。
3.如权利要求1所述的一种双小车、双主梁结构的铸造起重机,其特征在于,所述主升小车与副升小车共用一套小车电缆导电装置。
4.如权利要求1所述的一种双小车、双主梁结构的铸造起重机,其特征在于,所述的中间端梁与主梁的之间为铰接,中间端梁为小箱型端梁。
Priority Applications (1)
| Application Number | Priority Date | Filing Date | Title |
|---|---|---|---|
| CN2011201187892U CN201999647U (zh) | 2011-04-21 | 2011-04-21 | 一种双小车、双主梁结构的铸造起重机 |
Applications Claiming Priority (1)
| Application Number | Priority Date | Filing Date | Title |
|---|---|---|---|
| CN2011201187892U CN201999647U (zh) | 2011-04-21 | 2011-04-21 | 一种双小车、双主梁结构的铸造起重机 |
Publications (1)
| Publication Number | Publication Date |
|---|---|
| CN201999647U true CN201999647U (zh) | 2011-10-05 |
Family
ID=44702394
Family Applications (1)
| Application Number | Title | Priority Date | Filing Date |
|---|---|---|---|
| CN2011201187892U Expired - Fee Related CN201999647U (zh) | 2011-04-21 | 2011-04-21 | 一种双小车、双主梁结构的铸造起重机 |
Country Status (1)
| Country | Link |
|---|---|
| CN (1) | CN201999647U (zh) |
Cited By (6)
| Publication number | Priority date | Publication date | Assignee | Title |
|---|---|---|---|---|
| CN105858492A (zh) * | 2016-06-17 | 2016-08-17 | 新乡市豫新起重机械有限公司 | 一种地铁井口出渣专用起重机 |
| CN106006395A (zh) * | 2016-06-17 | 2016-10-12 | 新乡市豫新起重机械有限公司 | 一种地铁出土专用双主梁双小车龙门式起重机 |
| CN107522100A (zh) * | 2017-08-22 | 2017-12-29 | 太原科技大学 | 移动定滑轮组副起升机构铸造起重机小车 |
| CN107720550A (zh) * | 2017-11-08 | 2018-02-23 | 太原科技大学 | 铸造起重机主副吊一体小车副钩定滑轮组平移运行算法 |
| CN113753761A (zh) * | 2021-08-09 | 2021-12-07 | 浙江省建设工程机械集团有限公司 | 一种带有主副起重系统的塔机 |
| CN114476933A (zh) * | 2022-01-25 | 2022-05-13 | 宁夏天地奔牛银起设备有限公司 | 四梁铸造起重机桥架结构 |
-
2011
- 2011-04-21 CN CN2011201187892U patent/CN201999647U/zh not_active Expired - Fee Related
Cited By (8)
| Publication number | Priority date | Publication date | Assignee | Title |
|---|---|---|---|---|
| CN105858492A (zh) * | 2016-06-17 | 2016-08-17 | 新乡市豫新起重机械有限公司 | 一种地铁井口出渣专用起重机 |
| CN106006395A (zh) * | 2016-06-17 | 2016-10-12 | 新乡市豫新起重机械有限公司 | 一种地铁出土专用双主梁双小车龙门式起重机 |
| CN107522100A (zh) * | 2017-08-22 | 2017-12-29 | 太原科技大学 | 移动定滑轮组副起升机构铸造起重机小车 |
| CN107720550A (zh) * | 2017-11-08 | 2018-02-23 | 太原科技大学 | 铸造起重机主副吊一体小车副钩定滑轮组平移运行算法 |
| CN107720550B (zh) * | 2017-11-08 | 2019-05-03 | 太原科技大学 | 铸造起重机主副吊一体小车副钩定滑轮组平移运行算法 |
| CN113753761A (zh) * | 2021-08-09 | 2021-12-07 | 浙江省建设工程机械集团有限公司 | 一种带有主副起重系统的塔机 |
| CN113753761B (zh) * | 2021-08-09 | 2024-02-13 | 浙江省建设工程机械集团有限公司 | 一种带有主副起重系统的塔机 |
| CN114476933A (zh) * | 2022-01-25 | 2022-05-13 | 宁夏天地奔牛银起设备有限公司 | 四梁铸造起重机桥架结构 |
Similar Documents
| Publication | Publication Date | Title |
|---|---|---|
| CN201999647U (zh) | 一种双小车、双主梁结构的铸造起重机 | |
| CN201089696Y (zh) | 一种防爆悬挂起重机的主梁 | |
| CN202643142U (zh) | 一种双梁门式起重机翻转结构 | |
| CN203247031U (zh) | 遮板运输吊装装置 | |
| CN203428754U (zh) | 电动葫芦上下小车单梁结构 | |
| CN201793319U (zh) | 起重机主梁 | |
| CN202729637U (zh) | 大跨度工件的安装机械 | |
| CN103498418B (zh) | 挂篮组装件移位装置及施工方法 | |
| CN203112378U (zh) | 塔式起重机标准节的引进装置 | |
| CN203373019U (zh) | 一种低高度桥式起重机 | |
| CN203237934U (zh) | 电动葫芦起重机端梁装置 | |
| CN201587828U (zh) | 龙门吊 | |
| CN201762035U (zh) | 一种简易行车活动臂 | |
| CN203612020U (zh) | 移动式运杆车 | |
| CN202785373U (zh) | 一种双小车门式起重机 | |
| CN201660377U (zh) | 超长大吨位专用龙门吊车 | |
| CN202575694U (zh) | 圆弧面型设备吊装工具 | |
| CN203654191U (zh) | 一种用于斜拉索吊运上桥的装置 | |
| CN103058072A (zh) | 一种大型动臂塔式起重机引进机构 | |
| CN202131011U (zh) | 一种双小车龙门吊过渡吊梁 | |
| CN204324743U (zh) | 一种适用于吊运长状物品的门式起重机 | |
| CN212198218U (zh) | 一种带斜拉索的龙门起重机 | |
| CN203513030U (zh) | 一种应用于货梯的同轴双导向轮对重装置 | |
| CN203112385U (zh) | 大型动臂塔式起重机引进机构 | |
| CN201220884Y (zh) | 一种双梁起重机 |
Legal Events
| Date | Code | Title | Description |
|---|---|---|---|
| C14 | Grant of patent or utility model | ||
| GR01 | Patent grant | ||
| CF01 | Termination of patent right due to non-payment of annual fee |
Granted publication date: 20111005 Termination date: 20150421 |
|
| EXPY | Termination of patent right or utility model |