EP1227446B2 - Method and apparatus for document processing - Google Patents
Method and apparatus for document processing Download PDFInfo
- Publication number
- EP1227446B2 EP1227446B2 EP02008595.7A EP02008595A EP1227446B2 EP 1227446 B2 EP1227446 B2 EP 1227446B2 EP 02008595 A EP02008595 A EP 02008595A EP 1227446 B2 EP1227446 B2 EP 1227446B2
- Authority
- EP
- European Patent Office
- Prior art keywords
- user
- bills
- bill
- error condition
- Prior art date
- Legal status (The legal status is an assumption and is not a legal conclusion. Google has not performed a legal analysis and makes no representation as to the accuracy of the status listed.)
- Expired - Lifetime
Links
- 238000000034 method Methods 0.000 title claims description 87
- 238000012545 processing Methods 0.000 title description 26
- 238000011156 evaluation Methods 0.000 claims description 96
- 230000008859 change Effects 0.000 claims description 51
- 230000007723 transport mechanism Effects 0.000 claims description 40
- 230000015654 memory Effects 0.000 claims description 23
- 230000032258 transport Effects 0.000 description 103
- 230000008569 process Effects 0.000 description 52
- 238000012360 testing method Methods 0.000 description 27
- 230000005291 magnetic effect Effects 0.000 description 17
- 238000003825 pressing Methods 0.000 description 17
- 230000003287 optical effect Effects 0.000 description 16
- 238000001514 detection method Methods 0.000 description 15
- 230000006870 function Effects 0.000 description 14
- 230000037361 pathway Effects 0.000 description 10
- 239000000463 material Substances 0.000 description 8
- 239000004020 conductor Substances 0.000 description 7
- 238000013479 data entry Methods 0.000 description 6
- 230000007246 mechanism Effects 0.000 description 6
- 238000004891 communication Methods 0.000 description 5
- 239000011159 matrix material Substances 0.000 description 5
- 229920000728 polyester Polymers 0.000 description 5
- 230000009471 action Effects 0.000 description 4
- 238000010586 diagram Methods 0.000 description 4
- 230000004907 flux Effects 0.000 description 4
- 230000012447 hatching Effects 0.000 description 3
- 238000007689 inspection Methods 0.000 description 3
- 230000009057 passive transport Effects 0.000 description 3
- 238000011084 recovery Methods 0.000 description 3
- 230000004044 response Effects 0.000 description 3
- 230000035945 sensitivity Effects 0.000 description 3
- 230000004308 accommodation Effects 0.000 description 2
- 230000008901 benefit Effects 0.000 description 2
- 238000012423 maintenance Methods 0.000 description 2
- 238000012986 modification Methods 0.000 description 2
- 230000004048 modification Effects 0.000 description 2
- 239000002991 molded plastic Substances 0.000 description 2
- 230000009467 reduction Effects 0.000 description 2
- 230000000284 resting effect Effects 0.000 description 2
- 230000005355 Hall effect Effects 0.000 description 1
- 238000013459 approach Methods 0.000 description 1
- 230000005540 biological transmission Effects 0.000 description 1
- 238000004140 cleaning Methods 0.000 description 1
- 230000001427 coherent effect Effects 0.000 description 1
- 238000010276 construction Methods 0.000 description 1
- 230000000994 depressogenic effect Effects 0.000 description 1
- 238000012850 discrimination method Methods 0.000 description 1
- 238000009826 distribution Methods 0.000 description 1
- 230000002708 enhancing effect Effects 0.000 description 1
- 239000004973 liquid crystal related substance Substances 0.000 description 1
- 230000005389 magnetism Effects 0.000 description 1
- 239000012528 membrane Substances 0.000 description 1
- 238000012544 monitoring process Methods 0.000 description 1
- 239000004033 plastic Substances 0.000 description 1
- 229920006267 polyester film Polymers 0.000 description 1
- 230000008092 positive effect Effects 0.000 description 1
- 238000002310 reflectometry Methods 0.000 description 1
- 238000012552 review Methods 0.000 description 1
- 238000000926 separation method Methods 0.000 description 1
- 239000002689 soil Substances 0.000 description 1
- 238000003860 storage Methods 0.000 description 1
- 239000010409 thin film Substances 0.000 description 1
- 238000012549 training Methods 0.000 description 1
- 230000007704 transition Effects 0.000 description 1
- 238000011144 upstream manufacturing Methods 0.000 description 1
Images
Classifications
-
- G—PHYSICS
- G07—CHECKING-DEVICES
- G07D—HANDLING OF COINS OR VALUABLE PAPERS, e.g. TESTING, SORTING BY DENOMINATIONS, COUNTING, DISPENSING, CHANGING OR DEPOSITING
- G07D7/00—Testing specially adapted to determine the identity or genuineness of valuable papers or for segregating those which are unacceptable, e.g. banknotes that are alien to a currency
-
- G—PHYSICS
- G07—CHECKING-DEVICES
- G07D—HANDLING OF COINS OR VALUABLE PAPERS, e.g. TESTING, SORTING BY DENOMINATIONS, COUNTING, DISPENSING, CHANGING OR DEPOSITING
- G07D11/00—Devices accepting coins; Devices accepting, dispensing, sorting or counting valuable papers
- G07D11/20—Controlling or monitoring the operation of devices; Data handling
- G07D11/24—Managing the inventory of valuable papers
-
- G—PHYSICS
- G07—CHECKING-DEVICES
- G07D—HANDLING OF COINS OR VALUABLE PAPERS, e.g. TESTING, SORTING BY DENOMINATIONS, COUNTING, DISPENSING, CHANGING OR DEPOSITING
- G07D11/00—Devices accepting coins; Devices accepting, dispensing, sorting or counting valuable papers
- G07D11/50—Sorting or counting valuable papers
Definitions
- Such a currency evaluation device is known from WO 96/10800 A1 .
- This device receives a stack of currency bills, rapidly counts and discriminates the bills into stacks, and then restacks the bills.
- the device comprises an input receptacle for receiving a stack of currency bills to be discriminated, a discriminating unit for discriminating the denomination of the currency bills, and one or more output receptacles for receiving the currency bills after being discriminated by the discriminating unit.
- the device further comprises a transport mechanism for transporting the currency bills, one at a time, from the input receptacle past a sensor of the discriminating unit and to one or more output receptacles.
- the device has a number of pre-defined operating modes including a mixed mode, a stranger mode, a sort mode, a face mode and a forward/reverse orientation mode.
- a currency evaluation device for receiving a stack of currency bills and rapidly evaluating all the bills in the stack.
- the device has an input receptacle for receiving a stack of bills to be evaluated and a number of output receptacles for receiving the bills after the bills have been evaluated.
- a transport mechanism transports the bills, one at a time, from the input receptacle to one of the output receptacles along a transport path.
- a discriminating unit evaluates the bills including determining certain information concerning the bills.
- a control panel includes a touch screen for displaying the information concerning the bills and for receiving operational instructions from a user.
- a controller coupled to the touch screen and the discriminating unit causes the discriminating unit to operate in a number of modes in response to the operational instructions from the user.
- the evaluation device has exactly two output receptacles.
- the evaluation device has a number of factory or default modes and additionally accommodates a number of user-defined modes of operation.
- a currency evaluation device for receiving a stack of currency bills and rapidly evaluating all the bills in the stack wherein the device flags bills meeting or failing to meet certain criteria.
- a bill may be flagged, for example, by presenting the bill in one of the output pockets (delivering the bill to one of the pockets and suspending the operation of the device) or by off-sorting the bill to a different output pocket and continuing to process other bills.
- the currency evaluation device has two output receptacles for receiving bills after they have been evaluated.
- a currency evaluation device has a routing interface.
- the routing interface has a data retrieval device such as a touch screen that receives information from a user of the evaluation device specifying into which output receptacle bills are to be delivered based on one or more criteria such as, e.g., a bill being a stranger.
- a currency evaluation device has a flagging control interface.
- the flagging control interface has a data retrieval device such as a touch screen that receives information from a user of the evaluation device specifying whether the evaluation device should suspend its operation based on the detection of a bill meeting or failing to meet one or more criteria such as, e.g ., a bill being a no call bill.
- the transport mechanism of the present invention may be used and incorporated in an apparatus which sorts, analyzes, transports, evaluates, authenticates, discriminates, counts or otherwise processes documents.
- a transport mechanism of the present invention is incorporated in an evaluation apparatus for discriminating and/or authenticating currency bills.
- the transport mechanism of the present invention may be employed in conjunction with the processing of other documents such as, for example, stock certificates, bonds, postage stamps and food stamps.
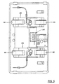
- FIG. 1 depicts an exterior perspective view
- FIG. 2 is a side view of a multi-pocket document evaluation device 10 such as a currency discriminator according to one embodiment of the present invention.
- the currency discriminator 10 is compact having a height (H) of about 17 1 ⁇ 2 inches (44.5 cm), width (W) of about 13 1 ⁇ 2 inches (34.3 cm), and a depth (D) of about 15 inches (38.1 cm) and weighs approximately 35 lbs. (16 kg).
- the evaluation device 10 may be rested upon a tabletop.
- currency bills are fed, one by one, from a stack of currency bills placed in an input receptacle 12 into a transport mechanism.
- the transport mechanism includes a transport plate or guide plate 240 for guiding currency bills to one of a plurality of output receptacles 217a and 217b.
- a bill Before reaching the output receptacles 217a, 217b a bill can be, for example, evaluated, analyzed, authenticated, discriminated, counted and/or otherwise processed. The results of the above process or processes may be used to determine to which output receptacle 217a, 217b a bill is directed.
- documents such as currency bills are transported, scanned, and identified at a rate equal to or greater than 600 bills per minute. In another embodiment, documents such as currency bills are transported, scanned, and identified at a rate equal to or greater than 800 bills per minute. In another embodiment, documents such as currency bills are transported, scanned, and identified at a rate equal to or greater than 1000 bills per minute.
- the identification may include the determination of the denomination of each bill.
- the input receptacle 12 for receiving a stack of bills to be processed is formed by downwardly sloping and converging walls 205 and 206 (see FIG. 2 ) formed by a pair of removable covers (not shown) which snap onto a frame.
- the converging wall 206 supports a removable hopper (not shown) that includes vertically disposed side walls (not shown).
- One embodiment of an input receptacle is described and illustrated in more detail in PCT patent application Publication No. WO 96/10800 published on April 11, 1996 .
- the currency discriminator 10 in FIG. 1 has a touch panel display 15 in one embodiment of the present invention which displays appropriate "functional" keys when appropriate.
- the touch panel display 15 simplifies the operation of the multi-pocket currency discriminator 10.
- the touch panel display 15 may be a full graphics display. Alternatively or additionally physical keys or buttons may be employed.
- the currency bills are moved in seriatim from the bottom of a stack of bills along a curved guideway 211 (shown in FIG. 2 ) which receives bills moving downwardly and rearwardly and changes the direction of travel to a forward direction.
- a stripping wheel 220 (shown in FIG. 3 ) mounted on a stripping wheel shaft 219 aids in feeding the bills to the curved guideway 211.
- the curvature of the guideway 211 corresponds substantially to the curved periphery of a drive roll 223 so as to form a narrow passageway for the bills along the rear side of the drive roll 223.
- An exit end of the curved guideway 211 directs the bills onto the transport plate 240 which carries the bills through an evaluation section and to one of the output receptacles 217a, 217b.
- Stacking of the bills in one embodiment is accomplished by a pair of driven stacking wheels 212a and 213a for the first or upper output receptacle 217a and by a pair of stacking wheels 212b and 213b for the second or bottom output receptacle 217b.
- the stacker wheels 212a,b and 213a,b are supported for rotational movement about respective shafts 215a,b journalled on a rigid frame and driven by a motor (not shown).
- Flexible blades of the stacker wheels 212a and 213a deliver the bills onto a forward end of a stacker plate 214a.
- the flexible blades of the stacker wheels 212b and 213b deliver the bills onto a forward end of a stacker plate 214b.
- a diverter 260 directs the bills to either the first or second output receptacle 217a, 217b. When the diverter is in a lower position, bills are directed to the first output receptacle 217a. When the diverter 260 is in an upper position, bills proceed in the direction of the second output receptacle 217b.
- a bill 20 being transported by the drive roll 223 engages the transport plate 240.
- Bills are positively driven along the transport plate 240 by means of a transport roll arrangement comprising both driven and passive rolls.
- a pair of O-rings 244 and 245 fit into grooves formed in a drive roll 241 and in the drive roll 223.
- the pair of O-rings 244 and 245 engage the bill 20 continuously between the two driven upper rolls 223 and 241 and assist in holding the bill 20 flat against the transport plate 240.
- Such an embodiment aids to the performance of the sensors of the evaluation region 247.
- Rolls 223 and 241 are driven by a motor (not shown) via a belt 21.
- Such an arrangement is illustrated in more detail in United States patent application Serial No. 08/450,505 referred to above.
- Passive rolls 250, 251 are mounted on an underside of the transport plate 240 in such a manner as to be freewheeling about their respective axes 254 and 255 and biased into counter-rotating contact with their corresponding driven upper rolls 223 and 241.
- the passive rolls 250 and 251 preferably have high-friction rubber surfaces and are biased into contact with their respective driven upper rolls 223 and 241 by means of a pair of H-shaped leaf springs 252 and 253 (see FIG. 5 ).
- the central portion of each leaf spring is fastened to the transport plate 240, which is fastened rigidly to the machine frame, so that the relatively stiff arms of the H-shaped springs exert a constant biasing pressure against the passive rolls 250 and 251 and push them against the corresponding upper rolls 223 and 241.
- the driven and passive transport rolls are preferably coplanar with a flat upper surface of the transport plate 240 so that currency bills can be positively driven along the top surface of the plate in a flat manner.
- the bills are firmly gripped under uniform pressure between the driven and passive rolls.
- the H-shaped leaf springs 252 and 253 aid in reducing bill twisting or skewing.
- the O-rings 244, 245 are also effective in ensuring that central portions of the bills are held flat.
- the distance between the axes of the two driven upper rolls 223 and 241 and the corresponding counter-rotating passive rolls 250 and 251 is selected to be just short of a length of a narrow dimension of the currency bills.
- FIG. 6 depicts various shafts of the multi-pocket document evaluation device 10 according to one embodiment of the present invention.
- the distance between the shafts should preferably be less than the width of the bills that are to be evaluated.
- the transport plate 240 is substantially flat and linear.
- the uncomplicated surfaces of the transport plate 240 have no protruding features.
- the bills are delivered to an appropriate output receptacle 217a or 217b after being evaluated without the use of belts contacting the bills.
- the transport plate 240 has a first substantially planar region 240a defining a first plane. The evaluation of bills is performed in the first substantially planar region 240a.
- the first substantially planar region 240a ends at a point 300.
- the transport plate 240 also has a second substantially planar region 240b defining a second plane.
- the second substantially planar region 240b begins at the point 300.
- the second substantially planar region extends up to a diverting flange 240d.
- the first and second substantially planar regions 240a and 240b substantially define the entire region of the transport path from the evaluation mechanism to the plurality of output receptacles 217a,b.
- the second substantially planar region 240b does not deviate from the first substantially planar region 240a by more than about 90 degrees. In a second embodiment, the second region 240b does not deviate from the first region 240a by more than about 60 degrees. In a third embodiment, the second region 240b does not deviate from the first region 240a by more than about 45 degrees. In a fourth embodiment, the second region 240b does not deviate from the first region 240a by more than about 30 degrees. As depicted in FIG. 7a , the second region 240b is substantially planar with the first region 240a, deviating from the first region 240a by an angle of ⁇ degrees where ⁇ is about 26 degrees.
- the transport plate 240 also has a third substantially planar region 240c defining a third plane.
- the third substantially planar region 240c does not deviate by more than about 45 degrees from the first region 240a. In another embodiment, the third region 240c does not deviate by more than about 25 degrees from the first region 240a. As depicted in FIG. 7a , the third region 240c deviates from the first region 240a by an angle of ⁇ degrees where ⁇ is about 16 degrees.
- the transport plate 240 has a plurality of apertures 25 therein.
- apertures 25 are present only where necessary to facilitate the functioning of passive rolls and driven rolls and a diverter 260.
- apertures 25 are present only where necessary to facilitate the functioning of passive and driven rolls, diverter 260, and various sensors such as scanheads, doubles detectors, and document location sensors.
- Apertures for sensors may covered with materials that do not interfere with the functioning of corresponding sensors while nonetheless facilitating the transport plate in appearing smooth and continuous to passing bills. For example, when optical sensors are being employed, corresponding apertures may contain lenses that are flush with the transport surface of the transport plate. Likewise, materials that do not interfere with the operation of magnetic sensors may be employed to cover any apertures created to facilitate their operation.
- the transport plate may be constructed from a material that does not interfere with the operation of such sensors so that no apertures need be created in the first place, e.g., a clear plastic transport plate permitting the functioning of optical sensors.
- Apertures 25 in first region 240a of the transport plate 240 are shown in FIG. 7b .
- Apertures 25a permit passive and driven rolls to protrude into the currency pathway to thereby advance bills along the pathway.
- Apertures 25b permit ends of the diverter 260 to rotate below the upper surface of the transport plate 240.
- Aperture 25c permits a lower scanhead to read the underside of a passing document.
- the lower scanhead may be, for example, an optical scanhead.
- Apertures 25d. provide access for double detection sensors that determine whether two or more bills are being transported in a stacked or overlapping manner. An example of optical scanheads and double detection sensor are described in more detail in conjunction with FIGs. 13-16 .
- Apertures 25c and 25d may contain lenses that are flush with the transport surface of the transport plate. Where apertures 25c and 25d contain such lenses, the transport plate 240a effectively contains only apertures 25a and 25b ( i.e ., apertures only for the transport rolls and the diverter).
- Apertures 25a and 25b in a second region 240b of the transport plate 240 are shown in FIG. 7d .
- This clean and unobstructed of transport plate 240 facilitates a reduction in the jamming of the currency bills as well as facilitating the ease with which jammed bills can be removed from the system 10.
- the transport plate 240 has a unitary and integral construction. Such an embodiment is depicted in FIGs. 2 and 7a-7e . However, the transport plate 240 may be constructed of a plurality of individual plates. Such an alternate embodiment is illustrated in FIGs. 10a , 10b , 11a , and 11b . Referring to FIG. 11b , a portion of a transport plate 240' is depicted in which one of a plurality of individual plates is illustrated. The transport plate 240' includes the portion depicted in FIG. 11b and another portion 240" (see FIG. 10a ) in the vicinity of the evaluation region. In one embodiment, the transport plate 240" is comprised of a molded plastic plate.
- Both portions of the transport plate 240' and 240" in this embodiment are substantially flat and linear. As depicted, the surfaces of the transport plate 240' have no protruding features. As described above in connection with plate 240, in this embodiment, the bills are delivered to an appropriate output receptacle 217a or 217b after being evaluated without the use of belts contacting the bills.
- the portion of the transport plate 240' depicted in FIG. 11b has a first substantially planar region 240e defining a first plane.
- the substantially planar region 240e begins after the bills have been evaluated.
- the substantially planar region 240e may optionally be slightly angled at a point 301' to assist in preventing bills from getting caught in the area between the evaluating mechanism and the substantially planar region 240e.
- the first substantially planar region 240e ends at a point 300'.
- the transport plate 240' also has a second substantially planar region 240f defining a second plane.
- the second substantially planar region 240f begins at the point 300'.
- the second substantially planar region extends up to a diverting flange 240g.
- the first and second substantially planar regions 240e and 240f define substantially the entire path from the evaluation region to the plurality of output receptacles 217a,b.
- the second substantially planar region 240f does not deviate from the first substantially planar region 240e by more than about 90 degrees. In a second embodiment, the second region 240f does not deviate from the first region 240e by more than about 60 degrees. In a third embodiment, the second region 240f does not deviate from the first region 240e by more than about 45 degrees. In a fourth embodiment, the second region 240f does not deviate from the first region 240e by more than about 30 degrees. As depicted in FIG. 11b , the second region 240f is substantially planar with the first region 240e, deviating from the first region 240e by an angle of ⁇ degrees where ⁇ is about 26 degrees.
- transport plate 240' has a plurality of apertures 27 therein.
- apertures 27 are present only where necessary to facilitate the functioning of passive rolls and driven rolls and a diverter 260.
- apertures 27 are present only where necessary to facilitate the functioning of passive and driven rolls, diverter 260, and various sensors such as scanheads, doubles detectors, and document location sensors.
- Apertures for sensors may filled with materials that do not interfere with the functioning of corresponding sensors while nonetheless facilitating the transport plate in appearing smooth and continuous to passing bills. For example, when optical sensors are being employed, corresponding apertures may contain lenses that are flush with the transport surface of the transport plate.
- Apertures 27 of the transport plate 240' are shown in FIG. 11a .
- Apertures 27a permit passive and driven rolls to protrude into the currency pathway.
- Apertures 27b permit ends of the diverter 260 to rotate below the upper surface of the transport plate 240'.
- Apertures 27c facilitate the functioning of sensors such as sensors 235a and 235b described below in connection with FIGs. 8a and 9a . This clean and unobstructed of transport plate 240' facilitates a reduction in the jamming of the currency bills as well as facilitating the ease with which jammed bills can be removed from the system 10.
- FIGs. 8a-8c and 9a-9c illustrate, respectively, first and second follower plates 262 and 278. As illustrated, these plates are substantially free from surface features and are substantially smooth like the transport plate 240.
- the follower plates 262 and 278 are positioned in spaced relation to transport plate 240 so as to define a currency pathway there between.
- the follower plates 262 and 278 and the transport plate such a 240 or 240' contribute to defining a pathway that is free and unencumbered between the roll 251 and the output receptacles 217a and 217b for the bill. As illustrated, the follower plates 262 and 278 have apertures only where necessary for accommodation of passive rolls 268, 270, 284, and 286.
- FIG. 8c The apertures 25c accommodating passive rolls 268 and 270 in the follower plate 262 are shown in FIG. 8c , while the apertures 25d accommodating passive rolls 284 and 286 are shown in FIG. 9c .
- a transport mechanism is employed that uses no belts to advance bills from the evaluation region to a plurality of output receptacles.
- the follower plate 262 in conjunction with the upper portion of the transport plate 240 guide a bill 20 from the passive roll 251 to a driven roll 264 and then to a driven roll 266.
- the passive rolls 268, 270 are biased by H-springs 272 and 273 into counter-rotating contact with the corresponding driven rolls 264 and 266 in a manner similar as described above in connection with passive rolls 250 and 251.
- a diverter 260 is employed to direct the bill 20 to the appropriate output receptacle 217a or 217b.
- the bill 20 will encounter the diverter 260 after emerging from between the driven roll 266 and the passive roll 270.
- Diverter 260 includes a plurality of flanges mounted across the transport path on a shaft 274.
- Two solenoids 261a,b, one mounted on each end of the shaft 274 cause the shaft and the attached diverter flanges to rotate into either a lower position or an upper position.
- the two solenoids drive the shaft 274 in opposite directions and an appropriate one of the two solenoids is energized depending upon whether the diverter 260 is to be moved from its lower position to its upper position or vice versa.
- the use of a separate solenoid for each rotational direction enhances the performance of the diverter 260 by increasing of the speed with which the position of the diverter 260 may be changed.
- the ends of the flanges are positioned below the upper surface of the transport plate 240.
- Apertures 25b in transport plate 240 facilitate this position while apertures 27b in transport plate 240' (see FIG. 11 a) facilitate this position.
- the apertures 25b and 27b correspond in location and size to the diverter 260 which enables the diverter 260 to protrude through the transport plate 240 and create a smooth ramp for directing the bills into the upper output receptacle 217a.
- Sensor 235a may be used to detect when bills pass by the sensor. This sensor may be used to aid in determining when the position of diverter 260 may be changed and/or used to detect when bills have become jammed either upstream of this sensor or over this sensor. For example, if no bills pass this sensor for a predetermined period of time when bills are expected to be passing this sensor, a jam condition error may be generated to stop the transport mechanism and prompt the operator as to the existence and location of a jam.
- Sensor 235a may be, for example, an optical sensor that detects light reflected off the follower plate 262. A change in the amount of light being reflected back to the sensor 235a may then indicate that a bill is passing by this sensor.
- FIG. 9a illustrates a bill 20 between the driven rolls 280 and 282 and their respective passive rolls 284 and 286.
- the passive rolls 284, 286 are biased by H-springs 288, 289 into passive counter-rotating contact with the driven rolls 280, 282, respectively, in a manner similar to that described above in connection with passive rolls 250, 251.
- Bills are then directed to the lower output receptacle 217b via the stacker wheels 212b and 213b.
- a sensor 235b Also illustrated in FIG. 9a is a sensor 235b. Sensor 235b may be used to detect when bills pass by the sensor. The above description of sensor 235a in connection with FIG. 8a likewise applies to sensor 235b.
- the follower plates 262 and 278 are part of an assembly 30 that also includes the output receptacles 217a,b including stacker wheels 212a,b, 213a,b (a moveable assembly 30 can also be seen in phantom in FIG. 2 ).
- this assembly 30 can be moved away from the remainder 40 of the document evaluation device 10 which may be, for example, a currency discriminator.
- Assembly 30 is hingedly connected to the remainder of document evaluation device 40 about pivot 35. This arrangement allows the assembly 30 to rotate outward and away from the remainder of currency discriminator 40 and to expose the transport plate 240', thereby permitting access to the transport plate 240' after the evaluation region 247.
- assembly 30 is maintained in its open position by its own weight.
- springs 320 may be used in conjunction with the pivot 35 to maintain this assembly in its open position.
- the resulting unobstructed access allows users of the discriminator to easily clear jams without a complicated procedure or the need to put a hand into a restricted, difficult to access, and sometimes dirty region.
- the smooth transport and follower plates contribute to the easy removal of bills.
- Assembly 30 in one embodiment of the present invention also includes a pivoting mechanism or lever 33a adjacent to follower plate 262.
- the lever 33a When in its closed position, the lever 33a is biased upward by a spring (not shown) with a hub 33b fitting into a notch 42 which maintains the assembly 30 in its closed position and the follower plate 262 in spaced relation to transport plate 240e.
- the lever 33a To move assembly 30 into its open position, the lever 33a is moved downward so that hub 33b is not engaging notch 42. The assembly 30 may then be rotated away from the remainder of the document evaluation device.
- the lever 33a also assists in moving the assembly 30 away from the remainder of currency discriminator 40.
- FIG. 10b is a side view depicting an evaluation device in an open position according to another embodiment of the present invention that is similar to that shown in FIG. 10a .
- FIGs. 12-14 depict multi-pocket document evaluation devices 10, such as a currency discriminators, according to other embodiments of the present invention.
- FIG. 12 depicts a three-pocket document evaluation device 10, such as a currency discriminator.
- FIG. 13 depicts a four-pocket document evaluation device 10, such as a currency discriminator.
- FIG. 14 depicts a six-pocket document evaluation device 10, such as a currency discriminator.
- the multi-pocket document evaluation devices 10 in FIGs. 12-14 have a transport mechanism which includes a transport plate or guide plate 240 for guiding currency bills to one of a plurality of output receptacles 217.
- the transport plate 240 according to one embodiment is substantially flat and linear without any protruding features.
- a bill Before reaching the output receptacles 217, a bill can be, for example, evaluated, analyzed, authenticated, discriminated, counted and/or otherwise processed.
- the multi-pocket document evaluation devices 10 move the currency bills in seriatim from the bottom of a stack of bills along the curved guideway 211 which receives bills moving downwardly and rearwardly and changes the direction of travel to a forward direction.
- An exit end of the curved guideway 211 directs the bills onto the transport plate 240 which carries the bills through an evaluation section and to one of the output receptacles 217.
- a plurality of diverters 260 direct the bills to the output receptacles 217. When a diverter 260 is in its lower position, bills are directed to the corresponding output receptacle 217. When a diverter 260 is in its upper position, bills proceed in the direction of the remaining output receptacles.
- the multi-pocket document evaluation devices 10 of FIGs. 12-14 includes passive rolls 250, 251 which are mounted on an underside of the transport plate 240 and are biased into counter-rotating contact with their corresponding driven upper rolls 223 and 241.
- Other embodiments includes a plurality of follower plates which are substantially free from surface features and are substantially smooth like the transport plate 240.
- the follower plates 262 and 278 are positioned in spaced relation to transport plate 240 so as to define a currency pathway there between.
- follower plates 262 and 278 have apertures only where necessary for accommodation of passive rolls 268, 270, 284, and 286.
- the follower plate 262 works in conjunction with the upper portion of the transport plate 240 to guide a bill 20 from the passive roll 251 to a driven roll 264 and then to a driven roll 266.
- the passive rolls 268, 270 are biased by H-springs into counter-rotating contact with the corresponding driven rolls 264 and 266.
- FIG. 15 is an enlarged vertical section taken approximately through the center of another embodiment of a machine having two output receptacles, 2217a and 2217b, showing various transport rolls in side elevation.
- a diverter 2260 is provided to direct bills into either receptacle 2217a or 2217b depending upon the results of the denomination discriminating unit and any authenticating means that may be present.
- the currency bills are moved in seriatim from the bottom of the stack along a curved guideway 2211 which receives bills moving downwardly and rearwardly and changes the direction of travel to a forward direction.
- the curvature of the guideway 2211 corresponds substantially to the curved periphery of the drive roll 2223 so as to form a narrow passageway for the bills along the rear side of the drive roll.
- the exit end of the guideway 2211 directs the bills onto a linear path where the bills are scanned. The bills are transported and stacked with the narrow dimension of the bills maintained parallel to the transport path and the direction of movement at all times.
- Stacking of the bills is effected in each output receptacle by a pair of driven stacking wheels 2212a and 2213a in output receptacle 2217a and stacking wheels 2212b and 2213b in output receptacle 2217b. These wheels project upwardly through a pair of openings in respective stacker plates 2214a,b.
- the stacker wheels 2212a,b and 2213a,b are supported for rotational movement about respective shafts 2215a,b journalled on a rigid frame and driven by a motor.
- the flexible blades of the stacker wheels deliver the bills into a respective one of the output receptacles 2217a,b at the forward end of the respective stacker plates 2214a,b.
- a currency bill which is delivered to a respective stacker plate 2214a,b is picked up by the flexible blades and becomes lodged between a pair of adjacent blades which, in combination, define a curved enclosure which decelerates a bill entering therein and serves as a means for supporting and transferring the bill into a respective output receptacle 2217a,b as the stacker wheels 2212a,b and 2213a,b rotate.
- the mechanical configuration of the stacker wheels, as well as the manner in which they cooperate with the stacker plate, is conventional and, accordingly, is not described in detail herein.
- the stripping wheels mounted on shaft 2221 feed each bill onto a drive roll 2223 mounted on a driven shaft 2224 supported across the side walls.
- the drive roll 2223 is the same as drive roll 223 ( FIG. 2 ) described above.
- the operation of the stripping wheel and drive roll 2223 is the same as described above in connection with stripping wheels 220 and drive roll 223 ( FIG. 3 ).
- an idler roll 2230, stripper wheels 2233,2234, and pressure roll 2236 operate as described above in connection with FIG. 3 . and in PCT patent application Publication No. WO 95/24691 published Spetember 14, 1995 .
- the bill being transported by the drive roll 2223 engages a flat guide plate 2240.
- Currency bills are positively driven along the flat plate 2240 by means of a transport roll arrangement which includes the drive roll 2223 at one end of the plate and a smaller driven roll 2241 at the other end of the plate.
- Both the driver roll 2223 and the smaller roll 2241 include pairs of smooth raised cylindrical surfaces which hold the bill flat against the plate 2240.
- a pair of O rings 2244 and 2245 fit into grooves formed in both the roll 2241 and the roll 2223 to engage the bill continuously between the two rolls 2223 and 2241 to transport the bill while helping to hold the bill flat against the guide plate 2240.
- the flat guide plate 2240 is provided with openings through which the raised surfaces of both the drive roll 2223 and the smaller driven roll 2241 are subjected to counter-rotating contact with corresponding pairs of passive transport rolls 2250 and 2251 having high-friction rubber surfaces.
- the passive rolls 2250, 2251 are mounted on the underside of the flat plate 2240 in such a manner as to be freewheeling about their axes 2254 and 2255 and biased into counter-rotating contact with the corresponding upper rolls 2223 and 2241.
- the passive rolls 2250 and 2251 are biased into contact with the driven rolls 2223 and 2241 by means of a pair of H-shaped leaf springs 2252 and 2253.
- Each of the four rolls 2250, 2251 is cradled between a pair of parallel arms of one of the H-shaped leaf springs 2252 and 2253.
- the points of contact between the driven and passive transport rolls are preferably coplanar with the flat upper surface of the plate 2240 so that currency bills can be positively driven along the top surface of the plate in a flat manner.
- the distance between the axes of the two driven transport rolls, and the corresponding counter-rotating passive rolls, is selected to be just short of the length of the narrow dimension of the currency bills. Accordingly, the bills are firmly gripped under uniform pressure between the upper and lower transport rolls within the area of scanhead 2247, thereby minimizing the possibility of bill skew and enhancing the reliability of the overall scanning and recognition process.
- the positive guiding arrangement described above is advantageous in that uniform guiding pressure is maintained on the bills as they are transported through the scanhead area, and twisting or skewing of the bills is substantially reduced.
- H-springs 2252, 2253 for uniformly biasing the passive rollers into contact with the active rollers so that bill twisting or skew resulting from differential pressure applied to the bills along the transport path is avoided.
- the O-rings 2244, 2245 function as simple, yet extremely effective means for ensuring that the central portions of the bills are held flat.
- Guide plate 2240 extends from the region of curved guideway 2211 to a region in the vicinity the diverter 2260.
- a guide plate 2262 in conjunction with the lower portion of the guide plate 2240 guide bills from between rolls 2241 and 2251 to driven roll 2264 and then to driven roll 2266.
- Passive rolls 2268, 2670 are biased by H-springs 2272,2273 into counter-rotating contact with rolls 2264 and 2266, respectively, in a manner similar to that described above in connection with rolls 2250, 2251.
- Bills emerge from between rolls 2266 and 2270 and are directed into diverter 2260.
- Diverter 2260 comprises a plurality of flanges mounted across the transport path on shaft 2274.
- Two solenoids one mounted on each end of shaft 2274, cause the shaft and the attached diverter flanges to rotate into either a lower position or an upper position.
- the two solenoids drive the shaft 2274 in opposite directions and an appropriate one of the two solenoids is energized depending upon whether the diverter 2260 is to be moved from its lower position to its upper position or vice versa.
- the use of a separate solenoid for each rotational direction enhances the performance of the diverter by increasing the speed with which the position of the diverter may be changed.
- the characteristics of the evaluation region 247, 2247 may vary according to the particular application and needs of the user.
- the evaluation region can accommodate a number and variety of different types of sensors depending on a number of variables. These variables are related to whether the machine is authenticating, counting or discriminating and what distinguishing characteristics are being examined, e.g., size, color, magnetism, reflectivity, absorbability, transmissivity, electrical conductivity, etc.
- the evaluation region 247, 2247 may employ a variety of detection means such as magnetic or optical sensors.
- detection means such as magnetic or optical sensors.
- a variety of currency characteristics can be measured using magnetic sensing. These include detection of patterns of changes in magnetic flux ( U.S. Pat. No. 3,280,974 ); patterns of vertical grid lines in the portrait area of bills ( U.S. Pat. No. 3,870,629 ), the presence of a security thread ( U.S. Pat. No. 5,151,607 ), total amount of magnetizable material of a bill ( U.S. Pat. No. 4,617,458 ), patterns from sensing the strength of magnetic fields along a bill ( U.S. Pat. No.
- a magnetoresistive sensor or a plurality of such sensors including an array of magnetoresistive sensors may be employed to detect, for example, magnetic flux. Examples of magnetoresistive sensors are described in, for example, U.S. Pat. Nos. 5,119,025 , 4,683,508 , 4,413,296 , 4,388,662 , and 4,164,770 . Another example of a magnetoresistive sensor that may be used is the Gradiometer available from NVE Nonvolatile Electronics, Inc., Eden Prairie, MN. Additionally, other types of magnetic sensors may be employed for detecting magnetic flux such as Hall effect sensors and flux gates.
- a variety of currency characteristics can be measured such as detection of density ( U.S. Pat. No. 4,381,447 ), color ( U.S. Pat. Nos. 4,490,846 ; 3,496,370 ; 3,480,785 ), length and thickness ( U.S. Pat. No. 4,255,651 ), the presence of a security thread ( U.S. Pat. No. 5,151,607 ) and holes ( U.S. Pat. No. 4,381,447 ), and other patterns of reflectance and transmission ( U.S. Pat. No. 3,496,370 ; 3,679,314 ; 3,870,629 ; 4,179,685 ).
- Color detection techniques may employ color filters, colored lamps, and/or dichroic beamsplitters ( U.S. Pat. Nos. 4,841,358 ; 4,658,289 ; 4,716,456 ; 4,825,246 , 4,992,860 and EP 325,364 ).
- the use of ultraviolet light is also a useful discrimination and authentication tool.
- An optical sensing system using ultraviolet light is described in PCT application WO 95/24691 published on September 14, 1995 .
- sensors may be employed to detect bills or security threads printed or coated with thermochromatic materials (materials that change color with a change in temperature). Examples of threads incorporating thermochromatic materials are described in U.S. Pat. No. 5,465,301 .
- corresponding photodetectors may be provided within the evaluation area in immediate opposition to corresponding light sources. These detectors detect the beam of coherent light directed downwardly onto the bill transport path from corresponding the light sources and generate an analog output which corresponds to the sensed light.
- Two-sided scanning may be used to permit bills to be fed into a currency discrimination system according to the present invention with either side face up.
- An example of a two-sided scanhead arrangement is disclosed in U.S. Pat. No. 5,467,406 .
- Another example of a two-sided scanhead arrangement is described in PCT applciation WO 96/10800 published April 11, 1996 .
- multiple scanheads may be laterally positioned next to each other. Examples of multiple scanhead arrangements are described PCT application WO 95/24691 published on September 14, 1995 .
- FIGs. 14a-14b Some examples of scanheads are depicted in FIGs. 14a-14b . These scanheads may be, for example, incorporated into the evaluation devices depicted in FIGs. 1 , 3 , 10 or 10b , and 12-15 . As illustrated in FIGs. 14a-14b , the housing for each scanhead is formed as an integral part of a unitary molded plastic support member 280 or 281. The lower member 281 also forms the transport plate 240 that receives the bills from the drive roll 223 and supports the bills as they are driven past the scanheads 18a and 18b.
- the two support members 280 and 281 are mounted facing each other so that the lenses 282 and 283 of the two scanheads 18a, 18b define a narrow gap through which each bill is transported.
- the upper support member 280 includes a tapered entry guide 280a which guides an incoming bill into the gaps between the various pairs of opposed lenses.
- the lower support member 281 is attached rigidly to the machine frame.
- the upper support member 280 is mounted for limited vertical movement when it is lifted manually by a handle 284, to facilitate the clearing of any paper jams that occur beneath the member 280.
- the member 280 is slidably mounted on a pair of posts 285 and 286 on the machine frame, with a pair of springs 287 and 288 biasing the member 280 to its lowermost position.
- Each of the two optical scanheads 18a and 18b housed in the support members 280, 281 includes a pair of light sources acting in combination to uniformly illuminate light strips of the desired dimension on opposite sides of a bill as it is transported across the plate 240.
- the upper scanhead 18a includes a pair of LEDs 22a, directing light downwardly through an optical mask on top of the lens 282 onto a bill traversing the flat guide plate 240 beneath the scanhead.
- the LEDs 22a are angularly disposed relative to the vertical axis of the scanhead so that their respective light beams combine to illuminate the desired light strip defined by an aperture in the mask.
- the scanhead 18a also includes a photodetector 26a mounted directly over the center of the illuminated strip for sensing the light reflected off the strip.
- a lower scanhead 18b includes a pair of LEDs 22b, directing light upwardly through an optical mask on top of the lens 283 onto a bill traversing the flat guide plate 240 above the scanhead.
- the discriminator system 402 comprises an input receptacle 404 for receiving a stack of currency bills.
- a transport mechanism defining a transport path (as represented by arrow M) transports the bills in the input receptacle, one at a time, past one or more sensors of an authenticating and discriminating unit 406.
- Bills are then transported to one of a plurality of output receptacles 408 (arrow N).
- the system 402 may correspond, for example, to the discriminators described above having multiple output pockets such as those shown in FIGS. 1-2 , 10 , and 12a-12c .
- the authenticating and discriminating unit scans and determines the denomination of each passing bill. Any variety of discriminating techniques may be used. For example, the discriminating method disclosed in U.S. Pat. No. 5,295,196 may be employed to optically scan each bill. Depending on the characteristics of the discriminating unit employed, the discriminator may be able to recognize bills only if fed face up or face down, regardless of whether fed face up or face down, only if fed in a forward orientation or reverse orientation, regardless of whether fed in a forward or reverse orientation, or some combination thereof. Additionally, the discriminating unit may be able to scan only one side or both sides of a bill.
- the authenticating and discriminating unit 406 may additionally include various authenticating tests such as an ultraviolet authentication test as disclosed in PCT application WO 95/24691 .
- the authenticating and discriminating unit 406 may additionally include other authentication tests such as thread detection, enhanced magnetics tests, and color authentication tests including those described in PCT application US 97/02301 filed on February 14, 1997 .
- Signals from the authenticating and discriminating unit 406 are sent to a signal processor such as a central processor unit ("CPU").
- the CPU records the results of the authenticating and discriminating tests in a memory.
- the value of the bill is added to a total value counter in memory that keeps track of the total value of the stack of bills that were inserted in the input receptacle 404 and scanned by the authenticating and discriminating unit 406.
- counters associated with one or more denominations may be maintained in the memory. For example, a $1 counter may be maintained to record how many $1 bills were scanned by the authenticating and discriminating unit 406.
- a $5 counter may be maintained to record how many $5 bills were scanned, and so on.
- the total value of the scanned bills may be determined without maintaining a separate total value counter.
- the total value of the scanned bills and/or the number of each individual denomination may be displayed on a display such as a monitor or LCD display.
- a discriminating unit such as the authenticating and discriminating unit 406 may not be able to identify the denomination of one or more bills in the stack of bills loaded into the input receptacle 404. For example, if a bill is excessively worn or soiled or if the bill is torn a discriminating unit may not be able to identify the bill. Furthermore, some known discrimination methods do not have a high discrimination efficiency and thus are unable to identify bills which vary even somewhat from an "ideal" bill condition or which are even somewhat displaced by the transport mechanism relative to the scanning mechanism used to discriminate bills. Accordingly, such poorer performing discriminating units may yield a relatively large number of bills which are not identified.
- some discriminating units may be capable of identifying bills only when they are fed in a predetermined manner. For example, some discriminators may require a bill to be faced in a predetermined manner. Accordingly, when a bill is fed face down past a discriminating unit which can only identify bills fed face up, the discriminating unit can not identify the bill. Likewise, other discriminators require a specific edge of a bill to be fed first, for example, the top edge of a bill. Accordingly, bills which are not fed in the forward direction, that is, those that are fed in the reverse direction, are not identified by such a discriminating unit.
- the discriminator system 402 is designed so that when the authenticating and discriminating unit is unable to identify a bill, the unidentified note is "presented" in one of the output receptacles, that is, the transport mechanism is stopped so that the unidentified bill is located at a predetermined position within one of the output receptacles, such as being the last bill transported to one of the output receptacles.
- the unidentified bill is the last bill transported to an output receptacle, it may be positioned within the stacker wheels or positioned at the top of or at the rear of the stack of bills resting on a stacker plate in the output receptacle 408.
- the output receptacles 408 are preferably positioned within the discriminator system 402 so that the operator may conveniently see the flagged bill and/or remove it for closer inspection. Accordingly, the operator is able to easily see the bill which has not been identified by the authenticating and discriminating unit 406. The operator may then either visually inspect the flagged bill while it is resting on the top of or at the rear of the stack, or alternatively, the operator may chose to remove the bill from the output receptacle in order to examine the flagged bill more closely.
- the transport mechanism may be stopped before the flagged bill is transported to one of the output receptacles.
- Such an embodiment is particularly suited for situations in which the operator need not examine the bill being flagged, such as upon the occurrence of a denomination change or separate series error described below.
- the machine may stop with the denomination change bill residing within the transport mechanism. The machine may then prompt the operator to remove all the bills from a given output receptacle. When the operator does so, the machine automatically resumes operation (or alternatively, the machine may resume operation after the selection of a continue key) and delivers the denomination change bill into the cleared output receptacles.
- the discriminator system 402 may be designed to continue operation automatically when a flagged bill is removed from the output receptacle or, according to one embodiment of the present invention, may be designed to require a selection element to be depressed. Upon examination of a flagged bill by the operator, it may be found that the flagged bill is genuine even though it was not identified by the discriminating unit. However, because the bill was not identified, the total value and/or denomination counters in the memory will not reflect its value. According to one embodiment, such an unidentified bill is removed from the output stack and either re-fed through the discriminator or set aside. In the latter case, any genuine set aside bills are counted by hand.
- a number of selection elements associated with individual denominations are provided. These selection elements may be in the form of keys or buttons of a keypad. Other types of selection elements such as switches or displayed keys in a touch-screen environment may be employed.
- the operator may simply depress the selection element associated with the denomination of the flagged bill and the corresponding denomination counter and/or the total value counter are appropriately incremented and the discriminator system 402 resumes operating again.
- non-automatic restart discriminators where an operator has removed a genuine flagged bill from the output receptacle for closer examination, the bill is first replaced into the output receptacle before a corresponding selection element is chosen.
- An advantage of the above described procedure is that appropriate counters are incremented and the discriminator is restarted with the touch of a single key, greatly simplifying the operation of the discriminator system 402 while reducing the opportunities for human error.
- the operator may remove the unacceptable flagged bill from the output receptacle without replacement and depress a continuation key on the keypad.
- the continuation key is selected, the denomination counters and the total value counter are not affected and the discriminator system 402 will resume operating again.
- the removal of a bill from the output receptacle is treated as an indication that the bill is unacceptable and the discriminator automatically resumes operation without affecting the denomination counters and/or total value counters.
- the authenticating and discriminating unit determines that a bill is a fake
- the flagged bill is routed to a separate one of said output receptacles.
- the operation of the discriminator may or may not then be suspended.
- the no call bill may be transported one of the output receptacles.
- no call bills are transported to a separate one of the output receptacles.
- no calls are not delivered to a special separate output receptacle.
- the operation of the discriminator may or may not then be suspended.
- no call bills are delivered to an output receptacle separate from the one or more output receptacles receiving identified bills.
- the operation of the discriminator need not be suspended until all the bills placed in the input receptacle have been processed.
- the value of any no call bills may then be added to the appropriate counters after the stack of bills has been processed through a reconciliation process.
- One embodiment that may be used for stopping the transport mechanism in response to the detection of an unidentified bill or a bill meeting some other criteria such as being a suspect bill, denomination change, etc., is described in more detail in U.S. Pat. No. 5,295,196 .
- one or more sensors retrieve information from passing bills. This information is processed by a signal processor such as a CPU.
- the position of bills in the transport mechanism is monitored. This monitoring of bill positioned is accomplished via the use of an optical encoder as described in U.S. Pat. No. 5,295,196 . If the denomination of the bill is identified, the signal processor generates a signal indicative of the determined denomination. If the denomination of the bill is not determined, the signal processor generates a no call signal.
- a suspect signal is generated or a particular type of suspect signal is generated indicative of the reason why the bill is believed to be suspect, e.g., failure of a magnetic test, failure of a UV test, etc.
- error signals may be generated for other reasons including the detection of various minor errors such as a denomination change or stranger condition or the detection a major error such as doubles or chains.
- the signal processor can be programmed to generate one or more signals that cause the transport mechanism to halt in a particular manner such as by sending appropriate signals to the motor driving the transport mechanism and/or to cause one or more diverters to direct bills toward an appropriate output receptacle such as by sending appropriate signals to the diverter driving mechanisms such as the solenoids described above.
- Positional information obtained from the encoder may be employed to stop a bill in a controlled manner and so that the bill is stopped in a predetermined position or identifiable location.
- the discriminator system 403 comprises an input receptacle 404' for receiving a stack of currency bills.
- a transport mechanism defining a transport path (as represented by arrow M') transports the bills in the input receptacle, one at a time, past one or more sensors of an authenticating and discriminating unit 406'.
- Bills are then transported to one of two output receptacles 408', 408" (as represented by arrows N', N").
- the authenticating and discriminating unit 406 determines that a bill is a fake
- the flagged bill is routed to a specific one of the output receptacles.
- the operation of the discriminator may or may not then be suspended.
- the no call bill may be transported to one of the output receptacles 408', 408".
- no call bills are transported to a specific one of the output receptacles 408', 408". In another embodiment, no call bills are not delivered to a special separate output receptacle.
- the operation of the discriminator may or may not then be suspended. For example, in a two output pocket discriminator, all bills may be transported to the same output receptacle regardless of whether they are determined to be suspect, no call, or properly identified. In this example, the operation of the discriminator may be suspended and an appropriate message displayed when a suspect or no call bill is encountered.
- suspect bills may be delivered to a specific one of the two output receptacles (i.e., a reject receptacle) and no calls and identified bills may be sent to the other output receptacle.
- the operation of the discriminator need not be suspended when a suspect bill is encountered but may be suspended when a no call bill is encountered. If the operation is suspended at the time the no call bill is detected and the operator determines that the no call bill is acceptable, the operator returns the bill to the output receptacle from which it was removed (if it was removed) and selects a selection element (not shown) corresponding to the denomination of the flagged bill. Appropriate counters (not shown) are incremented, the discriminator system 403 resumes operation.
- the operator determines that the flagged bill is unacceptable, the operator removes the bill without replacement from the output receptacle and selects a continuation element (not shown).
- the discriminator system 403 resumes operation without incrementing the counters associated with the various denomination and/or the total value counters.
- no call bills are delivered to a specific output receptacle separate from the output receptacle receiving identified bills.
- the operation of the discriminator need not be suspended until all the bills placed in the input receptacle 404 have been processed.
- the operation of the discriminator need not be suspended when a no call is encountered but may be suspended when a suspect bill is detected so that the operator may remove any suspect bills from the discriminator.
- the value of any no call bills may then be added to the appropriate counters after the stack of bills has been processed through a reconciliation process.
- suspect and no call bills may be delivered to a specific one of the two output receptacles (i.e ., a reject receptacle) and identified bills may be sent to the other output receptacle. Additionally, according to this embodiment, the operation of the discriminator may be suspended and an appropriate message displayed when a suspect or no call bill is encountered.
- the flagged bill when the transport mechanism is to be stopped in response to a bill being flagged, the flagged bill may be located at a predetermined position within an output receptacle, e.g ., last bill, in stacker wheel, or alternatively, the transport mechanism may be stopped before the flagged bill is transported to one of the output receptacles.
- an output receptacle e.g ., last bill, in stacker wheel
- the system 403 may correspond, for example, to the discriminators described above having two output pockets such as those shown in FIGs. 1-2 , and 10 .
- the discrimination system is selectively programmable among several operating modes so that an operator may select, for example, which bills to flag, in which pocket to direct the flagged or unflagged bills, and/or which stopping conditions to activate or de-activate.
- the several operating modes will be discussed in detail below.
- the system may be programmed to deliver a flagged bill into a selected pocket and suspend operation of the machine to allow for inspection of the bill, as described in relation to FIG. 17 , or the machine may be programmed to "off-sort" flagged or unflagged bills into a different pocket and either stop to allow for inspection of the "off-sorted” bill or continue processing the stack of bills without stopping.
- a bill may be flagged and the discriminator systems described above such as those in conjunction with FIGs. 1-2 , 10a-10b , 12-14 , and 17-18 may be stopped upon encountering an unidentified or "no call" bill, as discussed above, or for any number of other stopping conditions.
- these discriminator systems may stop upon the occurrence of minor errors or major errors, both of which will be discussed in detail below.
- These discriminator systems may include an audio alarm to provide an audible signal upon the occurrence of one or more of the minor or major error conditions.
- the audio alarm is programmable to permit the operator to selectively activate or de-activate the audio alarm for any or all of the minor or major error conditions.
- Minor errors are conditions which may or may not cause the machine to stop depending on the set-up, mode of operation, and error involved. Minors errors do not involve the review of more than one, if any, note. Minor errors do not disrupt running totals such as batch or sub-totals. According to one embodiment, the minor error conditions may be selectively activated or de-activated as desired by the user. For example, the machine may be programmed stop upon the occurrence of a "no call" document but not upon the occurrence of a "suspect document".
- a "no call" condition occurs when the discriminating device is unable to identify or determine the denomination of a note, the unidentified note being termed a no call.
- a "Suspect Document” is a note that fails one or more authentication tests based on a variety of monitored parameters.
- a discriminating device may permit the operator to enable or disable the detection of Suspect Documents, by for example, enabling or disabling one or more the authentication tests.
- a "Denomination Change” condition occurs when a note is identified having a denomination other than prior bills or a target denomination while the machine is operating in one of the sort modes described below. For example; when a $100 bill is scanned in a stack of previously scanned $50 bills, the condition "Denomination Change” may occur under certain circumstances while the machine is operating in a sort mode.
- the "Stranger" condition occurs when a note is identified having a denomination other than prior bills or a target denomination while the machine is operating in one of the stranger modes described below.
- the stranger mode is generally used when it is expected that most bills in a stack are of the same denomination.
- the stranger condition will be discussed in greater detail hereinafter in connection with several stranger modes of operation.
- a "Separate Series" condition occurs when a note is identified as having a different series than prior bills or a target series. For example, when a new-series $100 bill (i.e ., a 1996-series $100 bill) is scanned in a stack of previously scanned old-series $100 bills, the condition "Separate Series" may occur. This function may be employed in conjunction with the modes described below where it is desired to discriminate of notes based on their series, e.g ., to discriminate between a 1993-series $50 bills and 1950-series $50 bills or to discriminate between all pre-1996 series U.S. notes from all 1996 and later series U.S. notes.
- An "Improper Size” condition occurs when a document has a size that does not correspond to the size of one of the genuine documents that the system is programmed to recognize. For example, if the machine is set to process U.S. bills, then all documents should have the same size and any document that is not the same size as genuine U.S. currency will cause an "improper size” condition to occur. Likewise, for foreign bills, any document having a size other than one of the sizes of genuine foreign currency will cause an "improper size” condition to occur.
- An "Unfit Document" condition occurs when a document fails one or more fitness tests. Such fitness tests may detect, for example, the degree to which a bill is soiled, torn, or otherwise damaged. Likewise, the limpness of a document may also be employed as a fitness test.
- An "Reverse-Faced" condition occurs when a machine is operating in a facing mode and a document having a face orientation other than a target face orientation is detected.
- An "Reverse-Oriented" condition occurs when a machine is operating in a Forward/Reverse Orientation mode and a document having a forward/reverse orientation other than a target forward/reverse orientation is detected.
- the discrimination device may permit the setting of limits on the number of bills based on various conditions. For example, it may be desirable to gather $20 bills into stacks of fifty bills. Accordingly, if for example bills are being processed such that $20 bills and only $20 are being directed into the first output receptacle, the device may halt after fifty $20 bills have been delivered into the first pocket. The display may then indicate that a strap limit has been reached for the first output pocket. Various strap limits may be factory-preset or user-set. Alternatively, "Strap Limits" may be determined by combining the number of notes delivered to two or more of the output pockets.
- the "Stacker Full” condition occurs when either or both of the pockets are at or near capacity and are not to receive additional notes.
- the discriminating device may be programmed to halt after 300 notes have been delivered to either of the pockets.
- the "stacker full” condition thereby will occur upon delivery of the 300th note.
- the pockets are designed to receive 600 currency notes, the "stacker full” condition will occur upon delivery of the 600th note.
- Major errors are conditions which typically will stop the machine and may require the operator to remove and re-process more than one note.
- major error conditions include Jam (J), Double (D) and Chain (C).
- Jam occurs when one or more sensors detect that a jam is occurring when notes are being transported between the input receptacle and the output receptacles.
- the condition "Double” occurs when two or more notes are fed by the transport mechanism in a stacked manner.
- the condition “Chain” occurs when two or more notes are fed by the transport mechanism in an overlapping manner.
- the discrimination system may be selectively programmed to operate in any of several operating modes.
- these operating modes may be categorized as “stranger modes", “sort modes”, “mixed modes” and “count modes”.
- the operating mode categories generally include two or three specific operating modes. An operator may select an individual operating mode or combination of operating modes as desired.
- stranger modes are used to process a stack of notes expected to be of the same denomination, in which the operator desires to remove "stranger” notes, or notes not having the same denomination.
- a stranger mode may be selected to process a stack of notes substantially comprised of $10 bills so that all non-$10 bills may be removed from the stack.
- the machine will process the stack and place the "target" $10 notes into a selected pocket ( e.g ., pocket 1).
- the machine may "present” the flagged note into the same pocket as the target note (i.e., stop the machine after the flagged bill is delivered into an output pocket, e.g ., pocket 1) to allow the operator to inspect the note, or the machine may be programmed to off-sort the flagged note into the other pocket ( e.g ., pocket 2).
- the machine may be designed to either stop (present the note into pocket 2) and allow the operator to inspect the note, or continue processing the remaining notes in the stack.
- a display such as a touch panel display ( e.g ., FIG. 1 ), may indicate the number or aggregate value of notes having the target denomination, e.g ., $10 bills.
- the display is also capable of including totals associated with stranger notes via operator selection choices. For example, if a $5 stranger bill is detected in a stack of $10 bills, the operator may be prompted via the display as to whether the $5 bill should be incorporated into the running totals. If the operator responds positively, the $5 bill is incorporated into appropriate running totals, otherwise it is not. Alternatively, a set-up selection may be chosen whereby all stranger notes are automatically incorporated into appropriate running totals.
- the machine may include the following stranger modes as described below: stranger 1, stranger 2, stranger facing and stranger orientation.
- the discriminator In "Stranger 1" mode, the discriminator will process a stack of notes and place notes having a target denomination into pocket 1.
- the target denomination may be selected automatically by the discriminator to be that of the first note in the stack, or the target denomination may be explicitly selected by the operator.
- the system may either present the flagged note into pocket 1 or off-sort the flagged note into pocket 2.
- the machine may either present the off-sorted flagged bill or continue processing bills.
- the system may be similarly programmed to either present or off-sort flagged notes upon the occurrence of the "no call”, “separate series”, or “suspect document” conditions (minor errors).
- the machine Upon encountering either the "strap limit”, “stacker full”, “chain”, “double” or “jam” condition, the machine will stop, requiring the operator to undertake the appropriate corrective action before continuing such as removing bills from a full pocket or clearing a jam.
- the discriminator In “Stranger 2" mode, as in “Stranger 1" mode, the discriminator will process the stack and place notes having a target denomination into pocket 1. Upon encountering either the "strap limit” or “stacker full” condition, however, the machine will automatically begin delivering the target notes to pocket 2 provided that pocket is empty. Thereafter, upon encountering the "strap limit” or “stacker full” conditions again, the machine will automatically switch pockets and begin delivering bills into the other pocket if the other pocket has been cleared by the operator. If the other pocket has not been cleared, the machine will stop, requiring the operator remove the bills from either pocket 1 or pocket 2 before continuing.
- the display may indicate the aggregate value of the notes in the stack and/or the value or number of notes of each denomination in either pocket 1 or pocket 2.
- the system may either present the flagged note into the current pocket or off-sort the flagged note into the other pocket and stop (i.e., present the flagged note in the other pocket).
- the system may be set to always present flagged notes into a given pocket (e.g ., pocket 2) regardless of which pocket is the current pocket.
- Major errors will cause the machine to stop and the operator to take appropriate corrective action such as clearing a jam and/or re-processing a stack of notes.
- the machine In “Stranger Facing” mode, the machine is designed to process a stack of notes faced in substantially the same direction, e.g ., placed in the input hopper face up, and to detect any notes facing the opposite direction. The ability to detect and correct for reverse-faced notes is important as the Federal Reserve requires currency it receives to be faced in the same direction.
- the discriminator will process a stack of notes and place notes faced in a target direction and having a target denomination into pocket 1.
- the target direction and denomination may be selected automatically by the discriminator to be that of the first note in the stack, or the target direction and/or denomination may be explicitly selected by the operator.
- target notes may be delivered to pocket 1 and all other notes (strangers, no calls, suspect, separate series, reverse-faced) may be delivered to pocket 2. These bills may be simply off-sorted to pocket 2 and the machine may continue to process successive notes. Alternatively, one or more of the above conditions may be presented into pocket 2 (e.g., no calls and suspects may cause the machine to halt and appropriate messages to be displayed while strangers and reverse-faced notes are simply off-sorted but not presented).
- notes having the target denomination and face orientation are delivered to one pocket (e.g ., pocket 1) and notes having the target denomination but not the target face orientation are delivered to the other pocket (e.g ., pocket 2). Only notes not having the target denomination are treated as stranger notes and may be handled by being presented into one of the pockets. Likewise, minor errors such as "suspect document”, “no call”, or “separate series” may be handled by presenting a flagged bill into either pocket 1 or pocket 2.
- “Stacker full” or “strap limit” conditions may be handled by stopping and waiting for the operator to clear one or both pockets.
- the "strap limit” may be set up on a pocket by pocket basis or based on the combined contents of pockets 1 and 2. Major errors are handled as discussed above (see e.g ., discussion of the stranger 2 mode).
- the machine In "Stranger Orientation" mode, the machine is designed to process a stack of notes faced in substantially the same forward/reverse orientation, e.g ., in a predetermined forward or reverse orientation direction.
- the forward direction may be defined as the feed direction whereby the top edge of a note is fed first and conversely for the reverse direction.
- the ability to detect and correct for reverse-oriented notes is important as the United States Federal Reserve may soon require currency it receives to be oriented in the same forward/reverse direction.
- the discriminator will process a stack of notes and place notes having a target forward/reverse orientation and having a target denomination into pocket 1.
- the target orientation and denomination may be selected automatically by the discriminator to be that of the first note in the stack, or the target direction and/or denomination may be explicitly selected by the operator.
- a "stranger” condition i.e., upon encountering a note having a denomination other than the target denomination
- a "reverse-oriented” condition i.e., upon encountering an opposite-oriented note of the target denomination
- the machine will either present the flagged note into pocket 1 or pocket 2 or off-sort the flagged note into pocket 2 and continue processing notes.
- Minor errors such as "suspect document", “no call”, or “separate series” may be handled as discussed above, such as by presenting a flagged bill into either pocket 1 or pocket 2 or off-sorting into pocket 2 and continuing to process bills.
- target notes may be delivered to pocket 1 and all other notes (strangers, no calls, suspect, separate series, reverse-oriented) may be delivered to pocket 2. These bills may be simply off-sorted to pocket 2 and the machine may continue to process successive notes.
- one or more of the above conditions may be presented into pocket 2 (e.g ., no calls and suspects may cause the machine to halt and appropriate messages to be displayed while strangers and reverse-oriented notes are simply off-sorted but not presented).
- notes having the target denomination and orientation are delivered to one pocket (e.g . , pocket 1) and notes having the target denomination but not the target orientation are delivered to the other pocket (e.g ., pocket 2). Only notes not having the target denomination are treated as stranger notes and may be handled by being presented into one of the pockets. Likewise, minor errors such as "suspect document”, “no call”, or “separate series” may be handled by presenting a flagged bill into either pocket 1 or pocket 2.
- “Stacker full” or “strap limit” conditions may be handled by stopping and waiting for the operator to clear one or both pockets.
- the "strap limit” may be set up on a pocket by pocket basis or based on the combined contents of pockets 1 and 2. Major errors are handled as discussed above (see e.g ., discussion of the stranger 2 mode).
- sort modes are designed to accommodate a pre-sorted stack of notes having a "rainbow" configuration, e.g ., wherein the stack of notes includes two or more groups of notes, each group having a different denomination but each note within a given group having the same denomination.
- the stack of notes may be pre-sorted to include a group of $1 bills at the beginning of the stack, followed by a group of $5 bills, followed by a group of $10 bills, etc.
- Sort modes permit a user to separate such a "rainbow" stack of notes into separate stacks according to denomination.
- sort modes may be used to sort a mixed stack of notes, e.g ., not pre-sorted, into separate stacks according to denomination.
- the machine may process a stack of notes and deposit a first group of "target" notes (e.g ., $1 bills) into a selected pocket.
- a first group of "target" notes e.g ., $1 bills
- the machine may "present” the flagged note into the same pocket as the target note and stop to allow the operator to inspect the note, or the machine may be programmed to off-sort the flagged note into the other pocket.
- the machine may be designed to either stop and allow the operator to inspect the note or to continue processing the remaining notes in the stack.
- the discrimination system may include a display to indicate the number or aggregate value of notes of each respective denomination and/or the number or aggregate value of notes in the stack.
- the machine may include the following sort modes as described below: sort 1, sort 2, sort 3, sort facing and sort orientation.
- the discriminator In "Sort 1" mode, the discriminator is designed to process a stack of notes and place notes having a first target denomination (e.g ., target denomination 1) into pocket 1 and a second target denomination (e.g ., target denomination 2) into pocket 2.
- the target denominations may be selected by the operator prior to sorting through a stack, or may be selected automatically by the discriminator, e.g ., the first encountered denomination being designated target denomination 1 and the second encountered denomination being designated target denomination 2.
- bill of target denomination 1 are delivered into pocket 1 and bills of target denomination 2 are delivered to pocket 2.
- Bills having a denomination other than target denomination 1 or 2 are flagged. The flagged bills are presented into either pocket 1 or pocket 2.
- the discriminator automatically designates the first target denomination (target note 1) to be that of the first note in the stack, then proceeds to deliver target note 1 to pocket 1.
- the discriminator flags the note, designates the flagged note as the second target denomination (target note 2) and delivers target notes 2 to pocket 2.
- the machine will proceed to deliver the third denomination of bills into pocket 1, the fourth denomination of bills into pocket 2, and so on. If the appropriate pocket has not been cleared, the machine will stop upon a "denomination change" condition, requiring the operator remove the bills from the appropriate pocket before continuing.
- the discriminator automatically selects the target denominations
- the machine will designate target note 1 as a $1 bill and deliver $1 bills into pocket 1 until encountering the first non-$1 bill.
- the first non-$1 bill which for example may be a $5 bill, is then designated as target note 2 and is delivered to pocket 2.
- the discriminator encounters a bill having a third denomination, which for example may be a $10 bill
- the machine will either direct any subsequent $10 bills into pocket 1, or will stop if necessary to allow the operator to clear pocket 1.
- the machine may be designed to automatically resume operation delivering subsequent $10 bills into pocket 1 when the operator removes all the bills present in pocket 1. Assuming that pocket 1 is clear, the machine will then deliver $10 bills into pocket 1 until encountering the next series of bills, and so on until the entire stack has been processed.
- the discriminator In "Sort 2" mode, the discriminator will process a stack of notes and place notes having a target denomination into pocket 1.
- the target denomination may be selected automatically by the discriminator to be that of the first note in the stack, or the target denomination may be selected by the operator.
- the system Upon the occurrence of the "denomination change" condition (e.g ., upon encountering a note not having the target denomination), the system will "present” the flagged note into pocket 1 and stop to allow the operator to inspect the note. Alternatively, the system may be programmed to present "denomination change" notes in pocket 2.
- the machine Upon encountering other minor errors such as "no call”, “suspect document”, and “separate series", the machine will stop, presenting the flagged bills into one of the pockets. Alternatively, one or more of these conditions may cause flagged bills to be off-sorted into pocket 2 without causing the system to stop. The system may permit the operator to select how these bills are to be handled via a set-up option.
- the discriminator automatically selects the target denominations
- the machine will designate $1 as the target note and will deliver $1 bills into pocket 1 until encountering the first non-$1 bill.
- the first non-$1 bill which may for example be a $5 bill, will then be "presented" into pocket 1.
- the operator may then remove all $1 bills from pocket 1 and then select an appropriate continuation key.
- the machine will designate $5 as the new target note and will proceed to deliver $5 bills into pocket 1 until encountering the first non-$5 bill, and so on until the entire stack has been processed.
- the machine If the first note in the remainder of the stack is not a $5 bill, then a denomination change error will occur and the machine will present the non-$5 bill into pocket 1, and so on.
- the machine restarts automatically when the operator removes all the bills in pocket 1. The operator may then separate the bills by denomination (e.g ., place all $1 bills into one stack and the last $5 bill into its own stack).
- the discriminator In "Sort 3" mode, the discriminator will process a stack of notes and place notes having a target denomination into pocket 1, as in the Sort 2 mode. However, upon the occurrence of the "denomination change” condition, the system will off-sort the flagged note into pocket 2 rather than present the flagged note into pocket 1.
- the system may or may not be designed to stop after encountering non-target notes, i.e ., "denomination change" notes.
- notes having a target denomination are delivered to pocket 1.
- the denomination of the first non-target 1 note is designated as a target 2 denomination (target 2).
- the machine continues to process notes, delivering target 1 notes to pocket 1 and target 2 notes to pocket 2, until the first note having a denomination other than target 1 denomination or target 2 denomination is encountered.
- this third denomination note is designated as the "new" target 2 denomination and is directed toward pocket 2.
- this third denomination note is delivered to pocket 2 and the machine is stopped with the display indicating a denomination change in pocket 2.
- the operator can then take the appropriate action such as removing all notes in pocket 2 (e.g ., in an automatic restart configured set up) or remove all bills other than the third denomination bill and press a continuation key.
- the machine will then continue processing notes, continuing to deliver original target I notes to pocket I and delivering "new" target 2 notes to pocket 2, until encountering a bill having a denomination other than target 1 or the present target 2. At this point, a denomination change occurs as described above and a new target 2 denomination is designated.
- the transport mechanism stops before the new target 2 note is delivered into the second output receptacle and a denomination change in pocket 2 message is displayed.
- a denomination change in pocket 2 message is displayed.
- the machine stops all the bills in pocket 2 have the same denomination.
- the operator may then remove all the bills in pocket 2 and set them aside.
- the machine may either resume operation automatically or resume upon the selection of a continuation key.
- the new target note 2 is delivered into the now empty pocket 2 and the machine continues processing bills until encountering a "new" target note 2 denomination.
- the machine will designate $1 as the target note and will deliver $1 bills into pocket 1 until encountering the first non-$1 bill.
- the first non-$1 bill which may for example be a $5 bill, will then be off-sorted into pocket 2.
- the machine then continues to process notes, delivering $1 bills into pocket 1 and $5 bills into pocket 2, until encountering the next denomination change (i.e ., a bill other than a $1 or a $5). Thereafter, upon encountering the next denomination change, such as a $10 bill, the $10 bills are designated as the new target 2 denomination and the system halts so that pocket 2 may be cleared.
- the machine continues to process notes, delivering $1 bills into pocket 1 and $10 bills into pocket 2, until encountering the next denomination change (i.e., a bill other than a $1 or a $10), and so on.
- the discriminator In "Sort 4" mode, the discriminator will process a stack of notes and place notes having a target denomination into pocket 1. All other notes are delivered to pocket 2. Thus, upon the occurrence of the "denomination change” condition, the system will off-sort the flagged note into pocket 2. The system then continues processing any remaining bills without stopping. According to one embodiment, only notes having the target denomination (pocket 1) are counted while all non-target notes are simply delivered to pocket 2 without being counted.
- the machine may be programmed to stop, presenting the flagged bills into one of the pockets such as pocket 2.
- the machine may be programmed to effectively ignore one or more of the minor errors such as "no call”, “suspect document”, and “separate series” and to simply off-sort such bills to pocket 2 and continue processing any remaining bills.
- the system may be set-up to simply off-sort into pocket 2 and continue processing bills upon encountering a "no call” or "separate series” note while stopping and presenting any "suspect documents" into pocket 2.
- the machine will quickly process an entire stack of bills, separating bills of a target denomination from all other notes in the stack. Apart from major errors and “stacker full” or “strap limit” conditions, the machine would only stop if a suspect document is encountered.
- “Sort Facing” mode is substantially similar to “Stranger Facing” mode, the primary difference being the configuration of the stack of notes prior to processing.
- the stack of notes is generally pre-sorted into one or more groups of notes, each group being faced in a different direction, but each note within a given group facing the same direction and having the same denomination as other notes in that group, whereas in “Stranger Facing” mode, each note in the stack is expected to be faced in the same direction and have the same denomination.
- the discriminator will process the stack and place notes of a target denomination faced in a target direction into pocket 1.
- the machine Upon encountering a target denomination but reverse-faced note (i.e ., a reverse-faced condition), the machine will either present the flagged note into pocket 1 or off-sort the flagged note into pocket 2. When the reverse-faced target note is off-sorted to pocket 2, the machine may either present this note into pocket 2 or continue processing notes.
- the system may permit the operator to select how these bills are to be handled via a set-up option (e.g ., present into pocket 1, present into pocket 2, or off-sort into pocket 2 and continue).
- “Sort Orientation” mode is substantially similar to “Stranger Orientation” mode, the primary difference being the configuration of the stack of notes prior to processing.
- “Sort Orientation” mode the stack of notes is pre-sorted into one or more groups of notes, each group being oriented in a different direction, but each note within a given group having the same denomination and being oriented the same as other notes in that group.
- the discriminator will process the stack and place notes having the target denomination and being oriented in a target direction into pocket 1.
- Upon encountering a target denomination but reverse-oriented note i.e., a reverse-oriented condition
- the machine Upon encountering a target denomination but reverse-oriented note (i.e., a reverse-oriented condition), the machine will either present the flagged note into pocket 1 or off-sort the flagged note into pocket 2.
- the machine may either present this note into pocket 2 or continue processing notes.
- the system may permit the operator to select how these bills are to be handled via a set-up option (e.g ., present into pocket 1, present into pocket 2, or off-sort into pocket 2 and continue).
- the discriminator In "Sort Series" mode, the discriminator will process a stack of notes and place notes of a target series or group of series into pocket 1. Upon the occurrence of the "separate series" condition (e.g ., upon encountering a note not having the target series), the system will off-sort the flagged note into pocket 2. The system may be programmed to stop or not to stop after encountering non-target notes, i.e ., "separate series” notes. Alternatively, upon the occurrence of the "separate series” condition, the system may "present” the flagged note into pocket 1 and stop to allow the operator to inspect the note.
- the discriminator automatically selects the target series and denomination
- the machine will designate 1996-series $100 bills as the target note and will deliver 1996-series $100 bills into pocket 1 until encountering the first non- 1996-series $100 bill.
- the first non-1996-series $100 bill which may, for example, be a 1995-series $5 bill, will then be off-sorted into pocket 2.
- the machine then continues to process notes, delivering 1996-series $100 bills into pocket 1 and 1995-series $5 bills into pocket 2, until encountering the next separate series condition ( i.e ., a bill other than a 1996-series $100 or a 1995-series $5).
- the 1995-series $10 bills are designated as the new target 2 series and the system halts so that pocket 2 may be cleared.
- the machine continues to process notes, delivering 1996-series $100 bills into pocket 1 and 1995-series $10 bills into pocket 2, until encountering the next separate series condition (i.e ., a bill other than a 1996-series $100 or a 1995-series $10), and so on.
- target notes are defined in terms of series and denomination and in which the discriminator automatically selects the target series and denomination
- the machine will designate 1996-series $100 as the target series and denomination and will deliver 1996-series $100 bills into pocket 1 until encountering the first non-1996-series $100 bill.
- the first non-1996-series $100 bill which may for example be a 1995-series $5 bill, will then be "presented" into pocket 1.
- the operator may then remove all 1996-series $100 bills from pocket 1 and then select an appropriate continuation key.
- the machine will then designate 1995-series $5 as the new target note and will proceed to deliver 1995-series $5 bills into pocket 1 until encountering the first non-1995-series $5 bill, and so on until the entire stack has been processed. If a note in the remainder of the stack is not a 1995-series $5 bill, then a separate series error will occur and the machine will present the non-1995-series $5 bill into pocket 1, and so on.
- the machine restarts automatically when the operator removes all the bills from pocket 1.
- the operator may then separate the bills by denomination and series (e.g ., place all 1996-series $100 bills into one stack and the last 1995-series $5 bill into its own stack). Minor errors such as "no calls” and "suspect documents" may be presented in pocket 2 or off-sorted into pocket 2 with the machine continuing to process bills.
- target notes are defined only by series or group of series regardless of denomination.
- notes having a target series (target 1) are delivered to pocket 1.
- the series of the first non-target 1 note is designated as a target 2 series (target 2).
- Target 2 notes are then off-sorted into pocket 2 without causing the machine to stop.
- the machine continues to process notes, delivering target 1 notes to pocket 1 and target 2 notes to pocket 2, until the first note having a series other than target 1 series or target 2 series is encountered.
- this third series note is designated as the "new" target 2 series and is directed toward pocket 2.
- this third series note is delivered to pocket 2 and the machine is stopped with the display indicating a series change in pocket 2.
- the operator can then take the appropriate action such as removing all notes in pocket 2 (e.g ., in an automatic restart configured set up) or remove all bills other than the third series bill and press a continuation key.
- the machine will then continue processing notes, continuing to deliver original target 1 notes to pocket 1 and delivering "new" target 2 notes to pocket 2, until encountering a bill having a series other than target 1 or the current target 2. At this point, a separate series condition occurs as described above and a new target 2 series is designated.
- the transport mechanism stops before the new target 2 note is delivered into the second output receptacle and a series change in pocket 2 message is displayed.
- a series change in pocket 2 message is displayed.
- the machine stops all the bills in pocket 2 have the same series.
- the operator may then remove all the bills in pocket 2 and set them aside.
- the machine may either resume operation automatically or resume upon the selection of a continuation key.
- the new target note 2 is delivered into the now empty pocket 2 and the machine continues processing bills until encountering a "new" target note 2 series.
- the discriminator automatically selects the target series
- the machine will designate 1996-series bills as the target series and will deliver all 1996-series bills into pocket 1 until encountering the first non-1996-series bill.
- the first non-1996-series bill which may for example be a 1995-series $5 bill, will then be off-sorted into pocket 2.
- the machine then continues to process notes, delivering 1996-series bills into pocket 1 and 1995-series bills into pocket 2, until encountering the next separate series condition ( i.e ., a bill other than a 1996-series or a 1995-series note).
- 1993-series bills are designated as the new target 2 series and the system halts so that pocket 2 may be cleared.
- the machine then continues to operate in a similar manner as described in the paragraph entitled "Update Pocket 2 Target - Denomination and Series.”
- target notes are defined only by series or group of series regardless of denomination and in which the discriminator automatically selects the target series and denomination
- the machine will designate 1996-series as the target series and will deliver all 1996-series bills into pocket 1 until encountering the first non-1996-series bill.
- the first non-1996-series bill which may for example be a 1995-series $5 bill, will then be "presented” into pocket 1.
- the machine then continues to operate in a similar manner as described in the above paragraph entitled "Update Target 1 - Denomination and Series” designating 1995-series notes as the new target series. Minor errors such as "no calls” and "suspect documents" may be presented in pocket 2 or off-sorted into pocket 2 with the machine continuing to process bills.
- target series are defined by series or group of series without regard to denomination.
- factory default or user defined series categories may be defined.
- a "new series” group may be defined to include all bills having a series of 1996 or later. This group may include for example, 1996-series $100s and 1997-series $50s and $20s).
- An "old-series” group may be defined as all other bills.
- a "series 1" group may be defined to include, for example, all 1996-series and later $100s, all 1997-series and later $50s and $20s, and all $1s, $2, $5, and $10 regardless of series).
- an accompanying "series 2" group may be defined to include all pre-1996-series $100s and all pre-1997-series $50s and $20s.
- series 1 or series 2 in one of the above described series mode embodiments will permit the separation of all "old” series $100s, $50s, and $20s from all other bills.
- Such an embodiment facilitates in the culling of all bills that are to be removed from circulation.
- additional "new" series bill enter circulation e.g ., a 1999-series $10 bill
- the definitions of series 1 and series 2 may then be modified so that all bills that are to be removed from circulation may be easily culled from all other bills.
- a series group may be defined as all bills having a series of 1995 or later.
- Series A is designated as the target series and all Series A notes are delivered to pocket 1 and all non-Series A bills are off-sorted to pocket 2.
- the machine may or may not be programmed to halt when a non-Series A note is encountered. Where the machine is not programmed to halt, a stack of bills may be quickly processed and separated into a group consisting of all 1995 and later series notes (pocket 1) and all pre-1995 series notes (pocket 2).
- mixed modes are designed to accommodate a stack of notes having a "mixed" configuration, e.g ., including two or more denominations of notes in no particular order, where the operator desires to determine the number or aggregate value of notes of each respective denomination and/or the number or aggregate value of notes in the stack.
- Mixed modes “Mix 1", “Mix 2", “Mixed Facing” and “Mixed Orientation”, each of which will be described below.
- the discrimination system may include a display to indicate the number or aggregate value of notes of each respective denomination and/or the number or aggregate value of notes in the stack.
- the discriminator In "Mix 1" mode, the discriminator will process the stack of mixed notes and will generally place the notes into pocket 1. However, upon the occurrence of the "no call” or “suspect document” condition, the discriminator will flag the note and either present the flagged note into pocket 1 or off-sort the flagged note into pocket 2. The system may permit the operator to select how these bills are to be handled via a set-up option (e.g ., present into pocket 1, present into pocket 2, or off-sort into pocket 2 and continue).
- a set-up option e.g ., present into pocket 1, present into pocket 2, or off-sort into pocket 2 and continue).
- a "Stacker full” condition may be handled by stopping and waiting for the operator to clear the full pocket. Major errors are handled as discussed above (see e.g ., discussion of the stranger 2 mode).
- the discriminator In “Mix 2" mode, as in “Mix 1" mode, the discriminator will process the stack and begin placing notes into pocket 1 until encountering a "no call” or “suspect document” condition, in which case the discriminator will flag the note and present the flagged note into either pocket 1 or pocket 2.
- the system may permit the operator to select how these bills are to be handled via a set-up option ( e.g ., present into pocket 1 or present into pocket 2).
- the machine Upon encountering the "stacker full” condition, however, the machine will not stop, as in "Mix 1" mode, but instead will automatically begin delivering the notes to pocket 2. Thereafter, upon encountering the "stacker full” condition in pocket 2, the machine will again switch pockets and begin delivering bills into pocket 1 if pocket 1 has been cleared by the operator. If pocket I has not been cleared and the "stacker full” condition thereby exists in both pockets 1 and 2, the machine will stop, requiring the operator to remove the bills from either pocket 1 or pocket 2 before continuing.
- the discriminator In "Mixed Facing" mode, the discriminator will process a stack of mixed notes and place notes faced in a target direction into pocket 1. Upon encountering a reverse-faced note, the machine will either present the reversed-faced note into pocket 1 or off sort the reverse-faced note into pocket 2. The system may permit the operator to select how these bills are to be handled via a set-up option ( e.g ., present into pocket 1, present into pocket 2, off-sort into pocket 2 and continue).
- a set-up option e.g ., present into pocket 1, present into pocket 2, off-sort into pocket 2 and continue).
- the discriminator Upon encountering a "no call” or "suspect document” condition, the discriminator will flag the note and either present the flagged note into pocket 1 or off-sort the flagged note into pocket 2.
- the system may permit the operator to select how these bills are to be handled via a set-up option (e.g ., present into pocket 1, present into pocket 2, off-sort into pocket 2 and continue). Where reverse-faced notes are being off-sorted into pocket 2 without causing the machine to halt, no calls and suspect documents should be presented into either pocket 1 or pocket 2.
- the machine will stop, requiring the operator to remove the bills from the appropriate pocket before continuing, upon encountering a "stacker full" condition. Major errors are handled as discussed above (see, e.g ., discussion of the stranger 2 mode).
- the discriminator In "Mixed Orientation" mode, the discriminator will process a stack of mixed notes and place notes oriented in a target direction into pocket 1. Upon encountering a reverse-oriented note, the machine will either present the flagged note into pocket 1 or off-sort the flagged note into pocket 2. The system may permit the operator to select how these bills are to be handled via a set-up option ( e.g ., present into pocket 1, present into pocket 2, off-sort into pocket 2 and continue).
- a set-up option e.g ., present into pocket 1, present into pocket 2, off-sort into pocket 2 and continue).
- the discriminator Upon encountering a "no call” or "suspect document” condition, the discriminator will flag the note and either present the flagged note into pocket 1 or off-sort the flagged note into pocket 2.
- the system may permit the operator to select how these bills are to be handled via a set-up option (e.g ., present into pocket 1, present into pocket 2, off-sort into pocket 2 and continue). Where reverse-oriented notes are being off-sorted into pocket 2 without causing the machine to halt, no calls and suspect documents should be presented into either pocket 1 or pocket 2.
- the machine will stop, requiring the operator to remove the bills from the appropriate pocket before continuing, upon encountering the "stacker full" condition. Major errors are handled as discussed above (see e.g ., discussion of the stranger 2 mode).
- Counter Mode is designed to accommodate a stack of notes in any configuration, where the operator desires to determine the number or total value of notes in a stack.
- the discriminator will process the stack, placing notes into pocket 1 until encountering a "stacker full” or “strap limit” condition, in which case the discriminator will automatically begin to place the notes into pocket 2. Thereafter, upon encountering the "stacker full” or “strap limit” condition in pocket 2, the machine will again switch pockets and begin delivering bills into pocket 1 if pocket 1 has been cleared by the operator. If pocket 1 has not been cleared and the "stacker full” or “strap limit” condition thereby exists in both pockets I and 2, the machine will stop, requiring the operator to remove the bills from either pocket 1 or pocket 2 before continuing.
- Count mode may operate in either a unit mode or a value mode.
- notes are simply counted and the total number of notes is communicated.
- value mode the values of notes are totaled and the total value is communicated.
- strap limits may be defined in terms of a unit or piece count ( e.g ., 100 notes) or in terms of a total value ( e.g ., $200 notes in notes).
- the machine will also stop, requiring the operator to remove the bills from the appropriate pocket, upon encountering a "suspect document" condition. Major errors are handled as discussed above (see, e.g ., discussion of the stranger 2 mode).
- FIG. 19 is a front view of a control panel 61 according to one embodiment of the present invention.
- the control panel 61 comprises a keypad 62 and a display section 63.
- the keypad 62 comprises a plurality of keys including seven denomination selection elements 64a-64g, each associated with one of seven U.S. currency denominations, i.e ., $1, $2, $5, $10, $20, $50, and $100.
- the denomination selection elements may be labeled according to the currency system which a discriminator is designed to handle, and accordingly, there may be more or less than seven denomination selection elements.
- the $1 denomination selection key 64a also serves as a mode selection key.
- the keypad 62 also comprises a "Continuation" selection element 65.
- Various information such as instructions, mode selection information, authentication and discrimination information, individual denomination counter values, and total batch counter value are communicated to the operator via an LCD 66 in the display section 63.
- a touch screen is employed to display selection elements for selection by the operator as well as to display various messages to the operator including status and error conditions. Additionally, the touch screen input/output device may be employed to provide on-line help information to the operator, for example, to explain an operation feature or how to handle a given error condition.
- An example of a touch screen is illustrated in FIG. 20 .
- the touch screen I/O device 556 includes a touch screen 560 mounted over a graphics display 561.
- the display 561 is a liquid crystal display (LCD) with backlighting.
- the display may have, for example, 128 vertical pixels and 256 horizontal pixels.
- the display 561 contains a built-in character generator which permits the display 561 to display text and numbers having font and size pre-defined by the manufacturer of the display. Moreover, a controller such as a CPU is programmed to permit the loading and display of custom fonts and shapes (e.g ., key outlines) on the display 561.
- the display 561 is commercially available as Part No. GMF24012EBTW from Stanley Electric Company, Ltd., Equipment Export Section, of Tokyo, Japan.
- the touch screen 560 may be an X-Y matrix touch screen forming a matrix of touch responsive points.
- the touch screen 560 includes two closely spaced but normally separated layers of optical grade polyester film each having a set of parallel transparent conductors.
- the sets of conductors in the two spaced polyester sheets are oriented at right angles to each other so when superimposed they form a grid.
- a bus which interconnects the conductors supported on that layer. In this manner, electrical signals from the conductors are transmitted to the controller.
- pressure from a finger or stylus is applied to the upper polyester layer, the set of conductors mounted to the upper layer is deflected downward into contact with the set of conductors mounted to the lower polyester layer.
- a matrix touch screen 560 of the above type is commercially available from Dynapro Thin Film Products, Inc. of Milwaukee, Wisconsin.
- the touch screen 560 forms a matrix of ninety-six optically transparent switch elements having six columns and sixteen rows.
- the controller is programmed to divide the switch elements in each column into groups of three to form five switches in each column. Actuation of any one of the three switch elements forming a switch actuates the switch. The uppermost switch element in each column remains on its own and is unused.
- touch screen 560 uses an X-Y matrix of optically transparent switches to detect the location of a touch
- alternative types of touch screens may be substituted for the touch screen 560.
- These alternative touch screens use such well-known techniques as crossed beams of infrared light, acoustic surface waves, capacitance sensing, and resistive membranes to detect the location of a touch.
- the structure and operation of the alternative touch screens are described and illustrated, for example, in U.S. Patent Nos.
- one of the functions of the touch screen display is to display selection elements which may be selected by touching the portion of the screen associated with the selection element.
- the touch screen thereby serves in one respect as a "keyboard", wherein the selection elements displayed on the screen represent "keys" that are activated by touching the associated area of the screen.
- a conventional keyboard may be used instead of or in addition to the touch screen keyboard to facilitate selection of various selection elements.
- the touch screen display may display not only selection elements or "keys”, but also may display messages to the operator including status and error conditions of the discrimination system.
- the configuration of the touch screen display is programmably changeable between several configurations, so that at any given time the touch screen will display only those "keys" or status and error conditions that are appropriate with respect to the present status of the discrimination system.
- the touch screen may display a series of "menus” or "sub-menus", each menu being associated with a particular mode of operation or status of the discrimination system and thereby including only those keys or display conditions appropriate to the particular mode or status of the discrimination system.
- the menu-driven approach is designed to simplify the "keyboard" for operators and reduce training times accordingly.
- the touch screen display may be programmed via computer software including set-up software, operation software and diagnostic software.
- the set-up software is designed to enable the operator to customize various operating parameters and engage or disengage various features of the discrimination system.
- the operating parameters may include, for example, default settings, stopping conditions, off-sort modes, pocket settings, denomination keys, stranger records or communications port settings.
- a set-up mode may permit the user to identify which pocket is to receive no calls, suspect documents, mis-faced and mis-oriented documents, strangers, denomination changes, doubles, and chains or other bills or documents causing other types of minor or major errors.
- This information may be retrieved from the user via a routing interface having a data retrieval device such as a touch-screen.
- the data retrieval device may be some other kind of input or input/output device such as a keypad, buttons, or switches.
- the set-up mode may permit the user to define which pockets are to receive which kinds of documents and whether the system should stop upon the occurrence of various events, e.g ., various minor errors.
- Information concerning whether the system should stop upon the occurrence of one or more of the above conditions may be retrieved from the user via a flagging control interface having a flagging data retrieval device such as a touch-screen.
- the flagging data retrieval device may be some other kind of input or input/output device such as a keypad, buttons, or switches.
- the flagging control interface may be combined with the routing interface.
- the same touch-screen or input device may be used both to retrieve data concerning to which pockets various bills are to be directed as well as whether the system should stop upon the occurrence of one or more events such as the occurrence of one or more types of minor errors.
- the features of the discrimination system which may be engaged or disengaged in the set-up mode include operating modes, operating keys, sub-batching, suspect document authentication tests, stranger records, separate series discrimination, and/or audio alarms.
- the above-described operating features may be activated by touching selection elements or "keys" in respective "menus” associated with the operating features.
- the discrimination system may include the following:
- pressing the "Face” key gives the user the ability to quick-face a stack of bills.
- the machine will deliver face-up bills to pocket I and face-down bills to pocket 2.
- pressing the "Right” key gives the user the ability to quick-right a stack of bills.
- the machine will deliver "readable” bills, e.g ., wherein the words of the bill are right-side-up, to pocket 1 and non-readable bills, e.g ., wherein the words of the bill are upside-down, to pocket 2.
- the "Right" key causes bills having a forward orientation to be delivered to one pocket while causing bills having a reverse orientation to be delivered to the other pocket.
- the operating software is designed to provide the operator with a series of menus or screens, each screen generally being associated with one or more modes of operation, e.g ., STR 1, STR 2, etc.
- each of the screens include selection elements or "keys" which the operator may touch to activate appropriate functions related to the operating mode or status of the discriminator.
- the screens are further designed to display messages to the operator related to the operating modes such as, for example, batch or sub-batch totals and status or error conditions.
- the touch screen at any given time will display only those "keys" or status and error conditions that are associated with the present status of the discrimination machine.
- the 21 represents a "crossroad” or “main” touch screen associated with the a machine operating in "Stranger 1" (STR 1) mode.
- the hatched keys represent functions that are engaged.
- the touch screen contains the following keys and displays: END (600) This key ends either a sub-batch (by pressing once) or a batch (by pressing twice).
- ADD 601
- VERFY 602
- This key allows for Verify mode operation.
- SD (603) This key engages or disengages the Suspect Document (SD) minor error condition.
- MODE (604) This key engages the operating modes.
- MENU 605) This key enables the operator to view totals, set strap limits, and SD and Density thresholds.
- pressing the MENU key (605) will produce the screen shown in FIG. 24 , including BATCH (800), SUB BATCH (801), DAY (802), STRAP (803), SUSPECT DOCUMENT (804), DENSITY (805), UNIT (806) and EXIT (807) keys. Pressing the EXIT key (807) will bring the operator back to the main menu of FIG. 21 . From this screen, pressing BATCH (800), SUB BATCH (801) or DAY (802) will produce a screen indicating totals for the appropriate key. For example, if an operator desires to obtain batch totals, he or she touches the BATCH key (800), which will produce the screen shown in FIG. 25 .
- the screen shown in FIG. 25 indicates the number and aggregate value of each denomination of currency in the batch. Pressing the CLEAR key (810) in the screen of FIG. 25 will clear the appropriate totals and EXIT (811) will bring the operator back to the menu screen of FIG. 24 .
- strap limits may be set for various denominations of currency.
- Nine denominations can be accommodated for international markets.
- a highlighted cursor (900), indicated by hatching in FIG. 26 may be moved by the UP (901) and DOWN (902) keys at the right of the display to a particular denomination selected by the operator, e.g ., $5 in the example shown.
- strap limits may be set by touching one or more of the direct access keys (903a-g) at the bottom of the screen. For example, a strap limit of 100 may be selected by touching the "100" key (903g).
- the "+" (904) and "-" (905) keys allow the operator to program the unit or limit at a custom amount, by incrementing or decrementing the displayed value.
- the unit limit 38 may have been selected by first touching the "50" key (903e) and then touching the "-" key (905) twelve times.
- the CLEAR key (906) is designed to clear the limit and unit count associated with the highlighted line.
- all the strap limits may be cleared by pressing ALL (907), then CLEAR (906).
- Pressing the UNIT key (909) toggles the display between presenting the information in unit form as shown in FIG. 26 and value form ( e.g ., dollars). For example, if the UNIT key (909) were pressed in FIG.
- the system permits adjustment of three types of authentication tests, namely, a magnetic test, an ultraviolet (UV) test, and a fluorescence test.
- the magnetic test measures the total magnetic content of a document along a scan line.
- the ultraviolet test measures the amount of ultraviolet light that is reflected off a document when it is illuminated by an ultraviolet light source.
- the fluorescence test measures the amount of fluorescent light that is emitted from a document when it is illuminated by an ultraviolet light source.
- the system may additionally include other authentication tests such as thread detection, enhanced magnetics tests including those employing a single and multiple magnetic heads, infrared detection, and color authentication tests including those described in PCT application no. US 97/02301 filed on February 14, 1997 .
- These authentication tests may also employ multiple sensitivity setting by denomination and/or series.
- a highlighted cursor (1000), indicated by hatching in FIG. 27 may be moved by the UP (1001) and DOWN (1002) keys and/or left and right arrow keys " ⁇ " (1003), ">” (1004) at the right of the display to a particular selected threshold. Thereafter, thresholds may be set by touching one or more of the direct access keys (1005a-k) at the bottom of the screen.
- the OFF key (1005k) disables an authentication test. EXIT (1006) will bring the operator back to the menu screen of FIG. 24 .
- pressing the DENSITY key (805) will produce the screen shown in FIG. 28 within which an operator may select density levels associated with the various currency denominations.
- the density levels affects such functions as the detection of two or more bills fed in a stacked manner (Doubles major error).
- a highlighted cursor (1100) may be moved by the UP (1101) and DOWN (1102) keys at the right of the display to a particular selected denomination.
- density levels may be set by touching one or more of the direct access keys (1103a-j) at the bottom of the screen.
- the OFF key (1103k) disables density checking for the corresponding denomination.
- EXIT (1104) will bring the operator back to the menu screen of FIG. 24 .
- the display may be used to indicate recovery procedures upon the occurrence of an error condition that has stopped the machine.
- Error conditions can include for example, jam, double, chain, stacker full, strap limit, denomination change, and stranger.
- the recovery procedures are displayed in the form of text indicating both the error condition that has occurred and detailed instructions for the operator to follow to recover from the error condition and resume operation of the machine.
- a jam can be identified by its location in the machine such as in pocket 1, pocket 2, infeed area, etc.
- a display associated with a "strap limit" error condition is shown in FIG. 29 .
- the display “STRAP LIMIT POCKET 1" identifies that the machine has stopped due to a "strap limit” error condition in pocket 1.
- the display "REMOVE NOTES AND PRESS CONT.” indicates to the operator that he or she must first remove the notes in pocket 1, then press the "CONT" key (1200) to resume operation of the machine.
- FIG. 30 A further example of a recovery screen is shown in FIG. 30 , illustrating a display associated with a "no call” error condition.
- a screen substantially similar to FIG. 30 may also be used upon the occurrence of a "suspect document” condition.
- the display "NO CALL PRESS KEY:” indicates to the operator that the machine has stopped due to a "no call” condition and that the operator may press one of the keys (1300a-g) in the display, e.g ., "$1", “$2", “$5", "$10", $20", “$50” or "$100", to resume operation of the machine.
- the operator may thereafter observe the denomination of the "no call" document and press the appropriate key (1300a-g) if the operator finds the bills to be acceptable, causing the machine to add the appropriate value to the count total and resume processing the remaining notes in the stack.
- the operator finds the bill unacceptable (e.g ., suspect, a bill from a different country)
- the operator may press a CONT. key (1301) (Continue key).
- the operator will first remove the unacceptable bill from the output pocket first and then press the CONT. key (1301).
- the machine will then resume processing the remaining notes in the stack without improperly disrupting any running totals or counters.
- the display may be used to enable the operator to enter data such as, for example, user identification, date, customized labels, check amounts, coin amounts, or manual bill counts.
- data entry software providing a series of menus or screens, each including selection elements or "keys" which the operator may touch to activate appropriate functions related to one or more data entry modes.
- These features may be engaged in the set-up program described above, or they may be requested on demand. If used on demand, the "keys" should be displayed upon the beginning of processing a batch of notes.
- FIG. 31 represents a touch screen associated with the a machine in data entry mode. The hatched keys represent functions that are engaged.
- the touch screen contains the following keys and displays: LABEL (1401) This key enables the operator to customize labels A,B,C,D through the touch panel keyboard.
- ID 1402 This key prompts the operator to enter a user identification code.
- MEDIA 1403 This key prompts the operator to enter the media type associated with the data entry, e.g., coin, check or misc.
- DATE 1404 This key prompts the operator to enter the date.
- DBAL 1405) This key prompts the operator to enter a declared balance (Batch and Sub-batch).
- EXIT 1406) This key returns the operator to the previous menu.
- MODE display 1407) This displays the selected mode of operation of the machine.
- STRAP LIMIT display 1408) This displays the strap limit associated with the mode of operation.
- STRAP COUNT display (1409) This displays the current number of a select document-type counted DENOM display (1410) This displays the selected document-type SUB-BATCH display (1411) This displays aggregate totals associated with a sub-batch of currency bills.
- BATCH display (1412) This displays aggregate totals associated with a batch of currency bills.
- Pressing the MEDIA key (1403) will result in the screen shown in FIG. 32 being displayed.
- the operator selects what type of media is to be recorded into the systems memory by selecting either a COIN key (1501), a CHECK key (1502), or a MISC key (1503).
- the operator would select the EXIT key (1504).
- the operator has indicated that the amount of a check is to be entered into the systems memory by selecting the CHECK key (1502).
- the screen shown in FIG. 33 appears and prompts the operator to enter the value of the check by displaying the message: "ENTER VALUE". The amount that operator the enters is displayed on the screen (1510).
- the operator may enter the amount by using a keyboard connected to or integrated into the machine such as that shown in FIG. 34 .
- the keyboard of FIG. 34 may be displayed on the touch screen such as at area 1511 of FIG. 33 .
- the ENTER key 1512
- Data entry mistakes may be corrected by pressing the CLEAR key (1513).
- the EXIT key 1514
- data entry as described above may be performed even while the system is processing a stack of notes. However, upon the occurrence of an error that requires presentation of other keys or functions to recover, data entry will be suspended until the machine resumes operation.
- the discrimination machine is equipped with a series of communications ports to provide one-way or two-way communications link(s) between the discrimination machine and remote operators and/or other machines.
- This communications link may be established, for example, between another currency discrimination machine, a coin sorting machine, a cash settlement system, currency dispensers, or a remote "host" device, such as a computer, for issuing control commands and/or receiving information from the discrimination machine.
- the following commands may be issued from the host, to which the discrimination machine will respond operationally:
- systems according to the present invention may alternatively or additionally process currency of other countries such as the United Kingdom, France, Germany, Japan, Spain, Canada, Italy, Brazil, Mexico, Taiwan, and Saudi Arabia.
- the above systems may support the processing of multiple types of documents including, for example, checks, deposit slips, header documents, etc.
- the systems described above may contain fitness sensors such as density sensors, reflectance sensors, magnetic sensors, correlation, UV and soil sensors, tear detectors, etc. Also the systems may utilize flash memory as mentioned above and E 2 proms for reliable storage of data and set ups.
- fitness sensors such as density sensors, reflectance sensors, magnetic sensors, correlation, UV and soil sensors, tear detectors, etc.
- flash memory as mentioned above and E 2 proms for reliable storage of data and set ups.
- the systems described above may contain unique customization features such as user-defined keys, user-defined print outs, user-defined modes of operation, user-defined document distribution parameters, user-defined set-ups.
- the customization features may be controlled or changed through simple input though an interface device such as a keyboard or touch screen.
- the system permits the user or operator to customize the operation of the machine in a number of ways.
- the user may be permitted to designate into which pocket certain bills are delivered and whether the machine should stop, e.g ., deliver any no calls into pocket 2 and stop the machine after each no call is delivered to pocket 2. Additional examples of how the user may customize a system according to the present invention are described in connection with FIGs. 35-39.
- FIGs. 35-39 illustrate examples of displays designed to aid the operator in tailoring the operation of the machine according to the operator's preferences.
- FIGS. 1-10 illustrate displays that may be used to aid in retrieval of routing and flagging information from a user such as via a routing interface having a data retrieval device such as a touch-screen.
- the data retrieval device may be some other kind of input or input/output device such as a keypad.
- information concerning whether the system should stop upon the occurrence of one or more conditions may be retrieved from the user via a flagging control interface having a flagging data retrieval device such as a touch-screen.
- the flagging data retrieval device may be some other kind of input or input/output device such as a keypad.
- the flagging control interface may be combined with the routing interface into a single interface system.
- FIG. 35 illustrates an example of an operating parameters selection screen in which no selections have been made.
- the left-hand column (C1) lists various features and conditions for which the operator may make selections.
- the right-hand column (C3) lists the available selection choices or options associated with each feature or condition and the middle column (C2) displays the selected option for each feature or condition (in FIG. 35 no selections have been made).
- FIG. 36 an example of the operating parameters selection screen for a Stranger Facing mode is illustrated.
- options which are not available are displayed in a non-highlighted or dim manner, illustrated in FIG. 36 via striking through unavailable options, e.g ., the "OFF" and "ALL" selection choices for the Target 1 denomination.
- the system will deliver to pocket 1 bills having the same denomination and face orientation as the first bill in a stack. This is evident with reference to box C2,R1 which designates the target denomination as that of the "1st BILL”. Additionally, box C2,R2 designates a target face orientation as the face orientation of the "1st BILL".
- the operator may change the selection from "1st BILL” to a specific denomination, $1 - $100 or to User Select (US). If User Select is chosen, at the time the mode is invoked, the operator will be prompted as to the desired selection. In the case of selecting a denomination, any available option may be chosen such as "1st BILL” or a specific denomination. This may be accomplished, for example, by pressing the screen in box C2,R1 in a touch screen environment which will cause the displayed selection to scroll through the available options.
- the operator may choose either “OFF”, “1st BILL”, FORWARD”, “REVERSE”, or “US”.
- series selection the operator may choose either “OFF”, “1st BILL”, “US”, or scroll through any defined series groups such as those described above, e.g ., in connection with the Sort Series modes.
- These series groups may include factory-defined series groups and user-defined groups. Additionally, the operator may be given the option to simply designate a given series or range of series, e.g ., "1996+” for all bills of a 1996 or later series or "1990-1996" for all bills having a series from 1990 to 1996.
- the operator may designate whether the parameters defining Target 1 should be updated upon the occurrence of a relevant condition such as a denomination change, stranger, or separate series condition.
- the updating may be permitted, for example, for all activated parameters defining a target denomination (e.g ., denomination and face orientation in the example of FIG. 36 ) or alternatively, the user may elect to update only certain ones of the activated parameters (e.g ., update upon a stranger condition (new denomination) but not on a reverse face condition).
- the Target 1 parameters are not updated during the processing of a stack of bills.
- Boxes C2,R11 - C2,R19 permit the operator to designate how certain minor error conditions are to be handled, i.e ., by presenting the flagged bill in pocket 1 (P1), presenting the flagged bill in pocket 2 (P2), or delivering the flagged bill to pocket 2 and continuing to process any remaining bills (CONT-2).
- the operator is also given the option of having the transport mechanism stopped with the flagged bill being maintained within the transport mechanism (ST), i.e ., before the flagged bill is delivered into a pocket.
- Positional information obtained from an encoder may be employed to stop a bill in a controlled manner and so that the bill is stopped in a predetermined position or identifiable location.
- the transport mechanism may be stopped such that a flagged minor error bill is located after a diverter and before a next diverter or output receptacle such as between diverter 260 and output receptacle 217b such as being adjacent to plate 278 of FIG. 2 .
- a flagged minor error bill may be stopped before reaching diverter 260 such as being adjacent to plate 262.
- diverter 260 such as being adjacent to plate 262.
- a stopping mechansim employing an interconnected CPU, optical encoder, transport mechanism, and drive motor is described in U.S. Pat. No. 5,295,196 incorporated herein in its entirety.
- a flagged minor error bill such as a stranger, denomination change, or separate series bill may be stopped so that it is located at a predetermined or identifiable position within the transport mechanism ( i.e ., before being transport to the output receptacle).
- Boxes C2,R20 - C2,R23 permit the operator to set how stacker full, strap limit, chain, and double error conditions are handled. As illustrated in FIG. 36 , the machine will stop upon the occurrence of a stacker full condition. Another option includes switching delivery of target notes to the non-current pocket when the current pocket becomes full provided there are no bills in the non-current pocket. Otherwise the machine will halt until one of the pockets is cleared. Box C2,R21 indicates that strap limits will be counted using the contents of both output pockets, i.e., a strap limit will occur when the combined number of target denomination bills delivered to pocket 1 (having the target face orientation) and target denomination bills delivered to pocket 2 (having a reverse face orientation) reaches the limit associated with the target denomination. When either a chain or a double error condition occurs, the machine stops with any chain or double bills being delivered into pocket 2.
- FIG. 37 an example of the operating parameters selection screen for a Sort 3 mode is illustrated.
- $5 bills having any face orientation, any forward/reverse orientation, or any series
- the first non-$5 bill becomes the second target denomination and is off-sorted into pocket 2.
- $5 bills are delivered to pocket 1 and target 2 denominated bills are delivered to pocket 2.
- the denomination change bill will be presented into pocket 2 (C2,R12) and the denomination of the flagged bill will become the new target 2 denomination (C2,R10).
- the target 1 denomination will remain $5 as box C2,R5 indicates that this denomination should not be updated.
- FIG. 38 an example of the operating parameters selection screen for a first user defined mode is illustrated.
- the system may permit the operator to set a number of personalized operating modes (e.g ., user-defined 1, user-defined 2, etc.) Likewise the system may permit user to define the name of the modes, e.g .. "Acme Bank Closing Mode", "Acme Bank Commercial Mode”).
- all face up $100 bills having a series of 1996 or later are delivered into pocket 1 while all face down $100 bills having a series of 1995 or earlier are delivered to pocket 2.
- the flagged bill is presented in pocket 2.
- Information concerning user-defined modes is stored in a memory such as an E 2 PROM so that it can be recalled in the future such as on days subsequent to the day that it is original defined.
- This information is stored in such a manner that it is not lost after the power switch of the currency discriminator is turned off as in a nonvolatile memory.
- the definition of particular user-defined mode will remain unchanged until it is re-defined by a user of the currency discriminator.
- a user may define a mode of operation that is particularly adapted to the needs of the user and repeatedly recall that mode of operation whenever the user desires to operate the machine in that mode.
- the operate could desire to process a stack of currency bills using one of the factory default modes such as the Mixed 1 mode of operation and then process of second stack of bills using an user-defined mode.
- the operator would first select the factory mode desired such as Mixed 1, process the first stack of bills, then select the desired user-defined mode, and process the second stack of bills.
- the definitions of the factory-defined or default modes may also be stored in an E 2 PROM.
- FIG. 39 an example of the operating parameters selection screen for a second user defined mode is illustrated.
- bills of all denominations (as in a mixed mode) are delivered into pocket 1. This is indicated by the selection of "ALL" in box C2,R1. No calls are presented in pocket 1 while suspects, improperly size bills and unfit document are presented in pocket 2. Chains and doubles are directed to pocket 1 and the machine stops.
Landscapes
- Physics & Mathematics (AREA)
- General Physics & Mathematics (AREA)
- Inspection Of Paper Currency And Valuable Securities (AREA)
- Financial Or Insurance-Related Operations Such As Payment And Settlement (AREA)
- Separation, Sorting, Adjustment, Or Bending Of Sheets To Be Conveyed (AREA)
Applications Claiming Priority (7)
| Application Number | Priority Date | Filing Date | Title |
|---|---|---|---|
| US1856396P | 1996-05-29 | 1996-05-29 | |
| US18563P | 1996-05-29 | ||
| US3495497P | 1997-01-16 | 1997-01-16 | |
| US34954P | 1997-01-16 | ||
| US3834097P | 1997-02-27 | 1997-02-27 | |
| US38340P | 1997-02-27 | ||
| EP97927796A EP0960399B2 (en) | 1996-05-29 | 1997-05-28 | Method and apparatus for document processing |
Related Parent Applications (1)
| Application Number | Title | Priority Date | Filing Date |
|---|---|---|---|
| EP97927796A Division EP0960399B2 (en) | 1996-05-29 | 1997-05-28 | Method and apparatus for document processing |
Publications (4)
| Publication Number | Publication Date |
|---|---|
| EP1227446A2 EP1227446A2 (en) | 2002-07-31 |
| EP1227446A3 EP1227446A3 (en) | 2002-11-27 |
| EP1227446B1 EP1227446B1 (en) | 2007-04-25 |
| EP1227446B2 true EP1227446B2 (en) | 2015-11-11 |
Family
ID=27361048
Family Applications (4)
| Application Number | Title | Priority Date | Filing Date |
|---|---|---|---|
| EP02008595.7A Expired - Lifetime EP1227446B2 (en) | 1996-05-29 | 1997-05-28 | Method and apparatus for document processing |
| EP01121852A Withdrawn EP1168254A3 (en) | 1996-05-29 | 1997-05-28 | Method an apparatus for document processing |
| EP99113458A Ceased EP0952556A3 (en) | 1996-05-29 | 1997-05-28 | Method and apparatus for document processing |
| EP97927796A Expired - Lifetime EP0960399B2 (en) | 1996-05-29 | 1997-05-28 | Method and apparatus for document processing |
Family Applications After (3)
| Application Number | Title | Priority Date | Filing Date |
|---|---|---|---|
| EP01121852A Withdrawn EP1168254A3 (en) | 1996-05-29 | 1997-05-28 | Method an apparatus for document processing |
| EP99113458A Ceased EP0952556A3 (en) | 1996-05-29 | 1997-05-28 | Method and apparatus for document processing |
| EP97927796A Expired - Lifetime EP0960399B2 (en) | 1996-05-29 | 1997-05-28 | Method and apparatus for document processing |
Country Status (5)
| Country | Link |
|---|---|
| EP (4) | EP1227446B2 (enExample) |
| AU (1) | AU3216897A (enExample) |
| CA (1) | CA2256760C (enExample) |
| DE (2) | DE69712105T2 (enExample) |
| WO (1) | WO1997045810A1 (enExample) |
Families Citing this family (45)
| Publication number | Priority date | Publication date | Assignee | Title |
|---|---|---|---|---|
| US7248731B2 (en) | 1992-05-19 | 2007-07-24 | Cummins-Allison Corp. | Method and apparatus for currency discrimination |
| US6363164B1 (en) | 1996-05-13 | 2002-03-26 | Cummins-Allison Corp. | Automated document processing system using full image scanning |
| US7232024B2 (en) | 1996-05-29 | 2007-06-19 | Cunnins-Allison Corp. | Currency processing device |
| US7753189B2 (en) | 2003-08-01 | 2010-07-13 | Cummins-Allison Corp. | Currency processing device, method and system |
| US8162125B1 (en) | 1996-05-29 | 2012-04-24 | Cummins-Allison Corp. | Apparatus and system for imaging currency bills and financial documents and method for using the same |
| US7187795B2 (en) | 2001-09-27 | 2007-03-06 | Cummins-Allison Corp. | Document processing system using full image scanning |
| US20050276458A1 (en) | 2004-05-25 | 2005-12-15 | Cummins-Allison Corp. | Automated document processing system and method using image scanning |
| IT245737Y1 (it) * | 1998-10-21 | 2002-03-22 | Mediatel Internat Service Sas | Dispositivo per la verifica di autenticita' di banconote e schedaelettronica per l'impiego di detto dispositivo. |
| DE19958017B4 (de) * | 1999-12-02 | 2013-08-14 | Giesecke & Devrient Gmbh | Vorrichtung zum Sortieren von Banknoten |
| US8701857B2 (en) | 2000-02-11 | 2014-04-22 | Cummins-Allison Corp. | System and method for processing currency bills and tickets |
| US7201320B2 (en) | 2000-02-11 | 2007-04-10 | Cummins-Allison Corp. | System and method for processing currency bills and documents bearing barcodes in a document processing device |
| GB0004077D0 (en) * | 2000-02-21 | 2000-04-12 | Rue De Int Ltd | Document sorter and method |
| JP2001344635A (ja) | 2000-06-02 | 2001-12-14 | Birukon Kk | 紙葉類識別計数機およびその識別計数方法 |
| DE10030221A1 (de) | 2000-06-20 | 2002-01-03 | Giesecke & Devrient Gmbh | Vorrichtung zum Bearbeiten von Blattgut |
| GB0100033D0 (en) * | 2001-01-02 | 2001-02-14 | Rue De Int Ltd | Document handling apparatus and method |
| US7647275B2 (en) | 2001-07-05 | 2010-01-12 | Cummins-Allison Corp. | Automated payment system and method |
| US8428332B1 (en) | 2001-09-27 | 2013-04-23 | Cummins-Allison Corp. | Apparatus and system for imaging currency bills and financial documents and method for using the same |
| US8437529B1 (en) | 2001-09-27 | 2013-05-07 | Cummins-Allison Corp. | Apparatus and system for imaging currency bills and financial documents and method for using the same |
| US8437530B1 (en) | 2001-09-27 | 2013-05-07 | Cummins-Allison Corp. | Apparatus and system for imaging currency bills and financial documents and method for using the same |
| US8944234B1 (en) | 2001-09-27 | 2015-02-03 | Cummins-Allison Corp. | Apparatus and system for imaging currency bills and financial documents and method for using the same |
| US6896118B2 (en) | 2002-01-10 | 2005-05-24 | Cummins-Allison Corp. | Coin redemption system |
| US6913260B2 (en) | 2002-03-06 | 2005-07-05 | Cummins-Allison Corp. | Currency processing system with fitness detection |
| US7600626B2 (en) | 2002-06-13 | 2009-10-13 | Cummins-Allison Corp. | Currency processing and strapping systems and methods |
| US8627939B1 (en) | 2002-09-25 | 2014-01-14 | Cummins-Allison Corp. | Apparatus and system for imaging currency bills and financial documents and method for using the same |
| US7635082B2 (en) | 2003-02-07 | 2009-12-22 | Cummins-Allison Corp. | Currency dispenser |
| US7103438B2 (en) | 2003-09-15 | 2006-09-05 | Cummins-Allison Corp. | System and method for searching and verifying documents in a document processing device |
| US7016767B2 (en) | 2003-09-15 | 2006-03-21 | Cummins-Allison Corp. | System and method for processing currency and identification cards in a document processing device |
| WO2006039439A2 (en) | 2004-09-30 | 2006-04-13 | Cummins-Allison Corp. | Magnetic detection system for use in currency processing and method and apparatus for using the same |
| WO2007044570A2 (en) | 2005-10-05 | 2007-04-19 | Cummins-Allison Corp. | Currency processing system with fitness detection |
| US7762380B2 (en) | 2006-03-09 | 2010-07-27 | Cummins-Allison Corp. | Currency discrimination system and method |
| US7686151B2 (en) | 2006-06-01 | 2010-03-30 | Cummins-Allison Corp. | Angled currency processing system |
| US8401268B1 (en) | 2007-03-09 | 2013-03-19 | Cummins-Allison Corp. | Optical imaging sensor for a document processing device |
| US8417017B1 (en) | 2007-03-09 | 2013-04-09 | Cummins-Allison Corp. | Apparatus and system for imaging currency bills and financial documents and method for using the same |
| CA2677714C (en) | 2007-03-09 | 2014-12-23 | Cummins-Allison Corp. | Document imaging and processing system |
| KR101754051B1 (ko) | 2007-04-24 | 2017-07-04 | 글로리 글로벌 솔루션스 (인터내셔널) 리미티드 | 물품을 분류하기 위한 방법 및 장치 |
| US8437532B1 (en) | 2009-04-15 | 2013-05-07 | Cummins-Allison Corp. | Apparatus and system for imaging currency bills and financial documents and method for using the same |
| US8929640B1 (en) | 2009-04-15 | 2015-01-06 | Cummins-Allison Corp. | Apparatus and system for imaging currency bills and financial documents and method for using the same |
| US8391583B1 (en) | 2009-04-15 | 2013-03-05 | Cummins-Allison Corp. | Apparatus and system for imaging currency bills and financial documents and method for using the same |
| GB2556738B (en) | 2010-03-03 | 2019-01-16 | Cummins Allison Corp | Currency bill processing device and method |
| CN102610032A (zh) * | 2011-01-20 | 2012-07-25 | 浙江方泰电器有限公司 | 一种纸币两腔半清分机 |
| US9141876B1 (en) | 2013-02-22 | 2015-09-22 | Cummins-Allison Corp. | Apparatus and system for processing currency bills and financial documents and method for using the same |
| US8973817B1 (en) | 2013-03-15 | 2015-03-10 | Cummins-Allison Corp. | Apparatus, method, and system for loading currency bills into a currency processing device |
| US11734983B1 (en) | 2018-12-18 | 2023-08-22 | Cummins-Allison Corp. | Banknote transport mechanisms and methods |
| AU2022311032B2 (en) * | 2021-07-16 | 2025-02-27 | Crane Payment Innovations, Inc. | Dual use of a recycling drum for recycling banknotes in regular operation and storing banknotes during feeding operation |
| DE102022214101A1 (de) * | 2022-12-21 | 2024-06-27 | Giesecke+Devrient Currency Technology Gmbh | Verfahren zur Herstellung von Akkumulatoren und Stapel-Vorrichtung zur Herstellung von Akkumulatoren |
Citations (4)
| Publication number | Priority date | Publication date | Assignee | Title |
|---|---|---|---|---|
| EP0130825A2 (en) † | 1983-07-01 | 1985-01-09 | De La Rue Systems Limited | Method and apparatus for sensing sheets |
| US5230653A (en) † | 1991-04-10 | 1993-07-27 | Laurel Bank Machines Co., Ltd. | Currency sorting apparatus |
| US5467405A (en) † | 1990-02-05 | 1995-11-14 | Cummins-Allison Corporation | Method and apparatus for currency discrimination and counting |
| EP0706156A2 (en) † | 1990-02-05 | 1996-04-10 | Cummins-Allison Corporation | Method and apparatus for currency discrimination and counting |
Family Cites Families (21)
| Publication number | Priority date | Publication date | Assignee | Title |
|---|---|---|---|---|
| US3280974A (en) | 1961-08-23 | 1966-10-25 | John B Riddle | Method and apparatus for recognizing printed currency |
| US3870629A (en) | 1973-10-11 | 1975-03-11 | Umc Ind | Paper currency validator |
| US4114804A (en) † | 1976-08-04 | 1978-09-19 | Brandt-Pra, Inc. | Counterfeit detection means for paper counting |
| DE2760269C2 (de) † | 1977-07-01 | 1987-03-05 | Gao Gesellschaft Fuer Automation Und Organisation Mbh, 8000 Muenchen | Verfahren zum automatischen Sortieren von dünnem Blattgut |
| US4503963A (en) * | 1979-09-13 | 1985-03-12 | Rowe International, Inc. | Control circuit for bill and coin changer |
| CH633378A5 (fr) † | 1979-10-19 | 1982-11-30 | Radioelectrique Comp Ind | Machine de table pour le comptage de liasses de billets usages. |
| US4356473A (en) | 1980-09-23 | 1982-10-26 | Gte Laboratories Incorporated | Monetary document profile location and predetermined selected path apparatus |
| JPS5776682A (en) † | 1980-10-31 | 1982-05-13 | Laurel Bank Machine Co | Money note tripping device with rejected content recording function |
| JPS59184989A (ja) † | 1983-04-04 | 1984-10-20 | 株式会社東芝 | 区分集積装置 |
| GB8319972D0 (en) † | 1983-07-25 | 1983-08-24 | De La Rue Syst | Sheet feeding apparatus |
| US4593184A (en) | 1983-08-19 | 1986-06-03 | Brandt, Incorporated | Counterfeit detection circuit |
| JPS6061461A (ja) † | 1983-09-14 | 1985-04-09 | Toshiba Corp | 紙葉類の集積制御方式 |
| US4784274A (en) * | 1983-10-03 | 1988-11-15 | Kabushiki Kaisha Nippon Coinco | Bill device |
| US4617458A (en) | 1985-02-11 | 1986-10-14 | Brandt, Inc. | Counterfeit detection circuit |
| JP2699449B2 (ja) † | 1988-09-19 | 1998-01-19 | 株式会社日立製作所 | 現金自動取引装置および現金回収方法 |
| US5119025A (en) | 1990-07-26 | 1992-06-02 | Eastman Kodak Company | High-sensitivity magnetorresistive magnetometer having laminated flux collectors defining an open-loop flux-conducting path |
| US5151607A (en) | 1991-05-02 | 1992-09-29 | Crane Timothy T | Currency verification device including ferrous oxide detection |
| US5430664A (en) * | 1992-07-14 | 1995-07-04 | Technitrol, Inc. | Document counting and batching apparatus with counterfeit detection |
| US5402895A (en) * | 1993-09-28 | 1995-04-04 | Brandt, Inc. | Magnetic facing system |
| DE69527552T2 (de) | 1994-03-08 | 2003-03-20 | Cummins-Allison Corp., Mount Prospect | Verfahren und Apparat zum Unterscheiden und Zählen von Dokumenten |
| EP1246139A3 (en) | 1994-10-04 | 2006-11-15 | Cummins-Allison Corporation | Method and apparatus for discriminating, authenticating and/or counting documents |
-
1997
- 1997-05-28 DE DE69712105T patent/DE69712105T2/de not_active Expired - Fee Related
- 1997-05-28 CA CA002256760A patent/CA2256760C/en not_active Expired - Lifetime
- 1997-05-28 WO PCT/US1997/009041 patent/WO1997045810A1/en not_active Ceased
- 1997-05-28 DE DE69737666T patent/DE69737666T2/de not_active Expired - Fee Related
- 1997-05-28 EP EP02008595.7A patent/EP1227446B2/en not_active Expired - Lifetime
- 1997-05-28 EP EP01121852A patent/EP1168254A3/en not_active Withdrawn
- 1997-05-28 EP EP99113458A patent/EP0952556A3/en not_active Ceased
- 1997-05-28 AU AU32168/97A patent/AU3216897A/en not_active Abandoned
- 1997-05-28 EP EP97927796A patent/EP0960399B2/en not_active Expired - Lifetime
Patent Citations (4)
| Publication number | Priority date | Publication date | Assignee | Title |
|---|---|---|---|---|
| EP0130825A2 (en) † | 1983-07-01 | 1985-01-09 | De La Rue Systems Limited | Method and apparatus for sensing sheets |
| US5467405A (en) † | 1990-02-05 | 1995-11-14 | Cummins-Allison Corporation | Method and apparatus for currency discrimination and counting |
| EP0706156A2 (en) † | 1990-02-05 | 1996-04-10 | Cummins-Allison Corporation | Method and apparatus for currency discrimination and counting |
| US5230653A (en) † | 1991-04-10 | 1993-07-27 | Laurel Bank Machines Co., Ltd. | Currency sorting apparatus |
Also Published As
| Publication number | Publication date |
|---|---|
| EP1227446A3 (en) | 2002-11-27 |
| CA2256760A1 (en) | 1997-12-04 |
| EP0960399A4 (enExample) | 1999-12-01 |
| EP0960399B2 (en) | 2010-03-03 |
| EP0960399A1 (en) | 1999-12-01 |
| DE69712105D1 (de) | 2002-05-23 |
| DE69737666T2 (de) | 2007-08-16 |
| EP0952556A3 (en) | 1999-11-03 |
| EP0952556A2 (en) | 1999-10-27 |
| EP1168254A3 (en) | 2002-02-06 |
| EP0960399B1 (en) | 2002-04-17 |
| DE69737666D1 (de) | 2007-06-06 |
| CA2256760C (en) | 2009-12-15 |
| EP1227446A2 (en) | 2002-07-31 |
| EP1227446B1 (en) | 2007-04-25 |
| DE69712105T2 (de) | 2002-08-22 |
| WO1997045810A1 (en) | 1997-12-04 |
| EP1168254A2 (en) | 2002-01-02 |
| AU3216897A (en) | 1998-01-05 |
Similar Documents
| Publication | Publication Date | Title |
|---|---|---|
| EP1227446B2 (en) | Method and apparatus for document processing | |
| US6311819B1 (en) | Method and apparatus for document processing | |
| US6955253B1 (en) | Apparatus with two or more pockets for document processing | |
| US7232024B2 (en) | Currency processing device | |
| US6959800B1 (en) | Method for document processing | |
| US6913130B1 (en) | Method and apparatus for document processing | |
| US6866134B2 (en) | Method and apparatus for document processing | |
| US6868954B2 (en) | Method and apparatus for document processing | |
| US6278795B1 (en) | Multi-pocket currency discriminator | |
| US20040182675A1 (en) | Currency processing device having a multiple stage transport path and method for operating the same | |
| EP0807906B1 (en) | Method and apparatus for discriminating and counting documents | |
| US7735621B2 (en) | Multiple pocket currency bill processing device and method | |
| EP0731954B1 (en) | Method and apparatus for discriminating, authenticating and/or counting documents | |
| US7779982B2 (en) | Currency processing and strapping systems and methods | |
| US8714335B2 (en) | Currency processing and strapping systems and methods | |
| CA2329166C (en) | Apparatus for document processing | |
| JP2003296783A (ja) | 紙幣計数装置 | |
| CA2178199C (en) | Method and apparatus for discriminating, authenticating and/or counting documents |
Legal Events
| Date | Code | Title | Description |
|---|---|---|---|
| PUAI | Public reference made under article 153(3) epc to a published international application that has entered the european phase |
Free format text: ORIGINAL CODE: 0009012 |
|
| AC | Divisional application: reference to earlier application |
Ref document number: 960399 Country of ref document: EP |
|
| AK | Designated contracting states |
Kind code of ref document: A2 Designated state(s): DE FR GB IT |
|
| RIN1 | Information on inventor provided before grant (corrected) |
Inventor name: CSULITS, FRANK, M. Inventor name: MENNIE, DOUGLAS, U. Inventor name: STROMME, LARS, R. Inventor name: GRAVES, BRADFORD, T. Inventor name: JONES, WILLIAM, J. Inventor name: SCHREITER, HEINZ, W. Inventor name: KLEIN, ROBERT, L. Inventor name: MAZUR, RICHARD, A. |
|
| PUAL | Search report despatched |
Free format text: ORIGINAL CODE: 0009013 |
|
| AK | Designated contracting states |
Kind code of ref document: A3 Designated state(s): DE FR GB IT |
|
| 17P | Request for examination filed |
Effective date: 20030103 |
|
| 17Q | First examination report despatched |
Effective date: 20030625 |
|
| AKX | Designation fees paid |
Designated state(s): DE FR GB IT |
|
| GRAP | Despatch of communication of intention to grant a patent |
Free format text: ORIGINAL CODE: EPIDOSNIGR1 |
|
| GRAS | Grant fee paid |
Free format text: ORIGINAL CODE: EPIDOSNIGR3 |
|
| GRAA | (expected) grant |
Free format text: ORIGINAL CODE: 0009210 |
|
| AC | Divisional application: reference to earlier application |
Ref document number: 0960399 Country of ref document: EP Kind code of ref document: P |
|
| AK | Designated contracting states |
Kind code of ref document: B1 Designated state(s): DE FR GB IT |
|
| REG | Reference to a national code |
Ref country code: GB Ref legal event code: FG4D |
|
| REF | Corresponds to: |
Ref document number: 69737666 Country of ref document: DE Date of ref document: 20070606 Kind code of ref document: P |
|
| RIN2 | Information on inventor provided after grant (corrected) |
Inventor name: SCHREITER, HEINZ, W. Inventor name: MUNRO, MARK, C. Inventor name: MENNIE, DOUGLAS, U. Inventor name: JONES, WILLIAM, J. Inventor name: KLEIN, ROBERT, L. Inventor name: STROMME, LARS, R. Inventor name: CSULITS, FRANK, M. Inventor name: MAZUR, RICHARD, A. Inventor name: GRAVES, BRADFORD, T. Inventor name: ANDERSON, MATTHEW, L. |
|
| ET | Fr: translation filed | ||
| PLBI | Opposition filed |
Free format text: ORIGINAL CODE: 0009260 |
|
| 26 | Opposition filed |
Opponent name: DE LA RUE INTERNATIONAL LIMITED Effective date: 20080122 Opponent name: GIESECKE & DEVRIENT GMBH Effective date: 20080117 |
|
| PLAX | Notice of opposition and request to file observation + time limit sent |
Free format text: ORIGINAL CODE: EPIDOSNOBS2 |
|
| PLAF | Information modified related to communication of a notice of opposition and request to file observations + time limit |
Free format text: ORIGINAL CODE: EPIDOSCOBS2 |
|
| PGFP | Annual fee paid to national office [announced via postgrant information from national office to epo] |
Ref country code: DE Payment date: 20080605 Year of fee payment: 12 |
|
| PLBB | Reply of patent proprietor to notice(s) of opposition received |
Free format text: ORIGINAL CODE: EPIDOSNOBS3 |
|
| PGFP | Annual fee paid to national office [announced via postgrant information from national office to epo] |
Ref country code: IT Payment date: 20080530 Year of fee payment: 12 |
|
| REG | Reference to a national code |
Ref country code: FR Ref legal event code: ST Effective date: 20100129 |
|
| PG25 | Lapsed in a contracting state [announced via postgrant information from national office to epo] |
Ref country code: FR Free format text: LAPSE BECAUSE OF NON-PAYMENT OF DUE FEES Effective date: 20090602 |
|
| PGFP | Annual fee paid to national office [announced via postgrant information from national office to epo] |
Ref country code: FR Payment date: 20080514 Year of fee payment: 12 |
|
| APAH | Appeal reference modified |
Free format text: ORIGINAL CODE: EPIDOSCREFNO |
|
| APBM | Appeal reference recorded |
Free format text: ORIGINAL CODE: EPIDOSNREFNO |
|
| APBP | Date of receipt of notice of appeal recorded |
Free format text: ORIGINAL CODE: EPIDOSNNOA2O |
|
| PG25 | Lapsed in a contracting state [announced via postgrant information from national office to epo] |
Ref country code: DE Free format text: LAPSE BECAUSE OF NON-PAYMENT OF DUE FEES Effective date: 20091201 |
|
| APBQ | Date of receipt of statement of grounds of appeal recorded |
Free format text: ORIGINAL CODE: EPIDOSNNOA3O |
|
| PG25 | Lapsed in a contracting state [announced via postgrant information from national office to epo] |
Ref country code: IT Free format text: LAPSE BECAUSE OF NON-PAYMENT OF DUE FEES Effective date: 20090528 |
|
| APBU | Appeal procedure closed |
Free format text: ORIGINAL CODE: EPIDOSNNOA9O |
|
| PUAH | Patent maintained in amended form |
Free format text: ORIGINAL CODE: 0009272 |
|
| STAA | Information on the status of an ep patent application or granted ep patent |
Free format text: STATUS: PATENT MAINTAINED AS AMENDED |
|
| 27A | Patent maintained in amended form |
Effective date: 20151111 |
|
| AK | Designated contracting states |
Kind code of ref document: B2 Designated state(s): DE FR GB IT |
|
| REG | Reference to a national code |
Ref country code: DE Ref legal event code: R102 Ref document number: 69737666 Country of ref document: DE |
|
| PGFP | Annual fee paid to national office [announced via postgrant information from national office to epo] |
Ref country code: GB Payment date: 20160525 Year of fee payment: 20 |
|
| REG | Reference to a national code |
Ref country code: GB Ref legal event code: PE20 Expiry date: 20170527 |
|
| PG25 | Lapsed in a contracting state [announced via postgrant information from national office to epo] |
Ref country code: GB Free format text: LAPSE BECAUSE OF EXPIRATION OF PROTECTION Effective date: 20170527 |