WO2024095952A1 - 放射性核種含有物質投与施設 - Google Patents

放射性核種含有物質投与施設 Download PDF

Info

Publication number
WO2024095952A1
WO2024095952A1 PCT/JP2023/039056 JP2023039056W WO2024095952A1 WO 2024095952 A1 WO2024095952 A1 WO 2024095952A1 JP 2023039056 W JP2023039056 W JP 2023039056W WO 2024095952 A1 WO2024095952 A1 WO 2024095952A1
Authority
WO
WIPO (PCT)
Prior art keywords
administration facility
radionuclide
room
wall
radiation
Prior art date
Legal status (The legal status is an assumption and is not a legal conclusion. Google has not performed a legal analysis and makes no representation as to the accuracy of the status listed.)
Ceased
Application number
PCT/JP2023/039056
Other languages
English (en)
French (fr)
Japanese (ja)
Inventor
厚至 辻
寿 鈴木
達也 東
弘太郎 永津
Current Assignee (The listed assignees may be inaccurate. Google has not performed a legal analysis and makes no representation or warranty as to the accuracy of the list.)
National Institutes For Quantum Science and Technology
Original Assignee
National Institutes For Quantum Science and Technology
Priority date (The priority date is an assumption and is not a legal conclusion. Google has not performed a legal analysis and makes no representation as to the accuracy of the date listed.)
Filing date
Publication date
Application filed by National Institutes For Quantum Science and Technology filed Critical National Institutes For Quantum Science and Technology
Priority to JP2024554496A priority Critical patent/JPWO2024095952A1/ja
Priority to AU2023373589A priority patent/AU2023373589A1/en
Publication of WO2024095952A1 publication Critical patent/WO2024095952A1/ja
Anticipated expiration legal-status Critical
Ceased legal-status Critical Current

Links

Images

Classifications

    • EFIXED CONSTRUCTIONS
    • E04BUILDING
    • E04BGENERAL BUILDING CONSTRUCTIONS; WALLS, e.g. PARTITIONS; ROOFS; FLOORS; CEILINGS; INSULATION OR OTHER PROTECTION OF BUILDINGS
    • E04B1/00Constructions in general; Structures which are not restricted either to walls, e.g. partitions, or floors or ceilings or roofs
    • E04B1/343Structures characterised by movable, separable, or collapsible parts, e.g. for transport
    • EFIXED CONSTRUCTIONS
    • E04BUILDING
    • E04HBUILDINGS OR LIKE STRUCTURES FOR PARTICULAR PURPOSES; SWIMMING OR SPLASH BATHS OR POOLS; MASTS; FENCING; TENTS OR CANOPIES, IN GENERAL
    • E04H3/00Buildings or groups of buildings for public or similar purposes; Institutions, e.g. infirmaries or prisons
    • E04H3/08Hospitals, infirmaries, or the like; Schools; Prisons
    • GPHYSICS
    • G09EDUCATION; CRYPTOGRAPHY; DISPLAY; ADVERTISING; SEALS
    • G09FDISPLAYING; ADVERTISING; SIGNS; LABELS OR NAME-PLATES; SEALS
    • G09F13/00Illuminated signs; Luminous advertising
    • G09F13/04Signs, boards or panels, illuminated from behind the insignia
    • GPHYSICS
    • G21NUCLEAR PHYSICS; NUCLEAR ENGINEERING
    • G21FPROTECTION AGAINST X-RADIATION, GAMMA RADIATION, CORPUSCULAR RADIATION OR PARTICLE BOMBARDMENT; TREATING RADIOACTIVELY CONTAMINATED MATERIAL; DECONTAMINATION ARRANGEMENTS THEREFOR
    • G21F7/00Shielded cells or rooms

Definitions

  • the present invention relates to a radionuclide-containing substance administration facility for administering a substance containing a radionuclide to a human.
  • Non-Patent Document 1 also discloses a closed, windowless hospital room.
  • the size of the living room will be the minimum necessary.
  • the inventors have been working hard to develop and improve mobile radiation therapy rooms that can be used for treatment and hospitalization using alpha-ray emitting nuclides, and in recent years have realized a radiation therapy room in the form of a trailer house, which has attracted attention from around the world.
  • Such mobile radiation controlled areas are divided into multiple rooms, including a living room, and there is a limit to the size of the space that can be allocated as a living room, and as mentioned above, they are covered with shielding, making it impossible to install windows.
  • one aspect of the present invention aims to provide a facility for administering radioactive nuclide-containing materials that can improve the quality of the living environment within a radiation-controlled area.
  • a radionuclide-containing substance administration facility is a radionuclide-containing substance administration facility having a radiation-controlled area including a living room, and is provided with a shielding wall that separates the inside and outside of the radiation-controlled area, an inner wall that covers the side or ceiling of the living room on the inside of the shielding wall, and a pseudo window provided in the inner wall, the pseudo window having a built-in lighting device or display device.
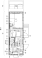
  • FIG. 1 is a plan view showing the internal structure of a radionuclide-containing substance administration facility unit (administration facility unit) according to one embodiment of the present invention.
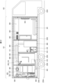
  • FIG. 2 is a cross-sectional view showing the administration facility unit of FIG. 1 cut vertically along the longitudinal direction of the unit at a position including a toilet room.
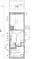
  • FIG. FIG. 2 is a plan view illustrating various components of an air conditioning device provided in the administration facility unit in addition to the plan view of the administration facility unit in FIG. 1 .
  • FIG. 4 is a schematic diagram showing the configuration of the air conditioning device shown in FIG. 3 .
  • FIG. 2 is a plan view illustrating various configurations relating to water supply and drainage provided in the administration facility unit in addition to the plan view of the administration facility unit in FIG. 1 .
  • FIG. 6 is a partial cross-sectional view of the administration facility unit, centered on the location of the radioactive wastewater storage tank for the wastewater shown in FIG. 5 .
  • FIG. 2 is a partial cross-sectional view of a modified example of the administration facility unit in FIG. 1 , taken along the line centering on the position of the radioactive wastewater storage tank.
  • FIG. 2 is a perspective view showing an interior state of a dwelling room of the administration facility unit of FIG. 1.
  • 2 is a cross-sectional view of the administration facility unit of FIG. 1 , showing the interior of the living room of the administration facility unit from the side where the sliding door is provided.
  • 2 is a cross-sectional view of the administration facility unit of FIG.
  • FIG. 1 showing the interior of the living room of the administration facility unit from the side opposite to the side where the sliding door is provided.
  • 10 is a cross-sectional view taken along line AA' in FIG. 9.
  • 10 is a cross-sectional view taken along line BB' in FIG. 9.
  • 2 is a diagram illustrating the installation position of a pseudo window relative to the indoor space of the administration facility unit in FIG. 1.
  • the following describes a radionuclide-containing substance administration facility unit equipped with an air conditioning device according to one embodiment of the present invention.
  • a radionuclide-containing substance administration facility is a unit structure equipped with necessary equipment for administering a radionuclide-containing substance (hereinafter simply referred to as a radioactive substance) to a human.
  • a radionuclide-containing substance administration facility unit (hereinafter referred to as an administration facility unit) is considered as one of the radionuclide-containing substance administration facilities.
  • the administration facility unit is a radionuclide-containing substance administration facility that is portable or self-propelled and has a radiation controlled area and a hospital bed installed inside the radiation controlled area.
  • “Portable” means that it can be transported by a means of transportation (such as a vehicle, railway, ship, or aircraft) or can be lifted by a hoist (such as a crane).
  • “Self-propelled” means that the vehicle is a type with a relatively large interior space, such as a bus, and is self-propelled.
  • the radiation control area is configured in at least a part of the administration facility unit.
  • the radiation control area refers to an area stipulated in the relevant laws and regulations that stipulate the use of radiation for the purpose of safely handling and managing radioactive materials or radiation generating devices (radiation from them).
  • the dose limit at the boundary of the radiation control area is 1.3 mSv/3 months
  • the dose limit at the boundary of the business establishment is 250 ⁇ Sv/3 months.
  • a radiation control area that meets the dose limit at the boundary of the business establishment can be placed without going through complicated procedures in land and facilities that do not fall under the business establishments stipulated in the above law.
  • the type and thickness of the shielding material depends on the nuclide and the amount used in the radiation control area. Therefore, the shielding material in the radiation control area that constitutes at least a part of the administration facility unit is required to shield one or more of alpha rays, beta rays, and gamma rays, or all of them, depending on the nuclide.
  • the shielding material in the radiation control area that constitutes at least a part of the administration facility unit is required to shield one or more of alpha rays, beta rays, and gamma rays, or all of them, depending on the nuclide.
  • I-131 requires that the source be surrounded by 7.5 cm of lead, and that 7.5 cm of lead be placed between the source and the worker.
  • Ac-225 requires a lead thickness of at least 0.3 mm.
  • the administration facility unit of this embodiment is capable of conducting clinical trials, medical investigations, and treatments using substances containing alpha-ray emitting radionuclides, for example, in a radiation controlled area.
  • an alpha-emitting radionuclide refers to an atom that contains an atomic nucleus that decays by emitting alpha rays.
  • a substance that contains an alpha-emitting radionuclide refers to the atom itself, as well as a compound in which the atom is bound to one or more other atoms.
  • An alpha-emitting radionuclide is any known alpha decay nuclide.
  • Preferred alpha-emitting radionuclides include nuclides that fall into one or more of the following groups (1) to (3):
  • nuclide having a half-life that is easy to handle as a therapeutic agent (1) A nuclide having a half-life that is easy to handle as a therapeutic agent; (2) Nuclides for which manufacturing methods have been established; (3) A nuclide whose effectiveness on cells or living organisms has been reported.
  • the half-life in (1) above is, for example, 40 days or less, preferably 30 days or less, more preferably 20 days or less, and even more preferably 14 days or less.
  • (2) is preferably a nuclide produced for animal experiments (e.g., Tb-149, Pb-212, Bi-212, Bi-213, At-211, Ra-223, Ra-224, and Ac-225), more preferably a nuclide produced for human clinical trials (e.g., Pb-212, Bi-213, At-211, Ac-225, and Ra-223), and most preferably a commercially available nuclide (e.g., Ra-223).
  • (3) is selected from Tb-149, Pb-212, Bi-212, Bi-213, At-211, Ra-223, Ra-224, and Ac-225, the effectiveness of which has been reported for cells or living organisms.
  • drugs containing alpha-emitting radionuclides are expected to be the core of TRT due to their high therapeutic effect and low side effects on surrounding tissues (this also applies to part of the Third Basic Plan for Promoting Cancer Control).
  • Xofigo registered trademark
  • Xofigo which was approved by the FDA in May 2013 as the world's first drug containing alpha-emitting radionuclides and was also approved as a drug by the Ministry of Health, Labor and Welfare in March 2016, is currently the only drug in Japan that contains alpha-emitting radionuclides.
  • the above-mentioned hospital room cannot be used for additional testing of the above-mentioned drug candidate (including administration to humans).
  • a large amount of money approximately 400 to 500 million yen
  • the inventors have conducted extensive research and developed an administration facility unit as a mobile radiation therapy hospital room that allows treatment and hospitalization using substances containing alpha-ray emitting radioactive nuclides.
  • the administration facility unit of this embodiment is realized as a structure that is not a building by itself, and is equipped with a portable radiation-controlled area (with hospital beds installed inside) in which alpha-emitting radionuclides (or substances containing them) can be administered.
  • the "shielding" installed in the radiation control area to keep the radiation dose outside the radiation control area below legal limits can be achieved with a relatively light and thin shield made of lead with a thickness of approximately 0.3 mm or more.
  • the radiation control area containing hospital beds can be significantly lighter.
  • a lighter radiation control area makes it possible to transport the administration facility unit.
  • the realization of a portable administration facility unit reduces the need to construct or expand buildings as buildings, thereby reducing construction or expansion costs.
  • the realization of a portable administration facility unit makes it possible to easily install and remove the administration facility unit itself (installation of the administration facility unit at any time and place).
  • the administration facility unit for use with alpha-ray-emitting radionuclides, it is possible to use light and thin shielding for the "storage tank” that collects wastewater containing radioactive materials and shields it from radiation.
  • the administration facility unit can be installed in an unused area (parking lot) within an existing facility (hospital) and can be used as a branch of the medical facility. Branches of the medical facility can be treatment rooms or clinical trial rooms. The following describes an example of using the administration facility unit as a clinical trial room.
  • the administration facility unit is transported and set up in the hospital's parking lot by the aforementioned means of transportation. Medical personnel from the hospital can go to the administration facility unit to conduct clinical trials (such as administering test substances to subjects) or remotely manage and monitor subjects using equipment within the administration facility unit. During the trial, subjects can reside in the administration facility unit and receive further medical care and treatment as needed.
  • the administration facility unit does not have to be dedicated to one hospital. After the trial period has ended, or when no trials are planned, the administration facility unit can be moved to another hospital and used for purposes other than clinical trials (e.g., as a treatment room). One or more administration facility units can be transported and shared or temporarily rented by multiple hospitals. Thus, the administration facility unit can meet the demand for treatment procedures across a wide area, even if the demand varies from area to area.
  • the administration facility unit 101 is loaded onto a towing vehicle 102.
  • the administration facility unit 101 includes, within a radiation controlled area, a living room 200, a work room 400, a toilet room 300 (equipped with a flush toilet 209 and a shower 210), a storage room 600, a management room 500, and a duct space 800 ( Figure 2).
  • One of the partitions between the living room 200 and the work room 400 is a sliding door 202, and there is an unlocked door between the work room 400 and the toilet room 300. Therefore, people inside the administration facility unit 101 can freely move between the living room 200, the work room 400, and the toilet room 300, and can use the facilities in the three rooms.
  • door 101a which is the entrance and exit of the administration facility unit 101
  • door 600a between the work room 400 and the storage room 600, and door 600a between the storage room 600 and the management room 500 are locked with electronic locks. Therefore, people who cannot unlock the electronic locks (such as people who do not have an electronic entry pass) cannot enter the management room 500 and the storage room 600.
  • the residential room 200 is equipped with a bed 201 (sickbed), lighting 213, an outlet 214 (100V, 15A), on-call equipment 301, a surveillance camera 302, a pseudo window 303, an air supply and exhaust outlet 402, an exhaust intake 403, a radiation controlled area dosimeter 417, a desk, a shelf, a wireless LAN, storage, a refrigerator, a microwave, a television set, and an air conditioning sensor (temperature and humidity).
  • the living room 200 is a medical space that complies with the Medical Care Act, and is equipped with facilities that allow subjects to stay quietly and comfortably, and that allow medical personnel to monitor the progress of clinical trials.
  • a substance containing an alpha-ray emitting radionuclide which is a clinical trial drug, investigational drug, or approved medicine, is administered to the person to be administered the substance (hereinafter referred to as the subject or patient).
  • the subject or patient can receive the administration of the test substance while lying on a bed 201 in the living room 200.
  • the above-mentioned components in the living room 200 that are not numbered are mainly components that further improve the living comfort of the subject in the living room 200.
  • the lighting 213 is an optional lighting fixture.
  • the air supply outlet 402 sends clean air in a direction that does not directly hit the subject in the bed 201 in the living room 200.
  • the air supply outlet 402 is connected to the air supply damper (manifold: 504) of the air supply device 450 of the air conditioner 430 through a pipe arranged in the duct space 800 ( Figure 2).
  • the exhaust intake 403 exhausts the air in the living room 200.
  • the exhaust intake 403 is connected to the exhaust device 470 of the air conditioner 430 through a pipe arranged in the duct space 800 ( Figure 2).
  • the air conditioning will be described later.
  • the surveillance camera 302 takes pictures of the inside of the living room 200 (mainly the bed 201) and reports the condition of the subject to medical personnel through the management room 500.
  • the pseudo window 303 is provided on one of the inner walls covering the side or top of the dwelling room 200 inside the shielding wall that separates the inside and outside of the radiation controlled area.
  • the pseudo window 303 will be described later.
  • the work room 400 is equipped with an outlet 214, a contamination inspection room 420, an air supply/discharge port 402, an exhaust air intake 403, a draft chamber for handling unsealed radiation sources 404, a radiation controlled area dosimeter 417, a simple bed, and a cleaning facility 418.
  • the draft chamber for handling unsealed radiation sources 404 is a cabinet in which the unsealed radiation sources removed from the shielding are handled (for example, the radiation sources are diluted to the administration concentration, the diluted radiation sources are transferred to administration containers, and test substances are prepared).
  • the air supply/discharge port 402 feeds clean air into the work room 400.
  • the air supply/discharge port 402 is connected to an air supply damper (manifold: 504) of the air supply device 450 of the air conditioner 430 through a pipe arranged in the duct space 800 (FIG. 2).
  • the exhaust air intake 403 exhausts the air in the work room 400.
  • the exhaust intake 403 is connected to the exhaust unit 470 of the air conditioner 430 through ductwork arranged in the duct space 800 (FIG. 2).
  • the cot is a bed on which the subject can lie and receive the administration of the test substance.
  • the washing facility 418 is used for hand washing and washing for the subject and medical staff.
  • the contamination inspection room 420 is equipped with contamination inspection equipment (survey meter), a radiation control area boundary dosimeter, and a door.
  • contamination inspection room 420 is separated by a curtain (represented in Figure 1 by a line consisting of multiple V-shapes connected together).
  • the contamination inspection equipment is a small device that detects the dose on the body surface of a person exiting the administration facility unit 101.
  • the radiation control area boundary dosimeter is an instrument that measures the air dose near the door, and determines the effective dose at the radiation control area boundary, which will be described later.
  • the facility boundary dosimeter is an instrument that measures the amount of radiation in the air outside the administration facility unit 101 and determines the effective dose at the facility boundary, which will be described later.
  • People going up and down the staircase 555 and people opening and closing the door 101a are both photographed and recorded by the surveillance camera 302.
  • a sign indicating that the administration facility unit 101 is a radiation controlled area is attached to the door 101a.
  • a sign is also attached to the emergency exit (e.g., the entrance/exit 101b provided in the control room 500).
  • the staircase 555 does not have to be part of the administration facility unit 101, and can be a prefabricated staircase loaded onto the vehicle 102.
  • the storage room 600 includes a storage cabinet and a storage room dosimeter.
  • the storage cabinet stores unsealed radiation sources used in the unsealed radiation source handling draft 404 and waste that may have radioactive materials attached thereto.
  • the walls of the storage cabinet contain a material (such as lead) that shields radiation.
  • the door of the storage cabinet is locked.
  • the storage room dosimeter is an instrument that measures the air radiation dose in the storage room 600.
  • the management room 500 is equipped with an air supply/discharge port 402 and an exhaust air intake 403, as well as an air conditioner 430, a computer 552, and a power receiving device 553 as multiple types of facility equipment.
  • the air supply outlet 402 sends clean air into the management room 500.
  • the air supply outlet 402 is connected to the air supply damper (manifold: 504) of the air supply device 450 of the air conditioning unit 430 via piping arranged in the duct space 800 ( Figure 2).
  • the exhaust air intake 403 exhausts the air from within the management room 500.
  • the exhaust air intake 403 is connected to the exhaust device 470 of the air conditioning unit 430 via piping arranged in the duct space 800 ( Figure 2).
  • Air conditioning unit 430 is responsible for air conditioning each room in the radiation controlled area. More about air conditioning unit 430 will be described later.
  • the power receiving equipment 553 is equipment for receiving power from outside the administration facility unit 101.
  • the power receiving equipment 553 distributes the power supplied from outside to all of the outlets 214 via the EPS.
  • Computer 552 is electrically connected to the various electrically driven devices described above.
  • Computer 552 outputs electrical signals to drive the devices according to a preset program, and records the operation of the devices (air conditioning, dose rate, entry and exit records, CCTV data, etc.) represented by the electrical signals.
  • computer 552 controls the operation of the devices and monitors their operation.
  • Computer 552 transmits the recorded information to a display device or wireless communication unit.
  • the toilet room 300 is equipped with a flush toilet 209 and a shower 210.
  • the flush toilet 209 and the shower 210 receive water from a water supply tank 211. Wastewater from the flush toilet 209 and the shower 210 is sent to a radioactive wastewater storage tank 408 ( FIG. 2 ) through a radioactive wastewater outlet 410 (drain) provided under the floor of the toilet room 300.
  • a radioactive wastewater storage tank 408 FIG. 2
  • a radioactive wastewater outlet 410 drain
  • water may be supplied from outside, or water may be supplied from a water supply tank provided in the towing section of the vehicle 102.
  • the administration facility unit 101 is equipped with the facilities required for a radiation controlled area (mainly those in the 400s).
  • the administration facility unit 101 also has what is required for a hospital room or treatment room where hospitalization and medical procedures can be performed, as well as the functions necessary to improve the livability and quality of life of the subjects who reside there (mainly those in the 200 and 300s).
  • the administration facility unit 101 is equipped with a set of functions and equipment (mainly numbered in the 500 series) for medical personnel and related parties to carry out tasks related to the administration facility unit 101, within a space that is locked to restrict the entry and exit of an unspecified number of people.
  • the administration facility unit 101 is transported by the power of the vehicle 102 to the site (parking lot, etc.) of an existing facility (hospital) and set up there.
  • the administration facility unit 101 is secured to the ground by fixing devices (wheel chocks (via the vehicle 102), anchors or outriggers, etc.) as necessary, and used as an actual inpatient facility.
  • fixing devices wheel chocks (via the vehicle 102), anchors or outriggers, etc.) as necessary, and used as an actual inpatient facility.
  • the administration facility unit 101 must have all the necessary procedures for radiation management completed.
  • the administration facility unit 101 is equipped with at least one of a power generation facility, a power storage facility, and a facility for receiving power supply. To ensure the safety of the patient, the administration facility unit 101 may be equipped with an emergency exit (101b in FIG. 1) in a location other than the main entrance (the entrance with door 101a).
  • the administration facility unit 101 is mainly divided into four rooms (a living room 200, a toilet room 300, a work room 400, and an administration room 500).
  • the administration facility unit 101 is not limited to being divided into four rooms, as long as it is in a radiation controlled area and does not violate the provisions of the Medical Care Act.
  • multiple living rooms 200 are connected to one work room 400 so that they can communicate with each other.
  • the living room 200 may be equipped with multiple beds 201. Therefore, as long as the administration room 500 is independent of the living rooms 200 and the work room 400 by an electronic lock, the administration facility unit 101 may have any combination of sections.
  • the floor area inside the administration facility unit 101 is 15 to 40 m2 .
  • the administration facility unit 101 can be transported as a container or trailer house (e.g., having a floor area of 15 to 40 m2 ).
  • the weight of a conventional shield (concrete or lead) that can enclose and cover a space (e.g., a container or trailer house) having a floor area of 15 m2 or more is much more than 10 tons.
  • the administration facility unit 101 which requires only a thin and light shield (e.g., the wall surface of a container or trailer house), can be transported by a vehicle capable of traveling on public roads. It is preferable that the volume inside the administration facility unit 101 is 20 to 120 m3 from the viewpoint of livability.
  • the administration facility unit 101 is a (transportable) container or trailer house.
  • a trailer house type mobile controlled area in order to realize operation that utilizes its characteristics, i.e., its mobility and movability that allows it to pass through general roads and expressways at any time, the trailer house must be within the dimensions and weight (vehicle weight) specified by the Road Traffic Act.
  • the trailer house since the trailer house is required to have a structure that can sufficiently shield radiation as a controlled area, it must be designed to achieve both of the above two elements.
  • the Road Traffic Act specifies general restrictions on the size of the vehicle body, specifically, the total length is 12 m, the total width is 2.5 m, the total height is 3.8 m, and the total weight is 20,000 kg (20 t) or less, and these values can be considered as the maximum standards for a general vehicle body.
  • the specifications are permitted to be increased to a maximum of 18 m in overall length, 3.5 m in overall width, 4.1 m in overall height, and 36 t (36,000 kg) in total weight; however, in order for a vehicle with these specifications to be driven on public roads, notification to and permission from the relevant authorities is required, which hinders the goal of easy portability and mobility.
  • the controlled area is equivalent to a living space for the residents (subjects and medical staff), just like a regular room. Also, in order to efficiently and spaciously install the equipment required for the controlled area, it is desirable to design the room to be appropriately spacious.
  • the controlled area is designed by limiting the radioactive material used in the controlled area to an alpha ray source with low penetration as radiation energy. This makes it possible for even a simple shield to sufficiently attenuate radiation energy, which in turn makes it possible to reduce the amount of material used for shielding, significantly reducing both manufacturing costs and the weight of the vehicle.
  • the walls of the administration facility unit 101 include shielding.
  • the outer shell of the container or trailer house constituting the administration facility unit 101 is configured as a shielding wall including shielding, and separates the inside and outside of the administration facility unit 101, i.e., the inside and outside of the radiation controlled area. That is, the outer shell of the container or trailer house constituting the administration facility unit 101 includes a layer made of a relatively thin and lightweight shielding material as described below.
  • the shielding material may be one generally used for shielding in radiation controlled areas, such as lead, tungsten, iron, and concrete.
  • the thickness of the shielding material selected from the above materials is 0.03 mmPb or more, preferably 0.5 mmPb or more, more preferably 1 mmPb or more, in terms of shielding, and 5 cmPb or less, preferably 1 cmPb or less, more preferably 1 mmPb or less, in terms of weight.
  • the lead equivalent and its numerical value are in accordance with a prescribed regulation (for example, the regulation of "Notice of the Director-General of the Pharmaceutical and Medical Sciences Bureau of the Ministry of Health, Labor and Welfare, No. 188, addressed to prefectural governors").
  • the exhaust capacity that satisfies the air concentration (dose) in the radiation controlled area is 50 to 500 m 3 /hour, and the exhaust capacity that satisfies the exhaust concentration (dose) outside the radiation controlled area is 1 to 1000 m 3 /hour.
  • the effective dose limit at the boundary of a radiation controlled area within the scope of legal regulations is 1.3 mSv/3 months, and the effective dose limit at the boundary of a business establishment is 250 ⁇ Sv/3 months.
  • the materials of the outer shell can be, from the inside, 2mm of LONCLEARRUM (vinyl floor sheet), 0.3mm of lead sheet, 24mm of structural plywood, 9mm of structural plywood, and up to 15mm of galvalume steel sheet (registered trademark).
  • the administration facility unit 101 for administering Ac-225 is made of an outer shell shielded by 0.3 mm thick lead.
  • the exhaust capacity that satisfies the air limit (dose) in the radiation controlled area is 92 m 3 /hour
  • the exhaust capacity that satisfies the exhaust concentration limit (dose) outside the radiation controlled area is 231 m 3 /hour.
  • the effective dose at the boundary of the radiation controlled area is 51 ⁇ Sv/3 months
  • the effective dose at the boundary of the business establishment is 215 ⁇ Sv/3 months, which are below the legal standards.
  • the weight of the lead is 0.2 t
  • the total vehicle weight (the sum of the weight of the administration facility unit 101 and the weight of the vehicle 102) is 4.5 t, so it can be driven on public roads.
  • the administration facility unit 101 when the administration facility unit 101 is to administer Ra-223, it is made of an outer shell with a lead shielding of 5 mm thickness.
  • the exhaust capacity that satisfies the air limit (dose) in the radiation controlled area is 214 m 3 /hour, and the exhaust capacity that satisfies the exhaust concentration limit (dose) outside the radiation controlled area is 693 m 3 /hour.
  • the effective dose at the boundary of the radiation controlled area is 16 ⁇ Sv / 3 months, and the effective dose at the boundary of the business establishment is 64 ⁇ Sv / 3 months, which are below the legal standard.
  • the size of the administration facility unit is 3.4 m wide, 12 m long, and 2.8 m high, the weight of the lead is 9.5 t, so it can be driven on public roads.
  • the dosing facility unit 101 for dosing Bi-213 is made of an outer shell shielded by 0.25 cm thick lead.
  • the exhaust capacity that satisfies the air limit (dose) in the radiation controlled area is 222 m 3 /hour
  • the exhaust capacity that satisfies the exhaust concentration limit (dose) outside the radiation controlled area is 463 m 3 /hour.
  • the effective dose at the boundary of the radiation controlled area is 47 ⁇ Sv/3 months
  • the effective dose at the boundary of the business establishment is 199 ⁇ Sv/3 months, which are below the legal standards.
  • the administration facility unit 101 keeps the indoor air environment of each room (living room 200, toilet room 300, work room 400, and control room 500) in the radiation controlled area at a comfortable and appropriate condition by using an air conditioner 430 provided in the control room 500.
  • the air conditioner 430 is a mechanism for ventilation and air pressure adjustment, and is different from a mechanism for room temperature adjustment (so-called air conditioning equipment).
  • FIG 3 is a schematic diagram of the installation of the air conditioning system 430 in the administration facility unit 101.
  • the air conditioning system 430 includes an air supply system 450 that supplies air to each room, an exhaust system 470 that exhausts air from each room, and a bypass mechanism 490.
  • the air supply system 450 and the exhaust system 470 are installed in the management room 500, and the piping connected to each of them is arranged in the duct space 800 ( Figure 2).
  • the bypass mechanism 490 is also installed in the management room 500.
  • the air supply system 450 includes an outside air intake 501, an intake filter 502, an intake blower 503, an intake damper 504 (manifold), and an air supply pipe 455.
  • the air supply pipe 455 is connected from the intake damper 504 to an intake air outlet 402 provided in each room 700n (the dwelling room 200, the toilet room 300, the work room 400, and the management room 500).
  • Each air supply pipe 455 is equipped with an intake air volume adjustment valve 456.
  • the exhaust system 470 includes exhaust pipes 475 connected to exhaust intakes 403 provided in each chamber, an exhaust damper 471, an exhaust filter 472, an exhaust blower 473, and an exhaust port 474.
  • Each exhaust pipe 475 is equipped with an exhaust volume control valve 476.
  • the bypass mechanism 490 includes a direct connection pipe 491 that directly connects the air supply damper 504 and the exhaust damper 471, and a flow rate control valve 492 that is disposed in the direct connection pipe 491 and adjusts the flow rate of air flowing through the direct connection pipe 491.
  • the bypass mechanism 490 (direct connection pipe 491 and flow rate control valve 492) is installed in the management room 500.
  • the inside of the administration facility unit 101 (radiation controlled area) is kept at negative pressure to prevent radioactive materials from dissipating into the general public environment 103. That is, outside air is taken in from the outside air intake 501 using an intake blower 503, purified by a filter 502, and directed to an air supply damper (manifold; 504). From the air supply damper 504, an air supply pipe 455 connected to an air supply outlet 402 installed in each room 700n extends for the number of rooms (n) of rooms 700, and an air supply volume control valve 456 is provided on the air supply pipe 455. The volume of air supplied to each room 700 can be adjusted by the air supply volume control valve 456.
  • the supply air discharged into each room 700 is taken in through the exhaust intake 403 also provided in each room 700, passes through the exhaust volume control valve 476, exhaust damper 471, and exhaust filter 472, and is sucked in by the exhaust blower 473.
  • Volatile radioactive materials such as gaseous or fine particles may be generated in each room 700n in the radiation controlled area due to some work, but the volatile radioactive materials are captured by the exhaust filter 472. Therefore, so-called radioactive contaminants are not released downstream of the exhaust blower 473, i.e., from the exhaust port 474, into the general public environment 103.
  • both blowers 503, 473 which are the power sources for air intake and exhaust, are operated with their exhaust volume slightly greater than their supply volume.
  • the suction volume of exhaust blower 473 is set slightly greater than the suction volume (i.e., the amount discharged downstream) of intake blower 503, and specifically, the pressure inside the radiation controlled area is generally maintained at a pressure lower than atmospheric pressure.
  • An exhaust volume control valve 476 can be used to maintain the supply and exhaust balance (differential pressure control) of each room.
  • the administration facility unit 101 is small compared to the very common radiation controlled area installed in a strong building. Therefore, it is not easy to maintain the total exhaust volume and control the supply and exhaust volume to each room using the conventional air conditioning equipment in the administration facility unit 101, which may lead to a deterioration of the living environment of patients who are in a very weakened state.
  • the administration facility unit 101 is provided with a direct connection pipe 491 (piping) that connects (directly connects) the intake damper 504 and the exhaust damper 471 and flows a part of the air sent from the intake device directly to the exhaust device without passing through each room, and a flow control valve 492 that can arbitrarily adjust the air flow in the direct connection pipe 491 between 0 and 100%, and short-circuits (bypasses) between the intake device 450 and the exhaust device 470.
  • the bypass direct connection pipe 491 and the flow control valve 492 that performs the throttling function are used. This allows for easy supply and exhaust of air to each room 700 while maintaining the total exhaust volume required at the exhaust port 474 in the radiation controlled area.
  • the flow rate control valve 492 adjusts the volume of air flowing through the direct connection pipe 491 to any ratio between 0 and 100%.
  • the power source for supplying and exhausting air can be a small device with a simple 0/100% (on/off) operation specification that does not use inverter control.
  • This operating capacity can ensure the total exhaust volume required for a radiation controlled area while also saving space required for the installation of the air conditioner 430.
  • radioactive materials in amounts greater than a certain level are required by law to be used in radiation controlled areas, if there is radioactive material that one wishes to use, one must specify the type and maximum amount to be used, as well as the desired radiation controlled area, and obtain permission for use from a designated institution (e.g., the Nuclear Regulation Authority).
  • a designated institution e.g., the Nuclear Regulation Authority.
  • the flow control valve 492 is operated.
  • the amount of intake and exhaust required for the radiation controlled area such as when there is a decrease in use
  • ratio ratio
  • the permission is granted for the entire radiation controlled area (i.e., administration facility unit 101) and not for each room 700n.
  • the administration facility unit 101 controls the air conditioning within the radiation controlled area using an air conditioning unit 430 equipped with a direct connection pipe 491 that directly connects the air supply damper 504 and the exhaust damper 471, and a bypass mechanism 490 equipped with a flow control valve 492.
  • This configuration makes it easy to supply and exhaust air to and from each room 700 while maintaining the total exhaust volume required at the exhaust port 474 in the radiation controlled area.
  • this configuration can contribute to maintaining and improving the indoor environment of room 700n (residential room 200 in Figures 1 and 2).
  • the air conditioning device can be installed in the work room 400 as ceiling-embedded air conditioning device 900, and the room temperature of each room is adjusted through piping extending to each room.
  • this configuration can avoid the risk of excessively depressurizing the radiation controlled area, and can provide a low-stress living environment in various aspects, without causing inconveniences such as excessive effort required to open and close doors separating rooms due to pressure differences that would occur from excessive depressurization.
  • This configuration also allows for the installation of a small exhaust fan with simple functions, ensuring the total exhaust air volume and creating a comfortable indoor environment.
  • the ability to select an exhaust fan with simple functions reduces installation costs and also eliminates operational problems caused by breakdowns in electronic devices.
  • bypass mechanism 490 described above can also be applied to air conditioning equipment in radiation controlled areas installed in existing general buildings.
  • FIG. 6 is a cross-sectional view showing a portion of the administration facility unit 101.
  • FIG. 6 also shows a portion of the vehicle 102, with the administration facility unit 101 mounted on a chassis 2202 on which the wheels 2203 of the vehicle 102 are provided.
  • the administration facility unit 101 is arranged such that the floor 2201 of the management room 500 is located at a higher position than the bottom 444f of the outer shell 444, which includes a shielding wall (shielding wall separating the inside and outside of the radiation controlled area) that separates the inside and outside of the administration facility unit 101, and there is a gap between the floor 2201 of the management room 500 and the bottom 444f.
  • the gap distance can be 10 to 25 cm.
  • the radioactive wastewater storage tank 408 is stored in the space between the floor 2201 and the bottom 444f. In other words, the radioactive wastewater storage tank 408 is installed within the radiation controlled area (inside the outer shell 444).
  • the radioactive wastewater storage tank 408 is fixed in position by suitable fixtures or devices so that it does not shift or swing excessively while the administration facility unit 101 is loaded onto a chassis 2202 having wheels 2203 of a vehicle 102 and transported across the ground surface 2204.
  • the bottom 444f of the outer shell 444 constituting the administration facility unit 101 is substantially horizontal.
  • the height of the floors 2201 arranged throughout these rooms is not uniform, and as shown in FIG. 6, there is a step structure 2205, and the area on one side of the step structure 2205 is at a higher position than the area on the other side.
  • the area on one side includes the floor of the management room 500 and the floor of the toilet room 300.
  • the area on the other side includes the floor of the work room 400 and the floor of the living room 200.
  • the height of the step structure 2205 can be, but is not limited to, 10 to 20 cm in the vertical length.
  • the step structure 2205 does not need to coincide with the boundary between the management room 500 and the work room 400, nor does it need to coincide with the boundary between the toilet room 300 and the work room 400. If the radioactive wastewater storage tank 408 is located in only a portion of the floor under the management room 500 as shown in FIG. 5, the step structure 2205 may be provided between that portion of the floor of the management room 500 and the remaining area.
  • a spacer for maintaining the space can be installed between the floor of the area (one side area) that is at a higher position with the step structure 2205 as a boundary and the bottom 444f of the outer shell 444.
  • the radioactive wastewater discharge outlet 410 under the floor of the toilet room 300 is located higher than the radioactive wastewater storage tank 408.
  • the drainage pipe 481 connecting the radioactive wastewater discharge outlet 410 and the radioactive wastewater storage tank 408 has an inclined pipe axis with the pipe end on the radioactive wastewater storage tank 408 side facing vertically downward within the outer shell 444. Due to the inclination, the drainage liquid is naturally transferred to the radioactive wastewater storage tank 408 through the drainage pipe 481 without using power such as a pump. Note that when the radioactive wastewater discharge outlet 410 is provided directly above the radioactive wastewater storage tank 408, the drainage pipe 481 arranged therebetween may be configured to flow the drainage liquid vertically downward without being inclined.
  • the capacity (dimensions) of the radioactive wastewater storage tank 408 need only fit within the space, and there are no particular regulations.
  • An opening with a lid attached is provided on the top surface of the radioactive wastewater storage tank 408, and the stored radioactive wastewater can be drained outside the tank through this opening using a pump.
  • a water level sensor 2403 including a device for detecting and reporting the time to release water is installed in the radioactive wastewater storage tank 408.
  • a water level sensor 2403 including a device for detecting and reporting the time to release water is installed in the radioactive wastewater storage tank 408.
  • the wastewater from the washing equipment 418 (FIG. 2) installed in the work room 400 can be stored in a small, portable tank 419 (FIG. 2) installed below the radioactive wastewater outlet of the washing equipment 418.
  • the small tank can be a plastic tank located in the work room 400, for example, below the hand washing basin of the washing equipment.
  • the wastewater from the washing equipment 418 can also be stored in the radioactive wastewater storage tank 408 through the radioactive wastewater outlet of the washing equipment 418.
  • the radioactive wastewater from the washing equipment 418 is stored in the radioactive wastewater storage tank 408, only a part of the entire floor area of the work room 400, including the washing equipment 418, is included in a position higher than the step structure 2205 (one side area), similar to the floor of the toilet room 300.
  • the part of the area can include the installation area of a drain pipe arranged between the area where the radioactive wastewater outlet of the washing equipment 418 is dropped to the floor and the radioactive wastewater storage tank 408.
  • a so-called pump-and-stand type water supply method can be adopted by installing a water supply tank 211 that is independent of general city water and allows for continuous water supply. Considering that the water supply stored in the water supply tank 211 will eventually be transferred to the radioactive wastewater storage tank 408, in order to fundamentally avoid the problem of wastewater overflowing, it is preferable to set the volume of the water supply tank 211 and the actual water supply storage amount smaller than those of the radioactive wastewater storage tank 408, and to design and operate the tank so that the total prepared water supply amount is always less than the volume of the radioactive wastewater storage tank 408.
  • the administration facility unit 101 is configured such that a step structure 2205 is provided on the floor 2201, and one area on one side of the step structure 2205 is located at a higher position than the other area.
  • a space is formed between the one area located at a higher position on the floor 2201 and the bottom 444f (shielding wall) of the outer shell 444 (a structure formed by a shielding wall that separates the inside and outside of a radiation controlled area) that constitutes the administration facility unit 101, and the radioactive wastewater storage tank 408 is accommodated in this space. This allows the radioactive wastewater storage tank 408 to be placed inside the outer shell 444, i.e., inside the radiation controlled area.
  • the radioactive wastewater discharge outlet 410 located under the floor of the toilet room 300 of the work room 400 included in one side area configured at a high position on the floor 2201 is located at a higher position than the radioactive wastewater storage tank 408. Therefore, the radioactive wastewater can be guided to the radioactive wastewater storage tank 408 by the drainage pipe 481 connecting the radioactive wastewater discharge outlet and the radioactive wastewater storage tank 408.
  • the floor 2201 of the dwelling room 200 is included in the other side area configured at a lower position as described above. This allows the ceiling height of the dwelling room 200 to be ensured to be higher than the ceiling height of the room included in the one side area configured at a higher position. This allows a comfortable living environment to be provided to the subject residing in the dwelling room 200 without causing a feeling of oppression or claustrophobia.
  • wastewater storage tanks are often prepared on the lowest floor of the building, such as the basement. Specifically, wastewater from upper floors is transferred and stored in the tank on the lowest floor by gravity, and then released (released) into the general public sewer after waiting for physical attenuation or dilution to confirm that the radioactivity concentration is below a specified level.
  • the wastewater which may contain radioactive materials
  • radiation protection measures require measures to prevent people from easily approaching the tank or to provide appropriate shielding around the tank.
  • access to the lowest floor (basement) of a general building is often naturally limited, and the storage tank is surrounded by a concrete foundation, which is also naturally surrounded by a shielding structure, so it does not cause any major problems in terms of radiation management.
  • the controlled area set up in a mobile administration facility unit 101 is always above ground level. Therefore, it is not possible to adopt a natural shielding structure such as burying the wastewater storage tank underground.
  • the design of the wastewater storage tank set up in the mobile controlled area requires that it be located at the lowest level of the entire vehicle body, housed within a shielding structure as a radiation protection measure, and has a robust structure that can withstand physical shocks caused by traffic accidents, etc.
  • a space that meets the above requirements is realized between the underfloor of the room in the controlled area and the bottom body of the shielding wall (outer shell) that separates the inside and outside of the controlled area, and a radioactive wastewater storage tank 408 is housed in this space.
  • the bottom 444f of the outer shell 444 is substantially horizontal.
  • the present invention is not limited to this, and the bottom 444f may be structured to slightly protrude toward the ground surface in the area where the radioactive wastewater storage tank 408 is placed.
  • the bottom 444f of the outer shell 444 has a wastewater storage tank placement surface 444f1 and a surface 444f2 in the other area.
  • the placement surface 444f1 is located closer to the ground surface than the surface 444f2. That is, the bottom 444f of the outer shell 444 is structured to be recessed vertically downward on the placement surface 444f1.
  • the shielding material (e.g., a lead sheet) may be uniformly installed on the mounting surface 444f1 and the surface 444f2, but if the entire surface of the radioactive wastewater storage tank 408 itself is covered with a shielding material and the shielding material of the bottom 444f and the shielding material of the radioactive wastewater storage tank 408 are connected without any gaps, the shielding material (e.g., a lead sheet) does not need to be placed on the part that constitutes the mounting surface 444f1.
  • a 4.5 mm thick steel plate can be used as the shielding material.
  • a step structure 2205 is provided on the floor 2201, and the floor 2201 (one side area) of the management room 500 has a raised floor structure.
  • the area facing the floor 2201 of the management room 500, which has a raised floor structure is the placement surface 444f1, and as a result, the distance between the placement surface 444f1 and the floor 2201 of the management room 500 is longer than the distance between the bottom 444f in FIG. 6 and the floor 2201 of the management room 500.
  • the embodiment of FIG. 7 can secure a larger space for installing the radioactive wastewater storage tank 408 than the embodiment of FIG. 6. This makes it possible to install a large radioactive wastewater storage tank 408.
  • the radiation controlled area is surrounded by shielding walls on all six sides (top, bottom, front, back, left and right) to prevent and attenuate radiation leakage, and windows cannot be installed because they have almost no shielding effect and destroy the air conditioning balance.
  • a space without windows light cannot be let in and the outside scenery cannot be seen.
  • the room becomes a so-called closed space, which increases the risk of inducing claustrophobia, a feeling of oppression, a feeling of blockage, etc. for people living inside.
  • the living room 200 in the radiation controlled area is equipped with entertainment equipment such as a television in addition to lighting equipment, and is also equipped with pseudo windows to create a connection with nature and the outside world.
  • FIG. 8 shows the interior of the dwelling room 200 with the side where the sliding door 202 separating the dwelling room 200 and the work room 400 is provided as the front side, and the side surface 205 opposite the side surface where the sliding door 202 is provided as the back side.
  • FIG. 9 is a view of the interior of the dwelling room 200 from the side where the sliding door 202 shown in FIG. 8 is provided in a radiation controlled area, but for ease of explanation, the side surface of the dwelling room 200 where the sliding door 202 is provided and the inner wall covering it are omitted.
  • FIG. 9 also shows the bed 201 also arranged in the dwelling room 200 in order to specify the position of the pseudo window 303 in the dwelling room 200. Note that in FIG.
  • FIG. 10 is a view of the interior of the dwelling room 200 from the side surface opposite the side surface where the sliding door 202 shown in FIG. 8 is provided. For ease of explanation, the side surface located in the foreground is not shown in Figure 10.
  • the dwelling room 200 is partitioned by covering the four sides of the dwelling room 200 facing the front, rear, left and right directions and the top surface with inner walls inside the outer shell 444 (shielding wall) shown in FIG. 6, which includes a shield separating the inside and outside of the radiation controlled area.
  • the floor 2201 can also be configured as an inner wall.
  • the dwelling room 200 is partitioned inside the outer shell 444 (FIG.
  • each of the inner walls 222a to 222d and the floor 2201 is located within the radiation controlled area.
  • the inner wall on the side where the sliding door 202 is provided is the first inner wall 222a.
  • the inner wall facing the first inner wall 222a is the second inner wall 222b.
  • the pair of opposing inner walls separated by the first inner wall 222a and the second inner wall 222b are the third inner wall 222c and the fourth inner wall 222d.
  • Each of the inner walls 222a-222d does not need to be a shield and can be made of typical room interior wall materials.
  • a Reatec sheet a vinyl chloride wall sheet
  • a 0.3 mm thick lead sheet a 12.5 mm thick gypsum board
  • the thickness of each of the inner walls 222a-222d can be selected appropriately, and reinforcing materials can be included as necessary.
  • the position of the living room 200 when viewed from the entire administration facility unit 101 is the side closest to the vehicle 102 among the rooms of the administration facility unit 101.
  • the living room 200 when the vehicle 102 is moving forward, is the front side in the direction of travel (forward side in the towing direction) among the rooms of the administration facility unit 101.
  • the second inner wall 222b is the inner wall located on the front side in the direction of travel (forward side in the towing direction), and the third inner wall 222c and the fourth inner wall 222d are provided along the wall of the outer shell 444 that constitutes the 12 m length of the administration facility unit 101.
  • the bed 201 is a single-person bed, and is arranged so that the long side of the bed 201 is aligned with the third inner wall 222c, and the head of the subject lying on the bed 201 faces the first inner wall 222a on which the sliding door 202 is provided, and the legs of the subject face the second inner wall 222b on which the pseudo window 303 is provided.
  • the head of the subject lying on the bed 201 may also face the second inner wall 222b on which the pseudo window 303 is provided, and the legs of the subject face the first inner wall 222a on which the sliding door 202 is provided.
  • the bed 201 can be fixed to the floor 2201, etc., as necessary.
  • the dwelling room 200 is equipped with handrails 305, light switches 306, a desk, wireless LAN, and air conditioning sensors (temperature and humidity) as shown in FIG. 8.
  • the outlet 214 (100V, 15A) and on-call equipment 301 can be placed in the small item storage area 2225 attached to the second inner wall 222b.
  • the pseudo window 303 is installed in the second inner wall 222b.
  • the side covered by the second inner wall 222b corresponds to the side of the four sides (front, back, left, right, and right) of the outer shell 444 of the administration facility unit 101 on which the piping of the air supply and exhaust system, various wiring, and other equipment are not installed.
  • the pseudo window 303 is installed at a height above the floor 2201 higher than the position of the subject lying on the bed 201.
  • FIG. 11 is a cross-sectional view taken along the line A-A' in FIG. 9, and FIG. 12 is a cross-sectional view taken along the line B-B' in FIG. 9.
  • the pseudo window 303 is installed in the gap between the second inner wall 222b and the outer shell 444, and is configured to emit light into the dwelling room 200 through an opening 222b1 provided in a part of the second inner wall 222b.
  • a panel 222b2 made of a light-transmitting material is fitted into the opening 222b1 provided in the second inner wall 222b, and for example, an acrylic or glass panel may be used.
  • the panel 222b2 is surrounded by a frame 222b3, which is reminiscent of a window frame when viewed from the inside of the dwelling room 200.
  • the pseudo window 303 has a built-in lighting device. As shown in Figs. 11 and 12, the pseudo window 303 as a lighting device has a light source 3031 at a position corresponding to the back surface of the frame body 222b3. The light emitted from the light source 3031 is diffusely reflected by the panel 222b2 made of a translucent material and the back surface 3032 of the pseudo window 303 (lighting device), and is emitted from the panel 222b2 toward the inside of the dwelling room 200. The light emitted from the light source 3031 can have a color tone similar to that of external light (sunlight).
  • the pseudo window 303 when the pseudo window 303 is viewed from the inside of the dwelling room 200, the viewer (mainly the subject) feels as if they are looking at a window that lets in external light, and this reduces the sense of claustrophobia that may occur to the subject residing in the dwelling room 200, making it possible to provide a comfortable indoor treatment environment.
  • the pseudo window 303 as a lighting device has a dimming function and can increase or decrease the luminosity according to the time of day, and can simulate natural lighting similar to that of sunlight. This is expected to help the subject sleeping in the living room 200 to wake up naturally.
  • the subject's physical condition can be measured over time via a sensor that measures the subject's physical condition (heart rate, blood pressure, or other vital signs), and the pseudo window 303 can change the color tone in the living room 200 based on this information (measurement results). This can also help the subject's health to calm down. For example, if the heart rate is increasing, the pseudo window 303 can emit light that changes the color tone in the living room 200 to a cooler color, thereby suppressing the subject's excessive elation.
  • the pseudo window 303 is not limited to a lighting device, and may be realized by incorporating a display device.
  • a well-known display device is adopted, and the display surface of the display device is superimposed on a panel 222b2 fitted into an opening 222b1 provided in the second inner wall 222b.
  • the display surface of the display device may be formed by the panel 222b2.
  • the pseudo window 303 which is a display device, can display a specific still image or moving image. It is possible to display an image that can give the subject a sensation similar to that of a real window, i.e., a window through which the outside world can be seen.
  • the pseudo window 303 which is a display device, can be used as a window through which the subject can check the outside world by projecting images (video) obtained from a camera installed on the outer wall of the controlled area (for example, the surveillance camera 302 installed on the outer wall of the workroom 400 in FIG. 1). Obtaining information on visitors and other outside information in real time helps reduce the subject's sense of isolation.
  • the pseudo window 303 which is a display device, can be used as an information medium for conversation with any other party, similar to so-called video conferencing.
  • it can be used for two-way conversation or confirmation with the outpatient department in a hospital, or for contact with close relatives or related parties, such as when visiting a patient. It can be used as a general digital user interface.
  • the display device, the pseudo window 303 can also make it possible to refer to items accessible to the subject on the electronic medical record. This allows the display device to project schedules and other information related to the treatment plan, such as the time elapsed until treatment, the time until discharge, and the scheduled date for the next appointment, allowing the subject and medical personnel to share the progress of the treatment, and it can also be used as a digital tool for doctors to explain things to patients and nurses to explain future treatment plans.
  • the display device, the pseudo window 303 can also call up and display various examination images (CT, PET images, etc.) from a specified storage device.
  • the pseudo window 303 itself is a wall-mounted fixture. This significantly reduces the workload involved in fixing the window when it is moved.
  • the position of the pseudo window 303 in the entire administration facility unit 101 and the positional relationship between the pseudo window 303 and the bed 201 are shown in Example 1 of Figure 13.
  • the entire administration facility unit 101 which is a trailer house type, has a rectangular planar shape as shown in Figure 1.
  • the pseudo window 303 is located on the inner wall of one of a pair of side surfaces along the short direction.
  • the bed 201 is located along the inner wall of one of a pair of side surfaces along the long direction.
  • Example 2 of FIG. 13 even when a living room 200 is partitioned on one of the pair of short sides of a rectangular administration facility unit 101 in plan, and the planar shape of the living room 200 is square (the floor shape is square), the position of the pseudo window 303 and the position of the bed 201 are the same as in Example 1 of FIG. 13. That is, the pseudo window 303 is arranged on one of the four sides of the square living room in plan that is one of the pair of short sides of the rectangular administration facility unit 101 in plan. In addition, the bed 201 is arranged along one of the four sides of the square living room in plan that is one of the pair of long sides of the rectangular administration facility unit 101 in plan.
  • the pseudo window 303 is provided on the second inner wall 222b of the living room 200, but instead of this, or in addition, the pseudo window 303 may be installed on the other inner walls 222a, 222c, and 222d.
  • a pseudo window 303 may be provided in the fifth inner wall 222e that covers the top surface of the living room 200.
  • This embodiment can also be installed in conjunction with the second inner wall 222b described above or the inner walls 222a, 222c, and 222d that cover the other left, right, front, and rear sides of the living room 200.
  • the pseudo window 303 provided in the fifth inner wall 222e that covers the top surface is expected to be used as a substitute for a skylight, and can be realized as a lighting device that changes the color tone of the light source to match the color tone according to real time, and can also be realized as a display device that displays an image of the scenery that would be seen through a skylight (a starry sky, a sunset sky, or other sky scenery).
  • pseudo window 303 is installed in approximately the center of the second inner wall 222b, but the installation position is not limited to the center.
  • the number of pseudo windows may be two or more.
  • An image may be displayed according to the installation position. In other words, if it is installed above the second inner wall 222b, it can have the same specifications as the skylight described above.
  • the pseudo window 303 may also be able to be switched between any of the above-mentioned examples in an appropriate combination.
  • the pseudo window may be basically illuminated by the light of the light source 3031, and may be temporarily switched to an image of the treatment plan only when an explanation is given to a doctor or the like.
  • the improvement of the subject's living space by providing the pseudo window 303 in the living space 200 is very meaningful.
  • patients are forced to recuperate in a controlled area for a certain period of time so that the general public is not exposed to radiation generated by the radiopharmaceutical administered to the body.
  • the controlled area for such recuperation is called a radiation therapy room, etc., and is surrounded by a shielding structure for radiation protection.
  • the space equivalent to the patient's living area is covered with shielding on all six sides, top, bottom, front, back, left and right, making it difficult to install windows that would normally be found in a non-controlled area such as a general hospital room, and it is difficult to provide ventilation, let alone light.
  • a non-controlled area such as a general hospital room
  • QOL quality of life
  • the administration facility unit of this embodiment is capable of conducting clinical trials, trials and treatments using substances containing beta-ray emitting radionuclides.
  • the administration facility unit of this embodiment is capable of conducting clinical trials, trials and treatments using substances containing beta-ray emitting radionuclides.
  • other possible substances include Y-90, Lu-177, Sc-47, Sm-153 (yttrium, lutetium, scandium, samarium) and Cu-67 (copper).
  • a transportable radionuclide-containing material administration facility having a radiation-controlled area including living quarters, A shielding wall separating the inside and outside of the radiation controlled area; An inner wall covering a side surface or a top surface of the living room on the inside of the shielding wall; A pseudo window provided on the inner wall, the pseudo window having a built-in lighting device or display device. Radionuclide-containing material administration facility.
  • the living room is provided with a bed for use by a person to be administered a radionuclide-containing substance
  • the pseudo window has a dimming function and increases or decreases the light intensity depending on the time of day.
  • the artificial window has a dimming function and changes the color tone in the living room using the measurement results of a sensor that measures the physical condition of a person who is to be administered a radioactive nuclide-containing substance and lives in the living room.
  • a facility for administering radioactive nuclide-containing materials according to [1] or [2].
  • the sensor measures the heart rate of the administration subject
  • the pseudo window emits light that changes the color tone of the living space to a cooler color when the heart rate of the administration subject is increasing based on the measurement result of the sensor.
  • a facility for administering radioactive nuclide-containing materials according to [3].
  • the pseudo window includes a light source between a front panel arranged on the light exit side and a rear panel arranged opposite the front panel,
  • the pseudo window is provided by arranging the surface panel in an opening for installing the pseudo window provided in the inner wall, and arranging a component on the rear panel side of the surface panel in a gap between the inner wall and the shielding wall adjacent to the inner wall.
  • a radionuclide-containing substance administration facility according to any one of [1] to [4].
  • the pseudo window is the display device, and displays a specific still image or a moving image.
  • a radionuclide-containing substance administration facility according to any one of [1] to [5].
  • the exterior wall of the radionuclide-containing substance administration facility is equipped with a camera for photographing the outside world,
  • the pseudo window is the display device and instantly displays the image captured by the camera.
  • a radionuclide-containing substance administration facility according to any one of [1] to [6].
  • the pseudo window is the display device and also an information medium for a person to be administered a radioactive nuclide-containing substance living in the living room to make a call with any other person.
  • a radionuclide-containing substance administration facility according to any one of [1] to [7].
  • the radionuclide-containing substance administration facility unit is movable by a towing vehicle;
  • the pseudo window is provided in the inner wall of the radioactive nuclide-containing substance administration facility unit, the inner wall being arranged on the inside of the shielding wall facing forward in the towing direction by the vehicle.
  • a facility for administering radioactive nuclide-containing materials according to [10].
  • the present invention can be used in treatment facilities that develop therapeutic drugs containing radionuclides, conduct approval tests for the developed therapeutic drugs, and provide treatment using approved therapeutic drugs.
  • 101 Administration facility unit (radionuclide-containing substance administration facility unit), 101b: entrance/exit, 102: vehicle, 200: living room, 201: bed, 205: side, 209: flush toilet, 210: shower, 211: water tank, 213: lighting, 214: electrical outlet, 222a: first inner wall, 222b: second inner wall, 222b1: opening (opening for installing artificial window), 222b2: panel (surface panel), 222b3: frame, 222c: third inner wall, 222d: fourth inner wall, 222e: fifth inner wall, 300: toilet room, 301: on-call equipment, 302: surveillance camera (camera), 303: dummy window, 306: lighting switch, 400: work room, 402: air supply/discharge port, 430: air conditioning device (facility equipment), 403: exhaust intake port, 408: radioactive wastewater storage tank, 410: radioactive Drainage outlet, 420: contamination inspection chamber, 444: outer shell, 444f: bottom,

Landscapes

  • Engineering & Computer Science (AREA)
  • Architecture (AREA)
  • Physics & Mathematics (AREA)
  • Structural Engineering (AREA)
  • Civil Engineering (AREA)
  • General Engineering & Computer Science (AREA)
  • Electromagnetism (AREA)
  • High Energy & Nuclear Physics (AREA)
  • General Physics & Mathematics (AREA)
  • Theoretical Computer Science (AREA)
  • Health & Medical Sciences (AREA)
  • Public Health (AREA)
  • Accommodation For Nursing Or Treatment Tables (AREA)
  • Nuclear Medicine (AREA)
PCT/JP2023/039056 2022-10-31 2023-10-30 放射性核種含有物質投与施設 Ceased WO2024095952A1 (ja)

Priority Applications (2)

Application Number Priority Date Filing Date Title
JP2024554496A JPWO2024095952A1 (enExample) 2022-10-31 2023-10-30
AU2023373589A AU2023373589A1 (en) 2022-10-31 2023-10-30 Radionuclide-containing substance administration facility

Applications Claiming Priority (2)

Application Number Priority Date Filing Date Title
JP2022-175076 2022-10-31
JP2022175076 2022-10-31

Publications (1)

Publication Number Publication Date
WO2024095952A1 true WO2024095952A1 (ja) 2024-05-10

Family

ID=90930559

Family Applications (1)

Application Number Title Priority Date Filing Date
PCT/JP2023/039056 Ceased WO2024095952A1 (ja) 2022-10-31 2023-10-30 放射性核種含有物質投与施設

Country Status (3)

Country Link
JP (1) JPWO2024095952A1 (enExample)
AU (1) AU2023373589A1 (enExample)
WO (1) WO2024095952A1 (enExample)

Citations (3)

* Cited by examiner, † Cited by third party
Publication number Priority date Publication date Assignee Title
JP2013143614A (ja) * 2012-01-10 2013-07-22 Shigeru Tominaga 疑似窓
JP2017210733A (ja) * 2016-05-23 2017-11-30 鹿島建設株式会社 パネル装置
JP2021130925A (ja) * 2020-02-18 2021-09-09 国立研究開発法人量子科学技術研究開発機構 投与施設ユニット

Patent Citations (3)

* Cited by examiner, † Cited by third party
Publication number Priority date Publication date Assignee Title
JP2013143614A (ja) * 2012-01-10 2013-07-22 Shigeru Tominaga 疑似窓
JP2017210733A (ja) * 2016-05-23 2017-11-30 鹿島建設株式会社 パネル装置
JP2021130925A (ja) * 2020-02-18 2021-09-09 国立研究開発法人量子科学技術研究開発機構 投与施設ユニット

Also Published As

Publication number Publication date
AU2023373589A1 (en) 2025-06-12
JPWO2024095952A1 (enExample) 2024-05-10

Similar Documents

Publication Publication Date Title
JP7689396B2 (ja) 投与施設ユニット
CN106456428A (zh) 流动手术中心中的用于组合的手术服务和固定成像服务的混合手术室
WO2024095952A1 (ja) 放射性核種含有物質投与施設
WO2024095951A1 (ja) 放射性核種含有物質投与施設ユニット
WO2024095950A1 (ja) 放射性核種含有物質投与施設の空調装置、および該空調装置を備えた放射性核種含有物質投与施設ユニット
JPWO2024095952A5 (enExample)
JPWO2024095950A5 (enExample)
JPWO2024095951A5 (enExample)
JP2006275610A (ja) 放射線遮蔽パネル装置
Hassanien et al. Hospital redesign based on international standards: literature review
Balakina et al. Features of the organization of space-planning solutions for nuclear medicine facilities
Mayani et al. Evaluation on requirements of nuclear medicine facility building
JP2004108996A (ja) Pet施設
CN109415909A (zh) 流动手术中心内用于联合手术和固定式成像服务的复合手术室
Makhniuk Hygienic issues of the use of high-technology equipment in medical stomatologic institutions, built into residential buildings
CN113187269A (zh) 一种pet检查中心平面布局结构
Brucer A total-body irradiator
Rana et al. Oncology Center
Tandon et al. Planning and Design of High-Dose Therapy Facility
RU2780126C1 (ru) Передвижная радоновая лаборатория
Thomadsen et al. Fortification of existing rooms used for brachytherapy patients
Sirag et al. Design Considerations to Minimize Staff Doses in Nuclear Medicine Units
Saha Design and cost of PET center
Lafta et al. Design Feasibility Study of PET/CT Facility in Iraq
Cruzate et al. Shielding of medical facilities. Shielding design considerations for PET-CT facilities

Legal Events

Date Code Title Description
121 Ep: the epo has been informed by wipo that ep was designated in this application

Ref document number: 23885707

Country of ref document: EP

Kind code of ref document: A1

WWE Wipo information: entry into national phase

Ref document number: 2024554496

Country of ref document: JP

WWE Wipo information: entry into national phase

Ref document number: AU2023373589

Country of ref document: AU

NENP Non-entry into the national phase

Ref country code: DE

ENP Entry into the national phase

Ref document number: 2023373589

Country of ref document: AU

Date of ref document: 20231030

Kind code of ref document: A

122 Ep: pct application non-entry in european phase

Ref document number: 23885707

Country of ref document: EP

Kind code of ref document: A1