CN210763807U - Elevator arrangement structure with right-angle door opening function - Google Patents

Elevator arrangement structure with right-angle door opening function Download PDF

Info

Publication number
CN210763807U
CN210763807U CN201920462319.4U CN201920462319U CN210763807U CN 210763807 U CN210763807 U CN 210763807U CN 201920462319 U CN201920462319 U CN 201920462319U CN 210763807 U CN210763807 U CN 210763807U
Authority
CN
China
Prior art keywords
car
elevator
counterweight
elevator car
guide rail
Prior art date
Legal status (The legal status is an assumption and is not a legal conclusion. Google has not performed a legal analysis and makes no representation as to the accuracy of the status listed.)
Active
Application number
CN201920462319.4U
Other languages
Chinese (zh)
Inventor
罗毅
姚首弟
吴义群
俞亦南
宓正元
Current Assignee (The listed assignees may be inaccurate. Google has not performed a legal analysis and makes no representation or warranty as to the accuracy of the list.)
HANGZHOU HOPMANN ELEVATOR CO LTD
Original Assignee
HANGZHOU HOPMANN ELEVATOR CO LTD
Priority date (The priority date is an assumption and is not a legal conclusion. Google has not performed a legal analysis and makes no representation as to the accuracy of the date listed.)
Filing date
Publication date
Application filed by HANGZHOU HOPMANN ELEVATOR CO LTD filed Critical HANGZHOU HOPMANN ELEVATOR CO LTD
Priority to CN201920462319.4U priority Critical patent/CN210763807U/en
Application granted granted Critical
Publication of CN210763807U publication Critical patent/CN210763807U/en
Active legal-status Critical Current
Anticipated expiration legal-status Critical

Links

Images

Landscapes

  • Lift-Guide Devices, And Elevator Ropes And Cables (AREA)

Abstract

The utility model discloses an elevator arrangement structure that right angle opened door mainly includes the well, to the pouring weight, sets up right angle opening door elevator car in the well, has arranged car guide on elevator car's diagonal line, and elevator car's double-phase adjacent side all is provided with sedan-chair door and the room door that is parallel to each other, to the pouring weight and with to the setting of guide rail to weighing that the pouring weight corresponds on one of them gate of elevator car is relative well lateral wall. The utility model discloses on the basis that does not influence the original spatial structure of building and does not influence the safe operating performance of elevator, improve architectural design's space utilization, better solution the user to the demand of space utilization.

Description

Elevator arrangement structure with right-angle door opening function
Technical Field
The utility model relates to a field of elevator, concretely relates to elevator arrangement structure of right angle door.
Background
Traditional preceding (back) end mode of opening door's elevator has not satisfied the requirement that improves space utilization day by day, if adopt the pattern that the right angle was opened the door, on the basis that does not influence the original spatial structure of building and does not influence the safe operating performance of elevator, through the installation arrangement mode that the direction of opening the door of changing the elevator arranged and change the elevator, the limitation that causes by space utilization just can be very big solution, better solves the actual space utilization demand of user.
SUMMERY OF THE UTILITY MODEL
An object of the utility model is to overcome the not enough of prior art existence, and provide an elevator arrangement structure that right angle opened a door.
The purpose of the utility model is accomplished through following technical scheme: the elevator arrangement structure with the right-angle door opening mainly comprises a shaft and a counterweight block, wherein a right-angle door opening type elevator car is arranged in the shaft, car guide rails are arranged on the diagonal line of the elevator car, the car door and the hall door which are parallel to each other are arranged on two adjacent side edges of the elevator car, and the counterweight block and a counterweight guide rail corresponding to the counterweight block are arranged on the side wall of the shaft, opposite to one door opening of the elevator car; set up the counterweight sheave on the counterweight piece, car guide rail and counterweight guide rail all fix on the lateral wall of well through the rail brackets.
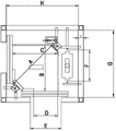
Further, the car guide track distance A is 1656mm, the car width B is 1330mm, the car depth C is 1330mm, the door opening width D of the car is 700mm, the door opening width E at the door opening position is 900mm, the counterweight guide track distance F is 900mm, the hoistway width G is 1950mm, the hoistway depth H is 2100mm, and the hoistway wall thickness I is 150 mm.
The utility model has the advantages that: on the basis of not influencing the original space structure of a building and not influencing the safe operation performance of an elevator, the space utilization rate of architectural design is improved, and the requirement of a user on space utilization is better met.
Drawings
Fig. 1 is a schematic structural diagram of the present invention.
Fig. 2 is a size structure diagram of the present invention.
Description of reference numerals: the elevator comprises a hoistway 1, an elevator car 2, car guide rails 3, car doors 4, hoistway doors 5, counterweight blocks 6, counterweight guide rails 7, counterweight rope wheels 8, guide rail supports 9, a car guide rail distance A, a car width B, a car depth C, a door opening width D, a door opening width E, a counterweight guide rail distance F, a hoistway width G, a hoistway depth H and a hoistway wall thickness I.
Detailed Description
The present invention will be described in detail with reference to the accompanying drawings:
example (b): as shown in the attached drawings, the elevator arrangement structure with right-angle doors mainly comprises a shaft 1 and a counterweight 6, wherein a right-angle door-opening type elevator car 2 is arranged in the shaft 1, car guide rails 3 are arranged on the diagonal lines of the elevator car 2, car doors 4 and hoistway doors 5 which are parallel to each other are arranged on two adjacent side edges of the elevator car 2, and the counterweight 6 and a counterweight guide rail 7 corresponding to the counterweight 6 are arranged on the side wall of the shaft 1 opposite to one doorway of the elevator car 2; set up counterweight sheave 8 on counterweight block 6, car guide rail 3 and counterweight guide rail 7 are all fixed on the lateral wall of well 1 through rail brackets 9.
Preferably, the car guide track distance A is 1656mm, the car width B is 1330mm, the car depth C is 1330mm, the door opening width D of the car is 700mm, the door opening width E at the door opening position is 900mm, the counterweight guide track distance F is 900mm, the hoistway width G is 1950mm, the hoistway depth H is 2100mm, and the hoistway wall thickness I is 150 mm.
It should be understood that equivalent substitutions or changes to the technical solution and the inventive concept of the present invention should be considered to fall within the scope of the appended claims for the skilled person.

Claims (2)

1. An elevator arrangement for right angle opening of doors, characterized by: the elevator car mainly comprises a hoistway (1) and a counterweight block (6), wherein a right-angle door-opening type elevator car (2) is arranged in the hoistway (1), car guide rails (3) are arranged on the diagonal lines of the elevator car (2), car doors (4) and hoistway doors (5) which are parallel to each other are arranged on two adjacent side edges of the elevator car (2), and the counterweight block (6) and a counterweight guide rail (7) corresponding to the counterweight block (6) are arranged on the side wall of the hoistway (1) opposite to one doorway of the elevator car (2); set up counterweight sheave (8) on counterweight block (6), car guide rail (3) and counterweight guide rail (7) are all fixed on the lateral wall of well (1) through rail brackets (9).
2. The right-angle-opening elevator arrangement according to claim 1, characterized in that: the car guide rail gauge A is 1656mm, the car width B is 1330mm, the car depth C is 1330mm, the opening width D of the car is 700mm, the door opening width E at the opening position is 900mm, the counterweight guide rail gauge F is 900mm, the well width G is 1950mm, the well depth H is 2100mm, and the well wall thickness I is 150 mm.
CN201920462319.4U 2019-04-08 2019-04-08 Elevator arrangement structure with right-angle door opening function Active CN210763807U (en)

Priority Applications (1)

Application Number Priority Date Filing Date Title
CN201920462319.4U CN210763807U (en) 2019-04-08 2019-04-08 Elevator arrangement structure with right-angle door opening function

Applications Claiming Priority (1)

Application Number Priority Date Filing Date Title
CN201920462319.4U CN210763807U (en) 2019-04-08 2019-04-08 Elevator arrangement structure with right-angle door opening function

Publications (1)

Publication Number Publication Date
CN210763807U true CN210763807U (en) 2020-06-16

Family

ID=71062804

Family Applications (1)

Application Number Title Priority Date Filing Date
CN201920462319.4U Active CN210763807U (en) 2019-04-08 2019-04-08 Elevator arrangement structure with right-angle door opening function

Country Status (1)

Country Link
CN (1) CN210763807U (en)

Cited By (1)

* Cited by examiner, † Cited by third party
Publication number Priority date Publication date Assignee Title
CN114030970A (en) * 2021-11-26 2022-02-11 通用电梯股份有限公司 Right angle elevator car mounting structure that opens door

Cited By (1)

* Cited by examiner, † Cited by third party
Publication number Priority date Publication date Assignee Title
CN114030970A (en) * 2021-11-26 2022-02-11 通用电梯股份有限公司 Right angle elevator car mounting structure that opens door

Similar Documents

Publication Publication Date Title
CN104773630A (en) Corner door type passenger elevator
CN204588379U (en) For the Dokdo type elevator of outdoor
CN106044504B (en) A kind of elevator center opening door head with Multifunction position limiting harden structure
CN202766036U (en) Four door elevator
CN210763807U (en) Elevator arrangement structure with right-angle door opening function
CN203321159U (en) Sliding door hanging part and shield door provided with same
CN105217409B (en) A kind of hoistway structure of villa elevator
CN208883242U (en) A kind of machine room right-angled door-opened elevator
CN201301152Y (en) Three-door elevator car
CN204917549U (en) Steel construction integration elevator
CN206720534U (en) A kind of side opening door
CN104773633A (en) Corner door type home elevator
CN201161858Y (en) Sightseeing elevator without machine room
CN204150890U (en) A kind of right-angled door-opened elevator
CN202936064U (en) Surrounding four-door elevator
CN109132797B (en) A machine room-less right-angle door elevator traction and hanging system
CN205061215U (en) No computer lab elevator examines and repair device
CN206502496U (en) Open three folding elevator door upper sill frames in side
CN201161856Y (en) Elevator with a movable elevator car
CN202265284U (en) Three-door elevator
CN206273757U (en) External hanging type frame hoistway residential lift high
CN208843531U (en) The lower whorl beam machine-roomless lift that L-type is opened the door
CN202936060U (en) Intermediate guide and traction elevator
CN203372964U (en) Vertically and upwards opened two-fold door for elevator
CN106185575A (en) A kind of arc modeling sightseeing elevator glass door

Legal Events

Date Code Title Description
GR01 Patent grant
GR01 Patent grant