CN216166221U - 一种具有防潮杀菌功能的橱柜 - Google Patents
一种具有防潮杀菌功能的橱柜 Download PDFInfo
- Publication number
- CN216166221U CN216166221U CN202122724293.6U CN202122724293U CN216166221U CN 216166221 U CN216166221 U CN 216166221U CN 202122724293 U CN202122724293 U CN 202122724293U CN 216166221 U CN216166221 U CN 216166221U
- Authority
- CN
- China
- Prior art keywords
- cabinet body
- cabinet
- humidity
- fixed
- sides
- Prior art date
- Legal status (The legal status is an assumption and is not a legal conclusion. Google has not performed a legal analysis and makes no representation as to the accuracy of the status listed.)
- Active
Links
- 230000000249 desinfective effect Effects 0.000 title claims description 5
- 230000001954 sterilising effect Effects 0.000 claims abstract description 9
- 238000005192 partition Methods 0.000 claims abstract description 7
- 239000000428 dust Substances 0.000 claims description 4
- 238000009423 ventilation Methods 0.000 claims description 4
- 238000004659 sterilization and disinfection Methods 0.000 abstract description 5
- 230000006872 improvement Effects 0.000 description 5
- 238000001035 drying Methods 0.000 description 4
- 230000000694 effects Effects 0.000 description 4
- 238000010438 heat treatment Methods 0.000 description 2
- 230000009286 beneficial effect Effects 0.000 description 1
- 238000010276 construction Methods 0.000 description 1
- 238000010411 cooking Methods 0.000 description 1
- 239000002274 desiccant Substances 0.000 description 1
- 238000006073 displacement reaction Methods 0.000 description 1
- 238000001125 extrusion Methods 0.000 description 1
- 230000002070 germicidal effect Effects 0.000 description 1
- 238000000034 method Methods 0.000 description 1
- 238000012986 modification Methods 0.000 description 1
- 230000004048 modification Effects 0.000 description 1
- 238000012544 monitoring process Methods 0.000 description 1
- 230000008569 process Effects 0.000 description 1
Images
Landscapes
- Drawers Of Furniture (AREA)
Abstract
本实用新型公开一种具有防潮杀菌功能的橱柜,包括柜体,柜体内部固定有竖隔板,柜体内部顶端对称设有湿度传感器,柜体底端对称设有负压风机,湿度传感器与负压风机电性连接;本实用新型通过湿度传感器对柜体内部的湿度进行检测,当检测到柜体内湿度超过预设阀值时驱动负压风机将柜体内部的湿空气不断的排出至柜体外部,当监测到湿度达标时再停止负压风机工作,从而使柜体内部始终保持一个干燥的环境,不易受潮,避免产生异味以及发生霉变现象,保证了柜体内部的卫生环境,通过在放置板两侧均固定于滑道匹配的滑条,从而使放置板与滑道滑动连接,进而便于放置板的取出的放入,给用户的物品放置带来便捷,使用方便,实用性较高。
Description
技术领域
本实用新型涉及橱柜技术领域,尤其涉及一种具有防潮杀菌功能的橱柜。
背景技术
橱柜是指厨房中存放厨具以及做饭操作的平台,是人们日常生活过程中经常会用到的家居用品之一,使用明度较高的色彩搭配,其特点是将橱柜与操作台以及厨房电器和各种功能部件有机结合在一起,并按照消费者家中厨房结构、面积、以及家庭成员的个性化需求,通过整体配置、整体设计、整体施工,最后形成成套产品,为人们带来了许多的便利,一般由五大件组成:柜体、门板、五金件、台面和电器,其中柜体作为橱柜的主要组成部分之一,其按空间结构可分类为吊柜、地柜、装饰柜、中高立柜和台上柜等;
现有的橱柜大都结构单一,一般为固定式结构,导致其内部用于放置厨具等物品的放置板不易取出,从而给物品的放入和取出带来麻烦,使用不方便,实用性不高,且现有的橱柜大都不具备良好的通风效果,导致防潮功能较差,不仅容易使柜体内部产生异味,还会产生霉变,对橱柜的卫生环境造成不好的影响,因此,本实用新型提出一种具有防潮杀菌功能的橱柜用以解决现有技术中存在的问题。
实用新型内容
针对上述问题,本实用新型的目的在于提出一种具有防潮杀菌功能的橱柜,该具有防潮杀菌功能的橱柜通过湿度传感器对柜体内部的湿度进行检测,当检测到柜体内湿度超过预设阀值时驱动负压风机将柜体内部的湿空气不断的排出至柜体外部,从而使柜体内部始终保持一个干燥的环境,不易受潮,通过在放置板两侧均固定于滑道匹配的滑条,从而使放置板与滑道滑动连接,进而便于放置板的取出的放入。
为了实现本实用新型的目的,本实用新型通过以下技术方案实现:一种具有防潮杀菌功能的橱柜,包括柜体,所述柜体内部固定有竖隔板,所述柜体内部顶端对称设有湿度传感器,所述柜体底端对称设有负压风机,所述湿度传感器与负压风机电性连接,所述柜体两侧均开设有通风口,所述竖隔板上开设有第一通孔,所述竖隔板两侧和柜体两侧内壁上均固定有滑道,所述竖隔板和柜体内壁之间设有与滑道滑动连接有放置板,所述放置板两侧均固定有与滑道匹配的滑条,所述放置板上均匀开设有第二通孔,所述柜体正面铰接安装有呈对称分布的柜门,所述滑道靠近柜门的一侧设有限位机构,所述柜体顶端设有垫板。
进一步改进在于:所述限位机构包括滑动贯穿滑道的插销,所述插销底端延伸至滑道内侧,所述插销顶端固定有拉环。
进一步改进在于:所述滑道内侧的上下两端均转动连接有呈等距分布的滑轮,所述放置板靠近柜门的一端固定有把手,所述柜门上设有透明观察窗。
进一步改进在于:所述通风口靠近柜体外部的一侧通过螺纹套接有套管,所述套管内侧设有防尘网。
进一步改进在于:所述柜体远离柜门一侧的内壁上对称设有加热板,所述湿度传感器与加热板电性连接,所述加热板两侧均设有紫外线杀菌灯。
进一步改进在于:所述柜体内部底端的两侧均设有固定架,所述固定架内侧放置有干燥盒,所述干燥盒内填充有干燥剂,所述柜体底端的四角位置均固定有支撑腿。
本实用新型的有益效果为:本实用新型包括柜体,通过湿度传感器对柜体内部的湿度进行检测,当检测到柜体内湿度超过预设阀值时驱动负压风机将柜体内部的湿空气不断的排出至柜体外部,当监测到湿度达标时再停止负压风机工作,从而使柜体内部始终保持一个干燥的环境,不易受潮,避免产生异味以及发生霉变现象,保证了柜体内部的卫生环境,通过在放置板两侧均固定于滑道匹配的滑条,从而使放置板与滑道滑动连接,进而便于放置板的取出的放入,给用户的物品放置带来便捷,使用方便,实用性较高。
附图说明
图1是本实用新型实施例一的立体结构图;
图2是本实用新型实施例一的正视图;
图3是本实用新型实施例一的正面剖视图;
图4是本实用新型实施例一的A处放大图;
图5是本实用新型实施例一的滑道侧视图;
图6是本实用新型实施例一的放置板俯视图;
图7是本实用新型实施例二的正视图。
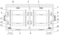
其中:1、柜体;2、竖隔板;3、湿度传感器;4、负压风机;5、通风口;6、第一通孔;7、滑道;8、放置板;9、滑条;10、第二通孔;11、柜门;12、垫板;13、插销;14、把手;15、透明观察窗;16、套管;17、防尘网;18、加热板;19、紫外线杀菌灯;20、固定架;21、干燥盒;22、橡胶支撑垫;23、温度显示器;24、危险指示灯。
具体实施方式
为了加深对本实用新型的理解,下面将结合实施例对本实用新型做进一步详述,本实施例仅用于解释本实用新型,并不构成对本实用新型保护范围的限定。
实施例一
根据图1、2、3、4、5、6所示,本实施例提供了一种具有防潮杀菌功能的橱柜,包括柜体1,柜体1内部固定有竖隔板2,柜体1内部顶端对称设有湿度传感器3,柜体1底端对称设有负压风机4,湿度传感器3与负压风机4电性连接,柜体1两侧均开设有通风口5,通过湿度传感器3对柜体1内部的湿度进行检测,当检测到柜体1内湿度超过预设阀值时驱动负压风机4将柜体1内部的湿空气不断的排出至柜体1外部,当监测到湿度达标时再停止负压风机4工作,从而使柜体1内部始终保持一个干燥的环境,不易受潮,避免产生异味以及发生霉变现象,保证了柜体1内部的卫生环境,竖隔板2上开设有第一通孔6,竖隔板2两侧和柜体1两侧内壁上均固定有滑道7,竖隔板2和柜体1内壁之间设有与滑道7滑动连接有放置板8,放置板8两侧均固定有与滑道7匹配的滑条9,放置板8上均匀开设有第二通孔10,柜体1正面铰接安装有呈对称分布的柜门11,滑道7靠近柜门11的一侧设有限位机构,柜体1顶端设有垫板12,通过在放置板8两侧均固定于滑道7匹配的滑条9,从而使放置板8与滑道7滑动连接,进而便于放置板8的取出的放入,给用户的物品放置带来便捷。
限位机构包括滑动贯穿滑道7的插销13,插销13底端延伸至滑道7内侧,插销13顶端固定有拉环,通过将插销13插入滑道7来阻挡放置板8滑出,从而起到限位作用。
滑道7内侧的上下两端均转动连接有呈等距分布的滑轮,放置板8靠近柜门11的一端固定有把手14,柜门11上设有透明观察窗15,通过把手14使放置板8便于用户抓取,通过透明观察窗15便于用户直接在外部观察柜体1内部。
通风口5靠近柜体1外部的一侧通过螺纹套接有套管16,套管16内侧设有防尘网17,通过防尘网17避免外界灰尘进入柜体1内部,并通过螺纹连接便于对套管16进行拆卸安装。
柜体1远离柜门11一侧的内壁上对称设有加热板18,湿度传感器3与加热板18电性连接,当湿度传感器3检测到柜体1内部湿度超过预设阀值时驱动加热板18加热,加热板18两侧均设有紫外线杀菌灯19,通过紫外线杀菌灯19对柜体1内部进行照射,从而起到杀菌消毒作用。
柜体1内部底端的两侧均设有固定架20,固定架20内侧放置有干燥盒21,干燥盒21内填充有干燥剂,通过在柜体1内部放置干燥盒21从而进一步提高柜体1内的干燥度,进而起到一定防潮作用,柜体1底端的四角位置均固定有支撑腿,通过对称设置的支撑腿对柜体1起到稳定支撑作用。
实施例二
根据图7所示,垫板12底端与柜体1顶端之间固定连接有橡胶支撑垫22,橡胶支撑垫22在柜体1和垫板12之间呈等距分布,通过橡胶支撑垫22对垫板12进行缓冲,避免垫板12上的物品过重而对柜体1造成硬性挤压,柜体1正面的上部设有温度显示器23和危险指示灯24,柜体1内部设有与温度显示器23和危险指示灯24电性连接的温度传感器,通过温度传感器检测柜体1内的温度并驱动温度显示器23实时显示,当加热板18工作时,温度传感器检测吊柜体1内的温度高于预设阀值时驱动危险指示灯24闪烁。
使用时,利用湿度传感器3对柜体1内部的湿度进行检测,当检测到柜体1内湿度超过预设阀值时驱动加热板18进行加热,并启动负压风机4将柜体1内部的湿空气不断的排出至柜体1外部,当监测到湿度达标时再停止加热板18和负压风机4工作,当需要取出放置板8时,先将插销13向上拔出,再将放置板8从滑道7拉出即可,当需要对放置板8进行定位时,将放置板8推入滑道7并将插销13向下插入即可。
以上显示和描述了本实用新型的基本原理、主要特征和优点。本行业的技术人员应该了解,本实用新型不受上述实施例的限制,上述实施例和说明书中描述的只是说明本实用新型的原理,在不脱离本实用新型精神和范围的前提下,本实用新型还会有各种变化和改进,这些变化和改进都落入要求保护的本实用新型范围内。本实用新型要求保护范围由所附的权利要求书及其等效物界定。
Claims (6)
1.一种具有防潮杀菌功能的橱柜,包括柜体(1),其特征在于:所述柜体(1)内部固定有竖隔板(2),所述柜体(1)内部顶端对称设有湿度传感器(3),所述柜体(1)底端对称设有负压风机(4),所述湿度传感器(3)与负压风机(4)电性连接,所述柜体(1)两侧均开设有通风口(5),所述竖隔板(2)上开设有第一通孔(6),所述竖隔板(2)两侧和柜体(1)两侧内壁上均固定有滑道(7),所述竖隔板(2)和柜体(1)内壁之间设有与滑道(7)滑动连接的放置板(8),所述放置板(8)两侧均固定有与滑道(7)匹配的滑条(9),所述放置板(8)上均匀开设有第二通孔(10),所述柜体(1)正面铰接安装有呈对称分布的柜门(11),所述滑道(7)靠近柜门(11)的一侧设有限位机构,所述柜体(1)顶端设有垫板(12)。
2.根据权利要求1所述的一种具有防潮杀菌功能的橱柜,其特征在于:所述限位机构包括滑动贯穿滑道(7)的插销(13),所述插销(13)底端延伸至滑道(7)内侧,所述插销(13)顶端固定有拉环。
3.根据权利要求1所述的一种具有防潮杀菌功能的橱柜,其特征在于:所述滑道(7)内侧的上下两端均转动连接有呈等距分布的滑轮,所述放置板(8)靠近柜门(11)的一端固定有把手(14),所述柜门(11)上设有透明观察窗(15)。
4.根据权利要求1所述的一种具有防潮杀菌功能的橱柜,其特征在于:所述通风口(5)靠近柜体(1)外部的一侧通过螺纹套接有套管(16),所述套管(16)内侧设有防尘网(17)。
5.根据权利要求1所述的一种具有防潮杀菌功能的橱柜,其特征在于:所述柜体(1)远离柜门(11)一侧的内壁上对称设有加热板(18),所述湿度传感器(3)与加热板(18)电性连接,所述加热板(18)两侧均设有紫外线杀菌灯(19)。
6.根据权利要求1所述的一种具有防潮杀菌功能的橱柜,其特征在于:所述柜体(1)内部底端的两侧均设有固定架(20),所述固定架(20)内侧放置有干燥盒(21),所述干燥盒(21)内填充有干燥剂,所述柜体(1)底端的四角位置均固定有支撑腿。
Priority Applications (1)
| Application Number | Priority Date | Filing Date | Title |
|---|---|---|---|
| CN202122724293.6U CN216166221U (zh) | 2021-11-09 | 2021-11-09 | 一种具有防潮杀菌功能的橱柜 |
Applications Claiming Priority (1)
| Application Number | Priority Date | Filing Date | Title |
|---|---|---|---|
| CN202122724293.6U CN216166221U (zh) | 2021-11-09 | 2021-11-09 | 一种具有防潮杀菌功能的橱柜 |
Publications (1)
| Publication Number | Publication Date |
|---|---|
| CN216166221U true CN216166221U (zh) | 2022-04-05 |
Family
ID=80905952
Family Applications (1)
| Application Number | Title | Priority Date | Filing Date |
|---|---|---|---|
| CN202122724293.6U Active CN216166221U (zh) | 2021-11-09 | 2021-11-09 | 一种具有防潮杀菌功能的橱柜 |
Country Status (1)
| Country | Link |
|---|---|
| CN (1) | CN216166221U (zh) |
-
2021
- 2021-11-09 CN CN202122724293.6U patent/CN216166221U/zh active Active
Similar Documents
| Publication | Publication Date | Title |
|---|---|---|
| CN211431636U (zh) | 一种具有智能除湿的家用衣柜 | |
| US20100043249A1 (en) | Portable Dish Dryer with Drying Lamp | |
| CN109106084A (zh) | 一种便于收纳的通风型衣柜 | |
| CN206044467U (zh) | 新型浴室柜 | |
| CN216166221U (zh) | 一种具有防潮杀菌功能的橱柜 | |
| CN111920362A (zh) | 一种便于收纳鞋子的多功能家居鞋箱 | |
| CN220157831U (zh) | 一种消毒杀菌衣柜 | |
| CN215014855U (zh) | 一种带内置挂衣杆架的衣柜 | |
| CN213882315U (zh) | 一种具备智能感应灯光的衣柜 | |
| CN212546178U (zh) | 一种具有除湿功能的家居衣柜 | |
| CN211269275U (zh) | 一种除湿效果好的衣柜 | |
| CN211380213U (zh) | 一种带有除味干燥功能的家用鞋柜 | |
| CN214855283U (zh) | 一种具有防潮和可拆卸功能的衣柜 | |
| CN211657672U (zh) | 一种具有杀菌功能的衣柜 | |
| CN2396703Y (zh) | 多功能鞋柜 | |
| CN113089287A (zh) | 一种针对不同衣物进行杀菌除螨的智能干衣护理柜 | |
| CN215649886U (zh) | 多功能消毒衣柜 | |
| CN106319901A (zh) | 铰链式升降晾衣架 | |
| CN216854133U (zh) | 一种具有除潮杀菌功能的衣柜 | |
| CN221181104U (zh) | 一种抽屉式消毒操作台碗柜 | |
| CN219982423U (zh) | 一种家用防潮衣柜 | |
| CN218682895U (zh) | 一种可调节居家收纳柜 | |
| CN220343938U (zh) | 一种具备除潮结构的衣服储柜 | |
| CN215776540U (zh) | 一种防护性能好的智能橱柜 | |
| CN220477205U (zh) | 一种智能家居衣柜 |
Legal Events
| Date | Code | Title | Description |
|---|---|---|---|
| GR01 | Patent grant | ||
| GR01 | Patent grant |