CN214536593U - Anti-freezing type indirect evaporative cooling air conditioning device and system for data center - Google Patents
Anti-freezing type indirect evaporative cooling air conditioning device and system for data center Download PDFInfo
- Publication number
- CN214536593U CN214536593U CN202022210397.0U CN202022210397U CN214536593U CN 214536593 U CN214536593 U CN 214536593U CN 202022210397 U CN202022210397 U CN 202022210397U CN 214536593 U CN214536593 U CN 214536593U
- Authority
- CN
- China
- Prior art keywords
- water
- pipe
- inlet
- storage device
- unit
- Prior art date
- Legal status (The legal status is an assumption and is not a legal conclusion. Google has not performed a legal analysis and makes no representation as to the accuracy of the status listed.)
- Active
Links
- 238000001816 cooling Methods 0.000 title claims abstract description 53
- 238000004378 air conditioning Methods 0.000 title claims abstract description 51
- 238000007710 freezing Methods 0.000 title claims description 26
- XLYOFNOQVPJJNP-UHFFFAOYSA-N water Substances O XLYOFNOQVPJJNP-UHFFFAOYSA-N 0.000 claims abstract description 586
- 238000004321 preservation Methods 0.000 claims abstract description 83
- 238000005057 refrigeration Methods 0.000 claims abstract description 54
- 230000008020 evaporation Effects 0.000 claims abstract description 39
- 238000001704 evaporation Methods 0.000 claims abstract description 39
- 208000001034 Frostbite Diseases 0.000 claims abstract description 5
- 238000009825 accumulation Methods 0.000 claims description 27
- 238000004891 communication Methods 0.000 claims description 12
- 238000010438 heat treatment Methods 0.000 claims description 11
- 239000000498 cooling water Substances 0.000 claims description 6
- 238000005507 spraying Methods 0.000 claims description 6
- 230000001502 supplementing effect Effects 0.000 claims description 5
- 230000002528 anti-freeze Effects 0.000 claims 27
- 230000000149 penetrating effect Effects 0.000 claims 1
- 238000009434 installation Methods 0.000 abstract description 8
- 238000005265 energy consumption Methods 0.000 description 11
- 238000010586 diagram Methods 0.000 description 10
- 238000009413 insulation Methods 0.000 description 10
- 230000008014 freezing Effects 0.000 description 5
- 238000011161 development Methods 0.000 description 4
- 238000005336 cracking Methods 0.000 description 3
- 238000005516 engineering process Methods 0.000 description 2
- 239000007788 liquid Substances 0.000 description 2
- 238000007796 conventional method Methods 0.000 description 1
- 238000005485 electric heating Methods 0.000 description 1
- 230000017525 heat dissipation Effects 0.000 description 1
- 239000008236 heating water Substances 0.000 description 1
- 238000012423 maintenance Methods 0.000 description 1
- 238000007789 sealing Methods 0.000 description 1
- 239000010865 sewage Substances 0.000 description 1
- 239000007921 spray Substances 0.000 description 1
- 239000013589 supplement Substances 0.000 description 1
Images
Landscapes
- Other Air-Conditioning Systems (AREA)
Abstract
The utility model belongs to the air treatment equipment in warm logical air conditioner field, especially an indirect evaporative cooling air conditioning equipment of type and system prevent frostbite of data center, by evaporation refrigeration water supply installation, the heat preservation space, water storage device constitutes, wherein the heat preservation space is by last heat preservation face, heat preservation face and side heat preservation face constitute down, evaporation refrigeration water supply installation places on last heat preservation face, be provided with water storage device in the heat preservation space, evaporation refrigeration water supply installation passes through communicating pipe with water storage device and communicates, water storage device is provided with the outlet pipe, the cold water that evaporation refrigeration water supply installation prepared flows water storage device through the communicating pipe, water among the water storage device supplies with the user through the outlet pipe, get back to the unit through the unit inlet tube. The utility model discloses it is rational in infrastructure, can solve the frostproofing problem of data center outdoor water pipeline winter to can also the water storage, need not extra setting up the storage water tank.
Description
Technical Field
The utility model belongs to the air treatment equipment in heating and ventilating air conditioner field, especially an indirect evaporative cooling air conditioning equipment of type and system prevent frostbite of data center.
Background
With the development of 5G technology, a new round of rapid development of data centers has begun. Meanwhile, the scale of a single data center in China also develops from the initial hundreds of square meters to the thousands or even tens of thousands of square meters at present, and along with the continuous development of computer technology, a computer room is developed as a platform for the safe and stable operation of a computer.
Along with the development of data centers, the problem of high energy consumption of the data centers is more and more prominent; in the energy consumption ratio of the data center, the energy consumption of the air conditioner accounts for 20% -30% of the total energy consumption, so that the reduction of the energy consumption of the air conditioner is a very important means for reducing the energy consumption of the data center; in order to reduce the energy consumption of the air conditioner, a common mode is to build a data center in the northern area, and the characteristics of low temperature and dryness of the northern area are utilized to prolong the natural cooling time of the data center and reduce the PUE of the data center.
Generally, in order to reduce energy consumption of an air conditioning system of a data center, the air conditioning system of the data center generally utilizes a conventional water-cooling mechanical refrigeration system or adopts a water evaporation cooling system in an area with a proper climate, so that the energy efficiency ratio of the air conditioning system is improved; in winter in northern China, the outdoor temperature is low, and although the chilled water can be directly taken out by using low-temperature air, the phenomenon of frost cracking of an outdoor water pipeline also exists, so that the safe operation of a data center is directly influenced.
In order to solve the problem of frost cracking of outdoor water pipelines in winter, the conventional method is to install electric tracing on the water pipelines and the pipelines of cooling equipment, and although the risk of frost cracking of the water pipelines is solved to a certain extent by the electric tracing, the installed power and the power consumption of an air conditioning system are increased, so that the energy consumption of the air conditioning system is not reduced when the air conditioning system utilizes natural cooling.
SUMMERY OF THE UTILITY MODEL
An object of the utility model is to provide an indirect evaporative cooling air conditioning equipment of type and system prevent frostbite of data center, its is rational in infrastructure, can solve the frostproofing problem of data center outdoor water pipeline winter to can also the water storage, need not the extra storage water tank that sets up.
The purpose of the utility model is realized like this: the utility model provides a data center type indirect evaporative cooling air conditioning equipment that prevents frostbite and system, by evaporation refrigeration water supply installation, the heat preservation space, water storage device constitutes, wherein the heat preservation space comprises last heat preservation face, lower heat preservation face and side heat preservation face, evaporation refrigeration water supply installation places on last heat preservation face, be provided with water storage device in the heat preservation space, evaporation refrigeration water supply installation passes through communicating pipe with water storage device and communicates, water storage device is provided with the outlet pipe, the cold water that evaporation refrigeration water supply installation prepared flows to water storage device through the communicating pipe, water among the water storage device supplies with the user through the outlet pipe, get back to the unit through the unit inlet tube.
The utility model solves the anti-freezing problem of the outdoor water pipeline in winter, the evaporative cooling equipment for producing cold water outdoors in winter can be placed on the equipment platform, and the water pipeline is arranged below the platform, so that the lower part of the equipment platform can be sealed, and the pipeline below the platform can not be frozen by heating on duty in a sealed space; in order to avoid freezing of the water tank of the equipment, the water tank is arranged below the equipment platform, the equipment is only provided with a water receiving tray, water in the water receiving tray is directly reserved in the water tank, and the water tank is arranged in a closed space, so that the risk of freezing damage can not occur; the water replenishing of the evaporative cooling equipment is directly arranged in the heat exchange machine room, the water is replenished through the system, the water is not required to be replenished for the unit independently, and the anti-freezing problem of the water replenishing system is solved.
Has the advantages that:
1. the anti-freezing problem of the outdoor water pipeline of the data center in winter is effectively solved;
2. the water tank not only can be used as an anti-freezing device, but also can store water, so that the system does not need to be additionally provided with a water storage tank.
The utility model discloses it is rational in infrastructure, solved the frostproofing problem of data center outdoor water pipeline winter to can also the water storage, need not extra setting up the storage water tank.
Drawings
The present invention will be further described with reference to the accompanying drawings, wherein fig. 1 is a schematic structural view of embodiment 1 of the present invention, fig. 2 is a schematic structural view of embodiment 2 of the present invention, fig. 3 is a schematic structural view of embodiment 3 of the present invention, fig. 4 is a schematic structural view of embodiment 4 of the present invention, fig. 5 is a schematic structural view of embodiment 5 of the present invention, fig. 6 is a schematic structural view of embodiment 6 of the present invention, fig. 7 is a schematic structural view of embodiment 7 of the present invention, fig. 8 is a schematic structural view of embodiment 8 of the present invention, fig. 9 is a schematic structural view of embodiment 9 of the present invention, fig. 10 is a schematic structural view of embodiment 10 of the present invention, fig. 11 is a schematic structural view of embodiment 11 of the present invention, fig. 12 is a schematic structural view of embodiment 12 of the present invention, fig. 13 is a schematic structural view of embodiment 13 of the present invention, fig. 14 is a schematic structural view of embodiment 14 of the present invention, fig. 15 is the embodiment of the utility model discloses 15 schematic structural diagrams, fig. 16 is the utility model discloses 16 structural schematic diagrams, fig. 17 is the utility model discloses an 17 structural schematic diagrams, fig. 18 is the utility model discloses 18 structural schematic diagrams, fig. 19 is the utility model discloses an 19 structural schematic diagrams, fig. 20 is the utility model discloses an 20 structural schematic diagrams, fig. 21 is the utility model discloses an 21 structural schematic diagrams, fig. 22 is the utility model discloses an 22 structural schematic diagrams, fig. 23 is the utility model discloses an embodiment 23 structural schematic diagrams, fig. 24 is the utility model discloses an 24 structural schematic diagrams.
Detailed Description
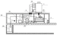
A data center anti-freezing type indirect evaporative cooling air conditioning device and system are shown in figure 1 and comprise an evaporative refrigeration water supply device 1, a heat preservation space 4 and a water storage device 7, wherein the heat preservation space 4 is composed of an upper heat preservation surface 5, a lower heat preservation surface 8 and a side heat preservation surface 6, the evaporative refrigeration water supply device 1 is placed on the upper heat preservation surface 5, the water storage device 7 is arranged in the heat preservation space 4, the evaporative refrigeration water supply device 1 is communicated with the water storage device 7 through a communication pipe 2, the water storage device 7 is provided with a water outlet pipe 9, cold water prepared by the evaporative refrigeration water supply device 1 flows to the water storage device 7 through the communication pipe 2, water in the water storage device 7 is supplied to a user through the water outlet pipe 9 and returns to a unit through a unit water inlet pipe 3. Most of the water pipelines and the water storage device 7 in the device are arranged in the heat preservation space 4, and the problem that the pipelines and equipment are frozen during running in winter is solved.
As shown in fig. 2, a water receiving tray 10 is arranged at the bottom of an evaporation refrigeration water supply device 1, an insulation space 4 is composed of four walls of an upper insulation surface 5, a lower insulation surface 8 and a side insulation surface 6, the evaporation refrigeration water supply device 1 is arranged on the upper insulation surface 5 of the insulation space, a communication pipe 2 arranged at the bottom surface of the water receiving tray 10 is connected with a water storage device 7 positioned in the insulation space 4, the water storage device 7 is provided with a water outlet pipe 9, a unit water inlet pipe 3 positioned in the insulation space 4 is communicated with a unit spraying device through a unit water inlet valve 11 and a pipeline which are arranged in sequence, a water outlet pipe 47 is arranged at the rear section of the unit water inlet valve 11, and the water outlet pipe 47 is communicated with the water storage device 7. A drain valve 12 can be added to the drain pipe 47. The evaporation refrigeration water supply device 1 is internally provided with a water receiving tray 10, the water storage device 7 is a water tank, a water inlet valve is arranged on the unit water inlet pipe 3, a water outlet pipe and a water outlet valve 12 are connected behind the unit water inlet valve 11, cold water prepared by the evaporation refrigeration water supply device 1 firstly falls into the unit water receiving tray 10, the unit water receiving tray 10 flows into the water storage device 7 through a communicating pipe 2 between the evaporation refrigeration water supply device 1 and the water storage device 7, water in the water storage device 7 is supplied to a user through a water outlet pipe 9, and the water passing through the user returns to the evaporation refrigeration water supply device 1 through the unit water inlet pipe 3. When the unit stops operating, the unit inlet valve 11 is closed, and the water in the unit inlet pipe 3 flows into the water storage device 7 through the drain pipe and the drain valve 12.
As shown in fig. 3, a heating device 13 is provided in the heat-insulating space 4. A heating device 13 is added in the heat preservation space 4, and the heating device 13 can be used for heating water or electric heating; when the water is heated, the hot water can be provided by an external heat source or a water source heat pump; the heating device 13 is mainly used for ensuring the temperature in the heat-insulating space 4, so that pipelines, the water storage device 7 and the like in the heat-insulating space 4 cannot be frozen.
As shown in fig. 4, a water sealing pipe 14 is arranged on the communicating pipe 2 of the evaporation refrigeration water supply device 1, the water pipe can be an S-shaped bend or a P-shaped bend, the lower heat preservation surface 8 is a roof or a ground, and the upper heat preservation surface 5 is a unit foundation platform. The water seal pipe 14 is added on the water outlet pipe of the evaporation refrigerating device unit, so that the phenomenon that outdoor cold air enters the heat preservation space 4 through the water outlet pipe of the unit when the unit stops running is avoided. The upper heat-insulating surface 5 of the heat-insulating space 4 can be a unit foundation platform, and the lower heat-insulating surface 8 of the heat-insulating space 4 can be a roof/ground.
As shown in fig. 5, the surface air cooler 15 is connected to the unit water inlet pipe 3, and the surface air cooler 15 is installed at the air inlet of the evaporative cooling water supply device 1. The surface air cooler 15 is arranged on the water inlet pipe 3 of the unit in series, and the surface air cooler 15 is arranged at an air inlet of the evaporative cooling device and can cool the inlet air of the unit in summer, so that the prepared water is lower in temperature, and the energy consumption of the system can be reduced; the air inlet temperature of the unit can be heated in winter, the unit is guaranteed not to be frozen, and the anti-freezing function is achieved.
As shown in fig. 6, the surface air cooler 15 connected to the unit water inlet pipe 3 is an anti-freezing surface air cooler, and a surface air cooler drain pipe 36 is provided on the anti-freezing surface air cooler. The surface air cooler 15 of the evaporation refrigerating device is an anti-freezing surface air cooler, a surface air cooler drain pipe 36 and a surface air cooler drain valve 12 are arranged on the anti-freezing surface air cooler, the flow of long-flowing water of the surface air cooler is adjusted by the surface air cooler drain valve 12, when a unit stops operating, water in the surface air cooler 15 can be discharged to the water receiving tray 10 through the surface air cooler drain pipe 36, the water in the water receiving tray 10 is discharged to the water storage device 7 through a unit outlet pipe, it is ensured that water pipes outside the heat preservation space 4 and equipment are not provided with water, and freezing is avoided.
As shown in fig. 7, the surface air cooler 15 is an anti-freezing surface air cooler, and the anti-freezing surface air cooler is provided with uniformly distributed heat exchange pipelines which are inclined downwards to the direction of a water drain pipe of the surface air cooler. The surface air cooler 15 is an anti-freezing surface air cooler, a heat exchange pipeline of the surface air cooler 15 inclines towards the direction of a drain pipe, and when the surface air cooler 15 is not used, water in the surface air cooler 15 can be discharged into the water receiving tray 10 through a surface air cooler drain pipe 36 along the inclination direction of a heat exchange pipe.
As shown in fig. 8, the surface air coolers 15 are connected in parallel on the unit water inlet pipe 3, the surface air coolers 15 are divided into two parts, and the unit water inlet pipe 3 is respectively connected with inlets of the two surface air coolers. The surface air coolers 15 of the evaporation refrigerating device are connected in parallel, the unit water inlet pipe 3 is respectively connected with the inlets of the two surface air coolers 15, the flow velocity in the pipe of the surface air cooler 15 can be reduced, the water resistance of the surface air cooler 15 is reduced, and the power consumption of the water pump is reduced.
As shown in fig. 9, two air inlets, namely a first air inlet 16 and a second air inlet 17, are provided on the evaporation refrigeration water supply device 1, wherein the surface air cooler 15 is provided on the first air inlet 16 or the second air inlet 17. The evaporative cooling device is provided with two air inlets, namely a first air inlet 16 and a second air inlet 17, wherein the first air inlet 16 or the second air inlet 17 is provided with a surface air cooler, and an air valve or other opening and closing device is arranged on the air inlet without the surface air cooler, so that when the evaporative cooling device is only used as a cooling tower, the air valve or the opening and closing device on the air inlet is opened, and the energy consumption of the evaporative cooling device is reduced; when the evaporative cooling device is used as an indirect evaporative water chilling unit, the opening and closing device on the air port is closed. Outdoor air enters the evaporative cooling device after being processed by the surface air cooler 15. The first tuyere 16 and the second tuyere 17 may be provided at one side, both sides or all around of the unit.
As shown in fig. 10, a bypass water pipe is arranged on the unit water inlet pipe 3 which is positioned behind the unit water inlet valve 11 and in front of the surface air cooler 15 water inlet pipe, and the bypass water pipe is connected with the spraying device of the evaporative refrigeration water supply device 1 through a bypass water valve 18. A bypass water pipe is added in the heat preservation space 4 after the water inlet valve 11 of the unit and before the water enters the surface air cooler 15, and the bypass water pipe has the main function that the water entering the unit can directly enter the unit for spraying through the bypass water pipe without passing through the surface air cooler 15, so that the water resistance of the unit can be reduced, and the power consumption of the circulating water pump is further reduced; in winter, the flow of the surface air cooler 15 needs to be increased, so that a bypass water pipe needs to be adjusted, the flow of the surface air cooler 15 of the unit is increased, the flow rate is increased, and the anti-freezing performance of the unit is improved. A bypass water valve 18 is arranged in the heat preservation closed space, and the bypass water valve 18 mainly regulates the flow of bypass water.
As shown in figure 11, the upper heat preservation surface of the heat preservation space is structured in such a way that a platform heat preservation layer 19 is arranged below a unit foundation platform to prevent outdoor cold from being transmitted into the heat preservation space through the platform and also prevent the top of the heat preservation space from dewing, a unit foundation platform is supported by a platform support column 22 arranged in the heat preservation space, an electric heat tracing device 20 is arranged before a unit water inlet pipe 3, a communication pipe 2 and a bypass pipe of the evaporative refrigeration water supply device 1 penetrate out of the heat preservation space to prevent outdoor cold from being transmitted into the heat preservation space through a pipeline to cause freezing of the water pipeline, a floor drain 21 is arranged at the ground lower part of the heat preservation space, a water tank platform 23 is arranged through the platform support column 22, a water storage device 7 is arranged on the water tank platform 23, a water tank top cover 24 is arranged at the top of the water storage device 7, and a drain pipe arranged at the bottom surface of the water storage device 7 is connected with the floor drain 21, the blow-off pipe is provided with a blow-off valve 44, a bypass drain pipe is arranged behind the bypass valve 18 and communicated with the water storage device 7, and the bypass drain pipe is provided with a bypass drain valve.
As shown in fig. 12, a tank water treatment device 46 is provided in the water storage device 7, the tank water treatment device 46 is connected to the water storage device 7 through a water pipe, an overflow pipe 45 is provided in the water storage device 7, and a floor drain 21 is connected to an outlet of the overflow pipe 45. A heat preservation measure is added below the platform of the unit, so that the bottom of the platform is prevented from dewing in winter, and the heat dissipation capacity of the platform in winter can be reduced; the water inlet pipe 3, the water outlet pipe and the bypass pipe of the unit penetrate through the platform to increase electric tracing measures, so that the problem that the water pipe connected with the unit is frozen due to cold energy transferred by the water pipe when the unit stops running is solved; a floor drain 21 is additionally arranged at the lower point of the closed space, the drainage of the closed space is drained to a drainage system through the floor drain 21, and the water storage device 7 can be arranged on a platform of the water storage device 7 built on a platform support column 22. A top cover of the water storage device 7 is added on the top of the water storage device 7 to prevent sundries from falling into the water storage device 7; the bottom of the water storage device 7 is provided with a drain pipe, a drain valve is arranged on the drain pipe, the drain pipe leads to the floor drain 21, and sewage in the water storage device 7 can be discharged periodically. An overflow pipe is arranged in the water storage device 7, and when the liquid level of the water storage device 7 exceeds the operating liquid level, water in the water storage device 7 flows to the floor drain 21 through the overflow pipe; the water storage device 7 is provided with a tank water treatment device 46 which can treat the water in the tank.
The evaporative refrigeration water supply device 1 is an indirect evaporative water chilling unit.
As shown in fig. 13, the lower heat-insulating surface is a roof, an air-conditioning floor is arranged below the roof, a primary water pump 27 is arranged in a heat exchange station or in the heat-insulating space 4 below the air-conditioning floor, an inlet of the primary water pump 27 is communicated with a water outlet pipe 9 through a pipeline, a water outlet of the primary water pump 27 is communicated with a primary side water inlet of a plate heat exchanger 29 through a water treatment device 28, a primary side water outlet of the plate heat exchanger 29 is communicated with a unit water inlet pipe 3 through a pipeline, a water storage tank 25 is arranged on the heat exchange station or outdoors, the water storage tank 25 is communicated with an inlet of the primary water pump 27 through a pipeline through a water replenishing pump 26, and a water replenishing pipe of the water storage tank 25 is communicated with a water replenishing system; the outlet pipe of the secondary side of the plate heat exchanger 29 is connected with the water inlet of the air conditioner tail end 32 through a secondary water pump 30 and a cold accumulation device 31, and the outlet pipe of the plate heat exchanger 29 is connected with the inlet of the secondary side of the plate heat exchanger 29. A water pump, a plate heat exchanger 29, a cold accumulation device and the like are arranged in the heat exchange layer. The water in the water storage tank 25 is supplied to the primary side of the plate heat exchanger 29 through a water outlet pipe of the water storage tank 25 and a primary side water supply pipe, takes away the heat of the secondary side of the system, finally returns to the evaporative refrigeration unit through a primary side water return pipe and a unit water inlet pipe 3, and is discharged to the outside through the evaporative refrigeration unit; the secondary side of the plate heat exchanger 29 is communicated with an air conditioner terminal 32 through a secondary side water supply pipe and a secondary side water return pipe, and takes away indoor heat through the air conditioner terminal 32. And a cold accumulation device is arranged on the secondary side water supply pipe, so that continuous cold supply after the system is powered off is ensured. The inlet of the primary side water pump is provided with a water supplementing system, a large water tank is arranged in the water supplementing system, the large water tank has a water storage function, and after the water supply system stops supplying water, the large water tank can ensure that water can be supplemented for the air conditioning system for a certain time; a ball float valve is arranged in the large water tank, and the large water tank supplies water through a system.
As shown in fig. 14, the water outlet pipe 9 is connected with the primary side inlet of the plate heat exchanger 29 through the primary water pump 27 and the water treatment device 28, the outlet pipe thereof is connected with the unit water inlet pipe 3, the secondary side outlet pipe of the plate heat exchanger 29 is connected with the water inlet of the air conditioner terminal 32 through the secondary water pump 30 and the cold storage device 31, the water outlet of the air conditioner terminal 32 is connected with the secondary side water inlet of the plate heat exchanger 29, the water storage device 7 is internally provided with a ball float valve, and the system water supplement is communicated with the water tank ball float valve. The large water tank is omitted, the large water tank is combined with the water storage device 7 of the heat preservation space 4, water supplemented by the air conditioning system is directly supplemented into the water storage device 7, the volume of the water storage device 7 is enlarged, and after the water supply system stops supplying water, the water in the water storage device 7 can guarantee certain operation time of the air conditioning system. The primary circulating water pump can also be arranged on the roof and can also be arranged in a dispersed way, and one water pump is correspondingly arranged on each water storage device 7.
As shown in fig. 15, the water outlet pipe 9 is connected to the primary inlet of the plate heat exchanger 29 through the primary water pump 27 and the water treatment device 28, the outlet pipe thereof is connected to the condenser inlet of the mechanical refrigerator unit 33, the outlet pipe thereof is connected to the unit water inlet pipe 3, the secondary outlet pipe of the plate heat exchanger 29 is connected to the evaporator inlet of the mechanical refrigerator unit 33, the chilled water outlet pipe thereof is connected to the inlet of the air conditioner terminal 32 through the secondary water pump 30 and the cold storage device 31, the outlet pipe thereof is connected to the secondary inlet of the plate heat exchanger 29 through the first switching valve 34, and is connected to the evaporator inlet of the mechanical refrigerator unit 33 through the second switching valve 35. A mechanical refrigeration unit 33 is added to the system. On the primary side of the system, the outlet water of the plate heat exchanger 29 is used as cooling water of the mechanical refrigerating unit 33 and then returns to the unit through a return pipe on the primary side of the system; on the secondary side of the system, the outlet water of the plate heat exchanger 29 is communicated with an evaporator of a mechanical refrigerating unit 33, a system switching first switching valve 34 and a second switching valve 35 are additionally arranged on the secondary side system, when the outlet water temperature of the evaporation refrigerating unit is high and the return water temperature of the system is high, the system switching first switching valve 34 is closed, and the second switching valve 35 is opened; when the outlet water temperature of the evaporation refrigerating unit is lower than the return water temperature of the system, the first switching valve 34 is opened, and the second switching valve 35 is closed.
As shown in fig. 16, the water storage device 7 located in the heat preservation space has a water outlet pipe 9 connected with a primary water pump 27, a water treatment device 28 and a primary side inlet of a plate heat exchanger 29 in sequence, an outlet pipe thereof connected with a unit water inlet pipe 3, a secondary side inlet pipe of the plate heat exchanger 29 connected with a cold storage device 31, an outlet pipe of the cold storage device 31 connected with an inlet of an air conditioner terminal 32 located at an air conditioning floor through a secondary water pump 30, and an outlet pipe thereof connected with a secondary side inlet of the plate heat exchanger 29. The plate heat exchanger 29, the water pump, the cold accumulation device 31 and other equipment are arranged in the heat preservation space 4 of the roof.
As shown in fig. 17, the cold storage device 31 is disposed in the heat exchange room, the secondary side outlet pipe of the plate heat exchanger 29 is connected to the water inlet of the air conditioner terminal 32 through the secondary water pump 30 and the cold storage device 31, and the outlet thereof is connected to the secondary side inlet of the plate heat exchanger 29. The cold storage device 31 is placed in the heat exchange room.
As shown in fig. 18, in the water storage device 7 located in the thermal insulation space, the water outlet pipe 9 of the water storage device is connected with the primary side inlet of the plate heat exchanger 29 through the primary water pump 27 and the water treatment device 28, the primary side outlet pipe thereof is connected with the condenser inlet of the mechanical refrigerating unit 33, the outlet pipe thereof is connected with the unit water inlet pipe 3, the secondary side outlet pipe of the plate heat exchanger 29 is connected with the evaporator inlet of the mechanical refrigerating unit 33, the outlet pipe of the evaporator is connected with the cold storage device 31, the outlet pipe thereof is connected with the inlet of the air conditioner terminal 32 through the secondary water pump 30, the outlet pipe thereof is connected with the secondary side inlet of the plate heat exchanger 29 through the first switching valve 34, and is connected with the evaporator inlet of the mechanical refrigerating unit 33 through the second switching valve 35. The system plate heat exchanger 29, the water pump, the cold accumulation device 31, the mechanical refrigerating unit 33 and other equipment are arranged in the roof heat preservation space 4.
As shown in fig. 19, the primary side water return pipe of the plate heat exchanger 29 is connected to the unit water inlet pipe 3, the unit water inlet pipe 3 is connected to the inlet of the condenser of the mechanical refrigerator unit 33 through the surface air cooler 15, the water outlet pipe of the condenser of the mechanical refrigerator unit 33 and the water outlet pipe of the surface air cooler 15 are both provided with a water drain pipe communicated with the water storage device 7, the water drain pipe is provided with a water drain valve 12, and the water outlet pipe of the condenser of the mechanical refrigerator unit 33 is connected to the spray device of the evaporative cooling water supply device 1. The water in the water storage device 7 is supplied to the primary side of the plate heat exchanger 29 through a water outlet pipe of the water storage device 7 and a water supply pipe of the primary side system, the heat of the system is taken away, the water passing through the primary side of the plate heat exchanger 29 enters the unit surface cooler 15 through a water return pipe of the primary side system and a unit water inlet pipe 3, the water passing through the unit surface cooler 15 enters a condenser of the mechanical refrigerating unit 33 through a water outlet pipe of the surface cooler 15, the heat of the mechanical refrigerating unit 33 is taken away, and finally the water returns to the unit through a mechanical refrigerating cooling water outlet pipe to be sprayed to form circulation. And a long-flow water pipe and a long-flow water valve are additionally arranged on a water outlet pipe of the surface air cooler 15 and a mechanical refrigeration cooling water outlet pipe, so that water in a water pipe outside the heat preservation space 4 can be discharged into the water storage device 7 after the unit stops running. And electric auxiliary heat is added at the water pipe before passing through the insulated space 4.
As shown in fig. 20, the mechanical refrigerator unit 33 is disposed outside the thermal insulation space, a communication pipe is disposed between the water storage device 7 and the cold storage device 31, a communication valve is disposed on the communication pipe, a drain pipe is disposed on an evaporator water inlet pipe of the mechanical refrigerator unit 33, the drain pipe is communicated with the cold storage device 31, a valve is disposed on the drain pipe, and electric auxiliary heat is disposed on an evaporator water inlet and outlet pipe of the mechanical refrigerator unit 33 passing through the equipment platform. The mechanical refrigerating unit 33 is arranged outside the heat preservation space 4 and is combined with the evaporation refrigerating device; the evaporation refrigerating device produces cold water and falls into the water receiving tray 10, the water of the water receiving tray 10 flows to the water storage device 7 through the unit water outlet pipe, the water in the water storage device 7 is supplied to the plate heat exchanger 29 through the water outlet pipe 9 of the water storage device 7 and the system primary side water supply pipe, after system heat is taken away, the primary side water outlet of the plate heat exchanger 29 firstly passes through the surface air cooler 15 through the primary side water return pipe and the unit water inlet pipe 3, then passes through the condenser of the mechanical refrigerating unit 33, takes away the heat of the mechanical refrigerating unit 33, and finally returns to the evaporation refrigerating unit to form circulation. The backwater at the air conditioner tail end 32 is communicated with an inlet at the secondary side of the plate type heat exchanger 29 and an evaporator of the mechanical refrigerating unit 33 through a pipeline, an outlet at the secondary side of the plate type heat exchanger 29 is communicated with the evaporator of the mechanical refrigerating unit 33, a cold accumulation device is arranged at an outlet of a water outlet pipe of the mechanical refrigerating evaporator, and the water in the cold accumulation device is supplied to the air conditioner tail end 32 through a secondary water pump 30 and a secondary side water supply pipe. When the temperature of cold water prepared by the evaporative refrigeration device is lower than the return water temperature of the secondary system, the system is opened to switch the first switching valve 34, the system second switching valve 35 is closed, the primary side water supply firstly exchanges heat with the return water of the secondary side of the plate heat exchanger 29, the secondary side cold water after heat exchange enters the evaporator of the mechanical refrigeration unit 33, if the temperature of the secondary side water after heat exchange meets the system requirement, the mechanical refrigeration unit 33 does not need to be opened, and if the temperature of the secondary side cold water after heat exchange is higher than the system water supply requirement, the mechanical refrigeration unit 33 is opened to perform supplementary refrigeration and finally is supplied to the air conditioner tail end 32. When the temperature of the cold water produced by the evaporation refrigerating device is higher than the return water temperature of the system, the system is closed to switch the first switching valve 34, the system second switching valve 35 is opened, and the secondary side system return water directly returns to the evaporator of the mechanical refrigerating unit 33 and is supplied to the tail end 32 of the air conditioner after mechanical refrigeration. The long running water pipe and the water valve on the freezing side are added on the mechanical refrigeration water inlet pipe in the system, when the unit stops running, the system is closed to switch the first switching valve 34 and the second switching valve 35, and water in the mechanical refrigeration unit 33 and in the water pipe outside the heat preservation space is discharged into the cold storage device. And the mechanical refrigeration water inlet and outlet pipe of the traditional heat preservation space 4 is provided with electric auxiliary heat. A communication water pipe is additionally arranged between the cold accumulation device 31 and the water storage device 7, and a communication valve is additionally arranged on the communication water pipe; when the system stops water supply and the water in the water storage device 7 is consumed, the communicating water valve can be opened to supply the water in the cold accumulation device 31 to the water storage device 7 to replenish the primary side system, and the water in the water storage tank 25 cannot flow into the cold accumulation device 31.
As shown in fig. 21, the mechanical refrigeration unit is a water source heat pump 37, a water outlet of the air conditioner terminal 32 is communicated with a secondary side water inlet of the plate heat exchanger 29 through a secondary water pump 30 and a first switching valve 34, and a water outlet of the air conditioner terminal 32 is communicated with an evaporator inlet of the water source heat pump 37 through the secondary water pump 30, a second switching valve 35 and a third switching valve 38; a secondary side water outlet of the plate heat exchanger 29 is communicated with an inlet of the cold accumulation device 31 through a fourth switching valve 39, and meanwhile, a secondary side water outlet of the plate heat exchanger 29 is communicated with an inlet of an evaporator of a water source heat pump 37 through a third switching valve 38; the evaporator outlet is communicated with the inlet of the cold accumulation device 31 through a seventh switching valve 42; the hot water return pipe is communicated with the inlet of the evaporator of the water source heat pump 37 through a fifth switching valve 40, and the hot water supply pipe is communicated with the outlet of the evaporator of the water source heat pump 37 through a sixth switching valve 41. The mechanical refrigerating unit 33 is a heat pump unit which can refrigerate in summer and heat in winter; a third switching valve 38, a fourth switching valve 39, a fifth switching valve 40, a sixth switching valve 41 and a seventh switching valve 42 are additionally arranged in the system; when the water source heat pump is used for refrigerating, the fourth switching valve 39, the fifth switching valve 40 and the sixth switching valve 41 are closed, the return water on the secondary side is precooled by the plate heat exchanger 29, enters the water source heat pump 37 and enters the cold accumulation device 31 after being precooled, and is supplied to the air conditioner tail end 32; or the secondary side system return water directly enters the water source heat pump 37 for refrigeration, and the cooled cold water enters the cold accumulation device 31 and is supplied to the air conditioner tail end 32. When the water source heat pump supplies heat, the third switching valve 38 and the seventh switching valve 42 are closed, and the rest valves are opened. Cold water produced by the evaporative cooling device exchanges heat with return water of a secondary side system through the plate heat exchanger 29, the temperature is increased after heat exchange, the cold water is supplied to a heat pump to take away the cold energy of the heat pump and returns to the evaporative cooling device, and the evaporative cooling device adjusts the air exhaust amount according to the temperature of the return water to ensure that the temperature of the supplied water is not too low; the hot water produced by the heat pump can be supplied to the heat preservation space 4 for heating and can also be supplied to other areas for heating.
As shown in fig. 22, a water source heat pump 37 is additionally arranged in the heat preservation space, and a water inlet pipe and a water outlet pipe of a heat pump water source of the water source heat pump 37 are respectively connected with a plate exchange primary side water outlet of the plate heat exchanger 29 and the unit water inlet pipe 3. A water source heat pump 37 is added in the heat preservation space 4, the water source of the water source heat pump 37 is provided by an evaporation refrigerating device, the water source heat pump 37 unit refrigerates in summer, and the prepared cold water can be provided for the tail end 32 of the air conditioner of the machine room and can also be provided for the office area refrigeration of maintenance personnel; the water source heat pump can heat in winter, and the prepared hot water can be provided for the heat preservation space 4 for heating and can also be provided for other areas for heating; the heat pump water source inlet pipe is communicated with the outlet pipe on the primary side of the plate heat exchanger 29, the heat pump water source outlet pipe is communicated with the inlet pipe 3 of the evaporative cooling unit, and part of cold water on the primary side of the plate heat exchanger 29 is used as a water source of the water source heat pump.
As shown in fig. 23, the uniformly distributed freeze-proof air conditioners form a unit group, and the water storage devices 7 are communicated with each other through the balance pipes 43. The water storage devices 7 are communicated through a balance pipe 43, so that the balance of the water system is ensured.
As shown in fig. 24, the uniformly distributed cold-proof air conditioners form a unit group, part of the water pipelines of the unit group are not in the heat-insulating space, and the electric heat tracing device 20 is arranged on the water pipeline outside the heat-insulating space. Part of the water pipelines are not in the heat preservation space 4, and the electric tracing 20 is required to be considered for assisting the pipelines outside the heat preservation space, so that the pipelines are prevented from being frozen.
The pipeline in the evaporation refrigeration water supply device 1 can not be arranged in the heat preservation space 4, and an electric tracing device is required to be arranged.
The cold storage device 31 placed in the heat-insulating space 4 may be an open cold storage water tank.
Claims (28)
1. The utility model provides a data center type indirect evaporative cooling air conditioning equipment that prevents frostbite and system which characterized by: the water storage device is characterized by comprising an evaporation refrigeration water supply device (1), a heat preservation space (4) and a water storage device (7), wherein the heat preservation space (4) is composed of an upper heat preservation surface (5), a lower heat preservation surface (8) and a side heat preservation surface (6), the evaporation refrigeration water supply device (1) is placed on the upper heat preservation surface (5), the water storage device (7) is arranged in the heat preservation space (4), the evaporation refrigeration water supply device (1) is communicated with the water storage device (7) through a communicating pipe (2), the water storage device (7) is provided with a water outlet pipe (9), cold water prepared by the evaporation refrigeration water supply device (1) flows to the water storage device (7) through the communicating pipe (2), water in the water storage device (7) is supplied to a user through the water outlet pipe (9), and returns to a unit through a unit water inlet pipe (3).
2. The data center antifreeze type indirect evaporative cooling air conditioning apparatus and system of claim 1, wherein: the water receiving tray (10) is arranged at the bottom of the evaporation refrigeration water supply device (1), the heat preservation space (4) is composed of an upper heat preservation surface (5), a lower heat preservation surface (8) and four walls of a side heat preservation surface (6), the evaporation refrigeration water supply device (1) is arranged on the upper heat preservation surface (5) of the heat preservation space, a communication pipe (2) arranged at the bottom of the water receiving tray (10) is connected with a water storage device (7) located in the heat preservation space (4), the water storage device (7) is provided with a water outlet pipe (9), a unit water inlet pipe (3) located in the heat preservation space (4) is communicated with a unit spraying device through a unit water inlet valve (11) and a pipeline which are arranged in sequence, a drain pipe (47) is arranged at the rear section of the unit water inlet valve (11), and the drain pipe (47) is communicated with the water storage device (7).
3. The data center antifreeze type indirect evaporative cooling air conditioning apparatus and system of claim 2, wherein: a drain valve (12) can be added to the drain pipe (47).
4. The data center antifreeze type indirect evaporative cooling air conditioning apparatus and system of claim 2, wherein: a heating device (13) is arranged in the heat-preserving space (4).
5. The data center antifreeze type indirect evaporative cooling air conditioning apparatus and system of claim 3, wherein: a water seal pipe (14) is arranged on a communicating pipe (2) of the evaporation refrigeration water supply device (1), the lower heat-insulating surface (8) is a roof or the ground, and the upper heat-insulating surface (5) is a unit foundation platform.
6. The data center antifreeze type indirect evaporative cooling air conditioning apparatus and system of claim 4, wherein: the water inlet pipe (3) of the unit is connected with a surface air cooler (15), and the surface air cooler (15) is arranged on an air inlet of the evaporative refrigeration water supply device (1).
7. The data center antifreeze type indirect evaporative cooling air conditioning apparatus and system of claim 5, wherein: the surface air cooler (15) connected with the unit water inlet pipe (3) is an anti-freezing surface air cooler, and a surface air cooler water drain pipe (36) is arranged on the anti-freezing surface air cooler.
8. The data center antifreeze type indirect evaporative cooling air conditioning apparatus and system of claim 6, wherein: the surface air cooler (15) is an anti-freezing surface air cooler, and uniformly distributed heat exchange pipelines are arranged in the anti-freezing surface air cooler and incline downwards to the direction of a water drain pipe of the surface air cooler.
9. The data center antifreeze type indirect evaporative cooling air conditioning apparatus and system of claim 6, wherein: the surface air coolers (15) are connected in parallel on the unit water inlet pipe (3), the surface air coolers (15) are divided into two parts, and the unit water inlet pipe (3) is respectively connected with inlets of the two surface air coolers.
10. The data center antifreeze type indirect evaporative cooling air conditioning apparatus and system of claim 6, wherein: the evaporative cooling water supply device (1) is provided with two air inlets which are a first air inlet (16) and a second air inlet (17), wherein the first air inlet (16) or the second air inlet (17) is provided with a surface air cooler (15).
11. The data center antifreeze type indirect evaporative cooling air conditioning apparatus and system of claim 9, wherein: a bypass water pipe is arranged on the unit water inlet pipe (3) which is positioned behind the unit water inlet valve (11) and in front of the surface air cooler (15) water inlet pipe, and the bypass water pipe is connected with a spraying device of the evaporative refrigeration water supply device (1) through a bypass water valve (18).
12. The data center antifreeze indirect evaporative cooling air conditioning apparatus and system of claim 10, wherein: the upper heat preservation surface of the heat preservation space is structurally characterized in that a platform heat preservation layer (19) is arranged below a unit foundation platform, a platform support column (22) arranged in the heat preservation space supports the unit foundation platform, a unit water inlet pipe (3), a communication pipe (2) and a bypass pipe of the evaporation refrigeration water supply device (1) are provided with an electric heat tracing device (20) before penetrating out of the heat preservation space, a floor drain (21) is arranged at the lower part of the ground of the heat preservation space, a water tank platform (23) is arranged through the platform support column (22), a water storage device (7) is arranged on the water tank platform (23), a water tank top cover (24) is arranged at the top of the water storage device (7), a drain pipe arranged at the bottom surface of the water storage device (7) is connected with the floor drain (21), a drain valve (44) is arranged on the drain pipe, a bypass drain pipe is arranged behind a bypass water valve (18), and is communicated with the water storage device (7), a bypass water drain valve is arranged on the bypass water drain pipe.
13. The data center antifreeze indirect evaporative cooling air conditioning apparatus and system of claim 11, wherein: the water storage device (7) is provided with a water tank water treatment device (46), the water tank water treatment device (46) is communicated with the water storage device (7) through a water pipe, the water storage device (7) is provided with an overflow pipe (45), and the outlet of the overflow pipe (45) is connected with a floor drain (21).
14. The data center antifreeze type indirect evaporative cooling air conditioning apparatus and system as claimed in claim 1, 2, 3, 4, 5, 6, 7, 8, 9, 10, 11 or 12, wherein: the evaporation refrigeration water supply device (1) is an indirect evaporation water chilling unit.
15. The data center antifreeze indirect evaporative cooling air conditioning apparatus and system of claim 11, wherein: the lower heat-preservation surface is a roof, an air-conditioning floor is arranged below the roof floor, a primary water pump (27) is arranged in a heat exchange station or a heat-preservation space (4) which is arranged below the air-conditioning floor, the inlet of the primary water pump (27) is communicated with a water outlet pipe (9) through a pipeline, the water outlet of the primary water pump (27) is communicated with a primary side water inlet of a plate heat exchanger (29) through a water treatment device (28), the primary side water outlet of the plate heat exchanger (29) is communicated with a unit water inlet pipe (3) through a pipeline, a water storage tank (25) is arranged on the heat exchange station or outdoors, the water storage tank (25) is communicated with the inlet of the primary water pump (27) through a water supplementing pump (26), and a water supplementing pipe of the water storage tank (25) is communicated with a water supplementing system; the secondary side outlet pipe of the plate heat exchanger (29) is connected with the water inlet of the air conditioner tail end (32) through a secondary water pump (30) and a cold accumulation device (31), and the outlet pipe of the plate heat exchanger is connected with the secondary side inlet of the plate heat exchanger (29).
16. The data center antifreeze indirect evaporative cooling air conditioning apparatus and system of claim 11, wherein: the water outlet pipe (9) is connected with a primary side inlet of the plate heat exchanger (29) through the primary water pump (27) and the water treatment equipment (28), an outlet pipe of the primary side inlet is connected with the unit water inlet pipe (3), a secondary side outlet pipe of the plate heat exchanger (29) is connected with a water inlet of an air conditioner terminal (32) through the secondary water pump (30) and the cold accumulation device (31), a water outlet of the air conditioner terminal (32) is connected with a secondary side water inlet of the plate heat exchanger (29), a ball float valve is arranged in the water storage device (7), and system water replenishing is communicated with the ball float valve of the water tank.
17. The data center antifreeze indirect evaporative cooling air conditioning apparatus and system of claim 11, wherein: the water outlet pipe (9) is connected with a primary side inlet of the plate heat exchanger (29) through a primary water pump (27) and a water treatment device (28), an outlet pipe of the water outlet pipe is connected with a condenser inlet of the mechanical refrigerating unit (33), an outlet pipe of the condenser is connected with a unit water inlet pipe (3), a secondary side outlet pipe of the plate heat exchanger (29) is connected with an evaporator inlet of the mechanical refrigerating unit (33), a chilled water outlet pipe of the water outlet pipe is connected with an inlet of an air conditioner tail end (32) through a secondary water pump (30) and a cold storage device (31), an outlet pipe of the chilled water outlet pipe is connected with a secondary side inlet of the plate heat exchanger (29) through a first switching valve (34), and is connected with an evaporator inlet of the mechanical refrigerating unit (33) through a second switching valve (35).
18. The data center antifreeze indirect evaporative cooling air conditioning apparatus and system of claim 11, wherein: the water storage device (7) is positioned in the heat preservation space, a water outlet pipe (9) of the water storage device is sequentially connected with a primary water pump (27), a water treatment device (28) and a primary side inlet of a plate type heat exchanger (29), an outlet pipe of the water storage device is connected with a unit water inlet pipe (3), a secondary side inlet pipe of the plate type heat exchanger (29) is connected with a cold accumulation device (31), an outlet pipe of the cold accumulation device (31) is connected with an inlet of an air conditioner terminal (32) positioned on an air conditioner floor through a secondary water pump (30), and an outlet pipe of the cold accumulation device is connected with a secondary side inlet of the plate type heat exchanger (29).
19. The data center antifreeze indirect evaporative cooling air conditioning apparatus and system of claim 17, wherein: the cold accumulation device (31) is arranged in the heat exchange room, the secondary side outlet pipe of the plate type heat exchanger (29) is connected with the water inlet of the air conditioner tail end (32) through the secondary water pump (30) and the cold accumulation device (31), and the outlet of the secondary side outlet pipe is connected with the secondary side inlet of the plate type heat exchanger (29).
20. The data center antifreeze indirect evaporative cooling air conditioning apparatus and system of claim 11, wherein: the water storage device (7) is positioned in the heat preservation space, a water outlet pipe of a water tank of the water storage device is connected with a primary side inlet of a plate type heat exchanger (29) through a primary water pump (27) and a water treatment device (28), a primary side outlet pipe of the water storage device is connected with a condenser inlet of a mechanical refrigerating unit (33), an outlet pipe of the primary side is connected with a unit water inlet pipe (3), a secondary side outlet pipe of the plate type heat exchanger (29) is connected with an evaporator inlet of the mechanical refrigerating unit (33), an evaporator outlet pipe of the evaporator is connected with a cold storage device (31), an outlet pipe of the evaporator is connected with an inlet of an air conditioner terminal (32) through a secondary water pump (30), and an outlet pipe of the evaporator is connected with a secondary side inlet of the plate type heat exchanger (29) through a first switching valve (34) and is connected with an evaporator inlet of the mechanical refrigerating unit (33) through a second switching valve (35).
21. The data center antifreeze indirect evaporative cooling air conditioning apparatus and system of claim 19, wherein: a primary side water return pipe of the plate heat exchanger (29) is connected with a unit water inlet pipe (3), the unit water inlet pipe (3) is connected with an inlet of a condenser of a mechanical refrigerating unit (33) through a surface air cooler (15), a water outlet pipe of the condenser of the mechanical refrigerating unit (33) and a water outlet pipe of the surface air cooler (15) are respectively provided with a water drain pipe communicated with a water storage device (7), and a water drain valve (12) is arranged on the water drain pipe, and a water outlet pipe of the condenser of the mechanical refrigerating unit (33) is connected with a spraying device of the evaporative refrigeration water supply device (1).
22. The data center antifreeze indirect evaporative cooling air conditioning apparatus and system of claim 20, wherein: the mechanical refrigerating unit (33) is arranged outside the heat preservation space, a communicating pipe is arranged between the water storage device (7) and the cold accumulation device (31), a communicating valve is arranged on the communicating pipe, a drain pipe is arranged on an evaporator water inlet pipe of the mechanical refrigerating unit (33), the drain pipe is communicated with the cold accumulation device (31), a valve is arranged on the drain pipe, and electric auxiliary heat is arranged on an evaporator water inlet and outlet pipe of the mechanical refrigerating unit (33) which passes through the front of the equipment platform.
23. The data center antifreeze indirect evaporative cooling air conditioning apparatus and system of claim 11, wherein: the mechanical refrigerating unit is a water source heat pump (37), a water outlet of an air conditioner tail end (32) is communicated with a secondary side water inlet of the plate type heat exchanger (29) through a secondary water pump (30) and a first switching valve (34), and meanwhile, a water outlet of the air conditioner tail end (32) is communicated with an evaporator inlet of the water source heat pump (37) through the secondary water pump (30), a second switching valve (35) and a third switching valve (38); a secondary side water outlet of the plate type heat exchanger (29) is communicated with an inlet of the cold accumulation device (31) through a fourth switching valve (39), and meanwhile, a secondary side water outlet of the plate type heat exchanger (29) is communicated with an inlet of an evaporator of the water source heat pump (37) through a third switching valve (38); the outlet of the evaporator is communicated with the inlet of the cold accumulation device (31) through a seventh switching valve (42); the hot water return pipe is communicated with the inlet of the evaporator of the water source heat pump (37) through a fifth switching valve (40), and the hot water supply pipe is communicated with the outlet of the evaporator of the water source heat pump (37) through a sixth switching valve (41).
24. The data center antifreeze indirect evaporative cooling air conditioning apparatus and system of claim 19, wherein: a water source heat pump (37) is additionally arranged in the heat preservation space, and a water inlet pipe and a water outlet pipe of a heat pump water source of the water source heat pump (37) are respectively connected with a plate heat exchanger (29) plate exchange primary side water outlet and a unit water inlet pipe (3).
25. The data center antifreeze indirect evaporative cooling air conditioning apparatus and system of claim 11, wherein: the uniformly distributed anti-freezing air conditioning devices form a unit group, and the water storage devices (7) are communicated through a balance pipe (43).
26. The data center antifreeze indirect evaporative cooling air conditioning apparatus and system of claim 24, wherein: the uniformly distributed cold-proof air-conditioning devices form a machine group, part of water pipelines of the machine group are not in the heat-insulating space, and the water pipelines outside the heat-insulating space are provided with electric tracing devices.
27. The data center antifreeze type indirect evaporative cooling air conditioning apparatus and system as claimed in claim 1, 2, 3, 4, 5, 6, 7, 8, 9, 10, 11 or 12, wherein: the pipeline in the evaporation refrigeration water supply device (1) can not be arranged in the heat preservation space, and an electric tracing device is required to be arranged.
28. The data center antifreeze type indirect evaporative cooling air conditioning apparatus and system as claimed in claim 15, 16, 17, 18, 19, 20, 21 or 22 wherein: the cold accumulation device (31) arranged in the heat preservation space (4) can be an open cold accumulation water tank.
Priority Applications (1)
| Application Number | Priority Date | Filing Date | Title |
|---|---|---|---|
| CN202022210397.0U CN214536593U (en) | 2020-09-30 | 2020-09-30 | Anti-freezing type indirect evaporative cooling air conditioning device and system for data center |
Applications Claiming Priority (1)
| Application Number | Priority Date | Filing Date | Title |
|---|---|---|---|
| CN202022210397.0U CN214536593U (en) | 2020-09-30 | 2020-09-30 | Anti-freezing type indirect evaporative cooling air conditioning device and system for data center |
Publications (1)
| Publication Number | Publication Date |
|---|---|
| CN214536593U true CN214536593U (en) | 2021-10-29 |
Family
ID=78230103
Family Applications (1)
| Application Number | Title | Priority Date | Filing Date |
|---|---|---|---|
| CN202022210397.0U Active CN214536593U (en) | 2020-09-30 | 2020-09-30 | Anti-freezing type indirect evaporative cooling air conditioning device and system for data center |
Country Status (1)
| Country | Link |
|---|---|
| CN (1) | CN214536593U (en) |
Cited By (1)
| Publication number | Priority date | Publication date | Assignee | Title |
|---|---|---|---|---|
| CN113007823A (en) * | 2020-09-30 | 2021-06-22 | 新疆绿色使者空气环境技术有限公司 | Anti-freezing type indirect evaporative cooling air conditioning device and system for data center |
-
2020
- 2020-09-30 CN CN202022210397.0U patent/CN214536593U/en active Active
Cited By (2)
| Publication number | Priority date | Publication date | Assignee | Title |
|---|---|---|---|---|
| CN113007823A (en) * | 2020-09-30 | 2021-06-22 | 新疆绿色使者空气环境技术有限公司 | Anti-freezing type indirect evaporative cooling air conditioning device and system for data center |
| CN113007823B (en) * | 2020-09-30 | 2025-08-01 | 新疆绿色使者空气环境技术有限公司 | Data center anti-freezing type indirect evaporative cooling air conditioning system |
Similar Documents
| Publication | Publication Date | Title |
|---|---|---|
| CN108105898B (en) | Adiabatic closed cooling system for data center and cooling method thereof | |
| WO2021228096A1 (en) | Automatic spraying water-curtain evaporative cooling heat exchanger, and heat pump module unit | |
| CN109163576B (en) | Anti-freezing energy-saving heat pipe cooling system and control method thereof | |
| CN110186130A (en) | Data center closed cooling tower natural cooling and mechanical refrigeration combined air conditioning system | |
| CN104791925A (en) | Energy-saving type open cold supply system for cooling tower | |
| CN107062472A (en) | Double cold source refrigerating systems that natural cooling unit is combined with centrifugal water chillers | |
| CN217584935U (en) | Refrigerating device and cooling system | |
| CN206905581U (en) | Data center's energy-saving multifunctional cooling tower | |
| CN102261706A (en) | Natural cold source multi-temperature-level cold accumulation system based on heat pipe | |
| CN201368551Y (en) | Air conditioner for combining ground source heat pump and ice-storage system | |
| CN206572676U (en) | Double cold source refrigerating systems that natural cooling unit is combined with centrifugal water chillers | |
| CN214536593U (en) | Anti-freezing type indirect evaporative cooling air conditioning device and system for data center | |
| CN115388578B (en) | Heat source tower heat pump and water energy storage coupled cooling and heating system and method | |
| CN100476311C (en) | Temperature and humidity independent control air conditioning system | |
| CN110822599A (en) | Refrigeration system and refrigeration method for season-shift utilization of natural cold source | |
| CN110822598A (en) | A refrigeration system and refrigeration method based on cross-season cold storage | |
| CN113007823B (en) | Data center anti-freezing type indirect evaporative cooling air conditioning system | |
| CN201852397U (en) | Improved heat-exchange device of evaporating cold and defrosting water | |
| CN104566726A (en) | A new high-efficiency static ice-making indirect ice-melting cooling air-conditioning system for households | |
| CN219976602U (en) | Water-cooling multi-connected air conditioning system for subway station | |
| CN209763383U (en) | Data center air conditioning system based on combination of natural cooling and mechanical refrigeration | |
| CN214370660U (en) | Counter-flow external cooling type indirect evaporative cooling air conditioner | |
| CN205316561U (en) | Modularization natural cooling unit of container formula | |
| CN105571028B (en) | A kind of modularization natural cooling unit of container-type | |
| CN210568960U (en) | Anti-freezing machine room air conditioning device with efficient heat exchange at user side |
Legal Events
| Date | Code | Title | Description |
|---|---|---|---|
| GR01 | Patent grant | ||
| GR01 | Patent grant |