CN211946621U - Sewage quality purification device - Google Patents
Sewage quality purification device Download PDFInfo
- Publication number
- CN211946621U CN211946621U CN201922391961.0U CN201922391961U CN211946621U CN 211946621 U CN211946621 U CN 211946621U CN 201922391961 U CN201922391961 U CN 201922391961U CN 211946621 U CN211946621 U CN 211946621U
- Authority
- CN
- China
- Prior art keywords
- sewage
- stirring
- box
- water
- water purification
- Prior art date
- Legal status (The legal status is an assumption and is not a legal conclusion. Google has not performed a legal analysis and makes no representation as to the accuracy of the status listed.)
- Expired - Fee Related
Links
Images
Landscapes
- Water Treatment By Sorption (AREA)
Abstract
本实用新型公开了一种污水水质净化装置,包括底板,底板的顶部左侧安装有污水搅拌箱,污水搅拌箱的顶部左侧连接有进水管,污水搅拌箱的顶部中心处安装有电机箱,电机箱的内腔安装有搅拌电机,搅拌电机的顶部安装有主动齿轮,污水搅拌箱的顶部中心转动连接有搅拌杆,搅拌杆的顶部安装有从动齿轮,搅拌杆的外壁安装有搅拌叶片,且搅拌叶片位于污水搅拌箱的内腔,污水搅拌箱的右侧壁下端连接有出水管,底板的顶部右侧安装有水质净化箱,水质净化箱的顶部安装有抽水泵,抽水泵与污水搅拌箱之间连接有抽水管,且抽水管的左侧抽水处与污水搅拌箱的右侧壁上端相连通。本实用新型能解决了污水处理设备的建设费用高,设备投资大,运行成本高的问题。
The utility model discloses a sewage water quality purification device, comprising a bottom plate, a sewage stirring box is installed on the left side of the top of the bottom plate, a water inlet pipe is connected to the top left side of the sewage stirring box, and a motor box is installed at the center of the top of the sewage stirring box. A stirring motor is installed in the inner cavity of the motor box, a driving gear is installed on the top of the stirring motor, a stirring rod is rotatably connected to the top center of the sewage mixing tank, a driven gear is installed on the top of the stirring rod, and a stirring blade is installed on the outer wall of the stirring rod. And the stirring blade is located in the inner cavity of the sewage mixing tank, the lower end of the right side wall of the sewage mixing tank is connected with a water outlet pipe, a water purification box is installed on the right side of the top of the bottom plate, and a water pump is installed on the top of the water purification box, and the water pump is mixed with sewage. A water pumping pipe is connected between the tanks, and the water pumping part on the left side of the water pumping pipe is communicated with the upper end of the right side wall of the sewage mixing tank. The utility model can solve the problems of high construction cost of sewage treatment equipment, large equipment investment and high operation cost.
Description
技术领域technical field
本实用新型涉及污水净化技术领域,具体为一种污水水质净化装置。The utility model relates to the technical field of sewage purification, in particular to a sewage water quality purification device.
背景技术Background technique
污水处理:为使污水达到排入某一水体或再次使用的水质要求对其进行净化的过程。污水处理被广泛应用于建筑、农业、交通、能源、石化、环保、城市景观、医疗、餐饮等各个领域,也越来越多地走进寻常百姓的日常生活。Sewage treatment: The process of purifying sewage in order to make it meet the water quality requirements for discharge into a body of water or for reuse. Sewage treatment is widely used in construction, agriculture, transportation, energy, petrochemical, environmental protection, urban landscape, medical treatment, catering and other fields, and is increasingly entering the daily life of ordinary people.
对于工用和民用污水的处理,传统的污水处理是将排出的污水通过沉淀池、平流池、过滤装置、浓缩池、泥水分离装置等来完成污水处理的全过程,但这种工艺设备的话占地面积大,建设费用高,设备投资大,运行成本高,对于一般的中小企业很难采用该方法进行排污处理。为此,我们设计了一种污水水质净化装置。For the treatment of industrial and civil sewage, the traditional sewage treatment is to pass the discharged sewage through sedimentation tanks, advection tanks, filter devices, concentration tanks, mud-water separation devices, etc. to complete the whole process of sewage treatment. The land area is large, the construction cost is high, the equipment investment is large, and the operation cost is high. It is difficult for ordinary small and medium-sized enterprises to use this method for sewage treatment. To this end, we designed a sewage water purification device.
实用新型内容Utility model content
针对现有技术的不足,本实用新型提供了一种污水水质净化装置,解决了污水处理设备的建设费用高,设备投资大,运行成本高的问题。Aiming at the deficiencies of the prior art, the utility model provides a sewage water quality purification device, which solves the problems of high construction cost, large equipment investment and high operation cost of sewage treatment equipment.
为了达到上述目的,本发明所采用的技术方案是:In order to achieve the above object, the technical scheme adopted in the present invention is:
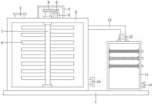
一种污水水质净化装置,包括底板,所述底板的顶部左侧安装有污水搅拌箱,所述污水搅拌箱的顶部左侧连接有进水管,所述污水搅拌箱的顶部中心处安装有电机箱,所述电机箱的内腔安装有搅拌电机,所述搅拌电机的顶部安装有主动齿轮,所述污水搅拌箱的顶部中心转动连接有搅拌杆,且搅拌杆的顶部伸入到电机箱的内腔,所述搅拌杆的顶部安装有从动齿轮,且从动齿轮与主动齿轮啮合连接,所述搅拌杆的外壁安装有搅拌叶片,且搅拌叶片位于污水搅拌箱的内腔,所述污水搅拌箱的右侧壁下端连接有出水管,所述底板的顶部右侧安装有水质净化箱,所述水质净化箱的顶部安装有抽水泵,所述抽水泵与污水搅拌箱之间连接有抽水管,且抽水管的左侧抽水处与污水搅拌箱的右侧壁上端相连通。A sewage water quality purification device, comprising a bottom plate, a sewage mixing box is installed on the top left side of the bottom plate, a water inlet pipe is connected to the top left side of the sewage mixing box, and a motor box is installed at the top center of the sewage mixing box , a stirring motor is installed in the inner cavity of the motor box, a driving gear is installed on the top of the stirring motor, a stirring rod is rotatably connected to the top center of the sewage stirring box, and the top of the stirring rod extends into the motor box. A driven gear is installed on the top of the stirring rod, and the driven gear is meshed with the driving gear. The outer wall of the stirring rod is equipped with a stirring blade, and the stirring blade is located in the inner cavity of the sewage mixing box. A water outlet pipe is connected to the lower end of the right side wall of the box, a water purification box is installed on the right side of the top of the bottom plate, a suction pump is installed on the top of the water purification box, and a suction pipe is connected between the suction pump and the sewage mixing tank , and the left side of the water pipe is connected with the upper end of the right side wall of the sewage mixing tank.
前述的一种污水水质净化装置,所述水质净化箱的内腔上端左右两侧对称安装有插接固定块,所述水质净化箱的内腔从上到下依次插接有第一过滤网、第二过滤网和活性炭过滤吸附装置,且第一过滤网、第二过滤网和活性炭过滤吸附装置均插接在插接固定块之间,所述第一过滤网、第二过滤网和活性炭过滤吸附装置的右侧均安装有拉手。In the above-mentioned sewage water quality purification device, the upper end of the inner cavity of the water quality purification box is symmetrically installed with plug-in fixing blocks on the left and right sides, and the inner cavity of the water quality purification box is sequentially inserted into the first filter screen, The second filter screen and the activated carbon filter adsorption device, and the first filter screen, the second filter screen and the activated carbon filter adsorption device are all inserted between the plug-in fixing blocks, the first filter screen, the second filter screen and the activated carbon filter Handles are installed on the right side of the adsorption device.
前述的一种污水水质净化装置,所述第一过滤网的过滤孔径为0.5-1mm,所述第二过滤网的过滤孔径为0.02-0.1mm,通过不同孔径的过滤网使得污水的过滤效果更好,将大颗粒的物体过滤掉。In the above-mentioned sewage water quality purification device, the filtration aperture of the first filter screen is 0.5-1mm, and the filter aperture of the second filter screen is 0.02-0.1mm. Well, large particle objects are filtered out.
前述的一种污水水质净化装置,所述拉手与水质净化箱的连接处设置有密封条。In the aforesaid sewage water purification device, a sealing strip is provided at the connection between the handle and the water purification box.
前述的一种污水水质净化装置,所述搅拌叶片设置有多个,且多个搅拌叶片沿搅拌杆的侧壁呈阵列状设置,通过搅拌将固体物和污水中的大颗粒物破碎并沉积,便于下一步的污水净化。In the above-mentioned sewage water purification device, there are a plurality of the stirring blades, and the plurality of stirring blades are arranged in an array along the side wall of the stirring rod. The next step of sewage purification.
前述的一种污水水质净化装置,所述搅拌杆的底部与污水搅拌箱的底部中心处转动连接,所述搅拌杆与污水搅拌箱的连接处设置有转动轴承。In the above-mentioned sewage water quality purification device, the bottom of the stirring rod is rotatably connected to the bottom center of the sewage stirring tank, and a rotating bearing is provided at the connection between the stirring rod and the sewage stirring tank.
本实用新型的有益效果为:本实用新型结构设计合理,一方面通过搅拌电机的转动带动主动齿轮的转动,从而带动从动齿轮的转动,使得搅拌杆在污水搅拌箱中搅拌,多个搅拌叶片使得搅拌的更充分,通过搅拌将固体物和污水中的大颗粒物破碎并沉积,便于下一步的污水净化,使得污水中的污垢能分层,沉入污水搅拌箱的底部,并通过出水管将污水搅拌箱下端的沉积物排出,另一方面控制抽水泵将上层沉淀后的水质抽入水质净化箱的内腔,与由第一过滤网、第二过滤网和活性炭过滤吸附装置将抽入的水净化完全,再排出,将污净化处理,并在长时间使用后,可通过拉手抽出第一过滤网、第二过滤网和活性炭过滤吸附装置进行清理和更换,结构简单,价格低廉。The beneficial effects of the utility model are: the structure design of the utility model is reasonable, on the one hand, the rotation of the stirring motor drives the rotation of the driving gear, thereby driving the rotation of the driven gear, so that the stirring rod is stirred in the sewage stirring box, and a plurality of stirring blades Make the stirring more sufficient, and crush and deposit the solids and large particles in the sewage through stirring, which is convenient for the next step of sewage purification, so that the dirt in the sewage can be layered, sink into the bottom of the sewage mixing box, and pass through the outlet pipe. The sediment at the lower end of the sewage mixing tank is discharged. On the other hand, the water pump is controlled to pump the water after the upper sedimentation into the inner cavity of the water purification tank, and the first filter screen, the second filter screen and the activated carbon filter adsorption device will be pumped in. After the water is completely purified, it is discharged again to purify the dirt. After a long time of use, the first filter screen, the second filter screen and the activated carbon filter adsorption device can be pulled out through the handle for cleaning and replacement. The structure is simple and the price is low.
附图说明Description of drawings
图1为本实用新型的结构示意图;Fig. 1 is the structural representation of the utility model;
图2为水质净化箱结构的示意图。Figure 2 is a schematic diagram of the structure of the water purification box.
图中:1、底板,2、污水搅拌箱,3、进水管,4、电机箱,5、搅拌电机,6、主动齿轮,7、搅拌杆,8、从动齿轮,9、搅拌叶片,10、出水管,11、水质净化箱,1101、插接固定块,1102、第一过滤网,1103、第二过滤网,1104、活性炭过滤吸附装置,1105、拉手,12、抽水泵,13、抽水管。In the picture: 1. Bottom plate, 2. Sewage mixing box, 3. Water inlet pipe, 4. Motor box, 5. Stirring motor, 6. Driving gear, 7. Stirring rod, 8. Driven gear, 9. Stirring blade, 10 , outlet pipe, 11, water purification box, 1101, plug-in fixing block, 1102, first filter screen, 1103, second filter screen, 1104, activated carbon filter adsorption device, 1105, handle, 12, suction pump, 13, pump water pipe.
具体实施方式Detailed ways
为使本实用新型实施例的目的、技术方案和优点更加清楚,下面将结合本实用新型实施例中的附图,对本实用新型实施例中的技术方案进行清楚、完整地描述,显然,所描述的实施例是本实用新型一部分实施例,而不是全部的实施例。基于本实用新型中的实施例,本领域普通技术人员在没有作出创造性劳动前提下所获得的所有其他实施例,都属于本实用新型保护的范围。In order to make the purposes, technical solutions and advantages of the embodiments of the present utility model clearer, the technical solutions in the embodiments of the present utility model will be clearly and completely described below with reference to the accompanying drawings in the embodiments of the present utility model. The embodiments described above are a part of the embodiments of the present invention, but not all of the embodiments. Based on the embodiments of the present invention, all other embodiments obtained by those of ordinary skill in the art without creative work fall within the protection scope of the present invention.
参看图1-2:一种污水水质净化装置,包括底板1,底板1的顶部左侧安装有污水搅拌箱2,污水搅拌箱2的顶部左侧连接有进水管3,污水搅拌箱2的顶部中心处安装有电机箱4,电机箱4的内腔安装有搅拌电机5,搅拌电机5的顶部安装有主动齿轮6,污水搅拌箱2的顶部中心转动连接有搅拌杆7,且搅拌杆7的顶部伸入到电机箱4的内腔,搅拌杆7的底部与污水搅拌箱2的底部中心处转动连接,搅拌杆7与污水搅拌箱2的连接处设置有转动轴承,搅拌杆7的顶部安装有从动齿轮8,且从动齿轮8与主动齿轮6啮合连接,搅拌杆7的外壁安装有搅拌叶片9,且搅拌叶片9位于污水搅拌箱2的内腔,搅拌叶片9设置有多个,且多个搅拌叶片9沿搅拌杆7的侧壁呈阵列状设置,污水搅拌箱2的右侧壁下端连接有出水管10,底板1的顶部右侧安装有水质净化箱11,水质净化箱11的内腔上端左右两侧对称安装有插接固定块1101,水质净化箱11的内腔从上到下依次插接有第一过滤网1102、第二过滤网1103和活性炭过滤吸附装置1104,且第一过滤网1102、第二过滤网1103和活性炭过滤吸附装置1104均插接在插接固定块1101之间,第一过滤网1102、第二过滤网1103和活性炭过滤吸附装置1104的右侧均安装有拉手1105,第一过滤网1101的过滤孔径为0.5-1mm,第二过滤网2503的过滤孔径为0.02-0.1mm,拉手1105与水质净化箱11的连接处设置有密封条,水质净化箱11的顶部安装有抽水泵12,抽水泵12与污水搅拌箱2之间连接有抽水管13,且抽水管13的左侧抽水处与污水搅拌箱2的右侧壁上端相连通。Referring to Figure 1-2: a sewage water purification device, including a bottom plate 1, a
综上所述,本实用新型在使用时,一方面通过搅拌电机5的转动带动主动齿轮6的转动,从而带动从动齿轮8的转动,使得搅拌杆7在污水搅拌箱2中搅拌,多个搅拌叶片9使得搅拌的更充分,通过搅拌将固体物和污水中的大颗粒物破碎并沉积,便于下一步的污水净化,使得污水中的污垢能分层,沉入污水搅拌箱2的底部,并通过出水管10将污水搅拌箱2下端的沉积物排出,另一方面控制抽水泵12将上层沉淀后的水质抽入水质净化箱11的内腔,与由第一过滤网1102、第二过滤网1103和活性炭过滤吸附装置1104将抽入的水净化完全,再排出,将污净化处理,并在长时间使用后,可通过拉手1105抽出第一过滤网1102、第二过滤网1103和活性炭过滤吸附装置1104进行清理和更换,结构简单,价格低廉,解决了污水处理设备的建设费用高,设备投资大,运行成本高的问题。To sum up, when the utility model is in use, on the one hand, the rotation of the
上述实施例中所提到的搅拌电机和抽水泵均为市场上易得到的电器元件,且搅拌电机和抽水泵均为本领域技术人员所掌握的成熟技术,在本实施例中仅对其进行使用,未对其结构和功能进行改变,且搅拌电机和抽水泵均设有与其相配套的控制开关,开关位置可以根据实际使用情况来做具体的限定。The stirring motor and the water pump mentioned in the above embodiments are all electrical components that are easily available in the market, and the stirring motor and the water pump are mature technologies mastered by those skilled in the art. In use, its structure and function are not changed, and the stirring motor and the water pump are equipped with control switches matched with them, and the switch position can be specifically limited according to the actual use situation.
以上实施例仅用以说明本实用新型的技术方案,而非对其限制;尽管参照前述实施例对本实用新型进行了详细的说明,本领域的普通技术人员应当理解:其依然可以对前述各实施例所记载的技术方案进行修改,或者对其中部分技术特征进行等同替换;而这些修改或者替换,并不使相应技术方案的本质脱离本实用新型各实施例技术方案的精神和范围。The above embodiments are only used to illustrate the technical solutions of the present utility model, but not to limit them; although the present utility model has been described in detail with reference to the foregoing embodiments, those of ordinary skill in the art should understand that: it can still be used for the foregoing implementations. The technical solutions described in the examples are modified, or some technical features thereof are equivalently replaced; and these modifications or replacements do not make the essence of the corresponding technical solutions deviate from the spirit and scope of the technical solutions of the embodiments of the present invention.
Claims (6)
Priority Applications (1)
| Application Number | Priority Date | Filing Date | Title |
|---|---|---|---|
| CN201922391961.0U CN211946621U (en) | 2019-12-27 | 2019-12-27 | Sewage quality purification device |
Applications Claiming Priority (1)
| Application Number | Priority Date | Filing Date | Title |
|---|---|---|---|
| CN201922391961.0U CN211946621U (en) | 2019-12-27 | 2019-12-27 | Sewage quality purification device |
Publications (1)
| Publication Number | Publication Date |
|---|---|
| CN211946621U true CN211946621U (en) | 2020-11-17 |
Family
ID=73187754
Family Applications (1)
| Application Number | Title | Priority Date | Filing Date |
|---|---|---|---|
| CN201922391961.0U Expired - Fee Related CN211946621U (en) | 2019-12-27 | 2019-12-27 | Sewage quality purification device |
Country Status (1)
| Country | Link |
|---|---|
| CN (1) | CN211946621U (en) |
Cited By (1)
| Publication number | Priority date | Publication date | Assignee | Title |
|---|---|---|---|---|
| CN114249445A (en) * | 2021-12-25 | 2022-03-29 | 鄂尔多斯职业学院 | Device for treating organic chemical sewage |
-
2019
- 2019-12-27 CN CN201922391961.0U patent/CN211946621U/en not_active Expired - Fee Related
Cited By (1)
| Publication number | Priority date | Publication date | Assignee | Title |
|---|---|---|---|---|
| CN114249445A (en) * | 2021-12-25 | 2022-03-29 | 鄂尔多斯职业学院 | Device for treating organic chemical sewage |
Similar Documents
| Publication | Publication Date | Title |
|---|---|---|
| CN107226561A (en) | A kind of small-sized rapid precipitation environment protection sewage processing unit | |
| CN211283995U (en) | A purification sedimentation tank for environmental protection engineering sewage treatment | |
| CN208406232U (en) | A kind of environment-friendly sewage processing unit | |
| CN110422973A (en) | A kind of land disposal method of domestic sewage in rural areas | |
| CN211471050U (en) | Sewage treatment box of sewage treatment system | |
| CN211946621U (en) | Sewage quality purification device | |
| CN212609954U (en) | Environment-friendly sewage treatment plant | |
| CN205133284U (en) | Industrial wastewater treatment equipment | |
| CN211447233U (en) | Novel dredging device for hydraulic engineering | |
| CN207792845U (en) | A kind of sewage cycling treatment device | |
| CN111847710A (en) | A sewage treatment device for environmental treatment | |
| CN111233197A (en) | Efficient multistage biological infiltration sewage treatment device and treatment method | |
| CN216878216U (en) | A kind of stone processing wastewater treatment equipment | |
| CN217265171U (en) | Sewage treatment equipment for city | |
| CN218853535U (en) | High-efficient environmental protection sedimentation tank for sewage treatment | |
| CN205953569U (en) | Sewage purification processing device | |
| CN210030261U (en) | Sewage treatment system for chemical plant | |
| CN211311150U (en) | Waste water filtering device | |
| CN210656308U (en) | Qualified sewage cyclic utilization device after sewage station handles | |
| CN211896324U (en) | A multi-stage wastewater treatment device | |
| CN109650620A (en) | A kind of water body restoration device | |
| CN211871577U (en) | Multistage sewage treatment ware | |
| CN211847539U (en) | A sewage treatment device capable of solid-liquid separation | |
| CN210505825U (en) | High-efficiency sewage treatment equipment | |
| CN209865458U (en) | A device for removing polluted water |
Legal Events
| Date | Code | Title | Description |
|---|---|---|---|
| GR01 | Patent grant | ||
| GR01 | Patent grant | ||
| CF01 | Termination of patent right due to non-payment of annual fee | ||
| CF01 | Termination of patent right due to non-payment of annual fee |
Granted publication date: 20201117 |
