CN211899144U - Vertically plugged inclined energy-saving unit curtain wall - Google Patents
Vertically plugged inclined energy-saving unit curtain wall Download PDFInfo
- Publication number
- CN211899144U CN211899144U CN201922096374.9U CN201922096374U CN211899144U CN 211899144 U CN211899144 U CN 211899144U CN 201922096374 U CN201922096374 U CN 201922096374U CN 211899144 U CN211899144 U CN 211899144U
- Authority
- CN
- China
- Prior art keywords
- unit
- curtain wall
- cross beam
- unit plate
- plate
- Prior art date
- Legal status (The legal status is an assumption and is not a legal conclusion. Google has not performed a legal analysis and makes no representation as to the accuracy of the status listed.)
- Expired - Fee Related
Links
- 238000003780 insertion Methods 0.000 claims abstract description 14
- 230000037431 insertion Effects 0.000 claims abstract description 14
- XLYOFNOQVPJJNP-UHFFFAOYSA-N water Substances O XLYOFNOQVPJJNP-UHFFFAOYSA-N 0.000 claims description 9
- XAGFODPZIPBFFR-UHFFFAOYSA-N aluminium Chemical compound [Al] XAGFODPZIPBFFR-UHFFFAOYSA-N 0.000 claims description 7
- 229910052782 aluminium Inorganic materials 0.000 claims description 7
- 238000005034 decoration Methods 0.000 claims description 5
- 238000004026 adhesive bonding Methods 0.000 claims 1
- 238000009434 installation Methods 0.000 abstract description 10
- 238000010276 construction Methods 0.000 abstract description 4
- 238000012545 processing Methods 0.000 abstract description 2
- 238000003908 quality control method Methods 0.000 abstract description 2
- 238000013461 design Methods 0.000 description 3
- 239000011521 glass Substances 0.000 description 3
- 238000000034 method Methods 0.000 description 2
- 238000010586 diagram Methods 0.000 description 1
- 239000003292 glue Substances 0.000 description 1
- 230000005484 gravity Effects 0.000 description 1
- 238000004519 manufacturing process Methods 0.000 description 1
- 238000007789 sealing Methods 0.000 description 1
- 238000012546 transfer Methods 0.000 description 1
Images
Landscapes
- Load-Bearing And Curtain Walls (AREA)
Abstract
应用于建筑幕墙领域的一种垂直插接的斜面节能单元式幕墙,该斜面单元式幕墙单元板块的上、下横梁在插接构造设计时按照垂直插接来设计和制作安装,单元板块的挂装也是垂直挂装,左右单元板块的竖向插接及上下单元板块的横向插接能够很好地调节现场施工偏差,有效解决了传统斜面单元板块插接与挂接的方向和行程不一致所带来的一系列问题,该幕墙构造合理,加工制作和施工安装简单快捷,质量控制简单易行,板块拼装细节和挂装整体效果更好,在建筑幕墙领域有着广泛的使用空间和很好的推广前景。
A vertical plug-in inclined energy-saving unit curtain wall applied in the field of building curtain walls. The upper and lower beams of the unit panels of the inclined unit type curtain wall are designed, manufactured and installed according to the vertical plug connection when the plug structure is designed. The installation is also vertical hanging. The vertical insertion of the left and right unit plates and the horizontal insertion of the upper and lower unit plates can well adjust the on-site construction deviation, effectively solving the problem of inconsistency in the direction and stroke of the traditional inclined unit plate insertion and hooking. A series of problems, the curtain wall has a reasonable structure, simple and fast processing, construction and installation, simple and easy quality control, better plate assembly details and overall better hanging effect, and has a wide range of use space and good promotion in the field of building curtain walls. prospect.
Description
技术领域technical field
本实用新型涉及一种垂直插接的斜面节能单元式幕墙,应用于建筑幕墙领域内斜面单元式幕墙的设计和安装。The utility model relates to a vertical plug-connected inclined plane energy-saving unit curtain wall, which is applied to the design and installation of the inclined plane unit curtain wall in the field of building curtain walls.
背景技术Background technique
目前,建筑立面的丰富性要求越来越多样化,传统的单元式幕墙一般由垂直平面框架和面板构成,其外立面整体通常为垂直面的构造形式,幕墙效果和造型比较单一,为了丰富幕墙的立面效果设计,现今一些建筑要求外立面幕墙采用斜面单元式幕墙,板块框架型材及面板组装需要带角度切割、带角度组装。传统的斜面单元式幕墙做法,通常是上下两个单元板块设计斜向插接,而单元板块转接系统的挂接方向一般是沿重力方向垂直挂接,两者方向不同,给施工安装带来了困难,尤其是二者角度相差过大时插接与挂接行程完全不同以致于单元板块无法安装,造成巨大损失;另一方面因斜面单元板块的铝型材加工及板块组装偏差比正常垂直面单元大,也容易造成单元板块斜向插接安装更加困难。At present, the requirements for the richness of building facades are becoming more and more diverse. The traditional unitized curtain wall is generally composed of vertical plane frames and panels. The facade effect design of the curtain wall is enriched. Nowadays, some buildings require the facade curtain wall to adopt the inclined unit curtain wall, and the plate frame profile and panel assembly need to be cut at an angle and assembled at an angle. The traditional method of inclined unit curtain wall is usually designed to connect the upper and lower unit panels obliquely, while the connection direction of the unit panel transfer system is generally vertical along the direction of gravity. In particular, when the angle difference between the two is too large, the insertion and hooking strokes are completely different, so that the unit plate cannot be installed, resulting in huge losses; The larger the unit, the more difficult it is to insert and install the unit block obliquely.
发明内容SUMMARY OF THE INVENTION
为了解决传统斜面单元式幕墙的以上问题,本实用新型提供一种垂直插接的斜面节能单元式幕墙,该斜面单元式幕墙单元板块的上、下横梁在插接构造设计时按照垂直插接来设计和制作安装,单元板块的挂装也是垂直挂装,左右单元板块的竖向插接及上下单元板块的横向插接能够很好地调节现场施工偏差,有效解决了传统斜面单元板块插接与挂接的方向和行程不一致所带来的一系列问题,该幕墙构造合理,加工制作和施工安装简单快捷,质量控制简单易行,板块拼装细节和挂装整体效果更好。In order to solve the above problems of the traditional inclined unit type curtain wall, the present utility model provides a vertically plugged inclined energy-saving unit type curtain wall. The design, production and installation of the unit panels are also vertical. The vertical insertion of the left and right unit panels and the horizontal insertion of the upper and lower unit panels can well adjust the on-site construction deviation, effectively solving the traditional slanted unit panels. A series of problems caused by the inconsistency of the direction and stroke of the mounting, the curtain wall has a reasonable structure, simple and fast processing, construction and installation, simple and easy quality control, and better plate assembly details and overall hanging effect.
本实用新型所采用的技术方案是,一种垂直插接的斜面节能单元式幕墙,其特征是:斜面单元板块上的单元铝挂钩与单元挂座槽口是垂直挂接,斜面单元板块上横梁、中横梁及下横梁截面均设计成带斜面角度,与斜面单元板块左、右立柱拼装成整体斜面板块框架,其中上横梁截面的前、后插接翅垂直向上,下横梁截面的前、后插接槽口垂直向下,板块组装之前左、右立柱与下横梁连接部位的后口将立柱斜面局部铣加工成垂直面,使左、右立柱与下横梁后端插接槽口的垂直壁贯通,板块框架组装完毕后安装玻璃面板。The technical solution adopted by the utility model is a vertical plug-in inclined surface energy-saving unit type curtain wall, which is characterized in that: the unit aluminum hooks on the inclined surface unit plates and the unit hanging seat slots are vertically connected, and the beams on the inclined surface unit plates are vertically connected. , The cross-sections of the middle beam and the lower beam are designed with inclined plane angles, and are assembled with the left and right uprights of the inclined plane unit plate to form an overall inclined plate block frame. The insertion slot is vertically downward. Before the plate is assembled, the rear opening of the connection between the left and right columns and the lower beam is partially milled into a vertical surface, so that the left and right columns and the rear end of the lower beam are inserted into the vertical wall of the slot. Through, the glass panel is installed after the plate frame is assembled.
现场安装时,斜面单元板块上的单元铝挂钩垂直挂接在安装并调节固定好的单元挂座上,挂装完相邻的单元板块后,将前横向集水槽、后横向排水槽滑移至盖住相邻两板块的缝隙,在前横向集水槽和后横向排水槽的周圈打胶密封。During on-site installation, the unit aluminum hook on the inclined unit plate is vertically hung on the installed and adjusted and fixed unit hanger. Cover the gap between the two adjacent plates, and seal the perimeters of the front horizontal water collection tank and the rear horizontal drainage groove with glue.
挂装斜面单元板块时,通过相邻单元板块左、右立柱的水平插接实现左右斜面单元板块的插接,高度方向通过相邻上、下横梁的垂直插接实现上下层斜面单元板块的插接,最后在下横梁后口扣接安装室内装饰扣盖型材。When installing the inclined unit panels, the left and right inclined unit panels are connected by the horizontal plug connection of the left and right columns of the adjacent unit panels, and the vertical plug connection of the adjacent upper and lower beams in the height direction realizes the upper and lower layers. Finally, install the interior decoration buckle cover profile at the rear of the lower beam.
技术特点Technical Features
垂直插接的斜面单元式幕墙技术特点说明:Technical characteristics of vertical plug-in inclined unit curtain wall:
1.垂直插接的斜面节能单元式幕墙,斜面上横梁及斜面下横梁按垂直插接设计,现场安装定位更加精准,上、下层斜面板块插接更容易实现,更好地实现了幕墙外立面装饰效果。1. Vertically plugged slanted energy-saving unitized curtain wall, the upper and lower sloping beams are designed for vertical plugging, the on-site installation and positioning is more accurate, the plugging of the upper and lower inclined panels is easier to achieve, and the external erection of the curtain wall is better realized. face decoration effect.
2.当需要斜面单元式幕墙在同一标高上与直面板块实现交圈时,上、下层斜面板块上、下横梁垂直插接的细部与直面板块上、下横梁垂直插接的细部尺寸一致,这样就可以实现前、后排水槽的通用,防水处理交圈,密封效果自然更加严密。2. When it is necessary to realize the intersection of the inclined unit curtain wall and the straight panel block at the same level, the details of the vertical insertion of the upper and lower beams of the upper and lower inclined panel blocks are the same as the vertical insertion of the upper and lower beams of the straight panel block. It can realize the common use of the front and rear drainage grooves, and the waterproof treatment will make the sealing effect more strict.
3.斜面单元式幕墙的下横梁后口与直面幕墙下横梁后口细部尺寸一致,室内装饰扣盖型材交圈,室内效果美观统一。3. The size of the rear opening of the lower beam of the inclined unit curtain wall is the same as that of the rear opening of the lower beam of the straight-faced curtain wall.
附图说明Description of drawings
下面结合附图对本实用新型的实施例进一步说明,附图为可垂直插接的斜面节能单元式幕墙实施例。The embodiments of the present utility model are further described below with reference to the accompanying drawings, which are embodiments of a vertically pluggable inclined energy-saving unit curtain wall.
图1是垂直插接的斜面节能单元式幕墙横剖节点图。Figure 1 is a cross-sectional node diagram of a vertical plug-in inclined energy-saving unit curtain wall.
图2是垂直插接的斜面节能单元式幕墙上、下横插接部位纵剖放大图。Figure 2 is an enlarged longitudinal cross-sectional view of the vertical insertion of the inclined energy-saving unit curtain wall and the lower horizontal insertion part.
图3是垂直插接的斜面节能单元式幕墙一个完整单元的纵剖大样图。Figure 3 is a large longitudinal section view of a complete unit of a vertical plug-in inclined energy-saving unit curtain wall.
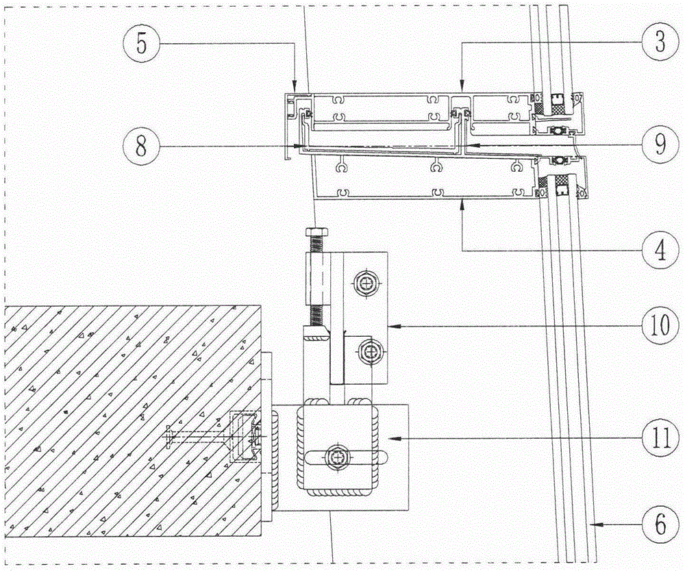
图中1.斜面单元板块左立柱,2.斜面单元板块右立柱,3.斜面单元板块下横梁,4.斜面单元板块上横梁,5.室内装饰扣盖,6.玻璃面板,7.斜面单元板块中横梁,8.后横向集水槽,9.前横向排水槽,10.单元铝挂钩,11.单元挂座。In the
具体实施方式Detailed ways
在图1、图2、图3中,斜面单元板块左立柱1、斜面单元板块右立柱2、斜面单元板块上横梁4、斜面单元板块下横梁3、斜面单元板块中横梁7拼装成斜面单元板块主框架,其中斜面单元板块左立柱1、斜面单元板块右立柱2与斜面单元板块下横梁3组装时,立柱后口需局部铣缺至下横梁插接槽口的后壁,同时预留出安装室内装饰扣盖5的安装空间。斜面单元板块主框架拼装后,安装玻璃面板6后斜面单元板块组装完毕。现场安装前安装并调节固定好单元挂座11,斜面单元板块发至现场后,先挂装下层相邻的单元板块,单元板块的单元铝挂钩10垂直挂接在单元挂座11上,再将前横向集水槽9、后横向排水槽8滑至盖住相邻两板块的缝隙,在前横向集水槽9和后横向排水槽8的周圈打胶密封,然后挂装上层斜面单元板块,上层斜面单元板块的下横梁与下层斜面单元板块的上横梁实现垂直插接就位。In Figure 1, Figure 2 and Figure 3, the
Claims (3)
Priority Applications (1)
| Application Number | Priority Date | Filing Date | Title |
|---|---|---|---|
| CN201922096374.9U CN211899144U (en) | 2019-11-28 | 2019-11-28 | Vertically plugged inclined energy-saving unit curtain wall |
Applications Claiming Priority (1)
| Application Number | Priority Date | Filing Date | Title |
|---|---|---|---|
| CN201922096374.9U CN211899144U (en) | 2019-11-28 | 2019-11-28 | Vertically plugged inclined energy-saving unit curtain wall |
Publications (1)
| Publication Number | Publication Date |
|---|---|
| CN211899144U true CN211899144U (en) | 2020-11-10 |
Family
ID=73299084
Family Applications (1)
| Application Number | Title | Priority Date | Filing Date |
|---|---|---|---|
| CN201922096374.9U Expired - Fee Related CN211899144U (en) | 2019-11-28 | 2019-11-28 | Vertically plugged inclined energy-saving unit curtain wall |
Country Status (1)
| Country | Link |
|---|---|
| CN (1) | CN211899144U (en) |
Cited By (1)
| Publication number | Priority date | Publication date | Assignee | Title |
|---|---|---|---|---|
| CN114775865A (en) * | 2022-05-24 | 2022-07-22 | 广东省第二建筑工程有限公司 | Slightly-inclined trapezoidal plate curtain wall |
-
2019
- 2019-11-28 CN CN201922096374.9U patent/CN211899144U/en not_active Expired - Fee Related
Cited By (1)
| Publication number | Priority date | Publication date | Assignee | Title |
|---|---|---|---|---|
| CN114775865A (en) * | 2022-05-24 | 2022-07-22 | 广东省第二建筑工程有限公司 | Slightly-inclined trapezoidal plate curtain wall |
Similar Documents
| Publication | Publication Date | Title |
|---|---|---|
| CN207177596U (en) | Lower support cell curtain wall window system | |
| CN111894230A (en) | Wall metal plate prefabricated installation structure with energy storage function and construction method thereof | |
| CN211899144U (en) | Vertically plugged inclined energy-saving unit curtain wall | |
| CN105986630A (en) | Vertically staggered wave unit type curtain wall | |
| CN204266426U (en) | A kind of glass curtain wall vertical ornamental strip | |
| CN204551843U (en) | The outer broken line type frame-supported glass curtain wall choosing glass wing of band | |
| CN204531106U (en) | A kind of sitting posture curtain wall system that can independently change | |
| CN204199499U (en) | A kind of hyperboloid type unitized curtain wall system | |
| CN204877034U (en) | Concatenation door frame structure of fixing a position suitable for reading | |
| CN110409681B (en) | Construction method of curtain wall window | |
| CN220184395U (en) | A kind of connection structure of cross-ventilation box curtain wall | |
| CN206385695U (en) | Multipurpose framework glass curtain wall | |
| CN212743076U (en) | Curtain wall system capable of being installed and replaced indoors and outdoors | |
| CN216641828U (en) | An improved door and window system | |
| CN205276620U (en) | Can realize curtain that integrates of quick construction | |
| CN102146707A (en) | Building curtain wall structure | |
| CN211736118U (en) | A unitary airport guardrail system | |
| CN210459662U (en) | Small unit glass curtain wall system | |
| CN209760673U (en) | Decorative panel mounting structure convenient to dismouting | |
| CN203546961U (en) | Upper beam section bar of unit curtain wall | |
| CN114320085B (en) | Window system for glass curtain wall appearance effect | |
| CN115627994A (en) | A combined aluminum alloy door and window | |
| CN207597654U (en) | One kind is floatd Window curtain wall unit | |
| CN209397790U (en) | A kind of horizontal ornament sunshade trellis system | |
| CN217353326U (en) | A new type of window and wall facade structure |
Legal Events
| Date | Code | Title | Description |
|---|---|---|---|
| GR01 | Patent grant | ||
| GR01 | Patent grant | ||
| CF01 | Termination of patent right due to non-payment of annual fee |
Granted publication date: 20201110 |
|
| CF01 | Termination of patent right due to non-payment of annual fee |
