CN210679551U - Rotary demolding mechanism with large torsion - Google Patents
Rotary demolding mechanism with large torsion Download PDFInfo
- Publication number
- CN210679551U CN210679551U CN201921281257.3U CN201921281257U CN210679551U CN 210679551 U CN210679551 U CN 210679551U CN 201921281257 U CN201921281257 U CN 201921281257U CN 210679551 U CN210679551 U CN 210679551U
- Authority
- CN
- China
- Prior art keywords
- threaded core
- ejector
- mold
- cavity
- finished product
- Prior art date
- Legal status (The legal status is an assumption and is not a legal conclusion. Google has not performed a legal analysis and makes no representation as to the accuracy of the status listed.)
- Expired - Fee Related
Links
Images
Landscapes
- Moulds For Moulding Plastics Or The Like (AREA)
Abstract
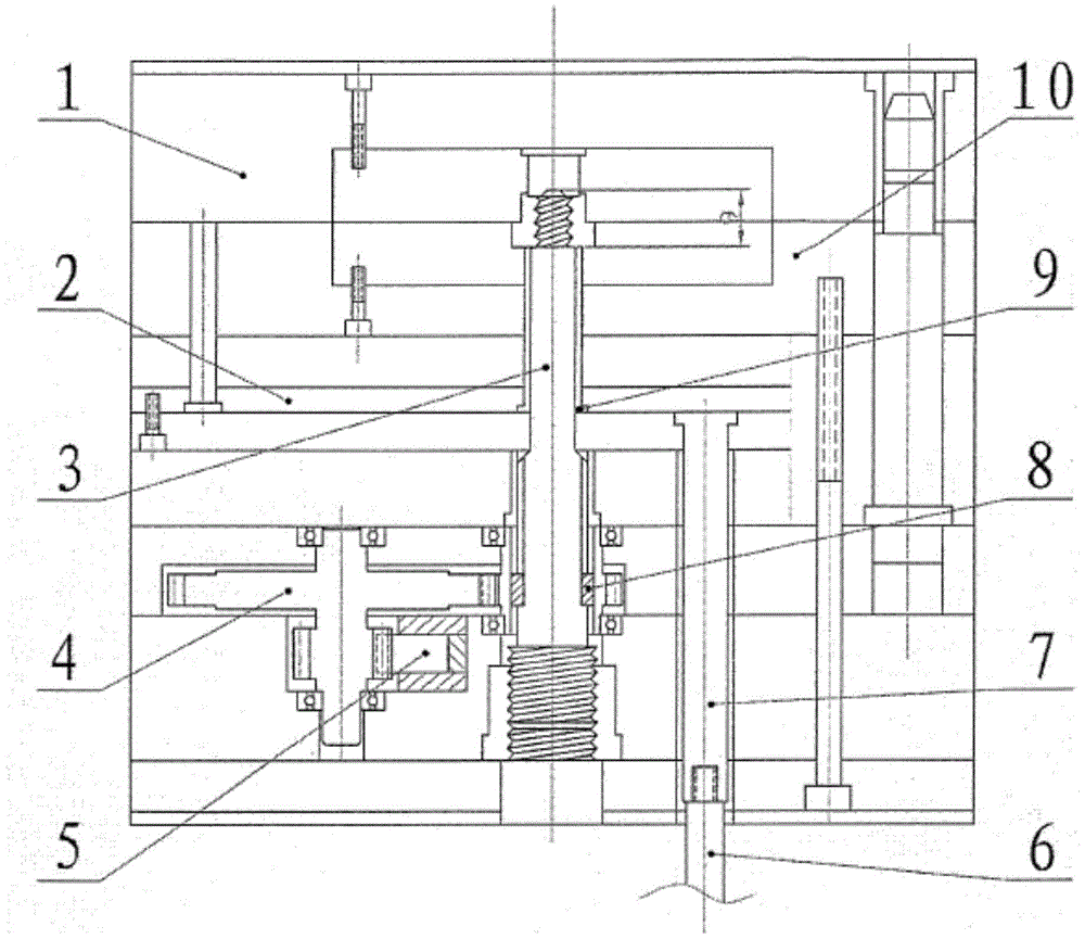
本实用新型涉及模具设备技术领域,具体公开了一种扭力大的旋转脱模机构,包括母模和公模,母模和公模相互配合形成型腔;螺纹型芯,螺纹型芯转动连接在所述公模上,螺纹型芯的顶端延伸至所述型腔内,螺纹型芯具外螺纹的底部通过螺纹连接方式设于具有内螺纹座上;驱动组件,用于驱动螺纹型芯转动;以及用于将型腔内的成品进行脱模的顶出组件。在本实用新型实施例提供的扭力大的旋转脱模机构中,分模前,由油缸拉动齿条使主动齿轮带动螺纹型芯转动,鉴于螺纹型芯上有多个键槽的关系,从旋转中变直线推出成品的规定螺距后,随后公模和母模分开,在顶出机的作用下,顶出杆通过连接杆推动上下顶出板组带动空心顶杆使成品脱模。
The utility model relates to the technical field of mold equipment, and specifically discloses a rotary demoulding mechanism with large torsion force, which comprises a female mold and a male mold, and the female mold and the male mold cooperate with each other to form a cavity; On the male mold, the top end of the threaded core extends into the cavity, and the bottom of the threaded core with an external thread is set on a seat with an internal thread through a threaded connection; the driving component is used to drive the threaded core to rotate; And an ejector assembly for demoulding the finished product in the cavity. In the rotary demolding mechanism with large torque provided by the embodiment of the present invention, before the mold is split, the rack is pulled by the oil cylinder so that the driving gear drives the threaded core to rotate. After the specified pitch of the finished product is pushed out in a straight line, then the male mold and the female mold are separated. Under the action of the ejector, the ejector rod pushes the upper and lower ejector plate groups through the connecting rod to drive the hollow ejector rod to demould the finished product.
Description
技术领域technical field
本实用新型涉及模具设备技术领域,具体是一种扭力大的旋转脱模机构。The utility model relates to the technical field of mold equipment, in particular to a rotary demoulding mechanism with large torsion force.
背景技术Background technique
模具是指工业生产上用以注塑、吹塑、挤出、压铸或锻压成型、冶炼、冲压等方法得到所需产品的各种模子和工具。模具具有特定的轮廓或内腔形状,应用具有刃口的轮廓形状可以使坯料按轮廓线形状发生分离(冲裁)。Molds refer to various molds and tools used in industrial production to obtain the desired products by injection molding, blow molding, extrusion, die casting or forging, smelting, stamping and other methods. The mold has a specific contour or cavity shape, and the application of the contour shape with the cutting edge can separate the blank according to the contour shape (blanking).
模具应用内腔形状可使坯料获得相应的立体形状。模具一般包括动模和定模(或公模和母模)两个部分,二者可分可合。分开时取出制件,合拢时使坯料注入模具型腔成形。现有模具设备中的脱模机构,其结构过于单一,脱模方式较为传统,因此,需要对其提出创新性的改进。The cavity shape of the mold can be used to obtain the corresponding three-dimensional shape of the blank. The mold generally includes two parts, a movable mold and a fixed mold (or a male mold and a female mold), which can be divided and combined. When separated, the parts are taken out, and when closed, the blanks are injected into the mold cavity to form. The demolding mechanism in the existing mold equipment is too simple in structure, and the demolding method is relatively traditional. Therefore, it is necessary to propose innovative improvements.
实用新型内容Utility model content
本实用新型的目的在于提供一种扭力大的旋转脱模机构,以解决上述背景技术中提出的问题。The purpose of the present invention is to provide a rotary demolding mechanism with a large torsion force, so as to solve the problems raised in the above-mentioned background technology.
为实现上述目的,本实用新型提供如下技术方案:To achieve the above object, the utility model provides the following technical solutions:
一种扭力大的旋转脱模机构,包括母模和公模,母模和公模相互配合形成型腔;A rotary demoulding mechanism with large torque includes a female mold and a male mold, and the female mold and the male mold cooperate with each other to form a cavity;
螺纹型芯,螺纹型芯转动连接在所述公模上,螺纹型芯的顶端延伸至所述型腔内,螺纹型芯具外螺纹的底部通过螺纹连接方式设于具有内螺纹座上;a threaded core, the threaded core is rotatably connected to the male mold, the top end of the threaded core extends into the cavity, and the bottom of the threaded core with an external thread is set on a seat with an internal thread through a threaded connection;
驱动组件,用于驱动螺纹型芯转动,当螺纹型芯旋转时,根据旋转方向能够使其旋转向上运动或者旋转向下运动,螺纹型芯旋转向下运动时,其顶端从型腔内逐步脱离;以及The drive assembly is used to drive the threaded core to rotate. When the threaded core rotates, it can rotate upward or rotate downward according to the direction of rotation. When the threaded core rotates and moves downward, the top of the threaded core gradually disengages from the cavity ;as well as
用于将型腔内的成品进行脱模的顶出组件。Ejector assembly for demoulding the finished product in the cavity.
作为本实用新型进一步的方案:所述驱动组件包括齿条以及与所述齿条联动的主动齿轮,所述主动齿轮与套接设于所述螺纹型芯中部外圈的从动齿轮相啮合,且所述从动齿轮的内圈内壁开设有与所述螺纹型芯中部外圈的键槽相配合的导轨,因此,从动齿轮和螺纹型芯能够同步旋转,且能够保持在竖直方向上的相对滑动,这样一来,螺纹型芯旋转的同时,能够在竖直方向上运动。As a further solution of the present invention: the drive assembly includes a rack and a driving gear linked with the rack, and the driving gear meshes with a driven gear sleeved on the outer ring of the middle of the threaded core, And the inner wall of the inner ring of the driven gear is provided with a guide rail matched with the keyway of the outer ring in the middle of the threaded core. Therefore, the driven gear and the threaded core can rotate synchronously and can be maintained in a vertical direction. Relative sliding, so that the threaded core can move in the vertical direction at the same time as it rotates.
作为本实用新型进一步的方案:所述主动齿轮的中轴线上还固定设置有转动轴,转动轴上安装有与齿条相啮合的另一齿轮;所述驱动组件还包括用于推动齿条运动的油缸,当齿条水平运动时,能够使主动齿轮转动,进而实现带动螺纹型芯旋转。As a further solution of the present invention: a rotating shaft is also fixedly arranged on the central axis of the driving gear, and another gear that meshes with the rack is installed on the rotating shaft; When the rack moves horizontally, the oil cylinder can make the driving gear rotate, thereby driving the threaded core to rotate.
作为本实用新型进一步的方案:所述顶出组件包括滑动套设于所述螺纹型芯上部外圈的空心顶杆,空心顶杆的顶端延伸至所述型腔内;As a further solution of the present invention: the ejector assembly includes a hollow ejector rod slidably sleeved on the upper outer ring of the threaded core, and the top end of the hollow ejector rod extends into the cavity;
所述空心顶杆的底端与上下顶出板组支撑连接,所述上下顶出板组的一侧底面固定连接有连接杆,连接杆的底端安装有与顶出机相联动的顶出杆,在顶出机的作用下,顶出杆通过连接杆推动上下顶出板组带动空心顶杆使成品脱模。The bottom end of the hollow ejector rod is supported and connected to the upper and lower ejector plate groups, the bottom surface of one side of the upper and lower ejector plate groups is fixedly connected with a connecting rod, and the bottom end of the connecting rod is installed with an ejector that is linked with the ejector. Under the action of the ejector, the ejector rod pushes the upper and lower ejector plate groups through the connecting rod to drive the hollow ejector rod to demould the finished product.
作为本实用新型进一步的方案:至少四条所述键槽呈圆周阵列均布设于所述螺纹型芯外圈。As a further solution of the present invention, at least four of the key grooves are arranged in a circular array on the outer ring of the threaded core.
作为本实用新型进一步的方案:所述螺纹型芯的移动距大于成品上的螺距。As a further solution of the present invention, the moving distance of the thread core is greater than the thread pitch on the finished product.
作为本实用新型进一步的方案:所述螺纹型芯的螺距与成品的螺距完全相同,以保证成品脱模的顺利进行。As a further solution of the present invention, the pitch of the thread core is exactly the same as that of the finished product, so as to ensure the smooth demoulding of the finished product.
与现有技术相比,在本实用新型实施例提供的扭力大的旋转脱模机构中,分模前,由油缸拉动齿条使主动齿轮带动螺纹型芯转动,鉴于螺纹型芯上有多个键槽的关系,从旋转中变直线推出成品的规定螺距后,随后公模和母模分开,在顶出机的作用下,顶出杆通过连接杆推动上下顶出板组带动空心顶杆使成品脱模。Compared with the prior art, in the rotary demolding mechanism with large torque provided by the embodiment of the present invention, before the mold is split, the rack is pulled by the oil cylinder so that the driving gear drives the threaded core to rotate. The relationship of the keyway, after the specified thread pitch of the finished product is pushed out straight from the rotation, and then the male die and the female die are separated. Under the action of the ejector, the ejector rod pushes the upper and lower ejector plate groups through the connecting rod to drive the hollow ejector rod to make the finished product. Demoulding.
附图说明Description of drawings
为了更清楚地说明本实用新型实施例中的技术方案,下面将对实施例或现有技术描述中所需要使用的附图作简单地介绍,显而易见地,下面描述中的附图仅仅是本实用新型的一些实施例。In order to illustrate the technical solutions in the embodiments of the present invention more clearly, the following briefly introduces the accompanying drawings that need to be used in the description of the embodiments or the prior art. Obviously, the drawings in the following description are only for the present utility model. Some examples of novelty.
图1为本实用新型实施例提供的扭力大的旋转脱模机构的结构示意图。FIG. 1 is a schematic structural diagram of a rotary demolding mechanism with large torque provided by an embodiment of the present invention.
图中:1-母模,2-上下顶出板组,3-螺纹型芯,4-主动齿轮,5-齿条,6-顶出杆,7-连接杆,8-键槽,9-空心顶杆,10-公模。In the picture: 1- Female die, 2- Upper and lower ejector plate set, 3- Thread core, 4- Driving gear, 5- Rack, 6- Ejector rod, 7- Connecting rod, 8- Keyway, 9- Hollow Ejector, 10-male mold.
具体实施方式Detailed ways
为了使本实用新型所要解决的技术问题、技术方案及有益效果更加清楚明白,以下结合附图及实施例,对本实用新型进行进一步详细说明。应当理解,此处所描述的具体实施例仅仅用以解释本实用新型,并不用于限定本实用新型。In order to make the technical problems, technical solutions and beneficial effects to be solved by the present utility model clearer, the present utility model will be further described in detail below with reference to the accompanying drawings and embodiments. It should be understood that the specific embodiments described herein are only used to explain the present invention, and are not intended to limit the present invention.
请参阅图1,在本实用新型提供的一个实施例中,一种扭力大的旋转脱模机构,包括母模1和公模10,母模1和公模10相互配合形成型腔;Please refer to FIG. 1 , in an embodiment provided by the present invention, a rotary demolding mechanism with large torsion force includes a female mold 1 and a
螺纹型芯3,螺纹型芯3转动连接在所述公模10上,螺纹型芯3的顶端延伸至所述型腔内,螺纹型芯3具外螺纹的底部通过螺纹连接方式设于具有内螺纹座上;Threaded core 3, the threaded core 3 is rotatably connected to the
驱动组件,用于驱动螺纹型芯3转动,当螺纹型芯3旋转时,根据旋转方向能够使其旋转向上运动或者旋转向下运动,螺纹型芯3旋转向下运动时,其顶端从型腔内逐步脱离;以及The drive assembly is used to drive the threaded core 3 to rotate. When the threaded core 3 rotates, it can rotate upward or rotate downward according to the direction of rotation. When the threaded core 3 rotates and moves downward, the top of the threaded core 3 is removed from the cavity. gradually disengage from within; and
用于将型腔内的成品进行脱模的顶出组件。Ejector assembly for demoulding the finished product in the cavity.
具体的,在本实用新型实施例中,所述螺纹型芯3的螺距与成品的螺距完全相同。Specifically, in the embodiment of the present invention, the pitch of the thread core 3 is exactly the same as that of the finished product.
进一步的,在本实用新型实施例中,所述驱动组件包括齿条5以及与所述齿条5联动的主动齿轮4,所述主动齿轮4与套接设于所述螺纹型芯3中部外圈的从动齿轮相啮合,且所述从动齿轮的内圈内壁开设有与所述螺纹型芯3中部外圈的键槽8相配合的导轨,因此,从动齿轮和螺纹型芯3能够同步旋转,且能够保持在竖直方向上的相对滑动,这样一来,螺纹型芯旋转的同时,能够在竖直方向上运动。Further, in the embodiment of the present invention, the drive assembly includes a
更进一步的,所述主动齿轮4的中轴线上还固定设置有转动轴,转动轴上安装有与齿条5相啮合的另一齿轮;所述驱动组件还包括用于推动齿条5运动的油缸图中未示出,当齿条5水平运动时,能够使主动齿轮4转动,进而实现带动螺纹型芯3旋转。Further, a rotating shaft is also fixedly arranged on the central axis of the
所述顶出组件包括滑动套设于所述螺纹型芯3上部外圈的空心顶杆9,空心顶杆9的顶端延伸至所述型腔内;所述空心顶杆9的底端与上下顶出板组2支撑连接,所述上下顶出板组2的一侧底面固定连接有连接杆7,连接杆7的底端安装有与顶出机相联动的顶出杆6,在顶出机的作用下,顶出杆6通过连接杆7推动上下顶出板组2带动空心顶杆9使成品脱模。The ejector assembly includes a hollow ejector rod 9 slidably sleeved on the upper outer ring of the threaded core 3, and the top end of the hollow ejector rod 9 extends into the cavity; The
本实用新型实施例的脱模机构的工作原理是:分模前,由油缸拉动齿条5使主动齿轮4带动螺纹型芯3转动,鉴于螺纹型芯3上有多个键槽8的关系,从旋转中变直线推出成品的规定螺距后,随后公模10和母模1分开,在顶出机的作用下,顶出杆6通过连接杆7推动上下顶出板组2带动空心顶杆9使成品脱模。The working principle of the demolding mechanism of the embodiment of the present invention is as follows: before the mold is split, the
需要注意的是,螺纹型芯3的移动距大于成品上的螺距。键槽8的材料要有一定的钢性,由于旋转变直线运动,其扭力大,优选的,至少四条所述键槽8呈圆周阵列均布设于所述螺纹型芯3外圈。成品外观形状要能防止自转,无自转功能的要允许增加止转装置。It should be noted that the moving distance of the thread core 3 is greater than the thread pitch on the finished product. The material of the keyway 8 must have a certain rigidity, and the torsional force is large due to the rotation into linear motion. Preferably, at least four of the keyway 8 are arranged in a circular array on the outer ring of the threaded core 3 . The appearance and shape of the finished product should be able to prevent rotation, and if there is no rotation function, an anti-rotation device should be added.
另外,所述螺纹型芯3的螺距与成品的螺距完全相同,以保证成品脱模的顺利进行。In addition, the pitch of the thread core 3 is exactly the same as that of the finished product, so as to ensure the smooth demoulding of the finished product.
在本实用新型的描述中,除非另有明确的规定和限定,术语“安装”、“相连”、“连接”应做广义理解,例如,可以是固定连接,也可以是可拆卸连接,或一体地连接;可以是机械连接,也可以是电连接;可以是直接相连,也可以通过中间媒介间接相连,可以是两个元件内部的连通。对于本领域的普通技术人员而言,可以具体情况理解上述术语在本实用新型中的具体含义。In the description of the present invention, unless otherwise expressly specified and limited, the terms "installed", "connected" and "connected" should be understood in a broad sense, for example, it may be a fixed connection, a detachable connection, or an integrated It can be a mechanical connection or an electrical connection; it can be a direct connection or an indirect connection through an intermediate medium, and it can be the internal communication between the two components. For those of ordinary skill in the art, the specific meanings of the above terms in the present invention can be understood in specific situations.
以上所述仅为本实用新型的较佳实施例而已,并不用以限制本实用新型,凡在本实用新型的精神和原则之内所作的任何修改、等同替换和改进等,均应包含在本实用新型的保护范围之内。The above are only preferred embodiments of the present invention, and are not intended to limit the present invention. Any modifications, equivalent replacements and improvements made within the spirit and principles of the present invention shall be included in the present invention. within the scope of protection of the utility model.
Claims (6)
Priority Applications (1)
| Application Number | Priority Date | Filing Date | Title |
|---|---|---|---|
| CN201921281257.3U CN210679551U (en) | 2019-08-08 | 2019-08-08 | Rotary demolding mechanism with large torsion |
Applications Claiming Priority (1)
| Application Number | Priority Date | Filing Date | Title |
|---|---|---|---|
| CN201921281257.3U CN210679551U (en) | 2019-08-08 | 2019-08-08 | Rotary demolding mechanism with large torsion |
Publications (1)
| Publication Number | Publication Date |
|---|---|
| CN210679551U true CN210679551U (en) | 2020-06-05 |
Family
ID=70890696
Family Applications (1)
| Application Number | Title | Priority Date | Filing Date |
|---|---|---|---|
| CN201921281257.3U Expired - Fee Related CN210679551U (en) | 2019-08-08 | 2019-08-08 | Rotary demolding mechanism with large torsion |
Country Status (1)
| Country | Link |
|---|---|
| CN (1) | CN210679551U (en) |
Cited By (1)
| Publication number | Priority date | Publication date | Assignee | Title |
|---|---|---|---|---|
| CN113001894A (en) * | 2021-02-09 | 2021-06-22 | 莱克电气股份有限公司 | Injection mold and manufacturing method of rotating body |
-
2019
- 2019-08-08 CN CN201921281257.3U patent/CN210679551U/en not_active Expired - Fee Related
Cited By (2)
| Publication number | Priority date | Publication date | Assignee | Title |
|---|---|---|---|---|
| CN113001894A (en) * | 2021-02-09 | 2021-06-22 | 莱克电气股份有限公司 | Injection mold and manufacturing method of rotating body |
| CN113001894B (en) * | 2021-02-09 | 2021-10-26 | 莱克电气股份有限公司 | Injection mold and manufacturing method of rotating body |
Similar Documents
| Publication | Publication Date | Title |
|---|---|---|
| CN104626470A (en) | Two-color mold with inner rotating core | |
| CN209832444U (en) | Internal thread rotary demoulding structure | |
| CN204196122U (en) | A kind of automatic demoulding mould of plastics being threaded inserts | |
| CN109664475A (en) | A kind of injection mold gear forming and stripper apparatus and its injection-moulding device | |
| CN210679551U (en) | Rotary demolding mechanism with large torsion | |
| CN111070595A (en) | Injection mold for removing threads of plastic part | |
| CN104589595B (en) | Mold capable of simultaneously drawing out slider insert during mold opening | |
| CN104149292A (en) | Injection mold for rapidly demolding thread product | |
| CN102205608B (en) | Screw thread demoulding mechanism for dies and secure demoulding method | |
| CN220946418U (en) | Die tooth twisting mechanism of double-layer screw tooth | |
| CN205167404U (en) | Angle injection machine multi-cavity thread removal mold | |
| CN219724529U (en) | Gear box casing casting device | |
| CN215703595U (en) | Demoulding device for plastic mould | |
| CN205148820U (en) | Internal thread product demoulding structure in four chambeies of a mould | |
| CN204382591U (en) | A kind of Plastic Parts with Inner Thread mould emptier | |
| CN210940238U (en) | Mould with antiseized mould function | |
| CN107263821A (en) | A kind of mould emptier for being directed to the inner thread piece with back-off | |
| CN209753934U (en) | Automatic core-pulling mechanism for single-cylinder engine inner cavity loose piece | |
| CN217319024U (en) | Rubber product mold | |
| CN209738205U (en) | A molded product release structure | |
| CN114055840A (en) | Graphite crucible mold with stamping mechanism and use method thereof | |
| CN219095731U (en) | Plastic product rapid prototyping processing equipment convenient to clearance | |
| CN107186970A (en) | A kind of injection mold of automatic demoulding | |
| CN208788966U (en) | A helical stroke control two-end tapping injection mold | |
| CN207077719U (en) | A kind of mould emptier for being directed to the inner thread piece with back-off |
Legal Events
| Date | Code | Title | Description |
|---|---|---|---|
| GR01 | Patent grant | ||
| GR01 | Patent grant | ||
| CF01 | Termination of patent right due to non-payment of annual fee | ||
| CF01 | Termination of patent right due to non-payment of annual fee |
Granted publication date: 20200605 |
