CN115343448A - 一种基于土拱效应研究的新型活动门模型试验装置及方法 - Google Patents
一种基于土拱效应研究的新型活动门模型试验装置及方法 Download PDFInfo
- Publication number
- CN115343448A CN115343448A CN202211270965.3A CN202211270965A CN115343448A CN 115343448 A CN115343448 A CN 115343448A CN 202211270965 A CN202211270965 A CN 202211270965A CN 115343448 A CN115343448 A CN 115343448A
- Authority
- CN
- China
- Prior art keywords
- soil
- displacement
- model box
- movable
- plate
- Prior art date
- Legal status (The legal status is an assumption and is not a legal conclusion. Google has not performed a legal analysis and makes no representation as to the accuracy of the status listed.)
- Granted
Links
- 239000002689 soil Substances 0.000 title claims abstract description 142
- 238000012360 testing method Methods 0.000 title claims abstract description 63
- 230000000694 effects Effects 0.000 title claims abstract description 46
- 238000000034 method Methods 0.000 title abstract description 17
- 238000006073 displacement reaction Methods 0.000 claims abstract description 86
- 238000011160 research Methods 0.000 claims abstract description 22
- 229910000851 Alloy steel Inorganic materials 0.000 claims abstract description 16
- 238000005452 bending Methods 0.000 claims abstract description 16
- 239000011521 glass Substances 0.000 claims abstract description 8
- 238000010998 test method Methods 0.000 claims abstract description 7
- 230000001360 synchronised effect Effects 0.000 claims abstract description 5
- 238000012937 correction Methods 0.000 claims description 16
- 230000008859 change Effects 0.000 claims description 12
- 230000003068 static effect Effects 0.000 claims description 7
- 230000005284 excitation Effects 0.000 claims description 5
- 230000003993 interaction Effects 0.000 claims description 4
- -1 polytetrafluoroethylene Polymers 0.000 claims description 3
- 229920001343 polytetrafluoroethylene Polymers 0.000 claims description 3
- 239000004810 polytetrafluoroethylene Substances 0.000 claims description 3
- WABPQHHGFIMREM-UHFFFAOYSA-N lead(0) Chemical compound [Pb] WABPQHHGFIMREM-UHFFFAOYSA-N 0.000 claims description 2
- 238000003032 molecular docking Methods 0.000 claims description 2
- 230000008569 process Effects 0.000 description 10
- 238000011161 development Methods 0.000 description 8
- 230000018109 developmental process Effects 0.000 description 8
- 230000006872 improvement Effects 0.000 description 8
- 238000002360 preparation method Methods 0.000 description 6
- 238000005516 engineering process Methods 0.000 description 5
- 239000000463 material Substances 0.000 description 4
- 238000000917 particle-image velocimetry Methods 0.000 description 4
- 229910000831 Steel Inorganic materials 0.000 description 2
- 239000004927 clay Substances 0.000 description 2
- 238000007596 consolidation process Methods 0.000 description 2
- 238000001514 detection method Methods 0.000 description 2
- 239000010959 steel Substances 0.000 description 2
- 238000012546 transfer Methods 0.000 description 2
- CVOFKRWYWCSDMA-UHFFFAOYSA-N 2-chloro-n-(2,6-diethylphenyl)-n-(methoxymethyl)acetamide;2,6-dinitro-n,n-dipropyl-4-(trifluoromethyl)aniline Chemical compound CCC1=CC=CC(CC)=C1N(COC)C(=O)CCl.CCCN(CCC)C1=C([N+]([O-])=O)C=C(C(F)(F)F)C=C1[N+]([O-])=O CVOFKRWYWCSDMA-UHFFFAOYSA-N 0.000 description 1
- 239000004809 Teflon Substances 0.000 description 1
- 229920006362 Teflon® Polymers 0.000 description 1
- 238000009412 basement excavation Methods 0.000 description 1
- 230000015572 biosynthetic process Effects 0.000 description 1
- 238000004891 communication Methods 0.000 description 1
- 238000010276 construction Methods 0.000 description 1
- 230000007812 deficiency Effects 0.000 description 1
- 238000013461 design Methods 0.000 description 1
- 230000001066 destructive effect Effects 0.000 description 1
- 238000010586 diagram Methods 0.000 description 1
- 238000009434 installation Methods 0.000 description 1
- 238000012986 modification Methods 0.000 description 1
- 230000004048 modification Effects 0.000 description 1
- 238000012545 processing Methods 0.000 description 1
- 239000004576 sand Substances 0.000 description 1
- 230000008054 signal transmission Effects 0.000 description 1
- 238000006467 substitution reaction Methods 0.000 description 1
- 239000005341 toughened glass Substances 0.000 description 1
Images
Classifications
-
- G—PHYSICS
- G01—MEASURING; TESTING
- G01N—INVESTIGATING OR ANALYSING MATERIALS BY DETERMINING THEIR CHEMICAL OR PHYSICAL PROPERTIES
- G01N33/00—Investigating or analysing materials by specific methods not covered by groups G01N1/00 - G01N31/00
- G01N33/24—Earth materials
-
- E—FIXED CONSTRUCTIONS
- E02—HYDRAULIC ENGINEERING; FOUNDATIONS; SOIL SHIFTING
- E02D—FOUNDATIONS; EXCAVATIONS; EMBANKMENTS; UNDERGROUND OR UNDERWATER STRUCTURES
- E02D33/00—Testing foundations or foundation structures
-
- G—PHYSICS
- G01—MEASURING; TESTING
- G01N—INVESTIGATING OR ANALYSING MATERIALS BY DETERMINING THEIR CHEMICAL OR PHYSICAL PROPERTIES
- G01N19/00—Investigating materials by mechanical methods
-
- G—PHYSICS
- G01—MEASURING; TESTING
- G01N—INVESTIGATING OR ANALYSING MATERIALS BY DETERMINING THEIR CHEMICAL OR PHYSICAL PROPERTIES
- G01N29/00—Investigating or analysing materials by the use of ultrasonic, sonic or infrasonic waves; Visualisation of the interior of objects by transmitting ultrasonic or sonic waves through the object
- G01N29/04—Analysing solids
- G01N29/07—Analysing solids by measuring propagation velocity or propagation time of acoustic waves
-
- G—PHYSICS
- G09—EDUCATION; CRYPTOGRAPHY; DISPLAY; ADVERTISING; SEALS
- G09B—EDUCATIONAL OR DEMONSTRATION APPLIANCES; APPLIANCES FOR TEACHING, OR COMMUNICATING WITH, THE BLIND, DEAF OR MUTE; MODELS; PLANETARIA; GLOBES; MAPS; DIAGRAMS
- G09B25/00—Models for purposes not provided for in G09B23/00, e.g. full-sized devices for demonstration purposes
Landscapes
- Life Sciences & Earth Sciences (AREA)
- Engineering & Computer Science (AREA)
- Physics & Mathematics (AREA)
- Health & Medical Sciences (AREA)
- Chemical & Material Sciences (AREA)
- General Physics & Mathematics (AREA)
- Analytical Chemistry (AREA)
- Biochemistry (AREA)
- General Health & Medical Sciences (AREA)
- Immunology (AREA)
- Pathology (AREA)
- General Life Sciences & Earth Sciences (AREA)
- Paleontology (AREA)
- Geology (AREA)
- Acoustics & Sound (AREA)
- Civil Engineering (AREA)
- General Engineering & Computer Science (AREA)
- Structural Engineering (AREA)
- Environmental & Geological Engineering (AREA)
- Mining & Mineral Resources (AREA)
- Remote Sensing (AREA)
- Food Science & Technology (AREA)
- Medicinal Chemistry (AREA)
- Business, Economics & Management (AREA)
- Educational Administration (AREA)
- Educational Technology (AREA)
- Theoretical Computer Science (AREA)
- Investigating Strength Of Materials By Application Of Mechanical Stress (AREA)
Abstract
本发明涉及一种基于土拱效应研究的新型活动门模型试验装置及方法,针对装置来说,其包括:模型箱、加载板、位移板、合金钢块,其被划分为与模型箱固定的固定块,以及与移动板固定的活动块;还包括伺服控制器、位移控制系统、基座、挡板、弯曲元固定系统、弯曲元端头固定槽、玻璃视窗、土压力传感器、位移传感器、高速相机、数字模拟信号同步采集器。针对试验方法来说,步骤为:S1:确定试验工况;S2:设置挡板间距;S3:设定填土密度;S4:高速相机开始拍照,传感器数据采集;S5:测量不同高度处土体的剪切波速,进而得到剪切模量沿高度的分布情况。本发明能够推进对土拱效应的研究,能考虑更多工况,适用范围更广。
Description
技术领域
本发明涉及地下空间开发模型试验领域,特别涉及一种研究土拱效应的新型活动门试验装置。
本发明还涉及基于上述试验装置的试验方法。
背景技术
土拱效应是广泛存在于地下工程中的一种应力转移现象。早在1884年,英国物理学家Robert就在散体材料中发现了这种应力转移现象,其发现粮仓底部的压力在粮仓高度大于底部直径两倍以后就不再增加,农业中将其称为“粮仓效应”。随后1936年,太沙基通过活动门试验首次开展了岩土工程中的拱效应研究。土拱效应是由于相邻土体发生相对位移导致剪应力的发展,而引起土中应力重分布的现象。相比于离心试验和足尺试验,活动门模型试验具有装置加工方便,操作简单,试验成本低,可直观获得土压力、土体位移和地表沉降等宏观结果的优点,因此大量学者在太沙基研究的基础上进一步开展了一系列活动门试验,对土拱效应进行大量研究。
已有的活动门试验装置中,大多是功能单一的单活动门或者活动门宽度和间距固定的多活动门装置,并且往往是人为地通过标尺和千斤顶来控制活动门的下移,不能灵活选择活动门的数量、宽度和间距,无法实现对活动门下移速度和下移量的准确控制。在地下工程如桩承式路堤填筑、洞室开挖中往往存在不均匀沉降,中间土体的沉降大于两侧土体的沉降,现有活动门装置通常不能考虑土的不均匀沉降。另外,现有活动门装置往往为了防止侧壁的影响而将宽度设置得很大,但不同性质的土类,土拱的影响范围不一样,如黏土中土拱的影响范围远小于砂土中土拱的影响范围,所以过大的试样宽度不利于黏性土活动门的试验效率,并且制样的均匀性较难保证。所以应根据不同的试验材料灵活选择模型的宽度。同时现有的活动门试验不能对模型箱中土体变形的发展演化与活动门位移进行全过程同步采集,而是人为控制活动门下移到某一特定位置后采集相应变形数据,较难得到活动门位移-土体变形相关的全过程数据,对于分析土拱效应的演化规律存在一定的限制。
土拱效应的影响高度是研究土拱效应的重要指标,然而目前的研究中对于土拱的影响高度的判定较多的是考虑土体内部的变形和应力,还没有考虑土体的刚度变化。而土拱效应不可避免地会引起土体刚度的变化,进而影响土层的变形及应力状态。因此,有必要将土体刚度变化纳入土拱效应模型试验中来考虑。
可见目前的活动门装置还不够智能化,能考虑的工况也较少,装置的试验效率和质量不高。
发明内容
本发明的目的是提供一种基于土拱效应研究的新型活动门模型试验装置,其能够推进对复杂地下工程中的土拱效应的进一步研究,更加智能高效,能考虑更多工况,适用范围更广。
本发明的另一个目的是提供基于上述试验装置的试验方法,其有利于使用上述试验装置,提高土拱效应的研究效率。
针对技术主题试验装置来说,一种基于土拱效应研究的新型活动门模型试验装置,包括:
用于填充土体的模型箱,土体分层填充于模型箱中;
用于模型箱中土体加载的加载板;
用于沿模型箱高度方向移动的位移板,在其上方填充土体;
合金钢块,其为多个,并连续铺设在模型箱底部,用于承接填充于模型箱中的土体,其被划分为与模型箱固定的固定块,以及与移动板固定的活动块,其中,活动块用作活动门;合金钢块上分布有用于对接模型箱和移动板的螺栓孔;
用于使位移板沿模型箱高度方向移动的伺服控制器;
用于控制伺服控制器的位移控制系统;
用于支撑模型箱的基座;
用于限制填充土体宽度的两个挡板,其设置在模型箱中,所述加载板的宽度与两挡板之间的宽度适配,以伸入模型箱中用于填充土体的加载;
弯曲元固定系统,其具有声波激发端头和接受端头,并由弯曲元引线引出,用于测量土体的剪切波速;
弯曲元端头固定槽,沿挡板高度间隔布设,两个挡板其中一个用于固定声波激发端头,另一个用于固定接受端头;
玻璃视窗,用于形成模型箱的前面板;
土压力传感器,其沿填充土体不同位置放置,以监测不同位置的土压力变化;
位移传感器,设置在填充土体表面,用于测量填充土体表面的沉降;
高速相机,其放置在玻璃视窗前,以采集图像数据;
数字模拟信号同步采集器,其用于同步接收模型箱中的土体位移数据,以及高速相机采集的图像数据。
作为试验装置进一步的改进,还包括:
垫脚,其为多个,并间隔布设在底板之下,间隔处预留有供叉车的货叉伸入的空间。
作为试验装置进一步的改进,还包括:
纠偏杠杆,其为四个,分别作用于位移板底面的四个角落,并能竖向滑动穿入基座上的纠偏套筒中,纠偏杠杆与纠偏套筒适配,以使位移板在下移过程中保持整体水平。
作为试验装置进一步的改进,所述伺服控制器为高精度伺服控制器,位移定位精度为0.05mm,位移速度在0.1mm/min-5mm/min范围内无级调节。
作为试验装置进一步的改进,挡板能相向移动,以调节填充土体的宽度,挡板与模型箱两侧壁之间设有伸缩支撑杆,以调节两个挡板之间的宽度。
作为试验装置进一步的改进,所述挡板的前后两侧、底面,以及两个挡板的相向侧壁上设有聚四氟乙烯板。
作为试验装置进一步的改进,所述加载板由加载装置驱动。
针对技术主题试验方法来说,具体包括如下步骤:
S1:根据试验研究的需求选择不同性质的土,以及确定相应的试验工况;
S2:根据工况设置挡板间距,活动块以及固定块的位置;
S3:设定填土密度,根据设定的填土密度进行分层填土,并在不同的位置高度布置土压力传感器,用于测量土体内部的应力变化;在填土表面不同位置布置位移传感器;
S4:在填土内部土体稳定后进行活动门的下移,在活动门下移前确认是否使用加载板进行加载;其中,活动门的下移速度和下移量通过位移控制系统提前设定;活动门下移的同时,高速相机开始拍照,传感器开始进行数据采集;
S5:在活动门下移到不同位置处时,通过弯曲元引线测量挡板不同高度处土体的剪切波速,进而得到剪切模量沿高度的分布情况;
S6:取出模型箱中土体,位移板复位,完成本次试验,准备下一次试验。
作为试验装置进一步的改进,S4中,通过加载板施加静荷载或动荷载,以研究静、动荷载条件下的土拱效应研究。
作为试验装置进一步的改进,S4中,在位移板下移的不同时刻选择将不同的固定块转换为活动块,以此模拟多活动门非同时下移情况下土拱间的相互作用;
或者控制中间活动块先位移,两侧的活动块后位移,模拟活动门上土体的差异沉降。
1、本发明使用高精度伺服控制器结合纠偏杠杆,可对活动门位移实现高精度智能控制,活动门位移速度可在0.1mm/min-5mm/min范围内无级调节,位移定位精度可达0.05mm。可根据需要调节活动门宽度、数量、间距,可满足不同工况下的活动门模型试验。
2、本发明可模拟不同活动门之间的差异沉降以研究土拱之间先后发展的相互影响,也可考虑活动门上土体的不均匀沉降对土拱效应的影响研究。也可通过调节活动门的位移速率模拟土体在不同沉降阶段的沉降速率。
3、本发明设计的加载板可结合加载装置对模型箱中的土体进行加载,可研究高应力条件下及动、静荷载下的土拱效应演化规律。
4、本发明将位移控制箱通过数字模拟信号同步采集器(DAQ)与高速相机相连,结合DIC(或PIV)技术,可得到活动门位移-土体变形相关的全过程数据,方便分析土拱效应的全过程演化规律。
5、本发明可根据不同性质的土灵活选取模型试样宽度,以保证制样均匀性和模型试验的效率。
6、本发明的方法中引入弯曲元声波测试系统,可无损检测土拱发展过程中土层波速(S波和P波)的变化以获取更多的试样参数(如剪切模量、泊松比等),进而提出一种确定土拱影响高度的新方法。
附图说明
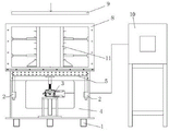
图1为实施例整体结构示意图。
图2为实施例加装挡板后的正视图。
图3为模型箱的俯视图。
图4为挡板俯视图。
图5为挡板正视图。
图6为挡板侧视图。
图7为位移板俯视图。
图8为位移板及合金钢块正视图。
图9为合金钢块正视图。
图10为合金钢块俯视图。
图11为合金钢块侧视图。
图12为试验流程图。
附图标记:1、垫脚;2、纠偏杠杆;3、伺服控制器;4、基座;5、位移板;6、合金钢块;7、模型箱;8、玻璃视窗;9、加载板;10、位移控制系统;11、挡板;12、高速相机;13、支撑杆;14、聚四氟乙烯板;15、弯曲元引线;16、弯曲元端头固定槽;17、螺栓孔。
具体实施方式
下面将结合本发明实施例中的附图,对本发明实施例中的技术方案进行清楚、完整地描述,显然,所描述的实施例仅仅是本发明一部分实施例,而不是全部的实施例。基于本发明中的实施例,本领域普通技术人员在没有作出创造性劳动前提下所获得的所有其他实施例,都属于本发明保护的范围。
在本发明的描述中,需要说明的是,术语“中心”、 “上”、“下”、 “左”、 “右”、 “竖直”、“水平”、 “内”、 “外”等指示的方位或位置关系为基于附图所示的方位或位置关系,仅是为了便于描述本发明和简化描述,而不是指示或暗示所指的装置或元件必须具有特定的方位、以特定的方位构造和操作,因此不能理解为对本发明的限制;术语“第一”、 “第二”、“第三”仅用于描述目的,而不能理解为指示或暗示相对重要性;此外,除非另有明确的规定和限定,术语“安装”、 “相连”、 “连接”应做广义理解,例如,可以是固定连接,也可以是可拆卸连接,或一体地连接;可以是机械连接,也可以是电连接;可以是直接相连,也可以通过中间媒介间接相连,可以是两个元件内部的连通。对于本领域的普通技术人员而言,可以具体情况理解上述术语在本发明中的具体含义。
实施例1
如图1-图12所示,一种基于土拱效应研究的新型活动门模型试验装置,其包括:
垫脚1,其作用使装置底面离地面一定的间距,便于在需要移动装置时可用叉车进行移动。
纠偏杠杆2,四个纠偏杠杆分别作用于位移板的底面四个角落,可使位移板在下移过程中保持整体水平。
高精度的伺服控制器3,位移定位精度0.05mm,位移速度可在0.1mm/min-5mm/min范围内无级调节,其上方连接位移板,结合纠偏杠杆,可实现对位移板的位移精确控制。
基座4,支撑整个模型箱,由钢板制成,可满足加载过程中的刚度和变形需求。
位移板5,位移板上方通过螺栓连接活动块,位移板带动活动块下移,模拟活动门的下移。
合金钢块6,两侧和底部分别有两个螺栓孔,两侧的螺栓孔用于作固定块时与模型箱连接,底部的螺栓孔用于作活动块时与位移板连接。位移板及合金钢块详图见图8。
模型箱7,前面由高强度钢化玻璃制成透明的玻璃视窗8,其余三面由钢板制成。
加载板9,可按实际需求确定加载板宽度。
位移控制系统10,用于精确控制伺服器的上升和下降,进而实现对位移板的精确控制。
挡板11,左右两侧挡板完全一样,可通过控制挡板后的支撑杆长度来改变挡板的距离。
本发明提到的装置由基座、玻璃视窗、合金钢块、位移板、高精度伺服控制器、纠偏杠杆、可移动挡板组成。模型箱内净空为1000mm×300mm×600mm(长×宽×高)。活动门由20块合金钢块组成,在合金钢块的下面分别是位移板、高精度伺服控制器和纠偏杠杆。合金钢块尺寸为50mm×300mm×120mm(长×宽×高),分为活动块(用螺栓与位移板连接)和固定块(固定于箱体上),可根据试验需要自由选取活动块和固定块,以此调整活动门宽度、数量(单活动门或多活动门)、间距。高精度伺服控制器最大位移。位移定位精度0.05mm,位移速度可在0.1mm/min-5mm/min范围内无级调节,伺服控制器上方焊接位移板,两侧辅以纠偏杠杆,防止位移板在下移过程中发生倾斜。伺服控制器与位移控制系统10的位移控制箱连接,通过控制箱控制位移速度和大小。本发明装置通过控制高精度伺服控制器缓慢均匀下沉,以此带动活动块向下位移,使土体内部产生差异沉降。本装置可在位移板下移的不同时刻选择将不同的固定块转换为活动块(改变螺栓位置),以此模拟多活动门非同时下移情况下土拱间的相互作用。当选择3块以上相邻合金钢块为活动块模拟活动门时,本装置可控制中间活动块先位移,两侧的活动块后位移,模拟活动门上土体的差异沉降。另外可在活动门位移过程中设置不同的位移速率,以模拟土体固结过程中沉降速率的变化。
模型试验中的模型越宽,用土量越大,试验的周期越长,并且制样的均匀性越难保证。所以为提高装置对不同性质的土体的土拱效应研究的广泛适用性,本发明的装置通过挡板后的伸缩支撑杆可调节挡板间距,据此可根据不同性质的土灵活选取模型试样的宽度,既能保证模型试验效率,又可保证制样的均匀性。另外,本发明在左右挡板的中间不同高度处设计了弯曲元端头固定槽,分别用于固定弯曲元系统中的声波激发端头和接受端头,引线从挡板后引出。弯曲元系统是一种检测速度快、无损的声波检测技术,其可以通过测量土体的剪切波速得到土体最大剪切模量(Gmax),以此来评估土体刚度。本发明通过在土体不同高度处进行弯曲元测试,以此得到随着土拱效应的发展,土体内部不同高度的刚度变化情况。本发明利用土层的刚度变化来分析不同工况下土拱影响高度的发展规律,弥补了单纯从应变和应力变化的角度分析土拱效应的不足。由于声波检测技术的便捷性,这种方法同样适用于三维土拱效应的研究。为避免声波信号沿着模型箱传递而绕过测试土体到达接受端造成信号干扰,本发明在挡板的底面和前后两侧,以及弯曲元端头固定槽的侧壁,都布置了一层聚四氟乙烯板,可有效防止信号沿模型箱传递而造成信号干扰,如图4所示。
本发明在模型箱内不同位置处放置土压力盒,监测土体变形过程中的土压力变化,通过磁吸支座在模型箱内安装激光位移计或者千分表来监测地表沉降。本发明通过数字模拟信号同步采集器(DAQ)将位移控制箱与高速相机相连,结合DIC(数字图像相关技术)或者PIV(Particle Image Velocimetry,又称粒子图像测速法)技术,得到活动门位移-土体变形相关的全过程数据,进而分析土拱效应的全过程演化规律。本发明可根据试样宽度选择不同的加载板对模型箱土体进行加载,进行高应力条件下的活动门试验以研究深层地下空间的土拱效应,也可进行静、动荷载条件下的土拱效应研究。
实施例2
在研究各种土层中土拱效应的发展规律时实施本发明,试验流程如图12所示。首先根据试验研究的需求选择不同性质的土,确定相应的试验工况。根据工况设置挡板11的间距,活动块及固定块的位置。然后根据设定的填土密度进行分层填土,并在不同的高度处布置土压力传感器,用于测土体内部的应力变化,填土表面不同位置布置位移传感器,用于测定填土表面的沉降情况。待填土内部土体稳定后可开始进行活动门的下移,如需要研究加载情况,则在活动门下移前,或者下移完成后对土体进行加载。活动门的下移速度和下移量通过位移控制系统提前设定,活动门下移的同时高速相机开始拍照,传感器开始进行数据采集。在活动门下移到不同位置处时,通过弯曲元引线15测量挡板11不同高度处土体的剪切波速,进而得到剪切模量(刚度)沿高度的分布情况。取出模型箱7中的土体,位移板5复位,完成本次试验,准备下一次试验。
本实施例可以自由搭配活动块和固定块的数量和位置,以此可灵活调整活动门的宽度、数量及间距(单活动门或多活动门)。
本实施例的高精度伺服控制器可实现对活动门位移及速度的高精度控制(速度范围0.1mm/min-5mm/min,定位精度0.05mm),在活动门下移的不同阶段可设置不同下移速度以模拟土体固结沉降过程中的沉降速率的变化。另外可选择在位移板不同位移量时将固定块转换为活动块(通过改变螺栓位置实现),以实现对单活动门上的土体不均匀沉降对土拱效应演化的影响研究,或者对多活动门非同时下移情况下土拱间的相互作用研究。
本实施例可搭配加载装置研究静、动荷载下土拱效应的演化规律,以及高低应力条件下土拱效应的演化规律。
另外,对于不同性质的试验材料(如砂土或黏土),根据不同的制样要求,使用本实施例的可移动挡板可选择不同模型试样的宽度,可同时保证不同材料制样的均匀性和模型试验效率。本实施例在挡板的不同高度处设计弯曲元端头固定槽16,研究土拱形成过程中土体内部的刚度变化,进而提出一种通过土体刚度变化来确定土拱影响高度的新方法。
以上内容是结合具体的优选实施方式对本发明所作的进一步详细说明,不能认定本发明的具体实施只局限于这些说明。对于本发明所属技术领域的技术人员来说,在不脱离本发明构思的前提下,还可以做出若干等同替代或明显变型,而且性能或用途相同,都应当视为属于本发明的保护范围之内。
Claims (10)
1.一种基于土拱效应研究的新型活动门模型试验装置,其特征在于包括:
用于填充土体的模型箱(7),土体分层填充于模型箱(7)中;
用于模型箱(7)中土体加载的加载板(9);
用于沿模型箱(7)高度方向移动的位移板(5),在其上方填充土体;
合金钢块(6),其为多个,并连续铺设在模型箱(7)底部,用于承接填充于模型箱(7)中的土体,其被划分为与模型箱(7)固定的固定块,以及与移动板(5)固定的活动块,其中,活动块用作活动门,合金钢块(6)上分布有用于对接模型箱(7)和移动板(5)的螺栓孔(17);
用于使位移板(5)沿模型箱(7)高度方向移动的伺服控制器(3);
用于控制伺服控制器(3)的位移控制系统(10);
用于支撑模型箱(7)的基座(4);
用于限制填充土体宽度的两个挡板(11),其设置在模型箱(7)中,所述加载板(9)的宽度与两挡板(11)之间的宽度适配,以伸入模型箱(7)中用于填充土体的加载;
弯曲元固定系统,其具有声波激发端头和接受端头,并由弯曲元引线(15)引出,用于测量土体的剪切波速;
弯曲元端头固定槽(16),沿挡板(11)高度间隔布设,两个挡板(11)其中一个用于固定声波激发端头,另一个用于固定接受端头;
玻璃视窗(8),用于形成模型箱(7)的前面板;
土压力传感器,其沿填充土体不同位置放置,以监测不同位置的土压力变化;
位移传感器,设置在填充土体表面,用于测量填充土体表面的沉降;
高速相机(12),其放置在玻璃视窗(8)前,以采集图像数据;
数字模拟信号同步采集器,其用于同步接收模型箱(7)中的土体位移数据,以及高速相机采集的图像数据。
2.根据权利要求1所述一种基于土拱效应研究的新型活动门模型试验装置,其特征在于还包括:
垫脚(1),其为多个,并间隔布设在底板之下,间隔处预留有供叉车的货叉伸入的空间。
3.根据权利要求1所述一种基于土拱效应研究的新型活动门模型试验装置,其特征在于还包括:
纠偏杠杆(2),其为四个,分别作用于位移板(5)底面的四个角落,并能竖向滑动穿入基座(4)上的纠偏套筒中,纠偏杠杆(2)与纠偏套筒适配,以使位移板在下移过程中保持整体水平。
4.根据权利要求1所述基于土拱效应研究的新型活动门模型试验装置,其特征在于所述伺服控制器(3)为高精度伺服控制器,位移定位精度为0.05mm,位移速度在0.1mm/min-5mm/min范围内无级调节。
5.根据权利要求1所述一种基于土拱效应研究的新型活动门模型试验装置,其特征在于挡板(11)能相向移动,以调节填充土体的宽度,挡板(11)与模型箱(7)两侧壁之间设有可伸缩的支撑杆(13),以调节两个挡板(11)之间的宽度。
6.根据权利要求1所述一种基于土拱效应研究的新型活动门模型试验装置,其特征在于所述挡板(11)的前后两侧、底面,以及两个挡板(11)的相向侧壁上设有聚四氟乙烯板(14)。
7.根据权利要求1所述基于土拱效应研究的新型活动门模型试验装置,其特征在于所述加载板(9)由加载装置驱动。
8.一种基于权利要求1所述试验装置的试验方法,其特征在于,具体包括如下步骤:
S1:根据试验研究的需求选择不同性质的土,以及确定相应的试验工况;
S2:根据工况设置挡板(11)间距,活动块以及固定块的位置;
S3:设定填土密度,根据设定的填土密度进行分层填土,并在不同的位置高度布置土压力传感器,用于测量土体内部的应力变化;在填土表面不同位置布置位移传感器;
S4:在填土内部土体稳定后进行活动门的下移,在活动门下移前确认是否使用加载板(9)进行加载;其中,活动门的下移速度和下移量通过位移控制系统(10)提前设定;活动门下移的同时,高速相机开始拍照,传感器开始进行数据采集;
S5:在活动门下移到不同位置处时,通过弯曲元引线测量挡板(11)不同高度处土体的剪切波速,进而得到剪切模量沿高度的分布情况;
S6:取出模型箱(7)中土体,位移板(5)复位,完成本次试验,准备下一次试验。
9.根据权利要求8所述试验方法,其特征在于S4中,通过加载板(9)施加静荷载或动荷载,以研究静、动荷载条件下的土拱效应研究。
10.根据权利要求8所述试验方法,其特征在于S4中,在位移板下移的不同时刻选择将不同的固定块转换为活动块,以此模拟多活动门非同时下移情况下土拱间的相互作用;
或者控制中间活动块先位移,两侧的活动块后位移,模拟活动门上土体的差异沉降。
Priority Applications (1)
| Application Number | Priority Date | Filing Date | Title |
|---|---|---|---|
| CN202211270965.3A CN115343448B (zh) | 2022-10-18 | 2022-10-18 | 一种基于土拱效应研究的新型活动门模型试验装置及方法 |
Applications Claiming Priority (1)
| Application Number | Priority Date | Filing Date | Title |
|---|---|---|---|
| CN202211270965.3A CN115343448B (zh) | 2022-10-18 | 2022-10-18 | 一种基于土拱效应研究的新型活动门模型试验装置及方法 |
Publications (2)
| Publication Number | Publication Date |
|---|---|
| CN115343448A true CN115343448A (zh) | 2022-11-15 |
| CN115343448B CN115343448B (zh) | 2023-03-17 |
Family
ID=83957451
Family Applications (1)
| Application Number | Title | Priority Date | Filing Date |
|---|---|---|---|
| CN202211270965.3A Active CN115343448B (zh) | 2022-10-18 | 2022-10-18 | 一种基于土拱效应研究的新型活动门模型试验装置及方法 |
Country Status (1)
| Country | Link |
|---|---|
| CN (1) | CN115343448B (zh) |
Cited By (4)
| Publication number | Priority date | Publication date | Assignee | Title |
|---|---|---|---|---|
| CN115821884A (zh) * | 2022-11-23 | 2023-03-21 | 广州地铁设计研究院股份有限公司 | 一种桩间土成拱效应的模型试验判别方法 |
| CN117291039A (zh) * | 2023-09-27 | 2023-12-26 | 深圳大学 | 一种三维土拱效应的立体活动门试验方法、装置及介质 |
| CN117571486A (zh) * | 2023-11-16 | 2024-02-20 | 华北科技学院(中国煤矿安全技术培训中心) | 活动门试验模型界面压力分布高精量测装置及试验方法 |
| CN120064611A (zh) * | 2025-04-27 | 2025-05-30 | 华东交通大学 | 一种耦合作用下路堤桩间土土拱效应预测方法及系统 |
Citations (24)
| Publication number | Priority date | Publication date | Assignee | Title |
|---|---|---|---|---|
| US4507019A (en) * | 1983-02-22 | 1985-03-26 | Expand-A-Line, Incorporated | Method and apparatus for replacing buried pipe |
| CN101108710A (zh) * | 2007-05-30 | 2008-01-23 | 广州市京龙工程机械有限公司 | 双导轨架升降机及其自动调平控制方法 |
| CN105715026A (zh) * | 2016-04-13 | 2016-06-29 | 上海建工五建集团有限公司 | 一种双导架施工升降平台 |
| CN106053205A (zh) * | 2016-05-17 | 2016-10-26 | 南京林业大学 | 一种自平衡杠杆式加载装置及其使用方法 |
| CN106065574A (zh) * | 2016-06-17 | 2016-11-02 | 柳州黔桥工程材料有限公司 | 步履顶推施工过拼板的方法 |
| CN107024574A (zh) * | 2017-05-01 | 2017-08-08 | 刘华 | 一种土拱效应模拟试验装置及试验方法 |
| CN107202737A (zh) * | 2017-05-04 | 2017-09-26 | 同济大学 | 一种基于透明土技术的动力土拱模型试验系统及方法 |
| CN107315082A (zh) * | 2017-07-24 | 2017-11-03 | 武汉理工大学 | 一种三维阵列式多沉陷门模型试验系统 |
| CN107748135A (zh) * | 2017-12-06 | 2018-03-02 | 山东大学 | 一种多位移模式下土拱效应探究装置及试验方法 |
| CN108569631A (zh) * | 2018-04-12 | 2018-09-25 | 上海耐斯特液压设备有限公司 | 用于大型塔吊加节升高的高精度液压同步系统及顶升控制方法和加节升高方法 |
| US20180306653A1 (en) * | 2015-11-20 | 2018-10-25 | Shenzhen University | Zero-strain soil pressure sensor |
| CN108761032A (zh) * | 2018-04-25 | 2018-11-06 | 同济大学 | 一种模拟动力土拱效应退化规律的试验系统 |
| WO2019015511A1 (zh) * | 2017-07-17 | 2019-01-24 | 河海大学 | 一种可灵活操作的三维土拱效应研究试验装置及操作方法 |
| CN109610834A (zh) * | 2019-02-02 | 2019-04-12 | 南通职业大学 | 多层大跨重载混凝土结构的高空施工方法 |
| CN208818715U (zh) * | 2018-08-17 | 2019-05-03 | 山东建筑大学 | 抗滑桩土拱效应演化机理可视化模型试验装置 |
| CN110954676A (zh) * | 2019-12-03 | 2020-04-03 | 同济大学 | 用于模拟盾构下穿既有隧道施工可视化试验装置 |
| CN211074376U (zh) * | 2019-10-30 | 2020-07-24 | 广州松洛特电子科技有限公司 | 一种电视机外壳生产用模具的定位装置 |
| JP6808150B1 (ja) * | 2019-11-08 | 2021-01-06 | 厦門儒也斯水晶有限公司 | 耐火レンガに対する高圧成形と高温焼成を行う製造設備 |
| CN212387639U (zh) * | 2020-03-18 | 2021-01-22 | 罗建伟 | 一种环保机械维修用升降台装置 |
| CN113776965A (zh) * | 2021-09-27 | 2021-12-10 | 湖北工业大学 | 一种载荷作用下涵洞土拱变化规律的模拟试验装置及方法 |
| CN215515991U (zh) * | 2021-08-10 | 2022-01-14 | 南京梦和电子科技有限公司 | 一种具有补救纠偏功能的非晶合金带材收卷装置 |
| CN114809129A (zh) * | 2022-05-19 | 2022-07-29 | 湖南大学 | 考虑不均匀沉降对土拱效应影响的弹簧活动门试验装置 |
| CN114859017A (zh) * | 2022-07-06 | 2022-08-05 | 湖南大学 | 一种地层应力场和位移场控制试验装置及方法 |
| CN114965953A (zh) * | 2022-05-19 | 2022-08-30 | 湖南大学 | 渗流作用下不均匀沉降对土拱效应影响的活动门试验装置 |
-
2022
- 2022-10-18 CN CN202211270965.3A patent/CN115343448B/zh active Active
Patent Citations (25)
| Publication number | Priority date | Publication date | Assignee | Title |
|---|---|---|---|---|
| US4507019B1 (zh) * | 1983-02-22 | 1987-12-08 | ||
| US4507019A (en) * | 1983-02-22 | 1985-03-26 | Expand-A-Line, Incorporated | Method and apparatus for replacing buried pipe |
| CN101108710A (zh) * | 2007-05-30 | 2008-01-23 | 广州市京龙工程机械有限公司 | 双导轨架升降机及其自动调平控制方法 |
| US20180306653A1 (en) * | 2015-11-20 | 2018-10-25 | Shenzhen University | Zero-strain soil pressure sensor |
| CN105715026A (zh) * | 2016-04-13 | 2016-06-29 | 上海建工五建集团有限公司 | 一种双导架施工升降平台 |
| CN106053205A (zh) * | 2016-05-17 | 2016-10-26 | 南京林业大学 | 一种自平衡杠杆式加载装置及其使用方法 |
| CN106065574A (zh) * | 2016-06-17 | 2016-11-02 | 柳州黔桥工程材料有限公司 | 步履顶推施工过拼板的方法 |
| CN107024574A (zh) * | 2017-05-01 | 2017-08-08 | 刘华 | 一种土拱效应模拟试验装置及试验方法 |
| CN107202737A (zh) * | 2017-05-04 | 2017-09-26 | 同济大学 | 一种基于透明土技术的动力土拱模型试验系统及方法 |
| WO2019015511A1 (zh) * | 2017-07-17 | 2019-01-24 | 河海大学 | 一种可灵活操作的三维土拱效应研究试验装置及操作方法 |
| CN107315082A (zh) * | 2017-07-24 | 2017-11-03 | 武汉理工大学 | 一种三维阵列式多沉陷门模型试验系统 |
| CN107748135A (zh) * | 2017-12-06 | 2018-03-02 | 山东大学 | 一种多位移模式下土拱效应探究装置及试验方法 |
| CN108569631A (zh) * | 2018-04-12 | 2018-09-25 | 上海耐斯特液压设备有限公司 | 用于大型塔吊加节升高的高精度液压同步系统及顶升控制方法和加节升高方法 |
| CN108761032A (zh) * | 2018-04-25 | 2018-11-06 | 同济大学 | 一种模拟动力土拱效应退化规律的试验系统 |
| CN208818715U (zh) * | 2018-08-17 | 2019-05-03 | 山东建筑大学 | 抗滑桩土拱效应演化机理可视化模型试验装置 |
| CN109610834A (zh) * | 2019-02-02 | 2019-04-12 | 南通职业大学 | 多层大跨重载混凝土结构的高空施工方法 |
| CN211074376U (zh) * | 2019-10-30 | 2020-07-24 | 广州松洛特电子科技有限公司 | 一种电视机外壳生产用模具的定位装置 |
| JP6808150B1 (ja) * | 2019-11-08 | 2021-01-06 | 厦門儒也斯水晶有限公司 | 耐火レンガに対する高圧成形と高温焼成を行う製造設備 |
| CN110954676A (zh) * | 2019-12-03 | 2020-04-03 | 同济大学 | 用于模拟盾构下穿既有隧道施工可视化试验装置 |
| CN212387639U (zh) * | 2020-03-18 | 2021-01-22 | 罗建伟 | 一种环保机械维修用升降台装置 |
| CN215515991U (zh) * | 2021-08-10 | 2022-01-14 | 南京梦和电子科技有限公司 | 一种具有补救纠偏功能的非晶合金带材收卷装置 |
| CN113776965A (zh) * | 2021-09-27 | 2021-12-10 | 湖北工业大学 | 一种载荷作用下涵洞土拱变化规律的模拟试验装置及方法 |
| CN114809129A (zh) * | 2022-05-19 | 2022-07-29 | 湖南大学 | 考虑不均匀沉降对土拱效应影响的弹簧活动门试验装置 |
| CN114965953A (zh) * | 2022-05-19 | 2022-08-30 | 湖南大学 | 渗流作用下不均匀沉降对土拱效应影响的活动门试验装置 |
| CN114859017A (zh) * | 2022-07-06 | 2022-08-05 | 湖南大学 | 一种地层应力场和位移场控制试验装置及方法 |
Non-Patent Citations (2)
| Title |
|---|
| 业渝光等: "《天然气水合物实验技术及应用》", 31 March 2011 * |
| 邵欣: "《PLC与工业机器人应用》", 30 September 2017 * |
Cited By (7)
| Publication number | Priority date | Publication date | Assignee | Title |
|---|---|---|---|---|
| CN115821884A (zh) * | 2022-11-23 | 2023-03-21 | 广州地铁设计研究院股份有限公司 | 一种桩间土成拱效应的模型试验判别方法 |
| CN115821884B (zh) * | 2022-11-23 | 2025-11-11 | 广州地铁设计研究院股份有限公司 | 一种桩间土成拱效应的模型试验判别方法 |
| CN117291039A (zh) * | 2023-09-27 | 2023-12-26 | 深圳大学 | 一种三维土拱效应的立体活动门试验方法、装置及介质 |
| CN117291039B (zh) * | 2023-09-27 | 2024-06-18 | 深圳大学 | 一种三维土拱效应的立体活动门试验方法、装置及介质 |
| CN117571486A (zh) * | 2023-11-16 | 2024-02-20 | 华北科技学院(中国煤矿安全技术培训中心) | 活动门试验模型界面压力分布高精量测装置及试验方法 |
| CN120064611A (zh) * | 2025-04-27 | 2025-05-30 | 华东交通大学 | 一种耦合作用下路堤桩间土土拱效应预测方法及系统 |
| CN120064611B (zh) * | 2025-04-27 | 2025-07-04 | 华东交通大学 | 一种耦合作用下路堤桩间土土拱效应预测方法及系统 |
Also Published As
| Publication number | Publication date |
|---|---|
| CN115343448B (zh) | 2023-03-17 |
Similar Documents
| Publication | Publication Date | Title |
|---|---|---|
| CN115343448B (zh) | 一种基于土拱效应研究的新型活动门模型试验装置及方法 | |
| CN102914632A (zh) | 一种多功能土工模型试验箱 | |
| CN107024574B (zh) | 一种土拱效应模拟试验装置及试验方法 | |
| CN105510219A (zh) | 一种可灵活控制底板升降和间距的循环模型试验方法 | |
| CN105986582B (zh) | 强夯加固不同地下水位地基室内模型装置及测试方法 | |
| CN102877492A (zh) | 一种负摩阻力桩土位移测量装置 | |
| CN110940571B (zh) | 一种模拟棚架结构动态土拱效应的试验装置 | |
| CN108505548A (zh) | 一种桩承式路堤桩土荷载比试验装置及试验方法 | |
| CN110565707A (zh) | 一种基于相似理论的基坑桩锚支护体系物理模拟装置及模拟方法 | |
| CN106769488A (zh) | 被动桩模型试验系统 | |
| CN219777501U (zh) | 一种用于测量土拱效应的活动门试验装置 | |
| Liu et al. | Centrifuge investigation of soil–foundation–superstructure interaction under static loading | |
| CN207051284U (zh) | 一种三维阵列式多沉陷门模型试验系统 | |
| CN110849729B (zh) | 一种基坑柔性挡墙墙后有限黏性土主被动土压力模型试验装置 | |
| CN113092148A (zh) | 可以模拟不同倾角断层的隧道开挖模型实验箱及使用方法 | |
| CN116952758A (zh) | 一种模拟地震载荷下被动桩端承拱效应的离心振动设备 | |
| CN116990489A (zh) | 高位滑坡失稳及运动模拟方法及装置 | |
| CN111366706A (zh) | 测量重叠隧道土拱效应的活动门装置及试验方法 | |
| CN113029780B (zh) | 一种土坡堆填过程模拟方法和装置 | |
| CN212008577U (zh) | 测量重叠隧道土拱效应的活动门装置 | |
| CN114264400A (zh) | 一种挖掘机挖掘阻力动态测试装置与测试方法 | |
| CN116754472A (zh) | 考虑库水与地震作用的基覆界面摩擦特性测试方法 | |
| CN111561865A (zh) | 一种液压支架梁端曲线的测量装置以及测量方法 | |
| CN214408964U (zh) | 一种土坡堆填过程模拟装置 | |
| CN208251186U (zh) | 一种桩承式路堤桩土荷载比试验装置 |
Legal Events
| Date | Code | Title | Description |
|---|---|---|---|
| PB01 | Publication | ||
| PB01 | Publication | ||
| SE01 | Entry into force of request for substantive examination | ||
| SE01 | Entry into force of request for substantive examination | ||
| GR01 | Patent grant | ||
| GR01 | Patent grant |