CN112144403A - Beam lifting station suitable for steel box girder web plate change and pushing process thereof - Google Patents
Beam lifting station suitable for steel box girder web plate change and pushing process thereof Download PDFInfo
- Publication number
- CN112144403A CN112144403A CN202010941376.8A CN202010941376A CN112144403A CN 112144403 A CN112144403 A CN 112144403A CN 202010941376 A CN202010941376 A CN 202010941376A CN 112144403 A CN112144403 A CN 112144403A
- Authority
- CN
- China
- Prior art keywords
- fixed
- steel box
- box girder
- support
- pair
- Prior art date
- Legal status (The legal status is an assumption and is not a legal conclusion. Google has not performed a legal analysis and makes no representation as to the accuracy of the status listed.)
- Granted
Links
Images
Classifications
-
- E—FIXED CONSTRUCTIONS
- E01—CONSTRUCTION OF ROADS, RAILWAYS, OR BRIDGES
- E01D—CONSTRUCTION OF BRIDGES, ELEVATED ROADWAYS OR VIADUCTS; ASSEMBLY OF BRIDGES
- E01D21/00—Methods or apparatus specially adapted for erecting or assembling bridges
-
- E—FIXED CONSTRUCTIONS
- E01—CONSTRUCTION OF ROADS, RAILWAYS, OR BRIDGES
- E01D—CONSTRUCTION OF BRIDGES, ELEVATED ROADWAYS OR VIADUCTS; ASSEMBLY OF BRIDGES
- E01D21/00—Methods or apparatus specially adapted for erecting or assembling bridges
- E01D21/06—Methods or apparatus specially adapted for erecting or assembling bridges by translational movement of the bridge or bridge sections
Landscapes
- Engineering & Computer Science (AREA)
- Architecture (AREA)
- Civil Engineering (AREA)
- Structural Engineering (AREA)
- Bridges Or Land Bridges (AREA)
Abstract
本发明公开了一种适用于钢箱梁腹板变化的提梁站,包括主梁、活动支撑、固定支撑、吊具、提升机构,所述固定支撑包括上下可拆卸连接的两部分,所述活动支撑下端设置为滑动支撑于顶推钢箱梁上,所述主梁沿桥梁的纵向设置,所述固定支撑和活动支撑的横向可调节宽度,所述吊具通过提升机构连接,所述提升机构设置为沿所述主梁纵向移动。本发明还公开了一种适用于钢箱梁腹板变化的提梁站的顶推工艺。本发明根据钢箱梁拼装腹板和顶推方向的需要,将提梁站设计为多种可调模式,以适应钢箱梁腹板宽度及位置变化,适应不同方向钢箱梁的顶推需求,而不需要反复拆装提梁站结构,在安全和高效的情况下,进行结构功能转换,保障施工需求。
The invention discloses a beam lifting station suitable for changing the web of a steel box girder, comprising a main beam, a movable support, a fixed support, a sling, and a lifting mechanism. The lower end of the support is arranged to be slidingly supported on the pushing steel box girder, the main beam is arranged along the longitudinal direction of the bridge, the lateral width of the fixed support and the movable support can be adjusted, the spreader is connected by a lifting mechanism, and the lifting mechanism It is arranged to move longitudinally along the main beam. The invention also discloses a jacking process of the beam lifting station suitable for the change of the web of the steel box beam. According to the needs of the steel box girder assembling web and the pushing direction, the present invention designs the beam lifting station into various adjustable modes, so as to adapt to the changes in the width and position of the steel box girder web, and to adapt to the pushing requirements of the steel box girder in different directions. There is no need to repeatedly disassemble and assemble the beam-lifting station structure, and in the case of safety and efficiency, the structural function conversion can be carried out to ensure the construction needs.
Description
技术领域technical field
本发明涉及桥梁施工设备领域。更具体地说,本发明涉及适用于钢箱梁腹板变化的提梁站及其顶推工艺。The invention relates to the field of bridge construction equipment. More specifically, the present invention relates to a beam lifting station and its jacking process suitable for changing the web of a steel box girder.
背景技术Background technique
在桥梁施工中,大节段钢箱梁构件整体提升或安装时,提梁站被广泛使用。而由于不同大节段箱梁的设计结构不同,特别是在一个位置对不同截面类型和受力特点的钢箱梁进行提升时,提梁站的结构布置、及对钢箱梁的受力安全都有一定的要求,以满足安全施工的要求。In bridge construction, beam lifting stations are widely used when large-section steel box girder members are lifted or installed as a whole. However, due to the different design structures of different large-segment box girders, especially when steel box girders with different cross-section types and stress characteristics are lifted at one location, the structural arrangement of the beam-lifting station and the force safety of the steel box girders are very important. There are certain requirements to meet the requirements of safe construction.
同时,在钢箱梁桥顶推施工时,对于支腿落于桥面上的提梁站结构,需适应顶推过程中提梁站与钢箱梁之间的位置关系变化,以避免不利受力形式的影响,保证结构安全。At the same time, during the jacking construction of the steel box girder bridge, for the girder station structure with the outriggers falling on the bridge deck, it is necessary to adapt to the change in the positional relationship between the girder station and the steel box girder during the jacking process, so as to avoid unfavorable stress patterns. impact to ensure structural safety.
通常用于顶推的钢箱梁提梁站由于钢箱梁宽度较宽,常采用一端支腿落于钢箱梁上另外一端固定的方式,仅适应向一个方向进行顶推,且提梁站支腿需对应钢箱梁腹板位置,当钢箱梁腹板宽度、位置和顶推方向变化时,之前的结构往往不再适应提升及顶推工艺,需对原结构受力形式进行变换,以满足新的需求。The steel box girder beam lifting station usually used for jacking is often used in that one end of the outrigger falls on the steel box girder and the other end is fixed due to the wide width of the steel box girder. It needs to correspond to the position of the steel box girder web. When the width, position and pushing direction of the steel box girder web change, the previous structure is often no longer suitable for the lifting and pushing process. new demands.
发明内容SUMMARY OF THE INVENTION
本发明的一个目的是提供适用于钢箱梁腹板变化的提梁站及其顶推工艺,根据钢箱梁拼装腹板和顶推方向的需要,将提梁站设计为多种可调模式,以适应钢箱梁腹板宽度及位置变化,适应不同方向钢箱梁的顶推需求,而不需要反复拆装提梁站结构,在安全和高效的情况下,进行结构功能转换,保障施工需求。One object of the present invention is to provide a beam lifting station and its jacking process suitable for the change of the web of the steel box girder. It adapts to the changes in the web width and position of the steel box girder, and adapts to the pushing requirements of the steel box girder in different directions, without the need to repeatedly disassemble and assemble the beam-lifting station structure.
为了实现根据本发明的这些目的和其它优点,提供了一种适用于钢箱梁腹板变化的提梁站,包括主梁、活动支撑、固定支撑、吊具、提升机构,所述固定支撑包括上下可拆卸连接的两部分,所述固定支撑下端设置为可拆卸固定于临时墩上,所述活动支撑下端设置为滑动支撑于顶推钢箱梁上,所述主梁沿桥梁的纵向设置且两端分别连接于所述固定支撑和活动支撑上端,所述固定支撑和活动支撑的横向包括多个结构单元可拆卸组合以使得所述固定支撑和活动支撑调节横向宽度,所述吊具通过提升机构连接,所述提升机构设置为沿所述主梁纵向移动,所述吊具用于起吊钢箱梁。In order to achieve these objects and other advantages according to the present invention, there is provided a beam lifting station suitable for changing the web of a steel box girder, comprising a main beam, a movable support, a fixed support, a spreader, and a lifting mechanism, the fixed support including upper and lower The two parts are detachably connected, the lower end of the fixed support is arranged to be detachably fixed on the temporary pier, the lower end of the movable support is arranged to be slidably supported on the pushing steel box girder, the main beam is arranged along the longitudinal direction of the bridge and two The ends are respectively connected to the upper ends of the fixed support and the movable support. The horizontal direction of the fixed support and the movable support includes a plurality of structural units that can be detachably combined so that the fixed support and the movable support can adjust the lateral width. connected, the lifting mechanism is arranged to move longitudinally along the main beam, and the spreader is used for lifting the steel box beam.
优选的是,所述活动支撑包括一对活动支腿,其沿横向间隔设置,一对活动支腿通过长度可调的联系横梁连接,所述固定支撑包括一对固定支腿,其沿横向间隔设置,一对固定支腿上部也通过长度可调的联系横梁连接,所述主梁为一对且沿横向间隔设置,每对主梁均包括一对纵梁,一对纵梁通过多根横联连接为一体,每对主梁的两端分别对应连接同一纵向的一个固定支腿和一个活动支腿。Preferably, the movable support includes a pair of movable legs, which are arranged at intervals along the lateral direction, and the pair of movable legs is connected by a connecting beam with an adjustable length, and the fixed support includes a pair of fixed legs that are spaced apart along the lateral direction. The upper part of a pair of fixed legs is also connected by connecting beams with adjustable lengths, the main beams are a pair and are arranged at intervals along the transverse direction, each pair of main beams includes a pair of longitudinal beams, and a pair of longitudinal beams pass through a plurality of transverse beams. The connection is integrated as a whole, and the two ends of each pair of main beams are respectively connected to a fixed leg and a movable leg in the same longitudinal direction.
优选的是,所述活动支撑上端与所述主梁之间通过两个或一个铰支座连接,所述固定支撑上端与所述主梁之间通过一个或两个铰支座连接。Preferably, the upper end of the movable support and the main beam are connected by two or one hinge supports, and the upper end of the fixed support and the main beam are connected by one or two hinge supports.
优选的是,所述固定支腿包括从下至上依次设置的横移滑船、分配梁、钢管立柱、纵移滑座、固定架、铰支座,所述钢管立柱为四根且构成框架结构,所述分配梁为沿纵向相对设置的一对,一对分配梁分别固定连接同一横向的两根钢管立柱下端,所述分配梁下对应每根钢管立柱的位置均设置一个横移滑船,其设置为与轨道配合滑动,所述固定架可拆卸连接于四根钢管立柱的顶端,所述铰支座连接所述主梁与所述固定架的顶端,所述纵移滑座铰接于所述固定架的底部中心,所述联系横梁连接于所述固定架上。Preferably, the fixed outriggers include a transverse sliding boat, a distribution beam, a steel pipe column, a longitudinal sliding seat, a fixed frame, and a hinge support arranged in sequence from bottom to top, and the steel pipe columns are four and form a frame structure , the distribution beams are a pair arranged opposite to each other in the longitudinal direction, and the pair of distribution beams are respectively fixed and connected to the lower ends of two steel pipe columns in the same transverse direction, and a transverse skid is arranged under the distribution beams corresponding to the positions of each steel pipe column. In order to cooperate and slide with the track, the fixing frame is detachably connected to the top ends of the four steel pipe columns, the hinge support connects the main beam and the top end of the fixing frame, and the longitudinal sliding seat is hinged to the fixing frame. The bottom center of the frame, the connecting beam is connected to the fixing frame.
优选的是,所述活动支腿包括从下至上依次设置的横移滑船、纵移滑座、分配梁、钢管立柱、铰支座,所述钢管立柱为四根且构成框架结构,所述分配梁为沿纵向相对设置的一对,一对分配梁分别固定连接同一横向的两根钢管立柱下端,同一横向的所述分配梁下对应两根钢管立柱的位置分别设置两个横移滑船和两个纵移滑座,所述铰支座连接所述主梁与所述钢管立柱的顶端。Preferably, the movable outriggers include a transverse sliding boat, a longitudinal sliding seat, a distribution beam, a steel pipe column, and a hinge support, which are arranged in sequence from bottom to top, and the steel pipe columns are four and constitute a frame structure. The distribution beams are a pair arranged opposite to each other in the longitudinal direction. The pair of distribution beams are respectively fixed and connected to the lower ends of the two steel pipe uprights in the same transverse direction. Two transverse sliding skids and two steel pipe uprights are respectively arranged under the distribution beams in the same transverse direction at the positions corresponding to the two steel pipe uprights. A longitudinal sliding seat, the hinge support connects the main beam and the top end of the steel pipe column.
优选的是,所述活动支腿下端通过滑移轨道滑动支撑于顶推钢箱梁上,所述滑移轨道与所述钢箱梁可拆卸连接,所述滑移轨道为拼装结构。Preferably, the lower ends of the movable legs are slidably supported on the pushing steel box girder through a sliding track, the sliding track is detachably connected to the steel box girder, and the sliding track is an assembled structure.
优选的是,所述提升机构通过纵向调位系统沿主梁纵向移动,所述纵向调位系统包括纵移轨道、调位底座、连接梁、调位反力座及调位油缸,所述纵移轨道纵向铺设于所述主梁上,所述调位底座为一对且间隔滑动设置于所述纵移轨道上,一对调位底座通过连接梁连接,所述调位反力座固定于所述主梁上,所述调位油缸缸体固定于所述调位反力座上,所述调位油缸伸缩杆连接所述调位底座,所述提升机构固定于所述调位底座上。Preferably, the lifting mechanism moves longitudinally along the main beam through a longitudinal positioning system, and the longitudinal positioning system includes a longitudinal moving rail, a positioning base, a connecting beam, a positioning reaction force seat and a positioning oil cylinder. The shifting rails are laid longitudinally on the main beam, the position-adjusting bases are a pair and are slidably arranged on the longitudinal shifting rails at intervals. On the main beam, the position adjustment oil cylinder body is fixed on the position adjustment reaction force seat, the position adjustment oil cylinder telescopic rod is connected to the position adjustment base, and the lifting mechanism is fixed on the position adjustment base.
优选的是,所述吊具包括连接锚头、配合梁、耳板,所述连接锚头与提升机构连接,所述配合梁中部与连接锚头通过销轴连接,所述耳板为3组且间隔设置于所述配合梁上,每组耳板与钢箱梁通过连接销轴连接。Preferably, the spreader includes a connecting anchor head, a matching beam, and an ear plate, the connecting anchor head is connected with the lifting mechanism, the middle part of the matching beam and the connecting anchor head are connected by a pin, and the ear plates are in three groups and are arranged on the matching beams at intervals, and each group of ear plates is connected with the steel box beam by connecting pins.
优选的是,所述固定支腿通过临时支座和精轧螺纹钢锚固于临时墩上,所述临时支座支撑于所述分配梁与临时墩上表面之间,所述精轧螺纹钢螺纹连接所述分配梁与所述临时墩。Preferably, the fixed legs are anchored on the temporary pier through a temporary bearing and a finishing threaded steel, the temporary bearing is supported between the distribution beam and the upper surface of the temporary pier, and the finishing threaded steel is threaded. Connect the distribution beam to the temporary pier.
本发明还公开了一种适用于钢箱梁腹板变化的提梁站顶推工艺,包括如下步骤:The invention also discloses a beam-lifting station jacking process suitable for the change of the web of the steel box girder, comprising the following steps:
步骤一:活动支腿侧顶推完成,解除固定支腿的锁定,也就是拆除临时支座和精轧螺纹钢,同时分别拆除活动支腿和固定支腿的联系横梁,将提梁站转换为横向两侧的支腿受力;Step 1: The side push of the movable outrigger is completed, and the locking of the fixed outrigger is released, that is, the temporary support and the finishing rebar are removed. The outriggers on both sides are stressed;
步骤二:提梁站横向两侧的主梁以及活动支腿和固定支腿分别进行横移,横移到满足钢箱梁腹板要求后,安装临时锁定,固定各支腿,再安装联系横梁连接横向两侧的固定支腿或活动支腿;Step 2: The main beams, movable outriggers and fixed outriggers on the lateral sides of the beam-lifting station are moved laterally respectively. After the lateral movement meets the requirements of the steel box girder web, install temporary locking, fix each leg, and then install the connection beam connection Fixed outriggers or movable outriggers on both lateral sides;
步骤三:提梁站主梁下方的活动支腿和固定支腿铰支座进行转换,准备换向,将活动支腿侧的拼装平台安装至固定支腿侧,并进行顶推准备;Step 3: Convert the movable outrigger and the fixed outrigger hinge support under the main beam of the beam-lifting station to prepare for reversing, install the assembly platform on the movable outrigger side to the fixed outrigger side, and prepare for pushing;
步骤四:顶推准备完成后,将顶推导梁的一对纵梁分别从一对固定支腿内部的空间穿过,再安装一对主梁之间的横梁;Step 4: After the jacking preparation is completed, pass the pair of longitudinal beams of the jacking guide beam through the space inside the pair of fixed legs respectively, and then install the cross beam between the pair of main beams;
步骤五:在导梁的纵梁上铺设滑移轨道,固定支腿上的纵移滑座配合于滑移轨道上,拆除固定支腿下部结构,钢箱梁正常安装并向前顶推。Step 5: Lay the sliding track on the longitudinal beam of the guide beam, the longitudinal sliding seat on the fixed outrigger is matched with the sliding track, remove the lower structure of the fixed outrigger, and install the steel box girder normally and push it forward.
本发明至少包括以下有益效果:The present invention includes at least the following beneficial effects:
本发明的提梁站可适应钢箱梁顶推施工时,钢箱梁高度及坡度的变化,也可适应钢箱梁不同腹板宽度和腹板宽度变化的不利影响,同时也能够满足不同顶推方向变化后受力体系改变的影响、尤其是多联变腹板钢箱梁双向顶推施工时,通过本设计方式可实现在一个点位进行提梁站的吊装作业和提梁站宽度和顶推方向的转化施工,不需要反复拆装,施工效率高。The beam lifting station of the invention can adapt to the changes of the height and slope of the steel box girder during the jacking construction of the steel box girder, and can also adapt to the adverse effects of different web widths and changes of the web width of the steel box girder. Influenced by the change of the force system after the direction change, especially when the multi-joint variable web steel box girder is pushed in both directions, this design method can realize the hoisting operation of the beam-lifting station and the width of the beam-lifting station and the direction of the jacking at one point. The transformation construction does not require repeated disassembly and assembly, and the construction efficiency is high.
本发明的其它优点、目标和特征将部分通过下面的说明体现,部分还将通过对本发明的研究和实践而为本领域的技术人员所理解。Other advantages, objects, and features of the present invention will appear in part from the description that follows, and in part will be appreciated by those skilled in the art from the study and practice of the invention.
附图说明Description of drawings
图1为本发明提梁站的整体结构示意图;Fig. 1 is the overall structure schematic diagram of the beam lifting station of the present invention;
图2为本发明固定支腿的主视图;Fig. 2 is the front view of the fixed outrigger of the present invention;
图3为本发明固定支腿未换向时的侧视图;Fig. 3 is the side view when the fixed outrigger of the present invention is not reversed;
图4为本发明固定支腿换向后的侧视图;Figure 4 is a side view of the fixed outrigger of the present invention after reversing;
图5为本发明活动支腿的主视图;Fig. 5 is the front view of the movable outrigger of the present invention;
图6为本发明活动支腿横向移动时的侧视图;Fig. 6 is the side view when the movable outrigger of the present invention moves laterally;
图7为本发明主梁的俯视图;Fig. 7 is the top view of the main beam of the present invention;
图8为本发明纵向调位系统的结构示意图;FIG. 8 is a schematic structural diagram of the longitudinal positioning system of the present invention;
图9为本发明吊具的结构示意图;Fig. 9 is the structural representation of the spreader of the present invention;
图10为本发明固定支腿锚固的结构示意图;10 is a schematic structural diagram of the anchoring of the fixed outriggers of the present invention;
图11为本发明活动支腿侧顶推结构示意图;Figure 11 is a schematic diagram of the side pushing structure of the movable outrigger of the present invention;
图12为本发明固定支腿侧顶推结构示意图;Figure 12 is a schematic diagram of the side push structure of the fixed outrigger of the present invention;
图13为本发明顶推工艺步骤一结构示意图;13 is a schematic structural diagram of step one of the jacking process of the present invention;
图14为本发明顶推工艺步骤三结构示意图;14 is a schematic structural diagram of step three of the jacking process of the present invention;
图15为本发明顶推工艺步骤四结构示意图;15 is a schematic structural diagram of step four of the jacking process of the present invention;
图16为本发明顶推工艺步骤五结构示意图。FIG. 16 is a schematic structural diagram of step five of the jacking process of the present invention.
附图标记说明:Description of reference numbers:
1、固定支腿,11、横移滑船,12、分配梁,13、钢管立柱,14、纵移滑座,15、固定架,16、铰支座,17、联系横梁,18、临时支座,19、精轧螺纹钢,2、活动支腿,3、主梁,4、钢箱梁,5、临时墩,6、提升机构,7、滑移轨道,8、吊具,81、连接锚头,82、配合梁,83、耳板,9、纵向调位系统,91、纵移轨道,92、调位底座,93、连接梁,94、调位反力座,95、调位油缸。1. Fixed outriggers, 11. Transverse skid, 12. Distribution beam, 13. Steel pipe column, 14. Longitudinal sliding seat, 15. Fixed frame, 16. Hinged support, 17. Connecting beam, 18. Temporary support Block, 19. Finishing rolled rebar, 2. Active outriggers, 3. Main beam, 4. Steel box girder, 5. Temporary pier, 6. Lifting mechanism, 7. Sliding track, 8. Spreader, 81. Connection Anchor head, 82, matching beam, 83, lug plate, 9, longitudinal adjustment system, 91, longitudinal movement track, 92, adjustment base, 93, connecting beam, 94, adjustment reaction force seat, 95, adjustment oil cylinder .
具体实施方式Detailed ways
下面结合附图对本发明做进一步的详细说明,以令本领域技术人员参照说明书文字能够据以实施。The present invention will be further described in detail below with reference to the accompanying drawings, so that those skilled in the art can implement it with reference to the description.
需要说明的是,下述实施方案中所述实验方法,如无特殊说明,均为常规方法,所述试剂和材料,如无特殊说明,均可从商业途径获得;在本发明的描述中,术语“横向”、“纵向”、“上”、“下”、“前”、“后”、“左”、“右”、“竖直”、“水平”、“顶”、“底”、“内”、“外”等指示的方位或位置关系为基于附图所示的方位或位置关系,仅是为了便于描述本发明和简化描述,并不是指示或暗示所指的装置或元件必须具有特定的方位、以特定的方位构造和操作,因此不能理解为对本发明的限制。It should be noted that the experimental methods described in the following embodiments are conventional methods unless otherwise specified, and the reagents and materials can be obtained from commercial sources unless otherwise specified; in the description of the present invention, The terms "landscape", "portrait", "top", "bottom", "front", "rear", "left", "right", "vertical", "horizontal", "top", "bottom", The orientation or positional relationship indicated by "inside" and "outside" is based on the orientation or positional relationship shown in the accompanying drawings, which is only for the convenience of describing the present invention and simplifying the description, and does not indicate or imply that the indicated device or element must have The particular orientation, construction and operation in the particular orientation are therefore not to be construed as limitations of the invention.
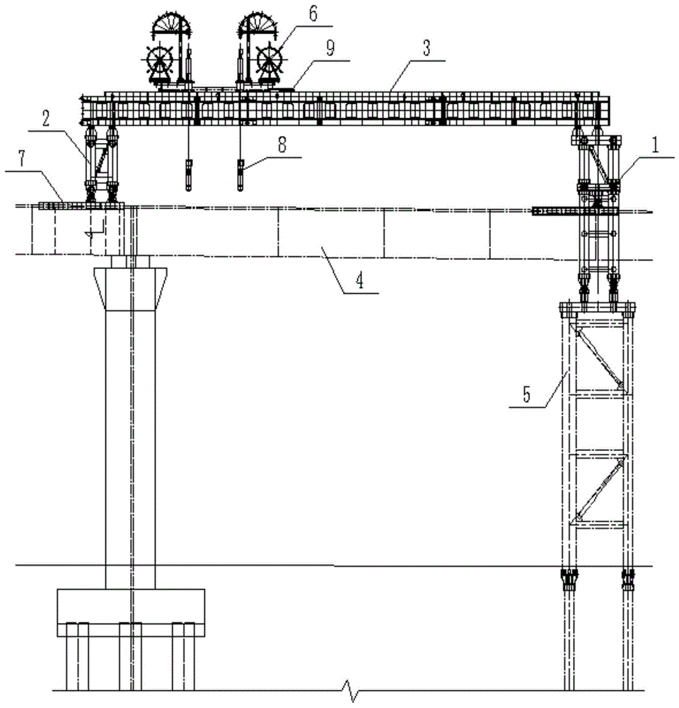
如图1所示,本发明提供一种适用于钢箱梁腹板变化的提梁站,包括主梁3、活动支撑、固定支撑、吊具8、提升机构6,所述固定支撑包括上下可拆卸连接的两部分,所述固定支撑下端设置为可拆卸固定于临时墩5上,所述活动支撑下端设置为滑动支撑于顶推钢箱梁4上,所述主梁3沿桥梁的纵向设置且两端分别连接于所述固定支撑和活动支撑上端,所述固定支撑和活动支撑的横向包括多个结构单元可拆卸组合以使得所述固定支撑和活动支撑调节横向宽度,所述吊具8通过提升机构6连接,所述提升机构6设置为沿所述主梁3纵向移动,所述吊具8用于起吊钢箱梁4。As shown in FIG. 1 , the present invention provides a beam lifting station suitable for changing the web of a steel box girder. The lower end of the fixed support is arranged to be detachably fixed on the
在上述技术方案中,如图1所示,固定支撑和活动支撑连接主梁3构成了整个提梁站的结构。换向过程为:如图11所示,活动支撑侧进行钢箱梁4顶推,此时固定支撑固定于临时墩5上不动,保证整个提梁站的稳定,活动支撑与钢箱梁4保持相对滑动,钢箱梁4上可设置轨道,活动支撑下端配合于轨道内滑动;如图12所示,进行顶推换向,固定支撑侧进行钢箱梁4顶推,首先将固定支撑上下两部分拆卸,下部分拆除,在钢箱梁4上设置滑轨,而固定支撑的上部分滑动位于钢箱梁4上,实现钢箱梁4的顶推,此时,活动支撑固定支撑于钢箱梁4上。钢箱梁4腹板变化过程:固定支撑和活动支撑的横向包括多个结构单元,并且可拆卸连接,根据钢箱梁4腹板变化,拆卸多余结构单元或者组装更多的结构单元实现提梁站适应钢箱梁4腹板的变化。通过吊具8将钢箱梁4与提梁站连接,通过提升机构6对钢箱梁4进行提升,并且提升机构6可沿主梁3纵向移动,实现钢箱梁4的纵向行走对位顶推,而提升机构6包括提升千斤顶系统和钢绞线卷绕装置,对钢箱梁4进行整体提升,提升千斤顶系统是将钢箱梁4向上提升的动力,而钢绞线卷绕装置是将提升千斤顶系统使用的钢绞线卷绕成盘,防止打搅或损坏。In the above technical solution, as shown in FIG. 1 , the fixed support and the movable support connecting the
在另一种技术方案中,如图2至7所示,所述活动支撑包括一对活动支腿2,其沿横向间隔设置,一对活动支腿2通过长度可调的联系横梁17连接,所述固定支撑包括一对固定支腿1,其沿横向间隔设置,一对固定支腿1上部也通过长度可调的联系横梁17连接,所述主梁3为一对且沿横向间隔设置,每对主梁3均包括一对纵梁,一对纵梁通过多根横联连接为一体,每对主梁3的两端分别对应连接同一纵向的一个固定支腿1和一个活动支腿2。In another technical solution, as shown in Figures 2 to 7, the movable support includes a pair of
在上述技术方案中,固定支撑和活动支撑均包括一对支腿,且一对支腿之间均通过联系横梁17连接,联系横梁17的长度可调也就是一对支腿之间的间距可调,也就是固定支撑和活动支撑的宽度可调以适应钢箱梁4腹板的变化。联系横梁17由多个结构单元可拆卸组装,根据需要组装成合适的长度以满足施工要求。主梁3主要包含纵梁和横联,纵梁主要承受吊装载荷,横联主要对纵梁起稳固作用。In the above technical solution, both the fixed support and the movable support include a pair of outriggers, and the pair of outriggers are connected by a connecting
在另一种技术方案中,如图11和图12所示,所述活动支撑上端与所述主梁3之间通过两个或一个铰支座16连接,所述固定支撑上端与所述主梁3之间通过一个或两个铰支座16连接。In another technical solution, as shown in FIGS. 11 and 12 , the upper end of the movable support and the
在上述技术方案中,如图11所示,活动支撑侧顶推时,为适应顶推过程中活动支撑与钢箱梁4高差和纵向位置的变化,固定支撑与主梁3连接处采用1个铰支座16连接,既固定支撑与主梁3之间铰接可转动,活动支撑与主梁3之间采用2个铰支座16铰接不可转动。当提梁站需要顶推方向转换时,需对固定支撑和活动支撑进行换向,此时,需同时对支撑与主梁3连接的铰支座16布置进行换向。如图12所示,此时固定支撑与主梁3连接处采用2个铰支座16连接,而活动支撑与主梁3连接处采用2个铰支座16连接。In the above technical solution, as shown in Figure 11, when the movable support side is pushed, in order to adapt to the change of the height difference and the longitudinal position between the movable support and the
在另一种技术方案中,如图2至4所示,所述固定支腿1包括从下至上依次设置的横移滑船11、分配梁12、钢管立柱13、纵移滑座14、固定架15、铰支座16,所述钢管立柱13为四根且构成框架结构,所述分配梁12为沿纵向相对设置的一对,一对分配梁12分别固定连接同一横向的两根钢管立柱13下端,所述分配梁12下对应每根钢管立柱13的位置均设置一个横移滑船11,其设置为与轨道配合滑动,所述固定架15可拆卸连接于四根钢管立柱13的顶端,所述铰支座16连接所述主梁3与所述固定架15的顶端,所述纵移滑座14固定于所述固定架15的底部中心,所述联系横梁17连接于所述固定架15上。In another technical solution, as shown in FIGS. 2 to 4 , the fixed outriggers 1 include a transverse sliding
在上述技术方案中,当原腹板宽度尺寸变化时,通过在固定支腿1和活动支腿2下端设置横移滑船11,并在钢箱梁4上铺设轨道,横移滑船11在轨道上滑动实现提梁站整体变宽调整,同时改变联系横梁17的长度,提梁站整体结构不需要反复拆装。横移滑船11主要用于提梁站变宽时,固定支腿1侧的整体调整。分配梁12用于支撑钢管立柱13,同时通过螺栓等于临时墩5固定连接,保证固定支撑的稳定支撑。钢管立柱13主要承受上部荷载。设置1个铰支座16用于适应顶推高度变化,设置2个铰支座16用于改变顶推方向后支腿固定。换向时,拆除下部钢管立柱13等结构,保留固定架15用于支撑,固定架15与钢箱梁4接触位置设置轨道和纵向滑座,可以纵向滑动,纵向滑座采用铰接,适应性钢箱梁4顶推时坡度变化,保证受力均匀。当原腹板位置由1道变为2道时,通过在新的腹板位置设置另外的滑轨进行受力转换,同时吊具8也设置分配梁12,适应腹板宽度位置变化。In the above technical solution, when the width of the original web changes, by setting the
在另一种技术方案中,如图5和图6所示,所述活动支腿2包括从下至上依次设置的横移滑船11、纵移滑座14、分配梁12、钢管立柱13、铰支座16,所述钢管立柱13为四根且构成框架结构,所述分配梁12为沿纵向相对设置的一对,一对分配梁12分别固定连接同一横向的两根钢管立柱13下端,同一横向的所述分配梁12下对应两根钢管立柱13的位置分别设置两个横移滑船11和两个纵移滑座14,所述铰支座16连接所述主梁3与所述钢管立柱13的顶端。In another technical solution, as shown in FIG. 5 and FIG. 6 , the
在上述技术方案中,活动支腿2与固定支腿1的主体结构相同,横移滑船11主要用于提梁站变宽时,活动支腿2侧的整体调整。纵移滑座14主要用于顶推过程中的纵向滑动,纵移滑座14与分配梁12之间为铰接,以适应角度变化的影响。分配梁12用于支撑钢管立柱13。钢管立柱13主要承受上部荷载。设置1个铰支座16用于改变顶推方向后适应顶推高度变化,设置2个铰支座16用于支腿固定。In the above technical solution, the main structure of the
在另一种技术方案中,所述活动支腿2下端通过滑移轨道7滑动支撑于顶推钢箱梁4上,所述滑移轨道7与所述钢箱梁4可拆卸连接,所述滑移轨道7为拼装结构。In another technical solution, the lower end of the
在上述技术方案中,通过铺设在钢箱梁4上滑移轨道7,在顶推过程中,保证与钢箱梁4相对滑动。钢箱梁4在活动支撑侧顶推时,活动支撑与滑移轨道7相对滑动设置,也就是纵移滑座14滑动设置于滑移轨道7上;钢箱梁4腹板宽度发生变化时,将滑移轨道7拆除沿横向布置,此时横移滑船11配合于滑移轨道7上滑动,实现活动支腿2的横向移动,进而实现适应腹板宽度变化。固定支撑侧在换向后,铺设滑移轨道7实现纵向相对移动。In the above technical solution, by laying the sliding rail 7 on the
在另一种技术方案中,如图8所示,所述提升机构6通过纵向调位系统9沿主梁3纵向移动,所述纵向调位系统9包括纵移轨道91、调位底座92、连接梁93、调位反力座94及调位油缸95,所述纵移轨道91纵向铺设于所述主梁3上,所述调位底座92为一对且间隔滑动设置于所述纵移轨道91上,一对调位底座92通过连接梁93连接,所述调位反力座94固定于所述主梁3上,所述调位油缸95缸体固定于所述调位反力座94上,所述调位油缸95伸缩杆连接所述调位底座92,所述提升机构6固定于所述调位底座92上。In another technical solution, as shown in FIG. 8 , the
在上述技术方案中,提梁站通过主梁3顶面的纵向调位系统9,调整钢箱梁4纵向位置。提升机构6可设置多个,相应的调位底座92也设置多个,相邻调位底座92之间通过连接梁93连接为一体,纵移轨道91安装固定在主梁3上方,通过调位油缸95的伸缩,调位底座92和调位反力座94可以在纵移轨道91上方滑移调位,以满足钢箱梁4纵向安装位置的需求。In the above technical solution, the beam lifting station adjusts the longitudinal position of the
在另一种技术方案中,如图9所示,所述吊具8包括连接锚头81、配合梁82、耳板83,所述连接锚头81与提升机构6连接,所述配合梁82中部与连接锚头81通过销轴连接,所述耳板83为3组且间隔设置于所述配合梁82上,每组耳板83与钢箱梁4通过连接销轴连接。In another technical solution, as shown in FIG. 9 , the
在上述技术方案中,连接锚头81主要与提升机构6的提升千斤顶下夹持锚连接。连接锚头81和配合梁82通过锚头连接销轴连接。配合梁82上有连接耳板83,分3组,主要适应单个位置和腹板变化后2个位置耳板83的连接,当个单个位置时连接于正中间的耳板83上,两个位置时连接于两侧的两个耳板83上。箱梁连接销轴将整个吊具8与钢箱梁4连接。In the above technical solution, the connecting
在另一种技术方案中,如图10所示,所述固定支腿1通过临时支座18和精轧螺纹钢19锚固于临时墩5上,所述临时支座18支撑于所述分配梁12与临时墩5上表面之间,所述精轧螺纹钢19螺纹连接所述分配梁12与所述临时墩5。In another technical solution, as shown in FIG. 10 , the fixed leg 1 is anchored on the
在上述技术方案中,通过临时支座18、精轧螺纹钢19共同作用,将提梁站固定支腿1锁定牢固,防止固定支腿1底部位置变动。还可设置限位卡板,其与底部的横移滑船11或纵移滑座14形状匹配,卡合于两侧对其进行限位。In the above technical solution, the
本发明还提供一种适用于钢箱梁腹板变化的提梁站顶推工艺,如图13至16所示,包括如下步骤:The present invention also provides a beam-lifting station jacking process suitable for changing the web of the steel box girder, as shown in Figures 13 to 16, including the following steps:
步骤一:活动支腿2侧顶推完成,解除固定支腿1的锁定,也就是拆除临时支座18和精轧螺纹钢19,同时分别拆除活动支腿2和固定支腿1的联系横梁17,将提梁站转换为横向两侧的支腿受力;Step 1: The side push of the
步骤二:提梁站横向两侧的主梁3以及活动支腿2和固定支腿1分别进行横移,横移到满足钢箱梁4腹板要求后,安装临时锁定,固定各支腿,再安装联系横梁17连接横向两侧的固定支腿1或活动支腿2;Step 2: The
步骤三:提梁站主梁3下方的活动支腿2和固定支腿1铰支座16进行转换,准备换向,将活动支腿2侧的拼装平台安装至固定支腿1侧,并进行顶推准备;Step 3: The
步骤四:顶推准备完成后,将顶推导梁的一对纵梁分别从一对固定支腿1内部的空间穿过,再安装一对主梁3之间的横梁;Step 4: After the jacking preparation is completed, pass the pair of longitudinal beams of the jacking guide beam through the space inside the pair of fixed legs 1 respectively, and then install the cross beam between the pair of
步骤五:在导梁的纵梁上铺设滑移轨道7,固定支腿1上的纵移滑座14配合于滑移轨道7上,拆除固定支腿1下部结构,钢箱梁4正常安装并向前顶推。Step 5: Lay the sliding rail 7 on the longitudinal beam of the guide beam, the longitudinal sliding
尽管本发明的实施方案已公开如上,但其并不仅仅限于说明书和实施方式中所列运用,它完全可以被适用于各种适合本发明的领域,对于熟悉本领域的人员而言,可容易地实现另外的修改,因此在不背离权利要求及等同范围所限定的一般概念下,本发明并不限于特定的细节和这里示出与描述的图例。Although the embodiment of the present invention has been disclosed as above, it is not limited to the application listed in the description and the embodiment, and it can be applied to various fields suitable for the present invention. For those skilled in the art, it can be easily Therefore, the invention is not limited to the specific details and illustrations shown and described herein without departing from the general concept defined by the appended claims and the scope of equivalents.
Claims (10)
Priority Applications (1)
| Application Number | Priority Date | Filing Date | Title |
|---|---|---|---|
| CN202010941376.8A CN112144403B (en) | 2020-09-09 | 2020-09-09 | Beam lifting station and jacking technology suitable for steel box beam web changes |
Applications Claiming Priority (1)
| Application Number | Priority Date | Filing Date | Title |
|---|---|---|---|
| CN202010941376.8A CN112144403B (en) | 2020-09-09 | 2020-09-09 | Beam lifting station and jacking technology suitable for steel box beam web changes |
Publications (2)
| Publication Number | Publication Date |
|---|---|
| CN112144403A true CN112144403A (en) | 2020-12-29 |
| CN112144403B CN112144403B (en) | 2024-12-27 |
Family
ID=73890102
Family Applications (1)
| Application Number | Title | Priority Date | Filing Date |
|---|---|---|---|
| CN202010941376.8A Active CN112144403B (en) | 2020-09-09 | 2020-09-09 | Beam lifting station and jacking technology suitable for steel box beam web changes |
Country Status (1)
| Country | Link |
|---|---|
| CN (1) | CN112144403B (en) |
Cited By (3)
| Publication number | Priority date | Publication date | Assignee | Title |
|---|---|---|---|---|
| CN116289584A (en) * | 2023-03-08 | 2023-06-23 | 中铁十四局集团第三工程有限公司 | Construction method for double-sliding installation of super-large-tonnage spherical bearings for high-speed railways |
| CN117286807A (en) * | 2023-11-01 | 2023-12-26 | 保利长大工程有限公司 | Bridge sliding equipment and bridge construction system |
| US12522990B1 (en) | 2024-09-14 | 2026-01-13 | Poly Changda Engineering Co., Ltd. | Bridge sliding device and a bridge construction system |
Citations (6)
| Publication number | Priority date | Publication date | Assignee | Title |
|---|---|---|---|---|
| CN101725115A (en) * | 2009-12-18 | 2010-06-09 | 中铁大桥局集团第二工程有限公司 | Fixed hoisting bracket device for pushing steel box girder and construction method thereof |
| KR101005111B1 (en) * | 2010-07-15 | 2010-12-30 | (주)동명기술공단종합건축사사무소 | Girder installation device and girder installation method using the same |
| CN102587291A (en) * | 2012-03-27 | 2012-07-18 | 中交四航局第一工程有限公司 | Walking type multipoint pushing construction method and walking type multipoint pushing construction system for steel box girder |
| CN103266573A (en) * | 2013-06-17 | 2013-08-28 | 中铁山桥集团有限公司 | Self-anchored suspension bridge steel box girder three-slideway synchronous jacking construction method |
| CN212404879U (en) * | 2020-09-09 | 2021-01-26 | 中交武汉港湾工程设计研究院有限公司 | Beam lifting station suitable for steel box girder web plate change |
| CN213804908U (en) * | 2020-09-09 | 2021-07-27 | 中交武汉港湾工程设计研究院有限公司 | Two-way jacking steel box girder beam lifting station |
-
2020
- 2020-09-09 CN CN202010941376.8A patent/CN112144403B/en active Active
Patent Citations (6)
| Publication number | Priority date | Publication date | Assignee | Title |
|---|---|---|---|---|
| CN101725115A (en) * | 2009-12-18 | 2010-06-09 | 中铁大桥局集团第二工程有限公司 | Fixed hoisting bracket device for pushing steel box girder and construction method thereof |
| KR101005111B1 (en) * | 2010-07-15 | 2010-12-30 | (주)동명기술공단종합건축사사무소 | Girder installation device and girder installation method using the same |
| CN102587291A (en) * | 2012-03-27 | 2012-07-18 | 中交四航局第一工程有限公司 | Walking type multipoint pushing construction method and walking type multipoint pushing construction system for steel box girder |
| CN103266573A (en) * | 2013-06-17 | 2013-08-28 | 中铁山桥集团有限公司 | Self-anchored suspension bridge steel box girder three-slideway synchronous jacking construction method |
| CN212404879U (en) * | 2020-09-09 | 2021-01-26 | 中交武汉港湾工程设计研究院有限公司 | Beam lifting station suitable for steel box girder web plate change |
| CN213804908U (en) * | 2020-09-09 | 2021-07-27 | 中交武汉港湾工程设计研究院有限公司 | Two-way jacking steel box girder beam lifting station |
Non-Patent Citations (1)
| Title |
|---|
| 王汉章;夏钦;易彤;潘学强;: "徐州北三环丁万河大桥主线钢箱梁双向滑移施工技术", 施工技术, no. 05, 10 March 2018 (2018-03-10) * |
Cited By (4)
| Publication number | Priority date | Publication date | Assignee | Title |
|---|---|---|---|---|
| CN116289584A (en) * | 2023-03-08 | 2023-06-23 | 中铁十四局集团第三工程有限公司 | Construction method for double-sliding installation of super-large-tonnage spherical bearings for high-speed railways |
| CN117286807A (en) * | 2023-11-01 | 2023-12-26 | 保利长大工程有限公司 | Bridge sliding equipment and bridge construction system |
| CN117286807B (en) * | 2023-11-01 | 2024-04-30 | 保利长大工程有限公司 | Bridge sliding equipment and bridge construction system |
| US12522990B1 (en) | 2024-09-14 | 2026-01-13 | Poly Changda Engineering Co., Ltd. | Bridge sliding device and a bridge construction system |
Also Published As
| Publication number | Publication date |
|---|---|
| CN112144403B (en) | 2024-12-27 |
Similar Documents
| Publication | Publication Date | Title |
|---|---|---|
| US11634877B2 (en) | Method for removal of temporary support system for road bridge pre-fabricated small box girder-type concealed bent cap, and equipment therefor | |
| CN109680568B (en) | Track beam linear adjustment device and method | |
| CN101603288B (en) | Three-truss main girder structure of highway and railway bi-purpose cable-stayed bridge and installation method thereof | |
| CN111038940B (en) | Rail-mounted traction system for hoisting and transporting | |
| CN112144403A (en) | Beam lifting station suitable for steel box girder web plate change and pushing process thereof | |
| US5511266A (en) | Continuous incrementally erecting viaduct construction system | |
| CN212404879U (en) | Beam lifting station suitable for steel box girder web plate change | |
| CN106917360A (en) | Lift leg formula frame plate machine and its frame plate method | |
| CN112573426A (en) | Partition plate hoisting device for building fabricated building | |
| CN209958161U (en) | Track beam linear adjustment equipment | |
| CN113774813A (en) | Traction deviation rectifying equipment convenient for installing large-section steel truss box girder | |
| CN103061262A (en) | Cable-crossing crane and application method thereof | |
| CN112681144B (en) | Self-climbing installation method of steel cable tower | |
| CN110438907B (en) | Deck type arch bridge construction method based on steel arch frame | |
| CN110565542B (en) | A hanging basket for cantilever casting continuous beams with small curvature radius | |
| CN210975557U9 (en) | Steel arch frame supporting and transverse moving system for construction of deck type box arch bridge | |
| CN110438908B (en) | Deck-type box-type arch bridge reconstruction construction method | |
| CN118600863A (en) | A bridge deck beam segment erection device and construction method thereof | |
| CN113802462B (en) | Joint bridging machine and front lifting leg thereof | |
| CN213804908U (en) | Two-way jacking steel box girder beam lifting station | |
| CN214005427U (en) | Lattice beam accurate adjusting device that takes one's place | |
| CN110565458A (en) | Laying trolley and method for laying U-shaped beam track | |
| CN211922331U (en) | The hanging beam of the prefabricated No. 1 box girder and the cast-in-place No. 0 box girder with a small radius of curvature | |
| CN116181367A (en) | Concrete pouring construction method for tunnel lining with continuous variable cross-section | |
| CN210217757U (en) | Overlength lining cutting platform truck |
Legal Events
| Date | Code | Title | Description |
|---|---|---|---|
| PB01 | Publication | ||
| PB01 | Publication | ||
| SE01 | Entry into force of request for substantive examination | ||
| SE01 | Entry into force of request for substantive examination | ||
| GR01 | Patent grant | ||
| GR01 | Patent grant |
