JP7387840B2 - 防火建具 - Google Patents

防火建具 Download PDF

Info

Publication number
JP7387840B2
JP7387840B2 JP2022143357A JP2022143357A JP7387840B2 JP 7387840 B2 JP7387840 B2 JP 7387840B2 JP 2022143357 A JP2022143357 A JP 2022143357A JP 2022143357 A JP2022143357 A JP 2022143357A JP 7387840 B2 JP7387840 B2 JP 7387840B2
Authority
JP
Japan
Prior art keywords
vertical frame
fittings
frame
fixed
fire prevention
Prior art date
Legal status (The legal status is an assumption and is not a legal conclusion. Google has not performed a legal analysis and makes no representation as to the accuracy of the status listed.)
Active
Application number
JP2022143357A
Other languages
English (en)
Other versions
JP2022172349A (ja
Inventor
孫史 永田
Current Assignee (The listed assignees may be inaccurate. Google has not performed a legal analysis and makes no representation or warranty as to the accuracy of the list.)
Sankyo Tateyama Inc
Original Assignee
Sankyo Tateyama Inc
Priority date (The priority date is an assumption and is not a legal conclusion. Google has not performed a legal analysis and makes no representation as to the accuracy of the date listed.)
Filing date
Publication date
Application filed by Sankyo Tateyama Inc filed Critical Sankyo Tateyama Inc
Priority to JP2022143357A priority Critical patent/JP7387840B2/ja
Publication of JP2022172349A publication Critical patent/JP2022172349A/ja
Application granted granted Critical
Publication of JP7387840B2 publication Critical patent/JP7387840B2/ja
Active legal-status Critical Current
Anticipated expiration legal-status Critical

Links

Images

Classifications

    • YGENERAL TAGGING OF NEW TECHNOLOGICAL DEVELOPMENTS; GENERAL TAGGING OF CROSS-SECTIONAL TECHNOLOGIES SPANNING OVER SEVERAL SECTIONS OF THE IPC; TECHNICAL SUBJECTS COVERED BY FORMER USPC CROSS-REFERENCE ART COLLECTIONS [XRACs] AND DIGESTS
    • Y02TECHNOLOGIES OR APPLICATIONS FOR MITIGATION OR ADAPTATION AGAINST CLIMATE CHANGE
    • Y02ATECHNOLOGIES FOR ADAPTATION TO CLIMATE CHANGE
    • Y02A30/00Adapting or protecting infrastructure or their operation
    • Y02A30/24Structural elements or technologies for improving thermal insulation
    • Y02A30/244Structural elements or technologies for improving thermal insulation using natural or recycled building materials, e.g. straw, wool, clay or used tires

Landscapes

  • Special Wing (AREA)
  • Door And Window Frames Mounted To Openings (AREA)

Description

建物開口部に配置される連窓に対して、防火性能を備えるように改修することができる防火建具に関する。
従来、建物開口部に配置される連窓において、左右の窓を連結する連窓方立が知られている。
「ビル建材サッシ総合カタログ ビル用サッシ」三協立山株式会社 三協アルミ社 p.2-3 p.530-531
上記先行技術文献に記載された連窓方立は、防火性能を備えるものではないが、近年、連窓においても防火性能が求められている。
本発明は、連窓に対して、防火性能を付与することを目的とする。
一実施形態は、支持鋼材と、ロックウール部と、竪枠支持部と、竪枠とを備え、支持鋼材は、躯体開口部の屋外側部分に配置され、上下が躯体開口部に固定されており、ロックウール部は、支持鋼材の屋外側に支持鋼材を覆うように支持されており、竪枠支持部は、支持鋼材に設けられており、竪枠は、竪枠支持部に固定されている防火建具である。
本実施形態の防火建具の構成により、連窓に対して防火性能を付与することができる。
一実施形態に係る防火改修建具により改修される前の連窓の図であり、(a)は外観図、(b)は(a)のy1-y1部分の横断面図である。 一実施形態に係る防火改修建具により改修された連窓の図であり、(a)は外観図、(b)は(a)のy2-y2部分の横断面図である。 第1の実施形態に係る防火改修建具の連窓方立の横断面図である。 第1の実施形態に係る防火改修建具の竪断面図である。 第2の実施形態に係る防火改修建具の連窓方立の横断面図である。 第2の実施形態に係る防火改修建具の竪断面図である。 第3の実施形態に係る防火改修建具の連窓方立の横断面図である。 第3の実施形態に係る防火改修建具の竪断面図である。 第4の実施形態に係る防火改修建具の連窓方立の横断面図である。 第4の実施形態に係る防火改修建具の竪断面図である。
本発明の一実施形態は、建物開口部に配置されている既設の連窓建具を防火性能を備えた建具に改修することのできる防火改修建具である。
本実施形態の防火改修建具によって改修される連窓建具は、例えば、図1(a)に示すように、既設方立20の左右に既設建具10,10が配置されてなる2連の連窓建具である。
既設方立20は、図1(b)に示すように、矩形中空部を有しており、中空部の左右両側に既設建具10,10を構成する既設竪枠13,13が固定されている。
図1(a)に示す2連の既設の連窓建具は、本実施形態の防火改修建具によって、例えば、図2(a)に示すような3連の連窓建具に改修される。
改修された連窓建具は、改修方立50と、新設建具30を有しており、改修方立50は、図2(b)に示すように、躯体開口部の屋外側部分に配置されて上下が躯体に固定された支持鋼材60と、支持鋼材60の屋外側に配置され、支持鋼材60の屋外側を覆うとともに支持鋼材60に支持されるロックウール部70と、支持鋼材60の屋内側に支持される竪枠支持部80を有している。
新設建具30は、新設上枠31と、新設下枠32と、左右の新設竪枠33,33を有しており、改修方立50の左右に防火性能を備える新設建具30が配置されることで、全体として防火連窓建具(防火改修建具)を構成している。
以下、本実施形態の防火改修建具に関して、特に、防火性能を有する方立に改修するための構成について、図面を参考に説明する。
なお、本実施形態の防火改修建具においては、既設の連窓建具の既設方立20及び既設方立20に支持される既設竪枠13は撤去され、既設上枠、既設下枠及び躯体開口部に支持される既設竪枠は撤去されずに残存している。なお、既設下枠12のレールは、必要に応じて切除してもよい。
-第1の実施形態-
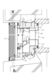
図3,4に示すように、第1の実施形態の改修方立50の支持鋼材60は、スチール等の金属材料からなり、断面が矩形中空形状を有する長尺の部材からなる。
なお、支持鋼材60は、中実部材であってもよく、また、断面略U字状若しくはL字状等の板材を複数組み合わせることによって中空形状を形成したものであってもよい。
支持鋼材60は、躯体開口部の上方位置から下方位置にわたる長さ寸法を有する長尺部材であり、上端部及び下端部が躯体開口部に固定されている。
例えば、支持鋼材60は、屋外側見付壁60aの上端部が躯体開口部に埋設されたアンカー部材Cに固定された断面略L状の上取付金具61aにビス等の固定手段b1により固定されているとともに、屋外側見付壁60aの下端部が躯体開口部に埋設されたアンカー部材Cに固定された断面略L状の下取付金具61bにビス等の固定手段b1により固定されている。
なお、アンカー部材Cは、既設のアンカー部材を利用してもよいが、支持鋼材60の取付位置にあわせて新たに設けてもよい。
支持鋼材60の屋外側には、ロックウール部70が配置されている。
ロックウール部70は、支持鋼材60とほぼ同じ長さ寸法を有する長尺の部材である。
ロックウール部70は、スチールやアルミ合金等の金属材料からなり、屋内側が開口した断面矩形の枠部材71と、枠部材71の内部に充填されるロックウール72と、スチール等の金属材料からなり、枠部材71の長さ方向の適宜位置において枠部材71に取り付けられた固定金具73を有している。
固定金具73は、枠部材71がスチールの場合には、平面視略L字状の取付部73b,73bのみから構成され、枠部材71の長手方向複数位置に直接取り付けられている。
枠部材71がアルミ合金の場合には、固定金具73は、枠部材71の内周にほぼ全長に亘って配置される枠部材支持部73aと平面視略L字状の取付部73b,73bを有し、取付部73b,73bが枠部材支持部73aを介して枠部材71の長手方向複数位置に取付けられている。
固定金具73の取付部73b,73bは、見込壁が枠部材71の屋内側に設けられた開口から屋内側に突出しており、ロックウール部70は、固定金具73の取付部73b,73bが支持鋼材60の左右の見込壁60b,60bにネジ等の固定手段b2により固定されることで、支持鋼材60の屋外側に支持固定されている。
一方、支持鋼材60の屋内側には、竪枠支持部80が配置されている。
本実施形態の竪枠支持部80は、スチールやアルミ合金等の金属材料からなり、屋内側見付壁80aと、屋外側見付壁80bと、左右の見込壁80c,80cを有する断面略矩形中空形状を有する長尺の部材であり、必要に応じて屋内側下方部位に切欠き部が設けられている。
支持鋼材60の屋内側に配置された竪枠支持部80は、支持鋼材60の屋内側に固定された連結材85を介して支持鋼材60に固定されている。
連結材85は、見付壁85aと、見付壁85aの左右両端より屋外側に延設された左、右見込壁85b,85bを有し、左、右見込壁85b,85bが支持鋼材60の左右の見込壁60b,60bにネジ等の固定手段b3により固定されている。
そして、断面略矩形中空形状の竪枠支持部80の屋外側見付壁80bを連結材85の見付壁85aにビス等の固定手段b4により固定することで、竪枠支持部80が支持鋼材60に固定されている。
第1の実施形態の新設建具30の新設竪枠33は、外周側に複数のリブを有しており、竪枠支持部80の左右の見込壁80c,80cに対してスペーサ900を挟んで配置され、竪枠支持部80に対してビス等の固定手段b5によって固定されている。
なお、必要に応じて、竪枠支持部80と竪枠支持部80に固定された新設竪枠33の屋内側に、竪枠支持部80と新設竪枠33の間を塞ぐ防水シート等のシール材sが貼付されている。
竪枠支持部80の屋内側には、スチールやアルミ合金等の金属材料からなるカバー支持金具95が配置されている。
カバー支持金具95は、見付壁95aと、見付壁95aの左右両端部が屋外側に延設された見込壁95c,95cを有しており、見付壁95aが竪枠支持部80の屋内側見付壁80aにネジ等の固定手段b6により固定されている。
竪枠支持部80及び竪枠支持部80の左右に配置された新設竪枠33,33の屋内側を覆うように、スチールやアルミ合金等の金属材料からなる屋内側カバー90が配置されている。
屋内側カバー90は、見付壁90aと、見付壁90aの左右両端部が屋外側に延設された見込壁90c,90cを有しており、見込壁90c,90cがビス等の固定手段b7によりカバー支持金具95の見込壁95c,95cに固定されている。
なお、屋内側カバー90は、合成樹脂等によって形成されてもよく、屋内側カバー90とカバー支持金具95は、ビス等の固定手段b7により、新設竪枠33の見込壁部33aに共締め固定されてもよい。
支持鋼材60の上取付金具61aとアンカー部材Cとの取付け部位及び下取付金具61bとアンカー部材Cとの取付け部位には、モルタルやロックウール等の耐火性を備える材料Dが充填されており、ロックウール部70と躯体開口部との間には、コーキング材Eが充填されている。
また、ロックウール部70の左右屋内側面と新設竪枠33,33の屋外側面との間には、コーキング材Eが充填されている。
-第2の実施形態-
第2の実施形態の防火改修建具は、主に、新設建具30の窓枠の形状及び取付のための構成が第1の実施形態の防火改修建具と相違している。なお、既設下枠の屋外側下レール12aは切除されていない。
以下、図面を参考にして第2の実施形態の防火改修建具について説明するが、第1の実施形態の防火改修建具と同じ構成については、一部説明を省略する。
図5,6に示すように、第2の実施形態の改修方立50の支持鋼材60は、第1の実施形態の支持鋼材60と同様に、スチール等の金属材料からなり、断面が矩形中空形状を有する長尺の部材からなる。
支持鋼材60の屋外側には、ロックウール部70が配置されている。
ロックウール部70は、第1の実施形態のロックウール部70に比べて見付け寸法が大きく形成されているが、他の構成については、同様であるので説明は省略する。
支持鋼材60の屋内側には、竪枠支持部80が配置されている。
竪枠支持部80は、スチールやアルミ合金等の金属材料からなり、屋内側見付壁80aと、屋外側見付壁80bと、左右の見込壁80c,80cを有する断面略矩形中空形状を有する長尺の部材であり、必要に応じて屋内側下方部位に切欠き部が設けられている。
そして、第2の実施形態の竪枠支持部80は、第1の実施形態の竪枠支持部80に比べて見付け寸法が大きく形成されている。
なお、支持鋼材60の屋内側に配置される竪枠支持部80の見付け寸法は限定されるものではない。例えば、第2の実施形態の防火改修建具において、第1の実施形態の竪枠支持部80を採用してもよく、竪枠支持部80の寸法、形状等は、特に限定されない。
支持鋼材60の屋内側に配置された竪枠支持部80は、支持鋼材60の屋内側に固定された連結材85を介して支持鋼材60に固定されている。
竪枠支持部80は、左右の見込壁80c,80cに竪枠取付部材86,86がビス等の固定手段b8によって固定されている。
竪枠取付部材86,86は、竪枠支持部80の左右の見込壁80c,80cに固定される見込壁86aと、見込壁86aの室内側端に連続する室内側取付片86bと、見込壁86aの室外側端に連続する室外側取付片86cを有している。
第2の実施形態の新設建具30の新設竪枠33は、見込壁部33aと、見込壁部33aの室内側に連続する室内側壁部33bと、見込壁部33aの室外側に連続する室外側壁部33cを有しており、室外側壁部33cの外周に、室内側に延設された後に外周側に延設されてなる室外側取付部33dが設けられている。
そして、新設竪枠33は、室内側壁部33bが竪枠取付部材86の室内側取付片86bにビス等の固定手段b9によって固定され、室外側取付部33dが竪枠取付部材86の室外側取付片86cにビス等の固定手段b10によって固定されることで、竪枠支持部80に支持されている。
竪枠支持部80及び竪枠支持部80の左右に配置された新設竪枠33,33の屋内側を覆うように、スチールやアルミ合金等の金属材料からなる屋内側カバー90が配置されており、屋内側カバー90の見込壁90c,90cが竪枠取付部材86の室内側取付片86bにビス等の固定手段b11によって固定されている。
なお、第2の実施形態の防火改修建具においては、新設窓枠が既設窓枠に対して屋外側に配置されており、必要に応じて新設建具30の新設上枠31の屋外側と躯体開口部の間にコーキング材E1が充填されている。
また、第2の実施形態の防火改修建具においては、新設建具30の新設上枠31の屋内側及び新設下枠32の屋内側に、既設上枠11及び既設下枠12を覆うように上カバー部材311及び下カバー部材321が配置されており、上カバー部材311と躯体開口部の間及び下カバー部材321と躯体開口部の間には、必要に応じてコーキング材E2が充填されている。
-第3の実施形態-
第3の実施形態の防火改修建具は、改修方立の竪枠支持部が支持鋼材の室内側に一体的に設けられている点で第1の実施形態の防火改修建具と相違している。
以下、図面を参考にして第3の実施形態の防火改修建具について説明するが、第1の実施形態の防火改修建具と同じ構成については、一部説明を省略する。
図7,8に示すように、第3の実施形態の改修方立50の支持鋼材60は、屋外側見付壁601aと、室内側見付壁601bと、左右の見込壁601c,601cを有しており、躯体開口部に対して固定される支持鋼材60としての機能を有する支持鋼材部601と、支持鋼材部601の室内側に一体的に形成された竪枠支持部801を有している。
支持鋼材部601(支持鋼材60)は、躯体開口部の上方位置から下方位置にわたる長さ寸法を有する長尺部材であり、上端部及び下端部が上取付金具61a及び下取付金具61bを介して躯体開口部に固定されている。
竪枠支持部801は、支持鋼材部601の左右の見込壁601c,601cが室内側に連続して延びて形成され、上下には切欠きが設けられており、躯体開口部もしくは既設上枠11及び既設下枠12に対して離間している。
第3の実施形態の新設建具30の新設竪枠33は、第1の実施形態の新設竪枠33と同様に、外周側に複数のリブを有しており、竪枠支持部801を構成する左右の見込壁601c,601cに対してスペーサ900を挟んで配置され、竪枠支持部801に対してビス等の固定手段b5によって固定されている。
その他、本実施形態の防火改修建具は、支持鋼材60の屋外側には、ロックウール部70が配置されている。
また、本実施形態の防火改修建具は、竪枠支持部801を構成する室内側見付壁601bに、スチールやアルミ合金等の金属材料からなるカバー支持金具95がネジ等の固定手段b6により固定されており、カバー支持金具95を介して屋内側カバー90が配置されている。
-第4の実施形態-
第4の実施形態の防火改修建具は、改修方立の竪枠支持部が支持鋼材の室内側に一体的に設けられている点で第2の実施形態の防火改修建具と相違している。
また、第4の実施形態の防火改修建具は、竪枠支持部の見付寸法が第2の実施形態に比べて小さく、新設竪枠を取り付けるための竪枠取付部材の構成が第2の実施形態の防火改修建具と相違している。
以下、図面を参考にして第4の実施形態の防火改修建具について説明するが、第2の実施形態の防火改修建具と同じ構成については、一部説明を省略する。
図9,図10に示すように、第4の実施形態の改修方立50の支持鋼材60は、第3の実施形態の改修方立50と同様に、屋外側見付壁601aと、室内側見付壁601bと、左右の見込壁601c,601cを有しており、躯体開口部に対して固定される支持鋼材60としての機能を有する支持鋼材部601と、支持鋼材部601の室内側に一体的に形成された竪枠支持部801を有している。
支持鋼材部601(支持鋼材60)は、躯体開口部の上方位置から下方位置にわたる長さ寸法を有する長尺部材であり、上端部及び下端部が上取付金具61a及び下取付金具61bを介して躯体開口部に固定されている。
竪枠支持部801は、支持鋼材部601の左右の見込壁601c,601cが室内側に連続して延びて形成され、上下には切欠きが設けられており、躯体開口部もしくは既設上枠11及び既設下枠12に対して離間している。
第4の実施形態の竪枠支持部801は、左右の見込壁601c,601cに竪枠取付部材87,87がビス等の固定手段b8によって固定されている。
竪枠取付部材87,87は、竪枠支持部801の左右の左右の見込壁601c,601cに固定される見込壁87aと、見込壁87aの室内側端から新設竪枠側に延びる室内側取付片87bと、見込壁87aの室外側端から新設竪枠33に延びる室外側取付片87cを有しており、第2の実施形態の竪枠取付部材86,86に比べて、竪枠支持部801から離れた位置で新設竪枠33を支持することが可能である。
第4の実施形態の新設建具30の新設竪枠33は、見込壁部33aと、見込壁部33aの室内側に連続する室内側壁部33bと、見込壁部33aの室外側に連続する室外側壁部33cを有しており、室外側壁部33cの外周に、室内側に延設された後に外周側に延設されてなる室外側取付部33dが設けられている。
そして、新設竪枠33は、室内側壁部33bが竪枠取付部材87の室内側取付片87bにビス等の固定手段b9によって固定され、室外側取付部33dが竪枠取付部材87の室外側取付片87cにビス等の固定手段b10によって固定されることで、竪枠支持部801に支持されている。
竪枠支持部801及び竪枠支持部801の左右に配置された新設竪枠33,33の屋内側を覆うように、スチールやアルミ合金等の金属材料からなる屋内側カバー90が配置されており、屋内側カバー90の見込壁90c,90cが竪枠取付部材87の室内側取付片87bにビス等の固定手段b11によって固定されている。
上記各実施形態の防火改修建具によって既設の連窓を改修するに際しては、既設の連窓から既設連窓の既設方立20及び既設方立20に固定されている既設竪枠13を撤去した後、既設の窓枠の屋外側部分に、竪枠支持部80が設けられた支持鋼材60を固定すればよい。
そして、支持鋼材60によって躯体開口部に強固に固定された竪枠支持部80に新設竪枠33を取り付けることによって新設窓枠を簡単に施工することができる。
その後、支持鋼材60の屋外側にロックウール部70を固定するとともに、竪枠支持部80及び新設竪枠33の屋内側に屋内側カバー部材90を固定して、必要に応じて、新設竪枠33もしくは躯体開口部との間にコーキング材等を充填するなど仕上げ処理を施せばよい。
このように、上記各実施形態の防火改修建具は、既設方立が撤去された既設の連窓の屋外側の躯体開口部分に、竪枠支持部80があらかじめ設けられた支持鋼材60を固定して、竪枠支持部80によって新設竪枠33を強固に支持するので、既設窓枠に対して新設の方立を自由に配置することができ、既設上枠及び既設下枠の形状、構造に影響を受けることなく、簡単な施工により躯体開口部に所望の防火連窓を配置することができる。
なお、第3及び第4の実施形態の防火改修建具は、改修方立の竪枠支持部が支持鋼材に一体的に設けられているので、さらに施工性が良好である。
また、以上の実施形態の防火改修建具においては、竪枠支持部は支持鋼材に支持されているが、必要に応じて既設窓枠や躯体開口部等に対して一部固定してもよい。その場合であっても、防火改修建具の竪枠支持部は支持鋼材に固定されているので、躯体開口部に対する固定を簡単な構成とすることができる。
また、防火改修建具は、既設上枠と新設上枠との間、既設下枠と新設下枠との間、既設竪枠と新設竪枠との間に、必要に応じてモルタルやロックウール等の耐火性を備える材料を充填してもよい。
また、防火改修建具は、新設方立50部分について、竪枠支持部80の上下に竪枠支持部80の上下開口を覆う塞ぎ材等の部材を配置して、既設上枠と竪枠支持部80上面の間、既設下枠と竪枠支持部80下面の間にモルタルやロックウール等の耐火性を備える材料D2を充填等してもよい。
なお、本実施形態では、連窓として配置される建具について、引違い窓の例をあげて説明しているが、建具の種類は限定されるものではなく、開き窓であっても、FIX窓のいずれもタイプの窓であってもよく、また、窓枠の形状も限定されない。
また、本実施形態の連窓は、既設建具を改修する改修建具として有効なものであるが、本発明は、改修建具に限定されるものではなく、新規に配置される建具であってもよい。
その他、以上の実施形態は,請求項に記載された発明を限定するものではなく,例示として取り扱われることはいうまでもない。
30 :新設建具
33 :新設竪枠
50 :改修方立
60 :支持鋼材
70 :ロックウール部
80 :竪枠支持部
85 :連結材
90 :屋内側カバー

Claims (1)

  1. 支持鋼材と、ロックウール部と、竪枠支持部と、竪枠とを備え、
    支持鋼材は、躯体開口部の屋外側部分に配置され、上下が躯体開口部に固定されており、
    ロックウール部は、支持鋼材の屋外側に支持鋼材を覆うように支持されており、
    竪枠支持部は、支持鋼材に設けられており、
    竪枠は、竪枠支持部に固定されている防火建具。
JP2022143357A 2019-04-17 2022-09-09 防火建具 Active JP7387840B2 (ja)

Priority Applications (1)

Application Number Priority Date Filing Date Title
JP2022143357A JP7387840B2 (ja) 2019-04-17 2022-09-09 防火建具

Applications Claiming Priority (2)

Application Number Priority Date Filing Date Title
JP2019078460A JP7141362B2 (ja) 2019-04-17 2019-04-17 防火建具
JP2022143357A JP7387840B2 (ja) 2019-04-17 2022-09-09 防火建具

Related Parent Applications (1)

Application Number Title Priority Date Filing Date
JP2019078460A Division JP7141362B2 (ja) 2019-04-17 2019-04-17 防火建具

Publications (2)

Publication Number Publication Date
JP2022172349A JP2022172349A (ja) 2022-11-15
JP7387840B2 true JP7387840B2 (ja) 2023-11-28

Family

ID=72936938

Family Applications (2)

Application Number Title Priority Date Filing Date
JP2019078460A Active JP7141362B2 (ja) 2019-04-17 2019-04-17 防火建具
JP2022143357A Active JP7387840B2 (ja) 2019-04-17 2022-09-09 防火建具

Family Applications Before (1)

Application Number Title Priority Date Filing Date
JP2019078460A Active JP7141362B2 (ja) 2019-04-17 2019-04-17 防火建具

Country Status (1)

Country Link
JP (2) JP7141362B2 (ja)

Families Citing this family (1)

* Cited by examiner, † Cited by third party
Publication number Priority date Publication date Assignee Title
JP7141362B2 (ja) * 2019-04-17 2022-09-22 三協立山株式会社 防火建具

Citations (4)

* Cited by examiner, † Cited by third party
Publication number Priority date Publication date Assignee Title
JP2018184729A (ja) 2017-04-24 2018-11-22 Ykk Ap株式会社 連窓
JP2019163617A (ja) 2018-03-19 2019-09-26 株式会社Lixil 連窓構造
JP2020133307A (ja) 2019-02-22 2020-08-31 昭和フロント株式会社 枠体の連結構造及びその施行方法
JP7141362B2 (ja) 2019-04-17 2022-09-22 三協立山株式会社 防火建具

Family Cites Families (3)

* Cited by examiner, † Cited by third party
Publication number Priority date Publication date Assignee Title
JPS5924812U (ja) * 1982-08-10 1984-02-16 ワイケイケイ株式会社 建物内外装構造体を構成する壁体の接合部
JP5757011B2 (ja) * 2013-06-17 2015-07-29 株式会社Lixil 窓部連結構造
JP7223563B2 (ja) * 2018-11-20 2023-02-16 株式会社Lixil 連窓構造

Patent Citations (4)

* Cited by examiner, † Cited by third party
Publication number Priority date Publication date Assignee Title
JP2018184729A (ja) 2017-04-24 2018-11-22 Ykk Ap株式会社 連窓
JP2019163617A (ja) 2018-03-19 2019-09-26 株式会社Lixil 連窓構造
JP2020133307A (ja) 2019-02-22 2020-08-31 昭和フロント株式会社 枠体の連結構造及びその施行方法
JP7141362B2 (ja) 2019-04-17 2022-09-22 三協立山株式会社 防火建具

Also Published As

Publication number Publication date
JP7141362B2 (ja) 2022-09-22
JP2022172349A (ja) 2022-11-15
JP2020176421A (ja) 2020-10-29

Similar Documents

Publication Publication Date Title
US12012750B2 (en) Process for assembling a unitized panel for use within an exterior dynamic curtain wall assembly
JP7387840B2 (ja) 防火建具
JP2024149734A (ja) カーテンウォール
JP5139671B2 (ja) 既設ドア枠利用の防火改装ドア
JP2020186574A (ja) カーテンウォール
JP2016164325A (ja) ドア枠改装構造及び改装ドア
JP7108568B2 (ja) 防火改修建具
JP6872314B2 (ja) 建具と建具の施工方法
JP5376497B2 (ja) カーテンウォール
JP7077435B2 (ja) カーテンウォール
JP6557758B2 (ja) ドア枠改装構造及び改装ドア
JP6921661B2 (ja) 改装サッシおよびその施工方法
JP7169484B2 (ja) 防火改修建具
JP7267901B2 (ja) 防火改装窓構造
JP7267902B2 (ja) 防火改装窓構造
JP2006342542A (ja) 引違いサッシの下枠改装構造
JP7267906B2 (ja) 防火改装窓構造
JP2783763B2 (ja) 改装窓枠構造
JP2022019886A (ja) カーテンウォール
KR20100086697A (ko) 여닫이 도어
JP7094194B2 (ja) カーテンウォール
JP7088735B2 (ja) 改装建具
JP2023160235A (ja) 開口部装置
JP7213715B2 (ja) 壁面構成体
JP7257860B2 (ja) 建具

Legal Events

Date Code Title Description
A621 Written request for application examination

Free format text: JAPANESE INTERMEDIATE CODE: A621

Effective date: 20221003

A521 Request for written amendment filed

Free format text: JAPANESE INTERMEDIATE CODE: A523

Effective date: 20221017

A131 Notification of reasons for refusal

Free format text: JAPANESE INTERMEDIATE CODE: A131

Effective date: 20230622

TRDD Decision of grant or rejection written
A01 Written decision to grant a patent or to grant a registration (utility model)

Free format text: JAPANESE INTERMEDIATE CODE: A01

Effective date: 20231107

A61 First payment of annual fees (during grant procedure)

Free format text: JAPANESE INTERMEDIATE CODE: A61

Effective date: 20231115

R150 Certificate of patent or registration of utility model

Ref document number: 7387840

Country of ref document: JP

Free format text: JAPANESE INTERMEDIATE CODE: R150