JP2014109150A - 柱梁接合構造 - Google Patents

柱梁接合構造 Download PDF

Info

Publication number
JP2014109150A
JP2014109150A JP2012264642A JP2012264642A JP2014109150A JP 2014109150 A JP2014109150 A JP 2014109150A JP 2012264642 A JP2012264642 A JP 2012264642A JP 2012264642 A JP2012264642 A JP 2012264642A JP 2014109150 A JP2014109150 A JP 2014109150A
Authority
JP
Japan
Prior art keywords
column member
joining jig
core
jig
wooden
Prior art date
Legal status (The legal status is an assumption and is not a legal conclusion. Google has not performed a legal analysis and makes no representation as to the accuracy of the status listed.)
Granted
Application number
JP2012264642A
Other languages
English (en)
Other versions
JP6034164B2 (ja
Inventor
Atsuchika Hanai
厚周 花井
Naoki Aso
直木 麻生
Current Assignee (The listed assignees may be inaccurate. Google has not performed a legal analysis and makes no representation or warranty as to the accuracy of the list.)
Takenaka Komuten Co Ltd
Original Assignee
Takenaka Komuten Co Ltd
Priority date (The priority date is an assumption and is not a legal conclusion. Google has not performed a legal analysis and makes no representation as to the accuracy of the date listed.)
Filing date
Publication date
Application filed by Takenaka Komuten Co Ltd filed Critical Takenaka Komuten Co Ltd
Priority to JP2012264642A priority Critical patent/JP6034164B2/ja
Publication of JP2014109150A publication Critical patent/JP2014109150A/ja
Application granted granted Critical
Publication of JP6034164B2 publication Critical patent/JP6034164B2/ja
Active legal-status Critical Current
Anticipated expiration legal-status Critical

Links

Images

Landscapes

  • Joining Of Building Structures In Genera (AREA)

Abstract

【課題】本発明は、木質柱部材と梁部材との仕口部の耐火性能を向上させることを目的とする。
【解決手段】柱梁接合構造10は、木質柱部材としての下柱部材12と、下柱部材12の上端面に固定される接合治具50と、接合治具50を被覆するセメント系硬化体としてのコンクリート硬化体80(図4参照)と、接合治具50を介して下柱部材12と接合される梁部材としての鉄骨梁30とを備えている。
【選択図】図1

Description

本発明は、柱梁接合構造に関する。
木質柱の仕口部内に設けられた金属金具に、木質梁の端部から突出した鉤状部を引っ掛けることにより、木質柱と木質梁とを接合する木質構造材の接合構造が知られている(例えば、特許文献1参照)。
特許文献1に開示された技術では、金属金具が木質柱の仕口部内に設けられているため、火災時に金属金具が火炎に直接さらされないようになっている。
特開平10−317496号公報
しかしながら、特許文献1に開示された技術では、金属金具を被覆する木質柱の仕口部が火災時に燃焼し易く、金属金具が熱劣化し易い。
本発明は、上記の事実を考慮し、木質柱部材と梁部材との仕口部の耐火性能を向上させることを目的とする。
請求項1に記載の柱梁接合構造は、上端に金属製の接合治具を有する木質柱部材と、前記接合治具に接合された梁部材と、前記接合治具を被覆するセメント系硬化体と、を備えている。
請求項1に係る柱梁接合構造によれば、セメント系硬化体は木材と比較して燃焼し難く、かつ熱容量が大きい。このセメント系硬化体によって接合治具を被覆することにより、火災時における接合治具の温度上昇が抑制される。これにより、接合治具の熱劣化が抑制される。したがって、木質柱部材と梁部材との仕口部の耐火性能が向上する。
請求項2に記載の柱梁接合構造は、請求項1に記載の柱梁接合構造において、前記木質柱部材が、木製の心部と、前記心部の外側に配置された燃え止まり層と、前記燃え止まり層の外側に配置された木製の燃え代層と、を有し、前記接合治具が、前記心部に接合されている。
請求項2に係る柱梁接合構造によれば、火災時には、木製の燃え代層が徐々に燃焼して断熱性を有する炭化層を形成する。これにより、心部への熱の侵入(熱伝達)が抑制される。さらに、燃え代層の内側に配置された燃え止まり層によって燃え代層の燃焼を停止(自然鎮火)させることができる。これにより、燃え止まり層の内側に配置された心部の燃焼が抑制される。したがって、木質柱部材の耐火性能が向上する。
また、接合治具を木質柱部材の心部に接合したことにより、接合治具から木質柱部材の心部に軸力(鉛直荷重)を伝達することができる。
請求項3に記載の柱梁接合構造は、請求項2に記載の柱梁接合構造において、前記セメント系硬化体が、コンクリート硬化体であり、前記コンクリート硬化体には、前記心部内へ延びる固定部材が埋設されている。
請求項3に係る柱梁接合構造によれば、セメント系硬化体が、コンクリート硬化体とされている。このコンクリート硬化体には、木質柱部材の心部内へ延びる固定部材が埋設されている。この固定部材によって、コンクリート硬化体が木質柱部材の心部に固定されている。これにより、固定部材の引張り力によって梁部材から木質柱部材へ曲げモーメントが伝達されるため、木質柱部材に対する梁部材の材軸方向の端部の固定度が上がる。したがって、常時及び地震時における梁部材の変形が抑制されるため、居住性及び耐震性能が向上する。
以上説明したように、本発明に係る柱梁接合構造によれば、木質柱部材と梁部材との仕口部の耐火性能を向上させることができる。
本発明の一実施形態に係る柱梁接合構造が適用された下柱部材、上柱部材、及び鉄骨梁を示す分解斜視図である。 図3の2−2線断面に相当する断面図である。 図2の3−3線断面に相当する断面図である。 本発明の一実施形態におけるコンクリート硬化体を示す図3に相当する断面図である。 本発明の一実施形態に係る柱梁接合構造の変形例が適用された下柱部材、上柱部材、及び鉄骨梁を示す図4に相当する断面図である。 本発明の一実施形態における接合治具の変形例を示す斜視図である。 本発明の一実施形態における接合治具の変形例を示す斜視図である。 図7に示される下柱部材及び接合治具を示す縦断面図である。 本発明の一実施形態における接合治具の変形例を示す斜視図である。 図9に示される下柱部材及び接合治具を示す縦断面図である。 本発明の一実施形態における接合治具の変形例を示す斜視図である。 図11に示される下柱部材及び接合治具を示す縦断面図である。
以下、図を参照しながら、本発明の一実施形態に係る柱梁接合構造について説明する。
(柱梁接合構造の構成)
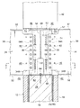
図1に示されるように、本実施形態に係る柱梁接合構造10は、木質柱部材としての下柱部材12と、下柱部材12の上端面に固定される接合治具50と、接合治具50を被覆するセメント系硬化体としてのコンクリート硬化体80(図4参照)と、接合治具50を介して下柱部材12と接合される梁部材としての鉄骨梁30とを備えている。
(下柱部材の構成)
下柱部材12には、耐火構造が適用されている。この下柱部材12は、断面矩形(本実施形態では略正方形)に形成されており、長期及び短期荷重(長期及び短期軸力)を支持する木製の心部(荷重支持部)14と、心部14を被覆(耐火被覆)する被覆部としての燃え止まり層16及び燃え代層18とを有している。心部14は、下柱部材12が負担する長期及び短期荷重(全荷重)を支持可能に構成されており、木材を板状や角柱状に加工した複数の木製単材を接着剤等で一体化させた集成材によって断面矩形に形成されている。
心部14の外側(外周)には、燃え止まり層16が配置されている。燃え止まり層16は、火災時における燃え代層18の燃焼を停止(自然鎮火)させ、心部14の燃焼を抑制する層であり、心部14よりも熱容量が大きくなっている。この燃え止まり層16は、心部14の外周面に沿って交互に配列された複数のモルタル板(モルタルバー)20及び木板22を有し、心部14を囲んでいる。
モルタル板20は木材よりも熱容量が大きく、このモルタル板20と木板22とを交互に配置することにより、燃え止まり層16の熱容量が全体として心部14よりも大きくなっている。なお、隣接するモルタル板20と木板22とは接触し、又は接着剤等で接着されており、相互に熱を伝達可能になっている。また、モルタル板20及び木板22は、心部14に接着剤等で接合されている。
燃え止まり層16の外側(外周)には、木製の燃え代層18が配置されている。燃え代層18は、火災時に燃焼して炭化層(断熱層)を形成することにより、心部14への火災熱の侵入を抑制する層である。この燃え代層18は、燃え止まり層16の外周面に沿って配置された木製単材を接着剤等で一体化させた集成材によって形成されており、燃え止まり層16の外側から心部14を囲んでいる。また、燃え代層18は、燃え止まり層16に接着剤等で接合されている。なお、燃え代層18の厚み(層厚)は、下柱部材12に求められる要求耐火性能(耐火時間)及び燃え代層18の燃焼速度に応じて適宜設定されている。
なお、心部14及び燃え代層18は、木材によって形成されていれば良く、例えば、米松、唐松、檜、杉、あすなろ等の一般の木造建築に用いられる木材(以下、「一般木材」とする)で形成される。また、心部14及び燃え代層18は、集成材に限らず、単一材で形成しても良い。
また、燃え止まり層16は、火炎及び熱の侵入を抑えて燃え止まり効果を発揮できる層であれば良く、例えば、難燃性を有する層(難燃性層)や熱の吸収が可能な層(吸熱性層)で構成される。
難燃性を有する層としては、木材に難燃薬剤を注入して不燃化処理した難燃薬剤注入層が挙げられる。また、熱の吸収が可能な層は、一般木材よりも熱容量が大きな材料、一般木材よりも断熱性が高い材料、又は一般木材よりも熱慣性が高い材料によって形成しても良いし、これらの材料と一般木材とを組み合わせて形成しても良い。さらに、難燃性を有する層と、熱の吸収が可能な層とを組み合わせて(例えば、難燃性を有する層と、熱の吸収が可能な層とを交互に配置して)燃え止まり層16を形成しても良い。
また、一般木材よりも熱容量が大きな材料としては、モルタル、石材、ガラス、繊維補強セメント、石膏等の無機質材料、各種の金属材料などが挙げられる。また、一般木材よりも断熱性が高い材料としては、けい酸カルシウム板、ロックウール、グラスウールなどが挙げられる。一般木材よりも熱慣性が高い材料としては、セランガンバツ、ジャラ、ボンゴシ等の木材が挙げられる。
(鉄骨梁の構成)
図1に示されるように、本実施形態では、4本の鉄骨梁30が接合治具50を介して下柱部材12に接合される。各鉄骨梁30はH形鋼で形成されており、上下一対のフランジ部32と、上下一対のフランジ部32を繋ぐウェブ部34とを有している。
また、各鉄骨梁30のウェブ部34の端部には、上下一対のフランジ部32よりも鉄骨梁30の材軸方向外側(接合治具50側)へ突出し、接合治具50と接合される突出部(接合部)34Aが設けられている。この突出部34Aの先端部には、ボルト36(図3参照)が貫通される複数のボルト孔38が上下方向(梁成方向)に間隔を空けて形成されている。また、突出部34Aにおけるボルト孔38よりも内側には、後述するせん断補強筋84が貫通される複数の貫通孔40が上下方向に間隔を空けて形成されている。
なお、図示を省略するが、鉄骨梁30は、接合治具50を介して下柱部材12と接合された後、耐火塗料や吹き付けロックウール、けい酸カルシウム板等の耐火ボード、巻き付け式のロックウールシート等の耐火被覆材等によって耐火被覆される。つまり、鉄骨梁30には、耐火構造が適用される。
(接合治具の構成)
図1及び図2に示されるように、下柱部材12の上端面には、上柱部材42及び鉄骨梁30が接合される鋼製の接合治具50が取り付けられる。つまり、下柱部材12は、上端に金属製の接合治具50を有している。接合治具50は、治具本体部52と、治具本体部52の下端部に設けられた下フランジ部60と、治具本体部52の上端部に設けられた上フランジ部70とを有している。
治具本体部52は断面十字状に形成されており、その中央部において互いに交差(本実施形態では直交)する2枚の取付プレート54を有している。各取付プレート54の外側の端部は、鉄骨梁30の突出部34Aが取り付けられる梁取付部54Aとされている。各梁取付部54Aには、複数のボルト孔56が上下方向に間隔を空けて形成されている。これらの梁取付部54Aには、鉄骨梁30の突出部34Aが重ね合わせられる。この状態で、突出部34A及び梁取付部54Aのボルト孔38,56にボルト36(図3参照)を挿入して図示しないナットと締結することにより、梁取付部54Aに突出部34Aが接合されるようになっている。
また、各取付プレート54の下部における中央部には、後述する下フランジ部60の中央部に形成された位置決め用孔62を露出させる一対のU字状の溝部58が形成されている。
図3に示されるように、下フランジ部60は矩形の鋼板で形成されており、下柱部材12の心部14の上面に重ねられる。この下フランジ部60の中央部には円形の位置決め用孔62が形成されている。この位置決め用孔62に挿入されたラグスクリュー64を心部14の中央部に形成された取付孔24に捻じ込むことにより、下フランジ部60の中央部が下柱部材12に固定されるようになっている。
なお、位置決め用孔62は、心部14に対する下フランジ部60の固定位置を調整可能なルーズ孔とされている。これにより、ラグスクリュー64を仮止めした状態で、接合治具50が心部14に対して水平二方向(図2おいて矢印X方向及び矢印Y方向)へ移動可能になると共に、ラグスクリュー64を回転軸として回転可能(図2において矢印R方向)になっている。
さらに、下フランジ部60の四隅には、取付孔66がそれぞれ形成されている。これらの取付孔66に挿入されたラグスクリュー68を下柱部材12の心部14の外周部に捻じ込むことにより、下フランジ部60の四隅が心部14に固定されるようになっている。
一方、接合治具50の上フランジ部70は矩形の鋼板で形成されており、その四隅に取付孔72がそれぞれ形成されている。この上フランジ部70の上には、上柱部材42の下端面に設けられたベースプレート44が重ねられる。ベースプレート44には取付孔46が形成されており、このベースプレート44を上フランジ部70に重ねた状態で取付孔46,72に挿入されたラグスクリュー48を上柱部材42の下面に捻じ込むことにより、上フランジ部70に上柱部材42が固定されるようになっている。なお、ベースプレート44は、適宜省略可能である。また、本実施形態では、上柱部材42は下柱部材12と同様の構成とされている。
(コンクリート硬化体)
図4に示されるように、接合治具50は、下柱部材12の仕口部12Sを構成するコンクリート硬化体80によって被覆(耐火被覆)されている。換言すると、接合治具50は、コンクリート硬化体80に埋設されている。コンクリート硬化体80は、接合治具50の各梁取付部54Aに鉄骨梁30の突出部34Aを取り付けた状態で、接合治具50の周囲にコンクリートを打設することにより形成される。
コンクリート硬化体80の四隅には、上下方向に延びる軸鉄筋82がそれぞれ埋設されている。また、コンクリート硬化体80には、複数の軸鉄筋82を結束する複数のせん断補強筋84が埋設されている。これらのせん断補強筋84は、複数の軸鉄筋82を囲むと共に、上下方向に間隔を空けて配筋されている。なお、複数のせん断補強筋84のうち、最上段及び最下段以外のせん断補強筋84は、鉄骨梁30の突出部34Aに形成された貫通孔40に貫通されている。
次に、本実施形態に係る柱梁接合構造の施工方法の一例について説明する。
先ず、図2に示されるように、所定位置に立てられた下柱部材12の心部14の上に、接合治具50の下フランジ部60を載置し、重ね合わせる。次に、下フランジ部60の位置決め用孔62(図3参照)を介して心部14の取付孔24にラグスクリュー64を捻じ込み、下フランジ部60を心部14に仮止めする。
次に、図3に示されるように、接合治具50の梁取付部54Aに鉄骨梁30の突出部34Aを重ね合わせる。この際、接合治具50を位置決め用孔62及びラグスクリュー64が許容する範囲内で水平二方向(図2において矢印X方向及び矢印Y方向)へ移動させ、若しくはラグスクリュー64を回転軸として回転(図2において矢印R方向)させることにより、取付プレート54に突出部34Aを重ね合わせる。この状態で、取付プレート54及び突出部34Aのボルト孔38,56にボルト36を挿入すると共に、ボルト36に図示しないナットを取り付け、取付プレート54と突出部34Aと仮止めする。この手順を繰り返し、接合治具50の4つの梁取付部54Aに4本の鉄骨梁30の突出部34Aをそれぞれ仮止めする。
次に、下フランジ部60の位置決め用孔62に挿入されたラグスクリュー64を下柱部材12の心部14に本締めすると共に、下フランジ部60の四隅に形成された取付孔66を介してラグスクリュー68を下柱部材12の心部14に本締めする。これにより、下柱部材12の心部14に接合治具50が固定される。
次に、接合治具50の梁取付部54Aと鉄骨梁30の突出部34Aとを接合するボルト36を本締めし、接合治具50を介して鉄骨梁30を下柱部材12に接合する。次に、接合治具50の上フランジ部70の上に上柱部材42のベースプレート44を載置する。そして、上フランジ部70及びベースプレート44に形成された取付孔46,72を介してラグスクリュー48を上柱部材42に下面に捻じ込み、上フランジ部70に上柱部材42を固定する。
次に、接合治具50の周囲に軸鉄筋82及びせん断補強筋84を配筋した後、接合治具50を囲むように下柱部材12及び上柱部材42の外周面に沿って型枠を仮設し、コンクリートを打設してコンクリート硬化体80を形成する。このコンクリート硬化体80によって接合治具50が耐火被覆されると共に、下柱部材12の仕口部12Sが形成される。
次に、吹き付けロックウール等の耐火被覆材等によって4本の鉄骨梁30をそれぞれ耐火被覆する。
次に、本実施形態に係る柱梁接合構造の作用について説明する。
下柱部材12には、耐火構造が適用されている。具体的には、図4に示されるように、下柱部材12の心部14は、燃え止まり層16及び燃え代層18によって被覆されている。したがって、火災時には、先ず、燃え代層18が徐々に燃焼して燃え止まり層16の周囲に炭化層(断熱層)を形成する。これにより、心部14への熱の侵入(熱伝達)が抑制される。また、心部14よりも熱容量が大きい燃え止まり層16によって火災熱が吸収(吸熱)される。これにより、燃え代層18の燃焼速度(炭化速度)が減速されると共に、心部14の温度上昇がさらに低減される。したがって、心部14の燃焼が抑制されるため、火災時に心部14に長期荷重を支持させることができる。
さらに、燃え止まり層16において燃え代層18の燃焼を停止(自然鎮火)させることができる。したがって、火災終了後も心部14に長期荷重を支持させることができる。
一方、下柱部材12と鉄骨梁30と接合する鋼製の接合治具50は、下柱部材12の仕口部12Sを構成するコンクリート硬化体80に埋設されている。つまり、接合治具50は、コンクリート硬化体80によって被覆されている。
ここで、コンクリート硬化体80は木材と比較して燃焼し難く、かつ熱容量が大きい。このコンクリート硬化体80によって接合治具50を被覆することにより、火災時における接合治具50の温度上昇が抑制される。これにより、接合治具50の熱劣化が抑制される。したがって、下柱部材12と鉄骨梁30との仕口部12Sの耐火性能が向上する。
このように本実施形態に係る柱梁接合構造10では、下柱部材12と鉄骨梁30との接合強度を確保しつつ、下柱部材12と鉄骨梁30との仕口部12Sの耐火性能を向上させることができる。
また、接合治具50の下フランジ部60には、位置決め用孔62が形成されている。位置決め用孔62はルーズ孔とされており、この位置決め用孔62を介してラグスクリュー64を下柱部材12の心部14に仮止めした状態では、接合治具50が心部14に対して水平二方向(図2において矢印X方向及び矢印Y方向)へ移動可能になると共に、ラグスクリュー64を回転軸として回転可能(図2において矢印R方向)になる。これにより、接合治具50の梁取付部54Aと鉄骨梁30の突出部34Aとの位置決め作業が容易となる。したがって、施工性が向上する。
さらに、接合治具50の下フランジ部60は、下柱部材12の心部14に接合(固定)されている。これにより、接合治具50を介して上柱部材42から下柱部材12の心部14に軸力(鉛直荷重)及びせん断力を伝達することができる。
次に、上記実施形態に係る柱梁接合構造の変形例について説明する。なお、上記実施形態と同様の構成のものは同符号を付すると共に、適宜省略して説明する。
上記実施形態では、接合治具50を介して鉄骨梁30を下柱部材12に力学的にピン接合し、鉄骨梁30から下柱部材12に曲げモーメントを伝達しない例を示したが、これに限らない。例えば、図5に示されるように、鉄骨梁30から下柱部材12へ曲げモーメントを伝達するアンカー部材86をコンクリート硬化体80に埋設しても良い。
具体的には、複数の固定部材としての複数のアンカー部材86は、上下方向に延びる鉄筋等で形成されており、コンクリート硬化体80と下柱部材12の心部14とに亘って配置されている。各アンカー部材86の下部86Lは、接合治具50の下フランジ部60の四隅をそれぞれ貫通し、下柱部材12の心部14に外周部に打ち込まれている。一方、アンカー部材86の上部86Uは、コンクリート硬化体80に埋設されている。これらのアンカー部材86によって、下柱部材12の心部14にコンクリート硬化体80が固定されている。
これにより、各アンカー部材86の引張り力によって鉄骨梁30から下柱部材12の心部14へ曲げモーメントが伝達されるため、仕口部12Sに対する鉄骨梁30の端部の固定度が上がる。したがって、常時及び地震時における鉄骨梁30の変形が抑制されるため、居住性及び耐震性能が向上する。
なお、固定部材は、上記したアンカー部材86に限らない。固定部材は、鉄骨梁30から下柱部材12へ曲げモーメントを伝達可能な部材であれば良く、例えば、上部がL字状、J字状に屈曲されたコンクリートアンカー等を用いても良い。また、固定部材の配置や本数は適宜変更可能であり、例えば、アンカー部材86を燃え止まり層16や燃え代層18に固定しても良い。また、軸鉄筋82の下部を下柱部材12へ延出させ、固定部材として流用しても良い。
さらに、固定部材によって接合治具50を下柱部材12に固定し、鉄骨梁30から下柱部材12へ曲げモーメントを伝達しても良い。
次に、接合治具50の構成は上記したものに限らず、適宜変更可能である。例えば、図6に示される接合治具90は、治具本体部91を有している。治具本体部91は、その中央部で互いに交差(本変形例では直交)する2本のH形鋼92を有している。各H形鋼92は、上下一対のフランジ部94と、上下一対のフランジ部94を繋ぐウェブ部96とを有している。
H形鋼92の端部は、下柱部材12の上端面から外側(鉄骨梁30側)へ延出しており、鉄骨梁30(図1参照)の端部が剛接合される梁取付部92Aとされている。この梁取付部92Aにおけるウェブ部96には、複数のボルト孔56が上下方向に間隔を空けて形成されており、鉄骨梁30の突出部34Aが重ねられた状態でボルト36及びナットより接合される。また、梁取付部92Aにおける上下一対のフランジ部94には、鉄骨梁30の上下一対のフランジ部32が溶接等により接合される。これにより、各梁取付部92Aに鉄骨梁30の端部が曲げモーメントを伝達可能に剛接合される。
一方、治具本体部91の中央部には、コンクリートが打設され、下柱部材12の仕口部12Sを構成するコンクリート硬化体98が形成される。このコンクリート硬化体98によって、治具本体部91の中央部が被覆(耐火被覆)される。なお、下柱部材12の上端面から外側(鉄骨梁30側)へ延出されたH形鋼92の梁取付部92Aは、鉄骨梁30と共にロックウール等の耐火被覆材によって耐火被覆される。
このようにH形鋼92の両側の梁取付部92Aに2本の鉄骨梁30の端部をそれぞれ剛接合することにより、H形鋼92を介して2本の鉄骨梁30の間で曲げモーメントが伝達される。これにより、2本の鉄骨梁30の端部に発生する曲げモーメントが小さくなる。したがって、鉄骨梁30の梁成等を小さくすることができる。
次に、図7及び図8に示される接合治具100は、治具本体部102と、治具本体部102の上端部に設けられた上フランジ部106とを有している。治具本体部102は、断面十字状に形成されており、その中央部で互いに交差(本変形例では直交)する2枚の取付プレート104を有している。
各取付プレート104の外側の端部は、下柱部材12の上端面から外側へ延出しており、鉄骨梁30の突出部34A(図1参照)が接合される梁取付部104Aとされている。この梁取付部104Aには、複数のボルト孔56が上下方向に間隔を空けて形成されている。
上フランジ部106は、平面視にて矩形に形成されており、2枚の取付プレート104の上端部に接合されている。この上フランジ部106には、上柱部材42のベースプレート44(図1参照)が接合されるようになっている。
一方、下柱部材12の上端面からは、心部14の上端部14Uが上方へ突出している。この心部14の上端部14Uには、平面視にて十字状の溝部26が形成されている。図8に示されるように、この溝部26に接合治具100の治具本体部102を挿入し、接合治具100の上フランジ部106を心部14の上端面に係止(載置)することにより、心部14の上端部14Uに治具本体部102が取り付けられる(接合される)。なお、治具本体部102は、図示しないラグスクリュー等によって心部14の上端部14Uに固定しても良い。
また、心部14の上端部14Uの周囲には、コンクリートが打設され、下柱部材12の仕口部12Sを構成するコンクリート硬化体108が形成される。このコンクリート硬化体108によって、治具本体部102及び心部14の上端部14Uが被覆(耐火被覆)される。なお、下柱部材12の上端面から外側へ延出する治具本体部102の梁取付部104Aは、鉄骨梁30と共にロックウール等の耐火被覆材によって耐火被覆される。
このように心部14の上端部14Uに接合治具100を取り付けることより、接合治具100を介して上柱部材42(図1参照)から下柱部材12の心部14に軸力(長期軸力)が伝達される。
また、接合治具100の上フランジ部106を心部14の上端面に係止することにより、上柱部材42からの軸力が心部14へ分散して伝達されるため、下柱部材12に対する取付プレート104のめり込みが抑制される。
さらに、心部14の上端部14U及び治具本体部102の中央部をコンクリート硬化体108に埋設することにより、火災時における心部14及び接合治具100の温度上昇が抑制される。したがって、下柱部材12の仕口部12Sの耐火性能が向上する。
なお、本変形例では、心部14に形成された溝部26に治具本体部102を挿入した例を示したが、これに限らない。例えば、例えば、図9及び図10に示されるように、接合治具110の治具本体部112の中央部に角形の筒状部114を設け、当該筒状部114に心部14の上端部14Uを挿入しても良い(嵌め込んでも良い)。なお、筒状部114の各側面には、取付プレート116が設けられている。これらの取付プレート116の外側の端部は、梁取付部116Aとされている。
このような接合治具110では、心部14に溝部26を形成する必要がないため、下柱部材12の製作コストを削減することができる。また、筒状部114によって心部14の上端部14Uが拘束されるため、当該上端部14Uの軸耐力等を高めることができる。
また、上記実施形態では、鋼製の接合治具50を用いた例を示したが、接合治具50は金属製であれば良く、例えば、鉄やアルミニウム等で形成しても良い。
次に、上記実施形態では、木質柱部材として三層構造(心部14、燃え止まり層16、燃え代層18)を有する下柱部材12を例に説明したが、これに限らない。木質柱部材は、その少なくとも一部が木材で形成され、かつ耐火構造又は準耐火構造が適用されていれば良く、例えば、下柱部材12において燃え止まり層16及び燃え代層18の何れか一方を省略しても良い。
また、木質柱部材としては、無耐火の木製の柱部材を耐火被覆材で耐火被覆したものを用いても良い。この耐火被覆材としては、例えば、耐火塗料、けい酸カルシウム板、石膏ボード、コンクリートボード、ロックウールボート等が挙げられる。
また、例えば、木質柱部材としては、内部に鉄骨心材が埋設された木質ハイブリッド柱部材を用いても良い。具体的には、図11及び図12に示されるように、木質柱部材としての下柱部材120は木質ハイブリッド柱部材で形成されており、木製の柱部材122と、H形鋼で形成され、柱部材122の中央部に埋設された鉄骨心材124とを有している。柱部材122は、前述した集成材によって形成されている。この柱部材122によって鉄骨心材124が被覆(耐火被覆)されており、火災時に柱部材122が燃焼して炭化層(断熱層)を形成することにより、鉄骨心材124の温度上昇が抑制されるようになっている。つまり、柱部材122は、燃え代層(被覆部)として機能するようになっている。
鉄骨心材124の上端部124Uは、柱部材122の上端面から上方へ突出しており、鉄骨梁30(図1参照)が接合される接合治具130の治具本体部132の一部を構成している。つまり、下柱部材120は、その上端に金属製の接合治具130を有している。具体的には、鉄骨心材124の上端部124Uにおけるウェブ部126の両面には、取付プレート134がそれぞれ設けられている。また、鉄骨心材124の上端部124Uにおけるフランジ部128には、取付プレート134がそれぞれ設けられている。つまり、治具本体部132は、鉄骨心材124の上端部124Uと、上端部124Uに設けられた4枚の取付プレート134とを有して構成されている。
各取付プレート134の端部は、鉄骨梁30が接合される梁取付部134Aとされている。また、図12に示されるように、接合治具130の中央部には、コンクリートが打設され、下柱部材120の仕口部120Sを構成するコンクリート硬化体136が形成されている。このコンクリート硬化体136によって、治具本体部132の中央部が被覆(耐火被覆)されている。これにより、火災時における接合治具130の温度上昇が抑制される。したがって、下柱部材120と鉄骨梁30との仕口部120Sの耐火性能が向上する。
このように接合治具130は、木質柱部材としての下柱部材120と一体に形成されていても良いし、上記実施形態のように木質柱部材としての下柱部材12(図1参照)と別体に形成されていても良い。つまり、上記実施形態における「上端に金属製の接合治具を有する木質柱部材」とは、上端に別体の接合治具が取り付けられた木質柱部材や、上端に接合治具が一体に形成された木質柱部材を含む概念である。
次に、上記実施形態では、接合治具50に4つの梁取付部54Aを設けた例を示したが、これに限らない。接合治具50には、少なくとも1つの梁取付部54Aがあれば良い。
また、上記実施形態では、接合治具50に上柱部材42を接合した例を示したが、接合治具50には上柱部材42を接合しなくても良い。つまり、接合治具50は、少なくとも下柱部材12と鉄骨梁30とを接合可能であれば良い。また、接合治具50と上柱部材42との接合構造は適宜変更可能である。さらに、接合治具50の上フランジ部70は、必要に応じて設ければ良く、適宜省略可能である。また、接合治具50の下フランジ部60に形成された位置決め用孔62は、適宜省略可能である。
また、上記実施形態では、コンクリート硬化体80に軸鉄筋82及びせん断補強筋84を埋設した例を示したが、これに限らない。コンクリート硬化体80には、必要に応じて種々の補強筋を埋設することができる。さらに、軸鉄筋82及びせん断補強筋84等の補強筋は、省略しても良い。
また、上記実施形態では、セメント系硬化体としてコンクリート硬化体80を例に説明したが、これに限らない。セメント系硬化体としては、モルタル硬化体やグラウト硬化体を用いても良い。
また、上記実施形態では、下柱部材12の外形に合わせてコンクリート硬化体80を形成したが、これに限らない。コンクリート硬化体80等のセメント系硬化体の形状、大きさは、適宜変更可能である。また、セメント系硬化体の側面は、下柱部材12と同様の燃え代層で被覆しても良いし、木板等の仕上げ材で被覆しても良い。
また、上記実施形態では、梁部材として鉄骨梁30を例に説明したが、これに限らない。梁部材としては、例えば、鉄筋コンクリート造、鉄骨コンクリート造、耐火構造又は準耐火構造が適用された木質梁部材を用いても良い。
以上、本発明の一実施形態について説明したが、本発明はこうした実施形態に限定されるものでなく、一実施形態及び各種の変形例を適宜組み合わせて用いても良いし、本発明の要旨を逸脱しない範囲において、種々なる態様で実施し得ることは勿論である。
10 柱梁接合構造
12 下柱部材(木質柱部材)
12S 仕口部
14 心部
16 燃え止まり層
18 燃え代層
30 鉄骨梁(梁部材)
50 接合治具
80 コンクリート硬化体(セメント系硬化体)
86 アンカー部材(固定部材)
90 接合治具
98 コンクリート硬化体
100 接合治具
108 コンクリート硬化体
110 接合治具
120 下柱部材(木質柱部材)
120S 仕口部
130 接合治具

Claims (3)

  1. 上端に金属製の接合治具を有する木質柱部材と、
    前記接合治具に接合された梁部材と、
    前記接合治具を被覆するセメント系硬化体と、
    を備えた柱梁接合構造。
  2. 前記木質柱部材が、木製の心部と、前記心部の外側に配置された燃え止まり層と、前記燃え止まり層の外側に配置された木製の燃え代層と、を有し、
    前記接合治具が、前記心部に接合されている、
    請求項1に記載の柱梁接合構造。
  3. 前記セメント系硬化体が、コンクリート硬化体であり、
    前記コンクリート硬化体には、前記心部内へ延びる固定部材が埋設されている、
    請求項2に記載の柱梁接合構造。
JP2012264642A 2012-12-03 2012-12-03 柱梁接合構造 Active JP6034164B2 (ja)

Priority Applications (1)

Application Number Priority Date Filing Date Title
JP2012264642A JP6034164B2 (ja) 2012-12-03 2012-12-03 柱梁接合構造

Applications Claiming Priority (1)

Application Number Priority Date Filing Date Title
JP2012264642A JP6034164B2 (ja) 2012-12-03 2012-12-03 柱梁接合構造

Publications (2)

Publication Number Publication Date
JP2014109150A true JP2014109150A (ja) 2014-06-12
JP6034164B2 JP6034164B2 (ja) 2016-11-30

Family

ID=51029953

Family Applications (1)

Application Number Title Priority Date Filing Date
JP2012264642A Active JP6034164B2 (ja) 2012-12-03 2012-12-03 柱梁接合構造

Country Status (1)

Country Link
JP (1) JP6034164B2 (ja)

Cited By (16)

* Cited by examiner, † Cited by third party
Publication number Priority date Publication date Assignee Title
JP2015218463A (ja) * 2014-05-15 2015-12-07 清水建設株式会社 柱梁接合構造
JP2015218464A (ja) * 2014-05-15 2015-12-07 清水建設株式会社 柱梁接合構造
JP2017008586A (ja) * 2015-06-22 2017-01-12 清水建設株式会社 木質材と鉄骨材の接合部構造
JP2017133278A (ja) * 2016-01-29 2017-08-03 清水建設株式会社 柱梁接合構造および柱梁接合方法
JP2017133271A (ja) * 2016-01-29 2017-08-03 清水建設株式会社 柱梁接合構造および柱梁接合方法
JP2019044392A (ja) * 2017-08-31 2019-03-22 パナソニックIpマネジメント株式会社 接合金物及びこれを用いた接合構造
JP2020111930A (ja) * 2019-01-10 2020-07-27 株式会社竹中工務店 木質梁接合構造
JP2020122323A (ja) * 2019-01-30 2020-08-13 株式会社竹中工務店 耐力木造柱
JP2021095768A (ja) * 2019-12-18 2021-06-24 株式会社竹中工務店 木質柱梁接合構造
JP2022019358A (ja) * 2020-07-17 2022-01-27 清水建設株式会社 柱接合構造および柱梁接合構造
JP2022018461A (ja) * 2020-07-15 2022-01-27 株式会社竹中工務店 木質柱鋼製仕口部材接合構造
JP2022122012A (ja) * 2021-02-09 2022-08-22 鹿島建設株式会社 接合構造および接合構造の構築方法
JP2022154690A (ja) * 2021-03-30 2022-10-13 鹿島建設株式会社 接合構造
JP2022154206A (ja) * 2021-03-30 2022-10-13 株式会社大林組 合成構造および施工方法
JP2023009651A (ja) * 2021-07-07 2023-01-20 株式会社竹中工務店 柱梁架構
JP2023118514A (ja) * 2022-02-15 2023-08-25 株式会社竹中工務店 木質柱鉄骨梁接合構造

Citations (4)

* Cited by examiner, † Cited by third party
Publication number Priority date Publication date Assignee Title
JPH0589604U (ja) * 1992-05-12 1993-12-07 住友林業株式会社 複合梁材の接合構造
JPH0681393A (ja) * 1992-09-01 1994-03-22 Taisei Corp 鉄筋コンクリート柱と鉄骨梁接合部における仕口構造
JPH08284250A (ja) * 1995-04-11 1996-10-29 Sumitomo Metal Ind Ltd 木部材の柱と鉄骨梁の接合部
JP2012219560A (ja) * 2011-04-12 2012-11-12 Takenaka Komuten Co Ltd 柱梁接合構造、及び柱梁接合方法

Patent Citations (4)

* Cited by examiner, † Cited by third party
Publication number Priority date Publication date Assignee Title
JPH0589604U (ja) * 1992-05-12 1993-12-07 住友林業株式会社 複合梁材の接合構造
JPH0681393A (ja) * 1992-09-01 1994-03-22 Taisei Corp 鉄筋コンクリート柱と鉄骨梁接合部における仕口構造
JPH08284250A (ja) * 1995-04-11 1996-10-29 Sumitomo Metal Ind Ltd 木部材の柱と鉄骨梁の接合部
JP2012219560A (ja) * 2011-04-12 2012-11-12 Takenaka Komuten Co Ltd 柱梁接合構造、及び柱梁接合方法

Cited By (26)

* Cited by examiner, † Cited by third party
Publication number Priority date Publication date Assignee Title
JP2015218463A (ja) * 2014-05-15 2015-12-07 清水建設株式会社 柱梁接合構造
JP2015218464A (ja) * 2014-05-15 2015-12-07 清水建設株式会社 柱梁接合構造
JP2017008586A (ja) * 2015-06-22 2017-01-12 清水建設株式会社 木質材と鉄骨材の接合部構造
JP2017133271A (ja) * 2016-01-29 2017-08-03 清水建設株式会社 柱梁接合構造および柱梁接合方法
JP2017133278A (ja) * 2016-01-29 2017-08-03 清水建設株式会社 柱梁接合構造および柱梁接合方法
JP2019044392A (ja) * 2017-08-31 2019-03-22 パナソニックIpマネジメント株式会社 接合金物及びこれを用いた接合構造
JP2020111930A (ja) * 2019-01-10 2020-07-27 株式会社竹中工務店 木質梁接合構造
JP7243007B2 (ja) 2019-01-10 2023-03-22 株式会社竹中工務店 木質梁接合構造
JP2020122323A (ja) * 2019-01-30 2020-08-13 株式会社竹中工務店 耐力木造柱
JP7302125B2 (ja) 2019-01-30 2023-07-04 株式会社竹中工務店 耐力木造柱
JP2021095768A (ja) * 2019-12-18 2021-06-24 株式会社竹中工務店 木質柱梁接合構造
JP7494423B2 (ja) 2019-12-18 2024-06-04 株式会社竹中工務店 木質柱梁接合構造
JP2022018461A (ja) * 2020-07-15 2022-01-27 株式会社竹中工務店 木質柱鋼製仕口部材接合構造
JP7603388B2 (ja) 2020-07-15 2024-12-20 株式会社竹中工務店 木質柱鋼製仕口部材接合構造
JP2022019358A (ja) * 2020-07-17 2022-01-27 清水建設株式会社 柱接合構造および柱梁接合構造
JP7503510B2 (ja) 2021-02-09 2024-06-20 鹿島建設株式会社 接合構造および接合構造の構築方法
JP2022122012A (ja) * 2021-02-09 2022-08-22 鹿島建設株式会社 接合構造および接合構造の構築方法
JP2022154690A (ja) * 2021-03-30 2022-10-13 鹿島建設株式会社 接合構造
JP2024009254A (ja) * 2021-03-30 2024-01-19 株式会社大林組 鋼製仕口部材
JP7476836B2 (ja) 2021-03-30 2024-05-01 株式会社大林組 合成構造および施工方法
JP7513181B2 (ja) 2021-03-30 2024-07-09 株式会社大林組 鋼製仕口部材
JP7574128B2 (ja) 2021-03-30 2024-10-28 鹿島建設株式会社 接合構造
JP2022154206A (ja) * 2021-03-30 2022-10-13 株式会社大林組 合成構造および施工方法
JP2023009651A (ja) * 2021-07-07 2023-01-20 株式会社竹中工務店 柱梁架構
JP2023118514A (ja) * 2022-02-15 2023-08-25 株式会社竹中工務店 木質柱鉄骨梁接合構造
JP7742323B2 (ja) 2022-02-15 2025-09-19 株式会社竹中工務店 木質柱鉄骨梁接合構造

Also Published As

Publication number Publication date
JP6034164B2 (ja) 2016-11-30

Similar Documents

Publication Publication Date Title
JP6034164B2 (ja) 柱梁接合構造
JP5990424B2 (ja) 構造部材の接合構造
JP2014029093A (ja) 構造部材の接合構造
JP5859250B2 (ja) 異種構造部材の接合構造、及び複合構造物
JP6482224B2 (ja) 構造部材
JP6126831B2 (ja) 柱部材の接合構造、及び柱部材の接合方法
JP6726450B2 (ja) 木質構造部材の接合構造
JP5925426B2 (ja) 柱梁接合構造、及び柱梁接合方法
JP2015059347A (ja) 柱梁構造
JP2006089999A (ja) 建築構造材、建築物の骨組み及び建築物
JP6186160B2 (ja) 柱梁接合構造
JP6125817B2 (ja) 梁床接合構造
JP6934288B2 (ja) 接合構造
JP7358706B2 (ja) 鉄骨梁構造
JP6387236B2 (ja) 柱梁接合構造。
JP7048015B2 (ja) 梁接合構造
JP6010430B2 (ja) 床構造
JP7338122B2 (ja) 鉄骨部材の接合構造
JP6144931B2 (ja) 柱支持構造
JP6368540B2 (ja) 床構造
JP2019019504A (ja) フラットスラブ構造
JP6660724B2 (ja) 柱接合構造
JP2020097847A (ja) 木質構造部材
JP6908354B2 (ja) 木質耐火構造の接合部
JP2024021780A (ja) 柱梁接合部の耐火構造

Legal Events

Date Code Title Description
A621 Written request for application examination

Free format text: JAPANESE INTERMEDIATE CODE: A621

Effective date: 20150925

A977 Report on retrieval

Free format text: JAPANESE INTERMEDIATE CODE: A971007

Effective date: 20160825

TRDD Decision of grant or rejection written
A01 Written decision to grant a patent or to grant a registration (utility model)

Free format text: JAPANESE INTERMEDIATE CODE: A01

Effective date: 20161004

A61 First payment of annual fees (during grant procedure)

Free format text: JAPANESE INTERMEDIATE CODE: A61

Effective date: 20161027

R150 Certificate of patent or registration of utility model

Ref document number: 6034164

Country of ref document: JP

Free format text: JAPANESE INTERMEDIATE CODE: R150