CN218108699U - 一种机电设备除尘装置 - Google Patents
一种机电设备除尘装置 Download PDFInfo
- Publication number
- CN218108699U CN218108699U CN202222691379.8U CN202222691379U CN218108699U CN 218108699 U CN218108699 U CN 218108699U CN 202222691379 U CN202222691379 U CN 202222691379U CN 218108699 U CN218108699 U CN 218108699U
- Authority
- CN
- China
- Prior art keywords
- dust
- fixedly connected
- electromechanical device
- base
- motor
- Prior art date
- Legal status (The legal status is an assumption and is not a legal conclusion. Google has not performed a legal analysis and makes no representation as to the accuracy of the status listed.)
- Expired - Fee Related
Links
- 239000000428 dust Substances 0.000 title claims abstract description 127
- 238000010521 absorption reaction Methods 0.000 claims description 20
- 230000002457 bidirectional effect Effects 0.000 claims description 14
- 238000004140 cleaning Methods 0.000 claims description 11
- 230000010405 clearance mechanism Effects 0.000 claims description 3
- 238000000605 extraction Methods 0.000 claims 1
- XLYOFNOQVPJJNP-UHFFFAOYSA-N water Substances O XLYOFNOQVPJJNP-UHFFFAOYSA-N 0.000 description 2
- 229910000831 Steel Inorganic materials 0.000 description 1
- 230000004075 alteration Effects 0.000 description 1
- 230000009286 beneficial effect Effects 0.000 description 1
- 238000010586 diagram Methods 0.000 description 1
- 238000007599 discharging Methods 0.000 description 1
- 238000005516 engineering process Methods 0.000 description 1
- 230000017525 heat dissipation Effects 0.000 description 1
- 230000006698 induction Effects 0.000 description 1
- 238000000034 method Methods 0.000 description 1
- 238000012986 modification Methods 0.000 description 1
- 230000004048 modification Effects 0.000 description 1
- 239000010959 steel Substances 0.000 description 1
- 238000006467 substitution reaction Methods 0.000 description 1
Images
Landscapes
- Cleaning In General (AREA)
Abstract
本实用新型涉及机电设备除尘技术领域,具体为一种机电设备除尘装置,包括底座和除尘装置主体,所述底座的顶端固定连接有固定组件,固定组件上夹紧有机电设备本体,底座的顶端固定连接有多个第一电动缸,多个第一电动缸的顶端固定连接有横板,横板上设置有滑槽,滑槽的内部转动连接有双向螺杆,横板的侧端固定安装有第一电机,第一电机的输出端与双向螺杆的右端固定连接,双向螺杆的外部左侧和外部右侧均螺纹连接有滑块,两个滑块均与滑槽滑动配合,两个滑块的底端均固定连接有两个第二电动缸;其便于对机电设备本体多个端面进行清理,避免了人工手持逐个面进行除尘处理,降低了人们的工作量,提高除尘的效率。
Description
技术领域
本实用新型涉及机电设备除尘技术领域,具体为一种机电设备除尘装置。
背景技术
众所周知,机电设备一般指机械、电器及电气自动化设备,在建筑中多指除土工、木工、钢筋、泥水之外的机械、管道设备的统称。它不同于五金,多指能实现一定功能的成品,随着科技的发展,机电设备趋于精密化,灰尘会导致机电设备散热不良,灰尘影响机电设备的感应,容易频繁出现故障,因此机电设备除尘尤其重要,起初人们是通过人工对机电设备上的灰尘进行清理,人工清理的过程中会产生大量的灰尘,容易对人体造成伤害,因此发明出了一种机电设备除尘装置。
经检索,中国专利号为CN202021504465.8的实用新型专利公开了一种机电设备除尘装置,包括除尘装置主体、引风机、控制器、蓄电池和水泵,所述除尘装置主体上端外表面固连有吸尘管和排气管,且吸尘管在排气管右侧,所述吸尘管固连有引风室,且引风室底端固连有吸盘口,所述引风室左侧固连有伸缩杆一端,且伸缩杆另一端固连有把手,所述引风室内部设置有引风机,其在使用时,通过人工手握把手、伸缩杆、引风室、引风机和吸盘口,将机电设备上各个端面上的灰尘吸走,其需要人工手持操作,人们的工作量相对较大,且其需要对机电设备单面进行灰尘清理,对机电设备除尘的效率较低。
发明内容
针对现有技术的不足,本实用新型提供了一种机电设备除尘装置,以解决上述背景技术中提出的问题。
为实现上述目的,本实用新型提供如下技术方案:一种机电设备除尘装置,包括底座和除尘装置主体,所述底座的顶端固定连接有固定组件,固定组件上夹紧有机电设备本体,底座的顶端固定连接有多个第一电动缸,多个第一电动缸的顶端固定连接有横板,横板上设置有滑槽,滑槽的内部转动连接有双向螺杆,横板的侧端固定安装有第一电机,第一电机的输出端与双向螺杆的右端固定连接,双向螺杆的外部左侧和外部右侧均螺纹连接有滑块,两个滑块均与滑槽滑动配合,两个滑块的底端均固定连接有两个第二电动缸,两个第二电动缸的底端均固定连接有第一吸尘框,两个第一吸尘框分别位于机电设备本体的左侧和右侧,两个第一吸尘框的内部均转动连接有转轴,转轴的外部固定套设有第一除尘刷,第一除尘刷的侧端与机电设备本体的侧端接触,两个第一吸尘框的前端均固定安装有第二电机,第二电机的输出端与转轴的前端固定连接,横板的底端固定连接有多个第三电动缸,多个第三电动缸的底端固定连接有第二吸尘框,第二吸尘框的顶端固定安装有第三电机,第三电机的输出轴的底端延伸至第二吸尘框的下方且固定连接有清理机构,所述除尘装置主体的底端与底座的顶端左侧固定连接,除尘装置主体的进气端连通有引风机,引风机的输入端通过软管与两个第一吸尘框和第二吸尘框连通。
为便于对机电设备本体进行固定,所述固定组件包括固定座,所述底座的顶端设置有转槽,转槽的内部转动连接有转座,所述固定座的底端与转座的顶端固定连接,底座的底端固定连接有第四电机,第四电机的输出端与转座的底端固定连接,所述固定座的顶端设置有固定槽,固定座的左端、前端、右端和后端均螺纹连接有第一螺杆,第一螺杆延伸至固定槽内部的一端转动连接有夹紧板,夹紧板的底端与固定槽的底端滑动配合。
为便于对第一螺杆进行转动,各所述第一螺杆的侧端均固定连接有转把。
为便于对机电设备本体的顶端的灰尘进行清理,所述清理机构包括固定条,所述固定条的两端底侧均设置有凸型槽,两个凸型槽的内部均滑动设置有凸型条,两个凸型条的底端和固定条的底端均固定连接有第二除尘刷,固定条的前端左侧和前端后侧均螺纹连接有固定螺丝,两个固定螺丝的后端分别与两个凸型条的前端接触。
为便于使该除尘装置移动,所述底座的底端四角位置均固定安装有具有自锁功能的万向轮。
为便于对两个滑块进行支撑,两个所述滑块的顶端均固定连接有支撑板,两个支撑板的底端均与横板的顶端滑动配合。
与现有技术相比,本实用新型提供了一种机电设备除尘装置,具备以下有益效果:
该机电设备除尘装置,通过固定组件对机电设备本体进行固定,通过第一电机带动双向螺杆转动,双向螺杆转动使两个滑块在滑槽的内部滑动,两个滑块带动两个第一吸尘框移动,使两个第一除尘刷的侧端与机电设备本体的两个侧端接触,通过两个第二电机带动两个转轴和两个第一除尘刷转动,同时通过多个第一电动缸和多个第二电动缸的配合使两个第一除尘框上下移动,将机电设备本体侧端上的灰尘清理掉,同时通过多个第三电动缸推动第二吸尘框向下移动,通过第三电机带动清理组件转动对机电设备本体的顶端的灰尘进行清除,当机电设备本体左端和右端底侧灰尘清理掉后,然后转动机电设备本体,在对机电设备本体的前端和后端上的灰尘进行清除,从而便于对机电设备本体多个端面进行清理,避免了人工手持逐个面进行除尘处理,降低了人们的工作量,提高除尘的效率。
附图说明
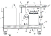
图1为本实用新型的剖面结构示意图;
图2为本实用新型的前视结构示意图;
图3为本实用新型的固定条和凸型条连接的侧视剖面结构示意图;
图4为本实用新型图1中A处的局部放大结构示意图;
图5为本实用新型图1中B处的局部放大结构示意图。
图中:1、底座;2、除尘装置主体;3、机电设备本体;4、第一电动缸;5、横板;6、双向螺杆;7、第一电机;8、滑块;9、第二电动缸;10、第一吸尘框;11、转轴;12、第一除尘刷;13、第二电机;14、第三电动缸;15、第二吸尘框;16、第三电机;17、引风机;18、固定座;19、第一螺杆;20、夹紧板;21、转把;22、固定条;23、凸型条;24、第二除尘刷;25、固定螺丝;26、万向轮;27、支撑板;28、转座;29、第四电机。
具体实施方式
下面将结合本实用新型实施例中的附图,对本实用新型实施例中的技术方案进行清楚、完整地描述,显然,所描述的实施例仅仅是本实用新型一部分实施例,而不是全部的实施例。基于本实用新型中的实施例,本领域普通技术人员在没有做出创造性劳动前提下所获得的所有其他实施例,都属于本实用新型保护的范围。
实施例
如图1-5所示,一种机电设备除尘装置,包括底座1和除尘装置主体2,底座1的底端四角位置均固定安装有具有自锁功能的万向轮26,便于使该除尘装置移动,底座1的顶端固定连接有固定组件,固定组件上夹紧有机电设备本体3,底座1的顶端固定连接有多个第一电动缸4,多个第一电动缸4的顶端固定连接有横板5,横板5上设置有滑槽,滑槽的内部转动连接有双向螺杆6,横板5的侧端固定安装有第一电机7,第一电机7的输出端与双向螺杆6的右端固定连接,双向螺杆6的外部左侧和外部右侧均螺纹连接有滑块8,两个滑块8均与滑槽滑动配合,两个滑块8的顶端均固定连接有支撑板27,两个支撑板27的底端均与横板5的顶端滑动配合,便于对两个滑块8进行支撑,避免两个滑块8在滑槽的内部向下坠,两个滑块8的底端均固定连接有两个第二电动缸9,两个第二电动缸9的底端均固定连接有第一吸尘框10,两个第一吸尘框10分别位于机电设备本体3的左侧和右侧,两个第一吸尘框10的内部均转动连接有转轴11,转轴11的外部固定套设有第一除尘刷12,第一除尘刷12的长度较长,便于对不同长度的机电设备本体3进行除尘处理,第一除尘刷12的侧端与机电设备本体3的侧端接触,两个第一吸尘框10的前端均固定安装有第二电机13,第二电机13的输出端与转轴11的前端固定连接,横板5的底端固定连接有多个第三电动缸14,多个第三电动缸14的底端固定连接有第二吸尘框15,第二吸尘框15的顶端固定安装有第三电机16,第三电机16的输出轴的底端延伸至第二吸尘框15的下方且固定连接有清理机构,清理机构包括固定条22,固定条22的两端底侧均设置有凸型槽,两个凸型槽的内部均滑动设置有凸型条23,两个凸型条23的底端和固定条22的底端均固定连接有第二除尘刷24,固定条22的前端左侧和前端后侧均螺纹连接有固定螺丝25,两个固定螺丝25的后端分别与两个凸型条23的前端接触,通过固定螺丝25对凸型条23进行固定,通过凸型条23在凸型槽的内部滑动,便于调节清理机构的总长度,便于对不同尺寸机电设备本体3顶端面的灰尘进行清除,通过固定组件对机电设备本体3进行固定,通过第一电机7带动双向螺杆6转动,双向螺杆6转动使两个滑块8在滑槽的内部滑动,两个滑块8带动两个第一吸尘框10移动,使两个第一除尘刷12的侧端与机电设备本体3的两个侧端接触,通过两个第二电机13带动两个转轴11和两个第一除尘刷12转动,同时通过多个第一电动缸4和多个第二电动缸9的配合使两个第一除尘框上下移动,将机电设备本体3侧端上的灰尘清理掉,同时通过多个第三电动缸14推动第二吸尘框15向下移动,通过第三电机16带动清理组件转动对机电设备本体3的顶端的灰尘进行清除,当机电设备本体3左端和右端底侧灰尘清理掉后,然后转动机电设备本体3,在对机电设备本体3的前端和后端上的灰尘进行清除,从而便于对机电设备本体3多个端面进行清理,避免了人工手持逐个面进行除尘处理,降低了人们的工作量,提高除尘的效率,除尘装置主体2的底端与底座1的顶端左侧固定连接,除尘装置主体2为公开的现有技术,在只对其进行使用,其具体结构和功能在这不进行详细介绍,除尘装置主体2的进气端连通有引风机17,引风机17的输入端通过软管与两个第一吸尘框10和第二吸尘框15连通,通过引风机17的吸力将从机电设备本体3上清除掉的灰尘吸走,通过除尘装置主体2将吸入至除尘装置主体2内部的空气中的灰尘清除掉,使清洁的空气从除尘装置主体2的内部排出。
固定组件包括固定座18,底座1的顶端设置有转槽,转槽的内部转动连接有转座28,固定座18的底端与转座28的顶端固定连接,底座1的底端固定连接有第四电机29,第四电机29的输出端与转座28的底端固定连接,固定座18的顶端设置有固定槽,固定槽的深度相对较浅,机电设备本体3位于固定槽内部部分上的灰尘通过引风机17的吸力能够吸走,固定座18的左端、前端、右端和后端均螺纹连接有第一螺杆19,各第一螺杆19的侧端均固定连接有转把21,便于对第一螺杆19进行转动,第一螺杆19延伸至固定槽内部的一端转动连接有夹紧板20,夹紧板20的底端与固定槽的底端滑动配合,固定槽的内部横向和纵向均设置有相应的刻度线(图中未画出),便于将机电设备本体3放置在固定槽的中间位置,双向螺杆6的中间位置位于固定座18中间位置的正上方,转动第一螺杆19,第一螺杆19转动使夹紧板20在固定槽的内部滑动,通过夹紧板20将机电设备本体3固定在固定槽内部中间位置。
综上所述,该机电设备除尘装置,在使用时,首先将需要除尘的机电设备本体3放在固定槽内部的中间位置,然后转动第一螺杆19,第一螺杆19转动使夹紧板20在固定槽的内部滑动,通过夹紧板20将机电设备本体3固定在固定槽内部中间位置,然后启动第一电机7,通过第一电机7带动双向螺杆6转动,双向螺杆6转动使两个滑块8在滑槽的内部滑动,两个滑块8带动两个第一吸尘框10移动,使两个第一除尘刷12的侧端与机电设备本体3的两个侧端接触,通过两个第二电机13带动两个转轴11和两个第一除尘刷12转动,同时通过多个第一电动缸4和多个第二电动缸9的配合使两个第一除尘框上下移动,将机电设备本体3侧端上的灰尘清理掉,通过凸型条23在凸型槽的内部滑动,便于调节清理机构的总长度,使清理机构能够对机电设备本体3的顶端全面清扫到,同时通过多个第三电动缸14推动第二吸尘框15向下移动,使第二除尘刷24的底端与机电设备本体3的顶端接触,通过第三电机16带动清理组件转动对机电设备本体3的顶端的灰尘进行清除,当机电设备本体3左端和右端底侧灰尘清理掉后,同时启动引风机17,通过引风机17的吸力将从机电设备本体3上清除掉的灰尘吸走,通过除尘装置主体2将吸入至除尘装置主体2内部的空气中的灰尘清除掉,使清洁的空气从除尘装置主体2的内部排出,当对机电设备本体3两侧的灰尘清理掉后,启动第一电机7,使两个第一吸尘框10移至最外侧,然后通过第四电机29带动机电设备本体3转动,使机电设备本体3旋转90度,然后启动第一电机7使两个第一吸尘框10向中间移动,使两个第一除尘刷12的侧端与机电设备本体3未清理的两个侧端接触,然后对机电设备本体3的另外两个侧端上的灰尘进行清除,从而完成对对整个机电设备本体3上的灰尘进行清除,然后更换其它的机电设备本体3,并对其它机电设备本体3上的灰尘进行清除。
尽管已经示出和描述了本实用新型的实施例,对于本领域的普通技术人员而言,可以理解在不脱离本实用新型的原理和精神的情况下可以对这些实施例进行多种变化、修改、替换和变型,本实用新型的范围由所附权利要求及其等同物限定。
Claims (6)
1.一种机电设备除尘装置,包括底座(1)和除尘装置主体(2),其特征在于:所述底座(1)的顶端固定连接有固定组件,固定组件上夹紧有机电设备本体(3),底座(1)的顶端固定连接有多个第一电动缸(4),多个第一电动缸(4)的顶端固定连接有横板(5),横板(5)上设置有滑槽,滑槽的内部转动连接有双向螺杆(6),横板(5)的侧端固定安装有第一电机(7),第一电机(7)的输出端与双向螺杆(6)的右端固定连接,双向螺杆(6)的外部左侧和外部右侧均螺纹连接有滑块(8),两个滑块(8)均与滑槽滑动配合,两个滑块(8)的底端均固定连接有两个第二电动缸(9),两个第二电动缸(9)的底端均固定连接有第一吸尘框(10),两个第一吸尘框(10)分别位于机电设备本体(3)的左侧和右侧,两个第一吸尘框(10)的内部均转动连接有转轴(11),转轴(11)的外部固定套设有第一除尘刷(12),第一除尘刷(12)的侧端与机电设备本体(3)的侧端接触,两个第一吸尘框(10)的前端均固定安装有第二电机(13),第二电机(13)的输出端与转轴(11)的前端固定连接,横板(5)的底端固定连接有多个第三电动缸(14),多个第三电动缸(14)的底端固定连接有第二吸尘框(15),第二吸尘框(15)的顶端固定安装有第三电机(16),第三电机(16)的输出轴的底端延伸至第二吸尘框(15)的下方且固定连接有清理机构,所述除尘装置主体(2)的底端与底座(1)的顶端左侧固定连接,除尘装置主体(2)的进气端连通有引风机(17),引风机(17)的输入端通过软管与两个第一吸尘框(10)和第二吸尘框(15)连通。
2.根据权利要求1所述的一种机电设备除尘装置,其特征在于:所述固定组件包括固定座(18),所述底座(1)的顶端设置有转槽,转槽的内部转动连接有转座(28),所述固定座(18)的底端与转座(28)的顶端固定连接,底座(1)的底端固定连接有第四电机(29),第四电机(29)的输出端与转座(28)的底端固定连接,所述固定座(18)的顶端设置有固定槽,固定座(18)的左端、前端、右端和后端均螺纹连接有第一螺杆(19),第一螺杆(19)延伸至固定槽内部的一端转动连接有夹紧板(20),夹紧板(20)的底端与固定槽的底端滑动配合。
3.根据权利要求2所述的一种机电设备除尘装置,其特征在于:各所述第一螺杆(19)的侧端均固定连接有转把(21)。
4.根据权利要求3所述的一种机电设备除尘装置,其特征在于:所述清理机构包括固定条(22),所述固定条(22)的两端底侧均设置有凸型槽,两个凸型槽的内部均滑动设置有凸型条(23),两个凸型条(23)的底端和固定条(22)的底端均固定连接有第二除尘刷(24),固定条(22)的前端左侧和前端后侧均螺纹连接有固定螺丝(25),两个固定螺丝(25)的后端分别与两个凸型条(23)的前端接触。
5.根据权利要求4所述的一种机电设备除尘装置,其特征在于:所述底座(1)的底端四角位置均固定安装有具有自锁功能的万向轮(26)。
6.根据权利要求5所述的一种机电设备除尘装置,其特征在于:两个所述滑块(8)的顶端均固定连接有支撑板(27),两个支撑板(27)的底端均与横板(5)的顶端滑动配合。
Priority Applications (1)
| Application Number | Priority Date | Filing Date | Title |
|---|---|---|---|
| CN202222691379.8U CN218108699U (zh) | 2022-10-13 | 2022-10-13 | 一种机电设备除尘装置 |
Applications Claiming Priority (1)
| Application Number | Priority Date | Filing Date | Title |
|---|---|---|---|
| CN202222691379.8U CN218108699U (zh) | 2022-10-13 | 2022-10-13 | 一种机电设备除尘装置 |
Publications (1)
| Publication Number | Publication Date |
|---|---|
| CN218108699U true CN218108699U (zh) | 2022-12-23 |
Family
ID=84495089
Family Applications (1)
| Application Number | Title | Priority Date | Filing Date |
|---|---|---|---|
| CN202222691379.8U Expired - Fee Related CN218108699U (zh) | 2022-10-13 | 2022-10-13 | 一种机电设备除尘装置 |
Country Status (1)
| Country | Link |
|---|---|
| CN (1) | CN218108699U (zh) |
Cited By (1)
| Publication number | Priority date | Publication date | Assignee | Title |
|---|---|---|---|---|
| WO2024187623A1 (zh) * | 2023-03-16 | 2024-09-19 | 安徽绿沃循环能源科技有限公司 | 一种退役电池的除尘装置 |
-
2022
- 2022-10-13 CN CN202222691379.8U patent/CN218108699U/zh not_active Expired - Fee Related
Cited By (1)
| Publication number | Priority date | Publication date | Assignee | Title |
|---|---|---|---|---|
| WO2024187623A1 (zh) * | 2023-03-16 | 2024-09-19 | 安徽绿沃循环能源科技有限公司 | 一种退役电池的除尘装置 |
Similar Documents
| Publication | Publication Date | Title |
|---|---|---|
| CN209953312U (zh) | 一种汽车滤清器除尘装置 | |
| CN218108699U (zh) | 一种机电设备除尘装置 | |
| CN221048048U (zh) | 一种直线导轨倒角打磨设备 | |
| CN221436006U (zh) | 一种建筑材料打磨设备 | |
| CN118809697A (zh) | 样子塑料板材切割机 | |
| CN214559766U (zh) | 一种磁石打磨自动翻面机 | |
| CN215997672U (zh) | 一种激光散热器外壳生产的清洁装置 | |
| CN211073112U (zh) | 一种机械零件加工用轴承外表面抛光装置 | |
| CN222404725U (zh) | 一种钢板销轴的外圆磨圆装置 | |
| CN217493571U (zh) | 一种钣金件加工用废屑收集装置 | |
| CN221248018U (zh) | 一种具备清理机构的蜗轮打磨设备 | |
| CN220446110U (zh) | 一种电脑外壳抛光设备 | |
| CN221338027U (zh) | 一种预焙阳极炭块的清理回收机构 | |
| CN222903568U (zh) | 一种用于废钢处理的除锈装置 | |
| CN219747463U (zh) | 一种五金抛光机 | |
| CN221871631U (zh) | 一种带有金属粉末吸收结构的五金铜片打磨装置 | |
| CN222241717U (zh) | 一种用于碾米砂辊表面开槽用废料排出结构 | |
| CN220515634U (zh) | 一种齿条磨齿装置 | |
| CN221311598U (zh) | 一种废料清理装置 | |
| CN222199948U (zh) | 一种玻璃生产用磨边机 | |
| CN222661231U (zh) | 一种印刷辊外圆抛光装置 | |
| CN222493752U (zh) | 一种用于阀门加工的快速夹紧装置 | |
| CN223353857U (zh) | 一种可拆式木纤维加工用磨片工装 | |
| CN223352309U (zh) | 一种通信产品用除尘装置 | |
| CN222244219U (zh) | 一种具备废料收集的阀杆加工用抛光装置 |
Legal Events
| Date | Code | Title | Description |
|---|---|---|---|
| GR01 | Patent grant | ||
| GR01 | Patent grant | ||
| CF01 | Termination of patent right due to non-payment of annual fee | ||
| CF01 | Termination of patent right due to non-payment of annual fee |
Granted publication date: 20221223 |