CN216262638U - 餐厨垃圾处理系统 - Google Patents
餐厨垃圾处理系统 Download PDFInfo
- Publication number
- CN216262638U CN216262638U CN202122500719.XU CN202122500719U CN216262638U CN 216262638 U CN216262638 U CN 216262638U CN 202122500719 U CN202122500719 U CN 202122500719U CN 216262638 U CN216262638 U CN 216262638U
- Authority
- CN
- China
- Prior art keywords
- oil
- water
- fermentation
- discharging
- kitchen waste
- Prior art date
- Legal status (The legal status is an assumption and is not a legal conclusion. Google has not performed a legal analysis and makes no representation as to the accuracy of the status listed.)
- Active
Links
- 239000010806 kitchen waste Substances 0.000 title claims abstract description 69
- 238000011282 treatment Methods 0.000 title claims abstract description 47
- XLYOFNOQVPJJNP-UHFFFAOYSA-N water Substances O XLYOFNOQVPJJNP-UHFFFAOYSA-N 0.000 claims abstract description 114
- 238000000855 fermentation Methods 0.000 claims abstract description 81
- 230000004151 fermentation Effects 0.000 claims abstract description 80
- 238000007599 discharging Methods 0.000 claims abstract description 55
- 238000004332 deodorization Methods 0.000 claims abstract description 32
- 238000005406 washing Methods 0.000 claims abstract description 26
- 238000000926 separation method Methods 0.000 claims abstract description 24
- 239000007788 liquid Substances 0.000 claims abstract description 22
- 239000010865 sewage Substances 0.000 claims description 29
- 239000010813 municipal solid waste Substances 0.000 claims description 5
- 238000001514 detection method Methods 0.000 claims description 4
- 235000012054 meals Nutrition 0.000 claims description 2
- 238000010564 aerobic fermentation Methods 0.000 abstract description 5
- 235000019198 oils Nutrition 0.000 description 25
- 238000000034 method Methods 0.000 description 9
- 239000003337 fertilizer Substances 0.000 description 4
- 239000003895 organic fertilizer Substances 0.000 description 4
- 238000011033 desalting Methods 0.000 description 3
- 239000010794 food waste Substances 0.000 description 3
- 239000000463 material Substances 0.000 description 3
- 238000005325 percolation Methods 0.000 description 3
- 229920003023 plastic Polymers 0.000 description 3
- 239000004033 plastic Substances 0.000 description 3
- 238000000746 purification Methods 0.000 description 3
- 230000001877 deodorizing effect Effects 0.000 description 2
- 238000001035 drying Methods 0.000 description 2
- 230000000694 effects Effects 0.000 description 2
- 238000000605 extraction Methods 0.000 description 2
- 239000007789 gas Substances 0.000 description 2
- 210000004907 gland Anatomy 0.000 description 2
- 239000004519 grease Substances 0.000 description 2
- 230000002779 inactivation Effects 0.000 description 2
- 238000011221 initial treatment Methods 0.000 description 2
- 239000002184 metal Substances 0.000 description 2
- 244000005700 microbiome Species 0.000 description 2
- 239000011259 mixed solution Substances 0.000 description 2
- 229920006395 saturated elastomer Polymers 0.000 description 2
- 230000001954 sterilising effect Effects 0.000 description 2
- 238000004659 sterilization and disinfection Methods 0.000 description 2
- 230000006978 adaptation Effects 0.000 description 1
- 230000009286 beneficial effect Effects 0.000 description 1
- 230000015572 biosynthetic process Effects 0.000 description 1
- 238000006243 chemical reaction Methods 0.000 description 1
- 230000007797 corrosion Effects 0.000 description 1
- 238000005260 corrosion Methods 0.000 description 1
- 230000007547 defect Effects 0.000 description 1
- 238000006731 degradation reaction Methods 0.000 description 1
- 239000010791 domestic waste Substances 0.000 description 1
- 238000005265 energy consumption Methods 0.000 description 1
- 238000005516 engineering process Methods 0.000 description 1
- 238000010438 heat treatment Methods 0.000 description 1
- 244000000010 microbial pathogen Species 0.000 description 1
- 238000012986 modification Methods 0.000 description 1
- 230000004048 modification Effects 0.000 description 1
- 235000019476 oil-water mixture Nutrition 0.000 description 1
- 239000005416 organic matter Substances 0.000 description 1
- 239000002245 particle Substances 0.000 description 1
- 238000004064 recycling Methods 0.000 description 1
- 150000003839 salts Chemical class 0.000 description 1
- 239000002689 soil Substances 0.000 description 1
- 239000002910 solid waste Substances 0.000 description 1
- 238000003756 stirring Methods 0.000 description 1
- 239000002912 waste gas Substances 0.000 description 1
- 238000004804 winding Methods 0.000 description 1
Images
Landscapes
- Processing Of Solid Wastes (AREA)
Abstract
本实用新型提供一种餐厨垃圾处理系统,其卸料装置、油水分离装置、水洗分拣机、破碎机、压榨机、发酵组件和除臭组件,卸料装置的出料口分别连接液体分离装置和水洗分拣机;卸料装置包括卸料仓和双无轴螺旋输送机,卸料仓的出料口分别与双无轴螺旋输送机的第一端连接,卸料仓的上方开设有进料口。本实用新型在发酵处理装置中采用四台发酵缸,每台发酵缸内部采用三仓联动结构,每仓可独立加热发酵,能够缩短餐厨垃圾好氧发酵周期,同时本装置的卸料仓处采用折叠液压盖和双无轴螺旋输送机,折叠液压盖能够有效的阻绝臭气的泄漏,双无轴螺旋输送机能够加快餐厨的运输速度同时减少堵塞。
Description
技术领域
本实用新型涉及餐厨垃圾处理领域,涉及一种餐厨垃圾处理系统。
背景技术
餐厨垃圾是餐饮垃圾和厨余垃圾的总称。餐厨垃圾是我国城市的一种主要固体废弃物,由于我国居民生活习惯的原因,餐厨垃圾的产生量较大,约占城市生活垃圾含量的30%~50%。因此,餐厨垃圾无害化处理及资源化利用日益受到重视,对改善公众的生活环境和提高人民的生活水平意义重大。
餐厨垃圾的主要特点:含水率高、油脂高、盐分高、有机质含量高、易腐蚀、容易形成病原微生物等特点。
现有的餐厨垃圾处理技术无法在收集餐厨垃圾的时候做到臭气的阻隔,而且在餐厨处理的过程中采用单轴输送机导致餐厨垃圾在运输的过程中,会出现叶片被塑料缠绕致输送机停止工作或运输缓慢的现象,同时现有的技术中用的是单仓发酵,导致发酵周长,耗能,干湿料一致混合。
实用新型内容
针对现有技术存在的问题及不足,本实用新型提供了一种餐厨垃圾处理系统,本实用新型设置有三仓联动,实现三个发酵仓独立进行同时和发酵处理,能单独对三个发酵仓进行控制,同时本实用新型在卸料仓处设置有折叠液压盖能够有效的阻断部分臭气,本实用新型设置有双无轴螺旋输送机能够降低餐厨垃圾中的塑料袋对螺旋叶片的缠绕概率,提升物料的通过率,本实用新型使得效率大幅提升,节能减排,真正的降低了处理成本。
具体地,本实用新型提供一种餐厨垃圾处理系统,其包括卸料装置、油水分离装置、水洗分拣机、破碎机、压榨机、发酵组件和除臭组件,所述卸料装置的出料口分别连接所述液体分离装置和水洗分拣机;所述卸料装置包括卸料仓和双无轴螺旋输送机,所述卸料仓的出料口分别与所述双无轴螺旋输送机的第一端连接,所述卸料仓的上方开设有进料口;所述液体分离装置包括排水槽、油水暂存箱、油水分离罐、油水分离器、储油箱和污水处理池,所述排水槽的第一端与卸料仓连接,所述排水槽的第二端与所述油水暂存箱的进液口连接,所述油水暂存箱的出液口与所述油水分离罐的进液口连接,所述油水分离罐出油口与所述储油箱连接,所述油水分离罐的污水口与所述油水分离器的进液口连接,所述油水分离罐的出水口与所述污水处理池连接,所述油水分离器的出油口与所述储油箱连接,所述油水分离器的出水口与所述污水处理池连接;所述水洗分拣机的第一端与所述双无轴螺旋输送机的第二端连接,所述水洗分拣机的第二端分别与所述油水暂存箱和所述破碎机的进料口连接,所述破碎机的出料口与所述压榨机的进料口连接,所述压榨机的出液口与所述油水暂存箱连接,所述压榨机的出料口与所述发酵组件的进料口连接,所述发酵组件的排气口与所述除臭组件连接,所述除臭组件包括除臭塔、引风机和烟囱,所述除臭塔的进风口通过除臭管与所述发酵组件连接,所述除臭塔的出风口设置有所述引风机并与所述烟囱连接;所述发酵组件包括多个发酵缸组,每个发酵缸组包括多个发酵缸,所述多个发酵缸的出料口之间相互连接,所述多个发酵缸的排气口之间并联,并统一与所述除臭管连接;每一个发酵缸均包括多个加热仓,每一个加热仓均能够进行独立加热,所述多个加热仓平行设置,搅拌装置穿过所述多个加热仓的内部,所述搅拌装置借助于电机进行驱动。
可优选的,所述水洗分拣机通过所述第一输送机与所述双无轴螺旋输送机连接,所述第一输送机呈Z字形设置,所述第一输送机的下端与所述无轴螺旋输送机连接,所述第一输送机的上端与所述水洗分拣机连接,所述破碎机通过第二输送机与所述压榨机连接,所述压榨机通过第三输送机和第四输送机与所述发酵组件连接。
可优选的,第五输送机设置有一个进料口和两个出料口,相邻的发酵缸的进料口分别与所述第五输送机的两个出料口连接。
可优选的,所述第四输送机的出料口分别连接多个所述第五输送机的进料口。
可优选的,所述卸料装置与所述双无轴螺旋输送机均设置在卸料坑内,所述卸料坑内设置有第一污水泵,所述油水暂存箱的内部设置有第二污水泵。
可优选的,所述第一输送机和第二输送机的下方均分别设置有收集管道,所述第一输送机的收集管道的输出端与所述卸料坑连接,所述第二输送机的收集管道的第一端与所述第二输送机连接,所述第二输送机的收集管道与排水槽连接,排水槽与油水暂存箱连接。
可优选的,所述排水槽的第一端水平高度高于所述排水槽第二端的水平高度,所述排水槽的第二端与所述油水暂存箱的上端连接。
可优选的,所述卸料坑内的餐余通过第一水泵流至所述排水槽,经所述排水槽流向所述油水暂存箱。
可优选的,多个发酵缸包括第一发酵缸和第二发酵缸,所述第一发酵缸的进料口和所述第二发酵缸的进料口处均分别设置有检测装置。
可优选的,所述卸料仓的进料口处设置有折叠液压盖,所述折叠液压盖通过滑道以及辊轮与所述进料口连接。
与现有技术相比,本实用新型的特点和有益效果:
本实用新型通过设置油水分离装置和发酵处理装置从而来合理的实现餐厨垃圾的无害化、资源化、减量化处理,本实用新型在发酵处理装置中采用三仓结构同时进行加热和搅拌处理,能够高效的发酵餐厨垃圾,使得其变为有机肥料,能够将发酵装置为分为干燥区、反应区以及成肥区,餐厨垃圾由湿变干逐步过料到一下区域,互不冲突,能够持续投料,本装置采用两级提油,首先采用油水分离罐对油水混合物进行一级处理,之后通过油水分离器对一级处理后的污水进行二级精细化提油处理,提高了油水分离的效果,同时本装置的卸料仓处采用折叠液压盖,折叠液压盖能够有效的阻绝臭气的泄漏,本装置在卸料仓的位置设置有双无轴螺旋输送机能够加快餐厨的运输速度同时减少堵塞,从而达到理想的状态,实现低耗能使得整体的工艺更加的合理,设备的运转更加的安全可靠。
附图说明
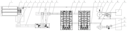
图1为本实用新型餐厨垃圾处理系统的整体结构俯视图;
图2为本实用新型餐厨垃圾处理系统的整机结构主视图;
图3为本实用新型餐厨垃圾处理系统的发酵缸组结构示意图。
主要附图标记:
1-卸料仓、3-双无轴螺旋输送机、4-第一输送机、5-第一污水泵、6-水洗分拣机、7-排水槽、8-压榨机、9-第二输送机、10-破碎机、11-第三输送机、 12-发酵缸组、13-第四输送机、14-除臭管道、15-油水暂存箱、16-油水分离罐、 17-除臭塔、18-油水分离器、19-储油箱、20-污水处理池、21-烟囱、22-除臭风机、23-第五输送机。
具体实施方式
为详尽本实用新型之技术内容、结构特征、所达成目的及功效,以下将结合说明书附图进行详细说明。
本实用新型的具体操作步骤如下:
如图1-图3所示,一种餐厨垃圾处理系统,其包括卸料装置、油水分离装置、水洗分拣机6、破碎机10、压榨机8、发酵组件和除臭组件,卸料装置的出料口分别连接液体分离装置和水洗分拣机6;卸料装置包括卸料仓1和双无轴螺旋输送机3,卸料仓1的出料口分别与双无轴螺旋输送机3的第一端连接,卸料仓1的上方开设有进料口。
液体分离装置包括排水槽7、油水暂存箱15、油水分离罐16、油水分离器 18、储油箱19和污水处理池20,排水槽7的第一端与卸料仓1连接,排水槽7 的第二端与油水暂存箱15的进液口连接,油水暂存箱15的出液口与油水分离罐16的进液口连接,油水分离罐16出油口与储油箱19连接,油水分离罐16 的污水口与油水分离器18的进液口连接,油水分离罐16的出水口与污水处理池20连接,油水分离器18的出油口与储油箱19连接,油水分离器18的出水口与污水处理池20连接。
水洗分拣机6的第一端与双无轴螺旋输送机3的第二端连接,水洗分拣机6 的第二端分别与油水暂存箱15和破碎机10的进料口连接,破碎机10的出料口与压榨机8的进料口连接,压榨机8的出液口与油水暂存箱15连接,压榨机8 的出料口与发酵组件的进料口连接,发酵组件的排气口与除臭组件连接,除臭组件包括除臭塔17、引风机和烟囱21,除臭塔17的进风口通过除臭管与发酵组件连接,除臭塔17的出风口设置有引风机并与烟囱21连接;发酵组件包括多个发酵缸组12,每个发酵缸组12包括多个发酵缸,多个发酵缸的出料口之间相互连接,多个发酵缸的排气口之间并联,并统一与除臭管连接;每一个发酵缸均包括多个加热仓,每一个加热仓均能够进行独立加热,多个加热仓平行设置,搅拌装置穿过多个加热仓的内部,搅拌装置借助于电机进行驱动。
水洗分拣机6通过第一输送机4与双无轴螺旋输送机3连接,第一输送机4 呈Z字形设置,第一输送机4最低点的进料口与无轴螺旋输送机连接,第一输送机4最高点的出料口与水洗分拣机6连接,破碎机10通过第二输送机9与压榨机8连接,压榨机8通过第三输送机11和第四输送机13与发酵组件连接。
第五输送机23设置有一个进料口和两个出料口,相邻的发酵缸的进料口分别与第五输送机23的两个出料口连接。
第四输送机13的出料口分别连接多个第五输送机23的进料口。
卸料装置与双无轴螺旋输送机3均设置在卸料坑内,卸料坑内设置有第一污水泵5,油水暂存箱15的内部设置有第二污水泵。
第一输送机4和第二输送机9的下方均分别设置有收集管道,第一输送机的收集管道的输出端与卸料坑连接,第二输送机的收集管道的第一端与第二输送机9连接,第二输送机的收集管道与排水槽7连接,排水槽7与油水暂存箱 15连接。
排水槽7的第一端水平高度高于排水槽7第二端的水平高度,排水槽7的第二端与油水暂存箱15最高点的进料口连接。
卸料坑内的餐余通过第一水泵流至排水槽7,经排水槽7流向油水暂存箱 15。
多个发酵缸包括第一发酵缸和第二发酵缸,第一发酵缸的进料口和第二发酵缸的进料口处均分别设置有检测装置。
卸料仓1的进料口处设置有折叠液压盖,折叠液压盖通过滑道以及辊轮与进料口连接。
第一发酵缸的进料口和第二发酵缸的进料口处均分别设置有检测装置,第一发酵缸处于饱和状态时,第一发酵缸的进料口关闭,第二发酵缸通过第三输送机11和第四输送机13与压榨机8连接,第一发酵缸和第二发酵缸均处于饱和状态时,卸料仓1的进料口将关闭同时第一输送机4、第二输送机9、第三输送机11、第四输送机13和双无轴螺旋输送机3均处于停止状态。
水洗分拣机6用于洗掉餐厨垃圾内的盐分、油脂和分拣出餐厨垃圾内的塑料及金属物等,破碎机10将餐厨垃圾破碎为小块状为压榨机8做准备,压榨机 8对破碎后的餐厨垃圾进行挤压脱水。
发酵缸用于对压榨脱水后的餐厨垃圾进行高温杀菌灭活微生物处理,使餐厨垃圾在好氧的环境下降解成生物有机肥料。
除臭塔17用于净化发酵缸产生的臭气,除臭风机22用于吸取臭气,烟囱 21用于排放净化后的气体。
一种餐厨垃圾处理系统及方法,通过餐厨垃圾收集车将零散餐厨垃圾集中收集,将车载的餐厨垃圾倒入到卸料仓1内并对其渗滤处理,再将餐厨垃圾输送至预处理装置进行脱盐、脱油脂、破碎、压榨脱水,压榨脱水后的餐厨垃圾输送至发酵缸内进行高温杀菌灭活微生物处理,使餐厨垃圾在好氧的环境下降解成生物有机肥料,有机肥可用以改良土壤环境。同时降解过程中生成的臭气经过除臭净化装置的净化后排出,避免了大气污染。此外输送装置、预处理装置产生的渗滤油水混合液经过油水处理装置的处理,将油和水分离开来,油脂进入储油箱19内收集贩卖,分离后的污水进入污水处理池20。本系统餐厨垃圾的处理过程高效,废气及污水得到了有效的处理,做到了资源化再利用,产出物可盈利降低运营成本。
在一个优选实施方式中,对餐厨垃圾处理的步骤包括:餐厨垃圾的收集、餐厨垃圾的集中卸料、餐厨垃圾的脱盐及分拣、餐厨垃圾的破碎、餐厨垃圾的压榨脱水、餐厨垃圾的好氧发酵制肥、发酵臭气的净化以及油水的处理。
下面对本实用新型的工作原理进行进一步说明,其包括以下步骤:
S1、餐厨垃圾的收集:通过餐厨垃圾收集车将地方零散的桶装餐厨垃圾集中收集到车内。
S2、餐厨垃圾的集中卸料:将满载餐厨垃圾的餐厨垃圾收集车运送至卸料装置前集中倒入卸料仓1内。
S3、餐厨垃圾的脱盐及分拣:卸料仓1内的餐厨垃圾通过双无轴螺旋输送机3、链板式输送机一输送至水洗分拣机6上进行水洗脱盐脱油,同时人工分拣出塑料及金属物。
S4、餐厨垃圾的破碎:经过水洗分拣机6的餐厨垃圾进入到破碎机10内进行破碎,使餐厨垃圾破碎为10~20mm左右的均匀颗粒。
S5、餐厨垃圾的压榨脱水:经过破碎的餐厨垃圾通过链板式输送机二进入到压榨机8内进行挤压脱水,使餐厨垃圾的含水率将至45~50%。
S6、餐厨垃圾的好氧发酵制肥:脱水后的餐厨垃圾通过链板式输送机三、链板式输送机四、链板式输送机五的输送,最终进入到发酵缸内进行好氧发酵制肥。
S7、发酵臭气的净化:餐厨垃圾在发酵缸内部高温好氧发酵时产生臭气,臭气由除臭管道14进入到除臭塔17内部喷淋净化除臭,净化后的气体由除臭风机22抽出,通过烟囱21排出。
S8、渗滤油水的处理:S2~S5过程中渗滤的油水混合液通过排水槽7汇集流入到油水暂存箱15内,油水混合液再经污水泵5、油水分离罐16、油水分离器 18的组合工作将油水混合液内油和污水分离开来,分离后的油进入储油箱19内,分离后的污水进入污水处理池20内进行最终污水处理。
以上所述是本申请的优选实施方式,不以此限定本实用新型的保护范围,应当指出,对于该技术领域的普通技术人员来说,在不脱离本技术原理前提下,还可以做出若干改进和润饰,这些改进和润饰也应视为本申请的保护范围。
Claims (10)
1.一种餐厨垃圾处理系统,其特征在于:其包括卸料装置、油水分离装置、水洗分拣机、破碎机、压榨机、发酵组件和除臭组件,所述卸料装置的出料口分别连接所述油水分离装置和水洗分拣机;
所述卸料装置包括卸料仓和双无轴螺旋输送机,所述卸料仓的出料口分别与所述双无轴螺旋输送机的第一端连接,所述卸料仓的上方开设有进料口;
所述油水分离装置包括排水槽、油水暂存箱、油水分离罐、油水分离器、储油箱和污水处理池,所述排水槽的第一端与卸料仓连接,所述排水槽的第二端与所述油水暂存箱的进液口连接,所述油水暂存箱的出液口与所述油水分离罐的进液口连接,所述油水分离罐出油口与所述储油箱连接,所述油水分离罐的污水口与所述油水分离器的进液口连接,所述油水分离罐的出水口与所述污水处理池连接,所述油水分离器的出油口与所述储油箱连接,所述油水分离器的出水口与所述污水处理池连接;
所述水洗分拣机的第一端与所述双无轴螺旋输送机的第二端连接,所述水洗分拣机的第二端分别与所述油水暂存箱和所述破碎机的进料口连接,所述破碎机的出料口与所述压榨机的进料口连接,所述压榨机的出液口与所述油水暂存箱连接,所述压榨机的出料口与所述发酵组件的进料口连接,所述发酵组件的排气口与所述除臭组件连接,所述除臭组件包括除臭塔、引风机和烟囱,所述除臭塔的进风口通过除臭管与所述发酵组件连接,所述除臭塔的出风口设置有所述引风机并与所述烟囱连接;
所述发酵组件包括多个发酵缸组,每个发酵缸组包括多个发酵缸,所述多个发酵缸的出料口之间相互连接,所述多个发酵缸的排气口之间并联,并统一与所述除臭管连接;
每一个发酵缸均包括多个加热仓,每一个加热仓均能够进行独立加热,所述多个加热仓平行设置,搅拌装置穿过所述多个加热仓的内部,所述搅拌装置借助于电机进行驱动。
2.根据权利要求1所述的餐厨垃圾处理系统,其特征在于:所述水洗分拣机通过第一输送机与所述双无轴螺旋输送机连接,所述第一输送机呈Z字形设置,所述第一输送机的下端与所述无轴螺旋输送机连接,所述第一输送机的上端与所述水洗分拣机连接,所述破碎机通过第二输送机与所述压榨机连接,所述压榨机通过第三输送机和第四输送机与所述发酵组件连接。
3.根据权利要求2所述的餐厨垃圾处理系统,其特征在于:第五输送机设置有一个进料口和两个出料口,相邻的发酵缸的进料口分别与所述第五输送机的两个出料口连接。
4.根据权利要求3所述的餐厨垃圾处理系统,其特征在于:所述第四输送机的出料口分别连接多个所述第五输送机的进料口。
5.根据权利要求2所述的餐厨垃圾处理系统,其特征在于:所述卸料装置与所述双无轴螺旋输送机均设置在卸料坑内,所述卸料坑内设置有第一污水泵,所述油水暂存箱的内部设置有第二污水泵。
6.根据权利要求5所述的餐厨垃圾处理系统,其特征在于:所述第一输送机和第二输送机的下方均分别设置有收集管道,所述第一输送机的收集管道的输出端与所述卸料坑连接,所述第二输送机的收集管道的第一端与所述第二输送机连接,所述第二输送机的收集管道与排水槽连接,排水槽与油水暂存箱连接。
7.根据权利要求6所述的餐厨垃圾处理系统,其特征在于:所述排水槽的第一端水平高度高于所述排水槽第二端的水平高度,所述排水槽的第二端与所述油水暂存箱的上端连接。
8.根据权利要求7所述的餐厨垃圾处理系统,其特征在于:所述卸料坑内的餐余通过第一水泵流至所述排水槽,经所述排水槽流向所述油水暂存箱。
9.根据权利要求1所述的餐厨垃圾处理系统,其特征在于:多个发酵缸包括第一发酵缸和第二发酵缸,所述第一发酵缸的进料口和所述第二发酵缸的进料口处均分别设置有检测装置。
10.根据权利要求1所述的餐厨垃圾处理系统,其特征在于:所述卸料仓的进料口处设置有折叠液压盖,所述折叠液压盖通过滑道以及辊轮与所述进料口连接。
Priority Applications (1)
| Application Number | Priority Date | Filing Date | Title |
|---|---|---|---|
| CN202122500719.XU CN216262638U (zh) | 2021-10-18 | 2021-10-18 | 餐厨垃圾处理系统 |
Applications Claiming Priority (1)
| Application Number | Priority Date | Filing Date | Title |
|---|---|---|---|
| CN202122500719.XU CN216262638U (zh) | 2021-10-18 | 2021-10-18 | 餐厨垃圾处理系统 |
Publications (1)
| Publication Number | Publication Date |
|---|---|
| CN216262638U true CN216262638U (zh) | 2022-04-12 |
Family
ID=81068835
Family Applications (1)
| Application Number | Title | Priority Date | Filing Date |
|---|---|---|---|
| CN202122500719.XU Active CN216262638U (zh) | 2021-10-18 | 2021-10-18 | 餐厨垃圾处理系统 |
Country Status (1)
| Country | Link |
|---|---|
| CN (1) | CN216262638U (zh) |
Cited By (1)
| Publication number | Priority date | Publication date | Assignee | Title |
|---|---|---|---|---|
| CN115532790A (zh) * | 2022-09-19 | 2022-12-30 | 南京明珠肥料有限责任公司 | 餐厨垃圾处理设备 |
-
2021
- 2021-10-18 CN CN202122500719.XU patent/CN216262638U/zh active Active
Cited By (2)
| Publication number | Priority date | Publication date | Assignee | Title |
|---|---|---|---|---|
| CN115532790A (zh) * | 2022-09-19 | 2022-12-30 | 南京明珠肥料有限责任公司 | 餐厨垃圾处理设备 |
| CN115532790B (zh) * | 2022-09-19 | 2024-11-19 | 南京明珠肥料有限责任公司 | 餐厨垃圾处理设备 |
Similar Documents
| Publication | Publication Date | Title |
|---|---|---|
| CN202238856U (zh) | 组合式模块化餐厨垃圾资源化处理系统 | |
| CN204842447U (zh) | 一种处理原位餐厨垃圾的系统 | |
| CN102249477B (zh) | 餐厨垃圾油水分离处理方法 | |
| WO2020244524A1 (zh) | 一种校园餐厨垃圾综合回收利用装置及其使用方法 | |
| CN113333430B (zh) | 一种有机垃圾废弃物资源化预处理系统及方法 | |
| CN111790734B (zh) | 一种餐厨垃圾资源化集中处理系统及处理工艺 | |
| CN112139222B (zh) | 一种餐厨垃圾自动分选处理系统及处理工艺 | |
| CN207929755U (zh) | 一种餐厨垃圾处理系统 | |
| CN108031697A (zh) | 一种餐厨、厨余垃圾处理方法 | |
| CN111215432A (zh) | 一种有机生物质垃圾三段式集成处理系统及方法 | |
| CN105057311A (zh) | 一种餐厨垃圾的综合处理装置和方法 | |
| CN206716716U (zh) | 一种餐厨废弃物处理装置 | |
| CN106010719B (zh) | 一种用城市废弃物制造生物质燃料的方法及装置 | |
| CN211990231U (zh) | 一种厨余湿垃圾好氧发酵处理系统 | |
| CN104673629B (zh) | 一种厌氧发酵系统和利用其进行泥消化反应产生沼气的方法 | |
| CN110723993B (zh) | 一种湿垃圾制取有机肥系统 | |
| CN113477018A (zh) | 湿垃圾资源化处理方法及处理系统 | |
| CN216262638U (zh) | 餐厨垃圾处理系统 | |
| CN217797993U (zh) | 一种厨余垃圾处理装置 | |
| CN217121247U (zh) | 一种餐厨垃圾好氧发酵一体化设备 | |
| CN210945410U (zh) | 一种分布式一体化厨余垃圾制肥设备 | |
| CN110834030A (zh) | 一种餐厨垃圾处理系统 | |
| CN115958051B (zh) | 一种餐饮垃圾与厨余垃圾协同处理系统以及其处理方法 | |
| CN217512520U (zh) | 一种易腐垃圾处理成套系统 | |
| CN113385264B (zh) | 一种垃圾湿式球磨水选处理装置以及方法 |
Legal Events
| Date | Code | Title | Description |
|---|---|---|---|
| GR01 | Patent grant | ||
| GR01 | Patent grant |