CN215202806U - 一种新型防积水便道砖生产用切割设备 - Google Patents
一种新型防积水便道砖生产用切割设备 Download PDFInfo
- Publication number
- CN215202806U CN215202806U CN202121256957.4U CN202121256957U CN215202806U CN 215202806 U CN215202806 U CN 215202806U CN 202121256957 U CN202121256957 U CN 202121256957U CN 215202806 U CN215202806 U CN 215202806U
- Authority
- CN
- China
- Prior art keywords
- fixedly connected
- box
- cutting
- dust
- cutting equipment
- Prior art date
- Legal status (The legal status is an assumption and is not a legal conclusion. Google has not performed a legal analysis and makes no representation as to the accuracy of the status listed.)
- Active
Links
- 238000005520 cutting process Methods 0.000 title claims abstract description 74
- 239000011449 brick Substances 0.000 title claims abstract description 31
- 238000004519 manufacturing process Methods 0.000 title claims abstract description 17
- 239000000428 dust Substances 0.000 claims abstract description 71
- 239000000463 material Substances 0.000 claims abstract description 14
- 230000001681 protective effect Effects 0.000 claims description 13
- 238000007789 sealing Methods 0.000 claims description 11
- 230000002265 prevention Effects 0.000 claims 5
- 238000010521 absorption reaction Methods 0.000 abstract description 11
- 238000000926 separation method Methods 0.000 abstract description 10
- 230000036541 health Effects 0.000 abstract description 6
- 230000008901 benefit Effects 0.000 abstract description 4
- 235000013399 edible fruits Nutrition 0.000 abstract 1
- 230000006870 function Effects 0.000 description 9
- 230000000149 penetrating effect Effects 0.000 description 4
- 230000035699 permeability Effects 0.000 description 2
- 230000009471 action Effects 0.000 description 1
- 230000004075 alteration Effects 0.000 description 1
- 230000009286 beneficial effect Effects 0.000 description 1
- 230000033228 biological regulation Effects 0.000 description 1
- 238000004140 cleaning Methods 0.000 description 1
- 238000001816 cooling Methods 0.000 description 1
- 238000006073 displacement reaction Methods 0.000 description 1
- 238000005516 engineering process Methods 0.000 description 1
- 238000002474 experimental method Methods 0.000 description 1
- 239000012634 fragment Substances 0.000 description 1
- 230000006872 improvement Effects 0.000 description 1
- 238000012423 maintenance Methods 0.000 description 1
- 230000004048 modification Effects 0.000 description 1
- 238000012986 modification Methods 0.000 description 1
- 238000012545 processing Methods 0.000 description 1
- 230000009467 reduction Effects 0.000 description 1
- 238000006467 substitution reaction Methods 0.000 description 1
- 239000002352 surface water Substances 0.000 description 1
- XLYOFNOQVPJJNP-UHFFFAOYSA-N water Substances O XLYOFNOQVPJJNP-UHFFFAOYSA-N 0.000 description 1
Images
Landscapes
- Processing Of Stones Or Stones Resemblance Materials (AREA)
Abstract
本实用新型公开了一种新型防积水便道砖生产用切割设备,包括框体,所述框体内腔底部的两侧均固定连接有第一液压杆,所述第一液压杆的顶端固定连接有放置板,所述放置板顶部的右侧开设有切割孔,所述框体内腔的底部放置有接料盒,所述框体内腔顶部的右侧固定连接有第二液压杆,所述框体内腔的两侧固定连接有防护盒。本实用新型具备可对碎屑进行阻隔及具有除尘功能的优点,解决了现有的便道砖生产用切割设备在使用过程中,无法对切割时产生的粉尘进行吸尘清理,导致在切割时容易产生大量粉尘,从而对使用者的健康带来一定危害,且由于结构单一,不具有防护功能,不能对切割时产生的碎屑进行阻隔,降低了切割设备适用性的问题。
Description
技术领域
本实用新型涉及便道砖加工技术领域,具体为一种新型防积水便道砖生产用切割设备。
背景技术
便道砖具有良好的透水、透气、保水性,具有降温、降噪、调节气候,提高空气质量、保持地表水循环的多项功能,正因为它的出现,解决了许多的问题。
在对便道砖进行加工时,需要使用到切割设备,现有的便道砖生产用切割设备在使用过程中,无法对切割时产生的粉尘进行吸尘清理,导致在切割时容易产生大量粉尘,从而对使用者的健康带来一定危害,且由于结构单一,不具有防护功能,不能对切割时产生的碎屑进行阻隔,降低了切割设备的适用性。
实用新型内容
本实用新型的目的在于提供一种新型防积水便道砖生产用切割设备,具备可对碎屑进行阻隔及具有除尘功能的优点,解决了现有的便道砖生产用切割设备在使用过程中,无法对切割时产生的粉尘进行吸尘清理,导致在切割时容易产生大量粉尘,从而对使用者的健康带来一定危害,且由于结构单一,不具有防护功能,不能对切割时产生的碎屑进行阻隔,降低了切割设备适用性的问题。
为实现上述目的,本实用新型提供如下技术方案:一种新型防积水便道砖生产用切割设备,包括框体,所述框体内腔底部的两侧均固定连接有第一液压杆,所述第一液压杆的顶端固定连接有放置板,所述放置板顶部的右侧开设有切割孔,所述框体内腔的底部放置有接料盒,所述框体内腔顶部的右侧固定连接有第二液压杆,所述框体内腔的两侧固定连接有防护盒,所述第二液压杆的底端贯穿至防护盒的内腔并固定连接有电机,所述电机的转轴固定连接有切割片,所述防护盒的顶部连通有吸尘管,所述吸尘管的内腔固定连接有第一风机,所述框体内腔左侧的顶部固定连接有吸尘箱,所述吸尘箱内腔的两侧活动连接有过滤网,所述框体左侧的顶部固定连接有第二风机,所述第二风机的进风管贯穿框体并与吸尘箱相连通,所述吸尘管左侧的顶部连通有输送管,所述输送管的左端与吸尘箱相连通,所述放置板顶部的前侧固定连接有第一支板,所述第一支板的前侧贯穿设置有丝杆,所述丝杆的后端贯穿第一支板并活动连接有夹板,所述放置板顶部的后侧固定连接有第二支板。
优选的,所述丝杆与第一支板螺纹连接,所述丝杆的前端固定连接有转盘。
优选的,所述接料盒底部的四角均固定连接有定位块,所述框体内腔底部的四角均开设有定位槽,所述定位块的底部延伸至定位槽的内腔。
优选的,所述吸尘箱的前侧固定连接有密封板,所述密封板前侧的四角均贯穿设置有螺栓,螺栓的后端贯穿密封板并与吸尘箱螺纹连接。
优选的,所述放置板底部的右侧固定连接有导向板,导向板位于切割孔的底部。
优选的,所述防护盒的前侧固定连接有观测窗,所述防护盒前侧的左侧固定连接有控制器,所述控制器分别与第一液压杆、第二液压杆、电机、第一风机和第二风机电性连接。
与现有技术相比,本实用新型的有益效果如下:
1、本实用新型通过框体、第一液压杆、放置板、切割孔、接料盒、第二液压杆、防护盒、电机、切割片、吸尘管、第一风机、吸尘箱、过滤网、第二风机和输送管的配合,具备可对碎屑进行阻隔及具有除尘功能的优点,解决了现有的便道砖生产用切割设备在使用过程中,无法对切割时产生的粉尘进行吸尘清理,导致在切割时容易产生大量粉尘,从而对使用者的健康带来一定危害,且由于结构单一,不具有防护功能,不能对切割时产生的碎屑进行阻隔,降低了切割设备适用性的问题。
2、本实用新型通过设置第一液压杆,方便对放置板的高度进行调节,通过设置接料盒,可以对切割时产生的碎屑进行收集,通过设置防护盒,可以对切割过程中产生的碎屑进行阻隔,避免发生四处迸溅现象,通过设置吸尘管、第一风机、吸尘箱和过滤网,可以对切割过程中产生的灰尘进行清理,避免产生灰尘飘扬现象,通过设置第一支板、丝杆和夹板,方便对便道砖进行夹持固定。
附图说明
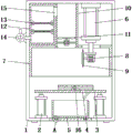
图1为本实用新型结构剖视示意图;
图2为本实用新型局部结构俯视示意图;
图3为本实用新型结构正视示意图;
图4为本实用新型结构图1中A的放大示意图。
图中:1框体、2第一液压杆、3放置板、4切割孔、5接料盒、6第二液压杆、7防护盒、8电机、9切割片、10吸尘管、11第一风机、12吸尘箱、13过滤网、14第二风机、15输送管、16第一支板、17丝杆、18夹板、19第二支板、20定位块、21定位槽、22密封板、23观测窗、24控制器。
具体实施方式
下面将结合本实用新型实施例中的附图,对本实用新型实施例中的技术方案进行清楚、完整地描述,显然,所描述的实施例仅仅是本实用新型一部分实施例,而不是全部的实施例。基于本实用新型中的实施例,本领域普通技术人员在没有做出创造性劳动前提下所获得的所有其他实施例,都属于本实用新型保护的范围。
在实用新型的描述中,需要说明的是,术语“上”、“下”、“内”、“外”“前端”、“后端”、“两端”、“一端”、“另一端”等指示的方位或位置关系为基于附图所示的方位或位置关系,仅是为了便于描述本实用新型和简化描述,而不是指示或暗示所指的装置或元件必须具有特定的方位、以特定的方位构造和操作,因此不能理解为对本实用新型的限制。此外,术语“第一”、“第二”仅用于描述目的,而不能理解为指示或暗示相对重要性。
在实用新型的描述中,需要说明的是,除非另有明确的规定和限定,术语“安装”、“设置有”、“连接”等,应做广义理解,例如“连接”,可以是固定连接,也可以是可拆卸连接,或一体地连接;可以是机械连接,也可以是电连接;可以是直接相连,也可以通过中间媒介间接相连,可以是两个元件内部的连通。对于本领域的普通技术人员而言,可以具体情况理解上述术语在本实用新型中的具体含义。
本实用新型的框体1、第一液压杆2、放置板3、切割孔4、接料盒5、第二液压杆6、防护盒7、电机8、切割片9、吸尘管10、第一风机11、吸尘箱12、过滤网13、第二风机14、输送管15、第一支板16、丝杆17、夹板18、第二支板19、定位块20、定位槽21、密封板22、观测窗23和控制器24部件均为通用标准件或本领域技术人员知晓的部件,其结构和原理都为本技术人员均可通过技术手册得知或通过常规实验方法获知。
请参阅图1-4,一种新型防积水便道砖生产用切割设备,包括框体1,框体1内腔底部的两侧均固定连接有第一液压杆2,通过设置第一液压杆2,方便对放置板3的高度进行调节,第一液压杆2的顶端固定连接有放置板3,放置板3底部的右侧固定连接有导向板,导向板位于切割孔4的底部,放置板3顶部的右侧开设有切割孔4,框体1内腔的底部放置有接料盒5,通过设置接料盒5,可以对切割时产生的碎屑进行收集,接料盒5底部的四角均固定连接有定位块20,框体1内腔底部的四角均开设有定位槽21,定位块20的底部延伸至定位槽21的内腔,通过设置定位块20和定位槽21,可以对接料盒5进行限位,避免产生位移现象,框体1内腔顶部的右侧固定连接有第二液压杆6,框体1内腔的两侧固定连接有防护盒7,通过设置防护盒7,可以对切割过程中产生的碎屑进行阻隔,避免发生四处迸溅现象,防护盒7的前侧固定连接有观测窗23,防护盒7前侧的左侧固定连接有控制器24,控制器24分别与第一液压杆2、第二液压杆6、电机8、第一风机11和第二风机14电性连接,第二液压杆6的底端贯穿至防护盒7的内腔并固定连接有电机8,电机8的转轴固定连接有切割片9,防护盒7的顶部连通有吸尘管10,吸尘管10的内腔固定连接有第一风机11,框体1内腔左侧的顶部固定连接有吸尘箱12,吸尘箱12的前侧固定连接有密封板22,密封板22前侧的四角均贯穿设置有螺栓,螺栓的后端贯穿密封板22并与吸尘箱12螺纹连接,通过设置密封板22,方便对过滤网13进行拆卸清洗,吸尘箱12内腔的两侧活动连接有过滤网13,通过设置吸尘管10、第一风机11、吸尘箱12和过滤网13,可以对切割过程中产生的灰尘进行清理,避免产生灰尘飘扬现象,框体1左侧的顶部固定连接有第二风机14,第二风机14的进风管贯穿框体1并与吸尘箱12相连通,吸尘管10左侧的顶部连通有输送管15,输送管15的左端与吸尘箱12相连通,放置板3顶部的前侧固定连接有第一支板16,第一支板16的前侧贯穿设置有丝杆17,丝杆17与第一支板16螺纹连接,丝杆17的前端固定连接有转盘,丝杆17的后端贯穿第一支板16并活动连接有夹板18,通过设置第一支板16、丝杆17和夹板18,方便对便道砖进行夹持固定,放置板3顶部的后侧固定连接有第二支板19,通过框体1、第一液压杆2、放置板3、切割孔4、接料盒5、第二液压杆6、防护盒7、电机8、切割片9、吸尘管10、第一风机11、吸尘箱12、过滤网13、第二风机14和输送管15的配合,具备可对碎屑进行阻隔及具有除尘功能的优点,解决了现有的便道砖生产用切割设备在使用过程中,无法对切割时产生的粉尘进行吸尘清理,导致在切割时容易产生大量粉尘,从而对使用者的健康带来一定危害,且由于结构单一,不具有防护功能,不能对切割时产生的碎屑进行阻隔,降低了切割设备适用性的问题。
使用时,将便道砖放置在放置板3的顶部,然后转动转盘,转盘带动丝杆17旋转,丝杆17通过与第一支板16螺纹连接使丝杆17开始移动,丝杆17带动夹板18移动,在夹板18和第二支板19的作用下,对便道砖进行夹持固定,然后通过控制器24控制第一液压杆2伸长,第一液压杆2带动放置板3向上移动,便道砖移动至防护盒7的内腔,然后通过控制器24控制第二液压杆6伸长,第二液压杆6带动电机8向下移动,控制器24控制电机8运转,电机8转轴带动切割片9旋转,切割片9对便道砖进行切割,切割过程中,防护盒7对产生的碎屑进行阻隔,同时控制器24控制第一风机11和第二风机14运转,第一风机11将灰尘通过吸尘管10和输送管15输送至吸尘箱12的内腔,过滤网13对灰尘进行过滤,过滤后的空气通过第二风机14排放出吸尘箱12。
综上所述:该新型防积水便道砖生产用切割设备,通过框体1、第一液压杆2、放置板3、切割孔4、接料盒5、第二液压杆6、防护盒7、电机8、切割片9、吸尘管10、第一风机11、吸尘箱12、过滤网13、第二风机14和输送管15的配合,解决了现有的便道砖生产用切割设备在使用过程中,无法对切割时产生的粉尘进行吸尘清理,导致在切割时容易产生大量粉尘,从而对使用者的健康带来一定危害,且由于结构单一,不具有防护功能,不能对切割时产生的碎屑进行阻隔,降低了切割设备适用性的问题。
尽管已经示出和描述了本实用新型的实施例,对于本领域的普通技术人员而言,可以理解在不脱离本实用新型的原理和精神的情况下可以对这些实施例进行多种变化、修改、替换和变型,本实用新型的范围由所附权利要求及其等同物限定。
Claims (6)
1.一种新型防积水便道砖生产用切割设备,包括框体(1),其特征在于:所述框体(1)内腔底部的两侧均固定连接有第一液压杆(2),所述第一液压杆(2)的顶端固定连接有放置板(3),所述放置板(3)顶部的右侧开设有切割孔(4),所述框体(1)内腔的底部放置有接料盒(5),所述框体(1)内腔顶部的右侧固定连接有第二液压杆(6),所述框体(1)内腔的两侧固定连接有防护盒(7),所述第二液压杆(6)的底端贯穿至防护盒(7)的内腔并固定连接有电机(8),所述电机(8)的转轴固定连接有切割片(9),所述防护盒(7)的顶部连通有吸尘管(10),所述吸尘管(10)的内腔固定连接有第一风机(11),所述框体(1)内腔左侧的顶部固定连接有吸尘箱(12),所述吸尘箱(12)内腔的两侧活动连接有过滤网(13),所述框体(1)左侧的顶部固定连接有第二风机(14),所述第二风机(14)的进风管贯穿框体(1)并与吸尘箱(12)相连通,所述吸尘管(10)左侧的顶部连通有输送管(15),所述输送管(15)的左端与吸尘箱(12)相连通,所述放置板(3)顶部的前侧固定连接有第一支板(16),所述第一支板(16)的前侧贯穿设置有丝杆(17),所述丝杆(17)的后端贯穿第一支板(16)并活动连接有夹板(18),所述放置板(3)顶部的后侧固定连接有第二支板(19)。
2.根据权利要求1所述的一种新型防积水便道砖生产用切割设备,其特征在于:所述丝杆(17)与第一支板(16)螺纹连接,所述丝杆(17)的前端固定连接有转盘。
3.根据权利要求1所述的一种新型防积水便道砖生产用切割设备,其特征在于:所述接料盒(5)底部的四角均固定连接有定位块(20),所述框体(1)内腔底部的四角均开设有定位槽(21),所述定位块(20)的底部延伸至定位槽(21)的内腔。
4.根据权利要求1所述的一种新型防积水便道砖生产用切割设备,其特征在于:所述吸尘箱(12)的前侧固定连接有密封板(22),所述密封板(22)前侧的四角均贯穿设置有螺栓,螺栓的后端贯穿密封板(22)并与吸尘箱(12)螺纹连接。
5.根据权利要求1所述的一种新型防积水便道砖生产用切割设备,其特征在于:所述放置板(3)底部的右侧固定连接有导向板,导向板位于切割孔(4)的底部。
6.根据权利要求1所述的一种新型防积水便道砖生产用切割设备,其特征在于:所述防护盒(7)的前侧固定连接有观测窗(23),所述防护盒(7)前侧的左侧固定连接有控制器(24),所述控制器(24)分别与第一液压杆(2)、第二液压杆(6)、电机(8)、第一风机(11)和第二风机(14)电性连接。
Priority Applications (1)
| Application Number | Priority Date | Filing Date | Title |
|---|---|---|---|
| CN202121256957.4U CN215202806U (zh) | 2021-06-07 | 2021-06-07 | 一种新型防积水便道砖生产用切割设备 |
Applications Claiming Priority (1)
| Application Number | Priority Date | Filing Date | Title |
|---|---|---|---|
| CN202121256957.4U CN215202806U (zh) | 2021-06-07 | 2021-06-07 | 一种新型防积水便道砖生产用切割设备 |
Publications (1)
| Publication Number | Publication Date |
|---|---|
| CN215202806U true CN215202806U (zh) | 2021-12-17 |
Family
ID=79424066
Family Applications (1)
| Application Number | Title | Priority Date | Filing Date |
|---|---|---|---|
| CN202121256957.4U Active CN215202806U (zh) | 2021-06-07 | 2021-06-07 | 一种新型防积水便道砖生产用切割设备 |
Country Status (1)
| Country | Link |
|---|---|
| CN (1) | CN215202806U (zh) |
-
2021
- 2021-06-07 CN CN202121256957.4U patent/CN215202806U/zh active Active
Similar Documents
| Publication | Publication Date | Title |
|---|---|---|
| CN114227779A (zh) | 一种pvc管加工用切割设备 | |
| CN220533263U (zh) | 一种具有防护功能的激光切割设备 | |
| CN213439000U (zh) | 一种珠宝表面抛光处理装置 | |
| CN213415216U (zh) | 一种铝材传输装置 | |
| CN215202806U (zh) | 一种新型防积水便道砖生产用切割设备 | |
| CN215627618U (zh) | 一种玻璃切割机用防护结构 | |
| CN211073940U (zh) | 一种具有除尘功能的木工镂铣机 | |
| CN218891334U (zh) | 一种板材加工用裁切设备 | |
| CN112194351A (zh) | 一种用于玻璃制造的自动裁片机 | |
| CN216463204U (zh) | 一种机械加工铣削台 | |
| CN212794277U (zh) | 木皮视觉识别联合生产线 | |
| CN216178857U (zh) | 一种数控加工中心机床用辅助装置 | |
| CN215073199U (zh) | 一种pcb裁剪装置 | |
| CN212553081U (zh) | 一种多角度调节的陶瓷生产用边角打磨装置 | |
| CN212193644U (zh) | 一种修复性好的日用陶瓷修坯机 | |
| CN211807034U (zh) | 一种具有防尘功能的石材切割机 | |
| CN216542359U (zh) | 一种具有废屑收集功能的木塑板材加工用去毛刺装置 | |
| CN223633684U (zh) | 一种坯布加工用切割装置 | |
| CN222038985U (zh) | 一种新型的绝缘子加工用修坯机 | |
| CN218748343U (zh) | 一种竹签生产加工用去毛刺设备 | |
| CN220972576U (zh) | 一种方便进行除尘的花泥自动平推机 | |
| CN213289581U (zh) | 一种带有废屑收集功能的切割机 | |
| CN217530163U (zh) | 一种双工位卧式加工中心 | |
| CN223289919U (zh) | 一种镜片生产用原料分切设备 | |
| CN216831386U (zh) | 一种可吸尘的板材切割机 |
Legal Events
| Date | Code | Title | Description |
|---|---|---|---|
| GR01 | Patent grant | ||
| GR01 | Patent grant | ||
| CP03 | Change of name, title or address |
Address after: 030000 Daopi Gou, Shangguan Diliang, Chaicun, Jiancaoping District, Taiyuan City, Shanxi Province (former Chaicun coking plant) Patentee after: Taiyuan Jiancaoping Rongsheng new building materials Co.,Ltd. Address before: 030000 Chai Cun Shang Guan Di Liang Dao PI Gou, Jiancaoping District, Taiyuan City, Shanxi Province Patentee before: Taiyuan Jiancaoping District Rongsheng new building materials factory |
|
| CP03 | Change of name, title or address |