CN213924289U - An automatic cycle cleaning device for sewage equipment - Google Patents

An automatic cycle cleaning device for sewage equipment Download PDF

Info

Publication number
CN213924289U
CN213924289U CN202023038446.3U CN202023038446U CN213924289U CN 213924289 U CN213924289 U CN 213924289U CN 202023038446 U CN202023038446 U CN 202023038446U CN 213924289 U CN213924289 U CN 213924289U
Authority
CN
China
Prior art keywords
tank
driving motor
cleaning device
box
mounting hole
Prior art date
Legal status (The legal status is an assumption and is not a legal conclusion. Google has not performed a legal analysis and makes no representation as to the accuracy of the status listed.)
Expired - Fee Related
Application number
CN202023038446.3U
Other languages
Chinese (zh)
Inventor
李晓兵
饶永福
马艳萍
王海峰
杨富华
普成
Current Assignee (The listed assignees may be inaccurate. Google has not performed a legal analysis and makes no representation or warranty as to the accuracy of the list.)
Yunnan Chuangtuo Environment Technology Co ltd
Original Assignee
Yunnan Chuangtuo Environment Technology Co ltd
Priority date (The priority date is an assumption and is not a legal conclusion. Google has not performed a legal analysis and makes no representation as to the accuracy of the date listed.)
Filing date
Publication date
Application filed by Yunnan Chuangtuo Environment Technology Co ltd filed Critical Yunnan Chuangtuo Environment Technology Co ltd
Priority to CN202023038446.3U priority Critical patent/CN213924289U/en
Application granted granted Critical
Publication of CN213924289U publication Critical patent/CN213924289U/en
Expired - Fee Related legal-status Critical Current
Anticipated expiration legal-status Critical

Links

Images

Landscapes

  • Filtration Of Liquid (AREA)

Abstract

本实用新型公开了一种污水设备自动循环清洗装置,本实用新型涉及污水处理技术领域,包括沉淀罐和过滤箱,沉淀罐包括罐体,罐体顶部设有轴承安装孔,轴承安装孔上方固定有第一驱动电机,第一驱动电机的输出端口固定连接有搅拌转轴,搅拌转轴贯穿轴承安装孔延伸到罐体内侧下端,搅拌转轴上安装有搅拌叶片和框式搅拌桨,罐体左侧上端设有进水口,罐体底部设有排淤口,罐体右侧壁底端设有出水口,过滤箱顶部安装有循环水泵,循环水泵的出水端口连接有喷淋管,喷淋管末端贯穿罐体侧壁延伸到罐体内侧顶部,喷淋管末端于罐体内侧设有若干旋转喷头,该种装置具有循环清洗的功能,自动化程度高,除污效果好,净化效率高,具有广阔的市场应用前景。

Figure 202023038446

The utility model discloses an automatic circulating cleaning device for sewage equipment, which relates to the technical field of sewage treatment. The utility model comprises a sedimentation tank and a filter box. There is a first drive motor, the output port of the first drive motor is fixedly connected with a stirring shaft, the stirring shaft extends through the bearing mounting hole to the lower end of the inner side of the tank, the stirring blade and the frame-type stirring paddle are installed on the stirring shaft, and the upper end of the left side of the tank is There is a water inlet, a sludge discharge port at the bottom of the tank body, a water outlet at the bottom end of the right side wall of the tank body, a circulating water pump installed on the top of the filter box, and a spray pipe connected to the water outlet port of the circulating water pump, and the end of the spray pipe runs through The side wall of the tank extends to the top of the inner side of the tank, and the end of the spray pipe is provided with several rotating nozzles on the inner side of the tank. This device has the function of circulating cleaning, high automation, good decontamination effect, high purification efficiency, and has a wide Market application prospects.

Figure 202023038446

Description

Automatic circulating cleaning device for sewage equipment
Technical Field
The utility model relates to a sewage treatment technical field, in particular to sewage equipment automatic cycle belt cleaning device.
Background
The sewage treatment equipment is an industrial equipment capable of effectively treating domestic sewage, industrial wastewater and the like in urban areas, prevents sewage and pollutants from directly flowing into water areas, and has important significance for improving ecological environment, promoting urban grade and promoting economic development. The buried sewage treatment equipment is suitable for domestic sewage of residential districts, hospital nursing homes, office buildings, markets, hotels, restaurants, institutions, schools, armies, aquaculture processing plants, livestock processing plants, dairy processing plants and the like and industrial organic wastewater similar to the domestic sewage, such as organic sewage treatment of the industries of textile, beer, papermaking, tanning, food, chemical engineering and the like, and mainly aims to treat the domestic sewage and the industrial organic wastewater similar to the domestic sewage to meet the requirement of recycled water quality and recycle the treated wastewater.
In present sewage treatment process, often all can set up relevant precipitation equipment, the suspended solid in the aquatic is detached to the effect of utilizing the natural sedimentation of water or coagulating sedimentation, plays the effect of purifying water quality, but, the inside sedimentary silt of current inner loop integration sewage treatment equipment can not be fine clearance, piles up for a long time and can influence sewage treatment performance, unsatisfied current process flow's demand, to this we have proposed a sewage treatment plant automatic cycle belt cleaning device.
SUMMERY OF THE UTILITY MODEL
The utility model discloses a main aim at provides a sewage equipment automatic cycle belt cleaning device can effectively solve the problem in the background art.
In order to achieve the above purpose, the utility model adopts the following technical scheme:
an automatic circulating cleaning device for sewage equipment comprises a settling tank and a filter box positioned on the right side of the settling tank, wherein the settling tank comprises a tank body, the top of the tank body is provided with a bearing mounting hole, a first driving motor with the output direction facing downwards is fixed above the bearing mounting hole through a fixing frame, the two sides of the bearing mounting hole are respectively provided with a feed inlet and a second driving motor at the top of the tank body, an output port of the first driving motor is fixedly connected with a stirring rotating shaft through a coupler, the stirring rotating shaft penetrates through the bearing mounting hole and extends to the lower end of the inner side of the tank body, a stirring blade and a frame type stirring paddle are installed on the stirring rotating shaft, the upper end of the left side of the tank body is provided with a water inlet, the water inlet is provided with a filtering grid plate, the bottom of the tank body is provided with a sludge, the centrifugal pump has been placed between delivery port and the rose box, the port that absorbs water of centrifugal pump passes through outlet pipe connection delivery port, the delivery port of centrifugal pump is linked together through inlet tube and rose box, circulating water pump is installed at the rose box top, circulating water pump's delivery port is connected with the shower, the shower end runs through a jar side wall and extends to jar internal side top, the shower end is equipped with a plurality of rotatory nozzle that spray direction down in jar internal side.
Preferably, the rose box includes the box, the box inboard has set gradually filter screen, filtration sand net and adsorption net from left to right, filter screen and filtration sand net top dispose a case lid in the box top, box right side lower extreme is equipped with the outlet.
Preferably, a water suction port of the circulating water pump is connected with a water suction pipe, the water suction pipe penetrates through the top of the box body and extends to the inner side of the box body, and the water suction pipe is located between the sand filtering net and the adsorption net.
Preferably, the bearing mounting hole inner chamber is from the outside to interior cooperation in proper order and is installed first bearing, scraper blade pivot, second bearing and stirring pivot, be fixed with the cross support in the scraper blade pivot, the scraper blade is installed to cross support inboard, scraper blade and jar internal side wall looks butt.
Preferably, second driving motor is fixed in a jar body top through the fixed plate, second driving motor output end is fixed with first bevel gear, install the bull stick in a jar body top between second driving motor and the bearing mounting hole, the bull stick top is fixed with second bevel gear, second bevel gear meshes with first bevel gear mutually, the bull stick middle section is fixed with the action wheel, scraper blade pivot upper end is fixed with from the driving wheel, be located same level from the driving wheel with the action wheel, the action wheel passes through the belt and is connected with following rotation of driving wheel.
Preferably, the first driving motor, the second driving motor, the centrifugal pump and the circulating water pump are all electrically connected with an external power supply.
Compared with the prior art, the utility model discloses following beneficial effect has: according to the automatic circulating cleaning device for the sewage equipment, the reaction speed of the flocculating agent can be effectively accelerated through the arranged stirring blades and the stirring rotating shaft, so that the precipitation effect on impurities in a water body is improved; the arranged scraper plate is matched with the rotary spray head, so that impurities attached to the inner wall of the tank body can be effectively removed, the breeding of microorganisms is avoided, the pollution of a water body is reduced, and the overall quality of water quality is improved; through the arrangement of the filter screen, the filter sand screen and the adsorption screen, the water flow is effectively adsorbed and evolved after the precipitation operation is finished, so that the pollution of the water body is reduced, and the subsequent disinfection treatment work is facilitated; through the circulating water pump who sets up, can directly utilize relevant purification treatment's water, accomplish automatic cycle and washd jar of body, practiced thrift the water resource.
Drawings
FIG. 1 is a schematic view of the overall structure of an automatic circulation cleaning device for sewage equipment according to the present invention;
FIG. 2 is a front view of the overall appearance structure of the automatic circulation cleaning device for sewage equipment of the present invention;
FIG. 3 is a schematic view showing the transmission connection between a second driving motor and a scraper rotating shaft of the automatic circulation cleaning device for sewage equipment of the present invention;
fig. 4 is the schematic view of the transverse cutting structure in the bearing mounting hole of the automatic circulation cleaning device of the sewage equipment.
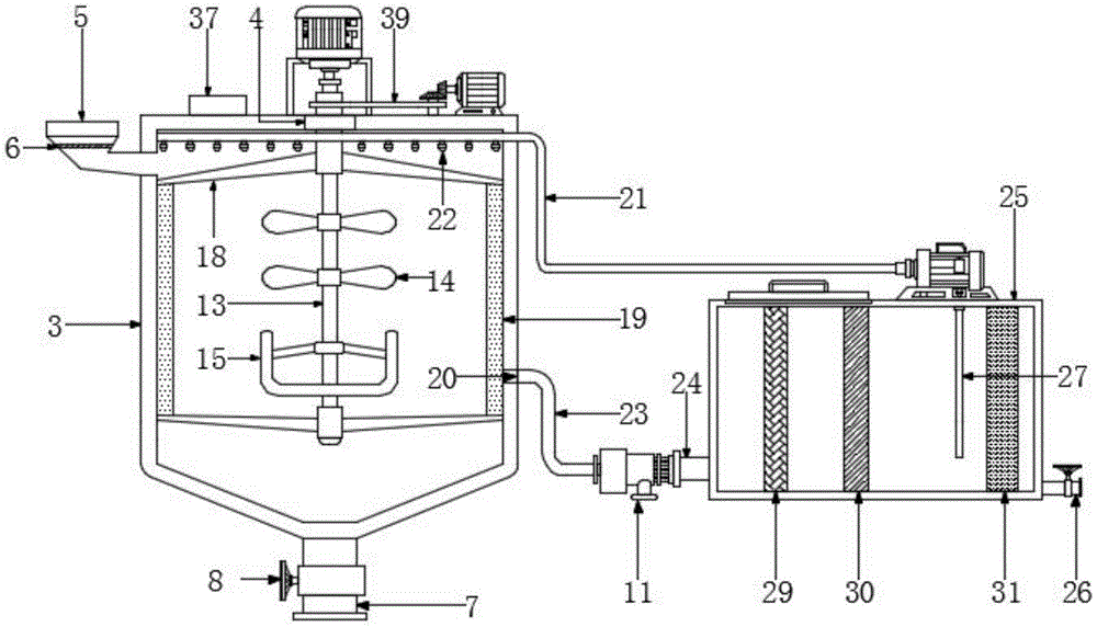
In the figure: 1. a settling tank; 2. a filter box; 3. a tank body; 4. a bearing mounting hole; 5. a water inlet; 6. filtering the grating plate; 7. a sludge discharge port; 8. a sludge discharge valve; 9. a first drive motor; 10. a second drive motor; 11. a centrifugal pump; 12. a water circulating pump; 13. a stirring rotating shaft; 14. a stirring blade; 15. a frame type stirring paddle; 16. a first bearing; 17. a second bearing; 18. a cross-shaped bracket; 19. a squeegee; 20. a water outlet; 21. a shower pipe; 22. rotating the spray head; 23. a water outlet pipe; 24. a water inlet pipe; 25. a box body; 26. a water outlet; 27. a suction pipe; 28. a top cover; 29. a filter screen; 30. filtering the sand screen; 31. an adsorption net; 32. a first bevel gear; 33. a second bevel gear; 34. a rotating rod; 35. a driving wheel; 36. a driven wheel; 37. a feeding port; 38. a scraper blade rotating shaft; 39. a belt.
Detailed Description
In order to make the technical means, creation features, achievement purposes and functions of the present invention easy to understand, the present invention is further described below with reference to the following embodiments.
As shown in fig. 1-4, an automatic circulation cleaning device for sewage equipment comprises a settling tank 1 and a filter tank 2 located on the right side of the settling tank 1, wherein the settling tank 1 comprises a tank body 3, a bearing mounting hole 4 is formed in the top of the tank body 3, a first driving motor 9 with a downward output direction is fixed above the bearing mounting hole 4 through a fixing frame, a feeding port 37 and a second driving motor 10 are respectively arranged on the top of the tank body 3 on two sides of the bearing mounting hole 4, an output port of the first driving motor 9 is fixedly connected with a stirring rotating shaft 13 through a coupler, the stirring rotating shaft 13 penetrates through the bearing mounting hole 4 and extends to the lower end of the inner side of the tank body 3, a stirring blade 14 and a frame type stirring paddle 15 are arranged on the stirring rotating shaft 13, a water inlet 5 is arranged at the upper end of the left side of the tank body 3, a filter grid plate 6 is arranged at the water inlet 5, and a sludge discharge port 7 is arranged at the bottom of the tank body 3, arrange 7 departments of silt mouth and dispose row's silt valve 8, 3 right side wall bottom ends of the jar body are equipped with delivery port 20, centrifugal pump 11 has been placed between delivery port 20 and the rose box 2, centrifugal pump 11's the port that absorbs water passes through outlet pipe 23 and connects delivery port 20, centrifugal pump 11's the port that goes out water is linked together through inlet tube 24 and rose box 2, circulating water pump 12 is installed at 2 tops of rose box, circulating water pump 12's the port that goes out water is connected with shower 21, shower 21 end runs through 3 lateral walls of the jar body and extends to 3 inboard tops of the jar body, shower 21 end is equipped with a plurality of rotatory nozzle 22 that spray direction down in 3 inboards of the jar body.
In this embodiment, preferably, the filter box 2 includes a box body 25, a filter screen 29, a sand filter screen 30 and an adsorption screen 31 are sequentially arranged on the inner side of the box body 25 from left to right, a top cover 28 is arranged on the top of the box body 25 above the filter screen 29 and the sand filter screen 30, and a water outlet 26 is arranged at the lower end of the right side of the box body 25.
In this embodiment, it is preferable that a suction pipe 27 is connected to a suction port of the circulation water pump 12, the suction pipe 27 extends through the top of the tank 25 to the inside of the tank 25, and the suction pipe 27 is located between the sand filtering net 30 and the adsorption net 31.
In this embodiment, preferably, the inner cavity of the bearing mounting hole 4 is sequentially provided with a first bearing 16, a scraper rotating shaft 38, a second bearing 17 and a stirring rotating shaft 13 from outside to inside in a matching manner, a cross bracket 18 is fixed on the scraper rotating shaft 38, a scraper 19 is installed on the inner side of the cross bracket 18, and the scraper 19 is abutted against the inner side wall of the tank body 3.
In this embodiment, preferably, the second driving motor 10 is fixed to the top of the tank body 3 through a fixing plate, the output end of the second driving motor 10 is fixed with a first bevel gear 32, a rotating rod 34 is installed at the top of the tank body 3 between the second driving motor 10 and the bearing installation hole 4, a second bevel gear 33 is fixed to the top of the rotating rod 34, the second bevel gear 33 is meshed with the first bevel gear 32, a driving wheel 35 is fixed to the middle section of the rotating rod 34, a driven wheel 36 is fixed to the upper end of the scraper rotating shaft 38, the driven wheel 36 and the driving wheel 35 are located at the same horizontal height, and the driving wheel 35 is rotatably connected with the driven wheel 36 through a belt 39.
In this embodiment, preferably, the first driving motor 9, the second driving motor 10, the centrifugal pump 11, and the circulating water pump 12 are all electrically connected to an external power supply.
It should be noted that, the utility model relates to a sewage equipment automatic cycle belt cleaning device, in use, water inlet 5 is external water pipe, sewage filters through filtering grid plate 6 and gets rid of macromolecular impurity, add the flocculating agent in dog-house 37 department toward jar body 3, first driving motor 9 starts and drives stirring pivot 13 and rotate, stirring vane 14 and frame stirring rake 15 can accelerate the reaction process of flocculating agent and sewage, thereby improve the precipitation effect of impurity in the sewage, frame stirring rake 15 can avoid the fluctuation of the inboard bottom water of jar body 3 simultaneously, the influence to preliminary flocculation impurity deposit when having avoided stirring; the sludge discharge valve 8 arranged at the sludge discharge port 7 is opened, so that the precipitated impurities can be quickly discharged out of the tank body 3, and the subsequent cleaning work of the sedimentation tank 1 is facilitated; the centrifugal pump 11 can quickly convey the precipitated water body into the filter box 2 for filtering treatment, the filter screen 29, the filter sand screen 30 and the adsorption screen 31 can effectively carry out adsorption evolution treatment on the water body by three-layer filtering action on the flowing water body, the pollution of the water body is reduced, the subsequent disinfection treatment work is facilitated, the top cover 28 arranged on the filter box 2 is opened, the interior of the box body can be cleaned, the filter screen 29, the filter sand screen 30 and the adsorption screen 31 can be replaced regularly, the integral filtering efficiency of the filter box 2 is improved, and the service life of the filter box is prolonged; when the second driving motor 10 is started, the first bevel gear 32 drives the second bevel gear 33 to rotate, at this time, the second bevel gear 33, the driving wheel 35 and the rotating rod 34 rotate coaxially, the driving wheel 35 drives the driven wheel 36 and the scraper rotating shaft 38 to rotate through the belt 39, the scraper rotating shaft 38 drives the scraper 19 arranged on the inner side of the cross bracket 18 to rotate in the tank body 3, pollutants attached to the inner wall of the tank body 3 are effectively removed, pollution of microorganisms breeding bacteria to a water body and damage to the tank body are avoided, meanwhile, the rotary nozzle 22 can spray high-pressure water flow, and the cleaning efficiency of the scraper 19 is improved; the water body after relevant purification treatment is conveyed into the tank body 3 by the circulating water pump 12 through the spray pipe 21, and the conveyed water is directly used as cleaning water for the sedimentation tank 1 under the action of the rotary spray head 22, so that the device has the function of automatic circulating cleaning, the cyclic utilization of water resources is realized, and the waste of the water resources is avoided.
The basic principles and the main features of the invention and the advantages of the invention have been shown and described above. It will be understood by those skilled in the art that the present invention is not limited to the above embodiments, and that the foregoing embodiments and descriptions are provided only to illustrate the principles of the present invention without departing from the spirit and scope of the present invention. The scope of the invention is defined by the appended claims and equivalents thereof.

Claims (6)

1. The utility model provides a sewage equipment automatic cycle belt cleaning device, includes precipitation tank (1) and rose box (2) that are located precipitation tank (1) right side, its characterized in that: the settling tank (1) comprises a tank body (3), a bearing mounting hole (4) is formed in the top of the tank body (3), a first driving motor (9) with the output direction facing downwards is fixed above the bearing mounting hole (4) through a fixing frame, a feed opening (37) and a second driving motor (10) are respectively formed in the top of the tank body (3) on two sides of the bearing mounting hole (4), an output port of the first driving motor (9) is fixedly connected with a stirring rotating shaft (13) through a coupler, the stirring rotating shaft (13) penetrates through the bearing mounting hole (4) and extends to the inner lower end of the tank body (3), stirring blades (14) and a frame type stirring paddle (15) are installed on the stirring rotating shaft (13), a water inlet (5) is formed in the upper end of the left side of the tank body (3), a filtering grid plate (6) is arranged at the water inlet (5), a silt discharging opening (7) is formed in the bottom of the tank body (3), arrange silt mouth (7) department and dispose row silt valve (8), the jar body (3) right side wall bottom is equipped with delivery port (20), centrifugal pump (11) have been placed between delivery port (20) and rose box (2), the port that absorbs water of centrifugal pump (11) passes through outlet pipe (23) and connects delivery port (20), the outlet port of centrifugal pump (11) is linked together through inlet tube (24) and rose box (2), circulating water pump (12) are installed at rose box (2) top, the outlet port of circulating water pump (12) is connected with shower (21), shower (21) end runs through jar body (3) lateral wall and extends to jar body (3) inboard top, shower (21) end is equipped with a plurality of rotatory nozzle (22) that spray direction down in jar body (3) inboard.
2. The automatic circulation cleaning device for sewage equipment according to claim 1, wherein: filter tank (2) includes box (25), box (25) inboard has set gradually filter screen (29), filtration sand net (30) and adsorption net (31) from left to right, a top cap (28) has been disposed in box (25) top to filter screen (29) and filtration sand net (30) top, box (25) right side lower extreme is equipped with outlet (26).
3. The automatic circulation cleaning device for sewage equipment according to claim 2, wherein: the water suction port of the circulating water pump (12) is connected with a water suction pipe (27), the water suction pipe (27) penetrates through the top of the box body (25) and extends to the inner side of the box body (25), and the water suction pipe (27) is located between the filtering sand net (30) and the adsorption net (31).
4. The automatic circulation cleaning device for sewage equipment according to claim 1, wherein: bearing mounting hole (4) inner chamber is from outer to interior cooperation in proper order and is installed first bearing (16), scraper blade pivot (38), second bearing (17) and stirring pivot (13), be fixed with cross support (18) on scraper blade pivot (38), scraper blade (19) are installed to cross support (18) inboard, scraper blade (19) and jar body (3) inside wall looks butt.
5. The automatic circulation cleaning device for sewage equipment according to claim 4, wherein: second driving motor (10) are fixed in jar body (3) top through the fixed plate, second driving motor (10) output end is fixed with first tapered gear (32), install bull stick (34) at jar body (3) top between second driving motor (10) and bearing mounting hole (4), bull stick (34) top is fixed with second tapered gear (33), second tapered gear (33) and first tapered gear (32) mesh mutually, bull stick (34) middle section is fixed with action wheel (35), scraper blade pivot (38) upper end is fixed with from driving wheel (36), be located same level with action wheel (35) from driving wheel (36), action wheel (35) rotate with from driving wheel (36) through belt (39) and are connected.
6. The automatic circulation cleaning device for sewage equipment according to claim 1, wherein: the first driving motor (9), the second driving motor (10), the centrifugal pump (11) and the circulating water pump (12) are all electrically connected with an external power supply.
CN202023038446.3U 2020-12-17 2020-12-17 An automatic cycle cleaning device for sewage equipment Expired - Fee Related CN213924289U (en)

Priority Applications (1)

Application Number Priority Date Filing Date Title
CN202023038446.3U CN213924289U (en) 2020-12-17 2020-12-17 An automatic cycle cleaning device for sewage equipment

Applications Claiming Priority (1)

Application Number Priority Date Filing Date Title
CN202023038446.3U CN213924289U (en) 2020-12-17 2020-12-17 An automatic cycle cleaning device for sewage equipment

Publications (1)

Publication Number Publication Date
CN213924289U true CN213924289U (en) 2021-08-10

Family

ID=77152579

Family Applications (1)

Application Number Title Priority Date Filing Date
CN202023038446.3U Expired - Fee Related CN213924289U (en) 2020-12-17 2020-12-17 An automatic cycle cleaning device for sewage equipment

Country Status (1)

Country Link
CN (1) CN213924289U (en)

Cited By (4)

* Cited by examiner, † Cited by third party
Publication number Priority date Publication date Assignee Title
CN114505184A (en) * 2022-03-01 2022-05-17 奥朗博佳羽节能科技有限公司 Automatic backwashing structure and backwashing method of oil dirt separation system
CN115475419A (en) * 2022-09-30 2022-12-16 熊海源 A tank inner wall cleaning device for sewage filtration and sedimentation
CN115818812A (en) * 2022-12-08 2023-03-21 邯郸市美坚利五金制造有限公司 Pickling bonderizing effluent treatment plant
CN119143316A (en) * 2024-09-18 2024-12-17 宁波飞润海洋生物科技股份有限公司 Wastewater collection device is used in squid dried meat processing

Cited By (5)

* Cited by examiner, † Cited by third party
Publication number Priority date Publication date Assignee Title
CN114505184A (en) * 2022-03-01 2022-05-17 奥朗博佳羽节能科技有限公司 Automatic backwashing structure and backwashing method of oil dirt separation system
CN114505184B (en) * 2022-03-01 2024-04-19 奥朗博佳羽节能科技有限公司 Automatic backwashing structure of oil stain separation system and backwashing method thereof
CN115475419A (en) * 2022-09-30 2022-12-16 熊海源 A tank inner wall cleaning device for sewage filtration and sedimentation
CN115818812A (en) * 2022-12-08 2023-03-21 邯郸市美坚利五金制造有限公司 Pickling bonderizing effluent treatment plant
CN119143316A (en) * 2024-09-18 2024-12-17 宁波飞润海洋生物科技股份有限公司 Wastewater collection device is used in squid dried meat processing

Similar Documents

Publication Publication Date Title
CN213924289U (en) An automatic cycle cleaning device for sewage equipment
CN213708043U (en) Dirty processing apparatus of high-efficient type live pig breeding excrement of environmental protection
CN208454700U (en) A kind of Domestic sewage treatment device
CN107585935A (en) A kind of highly effective and safe municipal sewage environment-friendly processing unit
CN116282629A (en) Water body restoration treatment equipment
CN111039458B (en) Ecological prosthetic devices in plateau lake fishery waters
CN209554933U (en) A kind of drainage system sewage-treatment plant
CN214654351U (en) Domestic sewage purification treatment device
CN212982719U (en) High-efficient sewage treatment purifies groove
CN212640207U (en) Distributed sewage treatment plant's treatment tank
CN222535853U (en) Chemical waste degradation pond
CN211226696U (en) Bury formula integration sewage treatment device
CN221275549U (en) Environment-friendly engineering sewage precipitation purification device
CN210620547U (en) Rural sewage treatment plant of formula of burying
CN209721870U (en) A kind of sanitary sewage multistage filtering processing unit
CN214654345U (en) Large-scale cultivation sewage treatment device
CN216764383U (en) Micro-nano protein separator
CN206940687U (en) A kind of energy-saving water purifying device
CN210103647U (en) Be applied to rural domestic wastewater's processing apparatus
CN205528266U (en) Reuse of reclaimed water sewage treatment device
CN213977230U (en) Environment-friendly rainwater filtration processor
CN212504330U (en) A sewage treatment plant for kitchen
CN211035620U (en) High-efficient biological compound strengthening microfiltration clarification integration equipment
CN210796171U (en) Fish dung and sewage concentration device for fish culture by circulating water and dung and sewage concentration and recycling system
CN211497296U (en) Sewage treatment plant based on MBR

Legal Events

Date Code Title Description
GR01 Patent grant
GR01 Patent grant
CF01 Termination of patent right due to non-payment of annual fee
CF01 Termination of patent right due to non-payment of annual fee

Granted publication date: 20210810