CN211119727U - Air conditioner external unit support frame capable of avoiding condensed water accumulation - Google Patents
Air conditioner external unit support frame capable of avoiding condensed water accumulation Download PDFInfo
- Publication number
- CN211119727U CN211119727U CN201922190658.4U CN201922190658U CN211119727U CN 211119727 U CN211119727 U CN 211119727U CN 201922190658 U CN201922190658 U CN 201922190658U CN 211119727 U CN211119727 U CN 211119727U
- Authority
- CN
- China
- Prior art keywords
- plate
- air conditioner
- support frame
- placing plate
- mounting
- Prior art date
- Legal status (The legal status is an assumption and is not a legal conclusion. Google has not performed a legal analysis and makes no representation as to the accuracy of the status listed.)
- Expired - Fee Related
Links
- XLYOFNOQVPJJNP-UHFFFAOYSA-N water Substances O XLYOFNOQVPJJNP-UHFFFAOYSA-N 0.000 title claims abstract description 22
- 238000009825 accumulation Methods 0.000 title claims abstract description 15
- 238000003466 welding Methods 0.000 claims abstract description 27
- 230000005494 condensation Effects 0.000 claims abstract description 13
- 238000009833 condensation Methods 0.000 claims abstract description 13
- 238000009434 installation Methods 0.000 abstract description 3
- 239000003570 air Substances 0.000 description 21
- 238000010586 diagram Methods 0.000 description 4
- 230000005540 biological transmission Effects 0.000 description 2
- 238000004378 air conditioning Methods 0.000 description 1
- 239000012080 ambient air Substances 0.000 description 1
- 230000009286 beneficial effect Effects 0.000 description 1
- 238000004891 communication Methods 0.000 description 1
- 230000007547 defect Effects 0.000 description 1
- 238000005516 engineering process Methods 0.000 description 1
- 238000003780 insertion Methods 0.000 description 1
- 230000037431 insertion Effects 0.000 description 1
- 238000000034 method Methods 0.000 description 1
- 238000005057 refrigeration Methods 0.000 description 1
Images
Landscapes
- Other Air-Conditioning Systems (AREA)
Abstract
本实用新型公开了一种能避免冷凝水聚集的空调外机支撑架,包括安装板、安装螺栓、放置板和固定板,所述安装板正面靠近四个角的位置处固定安装有安装螺栓,所述安装板正面靠近底部两组安装螺栓的位置处固定安装有焊接块。本实用新型设置了通孔,放置板的顶部设有通孔,空调外机工作时产生的冷凝水可以直接通过通孔流出,有效的避免冷凝水聚集在放置板上,该能避免冷凝水聚集的空调外机支撑架设置了轴杆,轴杆与轴承固定连接,然后放置板可以自由的进行转动,当需要使用时,直接转动放置板保持水平,然后把放置底部的支撑杆顶在焊接块的卡槽内部即可,不需要使用时,直接转动放置板和安装板折叠起来即可,无需进行拆卸安装,使用起来十分便捷。
The utility model discloses a support frame for an air conditioner outdoor unit which can avoid condensation water accumulation, comprising a mounting plate, mounting bolts, a placing plate and a fixing plate. A welding block is fixedly installed at the position of the front of the mounting plate close to the two sets of mounting bolts at the bottom. The utility model is provided with a through hole, the top of the placing plate is provided with a through hole, and the condensed water generated when the air conditioner works can flow out directly through the through hole, which can effectively prevent the condensed water from accumulating on the placing plate, which can prevent the condensed water from accumulating. The outer unit support frame of the air conditioner is provided with a shaft, the shaft is fixedly connected with the bearing, and then the placing plate can be rotated freely. When needed, directly rotate the placing plate to keep it level, and then put the supporting rod at the bottom on the welding block. It can be used inside the card slot. When not in use, you can directly rotate the placement plate and the installation plate and fold it up, without disassembly and installation, and it is very convenient to use.
Description
技术领域technical field
本实用新型涉及空调外机支撑架技术领域,具体为一种能避免冷凝水聚集的空调外机支撑架。The utility model relates to the technical field of an air conditioner outer unit support frame, in particular to an air conditioner outer unit support frame which can avoid condensation water accumulation.
背景技术Background technique
空调即空气调节器(Air Conditioner)。是指用人工手段,对建筑或构筑物内环境空气的温度、湿度、流速等参数进行调节和控制的设备,一般包括冷源/热源设备,冷热介质输配系统,末端装置等几大部分和其他辅助设备,主要包括,制冷主机、水泵、风机和管路系统,末端装置则负责利用输配来的冷热量,具体处理空气状态,使目标环境的空气参数达到要求,空调外机一般是安装在室外的墙壁上,因此需要使用到一种空调外机支撑架。An air conditioner is an Air Conditioner. Refers to the equipment that adjusts and controls the temperature, humidity, flow velocity and other parameters of the ambient air in buildings or structures by artificial means, generally including cold source/heat source equipment, cold and hot medium transmission and distribution systems, terminal devices, etc. Other auxiliary equipment mainly includes refrigeration host, water pump, fan and pipeline system. The terminal device is responsible for using the cold and heat from transmission and distribution, specifically processing the air state, and making the air parameters of the target environment meet the requirements. It is installed on the outdoor wall, so an air conditioner outdoor unit support frame is required.
现有的空调外机支撑架存在的缺陷是:The defects of the existing air conditioner outdoor unit support frame are:
1、现有的空调外机支撑架一般是通过设置底板对空调外界进行放置安装,但是底板容易出现冷凝水聚集的现象。1. The existing air conditioner external unit support frame is generally placed and installed on the outside of the air conditioner by setting a bottom plate, but the bottom plate is prone to condensation water accumulation.
2、现有的空调外机支撑架需要进行将很多结构拼装在一起才能进行使用,不使用时,为了节约放置空间,需要对其进行拆卸,使用起来不够便捷。2. The existing air conditioner external unit support frame needs to be assembled with many structures to be used. When not in use, in order to save the placement space, it needs to be disassembled, which is not convenient to use.
实用新型内容Utility model content
本实用新型的目的在于提供一种能避免冷凝水聚集的空调外机支撑架,以解决上述背景技术中提出的问题。The purpose of the present invention is to provide a support frame for an air conditioner external unit that can avoid condensation water accumulation, so as to solve the problems raised in the above background technology.
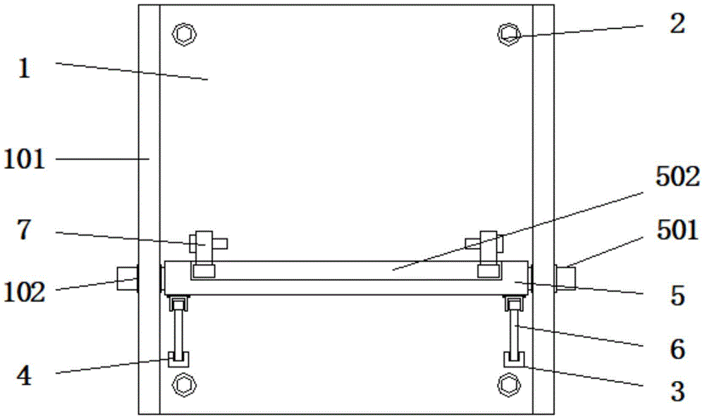
为实现上述目的,本实用新型提供如下技术方案:一种能避免冷凝水聚集的空调外机支撑架,包括安装板、安装螺栓、焊接块、放置板和固定板,所述安装板正面靠近四个角的位置处固定安装有安装螺栓,所述安装板正面靠近底部两组安装螺栓的位置处固定安装有焊接块,所述焊接块的正面设有卡槽,所述安装板正面靠近底部的位置处转动安装有放置板,所述放置板底部前侧的两端转动安装有支撑杆,所述放置板顶部滑动安装有两组固定板。In order to achieve the above purpose, the present invention provides the following technical solutions: a support frame for an air conditioner outdoor unit that can avoid the accumulation of condensed water, comprising a mounting plate, mounting bolts, welding blocks, a placing plate and a fixing plate, and the front of the mounting plate is close to four Mounting bolts are fixedly installed at the corners, and welding blocks are fixedly installed at the front of the mounting plate near the two sets of mounting bolts at the bottom. A placing plate is rotatably installed at the position, two ends of the front side of the bottom of the placing plate are rotatably installed with support rods, and two sets of fixing plates are slidably installed on the top of the placing plate.
优选的,所述放置板的两侧的后端固定安装有轴杆,所述放置板的表面设有通孔,所述放置板顶部的前后侧设有滑槽。Preferably, shaft rods are fixedly installed at the rear ends of both sides of the placing plate, through holes are provided on the surface of the placing plate, and sliding grooves are provided on the front and rear sides of the top of the placing plate.
优选的,所述安装板正面的两侧固定安装有焊接板,焊接板靠近底部的位置处镶嵌有轴承。Preferably, welding plates are fixedly installed on both sides of the front side of the mounting plate, and bearings are inlaid at the positions of the welding plates close to the bottom.
优选的,所述固定板两端处固定安装有固定螺栓,所述固定板底部的两端固定安装有滑块。Preferably, fixing bolts are fixedly installed at both ends of the fixing plate, and sliding blocks are fixedly installed at both ends of the bottom of the fixing plate.
优选的,所述支撑杆的顶端固定安装有套管,所述支撑杆的顶部设有凹型座,所述支撑杆的内部固定安装有焊接杆,套管套在焊接杆的表面。Preferably, the top end of the support rod is fixedly installed with a sleeve, the top of the support rod is provided with a concave seat, the inside of the support rod is fixedly installed with a welding rod, and the sleeve is sleeved on the surface of the welding rod.
优选的,所述安装螺栓的一端固定安装有限位套,限位套的一端镶嵌安装有橡胶块。Preferably, a limit sleeve is fixedly installed at one end of the mounting bolt, and a rubber block is inlaid and installed at one end of the limit sleeve.
与现有技术相比,本实用新型的有益效果是:Compared with the prior art, the beneficial effects of the present utility model are:
1、该能避免冷凝水聚集的空调外机支撑架设置了通孔,放置板的顶部设有通孔,空调外机工作时产生的冷凝水可以直接通过通孔流出,有效的避免冷凝水聚集在放置板上。1. The outer unit support frame of the air conditioner, which can avoid condensation water accumulation, is provided with through holes, and the top of the placing plate is provided with through holes. The condensed water generated when the air conditioner outer unit works can flow out directly through the through holes, effectively avoiding condensation water accumulation. on the placement board.
2、该能避免冷凝水聚集的空调外机支撑架设置了轴杆,轴杆与轴承固定连接,然后放置板可以自由的进行转动,当需要使用时,直接转动放置板保持水平,然后把放置底部的支撑杆顶在焊接块的卡槽内部即可,不需要使用时,直接转动放置板和安装板折叠起来即可,无需进行拆卸安装,使用起来十分便捷。2. The outer unit support frame of the air conditioner, which can avoid the accumulation of condensed water, is provided with a shaft, which is fixedly connected with the bearing, and then the placing plate can rotate freely. When needed, directly rotate the placing plate to keep it horizontal, and then place the The support rod at the bottom can be placed inside the slot of the welding block. When it is not needed, the placing plate and the mounting plate can be directly rotated and folded. There is no need to disassemble and install, and it is very convenient to use.
附图说明Description of drawings
图1为本实用新型的正视图结构示意图;Fig. 1 is the front view structural representation of the utility model;
图2为本实用新型的俯视图结构示意图;Fig. 2 is the top view structure schematic diagram of the utility model;
图3为本实用新型的支撑杆结构示意图;Fig. 3 is the structural schematic diagram of the support rod of the present invention;
图4为本实用新型的放置板结构示意图;4 is a schematic diagram of the structure of the placement plate of the present invention;
图5为本实用新型的固定板结构示意图。FIG. 5 is a schematic structural diagram of the fixing plate of the present invention.
图中:1、安装板;101、焊接板;102、轴承;2、安装螺栓;201、限位套;202、橡胶块;3、焊接块;4、卡槽;5、放置板;501、轴杆;502、滑槽;503、通孔;6、支撑杆;601、套管;602、焊接杆;603、凹型座;7、固定板;701、滑块;702、固定螺栓。In the figure: 1. Mounting plate; 101, Welding plate; 102, Bearing; 2. Mounting bolt; 201, Limit sleeve; 202, Rubber block; 3, Welding block; Shaft rod; 502, chute; 503, through hole; 6, support rod; 601, sleeve; 602, welding rod; 603, concave seat; 7, fixing plate; 701, slider; 702, fixing bolt.
具体实施方式Detailed ways
下面将结合本实用新型实施例中的附图,对本实用新型实施例中的技术方案进行清楚、完整地描述,显然,所描述的实施例仅仅是本实用新型一部分实施例,而不是全部的实施例。基于本实用新型中的实施例,本领域普通技术人员在没有做出创造性劳动前提下所获得的所有其他实施例,都属于本实用新型保护的范围。The technical solutions in the embodiments of the present utility model will be clearly and completely described below with reference to the accompanying drawings in the embodiments of the present utility model. Obviously, the described embodiments are only a part of the embodiments of the present utility model, rather than all the implementations. example. Based on the embodiments of the present invention, all other embodiments obtained by those of ordinary skill in the art without creative work fall within the protection scope of the present invention.
在本实用新型的描述中,需要说明的是,术语“上”、“下”、“内”、“外”“前端”、“后端”、“两端”、“一端”、“另一端”等指示的方位或位置关系为基于附图所示的方位或位置关系,仅是为了便于描述本实用新型和简化描述,而不是指示或暗示所指的装置或元件必须具有特定的方位、以特定的方位构造和操作,因此不能理解为对本实用新型的限制。此外,术语“第一”、“第二”仅用于描述目的,而不能理解为指示或暗示相对重要性。In the description of the present invention, it should be noted that the terms "upper", "lower", "inner", "outer", "front end", "rear end", "two ends", "one end", "the other end" The orientation or positional relationship indicated by "" etc. is based on the orientation or positional relationship shown in the accompanying drawings, and is only for the convenience of describing the present invention and simplifying the description, rather than indicating or implying that the indicated device or element must have a specific orientation, so as to The specific orientation configuration and operation is therefore not to be construed as a limitation of the present invention. Furthermore, the terms "first" and "second" are used for descriptive purposes only and should not be construed to indicate or imply relative importance.
在本实用新型的描述中,需要说明的是,除非另有明确的规定和限定,术语“安装”、“设置有”、“连接”等,应做广义理解,例如“连接”,可以是固定连接,也可以是可拆卸连接,或一体地连接;可以是机械连接,也可以是电连接;可以是直接相连,也可以通过中间媒介间接相连,可以是两个元件内部的连通。对于本领域的普通技术人员而言,可以具体情况理解上述术语在本实用新型中的具体含义。In the description of the present utility model, it should be noted that, unless otherwise expressly specified and limited, the terms "installed", "provided with", "connected", etc., should be understood in a broad sense, for example, "connected" may be a fixed The connection can also be a detachable connection, or an integral connection; it can be a mechanical connection or an electrical connection; it can be a direct connection, or an indirect connection through an intermediate medium, and it can be internal communication between two components. For those of ordinary skill in the art, the specific meanings of the above terms in the present invention can be understood in specific situations.
请参阅图1-5,本实用新型提供的一种实施例:一种能避免冷凝水聚集的空调外机支撑架,包括安装板1、安装螺栓2、焊接块3、放置板5和固定板7,安装板1正面靠近四个角的位置处通过螺纹结构固定安装有安装螺栓2,安装板1通过安装螺栓2固定安装在墙壁上,安装板1正面靠近底部两组安装螺栓2的位置处焊接有焊接块3,焊接块3的正面设有卡槽4,卡槽4便于对支撑杆6进行支撑,安装板1正面靠近底部的位置处转动安装有放置板5,放置板5用于空调外机放置安装,放置板5底部前侧的两端转动安装有支撑杆6,支撑杆6对放置板5进行受力支撑,放置板5顶部滑动安装有两组固定板7,固定板7用于对空调外机进行固定。Please refer to FIGS. 1-5 , an embodiment provided by the present utility model: an air conditioner outdoor unit support frame that can avoid condensation water accumulation, comprising a
进一步,放置板5的两侧的后端焊接有轴杆501,放置板5通过轴杆501与焊接板101进行转动安装,放置板5的表面设有通孔503,通孔503便于冷凝水滴落,避免冷凝水在放置板5上聚集,放置板5顶部的前后侧设有滑槽502,滑槽502便于滑块701的安装。Further, the rear ends of the two sides of the placing
进一步,安装板1正面的两侧焊接有焊接板101,焊接板101靠近底部的位置处镶嵌有轴承102,轴承102便于轴杆501的插入。Further,
进一步,固定板7两端处通过螺纹结构固定安装有固定螺栓702,固定板7底部的两端焊接有滑块701,通过滑块701滑动固定板7,然后通过固定螺栓702与空调外机进行固定连接。Further, fixing
进一步,支撑杆6的顶端焊接有套管601,支撑杆6的顶部设有凹型座603,支撑杆6的内部焊接有焊接杆602,套管601套在焊接杆602的表面,支撑杆6通过套管601可以在凹型座603上进行转动,便于折叠,凹型座603通过螺栓与放置板5固定连接。Further, the top of the
进一步,安装螺栓2的一端焊接有限位套201,限位套201的一端镶嵌安装有橡胶块202,橡胶块202可以对震动进行有效的缓冲,避免安装螺栓2出现松动。Further, one end of the mounting
工作原理:使用时,首先通过安装螺栓2把该支撑架固定安装在墙壁上,然后转动放置板5保持水平,然后把支撑杆6的底端插入到卡槽4内部对放置板5进行固定支撑,然后把空调外机放在放置板5上,然后滑动固定板7,使固定板7与空调外机的两侧接触,然后通过固定螺栓702与空调外机进行固定连接,从而对空调外机进行固定,不需要使用时,拆卸安装螺栓2,然后转动放置板5进行折叠,减小占用的放置空间。Working principle: When in use, firstly fix the support frame on the wall through the mounting
对于本领域技术人员而言,显然本实用新型不限于上述示范性实施例的细节,而且在不背离本实用新型的精神或基本特征的情况下,能够以其他的具体形式实现本实用新型。因此,无论从哪一点来看,均应将实施例看作是示范性的,而且是非限制性的,本实用新型的范围由所附权利要求而不是上述说明限定,因此旨在将落在权利要求的等同要件的含义和范围内的所有变化囊括在本实用新型内。不应将权利要求中的任何附图标记视为限制所涉及的权利要求。It will be apparent to those skilled in the art that the present invention is not limited to the details of the above-described exemplary embodiments, and that the present invention may be implemented in other specific forms without departing from the spirit or essential characteristics of the present invention. Therefore, the embodiments are to be considered in all respects as exemplary and not restrictive, and the scope of the present invention is defined by the appended claims rather than the foregoing description, and it is therefore intended that the All changes within the meaning and range of the required equivalents are embraced within the present invention. Any reference signs in the claims shall not be construed as limiting the involved claim.
Claims (6)
Priority Applications (1)
| Application Number | Priority Date | Filing Date | Title |
|---|---|---|---|
| CN201922190658.4U CN211119727U (en) | 2019-12-10 | 2019-12-10 | Air conditioner external unit support frame capable of avoiding condensed water accumulation |
Applications Claiming Priority (1)
| Application Number | Priority Date | Filing Date | Title |
|---|---|---|---|
| CN201922190658.4U CN211119727U (en) | 2019-12-10 | 2019-12-10 | Air conditioner external unit support frame capable of avoiding condensed water accumulation |
Publications (1)
| Publication Number | Publication Date |
|---|---|
| CN211119727U true CN211119727U (en) | 2020-07-28 |
Family
ID=71690904
Family Applications (1)
| Application Number | Title | Priority Date | Filing Date |
|---|---|---|---|
| CN201922190658.4U Expired - Fee Related CN211119727U (en) | 2019-12-10 | 2019-12-10 | Air conditioner external unit support frame capable of avoiding condensed water accumulation |
Country Status (1)
| Country | Link |
|---|---|
| CN (1) | CN211119727U (en) |
Cited By (1)
| Publication number | Priority date | Publication date | Assignee | Title |
|---|---|---|---|---|
| CN112556156A (en) * | 2020-12-22 | 2021-03-26 | 南通国密祺机械设备有限公司 | Water receiving device of refrigeration type air conditioner |
-
2019
- 2019-12-10 CN CN201922190658.4U patent/CN211119727U/en not_active Expired - Fee Related
Cited By (1)
| Publication number | Priority date | Publication date | Assignee | Title |
|---|---|---|---|---|
| CN112556156A (en) * | 2020-12-22 | 2021-03-26 | 南通国密祺机械设备有限公司 | Water receiving device of refrigeration type air conditioner |
Similar Documents
| Publication | Publication Date | Title |
|---|---|---|
| CN211119727U (en) | Air conditioner external unit support frame capable of avoiding condensed water accumulation | |
| CN109595751B (en) | A hidden air conditioner display panel | |
| CN221825506U (en) | A fixing assembly for an air conditioner mounting bracket | |
| CN220771359U (en) | Air conditioner installing support convenient to adjust | |
| CN202470263U (en) | Split-type air conditioner | |
| CN211119731U (en) | A fixed bracket for an air conditioner host | |
| CN204268679U (en) | A foldable air conditioner fixing bracket | |
| CN211575331U (en) | Air conditioner installing support that stability is high | |
| CN211781780U (en) | Novel air conditioner air volume adjusting device | |
| CN219160490U (en) | Air conditioner support convenient to adjust | |
| CN210772523U (en) | Novel air conditioner mounting bracket with adjustable easy dismouting | |
| CN104515501B (en) | Wallboard installs positioning rule and wallboard installation and locating method | |
| CN211119962U (en) | A central air conditioner cooling fan bracket | |
| CN211119946U (en) | Inner liner confining plate for air conditioner single machine | |
| CN210739890U (en) | Mounting rack for biological detector | |
| CN208458106U (en) | A kind of vertical air conditioner equipment for capableing of fast-refrigerating | |
| CN101329086A (en) | Water discharge pump support of wind pipe type commercial air conditioner indoor machine | |
| CN221924202U (en) | Air curtain cabinet air curtain debugging device | |
| CN210425275U (en) | Air-conditioning indoor unit convenient to install | |
| CN208185339U (en) | A kind of liquid crystal display that thermal diffusivity is good | |
| CN215809211U (en) | Quick fixed mounting spare of air conditioner pipeline | |
| CN211854251U (en) | Air conditioner external unit fixing frame convenient to maintain | |
| CN222417754U (en) | Air conditioner bracket with adjustable direction | |
| CN209837724U (en) | Warm grillage that rolls over that leads to of building | |
| CN211600979U (en) | Air conditioning equipment using cold air from water wells |
Legal Events
| Date | Code | Title | Description |
|---|---|---|---|
| GR01 | Patent grant | ||
| GR01 | Patent grant | ||
| CF01 | Termination of patent right due to non-payment of annual fee | ||
| CF01 | Termination of patent right due to non-payment of annual fee |
Granted publication date: 20200728 |
