CN203418264U - Side board splicing tool for semi-trailer box body - Google Patents
Side board splicing tool for semi-trailer box body Download PDFInfo
- Publication number
- CN203418264U CN203418264U CN201320505253.5U CN201320505253U CN203418264U CN 203418264 U CN203418264 U CN 203418264U CN 201320505253 U CN201320505253 U CN 201320505253U CN 203418264 U CN203418264 U CN 203418264U
- Authority
- CN
- China
- Prior art keywords
- semi
- tooling platform
- side board
- tool
- symmetrically arranged
- Prior art date
- Legal status (The legal status is an assumption and is not a legal conclusion. Google has not performed a legal analysis and makes no representation as to the accuracy of the status listed.)
- Expired - Fee Related
Links
- 230000007246 mechanism Effects 0.000 claims abstract description 5
- 238000003466 welding Methods 0.000 claims description 6
- 230000003028 elevating effect Effects 0.000 claims description 4
- 230000002146 bilateral effect Effects 0.000 claims description 3
- 229910000831 Steel Inorganic materials 0.000 abstract description 7
- 239000010959 steel Substances 0.000 abstract description 7
- 230000000694 effects Effects 0.000 abstract description 3
- 238000005516 engineering process Methods 0.000 description 2
- 238000000034 method Methods 0.000 description 2
- 230000009286 beneficial effect Effects 0.000 description 1
- 238000012797 qualification Methods 0.000 description 1
- 239000002023 wood Substances 0.000 description 1
Images
Landscapes
- Butt Welding And Welding Of Specific Article (AREA)
Abstract
The utility model provides a side board splicing tool for a semi-trailer box body. The side board splicing tool comprises a tool platform, multiple rows of rollers are arranged at the bottom of the tool platform, lifting mechanisms are arranged at the bottoms of the rollers, lifting openings corresponding to the positions of the rollers are formed in the tool platform, sliding rails are symmetrically arranged on the two sides of the tool platform, supporting columns are symmetrically arranged on the sliding rails on the two sides of the tool platform, sliding wheels matched with the sliding rails are arranged at the bottoms of the supporting columns respectively, a beam is erected between the two symmetrically arranged supporting columns, a plurality of hydraulic cylinders are symmetrically arranged on the beam, a piston rod of the hydraulic cylinder is vertically arranged downwards, and a pressure head is arranged at the bottom of the piston rod. By means of the side board splicing tool for the semi-trailer box body, the rollers can be lifted or lowered as required to convey steel plates and reduce labor strength of workers. The hydraulic cylinders are symmetrically arranged on the beam to be used for leveling the steel plates. The side board splicing tool for the semi-trailer box body is convenient and fast and ideal in leveling effect.
Description
Technical field
The purpose of this utility model is to provide a kind of automobile component frock, the assembled frock of especially a kind of semi-trailer body side plate.
Background technology
At present, when assembled semi-trailer body side plate, because steel plate is heavy, and plate face is large, and the manpower expending when workman carries is larger, makes operating efficiency very low.Meanwhile, when assembled welding, the steel plate after welding is heated and can produces deformation, if do not flattened, can affect the overall appearance of railway carriage, still, owing to there is no special tooling device, makes the leveling effect of steel plate undesirable, and inefficiency.
Summary of the invention
The purpose of this utility model is to provide the assembled frock of a kind of semi-trailer body side plate, the working sets such as leveling, conveying can be integrated, and alleviates workman's working strength, improves assembled efficiency and qualification rate.
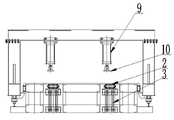
In order to solve the problems of the technologies described above, the technical solution of the utility model is as follows: the assembled frock of semi-trailer body side plate, comprise tooling platform, it is characterized in that: described tooling platform bottom is provided with many row's running rollers, the bottom of running roller is provided with elevating mechanism, tooling platform is provided with the hatchway corresponding with each running roller position, the bilateral symmetry of tooling platform is provided with slide rail, on the slide rail of tooling platform both sides, be arranged with support column, the bottom of each support column is all provided with the pulley matching with slide rail, between two symmetrically arranged support columns, set up crossbeam, on crossbeam, be arranged with a plurality of hydraulic cylinders, the piston rod of hydraulic cylinder arranges straight down, the bottom of piston rod is provided with pressure head.
Improvement to technique scheme a: side of described tooling platform is provided with fixed mount, is provided with electric welding on fixed mount.
Further improvement to technique scheme: described support column is separately positioned on the forward and backward two ends of slide rail.
Beneficial effect:
Use the assembled frock of semi-trailer body side plate described in the utility model, tooling platform bottom is provided with many row's running rollers, and the bottom of running roller is provided with elevating mechanism, can raise as required or reduce running roller, to meet the conveying of steel plate, alleviates workman's working strength; On crossbeam, be arranged with a plurality of hydraulic cylinders, the piston rod of hydraulic cylinder arranges straight down, and the bottom of piston rod is provided with pressure head, for steel plate is flattened, convenient, fast, flattens satisfactory for result; One side of tooling platform is provided with fixed mount, is provided with electric welding on fixed mount, can facilitate workman to carry out welding operation; Support column is separately positioned on the forward and backward two ends of slide rail, by twice leveling, effectively improves leveling effect.
Accompanying drawing explanation
Fig. 1 is top view of the present utility model.
Fig. 2 is front view of the present utility model.
Fig. 3 is right view of the present utility model.
The specific embodiment
As Fig. 1, Fig. 2, the assembled frock of the utility model semi-trailer body side plate shown in Fig. 3, comprise tooling platform 1, described tooling platform 1 bottom is provided with two row's running rollers 2, the bottom of running roller 2 is provided with elevating mechanism 3, tooling platform 1 is provided with the hatchway 4 corresponding with running roller 2 positions, the bilateral symmetry of tooling platform 1 is provided with slide rail 5, before the slide rail 5 of tooling platform 1 both sides, rear two ends are arranged with support column 6, the bottom of support column 6 is all provided with the pulley 7 matching with slide rail 5, on two wood side-guides 5, between symmetrically arranged support column 6, set up crossbeam 8, on crossbeam 8, be arranged with hydraulic cylinder 9, the piston rod of hydraulic cylinder 9 arranges straight down, the bottom of piston rod is provided with pressure head 10.
Claims (3)
1. the assembled frock of semi-trailer body side plate, comprise tooling platform, it is characterized in that: described tooling platform bottom is provided with many row's running rollers, the bottom of running roller is provided with elevating mechanism, tooling platform is provided with the hatchway corresponding with each running roller position, the bilateral symmetry of tooling platform is provided with slide rail, on the slide rail of tooling platform both sides, be arranged with support column, the bottom of each support column is all provided with the pulley matching with slide rail, between two symmetrically arranged support columns, set up crossbeam, on crossbeam, be arranged with a plurality of hydraulic cylinders, the piston rod of hydraulic cylinder arranges straight down, the bottom of piston rod is provided with pressure head.
2. the assembled frock of semi-trailer body side plate according to claim 1, is characterized in that: a side of described tooling platform is provided with fixed mount, is provided with electric welding on fixed mount.
3. the assembled frock of semi-trailer body side plate according to claim 1 and 2, is characterized in that: described support column is separately positioned on the forward and backward two ends of tooling platform.
Priority Applications (1)
| Application Number | Priority Date | Filing Date | Title |
|---|---|---|---|
| CN201320505253.5U CN203418264U (en) | 2013-08-19 | 2013-08-19 | Side board splicing tool for semi-trailer box body |
Applications Claiming Priority (1)
| Application Number | Priority Date | Filing Date | Title |
|---|---|---|---|
| CN201320505253.5U CN203418264U (en) | 2013-08-19 | 2013-08-19 | Side board splicing tool for semi-trailer box body |
Publications (1)
| Publication Number | Publication Date |
|---|---|
| CN203418264U true CN203418264U (en) | 2014-02-05 |
Family
ID=50017368
Family Applications (1)
| Application Number | Title | Priority Date | Filing Date |
|---|---|---|---|
| CN201320505253.5U Expired - Fee Related CN203418264U (en) | 2013-08-19 | 2013-08-19 | Side board splicing tool for semi-trailer box body |
Country Status (1)
| Country | Link |
|---|---|
| CN (1) | CN203418264U (en) |
Cited By (1)
| Publication number | Priority date | Publication date | Assignee | Title |
|---|---|---|---|---|
| CN104759817A (en) * | 2015-04-16 | 2015-07-08 | 上海振华重工集团(南通)有限公司 | Tyre crane rail welding pressing tail tool |
-
2013
- 2013-08-19 CN CN201320505253.5U patent/CN203418264U/en not_active Expired - Fee Related
Cited By (1)
| Publication number | Priority date | Publication date | Assignee | Title |
|---|---|---|---|---|
| CN104759817A (en) * | 2015-04-16 | 2015-07-08 | 上海振华重工集团(南通)有限公司 | Tyre crane rail welding pressing tail tool |
Similar Documents
| Publication | Publication Date | Title |
|---|---|---|
| CN103359484B (en) | Gantry type blank grabbing machine | |
| CN105460852A (en) | Hydraulic lifting platform | |
| CN203343920U (en) | Movable dolly type clamping device | |
| CN104416311A (en) | Semitrailer carriage edge plate assembly tool | |
| CN105621006A (en) | Steel plate lifting and transporting device | |
| CN106516686A (en) | Tray lifting and conveying mechanism | |
| CN206511617U (en) | Tray lift conveying mechanism | |
| CN105752890B (en) | The a wide range of sidesway slide block mechanism of fork of forklift truck | |
| CN205328536U (en) | Lift free style delivery wagon | |
| CN203418264U (en) | Side board splicing tool for semi-trailer box body | |
| CN204355775U (en) | The noiseless gathering-device of steel pipe | |
| CN204171209U (en) | A kind of rail leveling conveyer | |
| CN204938319U (en) | LED automatic charging device | |
| CN204448944U (en) | A kind of dog leg machine | |
| CN103523480A (en) | Workshop feeding and loading trolley | |
| CN202803779U (en) | Long-stroke remote feeding device for wide and thick plate cooling bed | |
| CN105129613A (en) | Die overturning tool | |
| CN211768725U (en) | Turnover frame for forged products | |
| CN204607503U (en) | Promote bench board | |
| CN204545074U (en) | A kind of two-way end edging machine | |
| CN204183111U (en) | A kind of laser cutting machine plane formula pallet changer | |
| CN210692338U (en) | Iron core cross beam type movable stacking platform of power transformer | |
| CN203332790U (en) | Combined type adjustable transition conveying device | |
| CN203439707U (en) | Automatic adobe stacking platform | |
| CN203496424U (en) | Fire extinguisher screen printer |
Legal Events
| Date | Code | Title | Description |
|---|---|---|---|
| C14 | Grant of patent or utility model | ||
| GR01 | Patent grant | ||
| CF01 | Termination of patent right due to non-payment of annual fee | ||
| CF01 | Termination of patent right due to non-payment of annual fee |
Granted publication date: 20140205 Termination date: 20200819 |