CN203112385U - Large movable arm tower crane introduction mechanism - Google Patents
Large movable arm tower crane introduction mechanism Download PDFInfo
- Publication number
- CN203112385U CN203112385U CN 201220746100 CN201220746100U CN203112385U CN 203112385 U CN203112385 U CN 203112385U CN 201220746100 CN201220746100 CN 201220746100 CN 201220746100 U CN201220746100 U CN 201220746100U CN 203112385 U CN203112385 U CN 203112385U
- Authority
- CN
- China
- Prior art keywords
- introduction
- tower crane
- trolley
- special
- standard section
- Prior art date
- Legal status (The legal status is an assumption and is not a legal conclusion. Google has not performed a legal analysis and makes no representation as to the accuracy of the status listed.)
- Expired - Fee Related
Links
- 239000000725 suspension Substances 0.000 claims description 5
- 238000000034 method Methods 0.000 abstract description 9
- 238000005452 bending Methods 0.000 abstract description 8
- 230000002452 interceptive effect Effects 0.000 abstract 1
- 238000010586 diagram Methods 0.000 description 14
- 238000010276 construction Methods 0.000 description 8
- 229910000831 Steel Inorganic materials 0.000 description 4
- 239000010959 steel Substances 0.000 description 4
- 238000009434 installation Methods 0.000 description 3
- 238000005096 rolling process Methods 0.000 description 2
- 230000009286 beneficial effect Effects 0.000 description 1
- 230000009194 climbing Effects 0.000 description 1
- 238000009776 industrial production Methods 0.000 description 1
- 230000002093 peripheral effect Effects 0.000 description 1
- 238000010248 power generation Methods 0.000 description 1
- 230000000630 rising effect Effects 0.000 description 1
- 238000006467 substitution reaction Methods 0.000 description 1
- XLYOFNOQVPJJNP-UHFFFAOYSA-N water Substances O XLYOFNOQVPJJNP-UHFFFAOYSA-N 0.000 description 1
Images
Landscapes
- Jib Cranes (AREA)
Abstract
本实用新型涉及工程机械领域,公开了一种大型动臂塔式起重机引进机构包括:弯折式引进横梁、拉杆Ⅰ、平台、电动引进小车、专用吊钩、专用吊具。本实用新型的引进小车采用三合一减速电机驱动,与传统引进机构相比,电动引进小车由于需要供电,须始终放置在引进横梁上;专业吊具用于顶升加节时起吊标准节,在标准节引进过程中将专用吊具和标准节放置在电动引进小车上,解决了传统引进机构标准节不易引进等问题;本实用新型引进横梁中采用弯折的方式,有效解决了传统引进机构引进横梁易与起升钢丝绳干涉等问题,扩大了塔式起重机的工作范围,提高了塔式起重机使用安全性。
The utility model relates to the field of engineering machinery, and discloses an introduction mechanism of a large-scale movable arm tower crane, which comprises: a bent introduction beam, a pull rod I, a platform, an electric introduction trolley, a special hook and a special spreader. The introduction trolley of the utility model is driven by a three-in-one deceleration motor. Compared with the traditional introduction mechanism, the electric introduction trolley must always be placed on the introduction beam because of the need for power supply; the professional spreader is used to lift the standard section when lifting and adding sections. During the introduction of the standard section, the special spreader and the standard section are placed on the electric introduction trolley, which solves the problems that the standard section of the traditional introduction mechanism is not easy to introduce; the utility model adopts a bending method in the introduction beam, which effectively solves the problem of the traditional introduction mechanism The introduction of problems such as crossbeams easily interfering with hoisting wire ropes has expanded the working range of the tower crane and improved the safety of the tower crane.
Description
技术领域 technical field
本实用新型涉及工程机械领域,特别涉及一种大型动臂塔式起重机引进机构。 The utility model relates to the field of engineering machinery, in particular to an introduction mechanism of a large-scale movable arm tower crane.
背景技术 Background technique
目前,我国超高层建筑正处于上升和发展的阶段,中国的超高层建筑高度记录每年都在不断被刷新。进入21世纪后一栋栋超高层建筑拔地而起,未来10到15年,中国将形成巨大的超高层建筑市场。 At present, my country's super high-rise buildings are in the stage of rising and developing, and China's super high-rise building height records are constantly being refreshed every year. After entering the 21st century, super high-rise buildings have sprung up one after another. In the next 10 to 15 years, China will form a huge market for super high-rise buildings.
同时,电力资源是工业生产和人民生活的基础,我国石油、水利资源缺乏,因此在相当长时期内,火力发电是我国经济建设的重点。火电建设的重点、难点是锅炉的安装,包括锅炉厂房钢结构、内部设备、外围设施。锅炉岛是火电厂除烟囱外最高建筑,在电厂施工中体积最大、安装难度大。 At the same time, electric power resources are the foundation of industrial production and people's life. my country lacks oil and water conservancy resources. Therefore, thermal power generation will be the focus of my country's economic construction for a long time. The key and difficult point of thermal power construction is boiler installation, including boiler plant steel structure, internal equipment, and peripheral facilities. The boiler island is the tallest building in the thermal power plant except for the chimney. It has the largest volume in the construction of the power plant and is difficult to install.
为了满足超高层建筑工程及火电建设的需求,动臂塔式起重机朝着大型化发展,工作幅度越来越大,塔身自身钢结构也越来越重。随着建筑高度的升高,外爬式塔式起重机通常需要通过顶升加节的方式来满足进一步施工需求。 In order to meet the needs of super high-rise construction projects and thermal power construction, luffing jib tower cranes are developing towards large-scale, the working range is getting larger and larger, and the steel structure of the tower itself is getting heavier and heavier. As the height of the building increases, external climbing tower cranes usually need to be lifted and added to meet further construction needs.
对于大型动臂塔式起重机,顶升加节时如果采用传统的引进机构则存在两大问题。一方面,传统的引进机构均采用人力驱动,但大型动臂塔式起重机的塔身体积及质量大,操作人员无法拉动,造成标准节引进困难,且在拆卸过程中,标准节也不易引出。另一方面,动臂塔式起重机在短臂长小幅度下工作时,塔式起重机自身吊钩易与引进横梁干涉,造成起升钢丝绳磨损,给施工安全性带来一系列隐患。此外,引进横梁尺寸过大,给加工、装配及运输都将带来不便。 For large swing jib tower cranes, there are two major problems if the traditional introduction mechanism is used when jacking and adding joints. On the one hand, the traditional introduction mechanism is driven by manpower, but the large volume and mass of the tower body of the large-scale luffing jib tower crane cannot be pulled by the operator, which makes it difficult to introduce the standard section, and it is not easy to pull out the standard section during the disassembly process. On the other hand, when the luffing jib tower crane works with a short jib length and a small range, the hook of the tower crane is easy to interfere with the imported beam, causing the lifting wire rope to wear and bring a series of hidden dangers to construction safety. In addition, the size of the imported beam is too large, which will bring inconvenience to processing, assembly and transportation.
图1所示为传统的引进机构示意图。由引进横梁1、拉杆2、平台3、引进小车4、吊钩5组成。其上有由型钢组成的轨道供引进小车行走。该方案的缺点是: (1) 标准节引进过程中采取人力驱动,当塔式起重机自身钢结构较重时,标准节将无法引进;(2) 引进横梁不可弯折,当动臂塔式起重机在短臂长小幅度下工作时,吊钩及起升钢丝绳易与引进横梁干涉,存在着安全隐患;(3)引进横梁过长,不便于安装和运输。 Figure 1 shows a schematic diagram of a traditional introduction mechanism. It is composed of imported beam 1, pull rod 2, platform 3, imported trolley 4 and hook 5. There is a track made of section steel on it for the introduction of trolleys to walk. The disadvantages of this scheme are: (1) Human drive is adopted in the introduction process of the standard section. When the steel structure of the tower crane itself is heavy, the standard section cannot be introduced; (2) The introduction beam cannot be bent, and when the jib tower crane When working under the short arm length, the suspension hook and the hoisting wire rope are easy to interfere with the introduction beam, which poses a safety hazard; (3) the introduction beam is too long, which is inconvenient for installation and transportation.
发明内容 Contents of the invention
本实用新型的目的是:为解决上述传统引进机构存在的技术问题,提供一种大型动臂塔式起重机引进机构,既能解决标准节不易引进,施工人员的操作安全性及便捷性差的问题,又能解决塔式起重机在小幅度下工作时,起升钢丝绳易与引进横梁干涉问题。 The purpose of this utility model is: to solve the technical problems existing in the above-mentioned traditional introduction mechanism, to provide a large-scale boom tower crane introduction mechanism, which can not only solve the problems of difficult introduction of standard sections, poor operation safety and convenience of construction personnel, It can also solve the problem that the hoisting wire rope easily interferes with the imported beam when the tower crane is working in a small range.
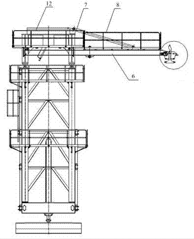
为达到上述目的,本实用新型采用的技术方案是:提供了一种大型动臂塔式起重机引进机构,包括:弯折式引进横梁6、拉杆Ⅰ7、平台8、电动引进小车9、专用吊钩11、专用吊具10;
In order to achieve the above purpose, the technical solution adopted by the utility model is: a large-scale boom tower crane introduction mechanism is provided, including: bending type introduction beam 6, pull rod I7, platform 8, electric introduction trolley 9,
所述弯折式引进横梁6进一步包括:前梁13、后梁14,两者之间通过销轴15连接,且两者之间可拆卸地连接;弯折式引进横梁6上端设有平台8,中间位置设有铰耳,底部设有电动引进小车行程限位板,弯折式引进横6与电动引进小车行程限位板通过螺栓连接,可进行拆卸;
The bent-type introduction beam 6 further includes: a
所述拉杆Ⅰ7一端与塔式起重机下支座12铰接,另一端与弯折式引进横梁6铰接; One end of the tie rod I7 is hinged to the lower support 12 of the tower crane, and the other end is hinged to the bent-type introduction beam 6;
所述电动引进小车9是用于引进标准节20的驱动装置,进一步包括:2个三合一减速电机16、小车架17、主动轮18、从动轮19;三合一减速电机16通过法兰与小车架17连接,主动轮18通过平键与减速电机上驱动轴连接,从动轮19通过端盖、滚动轴承、螺纹轴及圆螺母定位于小车架17上,小车架17上设有定位槽;
The electric introduction trolley 9 is a driving device for introducing the
所述专用吊具10是用来起吊标准节20且放置在电动引进小车9上的装置,进一步包括:圆柱块23、定位侧板22、耳板21;定位侧板22的上端内侧设有圆柱块23,外侧设有吊钩挂起结构26,圆柱块23放置在小车架17定位槽内,两侧由定位侧板22定位;
The
所述专用吊钩11是用来起吊专用吊具10及标准节20的结构,其挂在吊钩挂起结构26上。
The special-
本实用新型的有益效果是:(1) 本实用新型的引进小车采用三合一减速电机驱动,与传统引进机构相比,电动引进小车由于需要供电,须始终放置在引进横梁上;专业吊具用于顶升加节时起吊标准节,在标准节引进过程中将专用吊具和标准节放置在电动引进小车上,解决了传统引进机构标准节不易引进等问题。(2) 本实用新型引进横梁中采用弯折的方式,有效解决了传统引进机构引进横梁易与起升钢丝绳干涉等问题,扩大了塔式起重机的工作范围,提高了塔式起重机使用安全性。 The beneficial effects of the utility model are: (1) The introduction trolley of the utility model is driven by a three-in-one reduction motor. Compared with the traditional introduction mechanism, the electric introduction trolley must always be placed on the introduction beam because of the need for power supply; It is used to lift the standard section when jacking up and adding sections. During the introduction of the standard section, the special spreader and the standard section are placed on the electric introduction trolley, which solves the problems that the standard section is not easy to introduce in the traditional introduction mechanism. (2) The utility model adopts a bending method to introduce the beam, which effectively solves the problem that the traditional introduction mechanism easily interferes with the hoisting wire rope when introducing the beam, expands the working range of the tower crane, and improves the safety of the tower crane.
附图说明 Description of drawings
图1为传统引进机构示意图 Figure 1 is a schematic diagram of the traditional introduction mechanism
图2为本实用新型一种大型动臂塔式起重机引进机构的结构示意图。 Fig. 2 is a structural schematic diagram of an introduction mechanism of a large-scale boom tower crane of the present invention.
图3为本实用新型一种大型动臂塔式起重机引进机构的电动引进小车侧视图。 Fig. 3 is a side view of the electric introduction trolley of the introduction mechanism of a large-scale boom tower crane of the present invention.
图4为本实用新型一种大型动臂塔式起重机引进机构的弯折式引进横梁示意图。 Fig. 4 is a schematic diagram of a bent-type introduction beam of the introduction mechanism of a large-scale boom tower crane according to the present invention.
图5为本实用新型一种大型动臂塔式起重机引进机构的电动引进小车立体图。 Fig. 5 is a three-dimensional view of the electric introduction trolley of the introduction mechanism of a large-scale boom tower crane of the present invention.
图6为本实用新型一种大型动臂塔式起重机引进机构的专用吊具示意图。 Fig. 6 is a schematic diagram of a special spreader for the introduction mechanism of a large-scale boom tower crane according to the present invention.
图7为本实用新型一种大型动臂塔式起重机引进机构的专用吊钩示意图。 Fig. 7 is a schematic diagram of a special hook of the introduction mechanism of a large-scale boom tower crane of the present invention.
图8为本实用新型一种大型动臂塔式起重机引进机构的标准节引进过程示意图。 Fig. 8 is a schematic diagram of a standard section introduction process of a large-scale boom tower crane introduction mechanism of the present invention.
图9为本实用新型一种大型动臂塔式起重机引进机构的弯折式引进横梁弯折后示意图。 Fig. 9 is a schematic diagram of a bent-type introduction beam of a large-scale boom tower crane introduction mechanism of the present invention after being bent.
附图标识:1-引进横梁,2-拉杆,3-平台,4-引进小车,5-吊钩,6-弯折式引进横梁,7-拉杆Ⅰ,8-平台Ⅰ,9-电动引进小车,10-专用吊具,11-专利吊钩,12-下支座,13-前梁,14-后梁,15-销轴,16-三合一减速电机,17-小车架,18-主动轮,19-从动轮,20-标准节,21-耳板,22-定位侧板,23-圆柱块,24-可调拉索,25-套架,26-吊钩挂起结构。 Drawings: 1-Introduction beam, 2-Tie rod, 3-Platform, 4-Introduction trolley, 5-Hook, 6-Bending type introduction beam, 7-Tie rod Ⅰ, 8-Platform Ⅰ, 9-Electric introduction trolley ,10-special spreader, 11-patented hook, 12-lower support, 13-front beam, 14-rear beam, 15-pin shaft, 16-three-in-one geared motor, 17-small frame, 18-drive Wheel, 19-driven wheel, 20-standard section, 21-ear plate, 22-positioning side plate, 23-cylindrical block, 24-adjustable cable, 25-cover frame, 26-hook hanging structure.
具体实施方式 Detailed ways
本实用新型一种大型动臂塔式起重机引进机构,包括:弯折式引进横梁6、拉杆Ⅰ7、平台8,电动引进小车9、专用吊钩11、专用吊具10,;
The utility model is an introduction mechanism of a large boom tower crane, comprising: a bent introduction beam 6, a pull rod I7, a platform 8, an electric introduction trolley 9, a
所述弯折式引进横梁6进一步包括:前梁13、后梁14,两者之间通过销轴15连接,且两者之间可拆卸地连接;弯折式引进横梁6上端设有平台8,中间位置设有铰耳,底部设有电动引进小车行程限位板,弯折式引进横6与电动引进小车行程限位板通过螺栓连接,可进行拆卸;
The bent-type introduction beam 6 further includes: a
所述拉杆Ⅰ7一端与塔式起重机下支座12铰接,另一端与弯折式引进横梁6铰接; One end of the tie rod I7 is hinged to the lower support 12 of the tower crane, and the other end is hinged to the bent-type introduction beam 6;
所述电动引进小车9是用于引进标准节20的驱动装置,进一步包括:2个三合一减速电机16、小车架17、主动轮18、从动轮19;三合一减速电机16通过法兰与小车架17连接,主动轮18通过平键与减速电机上驱动轴连接,从动轮19通过端盖、滚动轴承、螺纹轴及圆螺母定位于小车架17上,小车架17上设有定位槽;
The electric introduction trolley 9 is a driving device for introducing the
所述专用吊具10是用来起吊标准节20且放置在电动引进小车9上的装置,进一步包括:圆柱块23、定位侧板22、耳板21;定位侧板22的上端内侧设有圆柱块23,外侧设有吊钩挂起结构26,圆柱块23放置在小车架17定位槽内,两侧由定位侧板22定位;
The
所述专用吊钩11是用来起吊专用吊具10及标准节20的结构,其挂在吊钩挂起结构26上。
The special-
下面结合附图和实施例对本实用新型进行详细说明。 The utility model is described in detail below in conjunction with accompanying drawing and embodiment.
参照图2-3,为本实用新型的一个实施例的大型动臂塔式起重机引进机构示意图,主要包括:弯折式引进横梁6、拉杆Ⅰ7、平台Ⅰ8、电动引进小车9、专用吊具10、专用吊钩11。弯折式引进横梁6与塔式起重机的下支座12下部采用销轴连接,并通过拉杆7一端与引进横梁采用销轴连接,另一端与下支座12上部铰耳采用销轴连接,形成稳定受力结构。
Referring to Figure 2-3, it is a schematic diagram of the introduction mechanism of a large-scale boom tower crane according to an embodiment of the present invention, which mainly includes: bending introduction beam 6, pull rod I7, platform I8, electric introduction trolley 9,
参照图4,为本实用新型的一个实施例的大型动臂塔式起重机引进机构的弯折式引进横梁示意图,弯折式引进横梁6由前梁13及后梁14通过销轴15连接而成,便于拆卸和运输。
Referring to Fig. 4 , it is a schematic diagram of a bent introduction beam of the introduction mechanism of a large boom tower crane according to an embodiment of the present invention. The bent introduction beam 6 is formed by connecting the
参照图5,为本实用新型的一个实施例的大型动臂塔式起重机引进机构的电动引进小车示意图,由两个三合一减速电机16、小车架17、主动轮18及从动轮19组合而成。通过三合一减速电机16驱动主动轮18,带动从动轮19,控制引进小车在弯折式引进横梁6轨道上行驶,从而控制标准节20的引进。
Referring to Fig. 5, it is a schematic diagram of an electric introduction trolley of the introduction mechanism of a large-scale boom tower crane according to an embodiment of the present invention, which is composed of two three-in-one
参照图6,为本实用新型的一个实施例的大型动臂塔式起重机引进机构的专用吊具示意图,主要由耳板21、定位侧板22及圆柱块23组合而成。
Referring to FIG. 6 , it is a schematic diagram of a special spreader for the introduction mechanism of a large-scale boom tower crane according to an embodiment of the present invention, which is mainly composed of
参照图8,为本实用新型的一个实施例的大型动臂塔式起重机引进机构标准节引进过程示意图。标准节20通过四根可调拉索24与专用吊具10的四个耳板连接,然后起重机吊钩吊起专用吊钩11、专用吊具10及一节标准节20,穿入引进横梁6前端,将专用吊具10和标准节20放置在电动引进小车9上,三合一减速电机16驱动电动引进小车9将标准节20引入套架25内部,最后完成标准节20的安装。
Referring to FIG. 8 , it is a schematic diagram of the introduction process of the standard section of the introduction mechanism of the large-scale boom tower crane according to an embodiment of the present invention. The
参照图9,为本实用新型的一个实施例的大型动臂塔式起重机引进机构的弯折式引进横梁弯折后示意图。动臂塔式起重机在短臂长小幅度工作时,吊钩易与弯折式引进横梁6干涉,此时利用塔式起重机自身吊钩及拉索固定弯折式引进横梁6前梁,然后通过拆卸弯折式引进横梁6上拉杆7与前梁13的连接销轴、后梁13与前梁14之间上部连接销轴15,最后缓慢放下前梁13,直至竖直状态。同时,弯折式引进横梁6上拉杆7也缓慢放下,直至如图所示状态。此时,电动引进小车9应该位于后梁14的轨道上。
Referring to FIG. 9 , it is a schematic diagram of the bent-type introduction beam of the introduction mechanism of a large-scale boom tower crane according to an embodiment of the present invention after being bent. When the jib tower crane is working with a short jib length and small range, the hook is likely to interfere with the bent beam 6. At this time, use the tower crane's own hook and cable to fix the front beam of the bent beam 6, and then pass Disassemble and bend type to introduce crossbeam 6 upper tie rod 7 and the connection pin shaft of
以上内容是结合优选技术方案对本发明所做的进一步详细说明,不能认定发明的具体实施仅限于这些说明。对本发明所属技术领域的普通技术人员来说,在不脱离本发明的构思的前提下,还可以做出简单的推演及替换,都应当视为本发明的保护范围。 The above content is a further detailed description of the present invention in combination with preferred technical solutions, and it cannot be assumed that the specific implementation of the invention is limited to these descriptions. For those of ordinary skill in the technical field to which the present invention belongs, simple deduction and substitutions can be made without departing from the concept of the present invention, which should be regarded as the protection scope of the present invention.
Claims (1)
Priority Applications (1)
| Application Number | Priority Date | Filing Date | Title |
|---|---|---|---|
| CN 201220746100 CN203112385U (en) | 2012-12-31 | 2012-12-31 | Large movable arm tower crane introduction mechanism |
Applications Claiming Priority (1)
| Application Number | Priority Date | Filing Date | Title |
|---|---|---|---|
| CN 201220746100 CN203112385U (en) | 2012-12-31 | 2012-12-31 | Large movable arm tower crane introduction mechanism |
Publications (1)
| Publication Number | Publication Date |
|---|---|
| CN203112385U true CN203112385U (en) | 2013-08-07 |
Family
ID=48892754
Family Applications (1)
| Application Number | Title | Priority Date | Filing Date |
|---|---|---|---|
| CN 201220746100 Expired - Fee Related CN203112385U (en) | 2012-12-31 | 2012-12-31 | Large movable arm tower crane introduction mechanism |
Country Status (1)
| Country | Link |
|---|---|
| CN (1) | CN203112385U (en) |
Cited By (2)
| Publication number | Priority date | Publication date | Assignee | Title |
|---|---|---|---|---|
| CN103058072A (en) * | 2012-12-31 | 2013-04-24 | 大连理工大学 | Introduction mechanism of a large boom tower crane |
| CN103863955A (en) * | 2014-03-12 | 2014-06-18 | 中联重科股份有限公司 | From introduction system and have this tower machine from introduction system |
-
2012
- 2012-12-31 CN CN 201220746100 patent/CN203112385U/en not_active Expired - Fee Related
Cited By (4)
| Publication number | Priority date | Publication date | Assignee | Title |
|---|---|---|---|---|
| CN103058072A (en) * | 2012-12-31 | 2013-04-24 | 大连理工大学 | Introduction mechanism of a large boom tower crane |
| CN103058072B (en) * | 2012-12-31 | 2015-04-08 | 大连理工大学 | Introduction mechanism of a large boom tower crane |
| CN103863955A (en) * | 2014-03-12 | 2014-06-18 | 中联重科股份有限公司 | From introduction system and have this tower machine from introduction system |
| CN103863955B (en) * | 2014-03-12 | 2015-12-09 | 中联重科股份有限公司 | From introduction system and have this tower machine from introduction system |
Similar Documents
| Publication | Publication Date | Title |
|---|---|---|
| CN206502579U (en) | Power pole hoisting device | |
| CN103058072B (en) | Introduction mechanism of a large boom tower crane | |
| CN203728443U (en) | Combined tower crane with main and auxiliary boom structure | |
| CN202423956U (en) | Hoisting device for power transmission line maintenance | |
| CN205159901U (en) | Special dolly is installed and removed to high -order earth connection | |
| CN203359893U (en) | Portable lift | |
| CN203112385U (en) | Large movable arm tower crane introduction mechanism | |
| CN209291874U (en) | A kind of distribution cable cover board boom hoisting | |
| CN204057797U (en) | cable cover hoisting device | |
| CN204324787U (en) | A trolley type cable well cover opener | |
| CN203095440U (en) | Special lifting device for asphalt pavement maintenance truck in high-altitude low-temperature region | |
| CN204752012U (en) | Wall -hanging miniature hoist | |
| CN204324743U (en) | A kind of transfer crane being applicable to the long shape article of handling | |
| CN202729645U (en) | Tower crane with elevator | |
| CN204265419U (en) | A kind of upset of the Novel hanging for circuit breaker car | |
| CN202609781U (en) | Hanger special for pipeline | |
| CN203699783U (en) | Hanging bracket fixed with wire pole | |
| CN204958265U (en) | Hoist electric block fixing device | |
| CN204281777U (en) | The Handling device of stove refractory brick is built for steel-making converter | |
| CN104418243A (en) | Free rotation crane | |
| CN206232337U (en) | Lifting equipment for maintenance of electrical equipment | |
| CN205170188U (en) | Hoist is lifted by crane in removal | |
| CN205381883U (en) | Novel big arm of tower crane segmentation demolish supplementaryly device | |
| CN206232210U (en) | A kind of portable pay off rack | |
| CN203312693U (en) | Overhead ground wire lifter |
Legal Events
| Date | Code | Title | Description |
|---|---|---|---|
| C14 | Grant of patent or utility model | ||
| GR01 | Patent grant | ||
| C17 | Cessation of patent right | ||
| CF01 | Termination of patent right due to non-payment of annual fee |
Granted publication date: 20130807 Termination date: 20131231 |
