CN202284174U - Suspension photocatalytic biological treatment equipment - Google Patents
Suspension photocatalytic biological treatment equipment Download PDFInfo
- Publication number
- CN202284174U CN202284174U CN2011204189673U CN201120418967U CN202284174U CN 202284174 U CN202284174 U CN 202284174U CN 2011204189673 U CN2011204189673 U CN 2011204189673U CN 201120418967 U CN201120418967 U CN 201120418967U CN 202284174 U CN202284174 U CN 202284174U
- Authority
- CN
- China
- Prior art keywords
- biological
- treatment
- area
- filler
- optical processing
- Prior art date
- Legal status (The legal status is an assumption and is not a legal conclusion. Google has not performed a legal analysis and makes no representation as to the accuracy of the status listed.)
- Expired - Fee Related
Links
Landscapes
- Physical Water Treatments (AREA)
- Catalysts (AREA)
Abstract
本实用新型揭示了一种悬浮光催化生物处理设备,所述处理设备包括:壳体以及设置于壳体内的光处理系统、生物系统;所述壳体包括内侧的光处理区、外侧的生物区,光处理区内设有光处理系统,生物区内设有生物系统;所述生物系统设置于光处理系统的外部,通过隔板层隔开;所述生物区填有填料,生物区的底部连有入水口,并设有曝气装置;所述光处理区上下分别安装电磁板,内部填充光磁性填料,光处理区外壁安装有紫外灯管;光处理区底部设有出水口。本实用新型在悬浮光催化生物处理设备下,可以实现光催化氧化与生物处理的协同作用,改善水的处理效果。
The utility model discloses a suspended photocatalytic biological treatment device, which includes: a housing, a light treatment system and a biological system arranged in the housing; the housing includes a light treatment area on the inner side and a biological area on the outer side , a light treatment system is provided in the light treatment area, and a biological system is provided in the biological area; the biological system is arranged outside the light treatment system and separated by a partition layer; the biological area is filled with fillers, and the bottom of the biological area It is connected with a water inlet and equipped with an aeration device; the upper and lower sides of the light treatment area are respectively equipped with electromagnetic plates, the interior is filled with optical magnetic fillers, and the outer wall of the light treatment area is equipped with ultraviolet lamps; the bottom of the light treatment area is provided with a water outlet. Under the suspended photocatalytic biological treatment equipment, the utility model can realize the synergistic effect of photocatalytic oxidation and biological treatment, and improve the treatment effect of water.
Description
技术领域 technical field
本实用新型属于环保与节能技术领域,涉及一种生物处理设备,尤其涉及一种悬浮光催化生物处理设备。The utility model belongs to the technical field of environmental protection and energy saving, and relates to biological treatment equipment, in particular to a suspended photocatalytic biological treatment equipment.
背景技术 Background technique
随着水源和饮用水中能够测得的微量污染物质的种类不断增加,对微污染水源的研究也提上了日程,现在处理微污染水源多为生物技术与深度处理技术相结合。水源水生物处理技术的本质是通过微生物的降解,去除水源水中包括腐殖酸在内的可生物降解的有机物,深度处理去除水中的难生物降解物质。各种联用技术的开发,对一些难降解有机物的去除非常有效,通过高效氧化,去除水中的大部分有机物,并有效的降低了饮用水致突变活性。但这些方法设备都相对复杂,运行和操作条件要求较高,尤其是成本问题严重制约了它们的推广使用。As the types of trace pollutants that can be measured in water sources and drinking water continue to increase, the research on slightly polluted water sources is also on the agenda. Now the treatment of slightly polluted water sources is mostly a combination of biotechnology and advanced treatment technology. The essence of water source water biological treatment technology is to remove biodegradable organic substances including humic acid in source water through microbial degradation, and to remove refractory biodegradable substances in water through advanced treatment. The development of various combined technologies is very effective for the removal of some refractory organic substances. Through efficient oxidation, most of the organic substances in water are removed, and the mutagenic activity of drinking water is effectively reduced. However, these methods and equipment are relatively complicated, and the requirements for operation and operating conditions are relatively high, especially the cost problem seriously restricts their popularization and use.
光催化技术具有降解无选择性的特点,被广泛用来降解难降解有机物,但是处理成本较高。生物法处理污水是目前最为常见的污水处理技术,具有成本低的特点,但是由于微生物的降解具有选择性,使得部分难生物降解的物质得不到处理而排入环境中,影响人类的健康和生存的环境。将两种方法组合起来,对于微污染水源废水的处理能达到较好的效果。Photocatalytic technology has the characteristics of non-selective degradation, and is widely used to degrade refractory organics, but the treatment cost is high. Biological treatment of sewage is the most common sewage treatment technology at present. It has the characteristics of low cost. However, due to the selective degradation of microorganisms, some refractory biodegradable substances are not treated and discharged into the environment, which affects human health and well-being. Survival environment. Combining the two methods can achieve better results for the treatment of slightly polluted water source wastewater.
实用新型内容 Utility model content
本实用新型所要解决的技术问题是:提供一种悬浮光催化生物处理设备,可解决现有微污染水源水处理方法所存在的技术问题,可改善水处理效果,提高难降解的有机废水的处理效率,减少占地,降低处理成本。The technical problem to be solved by the utility model is: to provide a suspended photocatalytic biological treatment equipment, which can solve the technical problems existing in the existing micro-polluted water source water treatment method, can improve the water treatment effect, and improve the treatment of refractory organic wastewater Efficiency, less land occupation, lower processing costs.
为解决上述技术问题,本实用新型采用如下技术方案:In order to solve the above technical problems, the utility model adopts the following technical solutions:
一种悬浮光催化生物处理设备,所述处理设备包括:壳体以及设置于壳体内的光处理系统、生物系统;A suspended photocatalytic biological treatment device, the treatment device includes: a housing, a light treatment system and a biological system arranged in the housing;
所述壳体包括内侧的光处理区、外侧的生物区,光处理区内设有光处理系统,生物区内设有生物系统;The housing includes an inner light treatment area and an outer biological area, the light treatment area is provided with a light treatment system, and the biological area is provided with a biological system;
所述生物系统设置于光处理系统的外部,通过隔板层隔开;The biological system is arranged outside the light processing system and separated by a partition layer;
所述生物区填有填料,生物区的底部连有入水口,并设有曝气装置;The biological area is filled with filler, the bottom of the biological area is connected with a water inlet, and an aeration device is provided;
所述光处理区上下分别安装电磁板,内部填充光磁性填料,光处理区外壁安装有紫外灯管;光处理区底部设有出水口。Electromagnetic plates are installed on the upper and lower sides of the light treatment area, and the interior is filled with optical magnetic fillers. Ultraviolet lamp tubes are installed on the outer wall of the light treatment area; a water outlet is provided at the bottom of the light treatment area.
作为本实用新型的一种优选方案,所述隔板层包括若干不锈钢隔板或具有反光性能的塑料隔板。As a preferred solution of the utility model, the partition layer includes several stainless steel partitions or plastic partitions with reflective performance.
作为本实用新型的一种优选方案,所述光磁性填料为光催化磁性填料。As a preferred solution of the present invention, the photomagnetic filler is a photocatalytic magnetic filler.
作为本实用新型的一种优选方案,所述处理设备的外部为光催化区,采用光催化磁性填料。所述光催化磁性填料为负载有二氧化钛的具有磁性的填料,在载体成型前加入磁性物质,后将二氧化钛负载与磁性填料表面。As a preferred solution of the utility model, the exterior of the processing equipment is a photocatalytic zone, and photocatalytic magnetic fillers are used. The photocatalytic magnetic filler is a magnetic filler loaded with titanium dioxide, and a magnetic substance is added before the carrier is formed, and then the titanium dioxide is loaded on the surface of the magnetic filler.
作为本实用新型的一种优选方案,所述处理设备的外部为生物降解区,采用生物填料。所述生物填料为固定填料或悬浮填料。所述的固定填料为软性纤维填料、立式弹性填料或综合填料;所述的悬浮填料为悬浮球填料或多空泡沫塑料方块填料。As a preferred solution of the present utility model, the exterior of the treatment equipment is a biodegradation area, and biological fillers are used. The biological filler is a fixed filler or a suspended filler. The fixed filler is soft fiber filler, vertical elastic filler or composite filler; the suspended filler is suspended ball filler or porous foam square filler.
与现有技术相比,本实用新型提出的悬浮光催化生物处理设备的有益效果在于:Compared with the prior art, the beneficial effect of the suspended photocatalytic biological treatment equipment proposed by the utility model lies in:
1、本实用新型在悬浮光催化生物处理设备下,可以实现光催化氧化与生物处理的协同作用,改善水的处理效果。1. Under the suspended photocatalytic biological treatment equipment, the utility model can realize the synergistic effect of photocatalytic oxidation and biological treatment, and improve the treatment effect of water.
2、本实用新型的污水处理工艺适宜与其它水处理工艺相结合,能够达到良好的处理效果。2. The sewage treatment process of the utility model is suitable to be combined with other water treatment processes to achieve a good treatment effect.
3、本实用新型的处理工艺的处理效果稳定,运行可靠,出水水质可以达到较高标准的要求。3. The treatment process of the utility model has stable treatment effect and reliable operation, and the effluent water quality can meet the requirements of higher standards.
附图说明 Description of drawings
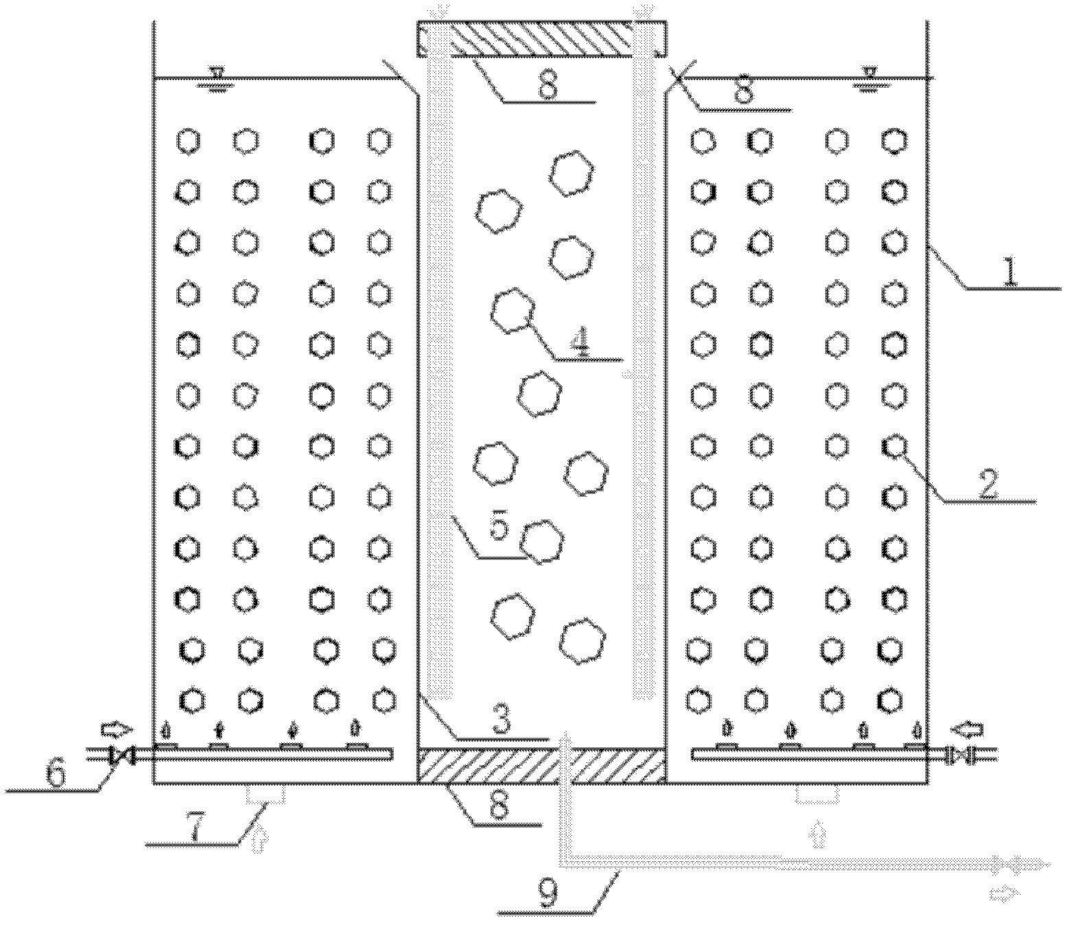
图1是本实用新型悬浮光催化生物处理设备的剖面示意图;Fig. 1 is the sectional schematic diagram of the suspended photocatalytic biological treatment equipment of the utility model;
图2是本实用新型悬浮光催化生物处理设备的平面图。Fig. 2 is a plane view of the suspended photocatalytic biological treatment equipment of the utility model.
具体实施方式 Detailed ways
下面结合附图详细说明本实用新型的优选实施例。Preferred embodiments of the present utility model will be described in detail below in conjunction with the accompanying drawings.
实施例一Embodiment one
请参阅图1、2,本实用新型公开了一种悬浮光催化生物处理设备。如图所示所述的处理设备包括壳体1,壳体1为不锈钢或钢筋混凝土结构。整个设备主要由两大处理系统组成:外部的生物系统和内部的光催化系统。Referring to Figures 1 and 2, the utility model discloses a suspended photocatalytic biological treatment device. As shown in the figure, the processing equipment includes a shell 1, and the shell 1 is a stainless steel or reinforced concrete structure. The whole device is mainly composed of two processing systems: the external biological system and the internal photocatalytic system.
所述壳体1包括内侧的光处理区、外侧的生物区,光处理区内设有光处理系统,生物区内设有生物系统。生物区填有填料2,底部安装有曝气装置6,水流从底部进水管7进入,光处理区上下部分别安装电磁板8,内部填充光磁性填料4,光处理区外壁安装有紫外灯管5。光处理系统与生物系统间安装隔板3;所述隔板3由不锈钢或具有反光性能的塑料组成。The housing 1 includes a light treatment area inside and a biological area outside. The light treatment area is provided with a light treatment system, and the biological area is provided with a biological system. The biological area is filled with filler 2, the bottom is equipped with an aeration device 6, the water flow enters from the bottom water inlet pipe 7, the upper and lower parts of the light treatment area are respectively installed with electromagnetic plates 8, the interior is filled with optical magnetic filler 4, and the outer wall of the light treatment area is equipped with ultraviolet lamps 5. A partition 3 is installed between the light processing system and the biological system; the partition 3 is made of stainless steel or plastic with reflective properties.
所述处理设备的外部为光催化区,采用光催化磁性填料4。本实施例中,所述光催化磁性填料为负载有二氧化钛的具有磁性的填料,在载体成型前加入磁性物质,后将二氧化钛负载与磁性填料表面。The outside of the processing equipment is a photocatalytic zone, using photocatalytic magnetic fillers 4 . In this embodiment, the photocatalytic magnetic filler is a magnetic filler loaded with titanium dioxide, and the magnetic substance is added before the carrier is formed, and then the titanium dioxide is loaded on the surface of the magnetic filler.
所述处理设备的外部为生物降解区,采用生物填料5。本实施例中,所述生物填料为固定填料或悬浮填料。所述的固定填料为软性纤维填料、立式弹性填料或综合填料;所述的悬浮填料为悬浮球填料或多空泡沫塑料方块填料。The outside of the processing equipment is a biodegradation zone, using biological fillers 5 . In this embodiment, the biological filler is a fixed filler or a suspended filler. The fixed filler is soft fiber filler, vertical elastic filler or composite filler; the suspended filler is suspended ball filler or porous foam square filler.
污水先流入生物区,污染物得到很大程度的去除,后流入光催化区进行深度处理,而后经光催化区底部的出水管9流出。The sewage first flows into the biological zone, and the pollutants are removed to a large extent, then flows into the photocatalytic zone for advanced treatment, and then flows out through the water outlet pipe 9 at the bottom of the photocatalytic zone.
综上所述,本实用新型提出的悬浮光催化生物处理设备,保证了光催化与生物作用同时进行,同时紫外光区又能起到杀菌作用,解决了现有的水处理技术仅能去除部分污染物且处理成本高、处理效果差的问题,提高了处理效率,降低了处理成本。In summary, the suspended photocatalytic biological treatment equipment proposed by the utility model ensures that the photocatalytic and biological effects are carried out simultaneously, and at the same time, the ultraviolet light region can also play a bactericidal effect, which solves the problem that the existing water treatment technology can only remove some Pollutants with high treatment costs and poor treatment effects have improved treatment efficiency and reduced treatment costs.
这里本实用新型的描述和应用是说明性的,并非想将本实用新型的范围限制在上述实施例中。这里所披露的实施例的变形和改变是可能的,对于那些本领域的普通技术人员来说实施例的替换和等效的各种部件是公知的。本领域技术人员应该清楚的是,在不脱离本实用新型的精神或本质特征的情况下,本实用新型可以以其它形式、结构、布置、比例,以及用其它组件、材料和部件来实现。在不脱离本实用新型范围和精神的情况下,可以对这里所披露的实施例进行其它变形和改变。The description and application of the present invention here are illustrative, and are not intended to limit the scope of the present invention to the above-mentioned embodiments. Variations and changes to the embodiments disclosed herein are possible, and substitutions and equivalents for various components of the embodiments are known to those of ordinary skill in the art. It should be clear to those skilled in the art that, without departing from the spirit or essential characteristics of the present invention, the present invention can be realized in other forms, structures, arrangements, proportions, and with other components, materials and components. Other modifications and changes may be made to the embodiments disclosed herein without departing from the scope and spirit of the invention.
Claims (3)
Priority Applications (1)
| Application Number | Priority Date | Filing Date | Title |
|---|---|---|---|
| CN2011204189673U CN202284174U (en) | 2011-10-28 | 2011-10-28 | Suspension photocatalytic biological treatment equipment |
Applications Claiming Priority (1)
| Application Number | Priority Date | Filing Date | Title |
|---|---|---|---|
| CN2011204189673U CN202284174U (en) | 2011-10-28 | 2011-10-28 | Suspension photocatalytic biological treatment equipment |
Publications (1)
| Publication Number | Publication Date |
|---|---|
| CN202284174U true CN202284174U (en) | 2012-06-27 |
Family
ID=46295702
Family Applications (1)
| Application Number | Title | Priority Date | Filing Date |
|---|---|---|---|
| CN2011204189673U Expired - Fee Related CN202284174U (en) | 2011-10-28 | 2011-10-28 | Suspension photocatalytic biological treatment equipment |
Country Status (1)
| Country | Link |
|---|---|
| CN (1) | CN202284174U (en) |
Cited By (5)
| Publication number | Priority date | Publication date | Assignee | Title |
|---|---|---|---|---|
| CN104030531A (en) * | 2014-06-23 | 2014-09-10 | 上海理工大学 | Photoelectric composite biological treatment method and reactor for photoelectric composite biological treatment method |
| CN104649365A (en) * | 2015-01-28 | 2015-05-27 | 河海大学 | TiO2/Foam Concrete Plate Serpentine Sewage UV Disinfection Device |
| CN104773904A (en) * | 2015-03-20 | 2015-07-15 | 河海大学 | City sewage plant advanced treatment device |
| CN106219889A (en) * | 2016-08-29 | 2016-12-14 | 河海大学 | A kind of biological cleaning and photocatalysis coupled sewage-treatment plant |
| CN112158995A (en) * | 2020-09-29 | 2021-01-01 | 上海京明环境科技有限公司 | Magnetic suspension organic wastewater treatment equipment and method |
-
2011
- 2011-10-28 CN CN2011204189673U patent/CN202284174U/en not_active Expired - Fee Related
Cited By (5)
| Publication number | Priority date | Publication date | Assignee | Title |
|---|---|---|---|---|
| CN104030531A (en) * | 2014-06-23 | 2014-09-10 | 上海理工大学 | Photoelectric composite biological treatment method and reactor for photoelectric composite biological treatment method |
| CN104649365A (en) * | 2015-01-28 | 2015-05-27 | 河海大学 | TiO2/Foam Concrete Plate Serpentine Sewage UV Disinfection Device |
| CN104773904A (en) * | 2015-03-20 | 2015-07-15 | 河海大学 | City sewage plant advanced treatment device |
| CN106219889A (en) * | 2016-08-29 | 2016-12-14 | 河海大学 | A kind of biological cleaning and photocatalysis coupled sewage-treatment plant |
| CN112158995A (en) * | 2020-09-29 | 2021-01-01 | 上海京明环境科技有限公司 | Magnetic suspension organic wastewater treatment equipment and method |
Similar Documents
| Publication | Publication Date | Title |
|---|---|---|
| CN104351106B (en) | A kind of system improving aquaculture system water quality | |
| CN103478065B (en) | Aquiculture waste water circulating treatment system | |
| CN202284174U (en) | Suspension photocatalytic biological treatment equipment | |
| CN103332828A (en) | Energy-saving efficient circulation water cultivation method | |
| CN203575359U (en) | Aquaculture waste water circulation processing system | |
| CN204675957U (en) | Integrated sewage treating apparatus | |
| CN104528921A (en) | Biological cleaning device for high-ammonia-nitrogen cultivation biogas slurry | |
| CN203112655U (en) | Dispersive MBR (Membrane Bioreactor) water neutralizer | |
| CN204873956U (en) | High concentration difficult degradation organic waste water's little electrolysis equipment of indisputable carbon is handled to improved generation | |
| CN204211537U (en) | The double oxygen MBR membrane bioreactor of integration | |
| CN203582653U (en) | Livestock/fowl culture wastewater treatment system | |
| CN101891300B (en) | Photocatalytic-bioreactor for sewage treatment | |
| CN104291444A (en) | System and method for treatment of contact hydrolysis-algae micro-aeration composite wastewater | |
| CN204529457U (en) | A kind of biological fluidized bed | |
| CN204550204U (en) | Sanitary sewage one-body simplified formula treatment facility | |
| CN202089862U (en) | MBR integrated sewage treatment equipment | |
| CN205294956U (en) | Anaerobic reactor and breed effluent disposal system | |
| CN204607809U (en) | Membrane biological reaction pond | |
| CN105936567B (en) | A kind of OMBR integrated sewage treatment recycling devices | |
| CN204737779U (en) | Microorganism flocculation suspension effluent treatment plant | |
| CN204224384U (en) | Integral type high-concentration hardly-degradable organic industrial sewage treatment unit | |
| CN205420082U (en) | Marine sewage treatment system | |
| CN204434348U (en) | The biological purification plant of a kind of high ammonia nitrogen cultivation natural pond liquid | |
| CN204237682U (en) | Biological synchronous carbon-reducing nitrogen-removing sulfur-removing treatment system | |
| CN204138380U (en) | A kind of photocatalysis treatment device |
Legal Events
| Date | Code | Title | Description |
|---|---|---|---|
| C14 | Grant of patent or utility model | ||
| GR01 | Patent grant | ||
| C17 | Cessation of patent right | ||
| CF01 | Termination of patent right due to non-payment of annual fee |
Granted publication date: 20120627 Termination date: 20121028 |
