CN202081452U - Rainwater collecting and utilizing system - Google Patents
Rainwater collecting and utilizing system Download PDFInfo
- Publication number
- CN202081452U CN202081452U CN2011200901669U CN201120090166U CN202081452U CN 202081452 U CN202081452 U CN 202081452U CN 2011200901669 U CN2011200901669 U CN 2011200901669U CN 201120090166 U CN201120090166 U CN 201120090166U CN 202081452 U CN202081452 U CN 202081452U
- Authority
- CN
- China
- Prior art keywords
- rainwater
- water
- communicates
- utility
- model
- Prior art date
- Legal status (The legal status is an assumption and is not a legal conclusion. Google has not performed a legal analysis and makes no representation as to the accuracy of the status listed.)
- Expired - Lifetime
Links
- XLYOFNOQVPJJNP-UHFFFAOYSA-N water Substances O XLYOFNOQVPJJNP-UHFFFAOYSA-N 0.000 claims abstract description 62
- 238000004140 cleaning Methods 0.000 abstract description 15
- 241001310793 Podium Species 0.000 abstract description 5
- 238000000034 method Methods 0.000 description 4
- 238000010586 diagram Methods 0.000 description 2
- 230000007613 environmental effect Effects 0.000 description 2
- 239000003344 environmental pollutant Substances 0.000 description 2
- 231100000719 pollutant Toxicity 0.000 description 2
- 230000000694 effects Effects 0.000 description 1
- 238000003306 harvesting Methods 0.000 description 1
- 239000012535 impurity Substances 0.000 description 1
- 239000000463 material Substances 0.000 description 1
- 238000001556 precipitation Methods 0.000 description 1
- 238000000746 purification Methods 0.000 description 1
- 238000009991 scouring Methods 0.000 description 1
- 230000009897 systematic effect Effects 0.000 description 1
- 230000009466 transformation Effects 0.000 description 1
Classifications
-
- Y—GENERAL TAGGING OF NEW TECHNOLOGICAL DEVELOPMENTS; GENERAL TAGGING OF CROSS-SECTIONAL TECHNOLOGIES SPANNING OVER SEVERAL SECTIONS OF THE IPC; TECHNICAL SUBJECTS COVERED BY FORMER USPC CROSS-REFERENCE ART COLLECTIONS [XRACs] AND DIGESTS
- Y02—TECHNOLOGIES OR APPLICATIONS FOR MITIGATION OR ADAPTATION AGAINST CLIMATE CHANGE
- Y02A—TECHNOLOGIES FOR ADAPTATION TO CLIMATE CHANGE
- Y02A20/00—Water conservation; Efficient water supply; Efficient water use
- Y02A20/108—Rainwater harvesting
Landscapes
- Sanitary Device For Flush Toilet (AREA)
Abstract
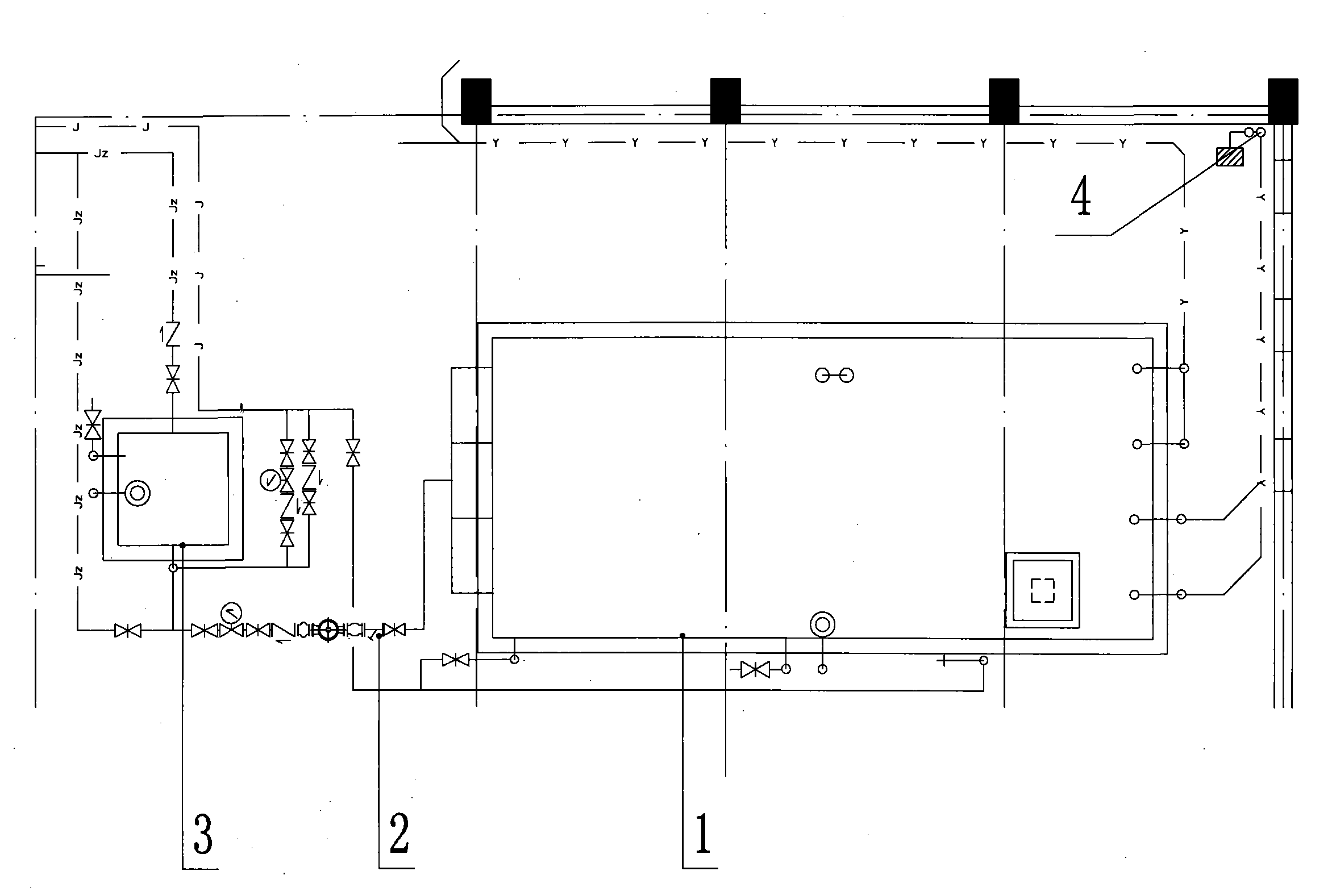
本实用新型是一种雨水收集利用系统。包括有雨水收集池(1)、自动清洗水过滤器(2)、清水池(3)、雨水弃流装置(4),其中用于收集屋面雨水的雨水弃流装置(4)设在裙楼屋面上,雨水弃流装置(4)的出水口与雨水收集池(1)的进水口相通,雨水收集池(1)的出水口与自动清洗水过滤器(2)的进水口相通,自动清洗水过滤器(2)的出水口与清水池(3)的进水口相通。本实用新型是一种结构简单,成本低,使用方便的雨水收集利用系统。
The utility model relates to a rainwater collection and utilization system. It includes a rainwater collection tank (1), an automatic cleaning water filter (2), a clear water tank (3), and a rainwater disposal device (4), among which the rainwater disposal device (4) for collecting roof rainwater is located in the podium On the roof, the water outlet of the rainwater discarding device (4) communicates with the water inlet of the rainwater collection tank (1), and the water outlet of the rainwater collection tank (1) communicates with the water inlet of the automatic cleaning water filter (2) for automatic cleaning. The water outlet of the water filter (2) communicates with the water inlet of the clear water pool (3). The utility model is a rainwater collection and utilization system with simple structure, low cost and convenient use.
Description
技术领域 technical field
本实用新型是一种雨水收集利用系统,属于雨水收集利用系统的改造技术。 The utility model relates to a rainwater collection and utilization system, which belongs to the transformation technology of the rainwater collection and utilization system. the
背景技术 Background technique
雨水利用是水资源综合利用中的一个新的系统工程,具有良好的节水效能和环境生态效益。目前我国城市缺水问题日益严重,与此同时,健康住宅、生态小区、绿色公共建筑正迅猛发展,建筑雨水利用系统以其良好的节水效益和环境生态效益适应了城市的现状与需求,具有广阔的应用前景。但现有的建筑都没有设置雨水收集利用系统。 Rainwater utilization is a new systematic project in the comprehensive utilization of water resources, which has good water-saving efficiency and environmental ecological benefits. At present, the problem of water shortage in my country's cities is becoming more and more serious. At the same time, healthy housing, ecological communities, and green public buildings are developing rapidly. The building rainwater utilization system adapts to the current situation and needs of the city with its good water-saving benefits and environmental ecological benefits. Broad application prospects. But the existing buildings are not equipped with rainwater harvesting and utilization systems. the
实用新型内容 Utility model content
本实用新型的目的在于考虑上述问题而提供一种结构简单,成本低,使用方便的雨水收集利用系统。 The purpose of the utility model is to provide a rainwater collection and utilization system with simple structure, low cost and convenient use in consideration of the above problems. the
本实用新型的技术方案是:本实用新型的雨水收集利用系统,包括有雨水收集池、自动清洗水过滤器、清水池、雨水弃流装置,其中用于收集屋面雨水的雨水弃流装置设在裙楼屋面上,雨水弃流装置的出水口与雨水收集池的进水口相通,雨水收集池的出水口与自动清洗水过滤器的进水口相通,自动清洗水过滤器的出水口与清水池的进水口相通。 The technical scheme of the utility model is: the rainwater collection and utilization system of the utility model includes a rainwater collection pool, an automatic cleaning water filter, a clear water pool, and a rainwater disposal device, wherein the rainwater disposal device for collecting roof rainwater is located in the On the podium roof, the outlet of the rainwater discarding device is connected to the inlet of the rainwater collection tank, the outlet of the rainwater collection tank is connected to the inlet of the automatic cleaning water filter, and the outlet of the automatic cleaning water filter is connected to the water inlet of the clear water tank The water inlets are connected. the
本实用新型由于采用包括有雨水收集池、自动清洗水过滤器、清水池、雨水弃流装置,其中用于收集屋面雨水的雨水弃流装置设在裙楼屋面上,雨水弃流装置的出水口与雨水收集池的进水口相通,雨水 收集池的出水口与自动清洗水过滤器的进水口相通,自动清洗水过滤器的出水口与清水池的进水口相通的结构,因此,本实用新型结构简单,成本低,使用方便,是一种设计巧妙,性能优良,方便实用的雨水收集利用系统。 The utility model includes a rainwater collection pool, an automatic cleaning water filter, a clear water pool, and a rainwater disposal device, wherein the rainwater disposal device for collecting roof rainwater is arranged on the roof of the podium, and the outlet of the rainwater disposal device It communicates with the water inlet of the rainwater collection tank, the water outlet of the rainwater collection tank communicates with the water inlet of the automatic cleaning water filter, and the structure that the water outlet of the automatic cleaning water filter communicates with the water inlet of the clear water tank, therefore, the structure of the utility model The utility model has the advantages of simplicity, low cost and convenient use, and is a convenient and practical rainwater collection and utilization system with ingenious design and excellent performance. the
附图说明 Description of drawings
图1为本实用新型的原理图。 Fig. 1 is a schematic diagram of the utility model. the
具体实施方式 Detailed ways
实施例: Example:
本实用新型的原理图如图1所示,本实用新型的雨水收集利用系统,包括有雨水收集池1、自动清洗水过滤器2、清水池3、雨水弃流装置4,其中用于收集屋面雨水的雨水弃流装置4设在裙楼屋面上,雨水弃流装置4的出水口与雨水收集池1的进水口相通,雨水收集池1的出水口与自动清洗水过滤器2的进水口相通,自动清洗水过滤器2的出水口与清水池3的进水口相通。 The principle diagram of the utility model is shown in Figure 1. The rainwater collection and utilization system of the present utility model includes a rainwater collection pool 1, an automatic cleaning water filter 2, a clear water pool 3, and a rainwater discarding device 4, which are used to collect roof The rainwater discarding flow device 4 of rainwater is arranged on the podium roof, and the outlet of the rainwater discarding device 4 communicates with the water inlet of the rainwater collection tank 1, and the water outlet of the rainwater collection tank 1 communicates with the water inlet of the automatic cleaning water filter 2 , the water outlet of the automatic cleaning water filter 2 communicates with the water inlet of the clear water pool 3. the
上述自动清洗水过滤器2是利用自身过滤出来的清水通过内部压差自清洗过滤网。 The above-mentioned self-cleaning water filter 2 utilizes the clear water filtered out by itself to self-clean the filter screen through the internal pressure difference. the
本实施例中,上述雨水弃流装置4通过屋面单边设置的雨水边沟收集雨水。 In this embodiment, the above-mentioned rainwater discarding device 4 collects rainwater through the rainwater gutter provided on one side of the roof. the
本实用新型的工作原理如下:初期屋面雨水流经雨水弃流装置4弃流后排入雨水收集池1,雨水在雨水收集池1内收集沉淀后,再经自动清洗水过滤器2进一步过滤杂质,自动清洗水过滤器2是利用自身过滤的出来的清水通过内部压差自清洗过滤网,不需要任何外部能源。雨水经过滤后进入雨水清水池3储存。 The working principle of the utility model is as follows: the initial roof rainwater flows through the rainwater abandonment device 4 and then is discharged into the rainwater collection tank 1. After the rainwater is collected and precipitated in the rainwater collection tank 1, impurities are further filtered through the automatic cleaning water filter 2. , The self-cleaning water filter 2 uses the clear water filtered by itself to self-clean the filter screen through the internal pressure difference, without any external energy. After the rainwater is filtered, it enters the rainwater clear water pool 3 for storage. the
天然雨水的有机物污染少,硬度低,但由于平时的自然尘降,降落到屋面所形成的初期雨水还是具有一定的污染性。雨水径流具有 明显的冲刷性作用,即在多数情况下,污染物是集中在初期的数毫米雨量中。控制初期雨水可有效的控制每场降雨径流中的大部分污染物,本实用新型初期雨水控制方法采用自控式初期雨水弃流装置。自控弃流装置,具有自动切换雨水弃流管道和收集管道的功能并具有控制和调节弃流间隔时间的功能,雨季频繁时可自动延长初期雨水弃流间隔时间,可通过法兰直接与管道连接,安装方便,设备体积小,节省空间。本实用新型如果用于雨季降雨较频繁的地区,收集的雨水水质较好,且本实用新型设计的雨水回用系统的用水项目只为绿化浇洒,对水质要求较低,另外,考虑降雨随机性较大,回收水源不稳定,为避免雨水的水质净化设施的经常性闲置,所以本实用新型采用较为简单的处理工艺:雨水经初期弃流后进入收集池沉淀,再经过过滤器进入清水池内储存。由于本雨水收集回用装置是在裙楼天面集中设置,同时给水系统可相应采用上行下给的方式,本实用新型系统即可满足首层室外的绿化用水水压要求,无需另设给水增压设备降低了设备的投资并使系统更加节能。由于利用了本实用新型的雨水收集系统,天面采用单坡排水,并通过单边设置的雨水边沟收集雨水,减少了雨水立管及悬呆管,节省了管材。 Natural rainwater has less organic pollution and low hardness, but due to the usual natural dustfall, the initial rainwater formed by falling on the roof is still polluting to a certain extent. Rainwater runoff has an obvious scouring effect, that is, in most cases, pollutants are concentrated in the initial few millimeters of rainfall. Controlling the initial rainwater can effectively control most of the pollutants in each rainfall runoff. The utility model adopts a self-controlled initial rainwater abandonment device in the initial rainwater control method. The self-control abandonment device has the function of automatically switching the rainwater abandonment pipe and the collection pipe, and has the function of controlling and adjusting the interval time of the abandonment flow. When the rainy season is frequent, the interval time of the initial rainwater abandonment flow can be automatically extended, and it can be directly connected to the pipe through the flange. , Easy to install, small in size, saving space. If the utility model is used in areas with frequent rainfall in the rainy season, the quality of the collected rainwater is better, and the water project of the rainwater reuse system designed by the utility model is only for greening and sprinkling, which has lower requirements on water quality. In addition, considering the random rainfall In order to avoid frequent idleness of rainwater purification facilities, the utility model adopts a relatively simple treatment process: the rainwater enters the collection pool for precipitation after being discarded at the initial stage, and then enters the clear water pool through the filter store. Since the rainwater collection and reuse device is centrally installed on the sky of the podium, and the water supply system can adopt the method of upward and downward supply, the system of the utility model can meet the water pressure requirements of the outdoor greening water on the first floor without additional water supply booster. Pressure equipment reduces equipment investment and makes the system more energy-efficient. Due to the use of the rainwater collection system of the utility model, the sky surface adopts a single slope for drainage, and the rainwater is collected through the rainwater side ditch arranged on one side, which reduces the rainwater standpipes and suspended pipes, and saves pipe materials. the
Claims (1)
Priority Applications (1)
| Application Number | Priority Date | Filing Date | Title |
|---|---|---|---|
| CN2011200901669U CN202081452U (en) | 2011-03-30 | 2011-03-30 | Rainwater collecting and utilizing system |
Applications Claiming Priority (1)
| Application Number | Priority Date | Filing Date | Title |
|---|---|---|---|
| CN2011200901669U CN202081452U (en) | 2011-03-30 | 2011-03-30 | Rainwater collecting and utilizing system |
Publications (1)
| Publication Number | Publication Date |
|---|---|
| CN202081452U true CN202081452U (en) | 2011-12-21 |
Family
ID=45342090
Family Applications (1)
| Application Number | Title | Priority Date | Filing Date |
|---|---|---|---|
| CN2011200901669U Expired - Lifetime CN202081452U (en) | 2011-03-30 | 2011-03-30 | Rainwater collecting and utilizing system |
Country Status (1)
| Country | Link |
|---|---|
| CN (1) | CN202081452U (en) |
Cited By (2)
| Publication number | Priority date | Publication date | Assignee | Title |
|---|---|---|---|---|
| CN102936911A (en) * | 2012-11-27 | 2013-02-20 | 重庆大学 | Podium building rainwater collecting and utilizing system |
| CN103628559A (en) * | 2012-08-30 | 2014-03-12 | 昆山开思拓节能技术有限公司 | Novel rainwater energy saving device for domestic use |
-
2011
- 2011-03-30 CN CN2011200901669U patent/CN202081452U/en not_active Expired - Lifetime
Cited By (3)
| Publication number | Priority date | Publication date | Assignee | Title |
|---|---|---|---|---|
| CN103628559A (en) * | 2012-08-30 | 2014-03-12 | 昆山开思拓节能技术有限公司 | Novel rainwater energy saving device for domestic use |
| CN102936911A (en) * | 2012-11-27 | 2013-02-20 | 重庆大学 | Podium building rainwater collecting and utilizing system |
| CN102936911B (en) * | 2012-11-27 | 2014-05-07 | 重庆大学 | Podium building rainwater collecting and utilizing system |
Similar Documents
| Publication | Publication Date | Title |
|---|---|---|
| CN202000395U (en) | Initial rain discarded flow amount-adjustable water tank | |
| CN201276718Y (en) | Rainwater collecting and recycling system on building roofing | |
| CN201981573U (en) | Early-stage rainfall collecting device | |
| CN204601899U (en) | The dust-proof control system in a kind of job site | |
| CN201981576U (en) | Rainwater collection and utilization system for multi-floor building | |
| CN202337994U (en) | Water-saving natural rainwater resource collection and treatment device | |
| CN205024802U (en) | Energy -saving rainwater recycling system | |
| CN202850095U (en) | Initial rainwater collecting and utilizing device | |
| CN202081452U (en) | Rainwater collecting and utilizing system | |
| CN1920192A (en) | Method for collecting and utilizing rain water | |
| CN107435353A (en) | A kind of roof rainwater collection utilizes system | |
| CN104294880A (en) | Roof rainwater recycling device of environment-friendly building | |
| CN203129246U (en) | Ground storage type water cleaning water cellar system | |
| CN111424892A (en) | A rainwater collection and utilization device on the roof of a building | |
| CN205604431U (en) | Purifier is collected to rainwater | |
| CN102155036A (en) | Engineering rainfall or rainwater recycling system | |
| CN211935706U (en) | Rainwater wastewater collecting and recycling device | |
| CN104074233A (en) | Multifunctional ecological type outdoor water storing device | |
| CN212200556U (en) | A rainwater collection and purification device | |
| CN201908331U (en) | Device for recycling rainwater of factory building | |
| CN202577448U (en) | Rainy water collecting device for curtain wall roof | |
| CN201684491U (en) | Reclaimed water recycling device | |
| CN201574434U (en) | Rainwater recycling device | |
| CN202577447U (en) | Curtain wall equipment layer rainwater collection device | |
| CN201099878Y (en) | A house rainwater recycling system |
Legal Events
| Date | Code | Title | Description |
|---|---|---|---|
| C14 | Grant of patent or utility model | ||
| GR01 | Patent grant | ||
| CX01 | Expiry of patent term | ||
| CX01 | Expiry of patent term |
Granted publication date: 20111221 |
