CN115978782A - 一种防爆防尘通风设备 - Google Patents
一种防爆防尘通风设备 Download PDFInfo
- Publication number
- CN115978782A CN115978782A CN202310083297.1A CN202310083297A CN115978782A CN 115978782 A CN115978782 A CN 115978782A CN 202310083297 A CN202310083297 A CN 202310083297A CN 115978782 A CN115978782 A CN 115978782A
- Authority
- CN
- China
- Prior art keywords
- fixedly connected
- wall
- explosion
- proof
- plate
- Prior art date
- Legal status (The legal status is an assumption and is not a legal conclusion. Google has not performed a legal analysis and makes no representation as to the accuracy of the status listed.)
- Withdrawn
Links
- 238000009423 ventilation Methods 0.000 title claims abstract description 40
- XLYOFNOQVPJJNP-UHFFFAOYSA-N water Substances O XLYOFNOQVPJJNP-UHFFFAOYSA-N 0.000 claims abstract description 42
- 239000000428 dust Substances 0.000 claims abstract description 30
- 238000003756 stirring Methods 0.000 claims abstract description 20
- 230000007246 mechanism Effects 0.000 claims abstract description 14
- 230000018044 dehydration Effects 0.000 claims abstract description 7
- 238000006297 dehydration reaction Methods 0.000 claims abstract description 7
- 235000017166 Bambusa arundinacea Nutrition 0.000 claims 3
- 235000017491 Bambusa tulda Nutrition 0.000 claims 3
- 241001330002 Bambuseae Species 0.000 claims 3
- 235000015334 Phyllostachys viridis Nutrition 0.000 claims 3
- 239000011425 bamboo Substances 0.000 claims 3
- 210000003437 trachea Anatomy 0.000 claims 2
- 230000000694 effects Effects 0.000 abstract description 7
- 239000007921 spray Substances 0.000 abstract description 4
- 230000009467 reduction Effects 0.000 abstract description 3
- 238000004880 explosion Methods 0.000 description 9
- 238000010586 diagram Methods 0.000 description 5
- 238000005516 engineering process Methods 0.000 description 4
- 239000000243 solution Substances 0.000 description 4
- 230000002745 absorbent Effects 0.000 description 3
- 239000002250 absorbent Substances 0.000 description 3
- 230000009471 action Effects 0.000 description 3
- 238000005507 spraying Methods 0.000 description 2
- 238000009825 accumulation Methods 0.000 description 1
- 230000009286 beneficial effect Effects 0.000 description 1
- 230000006872 improvement Effects 0.000 description 1
- 238000002347 injection Methods 0.000 description 1
- 239000007924 injection Substances 0.000 description 1
- 239000007788 liquid Substances 0.000 description 1
- 238000000034 method Methods 0.000 description 1
- 230000004048 modification Effects 0.000 description 1
- 238000012986 modification Methods 0.000 description 1
Images
Landscapes
- Separating Particles In Gases By Inertia (AREA)
Abstract
本发明公开了一种防爆防尘通风设备,包括处理箱、防爆机构和脱水机构,所述处理箱的内壁上固定连接有直筒,所述直筒的内壁上固定连接有过滤网板,所述过滤网板的上端面固定连接有减速电机,所述减速电机的输出端贯穿过滤网板并固定连接有蜗杆,所述蜗杆的下端固定连接有竖杆,所述直筒的内壁上固定连接有水箱。本发明中,地下空气可以通过通风管和连接管进入到气管中,并通过喷头排入到水箱中,然后通过减速电机、蜗杆和竖杆可以带动搅拌叶转动,搅拌叶会对水进行搅拌,从而使地下空气与水充分混合,去除地下空气中的灰尘,地下空气继续向上移动,经过过滤网板时,会进一步去除地下空气中的灰尘,从而提高了去除灰尘的效果。
Description
技术领域
本发明涉及通风设备技术领域,尤其涉及一种防爆防尘通风设备。
背景技术
地下工程是指深入地面以下为开发利用地下空间资源所建造的土木工程。它包括地下房屋和地下构筑物,地下铁道,公路隧道、水下隧道、地下共同沟和过街地下通道等,现有技术中对于地下工程的通风仅是对空气的交换,当地下空气被风机集中抽入到通风管道内,地下空气中的瓦斯浓度在通风管道内会逐步上升,当达到瓦斯爆炸浓度限值时,会有瓦斯爆炸的危险,并且在地下空气中含有大量粉尘,直接排出污染外界空气,直接喷淋沉降,若不及时清理,也会污染到通风设备,使通风设备的使用寿命降低,而且在瓦斯浓度突然上升到瓦斯爆炸浓度限值时,无快速应变的能力。
针对上述问题,现有公开号为CN114592897A的专利公开了一种地下工程用防爆防尘通风设备。技术问题为:地下空气中的瓦斯浓度在通风管道内会逐步上升,当达到瓦斯爆炸浓度限值时,会有瓦斯爆炸的危险,并且地下空气中的粉尘在沉降后不及时处理,会污染设备。技术方案为:一种地下工程用防爆防尘通风设备,包括有转接管和风机等;转接管右侧连通有风机。该发明实现将带有瓦斯的空气间歇性灌入到封闭空间内,之后将瓦斯点燃,从而减低地下空气中瓦斯的浓度,并且不会让大量瓦斯被点燃;实现对粉尘喷淋沉降后,使粉尘在浑浊液中再次沉降,从而将粉尘堆积收集,便于人工清除。
上述技术中是通过喷淋器向下喷水除去空气中的粉尘,但是空气并不能与水充分接触,导致会有部分灰尘不能除去,进而降低了除尘的效果;而且上述技术中当地下空气瓦斯浓度过高时,通过打开通风门,使得外界的空气进入到管体板内,实现降低地下空气中瓦斯的浓度,避免瓦斯爆炸的情况发生,但是当通风门打开时,也会导致瓦斯泄露到外界,引发安全事故。
针对上述问题,我们提出一种防爆防尘通风设备。
发明内容
本发明的目的是为了解决现有技术中“上述技术中是通过喷淋器向下喷水除去空气中的粉尘,但是空气并不能与水充分接触,导致会有部分灰尘不能除去,进而降低了除尘的效果;而且上述技术中当地下空气瓦斯浓度过高时,通过打开通风门,使得外界的空气进入到管体板内,实现降低地下空气中瓦斯的浓度,避免瓦斯爆炸的情况发生,但是当通风门打开时,也会导致瓦斯泄露到外界,引发安全事故”的缺陷,从而提出一种防爆防尘通风设备。
为了实现上述目的,本发明采用了如下技术方案:
一种防爆防尘通风设备,包括处理箱、防爆机构和脱水机构,所述处理箱的内壁上固定连接有直筒,所述直筒的内壁上固定连接有过滤网板,所述过滤网板的上端面固定连接有减速电机,所述减速电机的输出端贯穿过滤网板并固定连接有蜗杆,所述蜗杆的下端固定连接有竖杆,所述直筒的内壁上固定连接有水箱,所述水箱的上端面设置为开口状态,所述水箱的内壁上对称固定连接有两个气管,每个所述气管的侧壁上均等间距的对称固定连接有多个喷头,所述处理箱的内壁中对称固定安装有两个通风管,两个所述通风管相对的一端均固定连接有连接管,每个所述连接管的另一端均贯穿水箱的侧壁并与气管连通,所述竖杆的下端转动连接在水箱的内壁上,所述竖杆的侧壁上对称固定连接有多个搅拌叶,每个所述搅拌叶上均等间距的开设有多个搅拌孔。
优选的,所述防爆机构包括两个固定筒,每个所述固定筒均固定连接在处理箱的内壁上,每个所述固定筒的内壁上均滑动连接有滑板,两个所述滑板相背的一侧均对称固定连接有两个复位弹簧,每个所述复位弹簧的另一端均固定连接在固定筒的内壁上,两个所述滑板相对的一侧均固定连接有推杆,每个所述推杆的另一端均贯穿固定筒的侧壁并固定有活塞,所述直筒的侧壁上对称开设有两个与活塞相匹配的排气孔。
优选的,所述脱水机构包括两个涡流叶片,每个所述涡流叶片均固定套接在竖杆上,所述蜗杆上啮合连接有蜗轮,所述蜗轮的中心处水平固定穿插有转动杆,所述转动杆的两端对称固定连接有两个往复丝杠,每个所述往复丝杠上均啮合连接有往复丝杠套,每个所述往复丝杠套的一侧均固定连接有竖板,两个所述竖板相背的一侧均对称固定连接有两个横杆,每两个所述横杆的另一端均共同固定连接有弧形板,所述直筒的内壁上固定连接有吸水海绵。
优选的,两个所述往复丝杠相背的一端均转动连接在直筒的内壁上,所述直筒的内壁上对称固定连接有两个限位杆,两个所述往复丝杠套的上端均固定连接有限位板,每个所述限位板均滑动套接在限位杆上。
优选的,所述蜗杆上固定套接有连接套,所述连接套的侧壁上对称固定连接有两个平板,每个所述平板的上端面均固定连接有毛刷,每个所述毛刷的上端均抵在过滤网板的下端面。
优选的,所述直筒的上端面固定连接有排风管,所述排风管的上端贯穿处理箱的上端面,所述直筒的内壁上固定连接有环形导向板。
优选的,两个所述活塞均滑动连接在排气孔中,两个所述推杆均滑动连接在固定筒的内壁中。
优选的,所述处理箱的上端面对称固定连接有两个导管,所述减速电机上固定套接有防尘罩,所述防尘罩的下端面固定连接在过滤网板的上端面上。
与现有技术相比,本发明的有益效果是:
1、地下空气可以通过通风管和连接管进入到气管中,并通过喷头排入到水箱中,然后通过减速电机、蜗杆和竖杆可以带动搅拌叶转动,搅拌叶会对水进行搅拌,从而使地下空气与水充分混合,去除地下空气中的灰尘,地下空气继续向上移动,经过过滤网板时,会进一步去除地下空气中的灰尘,从而提高了去除灰尘的效果;
2、地下空气中的瓦斯浓度过高时,通过固定筒、滑板、复位弹簧、推杆和活塞的配合设置,可以进行泄压,使直筒内的部分瓦斯排出到处理箱内,处理箱内的瓦斯气体会通过导管排入到外接瓦斯处理设备内,从而可以防止泄露到外界,又可以降低直筒内瓦斯的浓度,防止装置发生爆炸,提高装置的安全性;
3、通过涡流叶片可以带动地下空气呈螺旋转动,使地下空气产生离心力,在离心力的作用下,可以把地下空气中携带的水分甩在吸水海绵上,从而对空气进行脱水,通过蜗杆、蜗轮、转动杆和往复丝杠的配合设置,可以带动往复丝杠套左右移动,往复丝杠套通过竖板和横杆可以带动弧形板反复对吸水海绵进行挤压,把吸水海绵内的水挤出,使其流回到水箱中,从而节省用水。
附图说明
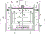
图1为本发明提出的一种防爆防尘通风设备的正面剖视结构示意图;
图2为本发明提出的一种防爆防尘通风设备脱水时的正面剖视结构示意图;
图3为本发明提出的一种防爆防尘通风设备泄压时的正面剖视结构示意图;
图4为本发明提出的图3中A处的放大结构示意图;
图5为本发明提出的一种防爆防尘通风设备中弧形板的俯视结构示意图。
图中:1处理箱、2直筒、3过滤网板、4减速电机、5蜗杆、6蜗轮、7连接套、8平板、9毛刷、10往复丝杠、11往复丝杠套、12竖板、13横杆、14弧形板、15吸水海绵、16竖杆、17涡流叶片、18水箱、19搅拌叶、20通风管、21连接管、22气管、23喷头、24固定筒、25滑板、26复位弹簧、27推杆、28活塞、29排风管、30导管、31限位杆、32导向板。
具体实施方式
下面将结合本发明实施例中的附图,对本发明实施例中的技术方案进行清楚、完整地描述,显然,所描述的实施例仅仅是本发明一部分实施例,而不是全部的实施例。
在本发明的描述中,需要理解的是,术语“上”、“下”、“前”、“后”、“左”、“右”、“顶”、“底”、“内”、“外”等指示的方位或位置关系为基于附图所示的方位或位置关系,仅是为了便于描述本发明和简化描述,而不是指示或暗示所指的装置或元件必须具有特定的方位、以特定的方位构造和操作,因此不能理解为对本发明的限制。
参照图1-5,一种防爆防尘通风设备,包括处理箱1、防爆机构和脱水机构,处理箱1的内壁上固定连接有直筒2,直筒2的内壁上固定连接有过滤网板3,过滤网板3的上端面固定连接有减速电机4,减速电机4的输出端贯穿过滤网板3并固定连接有蜗杆5,蜗杆5的下端固定连接有竖杆16,直筒2的内壁上固定连接有水箱18,水箱18的上端面设置为开口状态,水箱18的内壁上对称固定连接有两个气管22,每个气管22的侧壁上均等间距的对称固定连接有多个喷头23,处理箱1的内壁中对称固定安装有两个通风管20,两个通风管20相对的一端均固定连接有连接管21,每个连接管21的另一端均贯穿水箱18的侧壁并与气管22连通,竖杆16的下端转动连接在水箱18的内壁上,竖杆16的侧壁上对称固定连接有多个搅拌叶19,每个搅拌叶19上均等间距的开设有多个搅拌孔,地下空气可以通过通风管20和连接管21进入到气管22中,并通过喷头23排入到水箱18中,然后通过减速电机4、蜗杆5和竖杆16可以带动搅拌叶19转动,搅拌叶19会对水进行搅拌,从而使地下空气与水充分混合,去除地下空气中的灰尘,地下空气继续向上移动,经过过滤网板3时,会进一步去除地下空气中的灰尘,从而提高了去除灰尘的效果。
其中,防爆机构包括两个固定筒24,每个固定筒24均固定连接在处理箱1的内壁上,每个固定筒24的内壁上均滑动连接有滑板25,两个滑板25相背的一侧均对称固定连接有两个复位弹簧26,每个复位弹簧26的另一端均固定连接在固定筒24的内壁上,两个滑板25相对的一侧均固定连接有推杆27,每个推杆27的另一端均贯穿固定筒24的侧壁并固定有活塞28,直筒2的侧壁上对称开设有两个与活塞28相匹配的排气孔,地下空气中的瓦斯浓度过高时,通过固定筒24、滑板25、复位弹簧26、推杆27和活塞28的配合设置,可以进行泄压,使直筒2内的部分瓦斯排出到处理箱1内,处理箱1内的瓦斯气体会通过导管30排入到外接瓦斯处理设备内,从而可以防止泄露到外界,又可以降低直筒2内瓦斯的浓度,防止装置发生爆炸,提高装置的安全性。
其中,脱水机构包括两个涡流叶片17,每个涡流叶片17均固定套接在竖杆16上,蜗杆5上啮合连接有蜗轮6,蜗轮6的中心处水平固定穿插有转动杆,转动杆的两端对称固定连接有两个往复丝杠10,每个往复丝杠10上均啮合连接有往复丝杠套11,每个往复丝杠套11的一侧均固定连接有竖板12,两个竖板12相背的一侧均对称固定连接有两个横杆13,每两个横杆13的另一端均共同固定连接有弧形板14,直筒2的内壁上固定连接有吸水海绵15,通过涡流叶片17可以带动地下空气呈螺旋转动,使地下空气产生离心力,在离心力的作用下,可以把地下空气中携带的水分甩在吸水海绵15上,从而对空气进行脱水,通过蜗杆5、蜗轮6、转动杆和往复丝杠10的配合设置,可以带动往复丝杠套11左右移动,往复丝杠套11通过竖板12和横杆13可以带动弧形板14反复对吸水海绵15进行挤压,把吸水海绵15内的水挤出,使其流回到水箱18中,从而节省用水。
其中,两个往复丝杠10相背的一端均转动连接在直筒2的内壁上,直筒2的内壁上对称固定连接有两个限位杆31,两个往复丝杠套11的上端均固定连接有限位板,每个限位板均滑动套接在限位杆31上,限位杆31可以对往复丝杠套11起到限位的作用。
其中,蜗杆5上固定套接有连接套7,连接套7的侧壁上对称固定连接有两个平板8,每个平板8的上端面均固定连接有毛刷9,每个毛刷9的上端均抵在过滤网板3的下端面,通过连接套7、平板8和毛刷9的转动可以对过滤网板3的下表面进行清扫,防止过滤网板3造成堵塞。
其中,直筒2的上端面固定连接有排风管29,排风管29的上端贯穿处理箱1的上端面,直筒2的内壁上固定连接有环形导向板32,环形导向板32可以对空气起到导向的作用,并通过排风管29排出。
其中,两个活塞28均滑动连接在排气孔中,两个推杆27均滑动连接在固定筒24的内壁中,活塞28可以带动推杆27移动。
其中,处理箱1的上端面对称固定连接有两个导管30,减速电机4上固定套接有防尘罩,防尘罩的下端面固定连接在过滤网板3的上端面上,防尘罩可以对减速电机4起到防尘的作用。
本发明中,设备工作时,抽风机会把地下空气输送到通风管20中,并通过连接管21进入到气管22中,然后通过喷头23喷入到水箱18内的水中,同时启动减速电机4,其输出端会带动蜗杆5转动,蜗杆5会带动竖杆16转动,竖杆16会带动搅拌叶19转动,搅拌叶19会对水进行搅拌,从而使地下空气与水充分混合,去除地下空气中的灰尘,地下空气继续向上移动,经过过滤网板3时,会进一步去除地下空气中的灰尘,从而提高了去除灰尘的效果;
进一步的,竖杆16转动时会带动涡流叶片17转动,涡流叶片17转动会带动地下空气呈涡流状旋转,使地下空气产生离心力,在离心力的作用下,可以把地下空气中携带的水分甩在吸水海绵15上,从而对空气进行脱水,蜗杆5转动时会带动蜗轮6转动,蜗轮6会带动转动杆转动,转动杆会带动往复丝杠10转动,两个往复丝杠10上的螺纹设置的方向相反,从而可以带动两个往复丝杠套11相背移动,往复丝杠套11会带动竖板12相背移动,竖板12会带动横杆13相背移动,横杆13会带动两个弧形板14相背移动并抵在吸水海绵15上,把吸水海绵15内的水挤出,使其流回到水箱18中,从而节省用水;
进一步的,地下空气中的瓦斯浓度过高时,直筒2内的气压会升高,气体体积膨胀,会推动两个活塞28相背移动,活塞28会通过推杆27带动滑板25相背移动,滑板25会压缩复位弹簧26,复位弹簧26可以对活塞28起到复位的作用,当瓦斯浓度达到一定浓度值时,会推动活塞28从排气孔中移出,直筒2内的部分瓦斯气体会排出到处理箱1内,其中处理箱1和直筒2均为密封状态,处理箱1内的瓦斯气体会通过导管30排入到外接瓦斯处理设备内,从而可以防止泄露到外界,又可以降低直筒2内瓦斯的浓度,防止装置发生爆炸,提高装置的安全性,本说明中未作详细描述的内容属于本领域专业技术人员公知的现有技术。
尽管参照前实施例对本发明进行了详细的说明,对于本领域的技术人员来说,其依然可以对前各实施例记载的技术方案进行修改,或者对其中部分技术特征进行等同替换,凡在本发明的精神和原则之内,作的任何修改、等同替换、改进等,均应包含在本发明的保护范围之内。
Claims (8)
1.一种防爆防尘通风设备,包括处理箱(1)、防爆机构和脱水机构,其特征在于,所述处理箱(1)的内壁上固定连接有直筒(2),所述直筒(2)的内壁上固定连接有过滤网板(3),所述过滤网板(3)的上端面固定连接有减速电机(4),所述减速电机(4)的输出端贯穿过滤网板(3)并固定连接有蜗杆(5),所述蜗杆(5)的下端固定连接有竖杆(16),所述直筒(2)的内壁上固定连接有水箱(18),所述水箱(18)的上端面设置为开口状态,所述水箱(18)的内壁上对称固定连接有两个气管(22),每个所述气管(22)的侧壁上均等间距的对称固定连接有多个喷头(23),所述处理箱(1)的内壁中对称固定安装有两个通风管(20),两个所述通风管(20)相对的一端均固定连接有连接管(21),每个所述连接管(21)的另一端均贯穿水箱(18)的侧壁并与气管(22)连通,所述竖杆(16)的下端转动连接在水箱(18)的内壁上,所述竖杆(16)的侧壁上对称固定连接有多个搅拌叶(19),每个所述搅拌叶(19)上均等间距的开设有多个搅拌孔。
2.根据权利要求1所述的一种防爆防尘通风设备,其特征在于,所述防爆机构包括两个固定筒(24),每个所述固定筒(24)均固定连接在处理箱(1)的内壁上,每个所述固定筒(24)的内壁上均滑动连接有滑板(25),两个所述滑板(25)相背的一侧均对称固定连接有两个复位弹簧(26),每个所述复位弹簧(26)的另一端均固定连接在固定筒(24)的内壁上,两个所述滑板(25)相对的一侧均固定连接有推杆(27),每个所述推杆(27)的另一端均贯穿固定筒(24)的侧壁并固定有活塞(28),所述直筒(2)的侧壁上对称开设有两个与活塞(28)相匹配的排气孔。
3.根据权利要求1所述的一种防爆防尘通风设备,其特征在于,所述脱水机构包括两个涡流叶片(17),每个所述涡流叶片(17)均固定套接在竖杆(16)上,所述蜗杆(5)上啮合连接有蜗轮(6),所述蜗轮(6)的中心处水平固定穿插有转动杆,所述转动杆的两端对称固定连接有两个往复丝杠(10),每个所述往复丝杠(10)上均啮合连接有往复丝杠套(11),每个所述往复丝杠套(11)的一侧均固定连接有竖板(12),两个所述竖板(12)相背的一侧均对称固定连接有两个横杆(13),每两个所述横杆(13)的另一端均共同固定连接有弧形板(14),所述直筒(2)的内壁上固定连接有吸水海绵(15)。
4.根据权利要求3所述的一种防爆防尘通风设备,其特征在于,两个所述往复丝杠(10)相背的一端均转动连接在直筒(2)的内壁上,所述直筒(2)的内壁上对称固定连接有两个限位杆(31),两个所述往复丝杠套(11)的上端均固定连接有限位板,每个所述限位板均滑动套接在限位杆(31)上。
5.根据权利要求1所述的一种防爆防尘通风设备,其特征在于,所述蜗杆(5)上固定套接有连接套(7),所述连接套(7)的侧壁上对称固定连接有两个平板(8),每个所述平板(8)的上端面均固定连接有毛刷(9),每个所述毛刷(9)的上端均抵在过滤网板(3)的下端面。
6.根据权利要求1所述的一种防爆防尘通风设备,其特征在于,所述直筒(2)的上端面固定连接有排风管(29),所述排风管(29)的上端贯穿处理箱(1)的上端面,所述直筒(2)的内壁上固定连接有环形导向板(32)。
7.根据权利要求2所述的一种防爆防尘通风设备,其特征在于,两个所述活塞(28)均滑动连接在排气孔中,两个所述推杆(27)均滑动连接在固定筒(24)的内壁中。
8.根据权利要求1所述的一种防爆防尘通风设备,其特征在于,所述处理箱(1)的上端面对称固定连接有两个导管(30),所述减速电机(4)上固定套接有防尘罩,所述防尘罩的下端面固定连接在过滤网板(3)的上端面上。
Priority Applications (1)
| Application Number | Priority Date | Filing Date | Title |
|---|---|---|---|
| CN202310083297.1A CN115978782A (zh) | 2023-02-08 | 2023-02-08 | 一种防爆防尘通风设备 |
Applications Claiming Priority (1)
| Application Number | Priority Date | Filing Date | Title |
|---|---|---|---|
| CN202310083297.1A CN115978782A (zh) | 2023-02-08 | 2023-02-08 | 一种防爆防尘通风设备 |
Publications (1)
| Publication Number | Publication Date |
|---|---|
| CN115978782A true CN115978782A (zh) | 2023-04-18 |
Family
ID=85965071
Family Applications (1)
| Application Number | Title | Priority Date | Filing Date |
|---|---|---|---|
| CN202310083297.1A Withdrawn CN115978782A (zh) | 2023-02-08 | 2023-02-08 | 一种防爆防尘通风设备 |
Country Status (1)
| Country | Link |
|---|---|
| CN (1) | CN115978782A (zh) |
Cited By (1)
| Publication number | Priority date | Publication date | Assignee | Title |
|---|---|---|---|---|
| CN118669903A (zh) * | 2024-08-22 | 2024-09-20 | 杭州华东地下工程智能装备研究院有限公司 | 一种地下工程用防爆通风装置 |
-
2023
- 2023-02-08 CN CN202310083297.1A patent/CN115978782A/zh not_active Withdrawn
Cited By (1)
| Publication number | Priority date | Publication date | Assignee | Title |
|---|---|---|---|---|
| CN118669903A (zh) * | 2024-08-22 | 2024-09-20 | 杭州华东地下工程智能装备研究院有限公司 | 一种地下工程用防爆通风装置 |
Similar Documents
| Publication | Publication Date | Title |
|---|---|---|
| CN105327571B (zh) | 一种烟尘处理设备 | |
| CN209020170U (zh) | 一种脱硫塔内喷淋头的防堵装置 | |
| CN109675673A (zh) | 一种固体废弃物安全处理装置 | |
| CN115978782A (zh) | 一种防爆防尘通风设备 | |
| CN222586057U (zh) | 一种尾气吸收塔的喷淋装置 | |
| CN109621609A (zh) | 一种漆雾收集装置 | |
| CN108579302A (zh) | 一种节能环保的除尘装置 | |
| CN221618882U (zh) | 一种燃煤电厂烟气中二氧化碳捕获装置 | |
| CN209736172U (zh) | 一种玻璃制品生产清洗装置 | |
| CN208981250U (zh) | 一种牵引式公路清扫机 | |
| CN216276032U (zh) | 一种节水型建筑给排水装置 | |
| CN112211578B (zh) | 一种离心式泥浆除砂设备 | |
| CN214005554U (zh) | 一种用于道路便于使用的清扫装置 | |
| CN116398070A (zh) | 一种干式钻孔除尘抽排一体化装置 | |
| CN212146649U (zh) | 一种pvc管道切割用除尘装置 | |
| CN209406672U (zh) | 一种精炼剂喷粉装置 | |
| CN206736820U (zh) | 一种扫路车集料箱降尘装置 | |
| CN216295658U (zh) | 一种深部采矿用防尘装置 | |
| CN223602240U (zh) | 一种防止粉尘污染的水除尘装置 | |
| CN219647275U (zh) | 一种便于充分混合降凝剂的混合装置 | |
| CN110075644A (zh) | 粉尘气体分离装置 | |
| CN223847091U (zh) | 一种冲锋衣废料粉碎装置的排料组件 | |
| CN111773849A (zh) | 一种矿用湿式除尘器 | |
| CN219897288U (zh) | 一种污水处理用污水管排放装置 | |
| CN221309695U (zh) | 一种防水涂料的颗粒物滤除结构 |
Legal Events
| Date | Code | Title | Description |
|---|---|---|---|
| PB01 | Publication | ||
| PB01 | Publication | ||
| WW01 | Invention patent application withdrawn after publication | ||
| WW01 | Invention patent application withdrawn after publication |
Application publication date: 20230418 |