CN115738472A - Sewage sediment separating and discharging device - Google Patents
Sewage sediment separating and discharging device Download PDFInfo
- Publication number
- CN115738472A CN115738472A CN202211322811.4A CN202211322811A CN115738472A CN 115738472 A CN115738472 A CN 115738472A CN 202211322811 A CN202211322811 A CN 202211322811A CN 115738472 A CN115738472 A CN 115738472A
- Authority
- CN
- China
- Prior art keywords
- sewage
- overflow
- plate
- water
- sedimentation tank
- Prior art date
- Legal status (The legal status is an assumption and is not a legal conclusion. Google has not performed a legal analysis and makes no representation as to the accuracy of the status listed.)
- Granted
Links
Images
Landscapes
- Removal Of Floating Material (AREA)
Abstract
本申请公开了一种污水沉淀物分离排放装置,包括:沉淀物预处理组件,沉淀物预处理组件包括:第一立柱、溢流箱、过滤板、第一浮板和进水管,其中,第一立柱设置于沉淀池内;溢流箱可滑动设置于第一立柱上;第一浮板设置于溢流箱外,第一浮板,用于控制溢流箱始终漂浮于水面;过滤板和进水管的出水端设置于溢流箱内,且进水管的出水端位于过滤板的下方;排水组件,排水组件包括:排水管、第二浮板和第二立柱,其中,第二立柱设置于第一浮板上;第二浮板可滑动设置于第二立柱上;排水管的进水端设置于第二浮板上,排水管,用于将沉淀池中的表层水排出。由此,可以减少污水排出时底部沉淀物的搅动,提高分离效率,而且操作简单,工作量较小。
The present application discloses a sewage sediment separation and discharge device, including: a sediment pretreatment component, and the sediment pretreatment component includes: a first column, an overflow box, a filter plate, a first floating plate and a water inlet pipe, wherein, the first A column is set in the sedimentation tank; the overflow box is slidably set on the first column; the first floating plate is set outside the overflow box, and the first floating plate is used to control the overflow box to always float on the water surface; the filter plate and the inlet The water outlet end of the water pipe is arranged in the overflow box, and the water outlet end of the water inlet pipe is located below the filter plate; the drainage assembly, the drainage assembly includes: a drainage pipe, a second floating plate and a second column, wherein the second column is arranged on the first A floating plate; the second floating plate is slidably arranged on the second column; the water inlet end of the drain pipe is arranged on the second floating plate, and the drain pipe is used to discharge the surface water in the sedimentation tank. As a result, the agitation of the sediment at the bottom when the sewage is discharged can be reduced, the separation efficiency can be improved, and the operation is simple and the workload is small.
Description
技术领域technical field
本申请涉及污水处理技术领域,特别涉及一种污水沉淀物分离排放装置。The application relates to the technical field of sewage treatment, in particular to a sewage sediment separation and discharge device.
背景技术Background technique
污水沉淀是指污水中的悬浮颗粒依靠重力作用从污水中分离出来的过程。Sewage sedimentation refers to the process in which suspended particles in sewage are separated from sewage by gravity.
相关技术中,对于污水和沉淀物进行分离的方式多是通过在沉淀池侧壁下方开设排水口进行排出,这种方式容易造成底部沉淀物搅动,使污水夹杂搅起的沉淀物一起被排出,分离效率不高,但是使用人工进行抽吸,相关工作人员不仅需要实时控制抽水管,还需要保证在抽吸污水时,尽量避免抽吸到底部的沉淀物,操作繁琐,工作量巨大。In related technologies, the way of separating sewage and sediment is mostly to discharge by opening a drain under the side wall of the sedimentation tank. This method is likely to cause the sediment at the bottom to be stirred, so that the sewage mixed with the stirred up sediment is discharged together. The separation efficiency is not high, but manual suction is used. The relevant staff not only need to control the suction pipe in real time, but also need to ensure that the sediment at the bottom is avoided as much as possible when pumping sewage. The operation is cumbersome and the workload is huge.
发明内容Contents of the invention
本申请旨在至少在一定程度上解决上述技术中的技术问题之一。The present application aims to solve one of the technical problems in the above-mentioned technologies at least to a certain extent.
为此,本申请的一个目的在于提出一种污水沉淀物分离排放装置,可以减少污水排出时底部沉淀物的搅动,提高分离效率,而且操作简单,工作量较小。For this reason, one purpose of the present application is to propose a sewage sediment separation and discharge device, which can reduce the agitation of the bottom sediment when sewage is discharged, improve the separation efficiency, and is easy to operate and has a small workload.
为达到上述目的,本申请第一方面实施例提出了一种污水沉淀物分离排放装置,包括:沉淀物预处理组件,所述沉淀物预处理组件包括:第一立柱、溢流箱、过滤板、第一浮板和进水管,其中,所述第一立柱设置于沉淀池内;所述溢流箱可滑动设置于所述第一立柱上;所述第一浮板设置于所述溢流箱外,所述第一浮板,用于控制所述溢流箱漂浮于水面;所述过滤板和所述进水管的出水端设置于所述溢流箱内,且所述进水管的出水端位于所述过滤板的下方,所述过滤板,用于当污水渗过所述过滤板时对所述污水进行过滤,其中,渗过所述过滤板的污水通过所述溢流箱的开口流入所述沉淀池;排水组件,所述排水组件包括:排水管、第二浮板和第二立柱,其中,所述第二立柱设置于所述第一浮板上;所述第二浮板可滑动设置于所述第二立柱上;所述排水管的进水端设置于所述第二浮板上,所述排水管,用于将所述沉淀池中的表层水排出。。In order to achieve the above purpose, the embodiment of the first aspect of the present application proposes a sewage sediment separation and discharge device, including: a sediment pretreatment component, and the sediment pretreatment component includes: a first column, an overflow box, a filter plate , the first floating plate and the water inlet pipe, wherein, the first column is arranged in the sedimentation tank; the overflow box is slidably arranged on the first column; the first floating plate is arranged in the overflow box In addition, the first floating plate is used to control the overflow tank to float on the water surface; the filter plate and the water outlet end of the water inlet pipe are arranged in the overflow tank, and the water outlet end of the water inlet pipe Located below the filter plate, the filter plate is used to filter the sewage when the sewage permeates through the filter plate, wherein the sewage permeated through the filter plate flows into through the opening of the overflow box The sedimentation tank; the drainage assembly, the drainage assembly includes: a drainage pipe, a second floating plate and a second column, wherein the second column is arranged on the first floating plate; the second floating plate can Slidingly arranged on the second column; the water inlet end of the drainage pipe is arranged on the second floating plate, and the drainage pipe is used to discharge the surface water in the sedimentation tank. .
本申请实施例的污水沉淀物分离排放装置,可以减少污水排出时底部沉淀物的搅动,提高分离效率,而且操作简单,工作量较小。The sewage sediment separation and discharge device of the embodiment of the present application can reduce the agitation of the sediment at the bottom when the sewage is discharged, improve the separation efficiency, and is easy to operate and has a small workload.
另外,根据本申请上述实施例提出的污水沉淀物分离排放装置还可以具有如下附加的技术特征:In addition, the sewage sediment separation and discharge device proposed according to the above-mentioned embodiments of the present application may also have the following additional technical features:
在本申请的一个实施例中,所述溢流箱底部设置有第一排料口,以将所述溢流箱内的沉淀物排出。In one embodiment of the present application, a first discharge port is provided at the bottom of the overflow tank to discharge the sediment in the overflow tank.
在本申请的一个实施例中,所述沉淀池底部为漏斗状,且所述沉淀池底部中心处设置有第二排料口。In one embodiment of the present application, the bottom of the sedimentation tank is funnel-shaped, and a second discharge port is provided at the center of the bottom of the sedimentation tank.
在本申请的一个实施例中,所述第一排料口和所述第二排料口上均设置有电磁阀门开关,且两个所述电磁阀门开关均通过控制器进行控制。In one embodiment of the present application, electromagnetic valve switches are provided on the first discharge port and the second discharge port, and both of the electromagnetic valve switches are controlled by a controller.
在本申请的一个实施例中,所述溢流箱底部设置有限位装置,所述限位装置包括支撑杆和支撑板,其中,所述支撑杆竖直设置于所述溢流箱底部,所述支撑板铰接于所述支撑杆上。In one embodiment of the present application, a limit device is provided at the bottom of the overflow tank, and the limit device includes a support rod and a support plate, wherein the support rod is vertically arranged at the bottom of the overflow tank, so The support plate is hinged on the support rod.
在本申请的一个实施例中,所述沉淀池上设置有安装板,所述进水管的进水端和所述排水管出水端均设置于所述安装板上。In one embodiment of the present application, the settling tank is provided with a mounting plate, and the water inlet end of the water inlet pipe and the water outlet end of the drain pipe are both arranged on the mounting plate.
在本申请的一个实施例中,所述溢流箱上开设有溢流口,且所述溢流口设置于所述过滤板上方。In one embodiment of the present application, an overflow port is opened on the overflow box, and the overflow port is arranged above the filter plate.
在本申请的一个实施例中,所述进水管和所述排水管均为弹性伸缩管。In one embodiment of the present application, both the water inlet pipe and the drain pipe are elastic telescopic pipes.
本申请附加的方面和优点将在下面的描述中部分给出,部分将从下面的描述中变得明显,或通过本申请的实践了解到。Additional aspects and advantages of the application will be set forth in part in the description which follows, and in part will be obvious from the description, or may be learned by practice of the application.
附图说明Description of drawings
本申请上述的和/或附加的方面和优点从下面结合附图对实施例的描述中将变得明显和容易理解,其中:The above and/or additional aspects and advantages of the present application will become apparent and easy to understand from the following description of the embodiments in conjunction with the accompanying drawings, wherein:
图1是根据本申请一个实施例的污水沉淀物分离排放装置的结构示意图;Fig. 1 is a schematic structural view of a sewage sediment separation and discharge device according to an embodiment of the present application;
图2是根据本申请另一个实施例的污水沉淀物分离排放装置的结构示意图;Fig. 2 is a schematic structural view of a sewage sediment separation and discharge device according to another embodiment of the present application;
图3是根据本申请一个实施例的溢流组件的结构示意图;Fig. 3 is a structural schematic diagram of an overflow assembly according to an embodiment of the present application;
图4是根据本申请一个实施例的污水沉淀物分离排放装置的内部结构工作示意图;以及Fig. 4 is a working schematic diagram of the internal structure of a sewage sediment separation and discharge device according to an embodiment of the present application; and
图5是根据本申请另一个实施例的污水沉淀物分离排放装置的内部结构工作示意图。Fig. 5 is a working diagram of the internal structure of a sewage sediment separation and discharge device according to another embodiment of the present application.
如图所示:as the picture shows:
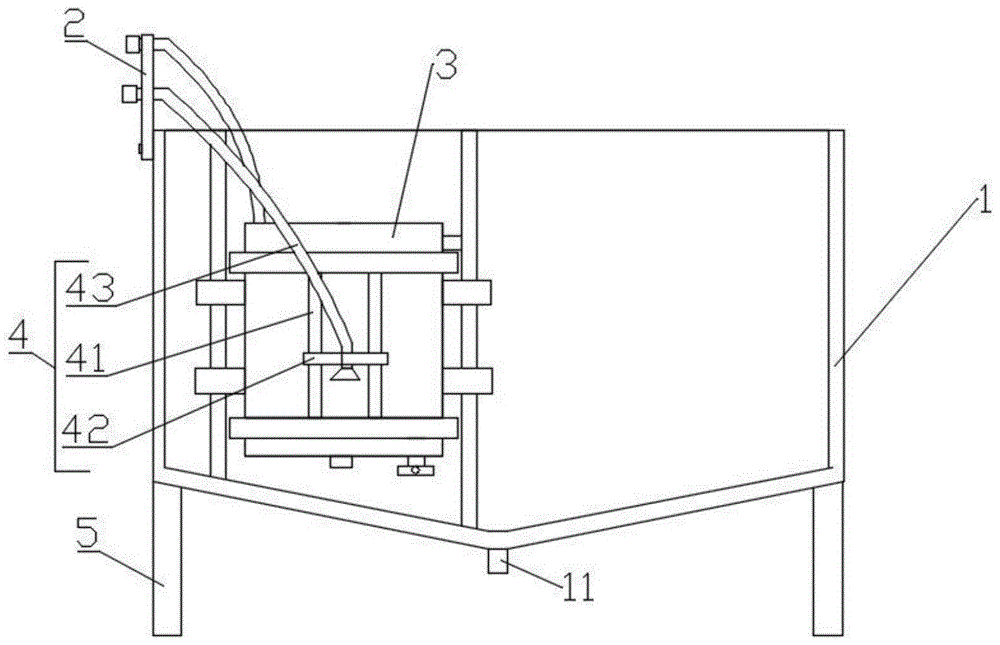
1、沉淀池;11、第二排料口;2、安装板;3、沉淀物预处理组件;31、第一立柱;32、溢流箱;321、连接件;33、第一浮板;34、进水管;35、过滤板;36、第一排料口;37、限位装置;38、溢流口;4、排水组件;41、第二立柱;42、第二浮板;43、排水管;5、支撑腿。1. Sedimentation tank; 11. Second discharge port; 2. Mounting plate; 3. Sediment pretreatment component; 31. First column; 32. Overflow box; 321. Connector; 33. First floating plate; 34. Water inlet pipe; 35. Filter plate; 36. First discharge port; 37. Limiting device; 38. Overflow port; 4. Drainage assembly; 41. Second column; 42. Second floating plate; 43. Drain pipe; 5, supporting legs.
具体实施方式Detailed ways
下面详细描述本申请的实施例,所述实施例的示例在附图中示出,其中自始至终相同或类似的标号表示相同或类似的元件或具有相同或类似功能的元件。下面通过参考附图描述的实施例是示例性的,旨在用于解释本申请,而不能理解为对本申请的限制。Embodiments of the present application are described in detail below, examples of which are shown in the drawings, wherein the same or similar reference numerals denote the same or similar elements or elements having the same or similar functions throughout. The embodiments described below by referring to the figures are exemplary, and are intended to explain the present application, and should not be construed as limiting the present application.
本申请实施例的污水沉淀物分离排放装置可应用于对工业污水或生活污水进行沉淀后分离排放,例如用于污水厂中对于污水的净化处理。The sewage sediment separation and discharge device of the embodiment of the present application can be applied to separate and discharge industrial sewage or domestic sewage after sedimentation, for example, for sewage purification treatment in sewage plants.
下面结合附图来描述本申请实施例的污水沉淀物分离排放装置。The sewage sediment separation and discharge device according to the embodiment of the present application will be described below with reference to the accompanying drawings.
如图1和图2所示,本申请实施例的污水沉淀物分离排放装置,包括沉淀池1、沉淀物预处理组件3和排水组件4。As shown in FIG. 1 and FIG. 2 , the sewage sediment separation and discharge device of the embodiment of the present application includes a sedimentation tank 1 , a sediment pretreatment component 3 and a
其中,沉淀池1底部设置有支撑腿5,沉淀物预处理组件3和排水组件4均设置在沉淀池1内。Wherein, the bottom of the sedimentation tank 1 is provided with supporting
具体的,如图3所示,沉淀物预处理组件3可包括第一立柱31、溢流箱32、第一浮板33、进水管34和过滤板35。Specifically, as shown in FIG. 3 , the sediment pretreatment assembly 3 may include a
其中,第一立柱31设置于沉淀池1内,溢流箱32通过连接件321可滑动设置于第一立柱31上,第一浮板33设置于溢流箱32外,第一浮板33,用于控制溢流箱32始终漂浮于水面,过滤板35和进水管34的出水端设置于溢流箱32内,且进水管34的出水端位于过滤板35的下方,过滤板35,用于当污水渗过过滤板35时,对污水进行过滤,其中,渗过过滤板35的污水通过溢流箱32的开口流入沉淀池1。Wherein, the
具体的,如图1所示,排水组件4可包括排水管43、第二浮板42和第二立柱41,其中,第二立柱41设置于第一浮板33上,第二浮板42可滑动设置于第二立柱41上,排水管43的进水端设置于第二浮板42上,排水管43,用于将沉淀池1中的表层水排出。Specifically, as shown in FIG. 1 , the
需要说明的是,为保证溢流箱32能够漂浮,可设置两个第一浮板33,且两个第一浮板33分别设置在溢流箱32的顶部和底部。It should be noted that, in order to ensure that the
可以理解的是,溢流箱32可为塑料材质,不仅能够防止污水腐蚀溢流箱32,还能够减少溢流箱32的自重,所需浮力更小,进而使第一浮板33的尺寸更小。It can be understood that the
在本申请的实施例中,通过向沉淀物预处理组件3中注入污水,将污水中的漂浮物和大颗粒沉淀物留在溢流箱32中,经过预处理后的污水流入沉淀池1内进行沉淀,并通过排水组件4将沉淀后的污水排出,排水组件4跟随沉淀物预处理组件3漂浮在沉淀池1的上水面,可以有效避免底部沉淀物的搅动,提高了分离效率。In the embodiment of the present application, by injecting sewage into the sediment pretreatment assembly 3, the floating matter and large particle sediment in the sewage are left in the
另外在将沉淀池1内的污水抽出时,排水组件4和沉淀物预处理组件3跟随水位进行下降,排水组件4始终保持抽吸沉淀池1中的上水面,不需要工作人员实时操作,更加简单,而且工作量相比人工抽吸的方式更加方便,工作量小。In addition, when the sewage in the sedimentation tank 1 is pumped out, the
在污水厂需要对污水进行处理时,即将污水沉淀后分离。When the sewage plant needs to treat the sewage, it means separating the sewage after sedimentation.
具体而言,如图3和图5所示,相关工作人员将进水管34外接至污水处理处,该污水处理处可为污水厂的污水源池,(污水源池,即用于存储未经处理的污水专用池),并通过水泵将污水由进水管34抽至溢流箱32中,随着溢流箱32内的污水越来越多,直至漫过过滤板35,则污水中的漂浮物和大颗粒沉淀物被过滤板35阻隔,经过预处理后的污水最终漫出溢流箱32,流至沉淀池1内,污水经过沉淀物预处理组件3的过滤,将污水中的大颗粒物(包括沉淀物、漂浮物和絮状物等)阻隔在溢流箱32内,对污水进行了初步过滤。Specifically, as shown in Fig. 3 and Fig. 5, the relevant staff connects the
随着沉淀池1内经过预处理的污水越来越多,溢流箱32在第一浮板33的浮力作用下漂浮,溢流箱32上的连接件321沿着第一立柱31上浮,保持溢流箱32始终处于漂浮状态。Along with more and more pretreated sewage in the sedimentation tank 1, the
然后,如图4所示,相关工作人员向沉淀池1内投放沉淀剂或凝絮剂,使经过预处理的污水沉降沉淀物,对沉淀池1中的污水静置后,相关工作人员通过外接水泵从排水管43中抽吸沉淀池1内的水,抽出后的污水可用于污水厂的深度净化。Then, as shown in Figure 4, the relevant staff puts a precipitant or flocculant into the sedimentation tank 1 to make the pretreated sewage settle down, and after the sewage in the sedimentation tank 1 is left to stand, the relevant staff through the external The water pump sucks the water in the sedimentation tank 1 from the
随着沉淀池1中的水位降低,沉淀物预处理组件3跟随水位下降,则排水组件4跟随沉淀物预处理组件3下降,第二浮板42跟随水位在第二立柱41上移动,始终保持排水管43的抽水端抽吸上水面,沉淀池1底部的沉淀物不会因此而搅动,则污水和沉淀物的分离效率更高。As the water level in the sedimentation tank 1 decreases, the sediment pretreatment assembly 3 drops with the water level, and the
可以理解的是,排水管43靠近第二浮板42的一端可设置有吸附罩,吸附罩内可设置过滤网,用于进一步过滤沉淀池1内污水中的残留漂浮物。It can be understood that the end of the
为更好的说明上一实施例,在本申请的一个实施例中,如图5所示,溢流箱32底部设置有第一排料口36,以将溢流箱32内的沉淀物7排出,沉淀池1底部为漏斗状,且沉淀池1底部中心处设置有第二排料口11。For a better description of the last embodiment, in one embodiment of the present application, as shown in Figure 5, the bottom of the
其中,第一排料口36和第二排料口11上均设置有电磁阀门开关,且两个电磁阀门开关均通过控制器进行控制。Wherein, both the
在污水厂的日常维护和清理中,除了对相关机械的维护外,还需要清理溢流箱32和沉淀池1。In the daily maintenance and cleaning of the sewage plant, in addition to the maintenance of related machinery, the
具体而言,相关工作人员可通过控制器开启第一排料口36处的电磁阀门开关,则溢流箱32内存留的污水带着沉淀物从第一排料口36处排出至沉淀池1内,然后相关工作人员再通过控制器打开第二排料口11出的电磁阀门开关,将沉淀池1内的沉淀物和少部分污水一同排出。Specifically, the relevant staff can open the electromagnetic valve switch at the
需要说明的是,对于溢流箱32和沉淀池1的清洗,则在需要相关工作人员控制第一排料口36和第二排料口11处的电磁阀门开关均打开,并使用清理液对溢流箱32和沉淀池1进行冲刷,最终的清理液从第二排料口11处排出。It should be noted that, for the cleaning of the
为方便操作,控制器可外接有按键开关,相关工作人员通过按下按键开关控制第一排料口36和第二排料口11处的电磁阀门的开闭。For the convenience of operation, the controller can be externally connected with a key switch, and the relevant staff can control the opening and closing of the electromagnetic valves at the
在本申请的一个实施例中,如图5所示,溢流箱32底部设置有限位装置37,限位装置37包括支撑杆和支撑板。In one embodiment of the present application, as shown in FIG. 5 , a limiting
其中,支撑杆竖直设置于溢流箱32底部,支撑板铰接于支撑杆上,溢流箱32上开设有溢流口38,且溢流口38设置于过滤板35上方。Wherein, the support bar is vertically arranged at the bottom of the
可以理解的是,在沉淀池1内的污水逐渐减少,溢流箱32跟随水位降低直至溢流箱32底部接触沉淀池1的漏斗状底部,则限位装置37支撑溢流箱32,以防止溢流箱32因倾斜趋势造成连接件321和第一立柱31之间损坏。It can be understood that the sewage in the sedimentation tank 1 gradually decreases, and the
在污水厂将沉淀池1内的污水排出时,溢流箱32跟随沉淀池1内的污水下降。When the sewage plant discharges the sewage in the sedimentation tank 1 , the
具体而言,溢流箱32跟随沉淀池1内的污水下降至底部时,支撑板碰触沉淀池1底部,并转动至与沉淀池1底部贴合的角度,支撑杆和溢流箱32远离限位装置37的一侧共同支撑,使溢流箱32处于稳定的平稳状态。Specifically, when the
在本申请的一个实施例中,如图4所示,沉淀池1上设置有安装板2,进水管34的进水端和排水管43出水端均设置于安装板2上,使进水管34的进水端和排水管43出水端得到固定,便于对进水管34的进水端和排水管43出水端外接水泵,使相关工作人员在将污水排入溢流箱32和从沉淀池1内抽出时,更加方便。In one embodiment of the present application, as shown in Figure 4, the sedimentation tank 1 is provided with a mounting plate 2, and the water inlet end of the
其中,进水管34和排水管43均为弹性伸缩管,以保证在沉淀物预处理组件3和排水组件4上下移动时,进水管34和排水管43的使用依旧有效,同时为保证进水管34的稳定性,进水管34的出水端通过卡扣紧贴溢流箱32固定。Wherein, the
综上,本申请实施例的污水沉淀物分离排放装置,可以减少污水排出时底部沉淀物的搅动,提高分离效率,而且操作简单,工作量较小。To sum up, the sewage sediment separation and discharge device of the embodiment of the present application can reduce the agitation of the sediment at the bottom when the sewage is discharged, improve the separation efficiency, and is easy to operate and has a small workload.
在本申请的描述中,需要理解的是,术语“中心”、“纵向”、“横向”、“长度”、“宽度”、“厚度”、“上”、“下”、“前”、“后”、“左”、“右”、“竖直”、“水平”、“顶”、“底”、“内”、“外”、“顺时针”、“逆时针”、“轴向”、“径向”、“周向”等指示的方位或位置关系为基于附图所示的方位或位置关系,仅是为了便于描述本申请和简化描述,而不是指示或暗示所指的装置或元件必须具有特定的方位、以特定的方位构造和操作,因此不能理解为对本申请的限制。In the description of the present application, it should be understood that the terms "center", "longitudinal", "transverse", "length", "width", "thickness", "upper", "lower", "front", " Back", "Left", "Right", "Vertical", "Horizontal", "Top", "Bottom", "Inner", "Outer", "Clockwise", "Counterclockwise", "Axial" , "radial", "circumferential" and other indicated orientations or positional relationships are based on the orientations or positional relationships shown in the drawings, and are only for the convenience of describing the application and simplifying the description, rather than indicating or implying the referred device or Elements must have certain orientations, be constructed and operate in certain orientations, and thus should not be construed as limiting the application.
此外,术语“第一”、“第二”仅用于描述目的,而不能理解为指示或暗示相对重要性或者隐含指明所指示的技术特征的数量。由此,限定有“第一”、“第二”的特征可以明示或者隐含地包括一个或者更多个该特征。在本申请的描述中,“多个”的含义是两个或两个以上,除非另有明确具体的限定。In addition, the terms "first" and "second" are used for descriptive purposes only, and cannot be interpreted as indicating or implying relative importance or implicitly specifying the quantity of indicated technical features. Thus, a feature defined as "first" and "second" may explicitly or implicitly include one or more of these features. In the description of the present application, "plurality" means two or more, unless otherwise specifically defined.
在本申请中,除非另有明确的规定和限定,术语“安装”、“相连”、“连接”、“固定”等术语应做广义理解,例如,可以是固定连接,也可以是可拆卸连接,或成一体;可以是机械连接,也可以是电连接;可以是直接相连,也可以通过中间媒介间接相连,可以是两个元件内部的连通或两个元件的相互作用关系。对于本领域的普通技术人员而言,可以根据具体情况理解上述术语在本申请中的具体含义。In this application, terms such as "installation", "connection", "connection" and "fixation" should be interpreted in a broad sense, for example, it can be a fixed connection or a detachable connection, unless otherwise clearly specified and limited. , or integrated; it can be mechanically connected or electrically connected; it can be directly connected or indirectly connected through an intermediary, and it can be the internal communication of two components or the interaction relationship between two components. Those of ordinary skill in the art can understand the specific meanings of the above terms in this application according to specific situations.
在本申请中,除非另有明确的规定和限定,第一特征在第二特征“上”或“下”可以是第一和第二特征直接接触,或第一和第二特征通过中间媒介间接接触。而且,第一特征在第二特征“之上”、“上方”和“上面”可是第一特征在第二特征正上方或斜上方,或仅仅表示第一特征水平高度高于第二特征。第一特征在第二特征“之下”、“下方”和“下面”可以是第一特征在第二特征正下方或斜下方,或仅仅表示第一特征水平高度小于第二特征。In the present application, unless otherwise clearly specified and limited, a first feature being "on" or "under" a second feature may mean that the first and second features are in direct contact, or that the first and second features are indirect through an intermediary. touch. Moreover, "above", "above" and "above" the first feature on the second feature may mean that the first feature is directly above or obliquely above the second feature, or simply means that the first feature is higher in level than the second feature. "Below", "beneath" and "beneath" the first feature may mean that the first feature is directly below or obliquely below the second feature, or simply means that the first feature is less horizontally than the second feature.
在本说明书的描述中,参考术语“一个实施例”、“一些实施例”、“示例”、“具体示例”、或“一些示例”等的描述意指结合该实施例或示例描述的具体特征、结构、材料或者特点包含于本申请的至少一个实施例或示例中。在本说明书中,对上述术语的示意性表述不必须针对的是相同的实施例或示例。而且,描述的具体特征、结构、材料或者特点可以在任一个或多个实施例或示例中以合适的方式结合。此外,在不相互矛盾的情况下,本领域的技术人员可以将本说明书中描述的不同实施例或示例以及不同实施例或示例的特征进行结合和组合。In the description of this specification, descriptions referring to the terms "one embodiment", "some embodiments", "example", "specific examples", or "some examples" mean that specific features described in connection with the embodiment or example , structure, material or characteristic is included in at least one embodiment or example of the present application. In this specification, the schematic representations of the above terms are not necessarily directed to the same embodiment or example. Furthermore, the described specific features, structures, materials or characteristics may be combined in any suitable manner in any one or more embodiments or examples. In addition, those skilled in the art can combine and combine different embodiments or examples and features of different embodiments or examples described in this specification without conflicting with each other.
尽管上面已经示出和描述了本申请的实施例,可以理解的是,上述实施例是示例性的,不能理解为对本申请的限制,本领域的普通技术人员在本申请的范围内可以对上述实施例进行变化、修改、替换和变型。Although the embodiments of the present application have been shown and described above, it can be understood that the above embodiments are exemplary and should not be construed as limitations on the present application, and those skilled in the art can make the above-mentioned The embodiments are subject to changes, modifications, substitutions and variations.
Claims (8)
Priority Applications (1)
| Application Number | Priority Date | Filing Date | Title |
|---|---|---|---|
| CN202211322811.4A CN115738472B (en) | 2022-10-27 | 2022-10-27 | Sewage sediment separation and discharge device |
Applications Claiming Priority (1)
| Application Number | Priority Date | Filing Date | Title |
|---|---|---|---|
| CN202211322811.4A CN115738472B (en) | 2022-10-27 | 2022-10-27 | Sewage sediment separation and discharge device |
Publications (2)
| Publication Number | Publication Date |
|---|---|
| CN115738472A true CN115738472A (en) | 2023-03-07 |
| CN115738472B CN115738472B (en) | 2025-09-26 |
Family
ID=85353529
Family Applications (1)
| Application Number | Title | Priority Date | Filing Date |
|---|---|---|---|
| CN202211322811.4A Active CN115738472B (en) | 2022-10-27 | 2022-10-27 | Sewage sediment separation and discharge device |
Country Status (1)
| Country | Link |
|---|---|
| CN (1) | CN115738472B (en) |
Citations (8)
| Publication number | Priority date | Publication date | Assignee | Title |
|---|---|---|---|---|
| GB1361489A (en) * | 1971-05-12 | 1974-07-24 | Carrier Drysys Ltd | Removing sludge formed in solutions used in metal pre-treatment processes |
| CN2409199Y (en) * | 2000-01-31 | 2000-12-06 | 刘澄清 | Draining device |
| CN2522144Y (en) * | 2001-12-25 | 2002-11-27 | 昆明市环境科学研究所 | Powerless external controlled water-draining device |
| EP1388359A1 (en) * | 2002-07-31 | 2004-02-11 | HST-WKS Hydro-Systemtechnik GmbH | Device for combined withdrawing or clarified water and floating sewage |
| CN211644904U (en) * | 2020-02-19 | 2020-10-09 | 绵阳师范学院 | Sewage treatment equipment for city |
| CN212864496U (en) * | 2020-06-23 | 2021-04-02 | 汪宏伟 | Excrement treatment device for livestock breeding |
| CN213680285U (en) * | 2020-11-05 | 2021-07-13 | 王如一 | Wisdom city is with sanitary wastewater treatment device |
| CN214209736U (en) * | 2020-12-11 | 2021-09-17 | 海南和丰世纪农业开发有限公司 | Flower planting is with driping irrigation device |
-
2022
- 2022-10-27 CN CN202211322811.4A patent/CN115738472B/en active Active
Patent Citations (8)
| Publication number | Priority date | Publication date | Assignee | Title |
|---|---|---|---|---|
| GB1361489A (en) * | 1971-05-12 | 1974-07-24 | Carrier Drysys Ltd | Removing sludge formed in solutions used in metal pre-treatment processes |
| CN2409199Y (en) * | 2000-01-31 | 2000-12-06 | 刘澄清 | Draining device |
| CN2522144Y (en) * | 2001-12-25 | 2002-11-27 | 昆明市环境科学研究所 | Powerless external controlled water-draining device |
| EP1388359A1 (en) * | 2002-07-31 | 2004-02-11 | HST-WKS Hydro-Systemtechnik GmbH | Device for combined withdrawing or clarified water and floating sewage |
| CN211644904U (en) * | 2020-02-19 | 2020-10-09 | 绵阳师范学院 | Sewage treatment equipment for city |
| CN212864496U (en) * | 2020-06-23 | 2021-04-02 | 汪宏伟 | Excrement treatment device for livestock breeding |
| CN213680285U (en) * | 2020-11-05 | 2021-07-13 | 王如一 | Wisdom city is with sanitary wastewater treatment device |
| CN214209736U (en) * | 2020-12-11 | 2021-09-17 | 海南和丰世纪农业开发有限公司 | Flower planting is with driping irrigation device |
Also Published As
| Publication number | Publication date |
|---|---|
| CN115738472B (en) | 2025-09-26 |
Similar Documents
| Publication | Publication Date | Title |
|---|---|---|
| CN114409116B (en) | A fully automatic waste water integrated multi-stage treatment equipment | |
| CN204563770U (en) | Parallel sewage sedimentation tank | |
| CN206635143U (en) | A kind of inorganic chemical industry purification tank for liquid waste for facilitating deslagging | |
| CN207941295U (en) | Settlement of sewage processing system | |
| CN108609710A (en) | A kind of municipal wastewater processing unit that process cycle is short | |
| CN108579162A (en) | A kind of efficient municipal wastewater filter device | |
| CN115738472A (en) | Sewage sediment separating and discharging device | |
| KR20030059010A (en) | Solid material and grit matter separator | |
| CN108939624A (en) | A kind of continous way sewage purification structure of Ceramic manufacturing | |
| CN219314681U (en) | Sewage treatment sedimentation device | |
| CN216429963U (en) | Wastewater discharge system with water diversion tank | |
| CN219429730U (en) | Sewage treatment device | |
| CN110078265A (en) | Water treatment system | |
| CN211946535U (en) | A municipal construction sewage treatment device | |
| CN212559735U (en) | Floating and filtering integrated treatment system | |
| CN220034257U (en) | Device for separating sediment from sewage | |
| CN219111063U (en) | A multi-level filter device for geothermal recharge water | |
| KR101057465B1 (en) | Raw water contaminant separator | |
| CN219185976U (en) | Sludge discharge device for sewage treatment | |
| CN218339065U (en) | Automatic dirt settling and separating device | |
| WO2022204826A1 (en) | Bioreactor wastewater treatment apparatus | |
| CN210278358U (en) | Static water decanting device | |
| CN214436749U (en) | A sedimentation tank for sewage treatment that is easy to remove sediment | |
| CN220056487U (en) | Automatic sediment discharging water treatment device | |
| CN218810496U (en) | Hydrolysis device of multiple stirring |
Legal Events
| Date | Code | Title | Description |
|---|---|---|---|
| PB01 | Publication | ||
| PB01 | Publication | ||
| SE01 | Entry into force of request for substantive examination | ||
| SE01 | Entry into force of request for substantive examination | ||
| GR01 | Patent grant | ||
| GR01 | Patent grant |
