CN112303783A - 一种带有照明面板的通风设备及使用方法 - Google Patents

一种带有照明面板的通风设备及使用方法 Download PDF

Info

Publication number
CN112303783A
CN112303783A CN202011266253.5A CN202011266253A CN112303783A CN 112303783 A CN112303783 A CN 112303783A CN 202011266253 A CN202011266253 A CN 202011266253A CN 112303783 A CN112303783 A CN 112303783A
Authority
CN
China
Prior art keywords
ventilation
frame
rod
magnetic
pull
Prior art date
Legal status (The legal status is an assumption and is not a legal conclusion. Google has not performed a legal analysis and makes no representation as to the accuracy of the status listed.)
Withdrawn
Application number
CN202011266253.5A
Other languages
English (en)
Inventor
程小龙
常耀方
Current Assignee (The listed assignees may be inaccurate. Google has not performed a legal analysis and makes no representation or warranty as to the accuracy of the list.)
Jiangsu Yushuo Electronic Technology Co ltd
Original Assignee
Jiangsu Yushuo Electronic Technology Co ltd
Priority date (The priority date is an assumption and is not a legal conclusion. Google has not performed a legal analysis and makes no representation as to the accuracy of the date listed.)
Filing date
Publication date
Application filed by Jiangsu Yushuo Electronic Technology Co ltd filed Critical Jiangsu Yushuo Electronic Technology Co ltd
Priority to CN202011266253.5A priority Critical patent/CN112303783A/zh
Publication of CN112303783A publication Critical patent/CN112303783A/zh
Withdrawn legal-status Critical Current

Links

Images

Classifications

    • FMECHANICAL ENGINEERING; LIGHTING; HEATING; WEAPONS; BLASTING
    • F24HEATING; RANGES; VENTILATING
    • F24FAIR-CONDITIONING; AIR-HUMIDIFICATION; VENTILATION; USE OF AIR CURRENTS FOR SCREENING
    • F24F7/00Ventilation
    • F24F7/04Ventilation with ducting systems, e.g. by double walls; with natural circulation
    • F24F7/06Ventilation with ducting systems, e.g. by double walls; with natural circulation with forced air circulation, e.g. by fan positioning of a ventilator in or against a conduit
    • F24F7/065Ventilation with ducting systems, e.g. by double walls; with natural circulation with forced air circulation, e.g. by fan positioning of a ventilator in or against a conduit fan combined with single duct; mounting arrangements of a fan in a duct
    • FMECHANICAL ENGINEERING; LIGHTING; HEATING; WEAPONS; BLASTING
    • F24HEATING; RANGES; VENTILATING
    • F24FAIR-CONDITIONING; AIR-HUMIDIFICATION; VENTILATION; USE OF AIR CURRENTS FOR SCREENING
    • F24F13/00Details common to, or for air-conditioning, air-humidification, ventilation or use of air currents for screening
    • F24F13/08Air-flow control members, e.g. louvres, grilles, flaps or guide plates
    • F24F13/10Air-flow control members, e.g. louvres, grilles, flaps or guide plates movable, e.g. dampers
    • F24F13/14Air-flow control members, e.g. louvres, grilles, flaps or guide plates movable, e.g. dampers built up of tilting members, e.g. louvre
    • F24F13/1426Air-flow control members, e.g. louvres, grilles, flaps or guide plates movable, e.g. dampers built up of tilting members, e.g. louvre characterised by actuating means
    • FMECHANICAL ENGINEERING; LIGHTING; HEATING; WEAPONS; BLASTING
    • F24HEATING; RANGES; VENTILATING
    • F24FAIR-CONDITIONING; AIR-HUMIDIFICATION; VENTILATION; USE OF AIR CURRENTS FOR SCREENING
    • F24F13/00Details common to, or for air-conditioning, air-humidification, ventilation or use of air currents for screening
    • F24F13/08Air-flow control members, e.g. louvres, grilles, flaps or guide plates
    • F24F13/10Air-flow control members, e.g. louvres, grilles, flaps or guide plates movable, e.g. dampers
    • F24F13/14Air-flow control members, e.g. louvres, grilles, flaps or guide plates movable, e.g. dampers built up of tilting members, e.g. louvre
    • F24F13/15Air-flow control members, e.g. louvres, grilles, flaps or guide plates movable, e.g. dampers built up of tilting members, e.g. louvre with parallel simultaneously tiltable lamellae
    • FMECHANICAL ENGINEERING; LIGHTING; HEATING; WEAPONS; BLASTING
    • F24HEATING; RANGES; VENTILATING
    • F24FAIR-CONDITIONING; AIR-HUMIDIFICATION; VENTILATION; USE OF AIR CURRENTS FOR SCREENING
    • F24F13/00Details common to, or for air-conditioning, air-humidification, ventilation or use of air currents for screening
    • F24F13/08Air-flow control members, e.g. louvres, grilles, flaps or guide plates
    • F24F13/10Air-flow control members, e.g. louvres, grilles, flaps or guide plates movable, e.g. dampers
    • F24F13/14Air-flow control members, e.g. louvres, grilles, flaps or guide plates movable, e.g. dampers built up of tilting members, e.g. louvre
    • F24F13/1426Air-flow control members, e.g. louvres, grilles, flaps or guide plates movable, e.g. dampers built up of tilting members, e.g. louvre characterised by actuating means
    • F24F2013/148Air-flow control members, e.g. louvres, grilles, flaps or guide plates movable, e.g. dampers built up of tilting members, e.g. louvre characterised by actuating means with magnets

Landscapes

  • Engineering & Computer Science (AREA)
  • Chemical & Material Sciences (AREA)
  • Combustion & Propulsion (AREA)
  • Mechanical Engineering (AREA)
  • General Engineering & Computer Science (AREA)
  • Ventilation (AREA)

Abstract

本发明公开了通风设备技术领域的一种带有照明面板的通风设备,包括通风框,所述通风框左侧均匀铰接有挡风板,所述通风框内腔纵向安装有十字固定架,所述十字固定架内安装有电机,所述电机输出端通过减速机连接有转轴,所述转轴上安装有扇叶,所述通风框顶端安装有固定座二,所述固定座二内横向安装有转杆,所述转杆左侧一端安装有驱动盘,所述固定座二左侧位于通风框顶端安装有固定座一,所述固定座一内横向贯穿有拉杆,所述拉杆左侧一端固定连接有拉块,本发明设置有磁块、拉杆、拉绳和驱动盘,可使拉杆左右往复移动,拉杆通过拉绳使挡风板间歇的开合,从而使风的大小均衡,避免了风大导致屋内阴冷或风小通风效果不好的情况。

Description

一种带有照明面板的通风设备及使用方法
技术领域
本发明涉及通风设备技术领域,具体为一种带有照明面板的通风设备及使用方法。
背景技术
现有的房屋一般都需要进行通风换气,所以要通道通风设备,现有的带有照明面板的通风设备在进行通风时,不能够调整风的大小,从而会造成风大时屋内阴冷或风小时通风效果不好的情况,另外,当外界的风较大时,现有的带有照明面板的通风设备不能够及时的关闭通风口,风会使灰尘扬起通过通风设备进入到屋内,从而导致屋内沉积大量灰尘的情况,难以清理。为此,我们提出一种带有照明面板的通风设备及使用方法。
发明内容
本发明的目的在于提供一种带有照明面板的通风设备及使用方法,以解决上述背景技术中提出的问题。
为实现上述目的,本发明提供如下技术方案:一种带有照明面板的通风设备,包括通风框,所述通风框左侧均匀铰接有挡风板,所述挡风板与通风框左侧之间连接有弹簧一,所述通风框内腔纵向安装有十字固定架,所述十字固定架内安装有电机,所述电机与外接电源线性连接,所述电机输出端通过减速机连接有转轴,所述转轴上安装有扇叶,所述转轴另一端安装有十字轴承架,所述通风框顶端安装有固定座二,所述固定座二内横向安装有转杆,所述转杆左侧一端安装有驱动盘,所述转杆外围套接有从皮带轮,所述转轴外围套接有主皮带轮,所述主皮带轮与从皮带轮通过平皮带传动连接,所述固定座二左侧位于通风框顶端安装有固定座一,所述固定座一内横向贯穿有拉杆,所述拉杆右侧一端固定连接有磁块,所述拉杆左侧一端固定连接有拉块,所述拉块与固定座一之间位于拉杆外围套有弹簧二,所述固定座一左侧位于通风框顶端安装有竖杆,所述竖杆顶端安装有定滑轮,所述挡风板上依次连接有拉绳,所述拉绳另一端穿过定滑轮与拉块连接。
优选的,所述通风框顶端安装有驱动机构,所述驱动机构上连接有上横杆,所述通风框底端安装有缓冲机构,所述缓冲机构上连接有下横杆,所述上横杆和下横杆另一端连接有同一个密封板。
优选的,所述驱动机构包括上齿条、下齿条和齿轮,所述上齿条固定连接在拉块底端,所述下齿条固定连接在上横杆上,所述下齿条底端均匀安装有滚轮,所述竖杆右侧固定连接有固定杆,所述齿轮安装在固定杆上,所述齿轮分别与上齿条和下齿条相互啮合。
优选的,所述缓冲机构包括固定座三,所述下横杆贯穿固定座三,所述固定座三右侧位于下横杆外围固定套接有挤压块,所述挤压块与固定座三之间位于下横杆外围套有弹簧三,所述下横杆左侧一端固定连接有限位块。
优选的,所述驱动盘外围均匀安装有磁盘,所述磁盘设置有两个,两个所述磁盘沿水平线相对称,所述磁盘与磁块相匹配,所述磁盘的磁性与磁块的磁性相反。
优选的,一种带有照明面板的通风设备的使用方法:
S1:使用时,启动电机,电机使转轴带动扇叶转动,从而达到通风的目的;
S2:转轴转动带动主皮带轮转动,主皮带轮通过平皮带和从皮带轮带动转杆转动,转杆转动使驱动盘转动,驱动盘上的磁盘间歇的吸引磁块向右移动,拉杆在弹簧二的作用下左右往复移动,从而使拉绳间歇的拉动挡风板,挡风板就会间歇的开合,使得通风均匀;
S3:当外界的风较大时,关闭电机,此时磁块在磁盘的吸引下向右移动并吸在磁盘上,而拉块也拉动拉绳使挡风板关闭,同时拉块上的上齿条向右移动,通过齿轮转动使下齿条带动上横杆向左移动,从而使上横杆带动密封板挡住通风框右侧的通风口,从而达到不通风的效果。
与现有技术相比,本发明的有益效果是:本发明设置有磁块、拉杆、拉绳和驱动盘,通过驱动盘转动间歇的吸引磁块,从而使拉杆左右往复移动,拉杆通过拉绳使挡风板间歇的开合,从而使风的大小均衡,避免了风大导致屋内阴冷或风小通风效果不好的情况;设置有密封板,密封板可将通风框密封上,避免了当外界的风较大时会向屋内吹进来大量的灰尘,从而导致屋内沉积大量灰尘的情况。
附图说明
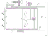
图1为本发明正面部分结构示意图;
图2为本发明正面整体结构示意图;
图3为本发明驱动盘侧面结构示意图;
图4为本发明驱动机构结构示意图;
图5为本发明缓冲机构结构示意图。
图中:1、通风框;2、挡风板;3、弹簧一;4、十字固定架;5、电机;6、转轴;7、扇叶;8、十字轴承架;9、竖杆;10、定滑轮;11、固定座一;12、拉杆;13、拉块;14、弹簧二;15、磁块;16、拉绳;17、固定座二;18、转杆;19、驱动盘;191、磁盘;20、主皮带轮;21、从皮带轮;22、平皮带;23、上横杆;24、下横杆;25、密封板;26、下齿条;27、滚轮;28、上齿条;29、固定杆;30、齿轮;31、固定座三;32、挤压块;33、弹簧三;34、限位块。
具体实施方式
下面将结合本发明实施例中的附图,对本发明实施例中的技术方案进行清楚、完整地描述,显然,所描述的实施例仅仅是本发明一部分实施例,而不是全部的实施例。基于本发明中的实施例,本领域普通技术人员在没有做出创造性劳动前提下所获得的所有其他实施例,都属于本发明保护的范围。
请参阅图1,本发明提供一种技术方案:一种带有照明面板的通风设备,包括通风框1,通风框1左侧均匀铰接有挡风板2,挡风板2与通风框1左侧之间连接有弹簧一3,当挡风板2倾斜时,弹簧一3处于正常状态,通风框1内腔纵向安装有十字固定架4,十字固定架4内安装有电机5,电机5与外接电源线性连接,电机5输出端通过减速机连接有转轴6,转轴6上安装有扇叶7,转轴6另一端安装有十字轴承架8,通风框1顶端安装有固定座二17,固定座二17内横向安装有转杆18,转杆18左侧一端安装有驱动盘19,转杆18外围套接有从皮带轮21,转轴6外围套接有主皮带轮20,主皮带轮20与从皮带轮21通过平皮带22传动连接,固定座二17左侧位于通风框1顶端安装有固定座一11,固定座一11内横向贯穿有拉杆12,拉杆12右侧一端固定连接有磁块15,拉杆12左侧一端固定连接有拉块13,拉块13与固定座一11之间位于拉杆12外围套有弹簧二14,弹簧二14对拉杆12起到恢复作用,固定座一11左侧位于通风框1顶端安装有竖杆9,竖杆9顶端安装有定滑轮10,挡风板2上依次连接有拉绳16,拉绳16另一端穿过定滑轮10与拉块13连接,定滑轮10使拉绳16收拉时更加的顺畅。
请参阅图2,通风框1顶端安装有驱动机构,驱动机构上连接有上横杆23,通风框1底端安装有缓冲机构,缓冲机构上连接有下横杆24,上横杆23和下横杆24另一端连接有同一个密封板25,密封板25的面积大于通风框1的截面面积。
请参阅图4,驱动机构包括上齿条28、下齿条26和齿轮30,上齿条28固定连接在拉块13底端,下齿条26固定连接在上横杆23上,下齿条26底端均匀安装有滚轮27,滚轮27使下齿条26移动时更加的顺畅,竖杆9右侧固定连接有固定杆29,齿轮30安装在固定杆29上,齿轮30分别与上齿条28和下齿条26相互啮合,当上齿条28向右移动时,齿轮30顺时针转动,从而使下齿条26向左移动,当上齿条28向左移动时,齿轮30逆时针转动,从而使下齿条26向右移动。
请参阅图5,缓冲机构包括固定座三31,下横杆24贯穿固定座三31,固定座三31右侧位于下横杆24外围固定套接有挤压块32,挤压块32与固定座三31之间位于下横杆24外围套有弹簧三33,弹簧三33在下横杆24向右移动时起到缓冲作用,在下横杆24向左移动时起到恢复作用,下横杆24左侧一端固定连接有限位块34。
请参阅图1和图3,驱动盘19外围均匀安装有磁盘191,磁盘191设置有两个,两个磁盘191沿水平线相对称,磁盘191与磁块15相匹配,磁盘191和磁块15的磁性较强,磁盘191的磁性与磁块15的磁性相反,从而使磁盘191能够吸引磁块15。
一种带有照明面板的通风设备的使用方法:
S1:使用时,启动电机5,电机5使转轴6带动扇叶7转动,从而达到通风的目的;
S2:转轴6转动带动主皮带轮20转动,主皮带轮20通过平皮带22和从皮带轮21带动转杆18转动,转杆18转动使驱动盘19转动,驱动盘19上的磁盘191间歇的吸引磁块15向右移动,拉杆12在弹簧二14的作用下左右往复移动,从而使拉绳16间歇的拉动挡风板2,挡风板2就会间歇的开合,使得通风均匀;
S3:当外界的风较大时,关闭电机5,此时磁块15在磁盘191的吸引下向右移动并吸在磁盘191上,而拉块13也拉动拉绳16使挡风板2关闭,同时拉块13上的上齿条28向右移动,通过齿轮30转动使下齿条26带动上横杆23向左移动,从而使上横杆23带动密封板25挡住通风框1右侧的通风口,从而达到不通风的效果。
尽管已经示出和描述了本发明的实施例,对于本领域的普通技术人员而言,可以理解在不脱离本发明的原理和精神的情况下可以对这些实施例进行多种变化、修改、替换和变型,本发明的范围由所附权利要求及其等同物限定。

Claims (6)

1.一种带有照明面板的通风设备,包括通风框(1),其特征在于:所述通风框(1)左侧均匀铰接有挡风板(2),所述挡风板(2)与通风框(1)左侧之间连接有弹簧一(3),所述通风框(1)内腔纵向安装有十字固定架(4),所述十字固定架(4)内安装有电机(5),所述电机(5)与外接电源线性连接,所述电机(5)输出端通过减速机连接有转轴(6),所述转轴(6)上安装有扇叶(7),所述转轴(6)另一端安装有十字轴承架(8),所述通风框(1)顶端安装有固定座二(17),所述固定座二(17)内横向安装有转杆(18),所述转杆(18)左侧一端安装有驱动盘(19),所述转杆(18)外围套接有从皮带轮(21),所述转轴(6)外围套接有主皮带轮(20),所述主皮带轮(20)与从皮带轮(21)通过平皮带(22)传动连接,所述固定座二(17)左侧位于通风框(1)顶端安装有固定座一(11),所述固定座一(11)内横向贯穿有拉杆(12),所述拉杆(12)右侧一端固定连接有磁块(15),所述拉杆(12)左侧一端固定连接有拉块(13),所述拉块(13)与固定座一(11)之间位于拉杆(12)外围套有弹簧二(14),所述固定座一(11)左侧位于通风框(1)顶端安装有竖杆(9),所述竖杆(9)顶端安装有定滑轮(10),所述挡风板(2)上依次连接有拉绳(16),所述拉绳(16)另一端穿过定滑轮(10)与拉块(13)连接。
2.根据权利要求1所述的一种带有照明面板的通风设备,其特征在于:所述通风框(1)顶端安装有驱动机构,所述驱动机构上连接有上横杆(23),所述通风框(1)底端安装有缓冲机构,所述缓冲机构上连接有下横杆(24),所述上横杆(23)和下横杆(24)另一端连接有同一个密封板(25)。
3.根据权利要求2所述的一种带有照明面板的通风设备,其特征在于:所述驱动机构包括上齿条(28)、下齿条(26)和齿轮(30),所述上齿条(28)固定连接在拉块(13)底端,所述下齿条(26)固定连接在上横杆(23)上,所述下齿条(26)底端均匀安装有滚轮(27),所述竖杆(9)右侧固定连接有固定杆(29),所述齿轮(30)安装在固定杆(29)上,所述齿轮(30)分别与上齿条(28)和下齿条(26)相互啮合。
4.根据权利要求3所述的一种带有照明面板的通风设备,其特征在于:所述缓冲机构包括固定座三(31),所述下横杆(24)贯穿固定座三(31),所述固定座三(31)右侧位于下横杆(24)外围固定套接有挤压块(32),所述挤压块(32)与固定座三(31)之间位于下横杆(24)外围套有弹簧三(33),所述下横杆(24)左侧一端固定连接有限位块(34)。
5.根据权利要求4所述的一种带有照明面板的通风设备,其特征在于:所述驱动盘(19)外围均匀安装有磁盘(191),所述磁盘(191)设置有两个,两个所述磁盘(191)沿水平线相对称,所述磁盘(191)与磁块(15)相匹配,所述磁盘(191)的磁性与磁块(15)的磁性相反。
6.根据权利要求1-5中任一项所述的一种带有照明面板的通风设备的使用方法,其特征在于:
S1:使用时,启动电机(5),电机(5)使转轴(6)带动扇叶(7)转动,从而达到通风的目的;
S2:转轴(6)转动带动主皮带轮(20)转动,主皮带轮(20)通过平皮带(22)和从皮带轮(21)带动转杆(18)转动,转杆(18)转动使驱动盘(19)转动,驱动盘(19)上的磁盘(191)间歇的吸引磁块(15)向右移动,拉杆(12)在弹簧二(14)的作用下左右往复移动,从而使拉绳(16)间歇的拉动挡风板(2),挡风板(2)就会间歇的开合,使得通风均匀;
S3:当外界的风较大时,关闭电机(5),此时磁块(15)在磁盘(191)的吸引下向右移动并吸在磁盘(191)上,而拉块(13)也拉动拉绳(16)使挡风板(2)关闭,同时拉块(13)上的上齿条(28)向右移动,通过齿轮(30)转动使下齿条(26)带动上横杆(23)向左移动,从而使上横杆(23)带动密封板(25)挡住通风框(1)右侧的通风口,从而达到不通风的效果。
CN202011266253.5A 2020-11-13 2020-11-13 一种带有照明面板的通风设备及使用方法 Withdrawn CN112303783A (zh)

Priority Applications (1)

Application Number Priority Date Filing Date Title
CN202011266253.5A CN112303783A (zh) 2020-11-13 2020-11-13 一种带有照明面板的通风设备及使用方法

Applications Claiming Priority (1)

Application Number Priority Date Filing Date Title
CN202011266253.5A CN112303783A (zh) 2020-11-13 2020-11-13 一种带有照明面板的通风设备及使用方法

Publications (1)

Publication Number Publication Date
CN112303783A true CN112303783A (zh) 2021-02-02

Family

ID=74334289

Family Applications (1)

Application Number Title Priority Date Filing Date
CN202011266253.5A Withdrawn CN112303783A (zh) 2020-11-13 2020-11-13 一种带有照明面板的通风设备及使用方法

Country Status (1)

Country Link
CN (1) CN112303783A (zh)

Cited By (2)

* Cited by examiner, † Cited by third party
Publication number Priority date Publication date Assignee Title
CN114353174A (zh) * 2022-01-26 2022-04-15 德州市美达空调设备有限公司 一种中央空调风机盘管降噪装置
CN115596708A (zh) * 2022-10-26 2023-01-13 江西轻竺科技股份有限公司(Cn) 一种环氧树脂制程风冷装置及其风冷方法

Cited By (2)

* Cited by examiner, † Cited by third party
Publication number Priority date Publication date Assignee Title
CN114353174A (zh) * 2022-01-26 2022-04-15 德州市美达空调设备有限公司 一种中央空调风机盘管降噪装置
CN115596708A (zh) * 2022-10-26 2023-01-13 江西轻竺科技股份有限公司(Cn) 一种环氧树脂制程风冷装置及其风冷方法

Similar Documents

Publication Publication Date Title
CN201843456U (zh) 可定时开闭的窗户
CN112303783A (zh) 一种带有照明面板的通风设备及使用方法
CN201593354U (zh) 自动控制开闭式窗户
CN210422041U (zh) 一种便于通风和遮阳的阳光房
CN103397753B (zh) 可收起百叶遮阳装置
CN201704890U (zh) 自动控制开闭式天窗
CN209413701U (zh) 一种根据室温自动化启闭的上悬窗
CN209145097U (zh) 一种通风式幕墙结构
CN214786873U (zh) 一种智能窗户
CN201588485U (zh) 自动控制开闭隐藏式窗户
CN202645248U (zh) 一种温室侧窗同步开闭控制装置
CN208251929U (zh) 一种铝合金门窗
CN217608582U (zh) 一种冬季温室大棚
CN207212136U (zh) 一种提拉门窗
CN203081134U (zh) 可自动启闭的窗户
CN216111410U (zh) 一种用于风机遮光和密闭保温的电动卷帘窗
CN114264028B (zh) 一种窗用隐藏式可调风幕机
CN211818884U (zh) 一种新型窗户
CN214884707U (zh) 一种智能型呼吸式幕墙
CN215809086U (zh) 一种建筑设计用节能通风装置
CN112282609B (zh) 一种具有新风换气功能的门窗
CN212154539U (zh) 一种通风窗
CN222544001U (zh) 一种绿色建筑的通风节能设备
CN113738681A (zh) 一种用于风机遮光和密闭保温的电动卷帘窗及其使用方法
CN116648007B (zh) 一种基于人工智能技术的家居信息处理嵌入式隐藏终端

Legal Events

Date Code Title Description
PB01 Publication
PB01 Publication
SE01 Entry into force of request for substantive examination
SE01 Entry into force of request for substantive examination
WW01 Invention patent application withdrawn after publication
WW01 Invention patent application withdrawn after publication

Application publication date: 20210202