CN111218886A - 一种偏压的地铁车站与高架桥合建结构及施工方法 - Google Patents

一种偏压的地铁车站与高架桥合建结构及施工方法 Download PDF

Info

Publication number
CN111218886A
CN111218886A CN202010142379.5A CN202010142379A CN111218886A CN 111218886 A CN111218886 A CN 111218886A CN 202010142379 A CN202010142379 A CN 202010142379A CN 111218886 A CN111218886 A CN 111218886A
Authority
CN
China
Prior art keywords
station
bearing platform
viaduct
bottom plate
plate
Prior art date
Legal status (The legal status is an assumption and is not a legal conclusion. Google has not performed a legal analysis and makes no representation as to the accuracy of the status listed.)
Granted
Application number
CN202010142379.5A
Other languages
English (en)
Other versions
CN111218886B (zh
Inventor
毕经东
贺维国
段悟哲
刘鹏
宋超业
秦爱红
汤浩杰
卢海珍
肖志灿
田有圩
吕显福
杜宝义
Current Assignee (The listed assignees may be inaccurate. Google has not performed a legal analysis and makes no representation or warranty as to the accuracy of the list.)
China Railway Liuyuan Group Co Ltd
China Railway Tianjin Tunnel Engineering Survey and Design Co Ltd
Original Assignee
China Railway Liuyuan Group Co Ltd
China Railway Tianjin Tunnel Engineering Survey and Design Co Ltd
Priority date (The priority date is an assumption and is not a legal conclusion. Google has not performed a legal analysis and makes no representation as to the accuracy of the date listed.)
Filing date
Publication date
Application filed by China Railway Liuyuan Group Co Ltd, China Railway Tianjin Tunnel Engineering Survey and Design Co Ltd filed Critical China Railway Liuyuan Group Co Ltd
Priority to CN202010142379.5A priority Critical patent/CN111218886B/zh
Publication of CN111218886A publication Critical patent/CN111218886A/zh
Application granted granted Critical
Publication of CN111218886B publication Critical patent/CN111218886B/zh
Active legal-status Critical Current
Anticipated expiration legal-status Critical

Links

Images

Classifications

    • EFIXED CONSTRUCTIONS
    • E01CONSTRUCTION OF ROADS, RAILWAYS, OR BRIDGES
    • E01DCONSTRUCTION OF BRIDGES, ELEVATED ROADWAYS OR VIADUCTS; ASSEMBLY OF BRIDGES
    • E01D1/00Bridges in general
    • EFIXED CONSTRUCTIONS
    • E01CONSTRUCTION OF ROADS, RAILWAYS, OR BRIDGES
    • E01DCONSTRUCTION OF BRIDGES, ELEVATED ROADWAYS OR VIADUCTS; ASSEMBLY OF BRIDGES
    • E01D19/00Structural or constructional details of bridges
    • E01D19/02Piers; Abutments ; Protecting same against drifting ice
    • EFIXED CONSTRUCTIONS
    • E02HYDRAULIC ENGINEERING; FOUNDATIONS; SOIL SHIFTING
    • E02DFOUNDATIONS; EXCAVATIONS; EMBANKMENTS; UNDERGROUND OR UNDERWATER STRUCTURES
    • E02D19/00Keeping dry foundation sites or other areas in the ground
    • E02D19/06Restraining of underground water
    • E02D19/12Restraining of underground water by damming or interrupting the passage of underground water
    • E02D19/18Restraining of underground water by damming or interrupting the passage of underground water by making use of sealing aprons, e.g. diaphragms made from bituminous or clay material
    • EFIXED CONSTRUCTIONS
    • E02HYDRAULIC ENGINEERING; FOUNDATIONS; SOIL SHIFTING
    • E02DFOUNDATIONS; EXCAVATIONS; EMBANKMENTS; UNDERGROUND OR UNDERWATER STRUCTURES
    • E02D27/00Foundations as substructures
    • E02D27/10Deep foundations
    • E02D27/12Pile foundations
    • E02D27/14Pile framings, i.e. piles assembled to form the substructure
    • EFIXED CONSTRUCTIONS
    • E02HYDRAULIC ENGINEERING; FOUNDATIONS; SOIL SHIFTING
    • E02DFOUNDATIONS; EXCAVATIONS; EMBANKMENTS; UNDERGROUND OR UNDERWATER STRUCTURES
    • E02D27/00Foundations as substructures
    • E02D27/32Foundations for special purposes
    • E02D27/42Foundations for poles, masts or chimneys
    • EFIXED CONSTRUCTIONS
    • E02HYDRAULIC ENGINEERING; FOUNDATIONS; SOIL SHIFTING
    • E02DFOUNDATIONS; EXCAVATIONS; EMBANKMENTS; UNDERGROUND OR UNDERWATER STRUCTURES
    • E02D29/00Independent underground or underwater structures; Retaining walls
    • E02D29/04Making large underground spaces, e.g. for underground plants, e.g. stations of underground railways; Construction or layout thereof

Landscapes

  • Engineering & Computer Science (AREA)
  • Life Sciences & Earth Sciences (AREA)
  • Civil Engineering (AREA)
  • Structural Engineering (AREA)
  • General Engineering & Computer Science (AREA)
  • Paleontology (AREA)
  • Mining & Mineral Resources (AREA)
  • General Life Sciences & Earth Sciences (AREA)
  • Environmental & Geological Engineering (AREA)
  • Architecture (AREA)
  • Hydrology & Water Resources (AREA)
  • Sustainable Development (AREA)
  • Bridges Or Land Bridges (AREA)

Abstract

本发明公开了一种偏压的地铁车站与高架桥合建结构及施工方法,包括:车站板墙结构,包括通过钢管混凝土柱相连的车站顶板、车站中板、车站底板、车站侧墙;底承台和顶承台,底承台与车站底板固定浇筑在一起,顶承台与车站顶板固定浇筑在一起;以及桥墩和桩基,桥墩设置在顶承台的上部,桩基锚入底承台内且位于车站底板以下,通过上下连通以形成地铁车站和高架桥合建结构。本发明实现了地铁车站和高架桥平面线位不一致、车站柱距与高架桥跨度不完全匹配时的地铁车站和地面高架桥的合建;结构受力明确、施工工序简单,地铁车站、高架桥相互施工干扰小、抗震性能更优的特点,同时拓展了城市地铁车站与高架桥合建的应用条件。

Description

一种偏压的地铁车站与高架桥合建结构及施工方法
技术领域
本发明涉及市政交通设计与施工领域,尤其涉及一种偏压的地铁车站与高架桥合建结构及施工方法。
背景技术
现今城市高速发展,交通问题日趋严重,为缓解城市交通日趋紧张的局面,地下轨道交通、地面城市道路、地上高架桥形成的三维立体交通方式为越来越多的城市采用。地铁车站和地面高架桥平面线位重叠时,通常采用站桥分离、站桥同位合建两种结构方案。
站桥分离是指地铁车站、地面高架桥结构相互独立、完全分开,具体有两种方案:方案一,地铁车站站台分离,采用分离岛式站台或分离侧式站台,高架桥桩基位于地铁车站中间;方案二,高架桥门式桥墩方案,即地铁车站设置与高架桥桩基之间,高架桥采用门式桥墩横跨地铁车站。
站桥同位合建是指地铁车站与高架桥纵向平行布置,将高架桥桥墩置于车站顶板上,桥墩位置与地铁车站结构柱向对应,桥墩及上部荷载直接通过车站结构柱传至车站底板,进而传至地基。
站桥分离、站桥同位合建的结构方案存在以下缺点:
1)站桥分离方案一,车站站台需要通过通道或站厅层连接,不利于与乘客使用,同时对客流组织、运营管理、设备布置以及消防疏散提出更高的要求。
2)站桥分离方案二,门式桥墩跨度大,受力不合理,对地面景观影响大,同时,增加高架桥投资。
3)站桥分离方案,地铁车站、地面高架桥施工组织困难,同时施工相互影响大;错开施工,后施工结构对已施工结构变形影响大,会危及已运营结构安全。
4)站桥同位合建,地铁车站、高架桥平面线性须一致,高架桥跨度、车站柱距须匹配,受周边环境、规划条件制约大,应用条件受限。
受城市既有周边建筑环境的影响,地铁车站平面线位与高架桥不完全一致,或上部高架桥及地铁车站均为曲线形式且曲率不同时,两种结构线性走向的差异,导致各桥墩在地铁车站上的分布位置具有一定的离散性,造成地铁车站同一断面内受荷严重不均,偏压情况严重,上述结构方案并不适用。
发明内容
本发明的目的在于提供一种偏压的地铁车站与高架桥合建结构及施工方法,结构受力明确、施工工序简单,地铁车站、高架桥相互施工干扰小、抗震性能更优的特点,实现了地铁车站和高架桥平面线位不一致、车站柱距与高架桥跨度不完全匹配时的地铁车站和地面高架桥的合建。
为实现上述目的,本发明的一种偏压的地铁车站与高架桥合建结构及施工方法的具体技术方案为:
一种偏压的地铁车站与高架桥合建结构,包括:车站板墙结构,包括通过钢管混凝土柱相连的车站顶板、车站中板、车站底板、车站侧墙;底承台和顶承台,底承台与车站底板固定浇筑在一起,顶承台与车站顶板固定浇筑在一起;以及桥墩和桩基,桥墩设置在顶承台的上部,桩基锚入底承台内且位于车站底板以下,通过上下连通以形成地铁车站和高架桥合建结构。
进一步,底承台与车站底板的交接处为斜面过渡,底承台的上层钢筋与车站底板上层钢筋相同,底承台下层钢筋锚入车站底板内。
进一步,顶承台与车站顶板的交接处为斜面过渡,顶承台的下层钢筋与车站顶板下层钢筋相同,顶承台上层钢筋锚入车站顶板内。
进一步,还包括:围护结构,位于车站板墙结构的外侧;止水桩,设置在围护结构的外侧;以及支撑,横向设置在围护结构之间。
进一步,还包括加强侧墙,与车站板墙结构的车站侧墙固定浇筑在一起。
进一步,还包括上部桥梁结构,设置在桥梁的顶部。
一种偏压的地铁车站与高架桥合建结构的施工方法,包括以下步骤:
步骤一,施工车站底板以下桩基,车站底板标高以上为空桩、填充粗砂;
步骤二,施工车站基坑围护结构和止水桩,并分层开挖至车站底板3底标高,基坑开挖过程中分层架设支撑;
步骤三,开挖至基坑底后,修建底承台及车站底板,桩基侵入底承台部分桩头混凝土凿除,桩基钢筋锚入底承台,底承台与车站底板钢筋互锚,同步浇筑;
步骤四,待底承台及车站底板混凝土达到设计强度,安装钢管柱;
步骤五,修建承台处加强侧墙与车站侧墙至设计标高,修建车站中板;
步骤六,将顶承台与车站顶板钢筋互锚,同步浇筑;
步骤七,修建桥墩及上部桥梁结构。
进一步,在步骤四中,安装钢管混凝土柱分节安装,接口位置设置在中纵梁以下45-50mm。
进一步,在步骤六中,顶承台中预埋桥墩接驳钢筋。
本发明的一种偏压的地铁车站与高架桥合建结构及施工方法的优点在于:
1)适用条件广、受规划制约少;
2)克服了地铁车站和地面高架桥线位重叠时结构处理方案存在的不足,实现了地铁车站和高架桥平面线位不一致、车站柱距与高架桥跨度不完全匹配时的地铁车站和地面高架桥的合建;
3)该结构具有结构受力明确、施工工序简单,地铁车站、高架桥相互施工干扰小、抗震性能更优的特点,同时拓展了城市地铁车站与高架桥合建的应用条件;
4)本发明中的桥墩、顶承台、底承台、桩基与车站结构形成整体,地铁车站箱型结构作为高架桥基础的一部分,能够提高高架桥桥墩的抗震性能。
附图说明
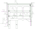
图1为本发明的合建结构的平面图;
图2a为本发明的合建结构的横剖面图;
图2b为本发明的基坑支护的示意图;
图3为本发明的合建结构的纵剖面图。
图中:1、桩基;2、底承台;3、车站底板;4、加强侧墙;5、车站侧墙;6、钢管混凝土柱;7、车站中板;8、顶承台;9、车站顶板;10、桥墩;11、桥梁上部结构;12、围护结构;13、止水桩;14、支撑。
具体实施方式
为了更好的了解本发明的目的、结构及功能,下面结合附图,对本发明的一种偏压的地铁车站与高架桥合建结构及施工方法做进一步详细的描述。
如图1至图3所示,其示为本发明的一种偏压的地铁车站与高架桥合建结构,包括车站板墙结构,车站板墙结构包括通过钢管混凝土柱6相连的车站顶板9、车站中板7、车站底板3、车站侧墙5;还包括桥墩10和桩基1,桩基1钢筋锚入底承台2内,位于车站底板3以下,桩基1的桩头钢筋锚入车站底板3内,将桩基与车站底板形成整体;还包括顶承台8和底承台2,底承台2兼作车站底板3并与车站底板3一起浇筑,顶承台8兼作车站顶板9并与车站顶板9一起浇筑,通过桥墩10、顶承台8、加强侧墙4、车站板墙结构、钢管混凝土柱6、底承台2、桩基1上下连通形成地铁车站和高架桥合建结构。
其中,底承台2与车站底板3的交接处采用1∶1斜面过渡,底承台2上层钢筋与车站底板3上层钢筋相同,底承台2下层钢筋锚入车站底板3内。此外,顶承台8与车站顶板9的交接处采用1∶1斜面过渡,顶承台8下层钢筋与车站顶板9下层钢筋相同,顶承台8上层钢筋锚入车站顶板9内。
具体来说,本发明的一种偏压的地铁车站与高架桥合建结构的施工方法包括按照设计图纸放线定位,施工底板以下为桩基1,底板标高以上为空桩、填充粗砂。
进一步,还包括围护结构12、止水桩13和支撑14,围护结构12为灌注桩、地下连续墙等其中的一种或两种及以上组合,位于车站板墙结构的外侧;止水桩13为旋喷桩、搅拌桩、注浆等止水形式的一种或两种及以上组合,设置在围护结构的外侧;支撑14为混凝土支撑、钢支撑等的一种或两种及以上组合,横向设置在两侧围护结构之间。
具体来说,施工方法包括按照设计图纸施工车站基坑围护结构12和止水桩13,并分层开挖至车站底板3底标高,基坑开挖过程中分层架设支撑14。
此外,开挖至基坑底后,修建底承台2及车站底板3,桩基1侵入底承台2部分桩头混凝土凿除,桩基1钢筋锚入底承台2,底承台2与周边车站底板3钢筋互锚,同步浇筑。待底承台2及车站底板3混凝土达到设计强度,安装钢管柱6(钢管柱分节安装,接口位置考虑后续装修美观,设置在中纵梁以下50mm)。
进一步,还包括加强侧墙4,加强侧墙4兼作车站侧墙5并与车站板墙结构的车站侧墙5一起浇筑。此外,加强侧墙4与钢管混凝土柱6工程承担顶承台8自重及上部荷载,并将轴力传递至底承台2及桩基1。其中,承台、加强侧墙与车站板墙同时浇筑,加强侧墙4、钢管混凝土柱6共同将顶承台8、车站顶板9及上部荷载传递至底承台2及桩基1。承台投影范围内的钢管混凝土柱6不少于2根。
具体来说,施工方法包括修建承台处加强侧墙4与其他车站侧墙5至设计标高,修建车站中板7。
进一步,还包括桥墩10、上部桥梁结构11,桥墩10钢筋与顶承台8连接。桥墩混凝土与车站顶板9混凝土同时浇筑或分期浇筑,车站顶板3施工预留钢筋接头与上部桥墩结构的钢筋连接在一起。
本发明通过桥墩10、顶承台8、加强侧墙4、车站板墙结构、钢管混凝土柱6、底承台2、桩基1上下连通形成地铁车站和高架桥合建结构。
具体来说,施工方法包括修建顶承台8及车站顶板9,顶承台8与周边车站顶板9钢筋互锚,同步浇筑,同时,顶承台预埋桥墩10接驳钢筋。修建桥墩10及上部桥梁结构11。
本发明公开了一种偏压的地铁车站与高架桥合建结构的施工方法,包含以下步骤:
步骤一,按照设计图纸放线定位,施工车站底板3以下桩基1,车站底板3标高以上为空桩、填充粗砂。
步骤二,按照设计图纸施工车站基坑围护结构12和止水桩13,并分层开挖至车站底板3底标高,基坑开挖过程中分层架设支撑14。
步骤三,开挖至基坑底后,修建底承台2及车站底板3,桩基1侵入底承台2部分桩头混凝土凿除,桩基1钢筋锚入底承台2,底承台2与周边车站底板3钢筋互锚,同步浇筑。
步骤四,待底承台2及车站底板3混凝土达到设计强度,安装钢管混凝土柱6,其中,钢管混凝土柱分节安装,接口位置考虑后续装修美观,设置在中纵梁以下45~55mm(优选50mm)。
步骤五,修建承台处加强侧墙4与其他车站侧墙5至设计标高,修建车站中板7。
步骤六,修建车站顶板9和顶承台8,顶承台8与周边车站顶板9钢筋互锚,同步浇筑,同时,顶承台预埋桥墩10接驳钢筋。
在步骤三至步骤六中,从下向上依次施作车站底板3、车站侧墙5、钢管混凝土柱6、车站中板7以及车站顶板9,同时施工底承台2、加强侧墙4,在车站板墙施工过程中依次拆除支撑,并在车站顶板9施工完后,拆除最上部支撑14。
步骤七,修建桥墩10,顶板上部回填,上部桥梁结构11。
本发明通过桥墩10、顶承台8、加强侧墙4、车站板墙结构、钢管混凝土柱6、底承台2、桩基1上下连通形成地铁车站和高架桥合建结构。
本发明的一种偏压的地铁车站与高架桥合建结构及施工方法,适用条件广、受规划制约少;克服了地铁车站和地面高架桥线位重叠时结构处理方案存在的不足,实现了地铁车站和高架桥平面线位不一致、车站柱距与高架桥跨度不完全匹配时的地铁车站和地面高架桥的合建;该结构具有结构受力明确、施工工序简单,地铁车站、高架桥相互施工干扰小、抗震性能更优的特点,同时拓展了城市地铁车站与高架桥合建的应用条件;本发明中的桥墩、顶承台、底承台、桩基与车站结构形成整体,地铁车站箱型结构作为高架桥基础的一部分,能够提高高架桥桥墩的抗震性能。
以上借助具体实施例对本发明做了进一步描述,但是应该理解的是,这里具体的描述,不应理解为对本发明的实质和范围的限定,本领域内的普通技术人员在阅读本说明书后对上述实施例做出的各种修改,都属于本发明所保护的范围。

Claims (9)

1.一种偏压的地铁车站与高架桥合建结构,其特征在于,包括:
车站板墙结构,包括通过钢管混凝土柱(6)相连的车站顶板(9)、车站中板(7)、车站底板(3)、车站侧墙(5);
底承台(2)和顶承台(8),底承台(2)与车站底板(3)固定浇筑在一起,顶承台(8)与车站顶板(9)固定浇筑在一起;以及
桥墩(10)和桩基(1),桥墩(10)设置在顶承台(8)的上部,桩基(1)锚入底承台(2)内且位于车站底板(3)以下,通过上下连通以形成地铁车站和高架桥合建结构。
2.根据权利要求1所述的合建结构,其特征在于,底承台(2)与车站底板(3)的交接处为斜面过渡,底承台(2)的上层钢筋与车站底板(3)上层钢筋相同,底承台(2)下层钢筋锚入车站底板(3)内。
3.根据权利要求1所述的合建结构,其特征在于,顶承台(8)与车站顶板(9)的交接处为斜面过渡,顶承台(8)的下层钢筋与车站顶板(9)下层钢筋相同,顶承台(8)上层钢筋锚入车站顶板(9)内。
4.根据权利要求1所述的合建结构,其特征在于,还包括:
围护结构(12),位于车站板墙结构的外侧;
止水桩(13),设置在围护结构(12)的外侧;以及
支撑(14),横向设置在围护结构之间。
5.根据权利要求1所述的合建结构,其特征在于,还包括加强侧墙(4),与车站板墙结构的车站侧墙(5)固定浇筑在一起。
6.根据权利要求1所述的合建结构,其特征在于,还包括上部桥梁结构(11),设置在桥梁(10)的顶部。
7.一种偏压的地铁车站与高架桥合建结构的施工方法,其特征在于,包括以下步骤:
步骤一,施工车站底板以下桩基(1),车站底板标高以上为空桩、填充粗砂;
步骤二,施工车站基坑围护结构(12)和止水桩(13),并分层开挖至车站底板3底标高,基坑开挖过程中分层架设支撑(14);
步骤三,开挖至基坑底后,修建底承台(2)及车站底板(3),桩基(1)侵入底承台(2)部分桩头混凝土凿除,桩基(1)钢筋锚入底承台(2),底承台(2)与车站底板(3)钢筋互锚,同步浇筑;
步骤四,待底承台(2)及车站底板(3)混凝土达到设计强度,安装钢管柱(6);
步骤五,修建承台处加强侧墙(4)与车站侧墙(5)至设计标高,修建车站中板(7);
步骤六,将顶承台(8)与车站顶板(9)钢筋互锚,同步浇筑;
步骤七,修建桥墩(10)及上部桥梁结构(11)。
8.根据权利要求7所述的施工方法,其特征在于,在步骤四中,安装钢管混凝土柱(6)分节安装,接口位置设置在中纵梁以下45-50mm。
9.根据权利要求7所述的施工方法,其特征在于,在步骤六中,顶承台(8)中预埋桥墩(10)接驳钢筋。
CN202010142379.5A 2020-03-04 2020-03-04 一种偏压的地铁车站与高架桥合建结构及施工方法 Active CN111218886B (zh)

Priority Applications (1)

Application Number Priority Date Filing Date Title
CN202010142379.5A CN111218886B (zh) 2020-03-04 2020-03-04 一种偏压的地铁车站与高架桥合建结构及施工方法

Applications Claiming Priority (1)

Application Number Priority Date Filing Date Title
CN202010142379.5A CN111218886B (zh) 2020-03-04 2020-03-04 一种偏压的地铁车站与高架桥合建结构及施工方法

Publications (2)

Publication Number Publication Date
CN111218886A true CN111218886A (zh) 2020-06-02
CN111218886B CN111218886B (zh) 2024-08-13

Family

ID=70826258

Family Applications (1)

Application Number Title Priority Date Filing Date
CN202010142379.5A Active CN111218886B (zh) 2020-03-04 2020-03-04 一种偏压的地铁车站与高架桥合建结构及施工方法

Country Status (1)

Country Link
CN (1) CN111218886B (zh)

Cited By (5)

* Cited by examiner, † Cited by third party
Publication number Priority date Publication date Assignee Title
CN111877175A (zh) * 2020-07-31 2020-11-03 重庆交通建设(集团)有限责任公司 上跨桥与轻轨车站共建区与非共建区施工方法
CN114411807A (zh) * 2022-01-19 2022-04-29 中铁四局集团第四工程有限公司 一种深厚软土地层地下车站结构及施工方法
CN115787710A (zh) * 2022-10-20 2023-03-14 湖南省交通规划勘察设计院有限公司 一种基于单柱车站的站桥合建结构及其施工方法
CN118309103A (zh) * 2024-06-07 2024-07-09 中国铁路设计集团有限公司 一种地铁车站与市政桥梁分离式合建结构及施工方法
CN118821294A (zh) * 2024-09-19 2024-10-22 中国铁路设计集团有限公司 一种多维融合设计的地铁车站建模方法

Citations (4)

* Cited by examiner, † Cited by third party
Publication number Priority date Publication date Assignee Title
CN108316344A (zh) * 2018-02-02 2018-07-24 北京市政建设集团有限责任公司 一种地铁站厅层的施工方法
CN208870081U (zh) * 2018-08-30 2019-05-17 中国电建集团铁路建设有限公司 一种地铁车站与市政桥梁结合的结构
CN209854704U (zh) * 2019-04-15 2019-12-27 贵州理工学院 一种市政桥梁桥桩兼作地铁车站围护桩的结构体系
CN211897785U (zh) * 2020-03-04 2020-11-10 中铁(天津)隧道工程勘察设计有限公司 一种偏压的地铁车站与高架桥合建结构

Patent Citations (4)

* Cited by examiner, † Cited by third party
Publication number Priority date Publication date Assignee Title
CN108316344A (zh) * 2018-02-02 2018-07-24 北京市政建设集团有限责任公司 一种地铁站厅层的施工方法
CN208870081U (zh) * 2018-08-30 2019-05-17 中国电建集团铁路建设有限公司 一种地铁车站与市政桥梁结合的结构
CN209854704U (zh) * 2019-04-15 2019-12-27 贵州理工学院 一种市政桥梁桥桩兼作地铁车站围护桩的结构体系
CN211897785U (zh) * 2020-03-04 2020-11-10 中铁(天津)隧道工程勘察设计有限公司 一种偏压的地铁车站与高架桥合建结构

Non-Patent Citations (1)

* Cited by examiner, † Cited by third party
Title
胡显鹏: ""地铁站与高架桥同期同位分离式合建方案设计研究",胡显鹏,第92-96页,《城市轨道交通研究》", 《城市轨道交通研究》, 10 December 2018 (2018-12-10), pages 92 - 96 *

Cited By (6)

* Cited by examiner, † Cited by third party
Publication number Priority date Publication date Assignee Title
CN111877175A (zh) * 2020-07-31 2020-11-03 重庆交通建设(集团)有限责任公司 上跨桥与轻轨车站共建区与非共建区施工方法
CN114411807A (zh) * 2022-01-19 2022-04-29 中铁四局集团第四工程有限公司 一种深厚软土地层地下车站结构及施工方法
CN115787710A (zh) * 2022-10-20 2023-03-14 湖南省交通规划勘察设计院有限公司 一种基于单柱车站的站桥合建结构及其施工方法
CN118309103A (zh) * 2024-06-07 2024-07-09 中国铁路设计集团有限公司 一种地铁车站与市政桥梁分离式合建结构及施工方法
CN118821294A (zh) * 2024-09-19 2024-10-22 中国铁路设计集团有限公司 一种多维融合设计的地铁车站建模方法
CN118821294B (zh) * 2024-09-19 2024-11-29 中国铁路设计集团有限公司 一种多维融合设计的地铁车站建模方法

Also Published As

Publication number Publication date
CN111218886B (zh) 2024-08-13

Similar Documents

Publication Publication Date Title
CN111218886B (zh) 一种偏压的地铁车站与高架桥合建结构及施工方法
CN109235499B (zh) 一种明挖地下建筑结构装配式施工方法
CN107119711B (zh) 一种大范围邻接既有换乘车站的衔接结构及施工方法
CN107558494B (zh) 一种轨道交通地下车站结构及其建造方法
CN106012797A (zh) 一种全地锚式独塔双跨斜拉桥结构及其施工方法
CN109403170B (zh) 陡坡道路及其施工方法
CN112983493B (zh) 一种盾构近距离下穿大断面桥涵的加固结构及施工方法
CN114718104B (zh) 一种明挖隧道结合桥梁托换一体化施工方法
CN112627002B (zh) 一种适用于隧道穿越巨型溶洞的连续梁桥及其施工技术方法
CN111139870A (zh) 既有地下室下方建造地铁车站的厚板托换盖挖半逆作法
CN116446926A (zh) 一种双洞密贴顶管形成整体式地铁车站的结构转换方法
CN210086295U (zh) 一种复合装配式地下结构
CN112761185B (zh) 工业化建造地下车站结构及施工方法
CN115726369B (zh) 一种地铁车站-高架桥同位合建抗震韧性结构及设计方法
CN110184903A (zh) 一种桁架式预制管柱拼装桥墩
CN211897785U (zh) 一种偏压的地铁车站与高架桥合建结构
CN114856616B (zh) 一种隧道施工方法及加固防护结构
CN113931212A (zh) 一种用于有轨电车的路桥过渡段结构及其施工方法
JP4685341B2 (ja) 高架橋の施工方法
JP2004332357A (ja) 立体交差道路の施工方法および立体交差道路
CN219653491U (zh) 一种适用于钢栈桥的钢结构桥台
CN214657223U (zh) 工业化建造地下车站结构
CN110735394A (zh) 索塔结构及其建造方法
CN117605481A (zh) 大断面地铁隧道超小净距上跨既有隧道的微变形控制方法
CN112376611B (zh) 一种分离式立交系统施工方法

Legal Events

Date Code Title Description
PB01 Publication
PB01 Publication
SE01 Entry into force of request for substantive examination
SE01 Entry into force of request for substantive examination
CB02 Change of applicant information
CB02 Change of applicant information

Country or region after: China

Address after: 300131 Qiaonan East Road, Hongqiao District, Tianjin City

Applicant after: CHINA RAILWAY TUNNEL SURVEY & DESIGN INSTITUTE Co.,Ltd.

Applicant after: CHINA RAILWAY LIUYUAN GROUP Co.,Ltd.

Address before: 300000 Hongqiao District, Tianjin City, Bridge South East Road

Applicant before: CHINA RAILWAY (TIANJIN) TUNNEL ENGINEERING SURVEY & DESIGN Co.,Ltd.

Country or region before: China

Applicant before: CHINA RAILWAY LIUYUAN GROUP Co.,Ltd.

GR01 Patent grant
GR01 Patent grant