CN111047964A - An experimental device for coordinating the size of architectural space and interior parts - Google Patents

An experimental device for coordinating the size of architectural space and interior parts Download PDF

Info

Publication number
CN111047964A
CN111047964A CN201911290731.3A CN201911290731A CN111047964A CN 111047964 A CN111047964 A CN 111047964A CN 201911290731 A CN201911290731 A CN 201911290731A CN 111047964 A CN111047964 A CN 111047964A
Authority
CN
China
Prior art keywords
side enclosure
side wall
units
enclosure panel
unit
Prior art date
Legal status (The legal status is an assumption and is not a legal conclusion. Google has not performed a legal analysis and makes no representation as to the accuracy of the status listed.)
Granted
Application number
CN201911290731.3A
Other languages
Chinese (zh)
Other versions
CN111047964B (en
Inventor
李桦
李文
李晓明
朱茜
于立晗
姜中天
徐娜
曲潇然
周皓然
黄文涛
Current Assignee (The listed assignees may be inaccurate. Google has not performed a legal analysis and makes no representation or warranty as to the accuracy of the list.)
Beijing University of Technology
Original Assignee
Beijing University of Technology
Priority date (The priority date is an assumption and is not a legal conclusion. Google has not performed a legal analysis and makes no representation as to the accuracy of the date listed.)
Filing date
Publication date
Application filed by Beijing University of Technology filed Critical Beijing University of Technology
Priority to CN201911290731.3A priority Critical patent/CN111047964B/en
Publication of CN111047964A publication Critical patent/CN111047964A/en
Application granted granted Critical
Publication of CN111047964B publication Critical patent/CN111047964B/en
Active legal-status Critical Current
Anticipated expiration legal-status Critical

Links

Images

Classifications

    • GPHYSICS
    • G09EDUCATION; CRYPTOGRAPHY; DISPLAY; ADVERTISING; SEALS
    • G09BEDUCATIONAL OR DEMONSTRATION APPLIANCES; APPLIANCES FOR TEACHING, OR COMMUNICATING WITH, THE BLIND, DEAF OR MUTE; MODELS; PLANETARIA; GLOBES; MAPS; DIAGRAMS
    • G09B25/00Models for purposes not provided for in G09B23/00, e.g. full-sized devices for demonstration purposes
    • G09B25/04Models for purposes not provided for in G09B23/00, e.g. full-sized devices for demonstration purposes of buildings

Landscapes

  • Engineering & Computer Science (AREA)
  • Business, Economics & Management (AREA)
  • Physics & Mathematics (AREA)
  • Educational Administration (AREA)
  • Educational Technology (AREA)
  • General Physics & Mathematics (AREA)
  • Theoretical Computer Science (AREA)
  • Instructional Devices (AREA)

Abstract

本发明涉及一种用于建筑空间与内装部品尺寸协调的实验装置,该实验装置为由顶板、侧围板和底板围合而成的空间体,所述底板上设置有相交的轨道,所述顶板上设置有与底板上的轨道相对应的滑轨;所述侧围板由依次抵接的第一侧围板、第二侧围板、第三侧围板和第四侧围板围合而成,所述第一侧围板、第二侧围板与底板、顶板固定连接,所述第三侧围板、第四侧围板与底板、顶板滑动连接;所述第三侧围板和第四侧围板均由多个竖向并排布置的侧围板单元组成,相邻侧围板单元之间具有相互配合以使相邻侧围板单元相互固定的配合件。本发明用于测试住宅各功能空间尺寸与内装部品规格之间的相互协调尺寸关系,为形成我国住宅内装部品通用尺寸系列提供数据支撑。

Figure 201911290731

The invention relates to an experimental device for coordinating the dimensions of architectural space and interior parts. The experimental device is a space body enclosed by a top plate, a side wall and a bottom plate. The bottom plate is provided with intersecting rails. The top plate is provided with a sliding rail corresponding to the track on the bottom plate; the side enclosure is enclosed by the first side enclosure, the second side enclosure, the third side enclosure and the fourth side enclosure that are in contact with each other in sequence The first side enclosure and the second side enclosure are fixedly connected to the bottom panel and the top panel, the third side enclosure panel and the fourth side enclosure panel are slidably connected to the bottom panel and the top panel; the third side enclosure panel Both the and the fourth side enclosure are composed of a plurality of side enclosure units arranged vertically side by side, and the adjacent side enclosure units are provided with fittings that cooperate with each other to fix the adjacent side enclosure units to each other. The invention is used to test the mutual coordinated size relationship between the dimensions of various functional spaces of the house and the specifications of interior parts, and provides data support for forming a general size series of domestic interior parts in my country.

Figure 201911290731

Description

Experimental device for be used for building space and interior portion article size coordination
Technical Field
The invention relates to the field of building space experimental equipment, in particular to an experimental device for coordinating building space and sizes of internal components.
Background
At present, the national building space size and the specification of building materials and internal components have no mutually unified and coordinated size design rule, and particularly, the loss of the general specification and size parameter series of the internal components of the house restricts the improvement of the industrial standardization level of the whole industry. In the prior art, equipment or a device for providing experimental tests for establishing the general specifications of various built-in parts of residences in China is urgently needed.
The existing building module coordination standard is mainly used for standardizing the size grading rule of a building space, solving the general specification of self-construction accessories of a building, and not only lacks systematic theoretical research but also has no reliable experimental data for the specification and the size of internal components matched with the space size. In view of the above, the present invention provides an experimental apparatus for testing and experiments of coordination between building space and sizes of interior components, and provides an experimental platform for establishing general specifications of residential components in China.
Disclosure of Invention
The invention aims to provide an experimental device for coordinating building space and size of an internal component, so as to solve the defects in the prior art, and the technical problem to be solved by the invention is realized by the following technical scheme.
An experimental facility for coordinating building space and interior component size, the improvement comprising: the experimental device is a spatial body formed by enclosing a top plate, side enclosing plates and a bottom plate, wherein the bottom plate is provided with crossed rails, and the top plate is provided with slide rails corresponding to the rails on the bottom plate; the side enclosing plates are formed by enclosing a first side enclosing plate, a second side enclosing plate, a third side enclosing plate and a fourth side enclosing plate which are sequentially abutted, the first side enclosing plate and the second side enclosing plate are fixedly connected with the bottom plate and the top plate, and the third side enclosing plate and the fourth side enclosing plate are slidably connected with the bottom plate and the top plate; the third side wall plate and the fourth side wall plate are both composed of a plurality of side wall plate units which are arranged side by side in the vertical direction, and matching parts which are matched with each other to ensure that the adjacent side wall plate units are fixed with each other are arranged between the adjacent side wall plate units; the top of the side enclosing plate unit is provided with a sliding part which slides along the sliding rail, and the bottom of the side enclosing plate unit is provided with a rolling part which moves along the rail.
Preferably, the first side enclosure, the second side enclosure, and the floor are imprinted with a modular grid on the surface facing the interior of the spatial volume.
Preferably, the surfaces of the first side enclosing plate, the second side enclosing plate and the bottom plate facing the inside of the spatial body are imprinted with a modulus grid at a grid pitch of 20mm, 30mm, 50mm, 100mm, 150mm, 200mm or 300 mm.
Preferably, the width of the side coaming unit on the third coaming is 100mm, and the width of the side coaming unit on the fourth coaming is 150 mm; or the width of the side boarding unit on the third side boarding is 150mm, and the width of the side boarding unit on the fourth side boarding is 100 mm.
Preferably, the first side enclosing plate and the second side enclosing plate are both detachably and fixedly connected with the bottom plate and the top plate. Furthermore, the detachable fixed connection adopts screw connection or insertion connection.
Preferably, the fitting piece is a convex block or a convex strip which is matched with the contact surface of the adjacent side gusset plate units.
Preferably, the rail is concavely arranged in the bottom plate or convexly arranged on the upper surface of the bottom plate, and the slide rail is concavely arranged in the top plate.
Preferably, the slide rail is a T-shaped groove.
Preferably, the rolling elements comprise at least one row of pulley blocks.
Preferably, each row of pulley blocks comprises at least two pulleys.
Preferably, the adjacent side coaming units in the third side coaming and the fourth side coaming are formed by splicing a plurality of side coaming units, and the width of each side coaming unit is equal or unequal.
Preferably, in the side wall plate units adjacent to the third side wall plate and the fourth side wall plate, the side wall plate unit on the third side wall plate is formed by splicing a plurality of side wall plate units with the width of 20mm, and the side wall plate unit on the fourth side wall plate is formed by splicing a plurality of side wall plate units with the width of 30 mm; or, in the side wall plate units adjacent to the third side wall plate and the fourth side wall plate, the side wall plate unit on the third side wall plate is formed by splicing a plurality of side wall plate units with the width of 30mm, and the side wall plate unit on the fourth side wall plate is formed by splicing a plurality of side wall plate units with the width of 20 mm.
Preferably, magnetic suction pieces which are mutually adsorbed are arranged between the adjacent single side wall plate units.
Preferably, the side boarding units on the third and the fourth side boarding are equal in height.
Preferably, the height of the side boarding units on the third and the fourth side boarding is not equal, and the top of the side boarding unit with low height is not provided with a sliding piece;
preferably, a plurality of internal components are arranged in the space body, and the length and width of the internal components are increased or decreased by constant value;
preferably, the quantitative value is 60mm, 100mm or 150 mm.
The invention is a full-scale model for testing, collecting and analyzing the coordination experiment between the residential building space and the specification and the size of the built-in components; the device is used for analyzing the mutual coordination relation among different part specifications, geometric shapes, functional sizes and space sizes. The space device of the invention is used with the model of the built-in part, the tested space and part specification can be the module size, also can be the non-module size, when simulating the relation of the non-module size, can be used for the flexible module, namely the ideal quantity of the non-standard product control. The invention is equal-ratio full-scale experimental equipment, can test, collect and analyze relevant data of interaction relation between different modulus products and people, and provides experimental data for relation between the products and human use factors in the formulation of general specifications of parts.
The invention relates to an experimental device for coordinating building space and sizes of built-in components, which can provide an experimental platform for formulating general specifications of residential components in China. The invention can be used for testing the mutual coordination size relationship between the size of each functional space of the house and the specification of the internal components; the detection part size specification is universal in specification applicability under different space size conditions, and data support is provided for forming universal size series of parts in houses in China; analyzing superior factors such as the current international and national building space modulus size standard and the like, and providing data making and inspection basis for establishing a universal component size parameter series which can be in orbit with international universal rules and adapt to the national conditions of China; providing a proof reference for theoretical data and ideal targets that are adapted to the most possible spatial conditions in an exhaustive manner, with a minimum number of universal sizes; the method is used for detecting the goodness of fit between theoretical data and actual requirements, so that the universal specification series can achieve mutual replacement of parts with different performances and different functions, the standardization, universalization, serialization, combinatization and modularization levels of the manufacturing industry of the parts are improved, and a solution is provided for the part construction and market supply of the house interior.
Drawings
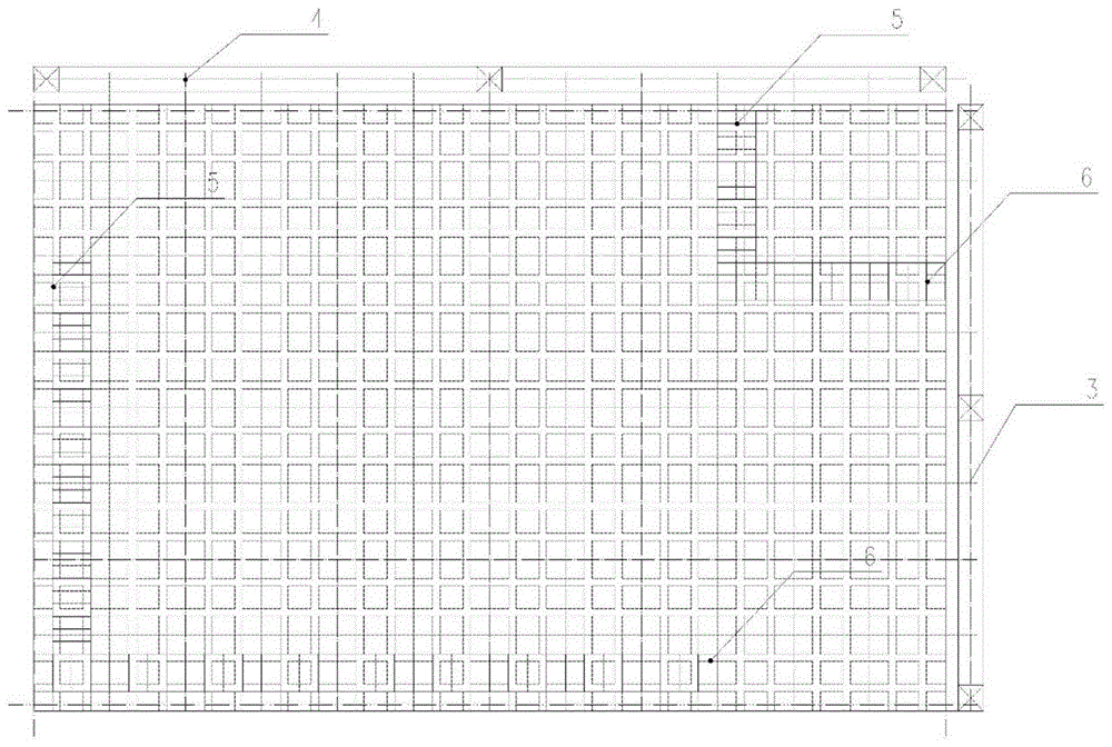
FIG. 1 is a schematic view of the overall structure of the present invention;
FIG. 2 is a schematic structural diagram of a track according to the present invention;
FIG. 3 is a schematic structural diagram of another track of the present invention;
FIG. 4 is a schematic top view of the present invention;
FIG. 5 is a schematic diagram of the structure of the present invention with an imprinted modular grid;
the reference numbers in the drawings are, in order: 1. roof, 2, bottom plate, 3, first side bounding wall, 4, second side bounding wall, 5, third side bounding wall, 6, fourth side bounding wall.
Detailed Description
It should be noted that the embodiments and features of the embodiments in the present application may be combined with each other without conflict. The present invention will be described in detail below with reference to the embodiments with reference to the attached drawings.
Example 1:
referring to fig. 1 and 2, an experimental device for coordinating building space and internal component size is improved by the following steps: the experimental device is a spatial body formed by enclosing a top plate, side enclosing plates and a bottom plate, wherein the bottom plate is provided with crossed rails, and the top plate is provided with slide rails corresponding to the rails on the bottom plate; the side enclosing plates are formed by enclosing a first side enclosing plate, a second side enclosing plate, a third side enclosing plate and a fourth side enclosing plate which are sequentially abutted, the first side enclosing plate and the second side enclosing plate are fixedly connected with the bottom plate and the top plate, and the third side enclosing plate and the fourth side enclosing plate are slidably connected with the bottom plate and the top plate; the third side wall plate and the fourth side wall plate are both composed of a plurality of side wall plate units which are arranged side by side in the vertical direction, and matching parts which are matched with each other to ensure that the adjacent side wall plate units are fixed with each other are arranged between the adjacent side wall plate units; the top of the side enclosing plate unit is provided with a sliding part which slides along the sliding rail, and the bottom of the side enclosing plate unit is provided with a rolling part which moves along the rail.
In this embodiment, the rail, the slide rail, and the side wall units on the third side wall and the fourth side wall are used to surround different spaces for performing the experiment of size coordination. The rolling members are mainly used for the movement of the side wall panel unit. The slider mainly plays the side bounding wall and carries on spacingly to the side bounding wall unit when removing to guarantee the cooperation precision of adjacent side bounding wall unit, reduce the error.
Example 2:
in addition to example 1, the surfaces of the first side enclosure, the second side enclosure, and the bottom panel facing the interior of the spatial volume are imprinted with a modular grid.
Preferably, in this embodiment, the surfaces of the first side enclosing plate, the second side enclosing plate and the bottom plate facing the inside of the spatial body are imprinted with a module grid at a grid interval of 20mm, 30mm, 50mm, 100mm, 150mm, 200mm or 300 mm.
In this embodiment, the sizes of the space and the part can be clearly known by imprinting the modulus grid, and a foot size experimental model designed by the space and part integrated modulus is formed. By setting an imprinting modulus grid of 20mm, 30mm, 50mm, 100mm, 150mm, 200mm or 300mm, experimental data and basis of relevant parameters are provided for setting a preferential size series of the internal components.
Example 3:
on the basis of embodiment 1 or 2, the width of the side boarding unit on the third side boarding is 100mm, and the width of the side boarding unit on the fourth side boarding is 150 mm; or the width of the side boarding unit on the third side boarding is 150mm, and the width of the side boarding unit on the fourth side boarding is 100 mm.
In this embodiment, the third side wall and the fourth side wall respectively form a stable wall surface with equal difference increment of 100mm and 150mm, or respectively form a stable wall surface with equal difference increment of 150mm and 100 mm.
In this embodiment, the reason why the width of the side wall plate unit is set to be 100mm or 150mm is that the international standard of increment of the internal components in the building space in the prior art is 200mm or 300mm, and the size of the internal components can be conveniently tested to determine whether the internal components are harmonious by adopting half of the international standard. The width of the side wall plate unit of the third side wall plate and the fourth side wall plate is set to be 100mm, 150mm or 150mm, 100mm, so that the simultaneous test of two increment standards of the internal components can be realized. By arranging 100mm and/or 150mm arithmetic increment unit modules, experimental data and basis of relevant parameters are provided for formulating a priority size series of each functional space in the set.
Example 4:
on the basis of any one of the above embodiments, the first side enclosing plate and the second side enclosing plate are both detachably and fixedly connected with the bottom plate and the top plate.
Further, in this embodiment, the detachable fixed connection is a screw connection or an insertion connection.
In this embodiment, because third bounding wall, fourth bounding wall and bottom plate, roof sliding fit, third bounding wall, fourth bounding wall respectively with second bounding wall, first side bounding wall butt to can dismantle third bounding wall, fourth bounding wall from whole experimental apparatus. In order to guarantee the detachability of whole experimental apparatus, satisfy whole experimental apparatus's removal convenience promptly, set detachable fixed connection to first side bounding wall, second side bounding wall and bottom plate, roof, adopt spiro union or grafting or other detachable fixed connection's mode promptly to the realization can be with whole experimental apparatus's dismantlement reorganization.
Example 5:
on the basis of any one of the above embodiments, the mating members are protrusions or convex strips that are matched with each other and arranged on the contact surfaces of the adjacent side gusset units.
Furthermore, the fitting pieces can be arranged into L-shaped inserting strips which are mutually matched, namely the L-shaped inserting strips which can be mutually buckled are respectively arranged on the contact surfaces of the adjacent side wall plate units, so that the adjacent side wall plate units are mutually fixed, the surface deformation of the third side wall plate and the fourth side wall plate is reduced, and the fitting error between the parts in the building space and the inner side surface of the building space is reduced.
Example 6:
on the basis of any one of the above embodiments, the rail is concavely arranged in the bottom plate or convexly arranged on the upper surface of the bottom plate, and the slide rail is concavely arranged in the top plate.
Example 7:
on the basis of any one of the above embodiments, the slide rail is a T-shaped groove.
In this embodiment, the slide rail adopts the T-shaped groove, and the slider of corresponding side wall board unit upper end also can adopt T shape component, and the design of T shape except can playing limiting displacement, guarantees that side wall board unit removes and adjacent side wall board unit intercomplex precision, can also play certain bearing effect.
Further, the slide rail can also be a rectangular groove, an inverted L-shaped groove or a dovetail groove, and correspondingly, the sliding part at the upper end of the side wall plate unit is also in a shape matched with the slide rail.
Example 8:
on the basis of any of the preceding embodiments, the rolling elements comprise at least one row of pulley blocks.
In this embodiment, the pulley block is provided to facilitate the movement of the side wall panel unit, and the pulley block slides along the rail provided on the bottom plate, thereby realizing the movement of part or all of the third side wall panel and the fourth side wall panel.
Example 9:
on the basis of embodiment 8, the pulley block comprises at least two pulleys.
In the embodiment, because the tracks matched with the pulleys are in a grid shape, when the number of the pulleys is one, the pulleys are easily clamped at the intersection of the tracks; when the number of the pulleys is two or more, at least one pulley can play a limiting role, namely, at least one pulley limits the front end or the rear end of the pulley in the track.
Example 10:
on the basis of any one of the embodiments, the adjacent side coaming units in the third side coaming and the fourth side coaming are formed by splicing a plurality of side coaming units, and the width of each side coaming unit is equal or unequal.
In this embodiment, adjacent side coaming units in the third and fourth side coamings are formed by splicing a plurality of single side coaming units, and the single side coaming units and the remaining side coaming units can be used for simulating the space of the existing nonstandard incremental advanced building, so that the universality of the experimental device is improved.
Example 11:
on the basis of any one of the above embodiments, in the side wall plate units adjacent to the third side wall plate and the fourth side wall plate, the side wall plate unit on the third side wall plate is formed by splicing a plurality of side wall plate units with the width of 20mm, and the side wall plate unit on the fourth side wall plate is formed by splicing a plurality of side wall plate units with the width of 30 mm; or, in the side wall plate units adjacent to the third side wall plate and the fourth side wall plate, the side wall plate unit on the third side wall plate is formed by splicing a plurality of side wall plate units with the width of 30mm, and the side wall plate unit on the fourth side wall plate is formed by splicing a plurality of side wall plate units with the width of 20 mm.
In this embodiment, the side wall plate units adjacent to the third and fourth side wall plates are formed by splicing a plurality of 20mm or 30mm side wall plate units, and the space of the existing nonstandard incremental advanced building can be simulated by using the single side wall plate units and the remaining side wall plate units, so that the universality of the experimental device is improved.
Example 12:
on the basis of embodiment 11, the magnetic attraction pieces which are mutually attracted are arranged between the adjacent single side wall plate units.
In this embodiment, utilize magnetism to inhale the piece and fix adjacent side bounding wall unit list to guarantee the precision of complex.
Example 13:
on the basis of any one of the above embodiments, the height of the side enclosure units on the third and fourth side enclosures is equal.
In this embodiment, the heights of the side coaming units are set to be equal, so that the third and fourth coamings can be conveniently assembled. Meanwhile, the position of a door in a building space can be simulated by utilizing the side wall plate unit, so that the building space simulated by the experimental device is closer to an entity building space.
Example 14:
on the basis of any one of embodiments 1 to 12, the height of the side boarding units on the third and the fourth side boarding units is not equal, and the top of the side boarding unit with the lower height is not provided with a sliding piece.
In this embodiment, the heights of the side boarding units on the third and fourth side fences are set to be unequal, so that the positions of the doors in the building space can be simulated by using the side boarding units with the same height and the higher height, and the positions of the windows in the building space can also be simulated by using the side boarding units with the same height and the lower height. For example, a plurality of side boarding units with equal height and lower height are arranged at positions where windows need to be simulated, and then the space is enclosed by the side boarding units and the rest side boarding units, so that the windows are formed at the side boarding units with equal height and lower height.
Example 15:
in any of the above embodiments, a plurality of internal components are arranged in the space body, and the length and width dimensions of the internal components increase and decrease with constant difference in quantitative values.
In the present embodiment, a plurality of interior components are arranged in a space surrounded by a top plate, side panels, and a bottom plate, and the length and width dimensions of the interior components are increased or decreased with constant difference in quantitative values, so that the length and width dimensions of the interior components can be made into a universal specification series. Interior components having a common specification are used as interior components of the spatial volume, thereby facilitating matching of the dimensions of the spatial volume.
In this embodiment, the quantitative value is 60mm, 100mm or 150 mm.
The quantitative value of the increase and decrease of the equal difference is set to 60mm, 100mm or 150mm because the minimum size of the interior components is 10mm in the existing building module coordination standard, that is, one module of the interior components is 10 mm. The expansion modulus of the internal components can be two moduli, namely 20 mm; three moduli, i.e. 30mm, are also possible; but may also be five modules, i.e. 50 mm. Since the common specification size series of the internal components should satisfy at least two expansion modulus specifications, the quantitative value of the arithmetic difference of the preferred size series of the internal components is set to 60mm, 100mm or 150 mm.
It should be noted that the above detailed description is exemplary and is intended to provide further explanation of the disclosure. Unless defined otherwise, all technical and scientific terms used herein have the same meaning as commonly understood by one of ordinary skill in the art to which this application belongs.
It is noted that the terminology used herein is for the purpose of describing particular embodiments only and is not intended to be limiting of example embodiments according to the present application. As used herein, the singular is intended to include the plural unless the context clearly dictates otherwise. Furthermore, it will be further understood that the terms "comprises" and/or "comprising," when used in this specification, specify the presence of stated features, steps, operations, devices, components, and/or combinations thereof.
It should be noted that the terms "first," "second," and the like in the description and claims of this application and in the drawings described above are used for distinguishing between similar elements and not necessarily for describing a particular sequential or chronological order. It is to be understood that the terms so used are interchangeable under appropriate circumstances such that the embodiments of the application described herein are capable of operation in other sequences than those illustrated or otherwise described herein.
Furthermore, the terms "comprising" and "having," as well as any variations thereof, are intended to cover non-exclusive inclusions. For example, a process, method, system, article, or apparatus that comprises a list of steps or elements is not necessarily limited to those steps or elements explicitly listed, but may include other steps or elements not explicitly listed or inherent to such process, method, article, or apparatus.
Spatially relative terms, such as "above … …," "above … …," "above … …," "above," and the like, may be used herein for ease of description to describe one device or feature's spatial relationship to another device or feature as illustrated in the figures. It will be understood that the spatially relative terms are intended to encompass different orientations of the device in use or operation in addition to the orientation depicted in the figures. For example, if a device in the figures is turned over, devices described as "above" or "on" other devices or configurations would then be oriented "below" or "under" the other devices or configurations. Thus, the exemplary term "above … …" can include both an orientation of "above … …" and "below … …". The device may also be oriented in other different ways, such as by rotating it 90 degrees or at other orientations, and the spatially relative descriptors used herein interpreted accordingly.
In the foregoing detailed description, reference is made to the accompanying drawings, which form a part hereof. In the drawings, like numerals typically identify like components, unless context dictates otherwise. The illustrated embodiments described in the detailed description, drawings, and claims are not meant to be limiting. Other embodiments may be utilized, and other changes may be made, without departing from the spirit or scope of the subject matter presented here.
The above description is only a preferred embodiment of the present invention and is not intended to limit the present invention, and various modifications and changes may be made by those skilled in the art. Any modification, equivalent replacement, or improvement made within the spirit and principle of the present invention should be included in the protection scope of the present invention.

Claims (10)

1.一种用于建筑空间与内装部品尺寸协调的实验装置,其特征在于:该实验装置为由顶板、侧围板和底板围合而成的空间体,所述底板上设置有相交的轨道,所述顶板上设置有与底板上的轨道相对应的滑轨;所述侧围板由依次抵接的第一侧围板、第二侧围板、第三侧围板和第四侧围板围合而成,所述第一侧围板、第二侧围板与底板、顶板固定连接,所述第三侧围板、第四侧围板与底板、顶板滑动连接;所述第三侧围板和第四侧围板均由多个竖向并排布置的侧围板单元组成,相邻侧围板单元之间具有相互配合以使相邻侧围板单元相互固定的配合件;所述侧围板单元的顶部设有沿滑轨滑动的滑动件,所述侧围板单元的底部设有沿轨道移动的滚动件。1. a kind of experiment device that is used for the coordination of the size of building space and interior parts, it is characterized in that: this experiment device is a space body enclosed by top plate, side wall and bottom plate, and the bottom plate is provided with an intersecting track The top plate is provided with a slide rail corresponding to the track on the bottom plate; The first side wall and the second side wall are fixedly connected with the bottom plate and the top plate, and the third side wall and the fourth side wall are slidingly connected with the bottom plate and the top plate. Both the side enclosure panel and the fourth side enclosure panel are composed of a plurality of side enclosure panel units arranged vertically side by side, and the adjacent side enclosure panel units have fittings that cooperate with each other to fix the adjacent side enclosure panel units to each other; so The top of the side wall unit is provided with a sliding member that slides along the slide rail, and the bottom of the side wall unit is provided with a rolling member that moves along the track. 2.根据权利要求1所述的一种用于建筑空间与内装部品尺寸协调的实验装置,其特征在于:所述第一侧围板、第二侧围板和底板朝向空间体内部的表面上印刻有模数网格。2. An experimental device for coordinating the size of building space and interior parts according to claim 1, wherein: the first side shroud, the second side shroud and the bottom plate are on the surface facing the interior of the space body Imprinted with a modulo grid. 3.根据权利要求2所述的一种用于建筑空间与内装部品尺寸协调的实验装置,其特征在于:所述第一侧围板、第二侧围板和底板朝向空间体内部的表面上以20mm、30mm、50mm、100mm、150mm、200mm或300mm为网格间距印刻有模数网格。3. An experimental device for the coordination of the size of building space and interior parts according to claim 2, characterized in that: the first side shroud, the second side shroud and the bottom plate are on the surface facing the interior of the space body Modular grids are imprinted with grid spacing of 20mm, 30mm, 50mm, 100mm, 150mm, 200mm or 300mm. 4.根据权利要求1所述的一种用于建筑空间与内装部品尺寸协调的实验装置,其特征在于:所述第三侧围板上的侧围板单元的宽度为100mm,所述第四侧围板上的侧围板单元的宽度为150mm;或者所述第三侧围板上的侧围板单元的宽度为150mm,所述第四侧围板上的侧围板单元的宽度为100mm。4. An experimental device for coordinating the size of building space and interior parts according to claim 1, characterized in that: the width of the side hoarding unit on the third side hoarding is 100mm, and the fourth The width of the side wall unit on the side wall is 150mm; or the width of the side wall unit on the third side wall is 150mm, and the width of the side wall unit on the fourth side wall is 100mm . 5.根据权利要求1所述的一种用于建筑空间与内装部品尺寸协调的实验装置,其特征在于:所述第一侧围板、第二侧围板均与底板、顶板可拆卸式固定连接。5. A kind of experiment device for the coordination of building space and interior parts size according to claim 1, it is characterized in that: described first side enclosure plate and second side enclosure plate are detachably fixed with bottom plate and top plate connect. 6.根据权利要求1所述的一种用于建筑空间与内装部品尺寸协调的实验装置,其特征在于:所述配合件为相邻侧围板单元的接触面上相互匹配设置的凸块或凸条。6 . An experimental device for coordinating the size of building space and interior parts according to claim 1 , wherein the fittings are mutually matched bumps or Ribs. 7.根据权利要求1所述的一种用于建筑空间与内装部品尺寸协调的实验装置,其特征在于:所述轨道凹设于底板中或凸设于底板上表面,所述滑轨凹设于顶板中。7 . An experimental device for coordinating the size of building space and interior parts according to claim 1 , wherein the rail is recessed in the bottom plate or protruding on the upper surface of the bottom plate, and the slide rail is recessed. 8 . in the top plate. 8.根据权利要求1所述的一种用于建筑空间与内装部品尺寸协调的实验装置,其特征在于:所述滑轨为T形槽。8 . An experimental device for coordinating the size of building space and interior parts according to claim 1 , wherein the sliding rail is a T-shaped groove. 9 . 9.根据权利要求1-8所述的一种用于建筑空间与内装部品尺寸协调的实验装置,其特征在于:所述滚动件包括至少一排滑轮组。9 . An experimental device for coordinating the size of building space and interior parts according to claim 1 , wherein the rolling element comprises at least one row of pulley blocks. 10 . 10.根据权利要求9所述的一种用于建筑空间与内装部品尺寸协调的实验装置,其特征在于:所述每排滑轮组包括至少两个滑轮;10. An experimental device for coordinating the size of building space and interior parts according to claim 9, wherein each row of pulley blocks comprises at least two pulleys; 优选的,所述第三侧围板和第四侧围板中相邻的侧围板单元均由多个侧围板单元单条拼接而成,所述侧围板单元单条的宽度相等或不相等;Preferably, the adjacent side enclosure panel units in the third side enclosure panel and the fourth side enclosure panel are formed by splicing a plurality of single side enclosure panel units, and the widths of the single side enclosure panel units are equal or unequal. ; 优选的,所述第三侧围板和第四侧围板相邻的侧围板单元中,第三侧围板上的侧围板单元由多个宽度为20mm的侧围板单元单条拼接而成,第四侧围板上的侧围板单元由多个宽度为30mm的侧围板单元单条拼接而成;或者,所述第三侧围板和第四侧围板相邻的侧围板单元中,第三侧围板上的侧围板单元由多个宽度为30mm的侧围板单元单条拼接而成,第四侧围板上的侧围板单元由多个宽度为20mm的侧围板单元单条拼接而成;Preferably, in the side enclosure panel units adjacent to the third side enclosure panel and the fourth side enclosure panel, the side enclosure panel unit on the third side enclosure panel is formed by splicing a plurality of side enclosure panel units with a width of 20mm. The side enclosure panel unit on the fourth side enclosure panel is formed by splicing a plurality of side enclosure panel units with a width of 30mm; or, the side enclosure panel adjacent to the third side enclosure panel and the fourth side enclosure panel In the unit, the side enclosure unit on the third side enclosure is composed of multiple side enclosure units with a width of 30mm, and the side enclosure unit on the fourth side enclosure is composed of multiple side enclosures with a width of 20mm. The board unit is spliced into a single piece; 优选的,相邻侧围板单元单条之间设有相互吸附的磁吸件;Preferably, a magnetic attraction piece that is mutually adsorbed is provided between the adjacent side wall unit single strips; 优选的,所述第三、四侧围板上的侧围板单元的高度相等;Preferably, the heights of the side shroud units on the third and fourth side shrouds are equal; 优选的,所述第三、四侧围板上的侧围板单元的高度不相等,高度低的侧围板单元的顶部不设滑动件;Preferably, the heights of the side enclosure units on the third and fourth side enclosures are not equal, and the top of the side enclosure unit with the lower height is not provided with a sliding member; 优选的,所述空间体内布设有多个内装部品,所述内装部品的长宽尺寸以定量值等差增减;Preferably, a plurality of interior parts are arranged in the space, and the length and width of the interior parts are increased or decreased by quantitative values; 优选的,所述定量值为60mm、100mm或150mm。Preferably, the quantitative value is 60mm, 100mm or 150mm.
CN201911290731.3A 2019-12-16 2019-12-16 Experimental device for be used for building space and interior portion article size coordination Active CN111047964B (en)

Priority Applications (1)

Application Number Priority Date Filing Date Title
CN201911290731.3A CN111047964B (en) 2019-12-16 2019-12-16 Experimental device for be used for building space and interior portion article size coordination

Applications Claiming Priority (1)

Application Number Priority Date Filing Date Title
CN201911290731.3A CN111047964B (en) 2019-12-16 2019-12-16 Experimental device for be used for building space and interior portion article size coordination

Publications (2)

Publication Number Publication Date
CN111047964A true CN111047964A (en) 2020-04-21
CN111047964B CN111047964B (en) 2021-11-16

Family

ID=70236606

Family Applications (1)

Application Number Title Priority Date Filing Date
CN201911290731.3A Active CN111047964B (en) 2019-12-16 2019-12-16 Experimental device for be used for building space and interior portion article size coordination

Country Status (1)

Country Link
CN (1) CN111047964B (en)

Citations (16)

* Cited by examiner, † Cited by third party
Publication number Priority date Publication date Assignee Title
JP2002097643A (en) * 2000-09-26 2002-04-02 Penta Ocean Constr Co Ltd Form lift control method in slip form method
EP1215467A2 (en) * 2000-12-15 2002-06-19 Tobishima Corporation Photo survey service system
KR20020091467A (en) * 2001-05-30 2002-12-06 김동선 architecture modelling kit
CN2667034Y (en) * 2003-10-23 2004-12-29 优美股份有限公司 Structure for changing space design
CN104091517A (en) * 2014-07-17 2014-10-08 莫咸明 Simulation model used for demonstrating indoor building decoration
CN104166749A (en) * 2014-05-05 2014-11-26 李桦 Modularized system and design method for housing industrialization construction and part assembly
CN104794981A (en) * 2015-05-07 2015-07-22 莫咸明 Simulation combination model for demonstrating interior architecture decoration
CN105136195A (en) * 2015-07-23 2015-12-09 山东大学 Porous medium penetration slip-casting multi-parameter monitoring device and test method thereof
CN103993664B (en) * 2014-05-20 2015-12-23 东南大学 A kind of assembly type light house and construction thereof, method for dismounting
CN106023779A (en) * 2016-06-27 2016-10-12 安徽省艺凌模型设计有限公司 Modular building model
CN206849325U (en) * 2017-04-26 2018-01-05 宿迁学院 A kind of instructional device for architectural design
CN207337775U (en) * 2017-07-22 2018-05-08 广州汉威装饰工程有限公司 A kind of simulation model for demonstrating interior architecture decorations
CN207764061U (en) * 2018-01-17 2018-08-24 云南顺筑装配式房屋科技有限公司 A kind of low-carbon light-gauge steel section assembled architecture wall shearing resistance experimental provision
US20190032328A1 (en) * 2017-07-27 2019-01-31 RAD Urban, Inc. Prefabricated modular buildings
CN109564690A (en) * 2016-07-22 2019-04-02 帝国科技及医学学院 Use the size of multidirectional camera assessment enclosure space
KR101990472B1 (en) * 2018-11-13 2019-06-18 주식회사 제이엠시스템즈 Fire Detector Installing and Uninstalling Device

Patent Citations (16)

* Cited by examiner, † Cited by third party
Publication number Priority date Publication date Assignee Title
JP2002097643A (en) * 2000-09-26 2002-04-02 Penta Ocean Constr Co Ltd Form lift control method in slip form method
EP1215467A2 (en) * 2000-12-15 2002-06-19 Tobishima Corporation Photo survey service system
KR20020091467A (en) * 2001-05-30 2002-12-06 김동선 architecture modelling kit
CN2667034Y (en) * 2003-10-23 2004-12-29 优美股份有限公司 Structure for changing space design
CN104166749A (en) * 2014-05-05 2014-11-26 李桦 Modularized system and design method for housing industrialization construction and part assembly
CN103993664B (en) * 2014-05-20 2015-12-23 东南大学 A kind of assembly type light house and construction thereof, method for dismounting
CN104091517A (en) * 2014-07-17 2014-10-08 莫咸明 Simulation model used for demonstrating indoor building decoration
CN104794981A (en) * 2015-05-07 2015-07-22 莫咸明 Simulation combination model for demonstrating interior architecture decoration
CN105136195A (en) * 2015-07-23 2015-12-09 山东大学 Porous medium penetration slip-casting multi-parameter monitoring device and test method thereof
CN106023779A (en) * 2016-06-27 2016-10-12 安徽省艺凌模型设计有限公司 Modular building model
CN109564690A (en) * 2016-07-22 2019-04-02 帝国科技及医学学院 Use the size of multidirectional camera assessment enclosure space
CN206849325U (en) * 2017-04-26 2018-01-05 宿迁学院 A kind of instructional device for architectural design
CN207337775U (en) * 2017-07-22 2018-05-08 广州汉威装饰工程有限公司 A kind of simulation model for demonstrating interior architecture decorations
US20190032328A1 (en) * 2017-07-27 2019-01-31 RAD Urban, Inc. Prefabricated modular buildings
CN207764061U (en) * 2018-01-17 2018-08-24 云南顺筑装配式房屋科技有限公司 A kind of low-carbon light-gauge steel section assembled architecture wall shearing resistance experimental provision
KR101990472B1 (en) * 2018-11-13 2019-06-18 주식회사 제이엠시스템즈 Fire Detector Installing and Uninstalling Device

Non-Patent Citations (2)

* Cited by examiner, † Cited by third party
Title
李桦 等: "装配式建筑住宅全装修模块化设计方法与案例解析", 《住宅产业》 *
高颖 等: "现代轻型木结构住宅模数与标准化体系研究", 《北京林业大学学报》 *

Also Published As

Publication number Publication date
CN111047964B (en) 2021-11-16

Similar Documents

Publication Publication Date Title
Moody The NBS clean laboratories for trace element analysis
WO2014015594A1 (en) Lighting jig for inspecting liquid crystal panel
CN206609393U (en) A kind of contactless keypad flatness and segment difference optical measuring equipment
CN111047964B (en) Experimental device for be used for building space and interior portion article size coordination
CN107328667B (en) Environment box with load-environment coupling effect
CN205720312U (en) The fixing device of circuit board
CN206893147U (en) A tolerance modeling practical traning platform
TWI477755B (en) Nucleic acid purification device
CN208742583U (en) A kind of intelligent constant-temperature constant moisture test case
CN111023969B (en) A test device used to study the priority size series of various functional spaces of residences
CN215866307U (en) Concrete internal deformation and crack testing device under warm and humid salt and other environment effects
CN110118827B (en) Sound insulation test equipment for structures
CN213696121U (en) Building engineering cost platform based on BIM technique
CN215677080U (en) Building engineering detects fixing device
CN210071310U (en) Sliding plug door experimental device
JP3185955U (en) Circuit re-inspection equipment
CN220824834U (en) Mobile laboratory for detecting conventional soil projects
CN217042633U (en) Constant temperature and humidity test box convenient to clean
CN206331084U (en) A kind of detection means
CN206311595U (en) A kind of waste water intermediate ion concentration monitor analyzer
CN105784466A (en) Fixture for fixing connectors of electric energy meter measuring box
CN220625370U (en) Evaluation device for old experimental animal barrier facility
CN221100955U (en) Online ICT testing arrangement
CN213778874U (en) Automobile fender reinforcing plate detection tool for preventing parts from falling
CN210375994U (en) Concrete durability test device

Legal Events

Date Code Title Description
PB01 Publication
PB01 Publication
SE01 Entry into force of request for substantive examination
SE01 Entry into force of request for substantive examination
GR01 Patent grant
GR01 Patent grant