CN102914046A - 小型生物质铡碎料直燃热水锅炉 - Google Patents
小型生物质铡碎料直燃热水锅炉 Download PDFInfo
- Publication number
- CN102914046A CN102914046A CN2012104369389A CN201210436938A CN102914046A CN 102914046 A CN102914046 A CN 102914046A CN 2012104369389 A CN2012104369389 A CN 2012104369389A CN 201210436938 A CN201210436938 A CN 201210436938A CN 102914046 A CN102914046 A CN 102914046A
- Authority
- CN
- China
- Prior art keywords
- flue gas
- pipe
- chamber
- feeding
- feeding box
- Prior art date
- Legal status (The legal status is an assumption and is not a legal conclusion. Google has not performed a legal analysis and makes no representation as to the accuracy of the status listed.)
- Granted
Links
- 239000000463 material Substances 0.000 title claims abstract description 24
- 239000002028 Biomass Substances 0.000 title claims abstract description 19
- XLYOFNOQVPJJNP-UHFFFAOYSA-N water Substances O XLYOFNOQVPJJNP-UHFFFAOYSA-N 0.000 title claims abstract description 19
- UGFAIRIUMAVXCW-UHFFFAOYSA-N Carbon monoxide Chemical compound [O+]#[C-] UGFAIRIUMAVXCW-UHFFFAOYSA-N 0.000 claims abstract description 41
- 239000003546 flue gas Substances 0.000 claims abstract description 41
- 239000000779 smoke Substances 0.000 claims abstract description 22
- 238000009826 distribution Methods 0.000 claims abstract description 15
- 230000007246 mechanism Effects 0.000 claims abstract description 7
- 238000002485 combustion reaction Methods 0.000 claims description 40
- 230000008878 coupling Effects 0.000 claims description 4
- 238000010168 coupling process Methods 0.000 claims description 4
- 238000005859 coupling reaction Methods 0.000 claims description 4
- 238000005520 cutting process Methods 0.000 claims 1
- 239000000428 dust Substances 0.000 abstract description 20
- 239000000446 fuel Substances 0.000 abstract description 7
- 238000010438 heat treatment Methods 0.000 abstract description 3
- 230000008901 benefit Effects 0.000 abstract description 2
- 238000003287 bathing Methods 0.000 abstract 1
- 230000003749 cleanliness Effects 0.000 abstract 1
- 239000002245 particle Substances 0.000 description 17
- 239000007789 gas Substances 0.000 description 11
- 230000005540 biological transmission Effects 0.000 description 3
- 238000000034 method Methods 0.000 description 3
- 230000008569 process Effects 0.000 description 3
- 238000004140 cleaning Methods 0.000 description 2
- 208000002925 dental caries Diseases 0.000 description 2
- 238000007599 discharging Methods 0.000 description 2
- VEXZGXHMUGYJMC-UHFFFAOYSA-N Hydrochloric acid Chemical compound Cl VEXZGXHMUGYJMC-UHFFFAOYSA-N 0.000 description 1
- 230000003321 amplification Effects 0.000 description 1
- 239000006227 byproduct Substances 0.000 description 1
- 239000003245 coal Substances 0.000 description 1
- 238000004939 coking Methods 0.000 description 1
- 238000011109 contamination Methods 0.000 description 1
- 238000005260 corrosion Methods 0.000 description 1
- 230000007797 corrosion Effects 0.000 description 1
- 230000007547 defect Effects 0.000 description 1
- 238000005516 engineering process Methods 0.000 description 1
- 238000003912 environmental pollution Methods 0.000 description 1
- 239000003500 flue dust Substances 0.000 description 1
- 239000010921 garden waste Substances 0.000 description 1
- 229910000041 hydrogen chloride Inorganic materials 0.000 description 1
- IXCSERBJSXMMFS-UHFFFAOYSA-N hydrogen chloride Substances Cl.Cl IXCSERBJSXMMFS-UHFFFAOYSA-N 0.000 description 1
- 239000000203 mixture Substances 0.000 description 1
- 238000000465 moulding Methods 0.000 description 1
- 239000010813 municipal solid waste Substances 0.000 description 1
- 238000003199 nucleic acid amplification method Methods 0.000 description 1
- 238000002360 preparation method Methods 0.000 description 1
- 230000002035 prolonged effect Effects 0.000 description 1
- 238000005086 pumping Methods 0.000 description 1
- 239000002994 raw material Substances 0.000 description 1
- 230000001105 regulatory effect Effects 0.000 description 1
- 238000003756 stirring Methods 0.000 description 1
- 238000003860 storage Methods 0.000 description 1
- 239000000126 substance Substances 0.000 description 1
- 230000007306 turnover Effects 0.000 description 1
- 239000002699 waste material Substances 0.000 description 1
Images
Landscapes
- Solid-Fuel Combustion (AREA)
Abstract
本发明提供一种小型生物质铡碎料直燃热水锅炉,包括自动喂料机构和炉体。自动喂料机构由底部设有抽拉板的上料箱、位于上料箱下方的料箱、安装在料箱中的两个水平放置且拨齿呈放射状的拨料辊、位于拨料辊下方且输出端经入料管与炉体喂料口联通的螺旋绞龙构成;炉体由炉膛、炉膛底部的集灰室、一次进风管、位于集灰室上方且与一次进风管联通的一次风室、二次进风管、烟气转向板、位于一次风室上方且与二次进风管联通的二次布风管和设置在炉膛顶部的排烟管、位于排烟管侧壁上的烟气携带流进风管以及炉膛外壁的水套构成。该锅炉结构简单、燃料及运行成本低,使用清洁方便,热效率高。适合广大城乡结合部地区和小城镇的供暖、洗浴等小型应用。
Description
技术领域
本发明提供一种小型生物质铡碎料直燃热水锅炉,属于生物质燃烧设备技术领域。
背景技术
目前我国广大城乡结合部、小城镇地区的农林副产物生物质常被作为废弃物焚烧,城市的园林废弃物也作为垃圾处理,不但浪费能源,也造成环境污染。而这些地区有大量的小型供热需求。经济、清洁、灵活、方便的生物质直燃供热技术是解决我国生物质就地焚烧的有效途径之一。
我国生物质直燃供热现在的主要问题如下:
1、大型应用时生物质收集、运输、储存成本高,且各种技术问题如各受热面的沾污、腐蚀,灰分的结焦、结块,烟气中的氯化氢和气溶胶的含量较高等等逐渐显现。这是由于生物质分布分散,能量密度低,和煤的成分及燃烧特性有明显差异,而现有大型锅炉主要在燃煤锅炉基础上改装而成。目前国家已不再鼓励生物质大型燃烧应用。
2、小型生物质直燃锅炉主要以颗粒(申请号201210081903.8、201110204689.6)燃料为主,少数为粉末燃料。由于生物质成型燃料制备过程能量耗费高、设备磨损快,锅炉燃料成本高。虽然国外(英国Treco’s green Heat,Be Green,美国Hurst boiler,Green woodUSA)家用小型供热锅炉大多也为颗粒燃料,热效率高,但是由于经济条件和自然环境的不同,这种锅炉在我国目前难以推广应用。
发明内容
本发明的目的是提供一种能克服上述缺陷、以生物质铡碎料为原料、可以连续喂料并直接燃烧的小型生物质铡碎料直燃热水锅炉。其技术方案为:
一种小型生物质铡碎料直燃热水锅炉,包括炉体和自动喂料机构,炉体包括设置在炉膛底部的集灰室、一次进风管、位于集灰室上方且与一次进风管联通的一次风室、二次进风管、位于一次风室上方且与二次进风管联通的二次布风管和设置在炉膛顶部的排烟管,炉膛在位于一次风室与二次布风管之间的侧壁上开有喂料口;自动喂料机构包括减速电机、螺旋绞龙和料箱,其中螺旋绞龙水平安装在料箱内的底部,螺旋绞龙的动力输入端经联轴器与减速电机的输出端连接,其特征在于:增设了空心的烟气转向板、烟气携带流进风管、挡灰板、两个拨料辊和具有抽拉板的上料箱,其中:
烟气转向板设置在炉膛内,底部与水套联通,上端距炉膛顶部有一定间隙,将炉膛间隔成上端联通的两个腔体:燃烧室和烟气转向室,喂料口设置在燃烧室的侧壁上;
排烟管位于烟气转向室的顶部,烟气携带流进风管安装在排烟管的侧壁上,烟气携带流进风管的出风端位于排烟管内且出风口朝上,烟气携带流进风管的进风口与安装在炉膛外的风机连接;
挡灰板设置在烟气转向室内的上部且平行于烟气转向板,间隔在烟气转向板与排烟管之间,挡灰板除底边外,其它侧边均与烟气转向室的内壁连接;
集灰室位于燃烧室的底部,一次风室除远离喂料口的一侧与燃烧室内壁留有间隙、两者构成落灰口外,其余侧边均与燃烧室内壁连接,一次风室的上端面呈弧状且均布有小孔,上端面略低于喂料口;
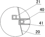
上料箱安装在料箱顶部,上料箱底部设有上料箱支承座,料箱顶部设有上料箱定位座,上料箱支承座卡入上料箱定位座内,抽拉板位于上料箱支承座的上方;
料箱内轴承安装有两个水平的拨料辊,拨料辊上均布有放射状的拨齿,一个拨料辊位于料箱外的端部设有从动链轮和第一链轮,另一个拨料辊位于料箱外的端部设有第二链轮,第一链轮和第二链轮经链条传动连接;螺旋绞龙的动力输入端安装有与从动链轮传动连接的主动链轮,螺旋绞龙的输出端经入料管与喂料口联通;一次风室的上端面沿垂直于生物质喂入方向的横截面呈弧形。
所述的小型生物质铡碎料直燃热水锅炉,二次布风管贴近燃烧室内壁并水平环绕,二次布风管的内侧壁上均布有出风孔。
所述的小型生物质铡碎料直燃热水锅炉,烟气转向板上端距炉膛顶部10~15cm。
其工作原理为:给上料箱加满生物质铡碎料后,便将上料箱放置在料箱上,抽出抽拉板,上料箱内的生物质铡碎料便在拨料辊的拨动下不断上下运动,落入料箱内底部的螺旋绞龙,由螺旋绞龙推进入料管,并经喂料口输送到燃烧室内一次风室的上端面上进行燃烧。待上料箱内生物质铡碎料用尽,插入抽拉板,取下上料箱装生物质铡碎料,实现间歇加料,连续喂料。燃烧室内设有二次布风管:一次风依次经一次进风管和一次风室进入燃烧室,从生物质铡碎料的底部供风,二次风依次经二次进风管和二次布风管,从生物质铡碎料的上方供风,以保证生物质铡碎料燃烧充分。燃烧的烟气经烟气转向室除尘后,再经排烟管排出。烟气转向板将炉膛间隔成上端联通的燃烧室和烟气转向室,挡灰板间隔在烟气转向板与排烟管之间,防止燃烧室内的高温烟气直接从排烟管排出,而是向下翻折、经由挡灰板的底部、再从排烟管排出,延长了高温烟气在炉膛内的行程和逗留时间。排烟管上设有外接风机的烟气携带流进风管,辅助烟气排出,并使燃烧室呈微负压状态。
本发明与现有技术相比,其优点在于:
1)由于采用了两个同向旋转的拨料辊,不会堵塞,对燃料适应性好,直接应用生物质铡碎料,燃烧成本低。
2)采用底部有抽板、可直接取出的上料箱实现了间歇加料,自动连续喂料的功能,节省劳力,且在上料箱装取过程中,生物质燃料无剧烈运动,不易扬尘,操作过程基本无灰尘,清洁环保。
3)锅炉为侧饲式喂料,螺旋绞龙的输出端和燃烧室之间有一定长度的入料管,以保证螺旋绞龙工作温度低,使用寿命长。
4)采用烟气携带流进风管辅助烟气排出室外,风机工作条件好,寿命长,经回转烟道处理后的烟气含尘量小,且烟气携带流进风管产生的微负压避免了烟气向燃烧室内排放,避免了燃烧由燃烧室向料箱方向的反烧,同时解决了清灰时烟尘向燃烧室内弥散的问题。
5)一次、二次风均被预热,改善了燃烧条件,燃烧效率高,具有经济、清洁、灵活、方便等特性,可应用于各种小型供热。
附图说明
图1是本发明实施例的结构示意图;
图2是图1所示实施例的B-B剖视图;
图3是图1所示实施例的C-C剖视图;
图4是图1所示实施例中主动链轮与从动链轮、两拨料辊之间的连接图;
图5是图1所示实施例中E部分局部放大剖视图;
图6是图2所示实施例中F部分局部放大图。
图中:1、水套 2、开口 3、集灰室 4、一次进风管 5、一次风室 6、二次进风管 7、二次布风管 8、排烟管 9、喂料口 10、烟气转向板 11、烟气携带流进风管 12、挡灰板 13、燃烧室 14、烟气转向室 15、风机 16、落灰口 17、小孔 18、减速电机 19、螺旋绞龙 20、料箱 21、抽拉板 22、上料箱 23、拨料辊 24、拨齿 25、从动链轮 26、第一链轮 27、第二链轮 28、链条 29、主动链轮 30、联轴器 31、入料管 32、出风孔 33、支架 34、排灰口 35、进水口 36、出水口 37、观察口 38、除灰口 39、张紧轮 40、上料箱支承座 41、上料箱定位座
具体实施方式
在图1-6所示的实施例中:炉体包括设置在炉膛底部的集灰室3、一次进风管4、位于集灰室3上方且与一次进风管4联通的一次风室5、二次进风管6、位于一次风室5上方且与二次进风管6联通的二次布风管7、设置在炉膛顶部的排烟管8和,炉膛在位于一次风室5与二次布风管7之间的侧壁上开有喂料口9;自动喂料机构包括减速电机18、螺旋绞龙19和料箱20,其中螺旋绞龙19水平安装在料箱20内的底部,螺旋绞龙19的动力输入端经联轴器30与减速电机18的输出端连接;
烟气转向板10设置在炉膛内,底部与水套1联通,上端距炉膛顶部10cm,将炉膛间隔成上端联通的两个腔体:燃烧室13和烟气转向室14,喂料口9设置在燃烧室13的侧壁上,二次布风管7贴近燃烧室13内壁并水平环绕,二次布风管7的内侧壁上均布有出风孔32;
排烟管8位于烟气转向室14的顶部,烟气携带流进风管11安装在排烟管8的侧壁上,烟气携带流进风管11的出风端位于排烟管8内且出风口朝上,烟气携带流进风管11的进风口与安装在炉膛外的风机15连接;
挡灰板12设置在烟气转向室14内的上部且平行于烟气转向板10,间隔在烟气转向板10与排烟管8之间,挡灰板12除底边外,其它侧边均与烟气转向室14的内壁连接;
集灰室3位于燃烧室13的底部,一次风室5除远离喂料口9的一侧与燃烧室13内壁留有间隙、两者构成落灰口16外,其余侧边均与燃烧室13内壁连接,一次风室5的上端面呈弧状且均布有小孔17,略低于喂料口9;
上料箱22安装在料箱20顶部,上料箱22底部设有上料箱支承座40,料箱20顶部设有上料箱定位座41,上料箱支承座40卡入上料箱定位座41内,抽拉板21位于上料箱支承座40的上方;
料箱20内经轴承安装有两个水平的拨料辊23,拨料辊23上均布有放射状的拨齿24,一个拨料辊23位于料箱20外的端部设有从动链轮25和第一链轮26,另一个拨料辊23位于料箱20外的端部设有第二链轮27,第一链轮26和第二链轮27经链条28传动连接;螺旋绞龙19的动力输入端安装有与从动链轮25传动连接的主动链轮29,螺旋绞龙19的输出端经入料管31与喂料口9联通;一次风室5的上端面沿垂直于生物质铡碎料喂入方向的横截面呈弧形。
Claims (3)
1.一种小型生物质铡碎料直燃热水锅炉,包括炉体和自动喂料机构,炉体包括设置在炉膛底部的集灰室(3)、一次进风管(4)、位于集灰室(3)上方且与一次进风管(4)联通的一次风室(5)、二次进风管(6)、位于一次风室(5)上方且与二次进风管(6)联通的二次布风管(7)和设置在炉膛顶部的排烟管(8),炉膛在位于一次风室(5)与二次布风管(7)之间的侧壁上开有喂料口(9);自动喂料机构包括减速电机(18)、螺旋绞龙(19)和料箱(20),其中螺旋绞龙(19)水平安装在料箱(20)内的底部,螺旋绞龙(19)的动力输入端经联轴器(30)与减速电机(18)的输出端连接,其特征在于:增设了空心的烟气转向板(10)、烟气携带流进风管(11)、挡灰板(12)、两个拨料辊(23)和具有抽拉板(21)的上料箱(22),其中:
烟气转向板(10)设置在炉膛内,底部与水套(1)联通,上端距炉膛顶部有一定间隙,将炉膛间隔成上端联通的两个腔体:燃烧室(13)和烟气转向室(14),喂料口(9)设置在燃烧室(13)的侧壁上;
排烟管(8)位于烟气转向室(14)的顶部,烟气携带流进风管(11)安装在排烟管(8)的侧壁上,烟气携带流进风管(11)的出风端位于排烟管(8)内且出风口朝上,烟气携带流进风管(11)的进风口与安装在炉膛外的风机(15)连接;
挡灰板(12)设置在烟气转向室(14)内的上部且平行于烟气转向板(10),间隔在烟气转向板(10)与排烟管(8)之间,挡灰板(12)除底边外,其它侧边均与烟气转向室(14)的内壁连接;
集灰室(3)位于燃烧室(13)的底部,一次风室(5)除远离喂料口(9)的一侧与燃烧室(13)内壁留有间隙、两者构成落灰口(16)外,其余侧边均与燃烧室(13)内壁连接,一次风室(5)的上端面呈弧状且均布有小孔(17),略低于喂料口(9);
上料箱(22)安装在料箱(20)顶部,上料箱(22)底部设有上料箱支承座(40),料箱(20)顶部设有上料箱定位座(41),上料箱支承座(40)卡入上料箱定位座(41)内,抽拉板(21)位于上料箱支承座(40)的上方;
料箱(20)内经轴承安装有两个水平的拨料辊(23),拨料辊(23)上均布有放射状的拨齿(24),一个拨料辊(23)位于料箱(20)外的端部设有从动链轮(25)和第一链轮(26),另一个拨料辊(23)位于料箱(20)外的端部设有第二链轮(27),第一链轮(26)和第二链轮(27)经链条(28)传动连接;螺旋绞龙(19)的动力输入端安装有与从动链轮(25)传动连接的主动链轮(29),螺旋绞龙(19)的输出端经入料管(31)与喂料口(9)联通;一次风室(5)的上端面沿垂直于生物质铡碎料喂入方向的横截面呈弧形。
2.如权利要求1所述的小型生物质铡碎料直燃热水锅炉,其特征在于:二次布风管(7)贴近燃烧室(13)内壁并水平环绕,二次布风管(7)的内侧壁上均布有出风孔(32)。
3.如权利要求1所述的小型生物质铡碎料直燃热水锅炉,其特征在于:烟气转向板(10)上端距炉膛顶部10~15cm。
Priority Applications (1)
| Application Number | Priority Date | Filing Date | Title |
|---|---|---|---|
| CN201210436938.9A CN102914046B (zh) | 2012-11-04 | 2012-11-04 | 小型生物质铡碎料直燃热水锅炉 |
Applications Claiming Priority (1)
| Application Number | Priority Date | Filing Date | Title |
|---|---|---|---|
| CN201210436938.9A CN102914046B (zh) | 2012-11-04 | 2012-11-04 | 小型生物质铡碎料直燃热水锅炉 |
Publications (2)
| Publication Number | Publication Date |
|---|---|
| CN102914046A true CN102914046A (zh) | 2013-02-06 |
| CN102914046B CN102914046B (zh) | 2014-12-10 |
Family
ID=47612529
Family Applications (1)
| Application Number | Title | Priority Date | Filing Date |
|---|---|---|---|
| CN201210436938.9A Expired - Fee Related CN102914046B (zh) | 2012-11-04 | 2012-11-04 | 小型生物质铡碎料直燃热水锅炉 |
Country Status (1)
| Country | Link |
|---|---|
| CN (1) | CN102914046B (zh) |
Cited By (5)
| Publication number | Priority date | Publication date | Assignee | Title |
|---|---|---|---|---|
| CN103375795A (zh) * | 2013-08-09 | 2013-10-30 | 黑龙江长浩节能环保设备有限公司 | 全自动生物质锅炉 |
| CN109539242A (zh) * | 2018-10-24 | 2019-03-29 | 西安交通大学 | 一种生物质捆垛气化供暖锅炉系统 |
| CN110006033A (zh) * | 2019-05-05 | 2019-07-12 | 浙江布莱蒙农业科技股份有限公司 | 一种生物质燃烧器及猪粪低成本处理系统 |
| CN110410774A (zh) * | 2019-07-16 | 2019-11-05 | 河南农业大学 | 一种烤烟用生物质燃烧器 |
| CN113108302A (zh) * | 2021-04-23 | 2021-07-13 | 黑龙江省农业机械工程科学研究院 | 一种自动控风型秸秆成型燃料炉具 |
Citations (2)
| Publication number | Priority date | Publication date | Assignee | Title |
|---|---|---|---|---|
| CN102042676A (zh) * | 2011-01-14 | 2011-05-04 | 朔州市万申昌新能源研究中心 | 一种反烧多回程生物质低碳节能热水锅炉 |
| CN102401466A (zh) * | 2011-11-04 | 2012-04-04 | 江苏圆通农机科技有限公司 | 一种新型生物质反烧式热水锅炉 |
-
2012
- 2012-11-04 CN CN201210436938.9A patent/CN102914046B/zh not_active Expired - Fee Related
Patent Citations (2)
| Publication number | Priority date | Publication date | Assignee | Title |
|---|---|---|---|---|
| CN102042676A (zh) * | 2011-01-14 | 2011-05-04 | 朔州市万申昌新能源研究中心 | 一种反烧多回程生物质低碳节能热水锅炉 |
| CN102401466A (zh) * | 2011-11-04 | 2012-04-04 | 江苏圆通农机科技有限公司 | 一种新型生物质反烧式热水锅炉 |
Cited By (8)
| Publication number | Priority date | Publication date | Assignee | Title |
|---|---|---|---|---|
| CN103375795A (zh) * | 2013-08-09 | 2013-10-30 | 黑龙江长浩节能环保设备有限公司 | 全自动生物质锅炉 |
| CN109539242A (zh) * | 2018-10-24 | 2019-03-29 | 西安交通大学 | 一种生物质捆垛气化供暖锅炉系统 |
| CN109539242B (zh) * | 2018-10-24 | 2019-12-24 | 西安交通大学 | 一种生物质捆垛气化供暖锅炉系统 |
| CN110006033A (zh) * | 2019-05-05 | 2019-07-12 | 浙江布莱蒙农业科技股份有限公司 | 一种生物质燃烧器及猪粪低成本处理系统 |
| CN110006033B (zh) * | 2019-05-05 | 2024-02-27 | 浙江钱江伟岸干燥设备有限公司 | 一种生物质燃烧器及猪粪低成本处理系统 |
| CN110410774A (zh) * | 2019-07-16 | 2019-11-05 | 河南农业大学 | 一种烤烟用生物质燃烧器 |
| CN110410774B (zh) * | 2019-07-16 | 2020-09-01 | 河南农业大学 | 一种烤烟用生物质燃烧器 |
| CN113108302A (zh) * | 2021-04-23 | 2021-07-13 | 黑龙江省农业机械工程科学研究院 | 一种自动控风型秸秆成型燃料炉具 |
Also Published As
| Publication number | Publication date |
|---|---|
| CN102914046B (zh) | 2014-12-10 |
Similar Documents
| Publication | Publication Date | Title |
|---|---|---|
| CN207081009U (zh) | 一种农村生活垃圾热解气化系统 | |
| CN102311215B (zh) | 城市生活污泥就地自循环综合利用装置及方法 | |
| CN201012915Y (zh) | 一种有机垃圾卧式多仓处理装置 | |
| CN105602586A (zh) | 用于城市污泥烟气干化中温热解炭化的系统 | |
| CN102914046A (zh) | 小型生物质铡碎料直燃热水锅炉 | |
| CN103230770A (zh) | 生物氧化与高温热解反应釜及其进出料控制方法 | |
| CN100453514C (zh) | 有机垃圾卧式多仓处理装置 | |
| CN112856806A (zh) | 一种基于循环流化床的农村生物质供暖装置 | |
| CN102643001B (zh) | 流态化蓄热式污泥低温催化热解方法及其装置 | |
| CN110345485B (zh) | 一种移动式生活垃圾富氧焚烧处置系统及方法 | |
| CN206073082U (zh) | 城市厨余垃圾无害化处理装置 | |
| CN115325527A (zh) | 一种高效生物质能发电的锅炉装置及方法 | |
| CN210163375U (zh) | 一种集装箱式小型化生活垃圾等有机固体废弃物热解装置 | |
| CN213924648U (zh) | 一种滚筒卧式秸秆微波连续碳化装置 | |
| CN2545485Y (zh) | 医疗垃圾处理系统 | |
| CN111140876B (zh) | 一种生物质颗粒环保取暖炉 | |
| CN202390383U (zh) | 生物质中吸式气化炉 | |
| CN202229194U (zh) | 城市生活污泥就地自循环综合利用装置 | |
| CN210176738U (zh) | 一种粪便无害化处理系统 | |
| CN112325302B (zh) | 一种焚烧炉及垃圾处理系统 | |
| CN201242172Y (zh) | 一种生物质燃气发生器 | |
| CN219913082U (zh) | 一种燃煤耦合污泥焚烧设备 | |
| CN207729598U (zh) | 一种立轴旋转式垃圾焚烧炉 | |
| CN215855734U (zh) | 城市污泥烘干设备 | |
| CN112625703A (zh) | 一种环保型生物质气化炉 |
Legal Events
| Date | Code | Title | Description |
|---|---|---|---|
| C06 | Publication | ||
| PB01 | Publication | ||
| C10 | Entry into substantive examination | ||
| SE01 | Entry into force of request for substantive examination | ||
| C14 | Grant of patent or utility model | ||
| GR01 | Patent grant | ||
| CF01 | Termination of patent right due to non-payment of annual fee | ||
| CF01 | Termination of patent right due to non-payment of annual fee |
Granted publication date: 20141210 Termination date: 20161104 |