CN102425985A - 一种锥管螺纹环规用内螺纹锥度检具 - Google Patents
一种锥管螺纹环规用内螺纹锥度检具 Download PDFInfo
- Publication number
- CN102425985A CN102425985A CN2011101514494A CN201110151449A CN102425985A CN 102425985 A CN102425985 A CN 102425985A CN 2011101514494 A CN2011101514494 A CN 2011101514494A CN 201110151449 A CN201110151449 A CN 201110151449A CN 102425985 A CN102425985 A CN 102425985A
- Authority
- CN
- China
- Prior art keywords
- taper
- screw
- plate
- nut
- base plate
- Prior art date
- Legal status (The legal status is an assumption and is not a legal conclusion. Google has not performed a legal analysis and makes no representation as to the accuracy of the status listed.)
- Granted
Links
- 229910000831 Steel Inorganic materials 0.000 claims description 20
- 239000010959 steel Substances 0.000 claims description 20
- 230000005540 biological transmission Effects 0.000 claims description 6
- 239000000523 sample Substances 0.000 claims description 5
- 239000000945 filler Substances 0.000 claims description 4
- 238000012856 packing Methods 0.000 claims description 4
- 238000012545 processing Methods 0.000 abstract description 6
- 238000000034 method Methods 0.000 abstract description 5
- 210000003456 pulmonary alveoli Anatomy 0.000 description 5
- 238000005259 measurement Methods 0.000 description 4
- 238000001514 detection method Methods 0.000 description 3
- 238000012360 testing method Methods 0.000 description 3
- 230000007812 deficiency Effects 0.000 description 2
- 238000013461 design Methods 0.000 description 2
- 238000003556 assay Methods 0.000 description 1
- 238000005516 engineering process Methods 0.000 description 1
- 238000007689 inspection Methods 0.000 description 1
- 238000009434 installation Methods 0.000 description 1
Images
Landscapes
- A Measuring Device Byusing Mechanical Method (AREA)
Abstract
本发明公开了一种环规用内螺纹锥度检具,其特征在于:包括支撑机构、夹持调整机构和测量机构;所述夹持调整机构和测量机构设置在支撑机构上,夹持调整机构设置于测量机构下方。该锥管螺纹环规用内螺纹锥度检具可在采用研磨方法进行环规加工时对环规的内螺纹锥度进行在线检测,从而可以根据检测结果指导环规的加工。
Description
技术领域
本发明涉及检具技术领域,具体涉及一种用于在线检测锥管螺纹环规内螺纹锥度的检具。
背景技术
锥管螺纹环规要求检验其内螺纹锥度。对于公称直径大于3/8的锥管螺纹环规可以用内螺纹磨床磨削,而小于等于3/8的锥管螺纹环规只好用研磨工艺加工。磨削的环规加工现场用已调整好的磨床,就能保证内螺纹锥度合格,而研磨的环规必须要进行在线测量,因此需要专用检具检查环规锥度的加工情况,根据检验结果进行研磨。
然而,现有的环规用内螺纹锥度检具均无法满足上述要求。为此,设计一种可以满足在线测量需要的环规用内螺纹锥度检具是很有必要的。
针对现有技术中环规用内螺纹锥度检具的上述不足,本发明提供了一种新的解决方案。
发明内容
本发明的目的在于克服现有技术的不足,提供一种锥管螺纹环规用内螺纹锥度检具,该锥管螺纹环规用内螺纹锥度检具可在采用研磨方法进行环规加工时对环规的内螺纹锥度进行在线检测,从而可以根据检测结果指导环规的加工。
为实现上述发明目的,本发明所采用的技术方案为:提供一种锥管螺纹环规用内螺纹锥度检具,其特征在于:包括支撑机构、夹持调整机构和测量机构;其中
所述支撑机构包括左支板、右支板、底板和支脚;所述左支板和右支板固定设置在底板上方,底板下方固定设置有三个支脚;
所述夹持调整机构包括手轮、滚花扁螺母、升降轴、支撑盘、圆锥滚子轴承、挡板、导杆、动板、钢球、保持盘、限位螺钉、高头螺钉、压板和T形块;所述底板的正中央的位置设置有一通孔,通孔内壁上设置有一支撑螺母;所述升降轴套接在支撑螺母内,升降轴底部通过滚花扁螺母与手轮相连接,升降轴顶部穿过挡板与圆锥滚子轴承固定连接在一起;所述挡板通过六角螺栓固定连接在支撑盘上,支撑盘套接在圆锥滚子轴承上;所述支撑盘中部通过限位螺钉与动板活动连接;所述支撑盘上方套接有一保持盘,保持盘上沿圆周方向均匀设置有用于装卡钢球的圆形通孔,动板水平压在钢球上;所述动板上方固定连接有一T形块,T形块上设置有用于夹持待检环规的高头螺钉和压板;所述导杆底部固定连接在底板上,导杆顶部伸入支撑盘中;
所述测量机构包括千分表、测头、杠杆传动机构、杠杆、动爪框、尺身、微动框、紧固螺钉、微动螺帽、滚花螺母、滚花螺钉、绳、定滑轮、重锤和微调螺丝;所述尺身为扁平状结构,尺身左端固定连接在左支板上,尺身右端通过紧固螺钉固定在右支板上;所述杠杆通过杠杆转动机构连接在尺身上;所述动爪框和微动框均活动套接在尺身上,动爪框和微动框之间通过微调螺丝连接;所述动爪框和微动框的框顶上均设置有滚花螺钉,微动框上设置有一与微调螺丝配合工作的微动螺帽;所述测头设置有相互配合工作的两个,一个测头通过柱头螺钉固定在杠杆的前部,另一个测头通过柱头螺钉固定在动爪框前端的动爪上; 所述杠杆的后部是一平行平面,一侧与千分表的球形测头相接触,另一侧与滚花螺母通过套于杠杆上的绳和吊于固定在右支板上的定滑轮上的重锤力接触。
按照本发明所提供的锥管螺纹环规用内螺纹锥度检具,其特征在于:所述导杆底部穿过底板并通过螺帽固定,螺帽与底板之间自上而下依次设置有锥面垫圈和球面垫圈。
按照本发明所提供的锥管螺纹环规用内螺纹锥度检具,其特征在于:所述底板上设置有用于检测底板水平度的圆水准泡,底板上设置圆水准泡的位置处还设置有填料。
按照本发明所提供的锥管螺纹环规用内螺纹锥度检具,其特征在于:所述支脚的顶部通过六角螺栓连接在底板上,支脚的底部设置有用于调平底板的支脚螺钉。
按照本发明所提供的锥管螺纹环规用内螺纹锥度检具,其特征在于:所述六角螺栓与底板之间还设置有垫圈。
按照本发明所提供的锥管螺纹环规用内螺纹锥度检具,其特征在于:所述T形块上设置有用于夹持直径较小的环规的台阶面。
按照本发明所提供的锥管螺纹环规用内螺纹锥度检具,其特征在于:所述限位螺钉的两端设置有便于装卸的直槽。
按照本发明所提供的锥管螺纹环规用内螺纹锥度检具,其特征在于:所述杠杆传动机构包括有销、支撑盖、支撑螺钉、支撑螺帽、轴承碗、钢球和轴承盖;所述支撑盖固定在尺身左端,用于固定杠杆位置,销装卡在支撑盖内,支撑盖上还设置有支撑螺钉和支撑螺帽;所述钢球装卡在轴承碗和轴承盖之间。
综上所述,在本发明所提供的环规用内螺纹锥度检具可在采用研磨方法进行环规加工时对环规的内螺纹锥度进行在线检测,从而可以根据检测结果指导环规的加工。
附图说明
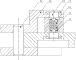
图1为锥管螺纹环规用内螺纹锥度检具的剖视图;
图2为锥管螺纹环规用内螺纹锥度检具的俯视图;
图3为沿图2中A-A线的剖视图;
图4为沿图2中B-B线的剖视图。
其中,1、千分表;2、限位螺钉;3、圆锥滚子轴承;4、支撑盘;5、挡板;6、支撑螺母;7、垫圈;8、升降轴;9、圆水准泡;10、填料;11、滚花扁螺母;12、左支板;13、T形块;14、动板;15、杠杆转动机构;16、高头螺钉;17、测头;18、动爪框;19、微动框;20、尺身;21、紧固螺钉;22、钢球;23、右支板;24、保持盘;25、重锤;26、杠杆;27、导杆;28、锥面垫圈;29、球面垫圈;30、六角螺栓;31、底板;32、手轮;33、支脚;34、支脚螺钉;35、滚花螺母;36、滚花螺钉;37、绳;38、定滑轮;39、微动螺帽;40、微调螺丝;41、销;42、支撑盖;43、支撑螺钉;44、支撑螺帽;45、轴承碗;46、钢球;47、轴承盖;48、六角螺栓。
具体实施方式
下面结合附图对本发明的具体实施方式进行描述,以便本领域的技术人员更好地理解本发明。需要特别提醒注意的是,在以下的描述中,当已知功能和设计的详细描述也许会淡化本发明的主要内容时,这些描述在这里将被忽略。
如图1、图2和图3所示,该锥管螺纹环规用内螺纹锥度检具包括支撑机构、夹持调整机构和测量机构;所述支撑机构包括左支板12、右支板23、底板31和支脚33;所述左支板12和右支板23固定设置在底板31上方,底板31下方固定设置有三个支脚33;所述夹持调整机构包括手轮32、滚花扁螺母11、升降轴8、支撑盘4、圆锥滚子轴承3、挡板5、导杆27、动板14、钢球22、保持盘24、限位螺钉2、高头螺钉16、压板和T形块13;所述底板31的正中央的位置设置有一通孔,通孔内壁上设置有一支撑螺母6;所述升降轴8套接在支撑螺母6内,升降轴8底部通过滚花扁螺母11与手轮32相连接,升降轴8顶部穿过挡板5与圆锥滚子轴承3固定连接在一起;所述挡板5通过六角螺栓48固定连接在支撑盘4上,支撑盘4套接在圆锥滚子轴承3上;所述支撑盘4中部通过限位螺钉2与动板14活动连接;所述支撑盘4上方套接有一保持盘24,保持盘24上沿圆周方向均匀设置有用于卡接钢球22的圆形通孔,动板14水平压在钢球22上;所述动板14上方固定连接有一T形块13,T形块13上设置有用于夹持待检环规的高头螺钉16和压板;所述导杆27底部固定连接在底板31上,导杆27顶部伸入支撑盘4中;所述测量机构包括千分表1、测头17、杠杆传动机构15、杠杆26、动爪框18、尺身20、微动框19、紧固螺钉21、微动螺帽39、滚花螺母35、滚花螺钉36、绳37、定滑轮38、重锤25和微调螺丝40;所述尺身20为扁平状结构,尺身20左端固定连接在左支板12上,尺身20右端通过紧固螺钉21固定在右支板23上;所述杠杆26通过杠杆转动机构15连接在尺身20上;所述动爪框18和微动框19均活动套接在尺身20上,动爪框18和微动框19之间通过微调螺丝40连接;所述动爪框18和微动框19的框顶上均设置有滚花螺钉36,微动框19上设置有一与微调螺丝40配合工作的微动螺帽39;所述测头17设置有相互配合工作的两个,一个测头17通过柱头螺钉固定设置在杠杆26的前部,另一个测头17通过柱头螺钉固定设置在动爪框18前端的动爪上; 所述杠杆26的后部是一平行平面,一侧与千分表1的球形测头相接触,另一侧与滚花螺母35通过套于杠杆26上的绳37和吊于固定在右支板23上的定滑轮38上的重锤25力接触。转动滚花螺母35可调整千分表1的初始读数,即习惯所谓的调零位。
所述导杆27底部穿过底板31并通过螺帽固定,螺帽与底板31之间自上而下依次设置有锥面垫圈28和球面垫圈29。所述底板31上设置有用于检测底板31水平度的圆水准泡9,底板31上设置圆水准泡9的位置处还设置有填料10。所述支脚33的顶部通过六角螺栓30连接在底板31上,支脚33的底部设置有用于调平底板31的支脚螺钉34。所述六角螺栓30与底板31之间还设置有垫圈7。所述T形块13上设置有用于夹持直径较小的环规的台阶面。所述限位螺钉2的两端设置有便于装卸的直槽。
环规端面用高头螺钉16和压板压在T形块13端面上,T形块13端面夹压较大直径环规,较小环规用T形块13的台阶面夹持。T形块13固定在动板14上。动板14支承在6颗钢球22上,钢球22位于均匀分布6个孔的保持盘24中,动板14的铅垂位置由限位螺钉2固定,该限位螺钉2两端都有直槽,便于装卸和调整。于是环规就能根据需要随意绕铅垂线转动;环规在水平面上的移动由限位螺钉2与支承盘4间的径向间隙获得。这种浮动便于环规的安装调整和测量。支承盘4通过圆锥滚子轴承3与升降轴8联接,转动手轮32通过螺旋副使环规沿铅垂方向移动,从而调整环规与测头17的相对位置和测量时找转折点。
挡板5用于压紧圆锥滚子轴承3的内圈,导杆27用于防止支承盘4转动,即手轮32转动时支承盘4只能上下移动。
如图4所示,所述杠杆传动机构15包括有销41、支撑盖42、支撑螺钉43、支撑螺帽44、轴承碗45、钢球46和轴承盖47;所述支撑盖42固定在尺身20左端,用于固定杠杆26位置,销41卡接在支撑盖42内,支撑盖42上还设置有支撑螺钉43和支撑螺帽44;所述钢球46卡接在轴承碗45和轴承盖47之间。尺身20左端固定有支承盖42,它用于固定可转杠杆26位置,为了此杠杆26转动灵活且转动轴定位准确,采用了杠杆百分表的杠杆转动机构15,即精密的轴承盖47、轴承碗45、钢珠46、支承螺帽44和支承螺钉43。这种机构与杠杆26不仅配合良好,磨损小且可以调整,因此使用寿命长。
测头17有两个,都用柱头螺钉固定,一个测头17位于杠杆26前部,另一测头17位于动爪框18左前端动爪上。动爪框18可在尺身20上滑动,尺身20是与游标卡尺尺身相同的扁平形状。紧随动爪框18是微动框19,这两个框的结构与游标卡尺的两个框相同,即在框顶上两个滚花螺钉36都松开时,测头位置的粗调沿尺身移动动爪框获得,微调先固定微动框19顶的滚花螺钉36转动微动螺帽39获得,调好后固定动爪框18顶的滚花螺钉36。
锥管螺纹环规的锥度要求如下表所示。
注:表1中螺纹特征代号有:R—55°密封管螺纹环规;W—威氏螺纹环规WKG;NPT—60°密封管螺纹环规;B—布氏螺纹环规BKG。
该锥管螺纹环规用内螺纹锥度检具的测量原理:在水平面内两球形测头分别位于直径上的两个完整牙型槽中,以此测值为基准,移动两测头至相邻牙槽中获得该位置直径相对于所述基准的差值,查表1数据判断该值是否符合要求。依次检验下一牙槽并查表和计算判断,直到检完为止。
使用时,将该检具安放在稳定的足够大的平台上,用三个支脚螺钉34调整使圆水准泡9位于中间,根据要检环规按表1选择两个合适直径的测头17,并将它们用柱头螺钉紧固在检具上。把被检环规端面用压板压紧在T形块13中,用手轮32调整被检环规的高度,使其轴线大致位于测头17轴线上,将已紧固的环规移动到靠近测头17处,调整动爪框18使得测头17能进入环规牙槽测量位置并紧固动爪框18,扳转杠杆26和转动并移动环规使两测头进入环规牙槽测量位置,转动手轮32,使环规上下移动,由千分表1的指针找转折点获得环规的直径,转动滚花螺钉35将千分表1的指针调到零位。扳转杠杆26使两个测头17进入下一个相邻牙槽,读得相对差值,继续完成测量。
尽管上面对本发明说明性的具体实施方式进行了描述,以便于本技术领域的技术人员理解本发明,但应该清楚,本发明不限于具体实施方式的范围,对本技术领域的普通技术人员来讲,只要各种变化在所附的权利要求限定和确定的本发明的精神和范围内,这些变化是显而易见的,一切利用本发明构思的发明创造均在保护之列。
Claims (8)
1.一种锥管螺纹环规用内螺纹锥度检具,其特征在于:包括支撑机构、夹持调整机构和测量机构;其中
所述支撑机构包括左支板(12)、右支板(23)、底板(31)和支脚(33);所述左支板(12)和右支板(23)固定在底板(31)上方,底板(31)下方固定设置有三个支脚(33);
所述夹持调整机构包括手轮(32)、滚花扁螺母(11)、升降轴(8)、支撑盘(4)、圆锥滚子轴承(3)、挡板(5)、导杆(27)、动板(14)、钢球(22)、保持盘(24)、限位螺钉(2)、压板、高头螺钉(16)和T形块(13);所述底板(31)的正中央的位置设置有一通孔,通孔内壁上设置有一支撑螺母(6);所述升降轴(8)套接在支撑螺母(6)内,升降轴(8)底部通过滚花扁螺母(11)与手轮(32)相连接,升降轴(8)顶部穿过挡板(5)与圆锥滚子轴承(3)固定连接在一起;所述挡板(5)通过六角螺栓(48)固定连接在支撑盘(4)上,支撑盘(4)套接在圆锥滚子轴承(3)上;所述支撑盘(4)中部通过限位螺钉(2)与动板(14)活动连接;所述支撑盘(4)上方套接有一保持盘(24),保持盘(24)上沿圆周方向均匀设置有用于装卡钢球(22)的圆形通孔,动板(14)水平压在钢球(22)上;所述动板(14)上方固定连接有一T形块(13),T形块(13)上设置有用于夹持待检环规的高头螺钉(16)和压板;所述导杆(27)底部固定连接在底板(31)上,导杆(27)顶部伸入支撑盘(4)中;
所述测量机构包括千分表(1)、测头(17)、杠杆传动机构(15)、杠杆(26)、动爪框(18)、尺身(20)、微动框(19)、紧固螺钉(21)、微动螺帽(39)、滚花螺母(35)、滚花螺钉(36)、绳(37)、定滑轮(38)、重锤(25)和微调螺丝(40);所述尺身(20)为扁平状结构,尺身(20)左端固定连接在左支板(12)上,尺身(20)右端通过紧固螺钉(21)固定在右支板(23)上;所述杠杆(26)通过杠杆转动机构(15)连接在尺身(20)上;所述动爪框(18)和微动框(19)均活动套接在尺身(20)上,动爪框(18)和微动框(19)之间通过微调螺丝(40)连接;所述动爪框(18)和微动框(19)的框顶上均设置有滚花螺钉(36),微动框(19)上设置有一与微调螺丝(40)配合工作的微动螺帽(39);所述测头(17)设置有相互配合工作的两个,一个测头(17)通过柱头螺钉固定在杠杆(26)的前部,另一个测头(17)通过柱头螺钉固定在动爪框(18)前端的动爪上; 所述杠杆(26)的后部是一平行平面,一侧与千分表(1)的球形测头相接触,另一侧与滚花螺母(35)通过套于杠杆(26)上的绳(37)和吊于固定在右支板(23)上的定滑轮(38)上的重锤(25)力接触。
2.根据权利要求1所述的锥管螺纹环规用内螺纹锥度检具,其特征在于:所述导杆(27)底部穿过底板(31)并通过螺帽固定,螺帽与底板(31)之间自上而下依次设置有锥面垫圈(28)和球面垫圈(29)。
3.根据权利要求1所述的锥管螺纹环规用内螺纹锥度检具,其特征在于:所述底板(31)上设置有用于检测底板(31)水平度的圆水准泡(9),底板(31)上设置圆水准泡(9)的位置处还设置有填料(10)。
4.根据权利要求1所述的锥管螺纹环规用内螺纹锥度检具,其特征在于:所述支脚(33)的顶部通过六角螺栓(30)连接在底板(31)上,支脚(33)的底部设置有用于调平底板(31)的支脚螺钉(34)。
5.根据权利要求4所述的锥管螺纹环规用内螺纹锥度检具,其特征在于:所述六角螺栓(30)与底板(31)之间还设置有垫圈(7)。
6.根据权利要求1所述的锥管螺纹环规用内螺纹锥度检具,其特征在于:所述T形块(13)上设置有用于夹持直径较小的环规的台阶面。
7.根据权利要求1所述的锥管螺纹环规用内螺纹锥度检具,其特征在于:所述限位螺钉(2)的两端设置有便于装卸的直槽。
8.根据权利要求1所述的锥管螺纹环规用内螺纹锥度检具,其特征在于:所述杠杆传动机构(15)包括有销(41)、支撑盖(42)、支撑螺钉(43)、支撑螺帽(44)、轴承碗(45)、钢球(46)和轴承盖(47);所述支撑盖(42)固定在尺身(20)左端,用于固定杠杆(26)位置,销(41)装卡在支撑盖(42)内,支撑盖(42)上还设置有支撑螺钉(43)和支撑螺帽(44);所述钢球(46)卡接在轴承碗(45)和轴承盖(47)之间。
Priority Applications (1)
| Application Number | Priority Date | Filing Date | Title |
|---|---|---|---|
| CN 201110151449 CN102425985B (zh) | 2011-06-08 | 2011-06-08 | 一种锥管螺纹环规用内螺纹锥度检具 |
Applications Claiming Priority (1)
| Application Number | Priority Date | Filing Date | Title |
|---|---|---|---|
| CN 201110151449 CN102425985B (zh) | 2011-06-08 | 2011-06-08 | 一种锥管螺纹环规用内螺纹锥度检具 |
Publications (2)
| Publication Number | Publication Date |
|---|---|
| CN102425985A true CN102425985A (zh) | 2012-04-25 |
| CN102425985B CN102425985B (zh) | 2013-06-12 |
Family
ID=45959991
Family Applications (1)
| Application Number | Title | Priority Date | Filing Date |
|---|---|---|---|
| CN 201110151449 Expired - Fee Related CN102425985B (zh) | 2011-06-08 | 2011-06-08 | 一种锥管螺纹环规用内螺纹锥度检具 |
Country Status (1)
| Country | Link |
|---|---|
| CN (1) | CN102425985B (zh) |
Cited By (5)
| Publication number | Priority date | Publication date | Assignee | Title |
|---|---|---|---|---|
| CN102679941A (zh) * | 2012-05-09 | 2012-09-19 | 西安交通大学 | 一种锥环外锥锥度检测装置 |
| CN105737777A (zh) * | 2016-02-29 | 2016-07-06 | 奇瑞汽车股份有限公司 | 一种检具基座和检具 |
| CN107524809A (zh) * | 2016-06-20 | 2017-12-29 | 江苏核电有限公司 | 一种填料密封安装尺寸控制装置 |
| CN108332643A (zh) * | 2018-01-09 | 2018-07-27 | 泉州恒毅机械有限公司 | 一种螺纹检具 |
| CN109443136A (zh) * | 2018-12-19 | 2019-03-08 | 昆山鑫轮超硬磨具有限公司 | 外螺纹检测机 |
Citations (5)
| Publication number | Priority date | Publication date | Assignee | Title |
|---|---|---|---|---|
| GB1202272A (en) * | 1967-04-17 | 1970-08-12 | English Electric Co Ltd | Taper measuring instruments |
| FR2384228A1 (fr) * | 1977-03-15 | 1978-10-13 | Sealed Power Corp | Instrument de mesure de l'angle des faces laterales d'un segment conique de piston |
| US6421929B1 (en) * | 2000-12-21 | 2002-07-23 | Command Tooling Systems | Apparatus and method to measure tapered or conical parts |
| CN2793682Y (zh) * | 2005-04-29 | 2006-07-05 | 绵阳新晨动力机械有限公司 | 一种锥管螺纹锥度检验装置 |
| CN2795800Y (zh) * | 2005-01-08 | 2006-07-12 | 汉中万目仪电有限责任公司 | 石油管螺纹内螺纹锥度测量仪 |
-
2011
- 2011-06-08 CN CN 201110151449 patent/CN102425985B/zh not_active Expired - Fee Related
Patent Citations (5)
| Publication number | Priority date | Publication date | Assignee | Title |
|---|---|---|---|---|
| GB1202272A (en) * | 1967-04-17 | 1970-08-12 | English Electric Co Ltd | Taper measuring instruments |
| FR2384228A1 (fr) * | 1977-03-15 | 1978-10-13 | Sealed Power Corp | Instrument de mesure de l'angle des faces laterales d'un segment conique de piston |
| US6421929B1 (en) * | 2000-12-21 | 2002-07-23 | Command Tooling Systems | Apparatus and method to measure tapered or conical parts |
| CN2795800Y (zh) * | 2005-01-08 | 2006-07-12 | 汉中万目仪电有限责任公司 | 石油管螺纹内螺纹锥度测量仪 |
| CN2793682Y (zh) * | 2005-04-29 | 2006-07-05 | 绵阳新晨动力机械有限公司 | 一种锥管螺纹锥度检验装置 |
Non-Patent Citations (1)
| Title |
|---|
| 王鹏: "检测螺纹锥度规的方法", 《计测技术》, vol. 28, no. 6, 31 December 2008 (2008-12-31), pages 55 - 58 * |
Cited By (7)
| Publication number | Priority date | Publication date | Assignee | Title |
|---|---|---|---|---|
| CN102679941A (zh) * | 2012-05-09 | 2012-09-19 | 西安交通大学 | 一种锥环外锥锥度检测装置 |
| CN105737777A (zh) * | 2016-02-29 | 2016-07-06 | 奇瑞汽车股份有限公司 | 一种检具基座和检具 |
| CN105737777B (zh) * | 2016-02-29 | 2018-09-21 | 奇瑞汽车股份有限公司 | 一种检具基座和检具 |
| CN107524809A (zh) * | 2016-06-20 | 2017-12-29 | 江苏核电有限公司 | 一种填料密封安装尺寸控制装置 |
| CN108332643A (zh) * | 2018-01-09 | 2018-07-27 | 泉州恒毅机械有限公司 | 一种螺纹检具 |
| CN108332643B (zh) * | 2018-01-09 | 2024-01-09 | 泉州恒毅机械有限公司 | 一种螺纹检具 |
| CN109443136A (zh) * | 2018-12-19 | 2019-03-08 | 昆山鑫轮超硬磨具有限公司 | 外螺纹检测机 |
Also Published As
| Publication number | Publication date |
|---|---|
| CN102425985B (zh) | 2013-06-12 |
Similar Documents
| Publication | Publication Date | Title |
|---|---|---|
| CN102425985B (zh) | 一种锥管螺纹环规用内螺纹锥度检具 | |
| CN101504282B (zh) | 大尺寸回转平台导轨平面度测量装置及测量方法 | |
| CN108627344A (zh) | 一种气浮球轴承性能检测装置及检测方法 | |
| CN101109632A (zh) | 一种平面度检测装置及其使用方法 | |
| CN100478669C (zh) | 一种摩擦磨损测试装置 | |
| CN105716510A (zh) | 一种后桥被齿平面度和圆度的综合检测装置 | |
| CN205228353U (zh) | 一种轴承内外圈圆度检测装置 | |
| CN201378034Y (zh) | 钟形壳球道(球面)中心高检具 | |
| CN207867909U (zh) | 一种测量齿轮齿根残余应力角度调节装置 | |
| CN107860339A (zh) | 一种主动式轴承沟曲率半径测量装置及测量方法 | |
| CN201094018Y (zh) | 一种平面度检测装置 | |
| CN203858065U (zh) | 一种测重式砂轮静平衡检测机 | |
| CN202255342U (zh) | 一种深度指示表示值误差检定装置 | |
| CN220472600U (zh) | 多点式晶片厚度测量装置 | |
| CN108615546B (zh) | 一种测量齿轮齿根残余应力角度调节装置 | |
| CN111579362A (zh) | 一种活性粉末混凝土挠度检测装置及使用方法 | |
| CN110657918A (zh) | 一种尾桨叶静平衡检测工装 | |
| CN205642265U (zh) | 一种后桥被齿平面度和圆度的综合检测装置 | |
| CN221882430U (zh) | 一种间距检测装置 | |
| CN200965459Y (zh) | 一种多项形位误差的检测装置 | |
| US2060958A (en) | Static balancing machine | |
| CN209978770U (zh) | 一种齿轮检测用工装 | |
| CN219776882U (zh) | 一种质量比较仪的自动定心机构 | |
| JP2574279Y2 (ja) | 輪転印刷機用転動軸受のがた計測装置 | |
| CN206378088U (zh) | 一种外螺纹直径圆度检具 |
Legal Events
| Date | Code | Title | Description |
|---|---|---|---|
| C06 | Publication | ||
| PB01 | Publication | ||
| C10 | Entry into substantive examination | ||
| SE01 | Entry into force of request for substantive examination | ||
| C14 | Grant of patent or utility model | ||
| GR01 | Patent grant | ||
| CF01 | Termination of patent right due to non-payment of annual fee | ||
| CF01 | Termination of patent right due to non-payment of annual fee |
Granted publication date: 20130612 Termination date: 20170608 |
