CN101113339A - A side-loading coal dust removal device for tamping coke oven machine - Google Patents
A side-loading coal dust removal device for tamping coke oven machine Download PDFInfo
- Publication number
- CN101113339A CN101113339A CNA2007101200946A CN200710120094A CN101113339A CN 101113339 A CN101113339 A CN 101113339A CN A2007101200946 A CNA2007101200946 A CN A2007101200946A CN 200710120094 A CN200710120094 A CN 200710120094A CN 101113339 A CN101113339 A CN 101113339A
- Authority
- CN
- China
- Prior art keywords
- tamping
- coal
- smoke
- coke oven
- sealing
- Prior art date
- Legal status (The legal status is an assumption and is not a legal conclusion. Google has not performed a legal analysis and makes no representation as to the accuracy of the status listed.)
- Granted
Links
- 239000000571 coke Substances 0.000 title claims abstract description 25
- 239000002817 coal dust Substances 0.000 title description 3
- 239000003245 coal Substances 0.000 claims abstract description 47
- 239000000779 smoke Substances 0.000 claims abstract description 46
- 238000007789 sealing Methods 0.000 claims abstract description 38
- 239000000428 dust Substances 0.000 claims abstract description 24
- 239000003566 sealing material Substances 0.000 claims abstract description 12
- VHUUQVKOLVNVRT-UHFFFAOYSA-N Ammonium hydroxide Chemical compound [NH4+].[OH-] VHUUQVKOLVNVRT-UHFFFAOYSA-N 0.000 claims abstract description 10
- 235000011114 ammonium hydroxide Nutrition 0.000 claims abstract description 10
- 238000004939 coking Methods 0.000 claims description 8
- 239000004484 Briquette Substances 0.000 claims description 4
- 239000000835 fiber Substances 0.000 claims description 2
- 239000003973 paint Substances 0.000 claims description 2
- 229910001220 stainless steel Inorganic materials 0.000 claims description 2
- 239000010935 stainless steel Substances 0.000 claims description 2
- 239000000463 material Substances 0.000 claims 2
- HERJJROLHRDFEX-UHFFFAOYSA-N [AlH3].[Si](O)(O)(O)O Chemical compound [AlH3].[Si](O)(O)(O)O HERJJROLHRDFEX-UHFFFAOYSA-N 0.000 claims 1
- 230000005611 electricity Effects 0.000 claims 1
- 238000003763 carbonization Methods 0.000 abstract description 23
- 238000000746 purification Methods 0.000 abstract description 2
- 238000005516 engineering process Methods 0.000 description 8
- 238000000034 method Methods 0.000 description 7
- 230000007613 environmental effect Effects 0.000 description 4
- 238000010586 diagram Methods 0.000 description 3
- 239000007789 gas Substances 0.000 description 3
- 238000004519 manufacturing process Methods 0.000 description 3
- UGFAIRIUMAVXCW-UHFFFAOYSA-N Carbon monoxide Chemical compound [O+]#[C-] UGFAIRIUMAVXCW-UHFFFAOYSA-N 0.000 description 2
- 230000000694 effects Effects 0.000 description 2
- 239000003546 flue gas Substances 0.000 description 2
- 239000007921 spray Substances 0.000 description 2
- 229910000831 Steel Inorganic materials 0.000 description 1
- YKTSYUJCYHOUJP-UHFFFAOYSA-N [O--].[Al+3].[Al+3].[O-][Si]([O-])([O-])[O-] Chemical compound [O--].[Al+3].[Al+3].[O-][Si]([O-])([O-])[O-] YKTSYUJCYHOUJP-UHFFFAOYSA-N 0.000 description 1
- 238000003915 air pollution Methods 0.000 description 1
- 239000011449 brick Substances 0.000 description 1
- 238000009841 combustion method Methods 0.000 description 1
- 230000008030 elimination Effects 0.000 description 1
- 238000003379 elimination reaction Methods 0.000 description 1
- 238000003912 environmental pollution Methods 0.000 description 1
- 230000001681 protective effect Effects 0.000 description 1
- 239000010959 steel Substances 0.000 description 1
Images
Landscapes
- Coke Industry (AREA)
Abstract
本发明公开了一种冶金行业捣固焦炉机侧装煤除尘装置,包括炉顶带U型管、双电磁打盖机构的导烟车(1)、机侧带移动密封框的捣固装煤车(5)、炉顶桥管处高压氨水系统(12)。炉顶带U型管、双电磁打盖机构的导烟车(1)通过U型管在导烟孔处进行导烟;机侧带移动密封框的捣固装煤车(5)将炉门框密封,密封框内口的特出密封材料和煤饼之间保持密封间隙,保证煤饼进入炭化室时烟尘不外逸,炉顶桥管处高压氨水系统(12)在装煤过程中喷射高压氨水,正在装煤的炭化室和相邻炭化室使2个炭化室内有负压产生,将炉口处的烟尘通过导烟小车U型管将装煤时的荒煤气导入相邻炭化室,进入集气管中送入煤气净化车间,达到了保护环境的目的。
The invention discloses a tamping coke oven side-loading coal dedusting device in the metallurgical industry, comprising a smoke guiding vehicle (1) with a U-shaped tube on the furnace top and a double electromagnetic cover mechanism, and a tamping device with a movable sealing frame on the side of the machine. Coal car (5), high pressure ammonia water system (12) at furnace top bridge pipe. The smoke guiding vehicle (1) with U-shaped tube on the furnace top and double electromagnetic cover mechanism guides the smoke at the smoke guiding hole; the tamping coal charging vehicle (5) with a movable sealing frame on the machine side Sealing, the special sealing material at the inner opening of the sealing frame maintains a sealing gap with the briquettes to ensure that the smoke and dust do not escape when the briquettes enter the carbonization chamber. Ammonia water, the carbonization chamber that is charging coal and the adjacent carbonization chamber will generate negative pressure in the two carbonization chambers, and the smoke at the furnace mouth will be introduced into the adjacent carbonization chamber through the U-shaped tube of the smoke guide trolley to enter the adjacent carbonization chamber. The gas collecting pipe is sent to the gas purification workshop to achieve the purpose of protecting the environment.
Description
技术领域technical field
本发明涉及一种捣固焦炉机侧装煤除尘装置,尤其是防止捣固焦炉装煤过程中烟尘外逸的机侧装煤除尘装置。The invention relates to a side-loading coal-loading and dust-removing device of a tamping coke oven, in particular to a machine-side coal-loading and dust-removing device for preventing smoke and dust from escaping during the coal charging process of a tamping coke oven.
背景技术Background technique
目前国内4.3m捣固焦炉机侧装煤除尘没有成熟的技术,由于没有采取高效治理装煤烟尘污染的措施,所以装煤操作环境恶劣,大气污染严重。虽然我国因炼焦煤资源问题,捣固焦炉近几年发展较快,但由于环境污染问题,严重影响捣固焦炉向大型化的发展。尽管国内绝大多数捣固焦炉焦化厂的装煤除尘装置只将烟尘汇集到炉顶装煤消烟除尘车上,采用燃烧法在车上燃烧、经旋风除尘器、低阻文丘里除尘器后,再经风机通过烟囱排入大气,外排烟气远未达标,现场看环保效果很不理想。还有一种消烟除尘车加除尘地面站经生产实践证明可以收到较好的除尘效果,但此装置有两个缺点,风量小烟尘抽不走,风量大大量冷空气由炉门口进入炭化室,影响焦炉的正常生产,炉门口炉头砖很容易损坏,影响炉体的寿命。同时资金投入大,占地面积也大。At present, there is no mature technology for side-loading and dust removal of 4.3m tamping coke oven machines in China. Since no efficient measures have been taken to control the pollution of coal-charging smoke and dust, the coal-charging operation environment is harsh and the air pollution is serious. Although due to the problem of coking coal resources in our country, tamping coke ovens have developed rapidly in recent years, the development of large-scale tamping coke ovens has been seriously affected due to environmental pollution. Although most of the domestic ramming coke oven coking plants' coal charging and dust removal devices only collect the smoke and dust on the coal charging and smoke removal and dust removal truck on the top of the furnace, and use the combustion method to burn on the truck, pass through the cyclone dust collector, and the low resistance Venturi dust collector Finally, it is discharged into the atmosphere through the chimney through the fan, and the exhausted flue gas is far from reaching the standard, and the environmental protection effect is not ideal at the scene. There is also a smoke elimination and dust removal vehicle plus a dust removal ground station. It has been proved by production practice that it can receive better dust removal effect, but this device has two disadvantages. , affecting the normal production of the coke oven, the furnace door brick is easy to damage, affecting the life of the furnace body. At the same time, the capital investment is large and the floor area is also large.
发明内容:Invention content:
为了克服上述捣固焦炉装煤机侧除尘装置中密封不严污染环境的缺点,本发明提供一种具有经济适用投资少;技术可靠污染小;保护炉体寿命高;煤气回收负荷低的优点,大幅度改善装煤操作环境,提高环保、节能水平;使我国的捣固炼焦工艺整体水平上一个新台阶,达到国内一流、国际先进水平的捣固焦炉装煤机侧除尘技术。In order to overcome the above-mentioned shortcomings of lax sealing and polluting the environment in the dust removal device on the side of the tamping coke oven coal charge machine, the present invention provides an economical, applicable, low investment; reliable technology, low pollution; long service life of the protective furnace body; , greatly improve the coal charging operation environment, improve the level of environmental protection and energy saving; bring the overall level of tamping coking technology in my country to a new level, and reach the domestic first-class and international advanced level tamping coke oven coal charging machine side dust removal technology.
本发明涉及一种捣固焦炉机侧装煤除尘装置,包括炉顶导烟车、机侧捣固装煤车、炉顶桥管处高压氨水系统,The invention relates to a tamping coke oven machine side coal loading and dedusting device, which includes a furnace top smoke guiding vehicle, a machine side tamping coal loading vehicle, and a high pressure ammonia water system at the furnace top bridge pipe.
所述导烟车设置有可同时打开两个相邻炭化室导烟孔盖的双电磁打盖机构及靠电液动推杆上下移动,对准装煤的炭化室导烟孔和相邻的炭化室的导烟孔的U型管。The smoke guide vehicle is equipped with a double electromagnetic cover mechanism that can simultaneously open the smoke guide hole covers of two adjacent carbonization chambers and moves up and down by an electro-hydraulic push rod, aiming at the smoke guide hole of the carbonization chamber charged with coal and the adjacent smoke guide hole. The U-shaped pipe of the smoke guide hole of the carbonization chamber.
所述捣固装煤车在捣固装煤车煤槽前端安装有移动密封框,移动密封框下部设有车轮轨道,上部设有液压缸,液压缸安装在煤槽侧壁上,装煤时由液压缸驱动密封框使其沿轨道前移帖紧炉门框镜面达到密封。The tamping coal charging car is equipped with a movable sealing frame at the front end of the coal chute of the tamping coal charging car. The lower part of the moving sealing frame is provided with a wheel track, and the upper part is provided with a hydraulic cylinder. The hydraulic cylinder is installed on the side wall of the coal chute. The sealing frame is driven by the hydraulic cylinder so that it moves forward along the track and tightly fits the mirror surface of the furnace door frame to achieve sealing.
捣固装煤车的移动密封框与焦炉炉门框接触的镜面四周装有密封件,移动密封框内口装有可调节、可变形耐高温的密封材料,密封材料和煤饼之间保持密封间隙。Seals are installed around the mirror surface where the movable sealing frame of the tamping coal loading vehicle is in contact with the door frame of the coke oven. The inner opening of the movable sealing frame is equipped with an adjustable, deformable and high-temperature resistant sealing material, and the sealing material and coal cake are kept sealed. gap.
U型管(3)材质为不锈钢,内涂耐火涂料。The U-shaped pipe (3) is made of stainless steel and coated with refractory paint.
捣固装煤车的移动密封框所用密封材料材质为耐高温硅酸铝纤维毡。The sealing material used for the moving sealing frame of the tamping coal loading car is high temperature resistant aluminum silicate fiber felt.
导烟车中的双电磁打盖机构、U型管通过刚结构与导烟车车体连接,双电磁打盖机构靠油缸驱动前后移动,同时打开两个相邻导烟孔盖,U型管由电液动推杆驱动上下移动,对准两个相邻导烟孔,装煤时导烟车运行到装煤炭化室的导烟孔处,由双电磁铁打盖机构同时打开正在装煤炭化室的导烟孔和相邻炭化室的导烟孔的炉盖,U型管下降对准两个导烟孔,进入导烟状态。The double electromagnetic capping mechanism and the U-shaped tube in the smoke guiding vehicle are connected to the body of the smoke guiding vehicle through a rigid structure. Driven by the electro-hydraulic push rod to move up and down, aiming at two adjacent smoke guide holes, when coal is loaded, the smoke guide truck runs to the smoke guide hole of the coalization chamber, and is opened simultaneously by the double electromagnet cover mechanism. The smoke guide hole of the carbonization chamber and the furnace cover of the smoke guide hole of the adjacent carbonization chamber, the U-shaped tube is lowered to align with the two smoke guide holes, and enters the smoke guide state.
捣固装煤车移动密封框通过钢结构与捣固装煤车煤槽连接,移动密封框下部设有车轮和轨道,上部设有液压缸,液压缸安装在煤槽侧壁上,装煤时由液压缸驱动移动密封框使其沿轨道前移帖紧炉门框镜面,移动密封框与焦炉炉门框接触的镜面四周装有密封件,达到密封的目的,移动密封框内口周围装有可调节、可变形耐高温的密封材料,密封材料和煤饼之间保持密封间隙,保证煤饼可顺利送入炭化室,同时保证煤饼进入炭化室时烟尘不外逸,并可防止大量空气吸入。The moving sealing frame of the tamping coal loading vehicle is connected with the coal chute of the tamping coal loading vehicle through a steel structure. The lower part of the moving sealing frame is equipped with wheels and tracks, and the upper part is equipped with a hydraulic cylinder. The hydraulic cylinder is installed on the side wall of the coal chute. The moving sealing frame is driven by the hydraulic cylinder to move forward along the track to tightly fit the mirror surface of the furnace door frame. Sealing parts are installed around the mirror surface where the moving sealing frame is in contact with the coke oven door frame to achieve the purpose of sealing. Adjustable, deformable and high-temperature-resistant sealing material, a sealing gap is maintained between the sealing material and the briquette to ensure that the briquette can be smoothly sent into the carbonization chamber, and at the same time ensure that the smoke and dust do not escape when the briquette enters the carbonization chamber, and prevent a large amount of air from being inhaled .
炉顶桥管处高压氨水系统由工艺管道、阀门、喷嘴组成,装煤时炉顶桥管处向正在装煤的炭化室和相邻炭化室喷射高压氨水,使2个炭化室内产生负压,抽吸装煤过程中从机侧炉门处冒出的烟尘。The high-pressure ammonia water system at the furnace top bridge pipe is composed of process pipes, valves, and nozzles. When coal is loaded, the furnace top bridge pipe sprays high-pressure ammonia water to the carbonization chamber and the adjacent carbonization chamber that are charging coal, so that the two carbonization chambers generate negative pressure. Suction the smoke and dust emitted from the furnace door on the side of the machine during the coal charging process.
正常装煤时三大部分同时作业,将装煤过程中的烟尘顺利导入集气管内,送到煤气净化车间处理。During normal coal loading, the three parts operate at the same time, and the smoke and dust during the coal loading process are smoothly introduced into the gas collection pipe and sent to the gas purification workshop for processing.
该发明能明显降低捣固焦炉装煤时烟尘和荒煤气的外逸,从根本上解决了捣固焦炉烟尘污染严重的问题。具有经济适用投资少;技术可靠污染小;保护炉体寿命高;大幅度改善装煤操作环境,提高环保、节能水平;使我国的捣固炼焦工艺整体水平上一个新台阶,达到国内一流、国际先进水平。The invention can obviously reduce the escaping of smoke and raw gas when the tamping coke oven is charged with coal, and fundamentally solves the problem of serious smoke pollution in the tamping coke oven. It is economical and applicable with low investment; reliable technology and low pollution; long service life of furnace protection; greatly improved coal charging operation environment, improved environmental protection and energy saving level; brought the overall level of tamping and coking technology in my country to a new level, reaching domestic first-class and international advanced level.
附图说明Description of drawings
下面结合附图和具体实施方式对本发明作进一步说明。The present invention will be further described below in conjunction with the accompanying drawings and specific embodiments.
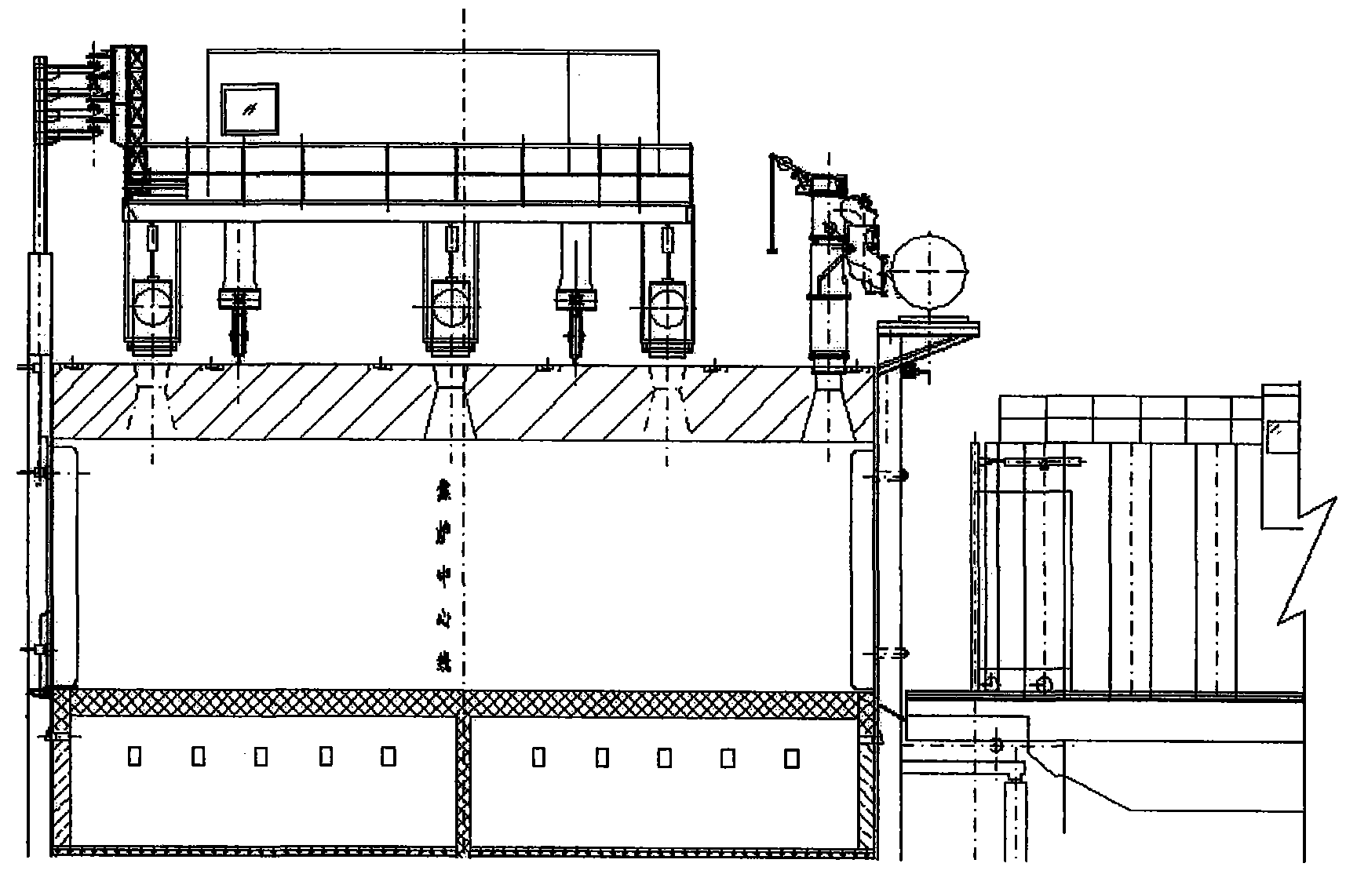
图1是本发明的整体装置示意图;Fig. 1 is the overall device schematic diagram of the present invention;
图中:1、带U型管导烟车,5、带移动密封框的捣固装煤车,12、炉顶桥管处高压氨水系统。In the figure: 1. A smoke guide car with a U-shaped pipe, 5. A tamping coal loading car with a movable sealing frame, 12. A high-pressure ammonia water system at the bridge pipe on the furnace top.
图2是本发明的导烟车结构侧视图;Fig. 2 is a side view of the structure of the smoke guiding vehicle of the present invention;
图中:2、双电磁打盖机构,3、U型管,4、电液动推杆。In the figure: 2. Double electromagnetic capping mechanism, 3. U-shaped tube, 4. Electro-hydraulic push rod.
图3是本发明的带移动密封框的捣固装煤车结构示意图;Fig. 3 is the structure schematic diagram of the tamping coal loading car with movable sealing frame of the present invention;
图中:6、移动密封框,7、车轮,8、轨道,9、液压缸。Among the figure: 6, mobile sealing frame, 7, wheel, 8, track, 9, hydraulic cylinder.
图4是本发明的捣固装煤车移动密封框结构示意图Fig. 4 is a structural schematic diagram of the movable sealing frame of the tamping coal loading vehicle of the present invention
图5是图4的A-A剖面图Fig. 5 is a sectional view of A-A of Fig. 4
图中:10、密封件,11、密封材料,Among the figure: 10, sealing element, 11, sealing material,
具体实施方式:Detailed ways:
捣固焦炉机侧装煤除尘装置,是目前捣固焦炉没有采用过的新技术,如图1所示捣固焦炉在装煤时,导烟车1运行到装煤炭化室的导烟孔处,由双电磁打盖机构2同时打开正在装煤炭化室的导烟孔和相邻炭化室的导烟孔的炉盖,电液动推杆4驱动U型管3下降对准两个相邻导烟孔,通过U型管3将装煤过程中的烟气导入相邻炭化室内;捣固装煤车5运行到装煤炭化室的炉门处,移动密封框6由液压缸9驱动,使移动密封框6下部的车轮7沿轨道8向前移动,最终移动密封框6外侧的密封件10与炉门框的镜面贴紧,达到密封的目的,密封框内口周围有可调节、可变形的、耐高温的特殊密封材料11,密封材料11和煤饼之间保持密封间隙,保证装煤时煤饼可顺利送入炭化室,同时保证煤饼进入炭化室时烟尘不外逸,并可防止大量冷空气吸入,保护了焦炉炉体;The side-loading coal dust removal device of the tamping coke oven machine is a new technology that has not been adopted in the tamping coke oven at present. At the smoke hole, the double electromagnetic cover mechanism 2 simultaneously opens the furnace cover of the smoke guide hole of the coalization chamber being installed and the smoke guide hole of the adjacent carbonization chamber, and the electro-hydraulic push rod 4 drives the U-shaped pipe 3 to descend and align with the two two adjacent smoke guide holes, the flue gas in the coal charging process is introduced into the adjacent carbonization chamber through U-shaped pipe 3; 9 driving, so that the wheel 7 at the lower part of the moving sealing frame 6 moves forward along the track 8, and finally the sealing member 10 on the outside of the moving sealing frame 6 is closely attached to the mirror surface of the furnace door frame to achieve the purpose of sealing. , deformable, high-temperature-resistant special sealing material 11, and a sealing gap is maintained between the sealing material 11 and the briquettes to ensure that the briquettes can be smoothly sent into the carbonization chamber when coal is loaded, and at the same time ensure that the smoke and dust do not escape when the briquettes enter the carbonization chamber , and prevent the inhalation of a large amount of cold air, protecting the coke oven body;
炉顶桥管处高压氨水系统12,高压氨水压力可根据生产实际进行调节调。The high-pressure
装煤时炉顶桥管处向正在装煤的炭化室和相邻炭化室喷射高压氨水,使2个炭化室内产生负压,抽吸装煤过程中从机侧炉门处冒出的烟尘,确保密封严密不使烟气外逸。When coal is being charged, the bridge pipe on the top of the furnace sprays high-pressure ammonia water to the carbonization chamber being coaled and the adjacent carbonization chamber to generate negative pressure in the two carbonization chambers, and to suck the smoke and dust emitted from the furnace door on the side of the machine during the coal charging process. Make sure that the seal is tight so that the smoke does not escape.
捣固焦炉采用机侧装煤除尘装置,便于实现烟尘治理、控制污染,大幅度改善装煤操作环境,提高环保、节能水平,使我国的捣固炼焦工艺整体水平上一个新台阶,达到国内一流、国际先进水平。The tamping coke oven adopts a side-loading coal dust removal device, which facilitates dust control and pollution control, greatly improves the coal charging operation environment, improves environmental protection and energy saving levels, and brings the overall level of tamping coking technology in my country to a new level. First-class, international advanced level.
Claims (4)
Priority Applications (1)
| Application Number | Priority Date | Filing Date | Title |
|---|---|---|---|
| CN2007101200946A CN101113339B (en) | 2007-08-09 | 2007-08-09 | A side-loading coal dust removal device for tamping coke oven machine |
Applications Claiming Priority (1)
| Application Number | Priority Date | Filing Date | Title |
|---|---|---|---|
| CN2007101200946A CN101113339B (en) | 2007-08-09 | 2007-08-09 | A side-loading coal dust removal device for tamping coke oven machine |
Publications (2)
| Publication Number | Publication Date |
|---|---|
| CN101113339A true CN101113339A (en) | 2008-01-30 |
| CN101113339B CN101113339B (en) | 2010-09-15 |
Family
ID=39021871
Family Applications (1)
| Application Number | Title | Priority Date | Filing Date |
|---|---|---|---|
| CN2007101200946A Active CN101113339B (en) | 2007-08-09 | 2007-08-09 | A side-loading coal dust removal device for tamping coke oven machine |
Country Status (1)
| Country | Link |
|---|---|
| CN (1) | CN101113339B (en) |
Cited By (15)
| Publication number | Priority date | Publication date | Assignee | Title |
|---|---|---|---|---|
| CN101845309A (en) * | 2010-06-22 | 2010-09-29 | 四川达兴能源股份有限公司 | Coal charging and dust removing device at tamping coke oven machine side |
| CN101348722B (en) * | 2008-07-30 | 2011-04-13 | 莱芜钢铁股份有限公司 | Coke oven machine side furnace door smoke and dust removal device |
| CN102391883A (en) * | 2011-09-21 | 2012-03-28 | 大连华锐股份有限公司 | Tamping coal charging dust removal system and working method thereof |
| CN101537418B (en) * | 2009-03-19 | 2012-05-23 | 中冶焦耐工程技术有限公司 | Tamping coke oven coal-charging and coke-discharging dry type smoke dust purification vehicle |
| CN102660303A (en) * | 2012-05-08 | 2012-09-12 | 山东兖煤凯达环保机械有限公司 | Device for recovering gas without smoke dust discharge during coal charging and coke discharge of coke oven |
| CN102786959A (en) * | 2012-07-25 | 2012-11-21 | 高志辉 | Reconstruction of three cars and one door of side-installed coke oven |
| CN104962298A (en) * | 2015-07-09 | 2015-10-07 | 济南弘科信泰环保技术有限公司 | Method and system for controlling internal suction-method smokeless coal charging process of tamping coke oven |
| CN106367087A (en) * | 2016-11-16 | 2017-02-01 | 山东钢铁股份有限公司 | Protection device for dust removal system of coal charging car |
| CN107267169A (en) * | 2017-07-21 | 2017-10-20 | 中冶焦耐(大连)工程技术有限公司 | A directional control system and method for ramming coke oven machine side coal smoke and dust |
| CN109072084A (en) * | 2016-03-07 | 2018-12-21 | 蒂森克虏伯工业解决方案股份公司 | In gas collection chamber for aspirating filling gas during being placed on tamping briquette in furnace chamber and being transferred into gravity stamp furnace chamber and reduce the frame that filling is discharged |
| CN109294602A (en) * | 2018-06-12 | 2019-02-01 | 大连华锐重工焦炉车辆设备有限公司 | A kind of environment-friendly type coal loading, smoke conduction integrated vehicle and its operating method |
| CN110184078A (en) * | 2019-07-12 | 2019-08-30 | 大连华锐重工焦炉车辆设备有限公司 | Dust collection for charging system and its operating procedure applied to tamping coal-charging coke pusher |
| CN111849522A (en) * | 2020-08-06 | 2020-10-30 | 青岛磊莎工业自动化设备有限公司 | A automatic tamping unit of coal cake for smelting |
| CN113403090A (en) * | 2021-07-09 | 2021-09-17 | 大连华锐重工焦炉车辆设备有限公司 | Smokeless coal charging car with smoke guiding function and using method thereof |
| CN116622390A (en) * | 2023-06-27 | 2023-08-22 | 张家港宏昌钢板有限公司 | A Coke Oven Platform Residual Coal Recovery Machine |
Family Cites Families (6)
| Publication number | Priority date | Publication date | Assignee | Title |
|---|---|---|---|---|
| CN2162634Y (en) * | 1993-06-22 | 1994-04-20 | 首钢总公司 | Coal loading, smoke conduction device for coke furnace top |
| CN2542665Y (en) * | 2002-05-14 | 2003-04-02 | 李九林 | Dust suctor for coal-feeding cart on roof of coke oven |
| CN2644427Y (en) * | 2003-08-30 | 2004-09-29 | 大连华锐股份有限公司 | Tamp coke oven smoke prevention and dust control vehicle |
| CN2806465Y (en) * | 2005-06-06 | 2006-08-16 | 北京首钢中冶机电设备有限公司 | Dust-removing integrated system for coke oven |
| CN2828043Y (en) * | 2005-09-14 | 2006-10-18 | 大连华锐股份有限公司 | Dust removing coke blocking machine |
| CN100999670B (en) * | 2006-12-29 | 2010-08-18 | 太原重工股份有限公司 | Smoke preventing and dust removing for tamping coking oven side filling coal and vehicle for smoke preventing and dust removing |
-
2007
- 2007-08-09 CN CN2007101200946A patent/CN101113339B/en active Active
Cited By (23)
| Publication number | Priority date | Publication date | Assignee | Title |
|---|---|---|---|---|
| CN101348722B (en) * | 2008-07-30 | 2011-04-13 | 莱芜钢铁股份有限公司 | Coke oven machine side furnace door smoke and dust removal device |
| CN101537418B (en) * | 2009-03-19 | 2012-05-23 | 中冶焦耐工程技术有限公司 | Tamping coke oven coal-charging and coke-discharging dry type smoke dust purification vehicle |
| CN101845309A (en) * | 2010-06-22 | 2010-09-29 | 四川达兴能源股份有限公司 | Coal charging and dust removing device at tamping coke oven machine side |
| CN101845309B (en) * | 2010-06-22 | 2013-05-08 | 四川达兴能源股份有限公司 | Coal charging and dust removing device at tamping coke oven machine side |
| CN102391883A (en) * | 2011-09-21 | 2012-03-28 | 大连华锐股份有限公司 | Tamping coal charging dust removal system and working method thereof |
| CN102660303A (en) * | 2012-05-08 | 2012-09-12 | 山东兖煤凯达环保机械有限公司 | Device for recovering gas without smoke dust discharge during coal charging and coke discharge of coke oven |
| CN102786959A (en) * | 2012-07-25 | 2012-11-21 | 高志辉 | Reconstruction of three cars and one door of side-installed coke oven |
| CN104962298B (en) * | 2015-07-09 | 2018-05-08 | 济南弘科信泰环保技术有限公司 | Suction method Anthracite coal process control method and system in a kind of tampering coking oven |
| CN104962298A (en) * | 2015-07-09 | 2015-10-07 | 济南弘科信泰环保技术有限公司 | Method and system for controlling internal suction-method smokeless coal charging process of tamping coke oven |
| CN109072084A (en) * | 2016-03-07 | 2018-12-21 | 蒂森克虏伯工业解决方案股份公司 | In gas collection chamber for aspirating filling gas during being placed on tamping briquette in furnace chamber and being transferred into gravity stamp furnace chamber and reduce the frame that filling is discharged |
| CN109072084B (en) * | 2016-03-07 | 2021-07-27 | 蒂森克虏伯工业解决方案股份公司 | Frame for sucking and transferring filling gas into the gas collection chamber of the tamping machine furnace chamber and reducing filling emissions during placement of tamping coal cakes in the furnace chamber |
| CN106367087A (en) * | 2016-11-16 | 2017-02-01 | 山东钢铁股份有限公司 | Protection device for dust removal system of coal charging car |
| CN107267169A (en) * | 2017-07-21 | 2017-10-20 | 中冶焦耐(大连)工程技术有限公司 | A directional control system and method for ramming coke oven machine side coal smoke and dust |
| CN109294602B (en) * | 2018-06-12 | 2023-10-20 | 大连华锐重工焦炉车辆设备有限公司 | Environment-friendly coal-charging and smoke-guiding integrated vehicle and operation method thereof |
| CN109294602A (en) * | 2018-06-12 | 2019-02-01 | 大连华锐重工焦炉车辆设备有限公司 | A kind of environment-friendly type coal loading, smoke conduction integrated vehicle and its operating method |
| CN110184078A (en) * | 2019-07-12 | 2019-08-30 | 大连华锐重工焦炉车辆设备有限公司 | Dust collection for charging system and its operating procedure applied to tamping coal-charging coke pusher |
| CN110184078B (en) * | 2019-07-12 | 2024-02-02 | 大连华锐重工焦炉车辆设备有限公司 | Coal-charging dust-removing system applied to tamping coal-charging coke pusher and operation steps thereof |
| CN111849522A (en) * | 2020-08-06 | 2020-10-30 | 青岛磊莎工业自动化设备有限公司 | A automatic tamping unit of coal cake for smelting |
| CN111849522B (en) * | 2020-08-06 | 2021-05-04 | 南京新光玻璃钢有限公司 | A automatic tamping unit of coal cake for smelting |
| CN113403090B (en) * | 2021-07-09 | 2023-07-28 | 大连华锐重工焦炉车辆设备有限公司 | Smokeless coal charging car with smoke guiding function and using method thereof |
| CN113403090A (en) * | 2021-07-09 | 2021-09-17 | 大连华锐重工焦炉车辆设备有限公司 | Smokeless coal charging car with smoke guiding function and using method thereof |
| CN116622390A (en) * | 2023-06-27 | 2023-08-22 | 张家港宏昌钢板有限公司 | A Coke Oven Platform Residual Coal Recovery Machine |
| CN116622390B (en) * | 2023-06-27 | 2023-10-20 | 张家港宏昌钢板有限公司 | Coke oven table residual coal recycling machine |
Also Published As
| Publication number | Publication date |
|---|---|
| CN101113339B (en) | 2010-09-15 |
Similar Documents
| Publication | Publication Date | Title |
|---|---|---|
| CN101113339B (en) | A side-loading coal dust removal device for tamping coke oven machine | |
| CN101085922A (en) | Tamping coke oven smoke treatment system and smoke treatment method thereof | |
| CN101392177A (en) | Raw coal gas recovery process of stamp charging coke oven | |
| CN215886905U (en) | Smoke blocking device of coke tank car | |
| CN202157053U (en) | Dedusting device arranged beside coke pushing machine | |
| CN100999670A (en) | Smoke preventing and dust removing for tamping coking oven side filling coal and vehicle of smoke preventing and dust removing | |
| CN110746993A (en) | Coupling system and process of tamping coke oven charging soot treatment and coke oven flue gas purification | |
| CN202322727U (en) | Coke oven body side furnace head smoke movable dedusting station | |
| CN200992532Y (en) | Stamping charging coke oven coal-charging smoke-guiding car with machine side door smoke control | |
| CN100383219C (en) | Smoke guide car for tamping coke oven coal charging | |
| CN107201239B (en) | Coal-charging smoke dust loss prevention system and method at tamping coke oven machine side | |
| CN201952392U (en) | Comprehensive dust-removal system for discharging coke and charging coal of coke oven | |
| CN211035811U (en) | Coupling system of tamping coke oven charging soot treatment and coke oven flue gas purification | |
| CN104673335B (en) | Ladder regenerative mixed combustion chamber smoke elimination and energy-saving vehicle | |
| CN101429439A (en) | Tamping type coke making coke oven gas collecting device | |
| CN208218760U (en) | A kind of Novel U-shaped pipe device of pressure adjustable | |
| CN211035810U (en) | Coupling system for coal-charging smoke treatment and coke oven flue gas purification of top-loading coke oven | |
| CN115875998A (en) | Dust removal and waste heat recovery system and method for electric furnace | |
| CN100412163C (en) | Side big gate sealing device for side-mounted stamp-charging coke oven | |
| CN107245341B (en) | A guide type machine side furnace door sealing device | |
| CN201598263U (en) | M-shaped tube smoke guiding device used for coal charging of tamping-type coke oven | |
| CN221077185U (en) | Smoke overflow preventing device for industrial silicon electric furnace tamping furnace | |
| CN101348722B (en) | Coke oven machine side furnace door smoke and dust removal device | |
| CN113004916A (en) | Dust remover top suction upturning type flue gas conversion device | |
| CN204454989U (en) | Ladder regenerative mixed combustion chamber smoke elimination and energy-saving vehicle |
Legal Events
| Date | Code | Title | Description |
|---|---|---|---|
| C06 | Publication | ||
| PB01 | Publication | ||
| C10 | Entry into substantive examination | ||
| SE01 | Entry into force of request for substantive examination | ||
| C14 | Grant of patent or utility model | ||
| GR01 | Patent grant | ||
| CP01 | Change in the name or title of a patent holder |
Address after: 100041 Beijing Shijingshan District Shijingshan road Shougang head office Patentee after: Shougang Group Co. Ltd. Address before: 100041 Beijing Shijingshan District Shijingshan road Shougang head office Patentee before: Capital Iron & Steel General Company |
|
| CP01 | Change in the name or title of a patent holder |
